aktuali projekti teksti process darbinieki

10.02.2012

THE WINNING PROPOSAL FOR LOW-ENERGY OFFICE BUILDING IN

RIGA, MATROZU STREET

The building is planned as a low-energy office building with the specific heat level - 15 kWh/m2 per year, and primary energy provision - 102 kWh/m2 per year.

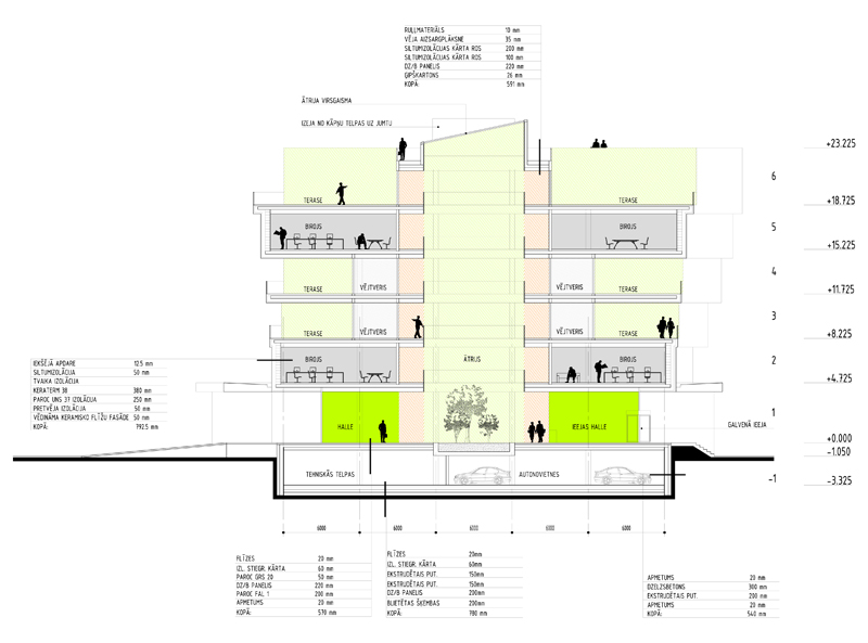
The building is planned as an office building including reception, a café, and conference rooms on the 1st floor, open plan office space on upper levels and a basement for car park and technical areas.

Covered atrium accommodates the extra daylight and natural ventilation option. On the 1st floor level in atrium green plants are planned, to produce oxygen and neutralize CO2, improving air quality and microclimate inside.

RBS2_viz1.jpg

Constructive scheme
The building is planned as a six floor reinforced concrete frame structure with a basement floor partially lowered into the ground. The building floors are shifted / rotated relatively to one another, maintaining the central axis, creating small terraces in each floor.

Reinforced concrete columns support the building in the central part. Perimeter of the building consists of Keraterm bearing block walls, which are based on an existing slab below. Rigidity of the building provides 2 concrete stairwells.

Outdoor terraces are planned on each floor for recreation and additional office space illumination.
On the roof is planned a viewing terrace and space for technical equipment solar panels on the South side (for water heating), and rainwater collector for technical purposes and plant watering.

RBS2_plan_gif.gif

RBS2_GR.jpg

To ensure the required thermal standards the following is planned: 

External walls:

ventilated ceramic facade - 70mm

wind insulation - 50mm

insulating layer Paroc UNS37 - 250mm

Keraterm 38 blocks - 380mm

steam / condensation film

insulating layer - 50mm

plasterboard - 13mm

Roof:

rubberized bitumen roof covering in 2 layers - 10mm

wind shielding - 35mm

insulating layer Paroc ROS - 200mm

insulating layer Paroc ROS - 100mm

reinforced concrete slab - 220mm

suspended ceiling - 50mm

2 layers of plasterboard - 26mm

Window area of ​​the facades is 30% of the total facade area (3 layers of glass in wooden frame (U value 0.8W / (m2 K)).

RBS2_viz3.jpg

RBS2_viz7.jpg

RBS2_viz4.jpg

RBS2_viz5.jpg

The plot area 4170.00 sqm

The planned building intensity 145.5%

The buildings total area 5408.10 sqm

Number of cars in underground parking 18

Estimated number of floors 6

 

SEE ALSO: JUST GREEN                                                                                                                

 

 atpakal




Spameris
Drošības kods: > > >