aktuali projekti teksti process darbinieki

15.10.2012

KNI_viz3.jpg

KNI HOUSE 

The 1st floor volume, fully open towards the courtyard, is framing a view to modest Latvian summers. 

The driveway cuts through the elevated land plot and descends below the main ground floor volume ending up into a volume that becomes a cantilivered floor above.

Initially the client asked for a house that would resemble the villa of the main antagonist in the movie "The Girl with the Dragon Tattoo". 

KNI_shemas.jpg

KNI_gp.jpg

ENTRANCE VIEW/ DRIVEWAY

KNI_viz2.jpg

FACADE 

KNI_fas.jpg  

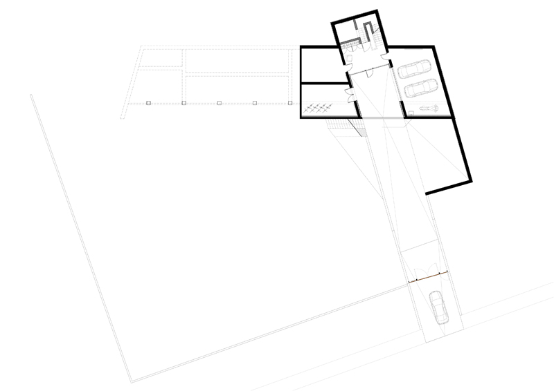
GROUND LEVEL PLAN 

KNI_plan1.jpg

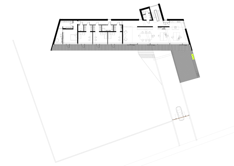
1ST LEVEL PLAN 

KNI_plan2.jpg

2ND LEVEL PLAN 

KNI_plan3.jpg

KNI_gr.jpg 

KNI_viz4.jpg

KNI_viz5.jpg 

Building constructions, mechanical, electrical, and plumbing systems by IAG projekti

 

 

 atpakal




Spameris
Drošības kods: > > >