|
|
COMPETITION PROPOSAL FOR THE EXPO 2017 IN ASTANA, KAZAKHSTAN
BRIEF:
The proposal envisions the Latvian pavilion in the
International Exposition scheduled to take place between June 10 and September
10, 2017 in Astana, Kazakhstan. The expo's official theme is "Future
Energy", showcasing solutions tackling social, economic and environmental
challenges.
CONCEPT:
The conceptual base of the proposal is a terminal, a
station, a meeting point, presenting Latvia as an excellent transport and
service transmission node. The project proposes the smart use and saving of the
existing energy, rather than focusing on new sources of energy. This is
achieved through concentrating on collaboration, logistics and new routes of
transit. Latvia is presented as a meeting point between the West and the East,
ensuring a smooth flow of energies and partnerships between them.
ARCHITECTURAL SPATIAL SOLUTION:
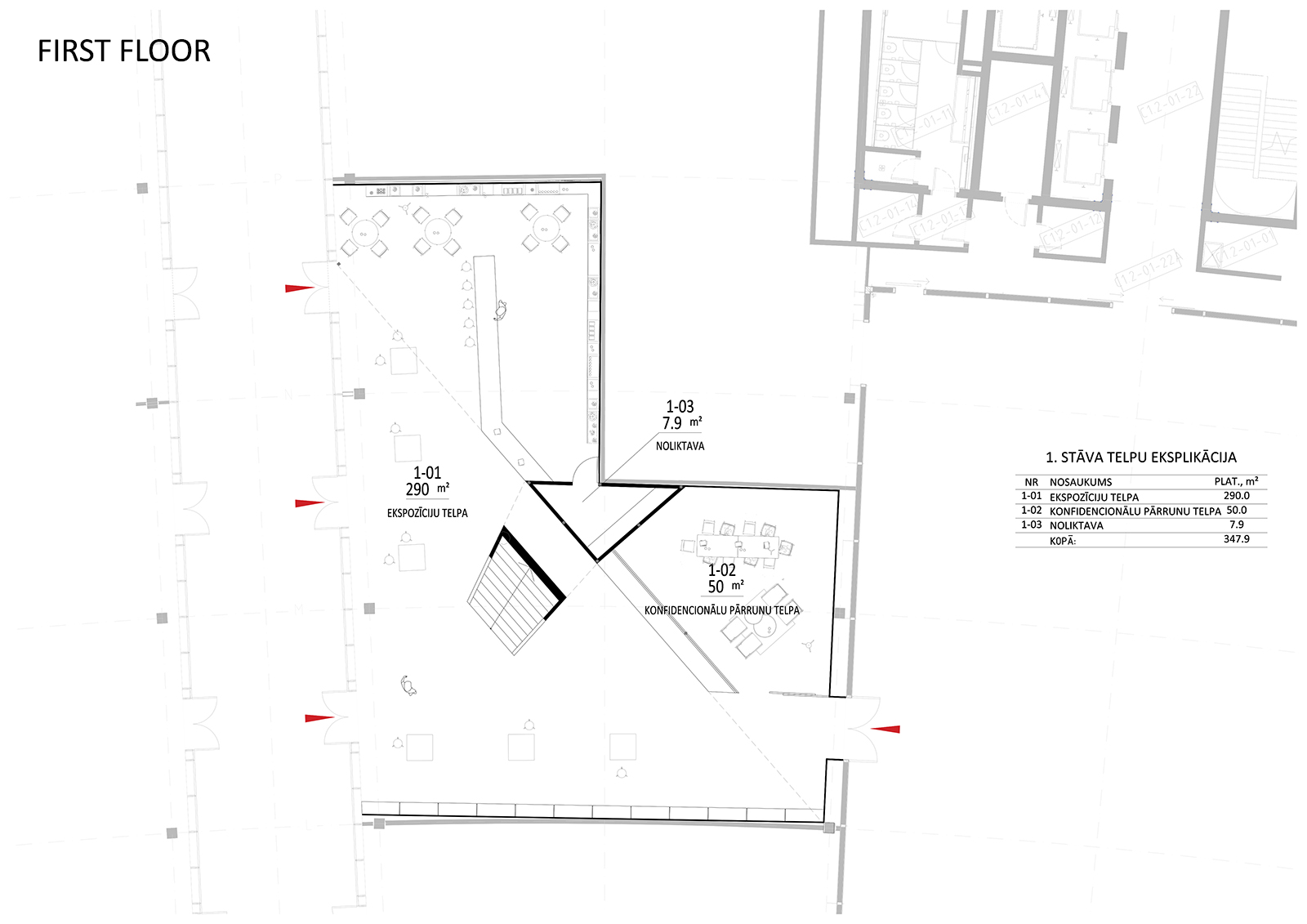
The main element of the exhibition is the grand stair that
brings forth associations with the golden eagle – a symbol in the flag of
Kazakhstan and an image of traditional values. The stair not only divides the
space into differentiated functional areas, but also visually widens the
pavilion through its diagonal configuration. The stair functions also as a
stage, a point of formal speeches and accommodates informal use.
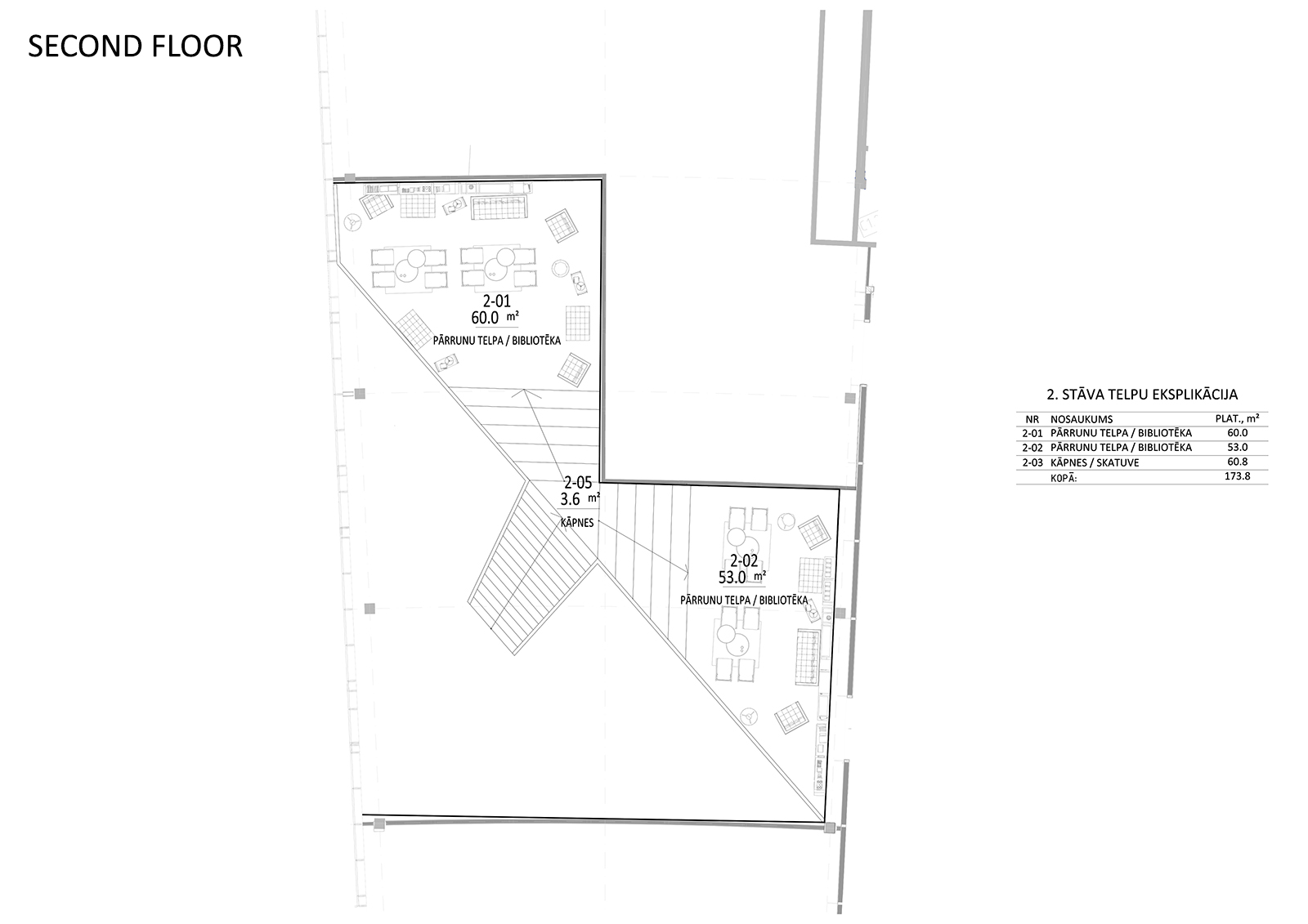
The ground floor is the main exhibition area that is
changeable and adapdable to each of the twelve thematic weeks featured during
the EXPO. Information is presented on the projection wall and the movable
interactive displays. A row of boxes holds thematic information about each of
the topical weeks, ensuring a circulation of information throughout the
duration of the exposition. A light installation draws the attention to the
main concept of the pavilion – Latvia as a meeting point between the West and
the East. The ceiling installation features visual projections, that provide an
atmospheric mood appropriate to each of the thematic weeks.
The ground floor accommodates the service area – information
distribution point, a shop and a bar, as well as an enclosed confidential
meeting room. The second floor features an open social space and library, that
provides a moment of rest and comfort or interaction and exploration.

|
| LOPEZ |
2026-02-05 09:54:16 |
|
Saņemiet aizdevumu 48 stundu laikā
Kā LOPEZ GROUP FINANZAS klients, es iesaku viņu 2% procentu likmi visām jūsu finansēšanas vajadzībām. Ja jums ir nepieciešams aizdevums, nevilcinieties sazināties ar viņiem, tāpat kā es to darīju, un jūs būsiet apmierināts: lopezfinanzas95@gmail.com
|
| LOPEZ |
2026-02-05 09:52:52 |
|
Pieejamie aizdevumi, kas atbilst jūsu vajadzībām
– Aizdevumu piedāvājumi ir pielāgoti katra indivīda vajadzībām. Pieteikumi var būt saistīti ar:
Pats personīgais aizdevums mājokļa iegādei
Transportlīdzekļa aizdevums
Ģimenes projekts vai ar veselību saistīti izdevumi
Studijas vai apmācība
Ceļojums vai atpūtas aktivitātes
Parādu konsolidācija vai aizdevums
Mēs piedāvājam dažāda veida aizdevumus atkarībā no jūsu projekta. Rakstiet mums uz e-pastu: lopezfinanzas95@gmail.com
|
| JEROME BURCHAEL |
2026-01-30 03:35:02 |
|
Sveiki, piesakieties savam biznesa aizdevumam jau šodien, lai apmaksātu rēķinus un investētu ar 2% procentu likmi. Hipotēkas aizdevums, biznesa aizdevums, studējošā aizdevums, automašīnas aizdevums, investīciju aizdevums, vides aizdevums. Sazinieties ar uzņēmumu, rakstot uz e-pastu: jeromeburchael91@gmail.com
|
| MR DAVID LARSON |
2026-01-17 19:01:40 |
|
Kāds aizdevums jums ir nepieciešams? Mēs piedāvājam visu veidu aizdevumus ar 2% likmi, un aizdevuma pieteikšana ir ātra, vienkārša un uzticama. Sazinieties ar mums pa e-pastu: oxfordfinancialservicee@gmail.com
|
| RICHARD COSMOS |
2026-01-15 19:57:22 |
|
Aizdevuma piedāvājums.
Vai meklējat steidzamu aizdevumu? Vai: Restartēt savas finanšu darbības? Renovēt dzīvokļa, mājas, ēkas interjeru? CCVNopirkt automašīnu kāzām? Definēt parādu? Īstenot projektu? Vai citu iemeslu dēļ, ja jums ir nepieciešams aizdevums, sazinieties ar mums pa e-pastu: richardcosmos5@gmail.com
|
| ANTRA KRūMIņA |
2026-01-10 12:58:21 |
|
Mani sauc Antra Krūmiņa, esmu no Latvijas. Esmu dzirdējusi par šo uzņēmumu, kas izsniedz aizdevumus, un es devos pieteikties aizdevumam. Esmu dzirdējusi cilvēkus sakām par krāpniecību, bet mani nekad iepriekš nav apkrāpuši, pirms šis uzņēmums man palīdzēja ar aizdevumu, tāpēc ikvienam, kam nepieciešams aizdevums, vajadzētu pieteikties pie viņiem. Aizdevumi ir ātri un droši, viņu e-pasta adrese ir patriciakingsman.loans2016@gmail.com.
|
| BENITA SLEJA |
2026-01-10 12:57:49 |
|
Sveiki visiem, mani sauc Benita Sleja, esmu no Latvijas, es tikko saņēmu savu aizdevumu no Patrīcijas Kingsmanes kundzes aizdevumu kompānijas, viņi ir jauns likumīgs 2026. gada aizdevumu uzņēmums, un nav pagājis ilgs laiks, kad es saņēmu no viņiem savu aizdevumu. Es to saņēmu šodien, un tagad, publicējot šo ziņojumu, esmu ļoti priecīga, ka šis uzņēmums ir patiešām lielisks, tāpēc ikviens, kam nepieciešams aizdevums, var sazināties ar šo uzņēmumu, viņi ir patiešām lieliski, viņu e-pasts ir patriciakingsman.loans2016@gmail.com
|
| EXCEL |
2025-12-25 08:13:51 |
|
Labdien
Vai jums ir nepieciešams aizdevums? Privātais aizdevums? Biznesa aizdevumi? Ja jā, rakstiet mums uz e-pastu: (excelservices.managementonline@gmail.com) ar tālāk norādīto informāciju.
PILNS VĀRDS:
VALSTS:
TĀLRUŅA NUMURS:
NEPIECIEŠAMĀ SUMMA:
ILGUMS:
MĒS GAIDĀM JŪSU STEIDZAMAS ATBILDES, PALDIES.
aizdevuma piedāvājums
|
| AMERISAVE |
2025-12-01 16:13:39 |
|
Vai jums ir nepieciešams aizdevums, lai sāktu uzņēmējdarbību vai apmaksātu rēķinus? Mēs piedāvājam visa veida finansiālu palīdzību visām privātpersonām, tostarp uzņēmējdarbības un personīgos aizdevumus, investīciju aizdevumus un parādu konsolidāciju, hipotēku aizdevumus, automašīnu aizdevumus un daudz ko citu. Lai saņemtu ātru atbildi, sūtiet atsauksmes pa e-pastu vai WhatsApp +31645371170 (Amerisavefinancials@gmail.com), lai iegūtu vairāk informācijas.
|
| RICHARD COSMOS |
2025-11-30 22:36:52 |
|
Aizdevuma piedāvājums.
Labdien,
Mēs piedāvājam garantētus biznesa aizdevumus, auto iegādes aizdevumus, mājas iegādes aizdevumus, personīgos aizdevumus. Mēs piedāvājam visu veidu aizdevumus no 3000 eiro līdz 100 000 000 eiro ar minimālo procentu likmi 2% pēc iespējas īsākā laikā, lai apmierinātu mūsu daudzo pretendentu finansiālās prasības... Piesakieties apstiprināšanai tūlīt 2 stundu laikā. Ja esat ieinteresēts, lūdzu, sazinieties ar mums/atbildiet pa e-pastu: richardcosmos5@gmail.com
|
| CLAUDIA KLEIN |
2025-11-17 11:53:37 |
|
Sveiki, mani sauc Klaudija Kleina, esmu finanšu speciāliste, sniedzu aizdevumus un citus finanšu pakalpojumus, un pārstāvu Spotcap Global Financial Services.
Spotcap Global Financial Services ir visaptverošs un uzticams aizdevumu uzņēmums, kas piedāvā visu veidu aizdevumu pakalpojumus, piemēram, personīgos aizdevumus, biznesa aizdevumus, hipotēku aizdevumus un daudzus citus. Ja jums ir steidzami nepieciešami kādi aizdevumu pakalpojumi, ieteikšu jums sazināties ar manu uzņēmumu, izmantojot (spotcapglobalservices@gmail.com | vai sūtīt īsziņu WhatsApp, izmantojot: +31642117819), un aizdevums tiks ieskaitīts jūsu kontā 24 līdz 48 stundu laikā, jo mēs piedāvājam lieliskus aizdevumu pakalpojumus visā pasaulē.
Mēs piedāvājam gan ilgtermiņa, gan īstermiņa aizdevumus, nodrošinātus un nenodrošinātus aizdevumus, un jūs varat aizņemties līdz pat 15 miljoniem eiro ar procentu likmi 3% gadā un atmaksas periodu no 1 līdz 30 gadiem. Mans uzņēmums palīdzēs jums sasniegt dažādus mērķus ar plašu aizdevumu produktu klāstu.
Es atzīstu faktu, ka likumīga aizdevuma saņemšana vienmēr ir bijusi milzīga problēma. Cilvēkiem, kuriem ir finansiālas problēmas un nepieciešams risinājums, daudziem cilvēkiem ir ļoti grūti saņemt kapitāla aizdevumu no savām vietējām bankām vai citām finanšu iestādēm augstas procentu likmes, nepietiekama nodrošinājuma, parāda un ienākumu attiecības, zema kredītreitinga vai citu iemeslu dēļ.
Vairs nav jāgaida vai jāgaida stresa pilnas bankas apmeklējumi. Mūsu pakalpojums ir pieejams visu diennakti — jūs varat saņemt aizdevumu un veikt savus darījumus jebkurā laikā un vietā, kur tas ir nepieciešams.
Mēs piedāvājam pasaules līmeņa aizdevumu pakalpojumus visu diennakti. Jautājumu gadījumā? Sūtiet e-pastu uz (spotcapglobalservices@gmail.com | vai sūtiet īsziņu WhatsApp, izmantojot: +31642117819) un nekavējoties saņemiet atbildi.
Jūsu ģimenei, draugiem un kolēģiem nav jāzina, ka jums trūkst naudas, vienkārši rakstiet mums, un jūs saņemsiet aizdevumu.
Jūsu finansiālā brīvība ir jūsu rokās!
|
| LOAN OFFER APPLY NOW |
2025-11-14 09:33:11 |
|
Loan Offer Apply Now At 1.00%. Interested Parties Should Contact Us For More Information At Via Email: ValidusCapitals@gmail.com
( ValidusCapital@execs.com ) ValidusCapital@techie.com
( CYSCredits@Asia.com ) OFFER ALL KIND OF LOANS - APPLY FOR AFFORDABLE LOANS ( CYSCredits@Post.com )
|
| DéKáNY ENDRE |
2025-11-11 09:43:43 |
|
Steidzami aizdevuma piedāvājums.
Vai jums ir nepieciešams kredīts? privātie aizdevumi? biznesa aizdevumi? Ziemassvētku aizdevums? hipotēkas? lauksaimniecības un projektu finansējums? izsniedzam visa veida kredītus ar 2% procentu likmi! Kontakta e-pasts: dakany.endre@gmail.com
|
| RICHARD COSMOS |
2025-10-31 00:06:47 |
|
Steidzama aizdevuma piedāvājums.
Vai jums steidzami nepieciešams aizdevums? Mēs izsniedzam patēriņa kredītus? Biznesa kredītus? Mājokļa kredītus? Lauksaimniecības kredītus? Izglītības kredītus? Parādu konsolidācijas kredītus? Kravas automašīnu kredītus? Automašīnu kredītus? Viesnīcu kredītus? Refinansēšanas kredītus? Un vēl citus parādus? Starta kredītus? Mēs piedāvājam ar 2% procentu likmi! Sazinieties ar mums, izmantojot: richardcosmos5@gmail.com
|
| RICHARD COSMOS |
2025-10-19 17:44:51 |
|
Vai jums ir nepieciešami steidzami aizdevumi? Mēs piedāvājam 2000 eiro līdz 500 000 000 eiro. Lai iegūtu vairāk informācijas, lūdzu, sazinieties ar mums: richardcosmos5@gmail.com
|
| RICHARD COSMOS |
2025-10-19 17:43:47 |
|
Naudas piedāvājums
Vai jums ir nepieciešams steidzams aizdevums? Mēs izsniedzam patēriņa kredītus? Biznesa kredītus? Mājas kredītus? Lauksaimniecības kredītus? Izglītības kredītus? Debeta konsolidācijas kredītus? Kravas automašīnu kredītus? Auto kredītus? Viesnīcu kredītus? Refinansēšanas kredītus? Un vēl citus skolas kredītus? Starta kredītus? Mēs piedāvājam ar 2% procentu likmi! Sazinieties ar mums, izmantojot: richardcosmos5@gmail.com
|
| RICHARD COSMOS |
2025-10-19 11:55:02 |
|
Naudas piedāvājums
Vai jums ir nepieciešams steidzams aizdevums? Mēs izsniedzam patēriņa kredītus? Biznesa kredītus? Mājas kredītus? Lauksaimniecības kredītus? Izglītības kredītus? Debeta konsolidācijas kredītus? Kravas automašīnu kredītus? Auto kredītus? Viesnīcu kredītus? Refinansēšanas kredītus? Un vēl citus skolas kredītus? Starta kredītus? Mēs piedāvājam ar 2% procentu likmi! Sazinieties ar mums, izmantojot: richardcosmos5@gmail.com
|
| RICHARD COSMOS |
2025-09-18 12:08:35 |
|
Aizdevuma piedāvājums
Vai jums steidzami nepieciešams aizdevums? Mēs piedāvājam patēriņa kredītus? Biznesa kredītus? Mājokļa kredītus? Lauksaimniecības kredītus? Izglītības kredītus? Parādu konsolidācijas kredītus? Kravas automašīnu kredītus? Automašīnu kredītus? Viesnīcu kredītus? Refinansēšanas kredītus? Un citus parādus? Starta kredītus? Piedāvājums ar 2% procentu likmi! Sazinieties pa e-pastu: richardcosmos5@gmail.com
|
| RICHARD COSMOS |
2025-09-18 09:15:35 |
|
Aizdevuma piedāvājums
Vai jums nepieciešams aizdevums? Privātais aizdevums? Biznesa kredīti? Ziemassvētku kredīts? Ja jā, rakstiet mums pa e-pastu: richardcosmos5@gmail.com
|
| RICHARD COSMOS |
2025-09-14 21:11:40 |
|
aizdevuma piedāvājums.
Sveiki!
Vēlamies jūs informēt par mūsu aizdevumu piedāvājumiem ar ļoti zemu 2% procentu likmi. Vai esat noguris no pastāvīgas naudas un palīdzības meklēšanas? Vai bankas un citas finanšu iestādes ir atteikušas jūsu piedāvājumu? Mēs esam licencēts aizdevumu uzņēmums un piedāvājam bezproblēmu aizdevumus kredītkartēm, medicīniskajai aprūpei, auto aizdevumiem, hipotēkām, studentu aizdevumiem un citiem mērķiem – bez sociālās apdrošināšanas numura vai kredītvēstures pārbaudes. 100% garantija. Sazinieties ar mums tūlīt pa e-pastu: richardcosmos5@gmail.com
|
| SCOTT |
2025-08-29 22:58:22 |
|
Vēlējos jūs informēt, ka, runājot par aizdevuma saņemšanu, jūsu kredītreitingam ir nozīme. Tiek ņemti vērā arī citi faktori, piemēram, kā jūs konkrētajā brīdī esat meklējis aizdevumu. Neesiet nomākti, ja viss nenotiek, kā plānots. Ja jums nepieciešama palīdzība, varat sazināties ar DANIEL HEINZ pa tālruni +49 176 34215369. Sūtiet e-pastu uzņēmuma tiešajam atbalstam uz adresi danielmheinz5@gmail.com. Aizdevumi var tikt apstiprināti ātri, tāpēc tas ir tā vērts.
|
| APPLY FOR A LOAN |
2025-08-25 10:26:41 |
|
Sveiki, mani sauc Amanda Pauelsa kundze, es dzīvoju Denveras pilsētā, ASV, un tagad man un manai ģimenei ir ērti dzīvot. Meklējot internetu, es uzdūros aizdevumu kompānijai KIERIAN LOAN COMPANY, kas piedāvā aizdevumus ar pieņemamu procentu likmi. Man nebija citas izvēles kā vien mēģināt, un pārsteidzoši tas viss izskatījās kā sapnī. Es saņēmu aizdevumu 300 000 USD apmērā un teicu sev, ka caur šo dievbijīgo aizdevumu kompāniju KIERIAN LOAN COMPANY skaļi pasludināšu pasaulei par Dieva brīnumiem, un es ieteikšu ikvienam, kam patiesi un nopietni nepieciešams aizdevums, sazināties ar šo dievbijīgo aizdevumu kompāniju, rakstot uz viņu biroja e-pastu: kierianloan@yahoo.com. Paldies.
|
| PRIVāTA AIZDEVUMU |
2025-08-25 03:00:34 |
|
Piesakieties tūlīt jebkura veida aizdevumam…Mūsu pakalpojumi ir:
✔️ Patēriņa kredīti
✔️ Auto kredīti
✔️ Mājokļa kredīti
✔️ Uzņēmējdarbības kredīti
✔️ Parādu kredīti
✔️ Zelta kredīti
Un daudzi citi.
Ja jums ir kādi jautājumi vai neskaidrības, sazinieties ar mums pa e-pastu: saara.kemi@gmail.com
|
| SFF |
2025-08-24 23:17:57 |
|
Īpaši nopietns un godīgs aizdevuma piedāvājums LatvijāAizdevumu piedāvājumi privātpersonām Nīderlandē
Vai meklējat aizdevēju vai investoru saviem projektiem: biznesa aizdevumiem, personīgajiem aizdevumiem, nekustamā īpašuma aizdevumiem, automašīnu aizdevumiem, studentu aizdevumiem, parādu pārstrukturēšanai, finanšu nekustamā īpašuma aizdevumiem, investīciju aizdevumiem, kredītlīnijām, otrajām hipotēkām vai aizdevumu atmaksai?
Vai banka vai finanšu iestāde ir noraidījusi jūsu pieteikumu viena vai vairāku iemeslu dēļ?
Sazinieties ar mums pēc iespējas ātrāk: e-pasts: credito.agencia.rapido@gmail.com
|
| DžENIFERA GEBREALA |
2025-08-22 18:41:39 |
|
Sveiki, mani sauc Dženifera Gebreala.
Es domāju, ka jūs meklējat aizdevumu, bet nezināt, kā to saņemt. Lūdzu, sazinieties ar mani, ja kāds ir ieinteresēts. Pa e-pastu: ((DANIELMHEINZ5@GMAIL.COM)) vai WhatsApp sazinoties: +49 176 34215369.
|
| DHEVINE |
2025-08-18 05:31:28 |
|
Mēs esam privāti aizdevēji un piedāvājam steidzamus personīgos/komerciālos aizdevumus par pieņemamām likmēm. Lai saņemtu papildinformāciju, sazinieties ar mums, rakstot uz e-pastu (danielmheinz5@gmail.com) un tālr. (+49 176 3421 5369).
|
| DANIEL M HEINZ KUNGS |
2025-08-17 03:28:08 |
|
Mēs piedāvājam steidzamus aizdevumus no 15 000 līdz 72 000 USD par jebkuru jūsu izvēlētu summu un 2–4 STUNDU APKALPOŠANU. VEIKSMĪGS DARĪJUMS AR 2 % PROCENTU LIKMI UZŅĒMUMIEM UN PRIVĀTIEM MĒRĶIEM. PIETEIKTIES TAGAD UZ E-PASTA ADRESI: ((DANIELMHEINZ5@GMAIL.COM))
Aizpildiet un atgrieziet
Vārds:
Aizdevuma summa:
Ilgums:
Dzimums:
Valsts:
Mērķis:
Mobilā tālruņa numurs:
JŪSU ATBILDE IR VAJADZĪGA TAGAD
|
| RICHARD COSMOS |
2025-08-16 18:02:47 |
|
Aizdevuma piedāvājums.
Vai meklējat uzņēmējdarbības aizdevumu? Personīgais aizdevums, mājokļa aizdevums, automašīnas aizdevums, studenta aizdevums, parādu konsolidācijas aizdevums, nenodrošināts aizdevums, riska kapitāla aizdevums ar 2% procentu likmi. Ieinteresētajiem pretendentiem jāsazinās ar mums pa e-pastu: richardcosmos5@gmail.com
|
| REIčELA HOGA |
2025-08-10 03:16:17 |
|
Mani sauc Reičela Hoga, un pirms satiku šo godīgo aizdevēju, esmu pārdzīvojusi daudz. Viņš nomazgāja manas bēdas, tagad esmu laimīga sieviete ar diviem bērniem un veikala īpašniece. Tagad esmu saņēmusi 15 000 eiro aizdevumu no viņa uzņēmuma bez jebkādām krāpnieciskām darbībām. Sazinieties ar viņu un dalieties arī savā liecībā. Atzīmējiet viņu šeit: Vai komentējiet WhatsApp: Veiksmi!!
|
| DéKáNY ENDRE |
2025-07-31 12:46:48 |
|
Piedāvājam aizdevumu.
Labdien,
Esmu reģistrēts privāts naudas aizdevējs. Mēs sniedzam aizdevumus, lai palīdzētu cilvēkiem un uzņēmumiem, kuriem jāatjaunina savs finansiālais stāvoklis visā pasaulē, ar ļoti minimālām gada procentu likmēm, sākot no 2% gada laikā - 30 gadu atmaksas termiņš jebkurā pasaules daļā. Mēs piedāvājam aizdevumus 2000–500 000 000 eiro apmērā. Aizdevumi ir labi nodrošināti, un maksimāla drošība ir vissvarīgākā lieta. Ieinteresētajai personai jāsazinās ar mums pa e-pastu: dakany.endre@gmail.com
|
| RICHARD COSMOS |
2025-07-22 04:14:31 |
|
aizdevuma piedāvājums.
Sveiki!
Vēlamies jūs informēt par mūsu aizdevumu piedāvājumiem ar ļoti zemu 2% procentu likmi. Vai esat noguris no pastāvīgas naudas un palīdzības meklēšanas? Vai bankas un citas finanšu iestādes ir atteikušas jūsu piedāvājumu? Mēs esam licencēts aizdevumu uzņēmums un piedāvājam bezproblēmu aizdevumus kredītkartēm, medicīniskajai aprūpei, auto aizdevumiem, hipotēkām, studentu aizdevumiem un citiem mērķiem – bez sociālās apdrošināšanas numura vai kredītvēstures pārbaudes. 100% garantija. Sazinieties ar mums tūlīt pa e-pastu: richardcosmos5@gmail.com
|
| RICHARD COSMOS |
2025-06-22 15:27:27 |
|
.
Vai jums nepieciešams aizdevums? Patēriņa aizdevumi? Biznesa aizdevumi? Hipotēku aizdevumi? Lauksaimniecības un projektu finansējums? Mēs izsniedzam visu veidu aizdevumus ar 2% procentu likmi! Sazinieties ar mums pa e-pastu: richardcosmos5@gmail.com
|
| MICHAELA WATKINS |
2025-06-09 13:17:52 |
|
VEIKSMĪGĀKĀ BITCOIN ATGŪŠANAS EKSPERTS\FOLKWIN EXPERT ATGŪŠANA.
Jau kādu laiku esmu dzirdējis par Forexltc, kriptovalūtas platformu, kas atrodas Ziemeļdakotā. Manu ziņkāri izraisīja, kad viens no viņu aģentiem uzrunāja mani, parādot platformu kā daudzsološu iespēju kriptovalūtu tirdzniecības telpā ar lieliskām izaugsmes perspektīvām. Viņu ieinteresēts, es iesaistījos vēl vairākos zvanos un pārliecinošās sarunās, galu galā nolēmu pamēģināt. Es veicu sākotnējo ieguldījumu 213 000 USD apmērā kriptovalūtā, uzskatot, ka tas bija saprātīgs lēmums, kas palīdzēs palielināt manus digitālos aktīvus. Tomēr mans sākotnējais satraukums ātri pārvērtās neapmierinātībā, jo es sāku piedzīvot pastāvīgus tirdzniecības zaudējumus. Apņēmies mainīt situāciju, pēc dažām nedēļām es noguldīju papildu 9000 USD kriptovalūtā, cerot, ka tas palīdzēs atgūt manus zaudējumus. Neskatoties uz maniem pūliņiem un papildu ieguldījumiem, zaudējumi turpinājās, atstājot mani nestabilā finansiālā stāvoklī. Es jutos iesprostots izmisuma ciklā, apšaubot savu lēmumu ieguldīt Forexltc. Es ieraudzīju cerību mirdzumu, kad tiku norīkots darbā par jaunu konta pārvaldnieku, ko dēvē par "ceturto konta pārvaldnieku". Šķiet, ka šī persona labāk pārzina kriptovalūtu tirgu un lika man veikt dažus ienesīgus darījumus. Es jutu atvieglojumu, jo domāju, ka mans ieguldījums beidzot atmaksājas. Tomēr tieši tad, kad grasījos svinēt savus ieguvumus, radās negaidīta problēma: es tiku bloķēta no sava konta. Tās nebija nelielas neērtības; Es biju pilnībā izslēgts no saviem līdzekļiem un piekļuves manam tirdzniecības portfelim. Es mēģināju sazināties ar Fxleader atbalsta komandu, taču mani centieni tika uztverti ar klusumu. Mans konts būtībā nebija pieejams, un es paliku neziņā par savas kriptovalūtas statusu. Jūtos neapmierināts un izmisis, es meklēju palīdzību no ārējiem avotiem. Pēc dažu pētījumu veikšanas es atklāju pakalpojumu FOLKWIN EXPERT RECOVERY, kas specializējas finanšu atgūšanā. Es sazinājos ar viņiem un paskaidroju savu grūto stāvokli. FOLKWIN EXPERT RECOVERY komanda bija ātra un rūpīgi strādāja, lai palīdzētu man atgūt līdzekļus no Forexltc. Viņi mani vadīja atkopšanas procesā, sniedzot atbalstu un zināšanas ik uz soļa. Kādu piektdienas rītu viņi lūdza manu Bitcoin adresi, lai noguldītu manis atgūto kriptovalūtu. Pateicoties viņu pūlēm, es varēju atgūt visus savus kriptovalūtas ieguldījumus. //INFORMĀCIJA: FOLKWINEXPERTRECOVERY(@)TECH-CENTER (.) COM Kas ir lietotne: +1 (740)-705-0711.
paldies!
Mihaela Votkinsa.
|
| RICHARD COSMOS |
2025-05-21 10:13:20 |
|
Aizdevuma piedāvājums.
Meklējat parādu konsolidācijas aizdevumu, nenodrošinātus aizdevumus, biznesa aizdevumus, hipotēku aizdevumus, auto aizdevumus, studentu aizdevumus, personīgos aizdevumus, riska kapitāla aizdevumus utt.! Esmu privāts aizdevējs, kas sniedz aizdevumus uzņēmumiem un privātpersonām ar zemām un saprātīgām 2% procentu likmēm. Rakstiet uz e-pastu: richardcosmos5@gmail.com
|
| RICHARD COSMOS |
2025-05-19 04:05:17 |
|
Aizdevuma piedāvājums
Ātrais kredīts un ātra investīcija
Labrīt,
Vai jūs steidzami meklējat aizdevumu mājas iegādei? Pirkt automašīnu? Vai jums steidzami nepieciešams aizdevums, lai nomaksātu parādus un justos ērti? Neatkarīgi no iemesla, es jums uzreiz piedāvāju reāllaika aizdevumu no 2000 eiro līdz 100 000 000 eiro ar procentu likmi 2% gadā. Es garantēju jums 100% drošu un ļoti ātru apmierinātību. Par saviem pieprasījumiem sazinieties ar mani pa e-pastu: richardcosmos5@gmail.com
|
| DéKáNY ENDRE |
2025-05-18 15:03:16 |
|
Aizdevuma piedāvājums.
Vai jums ir nepieciešams steidzams aizdevums? Mēs piedāvājam no 2000 eiro līdz 500 000 000 eiro interesentiem, sazinieties ar mums, lai iegūtu vairāk informācijas: dakany.endre@gmail.com
|
| AIZDEVUMI |
2025-05-16 02:21:27 |
|
Vai jums ir nepieciešams aizdevums? Mēs piedāvājam visu veidu finanšu aizdevumus ar pieejamu 2% procentu likmi. Mūsu piedāvājums ir no minimālās summas 10 000,00 € līdz maksimālajai summai 10 000 000,00 €. Lai pieteiktos, interesentiem jānosūta e-pasts ar tālāk norādīto informāciju.
Aizdevēja e-pasta adrese: agenthinson@gmail.com
WhatsApp: https://wa.me/qr/2GBJBHEHF6V6D1
Pieteikuma iesniedzēja dati, lai pieteiktos:
Pilns vārds:
Aizdevuma summa:
Ilgums:
Valsts:
WhatsApp numurs:
Kā jūs mūs atradāt?:
Piezīme. Visi e-pasti jānosūta uz: agenthinson@gmail.com
|
| AGENT 666 |
2025-05-15 07:49:04 |
|
PAZIŅOJUMS PASAULEI
PIEZĪME: UZMANĪGI, LAI NEKRĀPTU PAR INTERNETA KRĀPNIECĪBU
Pievienošanās Illuminati brālībai 666 nav viegls uzdevums, taču, ja esat pietiekami drosmīgs, lai stātos pretī pasaules otrajai pusei,
tad varat sazināties ar mūsu aģentu, lai saņemtu palīdzību.
E-pasts: 666illuminatiagent666@gmail.com
PRIEKŠROCĪBAS JAUNAJIEM DALĪBNIEKIEM
1. Māja jebkurā jūsu izvēlētā valstī.
2. Jauna sapņu automašīna.
3. Miljons dolāru jaunas dzīves uzsākšanai.
Lai sazinātos ar mūsu partneriem, jums jābūt vismaz 18 gadus vecam.
E-pasts: 666illuminatiagent666@gmail.com
666illuminatiagent666@gmail.com
|
| LOUISE HAYWARD |
2025-04-14 18:09:30 |
|
KĀ MAN VARĒJU ATGRIEZT SAVU NOZAGTĀ BITKOĪNU (FOLKWIN EXPERT ATGŪŠANA.
Es nekad nebūtu sapņojis, ka sekunde var visu mainīt. Kādu minūti es sēžu kafejnīcā un strādāju pie projekta. Nākamajā minūtē mans klēpjdators ir pazudis pēc divām sekundēm. Tā nebija tikai ierīce, kas tika nozagta. Šajā klēpjdatorā atradās visa mana turpmākā finansiālā dzīve — aptuveni 630 000 $ vērti Bitcoins. Es atteicos ticēt, ka tas notika jau pirmajā mirklī, un es sāku traku meklēšanu pa visu kafejnīcu, it kā būtu to nepareizi novietojusi. Bet dziļi sirdī es to zināju: tas bija pazudis. Atziņa trāpīja kā dūriens pa vēderu. Es ne tikai biju pazaudējis savu vissvarīgāko darba instrumentu, bet arī biju zaudējis gadiem ilgi rūpīgi uzkrājumus.
Tad sākās panika. Es nekad nebiju dublējis savu maku. Doma par tā visa zaudēšanu man lika justies fiziski slikti. Mans prāts skrēja cauri visām lietām, ko es būtu varējis darīt savādāk, visiem veidiem, kā es būtu varējis to novērst. Bet nožēla neatnestu manu Bitcoin atpakaļ.
Izmisumā es sāku meklēt risinājumus. Toreiz cits dizainers runāja par Folkwin ekspertu Recovery. Pirmā doma, kas man ienāca prātā, bija, vai kāds tiešām varētu atgūt nozagto kriptovalūtu? Bet es sazinājos, jo man nebija citu iespēju.
Jau no pirmās sarunas es zināju, ka esmu pareizajās rokās. Viņu komanda nebija tikai profesionāla; tas tiešām bija ļoti saprotoši. Viņi nekad nav likuši man justies muļķīgi, jo man nebija rezerves. Viņi mani tikai nomierināja, izskaidrojot man katru atveseļošanās procesa posmu. Viņi jau iepriekš bija tikuši galā ar tādiem gadījumiem kā man un bija apņēmības pilni palīdzēt.
Gaidīšanas periods bija mokošs. Bija dienas, kad es zaudēju cerību, būdams pārliecināts, ka mani līdzekļi ir pazuduši uz visiem laikiem. Taču Folkwin ekspertu atkopšanas komanda mani informēja, izmantojot progresīvus blokķēdes izsekošanas un kriminālistikas rīkus, lai izsekotu maniem nozagtajiem īpašumiem.
Pēc nedēļu ilga darba es saņēmu zvanu — viņi bija atguvuši manu Bitcoin. Atvieglojums bija neaprakstāms. Jutos kā atgūt savu dzīvi.
Viņi ne tikai palīdzēja man atgūt savu naudu, bet arī uzlaboja manu drošību: izmantojot savu lietotni, kas nodrošina reāllaika drošības brīdinājumus, šifrētus dublējumus, pretaizdzīšanu, par ko man nebija ne jausmas.
Šī pieredze man sniedza smagu mācību par digitālo drošību, taču tā arī parādīja, ka pat vissliktākajās situācijās var atrisināt pareizos ekspertus. Esmu viņiem visu parādā Folkwin expert Recovery, un, ja kādreiz nonākat tādā pašā murgā, nevilcinieties sazināties ar Folkwinexpertrecovery (@) tehnoloģiju centru (.) com, Whats-App: +1 (740)-705-0711, lai saņemtu palīdzību.
Ar cieņu
Luīzes Heivordas jaunkundze.
|
| DéKáNY ENDRE |
2025-04-13 14:28:36 |
|
Aizdevuma piedāvājums.
Nepieciešams kredīts parāda atmaksai, lai nomaksātu rēķinus? Pārņemt kontroli pār savu parādu šodien? Uzņēmējdarbības aizdevuma pagarināšanas piedāvājums tagad? Vai jums ir nepieciešams aizdevums, lai atmaksātu kontu? Vai jums ir nepieciešams aizdevums? Vai jums ir nepieciešams personīgais aizdevums? Aizdevums biznesa paplašināšanai? Uzņēmējdarbības uzsākšana, izglītība, parādu konsolidācija Kredīts par bargu naudu Kredīts jebkurai lietai? Mēs piedāvājam aizdevumu ar zemu procentu likmi 2% no aizdevuma bez kredīta pārbaudes, e-pasts: dakany.endre@gmail.com
|
| RICHARD COSMOS |
2025-04-13 14:16:47 |
|
Aizdevuma piedāvājums.
Labdien, mums visiem ir kreditēšanas kapacitāte no 2000 eiro līdz 100 000 000 eiro, saprātīga likme 2%, ļoti vienkārši un bez problēmām noteikumi. Ja jūs interesē, lūdzu, atstājiet ziņojumu pa e-pastu: richardcosmos5@gmail.com
|
| DéKáNY ENDRE |
2025-04-13 04:03:16 |
|
Vai jums ir nepieciešama jebkāda veida finansiāla palīdzība? Aizdevumi privātpersonām? Uzņēmējdarbības aizdevumi? Hipotekārie kredīti? Uzņēmuma aizdevumi? Lauksaimniecības un projektu finansējums? Izsniedzam aizdevumus ar 2% procentu likmi! Sazināties: (dakany.endre@gmail.com)
Steidzami aizdevuma piedāvājums.
|
| RICHARD COSMOS |
2025-04-13 03:41:58 |
|
Aizdevuma piedāvājums.
Ātrais kredīts ar 100% garantiju
Jums nepieciešams kredīts, lai īstenotu savus projektus, iegādātos māju vai iegādātos jaunu automašīnu. Jums ir iespēja iegūt vēlamo summu ar 100% kopējo garantiju. Esmu gatavs atbildēt uz jūsu aizdevuma pieprasījumiem uz manu e-pastu: richardcosmos5@gmail.com
|
| DéKáNY ENDRE |
2025-03-28 17:09:14 |
|
aizdevuma piedāvājums.
Mēs piedāvājam aizdevumus ar 2%, mēs piedāvājam parāda konsolidācijas aizdevumus, biznesa aizdevumus, aizdevumus privātpersonām, aizdevumus automašīnām, viesnīcu kredītus, studentu kredītus, privātpersonas kredītus mājokļa refinansēšanai, uzziniet vairāk E-pasts: dakany.endre@gmail.com
|
| DéKáNY |
2025-03-28 17:00:55 |
|
aizdevuma piedāvājums.
Mēs piedāvājam aizdevumus ar 2%, mēs piedāvājam parāda konsolidācijas aizdevumus, biznesa aizdevumus, aizdevumus privātpersonām, aizdevumus automašīnām, viesnīcu kredītus, studentu kredītus, privātpersonas kredītus mājokļa refinansēšanai, uzziniet vairāk E-pasts: dakany.endre@gmail.com
|
| DéKáNY |
2025-03-28 01:40:56 |
|
Steidzami aizdevuma piedāvājums.
Vai jums ir nepieciešams kredīts? privātie aizdevumi? biznesa aizdevumi? Ziemassvētku aizdevums? hipotēkas? lauksaimniecības un projektu finansējums? izsniedzam visa veida kredītus ar 2% procentu likmi! Kontakta e-pasts; dakany.endre@gmail.com
|
| RICHARD COSMOS |
2025-03-15 03:36:04 |
|
Piedāvājiet steidzamus aizdevumus.
Vai jums ir nepieciešams aizdevums? privātie aizdevumi? biznesa aizdevumi? hipotekārie kredīti? lauksaimniecības un projektu finansējumu? izsniedzam visa veida kredītus ar 2% procentu likmi! Kontakta e-pasts; richardcosmos5@gmail.com
|
| RICHARD COSMOS |
2025-03-14 21:54:46 |
|
aizdevuma piedāvājums.
Vai jums ir nepieciešams ārkārtas aizdevums, lai nomaksātu parādus vai kapitāla aizdevums, lai uzlabotu savu biznesu? Vai bankas un citas finanšu iestādes jums ir atteikušās? Vai jums ir nepieciešama kredītu apvienošana vai hipotēka? Nemeklējiet tālāk, jo mēs esam šeit, lai visas jūsu finansiālās problēmas atstātu aiz muguras. Sazinieties ar mums pa e-pastu: (richardcosmos5@gmail.com) Mēs piedāvājam aizdevumus ieinteresētajām personām ar saprātīgu procentu likmi, 2%. Diapazons ir no 2 000,00 eiro līdz 100 000 000,00 eiro
|
| ANNA |
2025-03-10 04:28:43 |
|
Vai jums ir nepieciešams likumīgs privāts aizdevums ar zemiem procentiem? Vai jums ir nepieciešams aizdevums parādu dzēšanai vai projekta īstenošanai? Vai jūsu bankas jums ir atteikušas? Mēs piedāvājam ātrus un uzticamus aizdevumus. Ja jūs interesē, lūdzu, nevilcinieties sazināties ar mums tieši. E-pasts: annasmith0663@gmail.com
|
| RICHARD COSMOS |
2025-03-03 19:38:21 |
|
Lai jums lieliska diena
Es esmu Richard Cosmos privātais aizdevējs. Piedāvāju aizdevumu ar procentu likmi 2% gadā un 2000 eiro apmērā - 500 000 000,00 eiro Tam ir 100% pašu kapitāla finansējums ar nodrošinātiem un nenodrošinātiem aizdevumiem. Mēs garantējam savus finanšu pakalpojumus daudziem mūsu globālajiem klientiem. Izmantojot mūsu elastīgo kredītportfeli, kredīti var tikt apstrādāti un nodoti aizņēmējiem pēc iespējas īsākā laikā. Mēs strādājam ar skaidriem un saprotamiem noteikumiem un sniedzam visa veida aizdevumus ieinteresētiem klientiem, uzņēmumiem, korporācijām un visa veida uzņēmumiem. Sazinieties ar mums tūlīt: (richardcosmos5@gmail.com)
Steidzami aizdevuma piedāvājums.
|
| RICHARD COSMOS |
2025-03-03 19:29:43 |
|
Aizdevuma piedāvājums.
Vai jums ir nepieciešams steidzams aizdevums? Mēs piedāvājam no 2000 eiro līdz 500 000 000 eiro interesentiem, sazinieties ar mums, lai iegūtu vairāk informācijas: richardcosmos5@gmail.com
|
| RICHARD COSMOS |
2025-03-01 23:39:49 |
|
Steidzami aizdevuma piedāvājums.
Vai jums ir nepieciešams ārkārtas aizdevums? Mēs izsniegsim biznesa aizdevumus, personīgos aizdevumus, studentu aizdevumus, auto aizdevumus utt., Ja jūs interesē, lūdzu, sazinieties ar mums pa e-pastu: richardcosmos5@gmail.com
|
| RICHARD COSMOS |
2025-03-01 23:38:36 |
|
Steidzami aizdevuma piedāvājums.
Vai jums ir nepieciešams ārkārtas aizdevums? Mēs izsniegsim biznesa aizdevumus, personīgos aizdevumus, studentu aizdevumus, auto aizdevumus utt., Ja jūs interesē, lūdzu, sazinieties ar mums pa e-pastu: richardcosmos5@gmail.com
|
| RICHARD COSMOS |
2025-03-01 02:04:43 |
|
Ātrā kredīta piedāvājums
Nepieciešams aizdevums? Aizdevumi privātpersonām? Komerciālie kredīti? Mājas kredīts? Lauksaimniecība un projektu finansējums? Piedāvājam visu veidu kredītus ar 2% procentiem! Saziņas e-pasta adrese: richardcosmos5@gmail.com
|
| RICHARD COSMOS |
2025-03-01 01:50:57 |
|
Ātrā kredīta piedāvājums
Nepieciešams aizdevums? Aizdevumi privātpersonām? Komerciālie kredīti? Mājas kredīts? Lauksaimniecība un projektu finansējums? Piedāvājam visu veidu kredītus ar 2% procentiem! Saziņas e-pasta adrese: richardcosmos5@gmail.com
|
| RICHARD COSMOS |
2025-02-08 18:34:08 |
|
Ātrā kredīta piedāvājums
Nepieciešams aizdevums? Aizdevumi privātpersonām? Komerciālie kredīti? Mājas kredīts? Lauksaimniecība un projektu finansējums? Piedāvājam visu veidu aizdevumus ar 2% procentiem! Saziņas e-pasta adrese: richardcosmos5@gmail.com
|
| DéKáNY |
2025-02-07 14:42:46 |
|
Aizdevuma piedāvājums.
Steidzami nepieciešams aizdevums? Mēs dodam personīgos aizdevumus? Uzņēmējdarbības aizdevumi? Hipotēkas? Lauksaimniecības kredīti? Kredīti izglītībai? Parādu konsolidācijas aizdevumi? Kravas automašīnu aizdevumi? Auto kredīti? Viesnīcu kredīti? Refinansēt kredītus? Un vēl studentu kredīti? Starta aizdevumi? Piedāvājam 2% procentus! Sazinieties ar mums: dakany.endre@gmail.com
|
| RICHARD |
2025-02-07 14:13:20 |
|
Aizdevuma piedāvājums
Vai jums ir nepieciešams steidzams aizdevums? Vai mēs izsniedzam personīgos aizdevumus? Uzņēmējdarbības aizdevumi? Mājas kredīti? Lauksaimniecības kredīti? Izglītības kredīti? Parādu konsolidācijas aizdevumi? Kravas automašīnu aizdevumi? Auto kredīti? Viesnīcu kredīti? Refinansēt kredītus? un vēl skolas kredīti? Starta aizdevumi? .Piedāvājam 2% procentus! Sazinieties ar mums: richardcosmos5@gmail.com
|
| LOPEZ |
2025-01-30 17:41:49 |
|
Saņemiet kredītu 24 stundu laikā
Kā LOPEZ GROUP FINANZAS klients iesaku jums visām jūsu finansējuma vajadzībām ar likmi 2%. Tiem no jums, kuriem ir nepieciešams aizdevums, nevilcinieties sazināties ar viņu tāpat kā es, un jūs būsiet apmierināti: lopezfinanzas95@gmail.com
|
| LOPEZ |
2025-01-30 17:41:49 |
|
Saņemiet kredītu 24 stundu laikā
Kā LOPEZ GROUP FINANZAS klients iesaku jums visām jūsu finansējuma vajadzībām ar likmi 2%. Tiem no jums, kuriem ir nepieciešams aizdevums, nevilcinieties sazināties ar viņu tāpat kā es, un jūs būsiet apmierināti: lopezfinanzas95@gmail.com
|
| LOPEZ |
2025-01-30 17:41:49 |
|
Saņemiet kredītu 24 stundu laikā
Kā LOPEZ GROUP FINANZAS klients iesaku jums visām jūsu finansējuma vajadzībām ar likmi 2%. Tiem no jums, kuriem ir nepieciešams aizdevums, nevilcinieties sazināties ar viņu tāpat kā es, un jūs būsiet apmierināti: lopezfinanzas95@gmail.com
|
| LOPEZ |
2025-01-30 17:41:48 |
|
Saņemiet kredītu 24 stundu laikā
Kā LOPEZ GROUP FINANZAS klients iesaku jums visām jūsu finansējuma vajadzībām ar likmi 2%. Tiem no jums, kuriem ir nepieciešams aizdevums, nevilcinieties sazināties ar viņu tāpat kā es, un jūs būsiet apmierināti: lopezfinanzas95@gmail.com
|
| LOPEZ |
2025-01-30 17:41:48 |
|
Saņemiet kredītu 24 stundu laikā
Kā LOPEZ GROUP FINANZAS klients iesaku jums visām jūsu finansējuma vajadzībām ar likmi 2%. Tiem no jums, kuriem ir nepieciešams aizdevums, nevilcinieties sazināties ar viņu tāpat kā es, un jūs būsiet apmierināti: lopezfinanzas95@gmail.com
|
| LOPEZ |
2025-01-30 17:41:48 |
|
Saņemiet kredītu 24 stundu laikā
Kā LOPEZ GROUP FINANZAS klients iesaku jums visām jūsu finansējuma vajadzībām ar likmi 2%. Tiem no jums, kuriem ir nepieciešams aizdevums, nevilcinieties sazināties ar viņu tāpat kā es, un jūs būsiet apmierināti: lopezfinanzas95@gmail.com
|
| LOPEZ |
2025-01-30 17:41:48 |
|
Saņemiet kredītu 24 stundu laikā
Kā LOPEZ GROUP FINANZAS klients iesaku jums visām jūsu finansējuma vajadzībām ar likmi 2%. Tiem no jums, kuriem ir nepieciešams aizdevums, nevilcinieties sazināties ar viņu tāpat kā es, un jūs būsiet apmierināti: lopezfinanzas95@gmail.com
|
| LOPEZ |
2025-01-30 17:41:48 |
|
Saņemiet kredītu 24 stundu laikā
Kā LOPEZ GROUP FINANZAS klients iesaku jums visām jūsu finansējuma vajadzībām ar likmi 2%. Tiem no jums, kuriem ir nepieciešams aizdevums, nevilcinieties sazināties ar viņu tāpat kā es, un jūs būsiet apmierināti: lopezfinanzas95@gmail.com
|
| LOPEZ |
2025-01-30 17:41:48 |
|
Saņemiet kredītu 24 stundu laikā
Kā LOPEZ GROUP FINANZAS klients iesaku jums visām jūsu finansējuma vajadzībām ar likmi 2%. Tiem no jums, kuriem ir nepieciešams aizdevums, nevilcinieties sazināties ar viņu tāpat kā es, un jūs būsiet apmierināti: lopezfinanzas95@gmail.com
|
| LOPEZ |
2025-01-30 17:41:48 |
|
Saņemiet kredītu 24 stundu laikā
Kā LOPEZ GROUP FINANZAS klients iesaku jums visām jūsu finansējuma vajadzībām ar likmi 2%. Tiem no jums, kuriem ir nepieciešams aizdevums, nevilcinieties sazināties ar viņu tāpat kā es, un jūs būsiet apmierināti: lopezfinanzas95@gmail.com
|
| LOPEZ |
2025-01-30 17:41:47 |
|
Saņemiet kredītu 24 stundu laikā
Kā LOPEZ GROUP FINANZAS klients iesaku jums visām jūsu finansējuma vajadzībām ar likmi 2%. Tiem no jums, kuriem ir nepieciešams aizdevums, nevilcinieties sazināties ar viņu tāpat kā es, un jūs būsiet apmierināti: lopezfinanzas95@gmail.com
|
| LOPEZ |
2025-01-30 17:41:47 |
|
Saņemiet kredītu 24 stundu laikā
Kā LOPEZ GROUP FINANZAS klients iesaku jums visām jūsu finansējuma vajadzībām ar likmi 2%. Tiem no jums, kuriem ir nepieciešams aizdevums, nevilcinieties sazināties ar viņu tāpat kā es, un jūs būsiet apmierināti: lopezfinanzas95@gmail.com
|
| LOPEZ |
2025-01-30 17:41:12 |
|
Saņemiet kredītu 24 stundu laikā
Kā LOPEZ GROUP FINANZAS klients iesaku jums visām jūsu finansējuma vajadzībām ar likmi 2%. Tiem no jums, kuriem ir nepieciešams aizdevums, nevilcinieties sazināties ar viņu tāpat kā es, un jūs būsiet apmierināti: lopezfinanzas95@gmail.com
|
| LOPEZ |
2025-01-30 17:41:12 |
|
Saņemiet kredītu 24 stundu laikā
Kā LOPEZ GROUP FINANZAS klients iesaku jums visām jūsu finansējuma vajadzībām ar likmi 2%. Tiem no jums, kuriem ir nepieciešams aizdevums, nevilcinieties sazināties ar viņu tāpat kā es, un jūs būsiet apmierināti: lopezfinanzas95@gmail.com
|
| LOPEZ |
2025-01-30 17:41:11 |
|
Saņemiet kredītu 24 stundu laikā
Kā LOPEZ GROUP FINANZAS klients iesaku jums visām jūsu finansējuma vajadzībām ar likmi 2%. Tiem no jums, kuriem ir nepieciešams aizdevums, nevilcinieties sazināties ar viņu tāpat kā es, un jūs būsiet apmierināti: lopezfinanzas95@gmail.com
|
| LOPEZ |
2025-01-30 17:40:54 |
|
Saņemiet kredītu 24 stundu laikā
Kā LOPEZ GROUP FINANZAS klients iesaku jums visām jūsu finansējuma vajadzībām ar likmi 2%. Tiem no jums, kuriem ir nepieciešams aizdevums, nevilcinieties sazināties ar viņu tāpat kā es, un jūs būsiet apmierināti: lopezfinanzas95@gmail.com
|
| GABRIELS HERRS |
2025-01-27 12:37:43 |
|
Sveicieni visiem, es rakstu par to, kā es saņēmu aizdevumu no Lewis Scott tiešsaistes aizdevuma uzņēmuma. Pagājušajā gadā aizņēmos 3000 eiro un nevarēju atdot, bet Lūiss Skots nāca man palīgā un aizdeva 15000 eiro ar zemu procentu likmi. Pateicoties viņam un tiem, kas steidzami meklē aizdevumu, lūdzu, sazinieties ar uzņēmuma e-pasta adresi šeit: lewisscottonlineloan@gmail.com vai tālruņa numuru +2347011291322. Mani sauc Gabriels Herrs
|
| RICHARD |
2025-01-26 04:58:42 |
|
Aizdevuma piedāvājums.
Vai jums ir nepieciešams ārkārtas aizdevums? Mēs izsniegsim biznesa aizdevumus, personīgos aizdevumus, studentu aizdevumus, auto aizdevumus utt., Ja jūs interesē, lūdzu, sazinieties ar mums pa e-pastu: richardcosmos5@gmail.com
|
| DéKáNY |
2025-01-26 04:46:03 |
|
Aizdevuma piedāvājums.
Vai jums ir nepieciešams steidzams aizdevums? Mēs piedāvājam no 2000 eiro līdz 500 000 000 eiro interesentiem, sazinieties ar mums, lai iegūtu vairāk informācijas: dakany.endre@gmail.com
|
| DéKáNY |
2025-01-26 02:20:19 |
|
aizdevuma piedāvājums.
Vai jums steidzami nepieciešams aizdevums? Vai mēs izsniedzam privātus aizdevumus? biznesa aizdevumi? hipotēkas? lauksaimniecības kredīti? izglītības kredīti? Parādu konsolidācijas aizdevumi? Kravas automašīnu aizdevumi? auto kredīti? viesnīcu kredīti? kredītu refinansēšana? Un vēl studentu kredīti? Starta aizdevumi? Piedāvājam 2% procentus! Rakstiet mums uz: dakany.endre@gmail.com
|
| LABĀS ZIŅAS; |
2025-01-18 16:48:08 |
|
LABĀS ZIŅAS;
Tikai pagājušajā nedēļā es saņēmu 10 000 eiro aizdevumu no Virdžīnijas kundzes, es nekad neticēju, ka ir patiesi saņemt aizdevumu no Leonard Credit Union, jo es redzēju tiešsaistē atsauksmi par aizdevuma saņemšanu 48 darba stundās, bet tas bija skaidrs tikai man. pagājušajā nedēļā, kad saņēmu aizdevumu. Liels paldies Virdžīnijas kundzei, un zemāk ir aizdevuma aizdevēja Virdžīnijas kundzes saziņas e-pasta adrese. E-pasts: leonardo.credit532@gmail.com vai Whatsapp: +32478045522
|
| DéKáNY |
2024-12-31 15:15:14 |
|
Aizdevuma piedāvājums.
Vai jums ir nepieciešams steidzams aizdevums? Mēs izsniedzam privātpersonu aizdevumus? Uzņēmējdarbības aizdevumi? Mājokļa kredīti? Lauksaimniecības aizdevumi? Kredīti izglītībai? Debeta konsolidācijas aizdevumi? Kravas automašīnu aizdevumi? Auto kredīti? Viesnīcu aizdevumi? Refinansēt kredītus? un vēl skolas kredīti? Starta aizdevumi? .Piedāvājam ar 2% procentu likmi! Sazinieties ar mums pa: dakany.endre@gmail.com
|
| DéKáNY |
2024-12-31 15:14:37 |
|
Vai meklējat īstu kredītu?? Vai jums ir nepieciešams aizdevums jebkurā formā un jebkāda iemesla dēļ? Mēs esam šeit, lai palīdzētu jums beigās, jo mēs piedāvājam uzticamus aizdevumus tikai ar 2% procentiem. Ieinteresētajiem aizņēmējiem jāsazinās ar mums šodien, izmantojot e-pastu: (dakany.endre@gmail.com), un saņemiet aizdevumu jau šodien.
Steidzami aizdevuma piedāvājums.
|
| DéKáNY |
2024-12-30 18:03:53 |
|
Vajag naudu? Ja jā, e-pasts: dakany.endre@gmail.com
Steidzami aizdevuma piedāvājums.
Vai jums ir nepieciešams jebkura veida steidzams aizdevums? Aizdevumi parādu dzēšanai vai nepieciešamība aizdot naudu. Lai uzlabotu savu biznesu, jūs ir atteikušas jebkuras bankas un citas finanšu institūcijas? Vai jums ir nepieciešams kredīts vai hipotēka? Šī ir vieta, kur meklēt, mēs esam šeit, lai atrisinātu visas jūsu finansiālās problēmas. Mēs aizņemamies naudu sabiedrībai. Nepieciešama finansiāla palīdzība sliktam kreditoram, kuram nepieciešama nauda. Lai samaksātu par ieguldījumiem uzņēmējdarbībā ar saprātīgu likmi 2%, ļaujiet man izmantot šo līdzekli, lai informētu jūs, ka mēs piedāvājam uzticamu un noderīgu palīdzību un būsim gatavi jums aizdot. Sazinieties ar mums šodien pa e-pastu: dakany.endre@gmail.com
|
| BILL |
2024-12-22 19:54:22 |
|
Mani sauc Ivonna Bilsa kundze. Es dzīvoju ASV Lasvegasā un šodien esmu laimīga sieviete, kad runāju, es sev teicu, ka jebkura aizdevuma kompānija vai aizdevējs, kas varētu mainīt manu un manas ģimenes sabojāto dzīvi, es nosūtīšu ikvienu personu, kas meklē aizdevums viņiem. Viņi man un manai ģimenei sagādāja laimi, 2024. gada 12. septembrī man bija nepieciešams aizdevums USD 400 000 apmērā, un es saņēmu aizdevumu dažu stundu laikā bez stresa. Viņi patiešām ir Dieva bīstami cilvēki, kas strādā ar cienījamu aizdevuma uzņēmumu. ja jums ir nepieciešams aizdevums un esat 100% pārliecināts, ka atmaksāsiet aizdevumu, lūdzu, sazinieties ar viņiem šodien un, lūdzu, pastāstiet viņiem, ka Ivonnas Bilsas kundze jūs viņiem nosūtīja, jūs varat sazināties ar viņiem pa e-pastu;………( jamesben6144@gmail.com )………………………Es novēlu jums veiksmi, paldies un lai Dievs jūs svētī….
|
| GREISA LILLES KUNDZE |
2024-12-10 17:53:09 |
|
Vai jums ir nepieciešams steidzams finanšu aizdevums?
* Ļoti ātrs un ātrs pārskaitījums uz jūsu bankas kontu
* Atmaksa sākas astoņus mēnešus pēc naudas saņemšanas
bankas kontā
* Zema procentu likme 2% apmērā
* Ilgs atmaksas termiņš (1-30 gadi) Garums
* Elastīgi aizdevuma nosacījumi un ikmēneša maksājums
*. Cik ilgs laiks nepieciešams, lai finansētu? Pēc kredīta pieteikuma iesniegšanas provizorisku atbildi vari sagaidīt mazāk nekā 24 stundu laikā, finansējumu – 72-96 stundu laikā pēc tam, kad viņiem no Tevis būs sniegta nepieciešamā informācija.
Sazinieties ar šo likumīgo un licencēto uzņēmumu, kas ir pilnvarots sniegt finansiālu palīdzību visiem Plašāka informācija un aizdevuma pieteikuma veidlapas
E-pasts. pasts: gracelille322@gmail.com
GRĀMATVEDĪBAS UZŅĒMUMS GRACE LILLE
Rīkotājdirektors
Tālr.: +49 176 34215369)
TEL: +1 (386) 268-8539)
E-pasts E-pasts: gracelille322@gmail.com
Vislabākie vēlējumi
Greisa Lilles kundze
|
| LOAN OFERT |
2024-11-30 20:06:55 |
|
Get access to both long and short term loans no credit check, unemployed, personal and business loans without delay through online application with 100% approval. no matter your location just 2% interest rate Contact us (WhatsApp) number +918131851434 contact email id : sumitihomelend@gmail.com Mr. Damian Sumiti
|
| RICHARD |
2024-11-30 16:10:02 |
|
Aizdevuma piedāvājums.
Vai meklējat biznesa aizdevumu līdz 700 000 000 eiro, lai attīstītu savu biznesu, vai personīgo aizdevumu līdz 200 000 000 eiro, kas atbilst jūsu vajadzībām? Neatkarīgi no tā, vai tas attiecas uz māju, automašīnu, izglītību vai personīgiem izdevumiem, mēs piedāvājam elastīgus noteikumus un konkurētspējīgas likmes tikai 2% apmērā. Ātra apstiprināšana, vienkāršs pieteikšanās process un pielāgotas iespējas, kas palīdzēs iegūt nepieciešamos līdzekļus. Piesakieties šodien uz: (richardcosmos5@gmail.com) un speriet nākamo soli pretī saviem finanšu mērķiem!
|
| DéKáNY |
2024-11-30 02:53:21 |
|
Vai jums ir nepieciešami projektu aizdevumi investīciju aizdevumiem, privātpersonu aizdevumiem, biznesam, mājokļa aizdevumiem, studentu aizdevumiem, konsolidācijas aizdevumiem un aizdevumiem dažādiem projektiem? tiem, kas vēlas saņemt aizdevumu no uzņēmuma, sazinieties ar mums šodien (dakany.endre@gmail.com) un saņemiet aizdevumu jau šodien.
Steidzami aizdevuma piedāvājums.
|
| VLADIMIR |
2024-11-18 03:38:27 |
|
Здравствуйте,
Мы предоставляем возможности ипотеки для людей, заинтересованных в получении ипотеки по более низкой процентной ставке в 5% годовых. Свяжитесь с нашим официальным адресом электронной почты: info.mortgage@interia.eu
Владимир Петрович
|
| JENNY GABRIEL |
2024-11-14 15:35:29 |
|
LABĀS ZIŅAS LABAS ZIŅAS
Es esmu mana lēdija Jenny Gabriel Daniels, uzticama un likumīga aizdevuma aizdevējs. Mēs piedāvājam reālus un vienkāršus nosacījumus ar procentu likmi 2%. no USD 1000 līdz USD 100 000. Eiro un mārciņas. Izsniedzu arī aizdevumus uzņēmējiem:
Personīgais aizdevums,
Studentu kredīts,
Transporta kredīts
Uzņēmējdarbības aizdevumi.
biznesa aizdevumi
sazinieties ar mani tieši, lai iegūtu vairāk informācijas.
E-pasts: gracelille322@gmail.com
Izmantojot Whatsapp: +49 176 34215369,
Izmantojot Whatsapp: +1 (386) 268-8539
|
| DEREKS DUGLASS |
2024-11-14 13:02:04 |
|
Sveiki!
Vai jums ir nepieciešams ērts aizdevums jūsu apmierinātībai? Mēs piedāvājam pieņemamu 2% procentu likmju aizdevumu vietējiem un starptautiskajiem aizņēmējiem. Mēs esam sertificēti, uzticami, uzticami, efektīvi, ātri un dinamiski, un mēs strādājam kopā. Mēs izsniedzam ilgtermiņa aizdevumu no 2 līdz 50 gadiem, maksimums.
Vai jums ir nepieciešams tiešs, vienkāršs un pieejams aizdevums, lai samaksātu par parādu, uzsāktu uzņēmējdarbību vai kāda cita iemesla dēļ? Ja tā, lūdzu, sazinieties ar mums ar savu aizdevuma pieprasījumu.
Šis piedāvājums ir domāts nopietniem cilvēkiem.
Lūdzu, sazinieties ar mums, ja jūs interesē, izmantojot: E-pasts: easyloanfirm2020@gmail.com
Mēs esam sertificēti,
uzticams, uzticams, efektīvs, ātrs un dinamisks.
Ar cieņu
Dereks Duglass
easyloanfirm2020@gmail.com
|
| DEREKS DUGLASS |
2024-11-14 13:02:04 |
|
Sveiki!
Vai jums ir nepieciešams ērts aizdevums jūsu apmierinātībai? Mēs piedāvājam pieņemamu 2% procentu likmju aizdevumu vietējiem un starptautiskajiem aizņēmējiem. Mēs esam sertificēti, uzticami, uzticami, efektīvi, ātri un dinamiski, un mēs strādājam kopā. Mēs izsniedzam ilgtermiņa aizdevumu no 2 līdz 50 gadiem, maksimums.
Vai jums ir nepieciešams tiešs, vienkāršs un pieejams aizdevums, lai samaksātu par parādu, uzsāktu uzņēmējdarbību vai kāda cita iemesla dēļ? Ja tā, lūdzu, sazinieties ar mums ar savu aizdevuma pieprasījumu.
Šis piedāvājums ir domāts nopietniem cilvēkiem.
Lūdzu, sazinieties ar mums, ja jūs interesē, izmantojot: E-pasts: easyloanfirm2020@gmail.com
Mēs esam sertificēti,
uzticams, uzticams, efektīvs, ātrs un dinamisks.
Ar cieņu
Dereks Duglass
easyloanfirm2020@gmail.com
|
| DEREKS DUGLASS |
2024-11-14 13:02:03 |
|
Sveiki!
Vai jums ir nepieciešams ērts aizdevums jūsu apmierinātībai? Mēs piedāvājam pieņemamu 2% procentu likmju aizdevumu vietējiem un starptautiskajiem aizņēmējiem. Mēs esam sertificēti, uzticami, uzticami, efektīvi, ātri un dinamiski, un mēs strādājam kopā. Mēs izsniedzam ilgtermiņa aizdevumu no 2 līdz 50 gadiem, maksimums.
Vai jums ir nepieciešams tiešs, vienkāršs un pieejams aizdevums, lai samaksātu par parādu, uzsāktu uzņēmējdarbību vai kāda cita iemesla dēļ? Ja tā, lūdzu, sazinieties ar mums ar savu aizdevuma pieprasījumu.
Šis piedāvājums ir domāts nopietniem cilvēkiem.
Lūdzu, sazinieties ar mums, ja jūs interesē, izmantojot: E-pasts: easyloanfirm2020@gmail.com
Mēs esam sertificēti,
uzticams, uzticams, efektīvs, ātrs un dinamisks.
Ar cieņu
Dereks Duglass
easyloanfirm2020@gmail.com
|
| DéKáNY |
2024-10-20 12:53:50 |
|
aizdevuma piedāvājums
AIZDEVUMA PIEDĀVĀJUMS, vai jums ir nepieciešams aizdevums? Vai jums ir kāds finansiāls juceklis vai jums ir nepieciešami līdzekļi sava biznesa uzsākšanai? ĀTRAS KREDĪTS, vai jums ir nepieciešams aizdevums, lai nokārtotu parādu vai nomaksātu rēķinus vai sāktu labu biznesu? : sazinieties ar mūsu aizdevuma biroja e-pastu: (dakany.endre@gmail.com) Personīgais aizdevums, biznesa aizdevums, mājas kapitāla aizdevums, parādu konsolidācija
|
| AKANY.ENDRE@GMAIL.CO |
2024-10-20 12:52:40 |
|
aizdevuma piedāvājums
AIZDEVUMA PIEDĀVĀJUMS, vai jums ir nepieciešams aizdevums? Vai jums ir kāds finansiāls juceklis vai jums ir nepieciešami līdzekļi sava biznesa uzsākšanai? ĀTRAS KREDĪTS, vai jums ir nepieciešams aizdevums, lai nokārtotu parādu vai nomaksātu rēķinus vai sāktu labu biznesu? : sazinieties ar mūsu aizdevuma biroja e-pastu: (dakany.endre@gmail.com) Personīgais aizdevums, biznesa aizdevums, mājas kapitāla aizdevums, parādu konsolidācija
|
| RICHARD |
2024-10-20 12:50:39 |
|
Steidzami aizdevuma piedāvājums.
Mēs sniedzam biznesa aizdevumu, personīgo aizdevumu, automašīnu aizdevumu, mājokļa aizdevumu ar 2% procentu likmi. Vai jums ir nepieciešams aizdevums jūsu biznesam vai projektiem? Sazinieties ar mums šodien pa e-pastu richardcosmos5@gmail.com
|
| RICHARD |
2024-10-20 12:49:16 |
|
Vai jums ir nepieciešams ārkārtas aizdevums, lai nomaksātu parādus vai kapitāla aizdevums, lai uzlabotu savu biznesu? Vai bankas un citas finanšu iestādes jums ir atteikušās? Vai jums ir nepieciešama kredīta apvienošana vai hipotēka? Nemeklējiet tālāk, jo mēs esam šeit, lai visas jūsu finansiālās problēmas atstātu aiz muguras. Sazinieties ar mums pa e-pastu: (richardcosmos5@gmail.com) Mēs piedāvājam aizdevumus ieinteresētajām personām ar saprātīgu procentu likmi, 2%. Diapazons ir no 2 000,00 eiro līdz 100 000 000,00 eiro
Steidzami aizdevuma piedāvājums
|
| DéKáNY |
2024-10-19 11:30:58 |
|
aizdevuma piedāvājums
Vai jums ir nepieciešams steidzams aizdevums? Mēs izsniedzam privātpersonu aizdevumus? Uzņēmējdarbības aizdevumi? Mājokļa kredīti? Lauksaimniecības aizdevumi? Kredīti izglītībai? Debeta konsolidācijas aizdevumi? Kravas automašīnu aizdevumi? Auto kredīti? Viesnīcu aizdevumi? Refinansēt kredītus? un vēl skolas kredīti? Starta aizdevumi? .Piedāvājam ar 2% procentu likmi! Sazinieties ar mums pa: dakany.endre@gmail.com
|
| DéKáNY |
2024-10-19 11:30:18 |
|
aizdevuma piedāvājums
Vai jums ir nepieciešams steidzams aizdevums? Mēs izsniedzam privātpersonu aizdevumus? Uzņēmējdarbības aizdevumi? Mājokļa kredīti? Lauksaimniecības aizdevumi? Kredīti izglītībai? Debeta konsolidācijas aizdevumi? Kravas automašīnu aizdevumi? Auto kredīti? Viesnīcu aizdevumi? Refinansēt kredītus? un vēl skolas kredīti? Starta aizdevumi? .Piedāvājam ar 2% procentu likmi! Sazinieties ar mums pa: dakany.endre@gmail.com
|
| ARGOTS PAKALNS |
2024-09-03 23:51:51 |
|
Sveiki visiem, mani sauc Argots Pakalns no Latvijas, es tikko saņēmu savu aizdevumu no Patrīcijas Kingsmanas kundzes aizdevuma uzņēmuma, viņi ir jauns legāls 2024. gada aizdevuma uzņēmums, un nav pagājis ilgs laiks, kad es saņēmu no viņiem savu aizdevumu, es saņēmu savu aizdevumu no viņiem šodien un Tagad, kad es ievietoju šo ziņojumu, es esmu ļoti priecīgs, ka šis uzņēmums ir patiešām lielisks, tāpēc ikviens, kam nepieciešams aizdevums, sazinieties ar šo uzņēmumu, viņi ir patiešām lieliski. E-pasts ir patriciakingsman.loans2016@gmail.com
|
| DéKáNY |
2024-08-29 15:49:32 |
|
Vai jums ir nepieciešams steidzams aizdevums? Vai mēs izsniedzam personīgos aizdevumus? Biznesa kredīts? hipotēka? Lauksaimniecības kredīts? Kredīti izglītībai? Parādu konsolidācijas aizdevumi? Kravas auto kredīts? Auto kredīts? Viesnīcas kredīts? Refinansēt kredītus? un vēl skolas kredīti? Sākotnējais aizdevums? .Piedāvājam ar 2% procentiem! Sazinieties ar mums pa e-pastu (dakany.endre@gmail.com)
Steidzami aizdevuma piedāvājums.
|
| JURGEN STEFAN |
2024-07-19 18:13:58 |
|
Sveiki visiem
Mēs ceram, ka šis komentārs jūs atradīs.
Mēs piedāvājam jums labāko aizdevuma piedāvājumu tirgū.
Mēs piedāvājam jebkura veida aizdevumu.
. Auto kredīts
. Mājas kredīts
. Hipotēkas kredīts
. Personīgais aizdevums
. Payday Aizdevums
. Mazā biznesa aizdevums
. Studentu kredīts amo
Piesakieties ātrajam kredītam jau šodien un saņemiet kredītu 12 STUNDU laikā ar vislabāko procentu likmi 3%
Kontaktinformācija: jurgenstefanfinancialservice@gmail.com vai WhatsApp: +447506884543
|
| LOAN COMPANY |
2024-07-15 01:29:16 |
|
Laba diena no šīs puses, esmu Flora Skotas kundze, privāta aizdevuma aizdevējs. Mēs piedāvājam steidzamus aizdevumus privātpersonām par pieņemamām likmēm. ja jūs interesē steidzams aizdevums jebkādu finansiālu iemeslu dēļ, tad nevilcinieties sazināties ar mums, izmantojot (flora_scott@outlook.com), lai iegūtu plašāku informāciju par šo aizdevuma darījumu.
Ar cieņu
Floras kundze
|
| DéKáNY |
2024-06-15 03:26:13 |
|
Kredīta piedāvājums
Vai jums steidzami nepieciešams aizdevums? Vai mēs dodam privātpersonu aizdevumus? biznesa aizdevumi? mājokļa kredīts? lauksaimniecības kredīti? izglītības kredīti? Parādu konsolidācijas aizdevums? kravas automašīnu aizdevumi? auto kredīti? viesnīcu kredīti? refinansēt kredītus? un vēl parādi? starta aizdevumi? .Piedāvājam ar 2% procentu likmi! Nosūtiet mums e-pastu uz: dakany.endre@gmail.com
|
| SUDE32068@GMAIL.COM |
2024-06-06 16:46:59 |
|
Sveiki!
Vai jums ir nepieciešams aizdevums? Esmu reģistrēts un uzticams aizdevējs, mēs piedāvājam no 3000 eiro līdz 500 000 000 eiro cilvēkiem, kuriem ir finansiālas grūtības, cilvēkiem, kas cenšas nomaksāt skolas rēķinus, tiem, kas mēģina iegādāties automašīnu vai uzsākt savu biznesu, darbuzņēmējiem un valsts iestādēm. Lai iegūtu vairāk informācijas vai aizdevuma pieteikuma veidlapu, sazinieties ar mums pa e-pastu: (sude32068@gmail.com)
Vadība. whatsapp: +48691506201
Sazinieties ar kredītu Speedy tūlīt!!!
|
| SUDE32068@GMAIL.COM |
2024-06-06 16:46:13 |
|
Sveiki!
Vai jums ir nepieciešams aizdevums? Esmu reģistrēts un uzticams aizdevējs, mēs piedāvājam no 3000 eiro līdz 500 000 000 eiro cilvēkiem, kuriem ir finansiālas grūtības, cilvēkiem, kas cenšas nomaksāt skolas rēķinus, tiem, kas mēģina iegādāties automašīnu vai uzsākt savu biznesu, darbuzņēmējiem un valsts iestādēm. Lai iegūtu vairāk informācijas vai aizdevuma pieteikuma veidlapu, sazinieties ar mums pa e-pastu: (sude32068@gmail.com)
Vadība. whatsapp: +48691506201
Sazinieties ar kredītu Speedy tūlīt!!!
|
| RICHARD |
2024-05-05 11:16:05 |
|
Labdien, es esmu privātpersona, kas piedāvā starptautiskos aizdevumus. Ar kapitālu, kas tiek izmantots īstermiņa un ilgtermiņa aizdevumu nodrošināšanai starp privātpersonām, sākot no 2000 € – 500 000 000 eiro visiem nopietnajiem cilvēkiem, kam tas tiešām ir nepieciešams, procentu likme ir 2% gadā. Es izsniedzu finanšu un mājokļa aizdevumus, investīciju aizdevumus, automašīnu aizdevumus, privātpersonu aizdevumus. Esmu pieejams saviem klientiem maksimāli 2 dienu laikā pēc pieprasījuma veidlapas saņemšanas. Nenopietns cilvēks paliek malā. Ātrā atbilde: (richardcosmos5@gmail.com)
Steidzami aizdevuma piedāvājums.
|
| KĻŪT BAGĀTĀ AR TUŠU |
2024-04-17 14:45:34 |
|
KĻŪT BAGĀTĀ AR TUŠU bankomāta KARTI Whatsapp +12623558285. E-pasts: georgbednorzhackers@gmail.com.
Čau, puiši!!! Man ir sava lojalitāte. Mana tukšā bankomāta karte var izņemt USD 5000 dienā. Es to saņēmu no Georga kunga pagājušajā trešdienā, un tagad man ir 10 000 eiro bez maksas. Karte izņem naudu no jebkura bankomāta un vārda nav, nav izsekojama un tagad man un 4 bērniem naudas pietiek. Esmu sajūsmā, ka satiku Georga kungu, jo iepriekš satiku divus cilvēkus un paņēmu naudu, nezinot, ka tie ir krāpnieki. Bet tagad esmu laimīga. Georga kungs nosūtīja karti caur DHL, un es to saņēmu divu dienu laikā. Iegūstiet vienu no viņa tagad. Redziet, tā ir ziedošana, lai palīdzētu cilvēkiem, pat ja tas ir nelikumīgi, bet tas ļoti palīdz, un neviens nekad netiek pieķerts. Karte darbojas visās pasaules valstīs. Pasteidzieties un sūtiet e-pastu caur georgbednorzhackers @ gmail. com Īsziņas, zvaniet vai WhatsAp: +1(262)355-8285
Citi piedāvātie pakalpojumi bija:
Bankomātu karšu klonēšana
Bitcoin bankomātu uzlaušana ar ļaunprātīgas programmatūras kartēm
Pazaudētas vai nozagtas kriptovalūtas atgūšana
Western Union pārskaitījumu, MoneyGram pārskaitījumu, bankas pārskaitījumu, PayPal pārskaitījumu, Cas# lietotņu pārskaitījumu uzlaušana
Atgūstiet uzlauztos sociālos medijus: Facebook, Instagram, Snapchat, TikTok, Gmail, Yahoo pasts un vietnes.
|
| LOUIS |
2024-03-28 21:47:43 |
|
Vai jums ir nepieciešams personīgais/komerciālais aizdevums, lai sāktu savu biznesu vai sakārtotu savu māju?
Refinansējiet uzņēmumu vai iegādājieties īpašumu, aizdevumu, lai samaksātu rēķinus/parādus
Piedāvājam ātros kredītus ar saprotamiem noteikumiem un nosacījumiem.
ja jums ir nepieciešams aizdevums, sazinieties ar mums šodien pa e-pastu: MacKenziescott21@outlook.com
|
| LOUIS |
2024-03-28 13:17:31 |
|
Vai jums ir nepieciešama finansiāla palīdzība?
ja jums ir nepieciešams aizdevums, sazinieties ar mums šodien pa e-pastu: MacKenziescott21@outlook.com
|
| RICHARD |
2024-03-27 16:56:02 |
|
I aizdevumu kompānija piedāvā visa veida aizdevumus. Es iesaku kredītus biznesam, privātpersonām, auto kredītus, kredītus mājokļa iegādei, mājas renovācijas kredītus, iekšzemes kredītus ar ļoti minimālu procentu likmi. ja jums ir nepieciešams steidzams aizdevums, sazinieties ar mums pa e-pastu: (richardcosmos5@gmail.com)
aizdevuma piedāvājums,
|
| DéKáNY |
2024-03-05 11:52:14 |
|
Vai jums ir nepieciešams aizdevums? Šādā gadījumā sūtiet e-pastu uz: dakany.endre@gmail.com
Vai jums ir nepieciešams aizdevums? privātie aizdevumi? biznesa aizdevums? hipotēka? Lauksaimniecības un projektu finansējums, ĀTRIE KREDĪTI. Vai jums ir nepieciešams aizdevums, lai nomaksātu parādus, samaksātu rēķinus vai uzsāktu jauku biznesu? ? Izsniedzam visa veida aizdevumus ar 2% procentiem! Saziņas e-pasts: (dakany.endre@gmail.com)
Steidzami aizdevuma piedāvājums.
|
| RICHARD |
2024-02-17 02:17:29 |
|
Lai jums lieliska diena
Es esmu Richard Cosmos privātais aizdevējs. Piedāvāju aizdevumu ar procentu likmi 2% gadā un 2000 eiro apmērā - 500 000 000,00 eiro Tam ir 100% pašu kapitāla finansējums ar nodrošinātiem un nenodrošinātiem aizdevumiem. Mēs garantējam savus finanšu pakalpojumus daudziem mūsu globālajiem klientiem. Izmantojot mūsu elastīgo kredītportfeli, kredīti var tikt apstrādāti un nodoti aizņēmējiem pēc iespējas īsākā laikā. Mēs strādājam ar skaidriem un saprotamiem noteikumiem un sniedzam visa veida aizdevumus ieinteresētiem klientiem, uzņēmumiem, korporācijām un visa veida uzņēmumiem. Sazinieties ar mums tūlīt: (richardcosmos5@gmail.com)
Piedāvājiet steidzamus aizdevumus.
|
| DéKáNY |
2024-01-12 00:36:29 |
|
Vai jums ir nepieciešams aizdevums? Šajā gadījumā rakstiet uz e-pastu: dakany.endre@gmail.com
Vai jums ir nepieciešams aizdevums? privātie aizdevumi? biznesa aizdevums? hipotēka? Lauksaimniecības un projektu finansēšana, ĀTRI KREDĪTI. Vai jums ir nepieciešams aizdevums, lai nomaksātu parādus, samaksātu rēķinus vai uzsāktu jauku biznesu? ? Izsniedzam visa veida aizdevumus ar 2% procentiem! Saziņas e-pasts: (dakany.endre@gmail.com)
Steidzami aizdevuma piedāvājums.
|
| DéKáNY |
2024-01-11 14:44:41 |
|
Vai jums ir nepieciešams steidzams aizdevums? Vai mēs izsniedzam personīgos aizdevumus? Uzņēmējdarbības aizdevumi? Mājas kredīti? Lauksaimniecības kredīti? Kredīti izglītībai? Parādu konsolidācijas aizdevumi? Kravas automašīnu aizdevumi? Auto kredīts? Viesnīcas kredīts? Refinansēt kredītus? Un vēl kredīti skolai? Starta aizdevumi? .piedāvājot jums 2% procentu likmi! Sazinieties ar mums: (dakany.endre@gmail.com)
Aizdevuma piedāvājums
|
| RICHARD |
2023-12-26 01:34:07 |
|
VAI JUMS NEPIECIEŠAMS KREDĪTS Vai esat biznesa vīrietis vai sieviete? Vai jums ir nepieciešami līdzekļi sava biznesa uzsākšanai? Vai jums ir nepieciešams aizdevums, lai nokārtotu parādu vai nomaksātu rēķinus vai sāktu labu biznesu? Vai jums ir nepieciešami līdzekļi sava projekta finansēšanai? E-pasts: (richardcosmos5@gmail.com) Mēs piedāvājam jebkuras summas garantētus aizdevuma pakalpojumus uz jebkuru pasaules daļu (privātpersonām, uzņēmumiem, nekustamo īpašumu un korporatīvām organizācijām) ar mūsu lielisko procentu likmi 2%. Lai saņemtu pieteikumu un vairāk informācijas, sūtiet atbildes uz šādu e-pasta adresi: richardcosmos5@gmail.com
Steidzami aizdevuma piedāvājums.
|
| RICHARD |
2023-12-26 00:46:43 |
|
Lai jums lieliska diena
Es esmu Richard Cosmos privātais aizdevējs. Piedāvāju aizdevumu ar procentu likmi 2% gadā un 2000 eiro apmērā - 500 000 000,00 eiro Tam ir 100% pašu kapitāla finansējums ar nodrošinātiem un nenodrošinātiem aizdevumiem. Mēs garantējam savus finanšu pakalpojumus daudziem mūsu globālajiem klientiem. Izmantojot mūsu elastīgo kredītportfeli, kredīti var tikt apstrādāti un nodoti aizņēmējiem pēc iespējas īsākā laikā. Mēs strādājam ar skaidriem un saprotamiem noteikumiem un sniedzam visa veida aizdevumus ieinteresētiem klientiem, uzņēmumiem, korporācijām un visa veida uzņēmumiem. Sazinieties ar mums tūlīt: (richardcosmos5@gmail.com)
Piedāvājiet steidzamus aizdevumus.
|
| LOAN OFERT |
2023-12-22 11:32:47 |
|
I am a private money lender that give out fast cash interest rate of 2% no collateral required. all cash amounts and currencies, if interested TO started no matter your location (WhatsApp) number +918131851434 sumitihomelend@gmail.com Web http://sumitilendinghome.in
Mr. Damian Sumiti
Regards,
|
| ANDERSON |
2023-11-02 21:05:45 |
|
Mēs esam sertificēts privāts aizdevējs, un es piedāvāju vietējos un starptautiskos aizdevuma pakalpojumus, lai apmierinātu jūsu finansiālās vajadzības, piemēram, mājokļa aizdevumus, auto aizdevumus, hipotēkas aizdevumus, biznesa aizdevumus, starptautiskus aizdevumus, personīgos aizdevumus, valsts refinansēšanu un parādu konsolidāciju par pieņemamu procentu likmi. . Lai iegūtu vairāk informācijas, lūdzu, sazinieties ar mani pa e-pastu: (georgeanderson.loanfirm255@gmail.com)
Steidzami aizdevuma piedāvājums.
|
| DéKáNY |
2023-11-01 21:44:13 |
|
Vai jums ir nepieciešams kredīts? privātie aizdevumi? biznesa aizdevumi? Ziemassvētku aizdevums? hipotēkas? lauksaimniecības un projektu finansējums? izsniedzam visa veida kredītus ar 2% procentu likmi! E-pasts saziņai; (dakany.endre@gmail.com)
Steidzami aizdevuma piedāvājums.
|
| DéKáNY |
2023-10-26 09:40:47 |
|
Vai jums ir nepieciešams aizdevums? mēs piedāvājam visu veidu aizdevumus ar 2% procentiem. Nosūtiet mums vairāk informācijas pa e-pastu: (dakany.endre@gmail.com)
aizdevuma piedāvājums ar 2% procentiem
|
| DéKáNY |
2023-10-15 16:08:41 |
|
Labdien! Mēs esam sertificēti, lai sniegtu šādus aizdevumu veidus vai jebkādu finansējumu: Personīgais aizdevums? Uzņēmējdarbības aizdevumi? Parādu konsolidācijas aizdevums? Atjaunot savu māju? Investīciju kredīts? Vai ir pieejams kredīts? Aizdevumi privātpersonām? Komerciālie kredīti? Apvienotais kredīts? Konsolidācijas aizdevumi? Ja jūs interesē, sazinieties ar mums: (dakany.endre@gmail.com)
Steidzami aizdevuma piedāvājums.
|
| DéKáNY |
2023-10-14 02:18:26 |
|
Labdien! Mēs esam sertificēti, lai sniegtu šādus aizdevumu veidus vai jebkādu finansējumu: Personīgais aizdevums? Uzņēmējdarbības aizdevumi? Parādu konsolidācijas aizdevums? Atjaunot savu māju? Investīciju kredīts? Vai ir pieejams kredīts? Aizdevumi privātpersonām? Komerciālie kredīti? Apvienotais kredīts? Konsolidācijas aizdevumi? Ja jūs interesē, sazinieties ar mums: (dakany.endre@gmail.com)
Steidzami aizdevuma piedāvājums.
|
| PāRLIECīBAS SAGRāBēJ |
2023-10-01 11:08:08 |
|
LABRĪT VISI, KAS IZLASA MANU LIECĪBU PAR KĀ ES SAŅĒMU 15 000 EIRO AIZDEVUMU NO GRACES LILLE kundzes FINANŠU HIPOTĒKU.
KONTAKTINFORMĀCIJA PA E-PASTA: gracelille322@gmail.com
SAZINIETIES ar WHATSAPP: +49 176 34215369
Ar laba vēlējumiem
Pārliecības sagrābējs
|
| SUSAN BENSON |
2023-09-28 07:58:58 |
|
Sveiki, dāmas un kungi! Vai jums ir nepieciešama finansiāla palīdzība? Es esmu Sjūzena Bensone. Esmu aizdevējs un arī finanšu konsultants.
Vai jums ir nepieciešams biznesa aizdevums, personīgais aizdevums, hipotēkas aizdevums vai aizdevums, lai pabeigtu savu projektu? Ja jūsu atbilde ir jā, es iesaku sazināties ar manu uzņēmumu. Mēs sniedzam visa veida aizdevumu pakalpojumus, tostarp ilgtermiņa un īstermiņa aizdevumus, nodrošinātus un nenodrošinātus aizdevumus un daudz ko citu. Lai iegūtu papildinformāciju, rakstiet mums pa e-pastu: (sunshinefinancialgroupinc@gmail.com) vai rakstiet man tieši uz WhatsApp, izmantojot: +447360502110, un saņemiet atbildi vienā mirklī.
Aizdevums no uzticama un kompetenta uzņēmuma ir tas, kas jums nepieciešams, lai sasniegtu savu mērķi. Mēs esam visaptverošs finanšu pakalpojumu uzņēmums un esam apņēmušies palīdzēt jums īstenot visas jūsu vēlmes. Mēs specializējamies strukturētu finanšu risinājumu nodrošināšanā privātpersonām un uzņēmumiem visefektīvākajā un ātrākajā veidā.
* Jūs varat pieteikties aizdevumam jebkurā laikā un vietā.
* Elastīga summa – Jūs izlemjat, cik daudz vēlaties aizņemties.
* Ātrs tiešais finansējums — saņemiet aizdevumu 24 stundu laikā pēc apstiprināšanas.
* Elastīga procentu likme 3%.
* Augsts apstiprināšanas līmenis
* Elastīga atmaksa — jums ir jāizvēlas atmaksas datums — katru nedēļu, mēnesi vai gadu 1–30 gadu garumā.
* Vienkārša tiešsaistes lietojumprogramma.
* Personalizētas konsultācijas un zināšanas.
* Nav slēptu maksu
Nepalaidiet garām iespēju finanšu trūkuma dēļ. Sazinieties ar manu uzņēmumu tagad, mēs varam jums palīdzēt ar aizdevumu, jo esam palīdzējuši daudzām personām un organizācijām, kuras visā pasaulē ir saskārušās ar finansiālām grūtībām
Lai iegūtu papildinformāciju par mūsu aizdevuma piedāvājumu, lūdzu, nosūtiet mums savu aizdevuma pieprasījumu caur
E-pasts: (sunshinefinancialgroupinc@gmail.com)
WhatsApp: +447360502110
Starpnieki / konsultanti / brokeri ir laipni aicināti piesaistīt savus klientus un ir 100% aizsargāti. Pilnīgā pārliecībā mēs strādāsim kopā visu iesaistīto pušu labā.
|
| BRYAN STEFAN |
2023-09-12 01:13:32 |
|
Sveiki Vai jums ir nepieciešams steidzams aizdevums, lai atrisinātu savas finanšu vajadzības? Mēs piedāvājam aizdevumus no 2000.00 līdz 50.000.000.00, mēs esam uzticami, spēcīgi, ātri un dinamiski, bez kredīta pārbaudes un piedāvājam 100% ārvalstu aizdevuma garantijas pārejas periodā. Mēs arī izsniedzām jebkuru valūtas aizdevumu ar 2% procentiem visiem aizdevumiem Ja jūs interesē, sazinieties ar mums, izmantojot šo e-pastu: (bryanstefanloanfirm@gmail.com) (bryanstefanloanfirm@outlook.com) vai WhatsApp: +33748242534
|
| LARRY SAM |
2023-09-10 05:42:19 |
|
Laipni lūdzam Grace Lille aizdevumu kreditēšanas uzņēmumā!!!
Mēs palīdzam ikvienam, kuram ir nopietnas parādsaistības vai finansiālas problēmas mājās! Kredīta saņemšana ir, lai mazinātu raizes un stresu tajā brīdī, kad jums ir vajadzīga nauda... Tāpēc mēs aizstāvam, lai jūs tagad pārvarētu recesiju.
GARANTIJAS FONDS ir gatavs palīdzēt jebkurā laikā, kad sazināsieties ar savu kontaktpersonu, izmantojot e-pasta adresi: gracelille322@gmail.com Paldies!
|
| RICHARD |
2023-09-09 12:51:09 |
|
Vai jums ir nepieciešams aizdevums, lai sāktu savu biznesu vai paplašināšanas priekšlikums? kredīts rēķinu apmaksai? Šeit mēs piedāvājam visu veidu aizdevumus ar 2% procentiem. saziņas e-pasts: (richardcosmos5@gmail.com)
Aizdevuma piedāvājums.
|
| GRACE LILLE |
2023-09-09 04:14:03 |
|
Vai jums ir nepieciešams aizdevums ar zemu procentu likmi 3%, varat pieteikties aizdevuma summai no minimālās 3500 Eur līdz maksimāli 500 000,00 Eur, lūdzu, sazinieties ar mums: (gracelille322@gmail.com) Vai Whatsapp(+49) 176 34215369) sīkākai informācijai.
|
| GRACE LILLE |
2023-09-09 02:41:13 |
|
Vai jums ir nepieciešams aizdevums ar zemu procentu likmi 3%, varat pieteikties aizdevuma summai no minimālās 3500 Eur līdz maksimāli 500 000,00 Eur, lūdzu, sazinieties ar mums: (gracelille322@gmail.com) Vai Whatsapp(+49) 176 34215369) sīkākai informācijai.
|
| DéKáNY |
2023-09-07 18:46:00 |
|
Vai jums ir nepieciešama jebkāda veida finansiāla palīdzība? Aizdevumi privātpersonām? Uzņēmējdarbības aizdevumi? Hipotekārie kredīti? Uzņēmuma aizdevumi? Lauksaimniecības un projektu finansējums? Izsniedzam aizdevumus ar 2% procentu likmi! Sazināties: (dakany.endre@gmail.com)
Steidzami aizdevuma piedāvājums.
|
| CLAUDIA MöLLEKEN |
2023-08-24 00:28:05 |
|
Sveiki!
Es esmu Claudia Mölleken, es redzēju komentārus no cilvēkiem, kuri jau ir saņēmuši aizdevumu no dievbijīga vīrieša vārdā Gerijs Perijs, un tad es nolēmu pieteikties saskaņā ar viņu ieteikumiem, un tikai pirms dažām stundām es apstiprināju savā personīgajā bankas kontā kopējo pieprasīto summu. priekš. Šīs patiešām ir lieliskas ziņas, un es iesaku ikvienam, kam nepieciešams īsts aizdevums, pieteikties pa e-pastu (thompson.loanservice@gmail.com). Tagad esmu laimīgs, ka esmu saņēmis pieprasīto aizdevumu.
|
| CLAUDIA MöLLEKEN |
2023-08-24 00:28:05 |
|
Sveiki!
Es esmu Claudia Mölleken, es redzēju komentārus no cilvēkiem, kuri jau ir saņēmuši aizdevumu no dievbijīga vīrieša vārdā Gerijs Perijs, un tad es nolēmu pieteikties saskaņā ar viņu ieteikumiem, un tikai pirms dažām stundām es apstiprināju savā personīgajā bankas kontā kopējo pieprasīto summu. priekš. Šīs patiešām ir lieliskas ziņas, un es iesaku ikvienam, kam nepieciešams īsts aizdevums, pieteikties pa e-pastu (thompson.loanservice@gmail.com). Tagad esmu laimīgs, ka esmu saņēmis pieprasīto aizdevumu.
|
| WAGNER CLERK |
2023-08-20 07:54:12 |
|
Es vēlētos jūs visus ieteikt uzticamam un patiesam privātā aizdevuma aizdevējam, kurš apstiprināja manu aizdevumu tikai dažu stundu laikā pēc tik daudziem neveiksmīgiem mēģinājumiem saņemt aizdevumu, es biju pārsteigts un priecīgs, ka privātais aizdevējs mani izglāba un piedāvāja aizdevums ar 2% procentu likmi, sazinieties ar viņu tūlīt, ja jums ir nepieciešams steidzams aizdevums E-pasts: (christywalton355@gmail.com) vai whatsapp viņai +12522852093
|
| WAGNER CLERK |
2023-08-20 07:28:14 |
|
Es vēlētos jūs visus ieteikt uzticamam un patiesam privātā aizdevuma aizdevējam, kurš apstiprināja manu aizdevumu tikai dažu stundu laikā pēc tik daudziem neveiksmīgiem mēģinājumiem saņemt aizdevumu, es biju pārsteigts un priecīgs, ka privātais aizdevējs mani izglāba un piedāvāja aizdevums ar 2% procentu likmi, sazinieties ar viņu tūlīt, ja jums ir nepieciešams steidzams aizdevums E-pasts: (christywalton355@gmail.com) vai whatsapp viņai +12522852093
|
| DéKáNY |
2023-08-16 01:17:12 |
|
Mēs piedāvājam 2% aizdevumus, mēs piedāvājam parādu konsolidācijas aizdevumus, biznesa aizdevumus, privātpersonu aizdevumus, automašīnu aizdevumus, viesnīcu aizdevumus, studentu kredītus, privātos aizdevumus mājokļa refinansēšanas aizdevumiem, uzziniet vairāk E-pasts: (dakany.endre@gmail.com)
Steidzami aizdevuma piedāvājums.
|
| ELISABETH |
2023-08-15 00:07:35 |
|
Labdien! Laipni lūdzam TRUST FUND FINANCE GROUP,INC.
TRUST FUND FINANCE GROUP mēs piedāvājam visa veida aizdevumu pakalpojumus:
Vai jums ļoti nepieciešams finansiāls atbalsts? Vai jums ir nepieciešams aizdevums dažādiem mērķiem? ja jūsu atbilde ir jā, es ieteikšu sazināties ar manu uzņēmumu pa e-pastu: trustfundfinancegroup@gmail.com | vai nosūtiet īsziņu vietnē WhatsApp, izmantojot: +447477169213, un 24 stundu laikā kontā ir aizdevums, jo mēs sniedzam lieliskus aizdevuma pakalpojumus visā pasaulē.
Mēs piedāvājam visa veida aizdevuma pakalpojumus (personīgais aizdevums, biznesa aizdevums un daudz ko citu), piedāvājam gan ilgtermiņa, gan īstermiņa aizdevumus, kā arī jūs varat aizņemties līdz 15 miljoniem eiro/ASV DOLĀRU un izsniedzam aizdevumus par zemu cenu. procentu likme 3% gadā. Mans uzņēmums palīdzēs jums sasniegt dažādus mērķus ar plašu aizdevumu produktu klāstu.
Es atzīstu faktu, ka likumīga aizdevuma saņemšana vienmēr ir bijusi milzīga problēma Personām, kurām ir finansiālas problēmas un kurām ir nepieciešams to risinājums, daudziem cilvēkiem ir tik grūti saņemt akciju aizdevumu no vietējām bankām vai citām finanšu iestādēm, jo augsta procentu likme, nepietiekams nodrošinājums, parāda attiecība pret ienākumiem, zems kredītreitings vai kādi citi iemesli
Vairs nav gaidīšanas laika vai stresa banku apmeklējumu. Mūsu pakalpojums ir pieejams 24 stundas diennaktī - jūs varat saņemt aizdevumu un pabeigt darījumus jebkurā laikā un vietā
Mēs sniedzam 24 stundu pasaules klases aizdevuma pakalpojumus. Jautājumiem/jautājumiem? - Sūtīt e-pastu uz | trustfundfinancegroup@gmail.com | vai nosūtiet īsziņu vietnē WhatsApp pa: +447477169213 un nekavējoties saņemiet atbildi
Jūsu ģimenei, draugiem un kolēģiem nav jāzina, ka jums ir maz naudas, vienkārši rakstiet mums, un jūs saņemsiet aizdevumu.
Jūsu finansiālā brīvība ir jūsu rokās!
ar laba vēlējumiem,
Aizdevuma darbinieks,
Elizabete Saula.
e-pasts: trustfundfinancegroup@gmail.com
Tālr.: +447477169213
|
| DéKáNY |
2023-08-13 05:04:31 |
|
Mēs piedāvājam 2% aizdevumus, mēs piedāvājam parādu konsolidācijas aizdevumus, biznesa aizdevumus, privātpersonu aizdevumus, automašīnu aizdevumus, viesnīcu aizdevumus, studentu kredītus, privātos aizdevumus mājokļa refinansēšanas aizdevumiem, uzziniet vairāk E-pasts: (dakany.endre@gmail.com)
Steidzami aizdevuma piedāvājums.
|
| DAVID MULLER |
2023-08-09 03:26:12 |
|
Vai jums ir nepieciešams steidzams aizdevums, lai samaksātu rēķinus vai nodzēstu parādus, ja jā, varat sazināties ar aizdevuma uzņēmumu, kas jums palīdzēs
lai saņemtu aizdevumu, varat sazināties ar viņiem pa davidmullerloancompany@gmail.com vai izmantojot Whatsapp: +1 (513) 914-6128, lai saņemtu aizdevumu
|
| DAVID MULLER |
2023-08-04 02:24:57 |
|
Benötigen Sie dringend einen Kredit, um Ihre Rechnungen zu bezahlen oder Ihre Schulden zu begleichen? Wenn ja, können Sie sich an die Kreditgesellschaft wenden, die Ihnen helfen wird
Um Ihren Kredit zu erhalten, können Sie sie unter davidmullerloancompany@gmail.com oder über WhatsApp: +1(513)914-6128 kontaktieren, um Ihren Kredit zu erhalten
|
| HOPKINSON LANCE |
2023-07-31 13:41:46 |
|
Laba diena,
Piesakieties šeit visu veidu aizdevumiem, finansiālās palīdzības piedāvājumam un aizņēmumiem ar zemu procentu likmi 24 stundu laikā visiem, kam tas ir nepieciešams. Kontaktpersona:
E-pasts: hopkinsonloan@outlook.com
Whatsapp/Viber: +337 5314 7557
Vietne: https://hopkinsonloan.wixsite.com/hopkinsonloan/
Paldies.
|
| WAGNER CLERK |
2023-07-29 15:07:58 |
|
Es vēlētos jūs visus ieteikt uzticamam un patiesam privātā aizdevuma aizdevējam, kurš apstiprināja manu aizdevumu tikai dažu stundu laikā pēc tik daudziem neveiksmīgiem mēģinājumiem saņemt aizdevumu, es biju pārsteigts un priecīgs, ka privātais aizdevējs mani izglāba un piedāvāja aizdevums ar 2% procentu likmi, sazinieties ar viņu tagad, ja jums ir nepieciešams steidzams aizdevums E-pasts: christywalton355@gmail.com
|
| ENDRE |
2023-07-16 23:22:55 |
|
Vai jums ir nepieciešama jebkāda veida finansiāla palīdzība? Aizdevumi privātpersonām? Uzņēmējdarbības aizdevumi? Hipotekārie kredīti? Uzņēmuma aizdevumi? Lauksaimniecības un projektu finansējums? Izsniedzam aizdevumus ar 2% procentu likmi! Sazināties: (dakany.endre@gmail.com)
Steidzami aizdevuma piedāvājums.
|
| WAGNER CLERK |
2023-07-16 19:48:23 |
|
Es vēlētos jūs visus ieteikt uzticamam un patiesam privātā aizdevuma aizdevējam, kurš apstiprināja manu aizdevumu tikai dažu stundu laikā pēc tik daudziem neveiksmīgiem mēģinājumiem saņemt aizdevumu, es biju pārsteigts un priecīgs, ka privātais aizdevējs mani izglāba un piedāvāja aizdevums ar 2% procentu likmi, sazinieties ar viņu tagad, ja jums ir nepieciešams steidzams aizdevums E-pasts: christywalton355@gmail.com
|
| ENDRE |
2023-07-08 17:18:29 |
|
Vai jums ir nepieciešams ātrais kredīts?
Laipni lūdzam visus! Mūsu aizdevuma kapacitāte svārstās no 2 000 līdz 100 000 000 eiro ar saprātīgu procentu likmi 2%, ar ļoti vienkāršiem un bezproblēmu noteikumiem. Ja esam radījuši jūsu interesi, lūdzu, atstājiet savu ziņojumu pa e-pastu: dakany.endre@gmail.com
|
| ENDRE |
2023-07-08 01:37:59 |
|
Vai jums ir nepieciešams parādu dzēšanas aizdevums, lai nomaksātu rēķinus? Vai vēlaties šodien kontrolēt savu parādu? Uzņēmējdarbības aizdevuma pagarināšanas piedāvājums tagad? Vai jums ir nepieciešams aizdevums, lai nomaksātu rēķinu? Vai jums ir nepieciešams aizdevums? Vai jums ir nepieciešams personīgais aizdevums? Kredīts biznesa paplašināšanai? Uzņēmējdarbības uzsākšana, izglītība, parādu konsolidācija Kredīts par bargu naudu Kredīts jebkam? Mēs piedāvājam aizdevumu bez kredīta pārbaudes ar zemu procentu likmi 2% no aizdevuma, E-pasts: (dakany.endre@gmail.com)
Steidzami aizdevuma piedāvājums.
|
| LABAS ZIŅAS |
2023-07-02 16:19:00 |
|
LABAS ZIŅAS; Vai meklējat finansiālu palīdzību? Vai jums ir nepieciešams steidzams aizdevums, lai nomaksātu rēķinus vai parādus? Lai kāds būtu aizdevums, sazinieties ar mums šodien pa e-pastu: leonardo.credit532@gmail.com vai Whatsapp: +8616643559778.
|
| LABAS ZIŅAS |
2023-07-02 16:18:29 |
|
LABAS ZIŅAS; Vai meklējat finansiālu palīdzību? Vai jums ir nepieciešams steidzams aizdevums, lai nomaksātu rēķinus vai parādus? Lai kāds būtu aizdevums, sazinieties ar mums šodien pa e-pastu: leonardo.credit532@gmail.com vai Whatsapp: +8616643559778.
|
| SUSAN BENSON |
2023-06-28 03:10:56 |
|
Sveiki, dāmas un kungi, vai jums ir nepieciešams aizdevums?
Es esmu Sjūzena Bensone. Esmu aizdevējs un arī finanšu konsultants.
Ja jums ir nepieciešams uzticams un uzticams uzņēmums, lai saņemtu aizdevumu sava projekta, biznesa finansēšanai, kredītu mājas vai automašīnas iegādei utt., meklējiet Sunshine Financial Group Inc. Mēs piedāvājam visa veida aizdevumu pakalpojumus. , gan nodrošināts, gan nenodrošināts aizdevums, ilgtermiņa un īstermiņa aizdevums un daudzi citi par subsidētu procentu likmi 3% gadā. Lai iegūtu vairāk informācijas, rakstiet mums pa e-pastu: (sunshinefinancialgroupinc@gmail.com) vai rakstiet man tieši uz WhatsApp, izmantojot: +447360502110 un saņemiet atbildi vienā mirklī.
Mēs esam visaptverošs finanšu pakalpojumu uzņēmums, un mēs esam apņēmušies palīdzēt jums īstenot visas jūsu vēlmes. Mēs specializējamies strukturētu finanšu risinājumu nodrošināšanā privātpersonām un uzņēmumiem visefektīvākajā un ātrākajā veidā.
Es atzīstu faktu, ka likumīga aizdevuma saņemšana vienmēr ir bijusi milzīga problēma Personām, kurām ir finansiālas problēmas un kurām ir nepieciešams to risinājums, daudziem cilvēkiem ir tik grūti saņemt kapitāla aizdevumu no vietējām bankām vai citām finanšu iestādēm, jo augsta procentu likme, nepietiekams nodrošinājums, parāda attiecība pret ienākumiem, zems kredītreitings vai kādi citi iemesli
Vairs nav gaidīšanas laika vai stresa banku apmeklējumu. Mūsu pakalpojums ir pieejams 24 stundas diennaktī - jūs varat saņemt aizdevumu un pabeigt darījumus jebkurā laikā un vietā
Mēs sniedzam 24 stundu pasaules klases aizdevuma pakalpojumus. Jautājumiem/jautājumiem? - Sūtīt e-pastu uz | sunshinefinancialgroupinc@gmail.com | vai rakstiet mums WhatsApp: +447360502110 | & Saņemiet atbildi nekavējoties
|
| ENDRE |
2023-06-26 13:21:00 |
|
Sveiki,
Mēs esam sertificēti, lai piedāvātu šādus aizdevumu veidus vai jebkāda veida finansējumu: Privātais aizdevums? Uzņēmējdarbības aizdevumi? Parādu konsolidācijas aizdevums? Uzlabot savu māju? Investīciju kredīts? Pieejami kredīti? Aizdevumi privātpersonām? Komerciālie kredīti? Apvienotais kredīts? Konsolidācijas aizdevumi? Ja jūs interesē, sazinieties ar mums: (dakany.endre@gmail.com)
Steidzami aizdevuma piedāvājums.
|
| RICHARD |
2023-06-25 22:46:48 |
|
Vai jums ir nepieciešams aizdevums? privātie aizdevumi? biznesa aizdevumi? hipotekārais kredīts? Lauksaimniecības un projektu finansēšana, ĀTRAIS KREDĪTS. Vai jums ir nepieciešams aizdevums, lai nomaksātu parādus, samaksātu rēķinus vai uzsāktu skaistu biznesu? ? Izsniedzam visa veida kredītus ar 2% procentiem! Saziņas e-pasts: (richardcosmos5@gmail.com)
Steidzami aizdevuma piedāvājums.
|
| RICHARD |
2023-06-25 22:46:31 |
|
Vai jums ir nepieciešams aizdevums? privātie aizdevumi? biznesa aizdevumi? hipotekārais kredīts? Lauksaimniecības un projektu finansēšana, ĀTRAIS KREDĪTS. Vai jums ir nepieciešams aizdevums, lai nomaksātu parādus, samaksātu rēķinus vai uzsāktu skaistu biznesu? ? Izsniedzam visa veida kredītus ar 2% procentiem! Saziņas e-pasts: (richardcosmos5@gmail.com)
Steidzami aizdevuma piedāvājums.
|
| ENDRE |
2023-06-15 10:01:54 |
|
Mēs piedāvājam dažādus aizdevumus privātpersonām (personas aizdevums) un sadarbības organizācijām ar procentu likmi 2% gadā. Tas ir paredzēts, lai palīdzētu jums izpildīt savas finansiālās saistības, jo īpaši saistībā ar notiekošo pasaules finanšu krīzi. Jūs varat aizņemties no 1 000 līdz 500 000 000 (mārciņas, eiro vai dolāri). Lai iegūtu papildu informāciju, lūdzu, sazinieties ar mums pa e-pastu (dakany.endre@gmail.com) Ar cieņu.
Aizdevuma piedāvājums
|
| ENDRE |
2023-06-15 03:27:37 |
|
Vai jūs meklējat biznesa aizdevumu, personīgos aizdevumus, hipotēkas, automašīnu aizdevumus, studentu aizdevumus, parādu konsolidācijas aizdevumus, nenodrošinātus aizdevumus, riska kapitālu ar zemu procentu likmi un pieejamu procentu likmi 2%. Atbildiet mums pa e-pastu: (dakany.endre@gmail.com) Ar cieņu.
Steidzami aizdevuma piedāvājums.
|
| ENDRE |
2023-06-15 03:13:06 |
|
Nepieciešams kredīts parāda atmaksai, lai nomaksātu rēķinus? Vai šodien kontrolējat savu parādu? Uzņēmējdarbības aizdevuma pagarināšanas piedāvājums tagad? Vai jums ir nepieciešams aizdevums, lai atmaksātu kontu? Vai jums ir nepieciešams aizdevums? Vai jums ir nepieciešams personīgais aizdevums? Aizdevums biznesa paplašināšanai? Uzņēmējdarbības uzsākšana, izglītība, parādu konsolidācija Kredīts par bargu naudu Kredīts jebkurai lietai? Mēs piedāvājam aizdevumu ar zemu procentu likmi 2% no aizdevuma bez kredīta pārbaudes, e-pasts: (dakany.endre@gmail.com)
Steidzami aizdevuma piedāvājums.
|
| ENDRE |
2023-06-15 03:12:37 |
|
Nepieciešams kredīts parāda atmaksai, lai nomaksātu rēķinus? Vai šodien kontrolējat savu parādu? Uzņēmējdarbības aizdevuma pagarināšanas piedāvājums tagad? Vai jums ir nepieciešams aizdevums, lai atmaksātu kontu? Vai jums ir nepieciešams aizdevums? Vai jums ir nepieciešams personīgais aizdevums? Aizdevums biznesa paplašināšanai? Uzņēmējdarbības uzsākšana, izglītība, parādu konsolidācija Kredīts par bargu naudu Kredīts jebkurai lietai? Mēs piedāvājam aizdevumu ar zemu procentu likmi 2% no aizdevuma bez kredīta pārbaudes, e-pasts: (dakany.endre@gmail.com)
Steidzami aizdevuma piedāvājums.
|
| SAņEMIET STEIDZAMU A |
2023-06-05 13:41:34 |
|
LUISA ANDERSONA FINANŠU AIZDEVUMA PIEDĀVĀJUMS 2023. GADĀ
Saņemiet steidzamu aizdevumu šodien 48 stundu laikā bez ķīlas
Aizņemieties līdz USD 50 000 – 1 000 000,00 un vairāk bez ķīlas, veicot dažas vienkāršas darbības 48 stundu laikā.
Labdien, kungs/kundze
Auto aizdevumi
Hipotekārie kredīti
Biznesa aizdevumi
Aizdevumi privātpersonām
Nekustamā īpašuma aizdevums
Studenta aizņēmums
Mājas aizdevums.
Lai iegūtu vairāk informācijas, lūdzu, sazinieties ar mums, e-pasts:
louisandersonfinance@gmail.com
Vietne: www.louisandersonfinance.com
Galvenā biroja adrese: 1100 New York Ave NW, Vašingtona, DC 20005, ASV
Aizdevuma aģents: Louis Anderson Finance
Paldies.
|
| SUSAN BENSON |
2023-06-01 03:11:50 |
|
Sveiki, dāmas un kungi! Vai jums ir nepieciešama finansiāla palīdzība? Es esmu Sjūzena Bensone. Esmu aizdevējs un arī finanšu konsultants.
Vai jums ir nepieciešams biznesa aizdevums, personīgais aizdevums, hipotēkas aizdevums vai aizdevums, lai pabeigtu savu projektu? Ja jūsu atbilde ir jā, es iesaku sazināties ar manu uzņēmumu. Mēs sniedzam visa veida aizdevumu pakalpojumus, tostarp ilgtermiņa un īstermiņa aizdevumus, nodrošinātus un nenodrošinātus aizdevumus un daudz ko citu. Lai iegūtu papildinformāciju, rakstiet mums pa e-pastu: (sunshinefinancialgroupinc@gmail.com) vai rakstiet man tieši uz WhatsApp, izmantojot: +447360502110, un saņemiet atbildi vienā mirklī.
Aizdevums no reāla un kompetenta uzņēmuma ir tas, kas jums nepieciešams, lai sasniegtu savu mērķi. Mēs esam visaptverošs finanšu pakalpojumu uzņēmums un esam apņēmušies palīdzēt jums īstenot visas jūsu vēlmes. Mēs specializējamies strukturētu finanšu risinājumu nodrošināšanā privātpersonām un uzņēmumiem visefektīvākajā un ātrākajā veidā.
* Jūs varat pieteikties aizdevumam jebkurā laikā un vietā.
* Elastīga summa – Jūs izlemjat, cik daudz vēlaties aizņemties.
* Ātrs tiešais finansējums — saņemiet aizdevumu 24 stundu laikā pēc apstiprināšanas.
* Elastīga procentu likme 3%.
* Augsti apstiprināšanas rādītāji
* Elastīga atmaksa — jums ir jāizvēlas atmaksas datums — katru nedēļu, mēnesi vai gadu 1–30 gadu garumā.
* Vienkārša tiešsaistes lietojumprogramma.
* Personalizētas konsultācijas un zināšanas.
* Nav slēptu maksu
Nepalaidiet garām iespēju finanšu trūkuma dēļ. Sazinieties ar manu uzņēmumu tagad, mēs varam jums palīdzēt ar aizdevumu, jo esam palīdzējuši daudzām personām un organizācijām, kuras visā pasaulē ir saskārušās ar finansiālām grūtībām
Lai iegūtu papildinformāciju par mūsu aizdevuma piedāvājumu, lūdzu, nosūtiet mums savu aizdevuma pieprasījumu caur
E-pasts: (sunshinefinancialgroupinc@gmail.com)
WhatsApp: +447360502110
Starpnieki / konsultanti / brokeri ir laipni aicināti piesaistīt savus klientus un ir 100% aizsargāti. Pilnīgā pārliecībā mēs strādāsim kopā visu iesaistīto pušu labā.
|
| MRS MARY JOHNSON |
2023-05-19 02:37:35 |
|
Sveiki! Šī ir laimīgā Benson LOAN COMPANY. Šajā uzņēmumā mēs sniedzam aizdevumus uz mūžu. Vai jums ir nepieciešams steidzams aizdevums, lai nodzēstu savus parādus, vai arī jums ir nepieciešams kapitāla aizdevums, lai uzlabotu savu biznesu? Vai jūs ir noraidījušas bankas un citas finanšu aģentūras? Vai jums ir nepieciešams konsolidācijas aizdevums vai hipotēkas aizdevums? Šodien mēs sakām, apstājieties un neskatieties tālāk, jo esam šeit, lai visas jūsu finansiālās problēmas padarītu par pagātni. Mēs aizdodam naudu privātpersonām, kurām nepieciešama finansiāla palīdzība, kurām ir slikta kredītvēsture vai nepieciešama nauda, lai samaksātu rēķinus, lai ieguldītu biznesā par 2%. Mēs vēlamies izmantot šo mediju, lai informētu jūs par visu, ko piedāvājam uzticamu un noderīgu palīdzību, un jūs būsiet ar mieru jums aizdot. Mēs esam patiesi un turam savu vārdu un solījumus. Sazinieties ar mums šodien pa e-pastu:
luckybensonloanfirm@gmail.com
|
| GREISA LILLE |
2023-05-12 08:17:38 |
|
Labvakar jums tur, es vēlos paziņot šīs ziņas visiem, kas ir ieinteresēti saņemt aizdevumu, lūdzu, sazinieties ar mums, izmantojot Whatsapp vai e-pastu.
Vārdi: Greisa Lille
Pa e-pastu: gracelille322@gmail.com
Whatsapp: +49 163 9179558
|
| MRS MARY JOHNSON |
2023-05-12 07:16:55 |
|
Sveiki! Šī ir laimīgā Benson LOAN COMPANY. Šajā uzņēmumā mēs sniedzam aizdevumus uz mūžu. Vai jums ir nepieciešams steidzams aizdevums, lai nodzēstu savus parādus, vai arī jums ir nepieciešams kapitāla aizdevums, lai uzlabotu savu biznesu? Vai jūs ir noraidījušas bankas un citas finanšu aģentūras? Vai jums ir nepieciešams konsolidācijas aizdevums vai hipotēkas aizdevums? Šodien mēs sakām, apstājieties un neskatieties tālāk, jo esam šeit, lai visas jūsu finansiālās problēmas padarītu par pagātni. Mēs aizdodam naudu privātpersonām, kurām nepieciešama finansiāla palīdzība, kurām ir slikta kredītvēsture vai nepieciešama nauda, lai samaksātu rēķinus, lai ieguldītu biznesā par 2%. Mēs vēlamies izmantot šo mediju, lai informētu jūs par visu, ko piedāvājam uzticamu un noderīgu palīdzību, un jūs būsiet ar mieru jums aizdot. Mēs esam patiesi un turam savu vārdu un solījumus. Sazinieties ar mums šodien pa e-pastu:
luckybensonloanfirm@gmail.com
|
| MARIA |
2023-04-23 00:23:18 |
|
tikai pagājušajā nedēļā piektdien es saņēmu aizdevumu 15000 eiro no Steven Funds tiešsaistes aizdevuma uzņēmums, es izlasīju dažas liecības par viņiem un es nolēmu pieteikties, un man par lielāko pārsteigumu aizdevums tika apstiprināts un pārskaitīts uz manu kontu pagājušajā piektdienā. Sazinieties ar viņiem pa e-pastu. stevenfunds@outlook.com vai whatsapp +2347043593434 jebkura veida aizdevumam
|
| RICHARD |
2023-04-07 08:43:35 |
|
Vai jums ir nepieciešams aizdevums? privātie aizdevumi? biznesa aizdevumi? hipotekārie kredīti? lauksaimniecības un projektu finansējumu? izsniedzam visa veida kredītus ar 2% procentu likmi! E-pasts saziņai; (richardcosmos5@gmail.com)
Aizdevuma piedāvājums.
|
| RICHARDCOSMOS5@GMAIL |
2023-04-07 08:42:58 |
|
Vai jums ir nepieciešams aizdevums? privātie aizdevumi? biznesa aizdevumi? hipotekārie kredīti? lauksaimniecības un projektu finansējumu? izsniedzam visa veida kredītus ar 2% procentu likmi! E-pasts saziņai; (richardcosmos5@gmail.com)
Aizdevuma piedāvājums.
|
| IYUO |
2023-03-26 11:00:57 |
|
Loan Offer Apply Now @ Via Email: IFSCapitalloan@gmail.com ( IFSCapital@post.com )
Do You Need A Loan To Consolidate Your Debt At 1%? RMPCapitals@gmail.com ( RMPCapitals@usa.com ) Or A Personal Loans * Business Loans etc. Interested Parties Should Contact Us For More Information Via Email: SuiteCapitals@gmail.com ( SuiteCapitals@post.com )
Loan Offer Apply Now @ Via Email: CYSCredits@asia.com ( CYSCredits@post.com )
Do You Need A Loan To Consolidate Your Debt At 1%? CYSCredits@post.com ( CYSCredits@asia.com ) Or A Personal Loans * Business Loans etc. Interested Parties Should Contact Us For More Information Via Email: ValidusCapital@techie.com
( ValidusCapital@execs.com )
|
| IYUO |
2023-03-26 11:00:56 |
|
Loan Offer Apply Now @ Via Email: IFSCapitalloan@gmail.com ( IFSCapital@post.com )
Do You Need A Loan To Consolidate Your Debt At 1%? RMPCapitals@gmail.com ( RMPCapitals@usa.com ) Or A Personal Loans * Business Loans etc. Interested Parties Should Contact Us For More Information Via Email: SuiteCapitals@gmail.com ( SuiteCapitals@post.com )
Loan Offer Apply Now @ Via Email: CYSCredits@asia.com ( CYSCredits@post.com )
Do You Need A Loan To Consolidate Your Debt At 1%? CYSCredits@post.com ( CYSCredits@asia.com ) Or A Personal Loans * Business Loans etc. Interested Parties Should Contact Us For More Information Via Email: ValidusCapital@techie.com
( ValidusCapital@execs.com )
|
| IYUO |
2023-03-20 09:03:35 |
|
Loan Offer Apply Now @ Via Email: IFSCapitalloan@gmail.com ( IFSCapitalloan@gmail.com )
Are You A Business Man Or Woman? Are You In Any Financial Mess Or Do You Need Funds To Start Up Your Own Business? If Yes Contact Us Via Email: RMPCapitals@Gmail.com ( RMPCapitals@Usa.com )
Do You Need A Loan To Start A Nice Small Scale And Medium Business? Do You Have A Low Credit Score And You Are Finding It Hard To Obtain Capital Loan From Local Banks And Other Financial Institutes? Interested Applicants Should Contact Us Via Email: SuiteCapitals@Gmail.com ( SuiteCapitals@Post.com )
Our Loans Are Well Insured For Maximum Security Is Our Priority, Our Leading Goal Is To Help You Get The Services You Deserve, Our Program Is The Quickest Way To Get What You Need In A Snap. Reduce Your Payments To Ease The Strain On Your Monthly Expenses. Gain Flexibility With Which You Can Use For Any Purpose From Vacations To Education To Unique Purchases. Interested Applicants Should Contact Us Via Email: CYSCredits@Post.com ( CYSCredits@Asia.com )
We Offer A Wide Range Of Financial Services Which Includes: Business Planning, Commercial and Development Finance, Properties and Mortgages, Debt Consolidation Loans, Business Loans, Private Loans, Home Refinancing Loans With Low Interest Rate @1.00% Per Annul For Individuals, Companies and Corporate Bodies. Get The Best For Your Family And Own Your Dream Home As Well With Our General Loan Scheme. Interested Applicants Should Contact Us Via Email: ValidusCapital@Execs.com ( ValidusCapital@Techie.com )
CYSCredits@Asia.com OFFER ALL KIND OF LOANS - APPLY FOR AFFORDABLE LOANS ( CYSCredits@Post.com )
|
| IYUO |
2023-03-20 09:03:35 |
|
Loan Offer Apply Now @ Via Email: IFSCapitalloan@gmail.com ( IFSCapitalloan@gmail.com )
Are You A Business Man Or Woman? Are You In Any Financial Mess Or Do You Need Funds To Start Up Your Own Business? If Yes Contact Us Via Email: RMPCapitals@Gmail.com ( RMPCapitals@Usa.com )
Do You Need A Loan To Start A Nice Small Scale And Medium Business? Do You Have A Low Credit Score And You Are Finding It Hard To Obtain Capital Loan From Local Banks And Other Financial Institutes? Interested Applicants Should Contact Us Via Email: SuiteCapitals@Gmail.com ( SuiteCapitals@Post.com )
Our Loans Are Well Insured For Maximum Security Is Our Priority, Our Leading Goal Is To Help You Get The Services You Deserve, Our Program Is The Quickest Way To Get What You Need In A Snap. Reduce Your Payments To Ease The Strain On Your Monthly Expenses. Gain Flexibility With Which You Can Use For Any Purpose From Vacations To Education To Unique Purchases. Interested Applicants Should Contact Us Via Email: CYSCredits@Post.com ( CYSCredits@Asia.com )
We Offer A Wide Range Of Financial Services Which Includes: Business Planning, Commercial and Development Finance, Properties and Mortgages, Debt Consolidation Loans, Business Loans, Private Loans, Home Refinancing Loans With Low Interest Rate @1.00% Per Annul For Individuals, Companies and Corporate Bodies. Get The Best For Your Family And Own Your Dream Home As Well With Our General Loan Scheme. Interested Applicants Should Contact Us Via Email: ValidusCapital@Execs.com ( ValidusCapital@Techie.com )
CYSCredits@Asia.com OFFER ALL KIND OF LOANS - APPLY FOR AFFORDABLE LOANS ( CYSCredits@Post.com )
|
| IYUO |
2023-03-20 09:03:35 |
|
Loan Offer Apply Now @ Via Email: IFSCapitalloan@gmail.com ( IFSCapitalloan@gmail.com )
Are You A Business Man Or Woman? Are You In Any Financial Mess Or Do You Need Funds To Start Up Your Own Business? If Yes Contact Us Via Email: RMPCapitals@Gmail.com ( RMPCapitals@Usa.com )
Do You Need A Loan To Start A Nice Small Scale And Medium Business? Do You Have A Low Credit Score And You Are Finding It Hard To Obtain Capital Loan From Local Banks And Other Financial Institutes? Interested Applicants Should Contact Us Via Email: SuiteCapitals@Gmail.com ( SuiteCapitals@Post.com )
Our Loans Are Well Insured For Maximum Security Is Our Priority, Our Leading Goal Is To Help You Get The Services You Deserve, Our Program Is The Quickest Way To Get What You Need In A Snap. Reduce Your Payments To Ease The Strain On Your Monthly Expenses. Gain Flexibility With Which You Can Use For Any Purpose From Vacations To Education To Unique Purchases. Interested Applicants Should Contact Us Via Email: CYSCredits@Post.com ( CYSCredits@Asia.com )
We Offer A Wide Range Of Financial Services Which Includes: Business Planning, Commercial and Development Finance, Properties and Mortgages, Debt Consolidation Loans, Business Loans, Private Loans, Home Refinancing Loans With Low Interest Rate @1.00% Per Annul For Individuals, Companies and Corporate Bodies. Get The Best For Your Family And Own Your Dream Home As Well With Our General Loan Scheme. Interested Applicants Should Contact Us Via Email: ValidusCapital@Execs.com ( ValidusCapital@Techie.com )
CYSCredits@Asia.com OFFER ALL KIND OF LOANS - APPLY FOR AFFORDABLE LOANS ( CYSCredits@Post.com )
|
| IYUO |
2023-03-20 09:03:34 |
|
Loan Offer Apply Now @ Via Email: IFSCapitalloan@gmail.com ( IFSCapitalloan@gmail.com )
Are You A Business Man Or Woman? Are You In Any Financial Mess Or Do You Need Funds To Start Up Your Own Business? If Yes Contact Us Via Email: RMPCapitals@Gmail.com ( RMPCapitals@Usa.com )
Do You Need A Loan To Start A Nice Small Scale And Medium Business? Do You Have A Low Credit Score And You Are Finding It Hard To Obtain Capital Loan From Local Banks And Other Financial Institutes? Interested Applicants Should Contact Us Via Email: SuiteCapitals@Gmail.com ( SuiteCapitals@Post.com )
Our Loans Are Well Insured For Maximum Security Is Our Priority, Our Leading Goal Is To Help You Get The Services You Deserve, Our Program Is The Quickest Way To Get What You Need In A Snap. Reduce Your Payments To Ease The Strain On Your Monthly Expenses. Gain Flexibility With Which You Can Use For Any Purpose From Vacations To Education To Unique Purchases. Interested Applicants Should Contact Us Via Email: CYSCredits@Post.com ( CYSCredits@Asia.com )
We Offer A Wide Range Of Financial Services Which Includes: Business Planning, Commercial and Development Finance, Properties and Mortgages, Debt Consolidation Loans, Business Loans, Private Loans, Home Refinancing Loans With Low Interest Rate @1.00% Per Annul For Individuals, Companies and Corporate Bodies. Get The Best For Your Family And Own Your Dream Home As Well With Our General Loan Scheme. Interested Applicants Should Contact Us Via Email: ValidusCapital@Execs.com ( ValidusCapital@Techie.com )
CYSCredits@Asia.com OFFER ALL KIND OF LOANS - APPLY FOR AFFORDABLE LOANS ( CYSCredits@Post.com )
|
| IYUO |
2023-03-20 09:03:34 |
|
Loan Offer Apply Now @ Via Email: IFSCapitalloan@gmail.com ( IFSCapitalloan@gmail.com )
Are You A Business Man Or Woman? Are You In Any Financial Mess Or Do You Need Funds To Start Up Your Own Business? If Yes Contact Us Via Email: RMPCapitals@Gmail.com ( RMPCapitals@Usa.com )
Do You Need A Loan To Start A Nice Small Scale And Medium Business? Do You Have A Low Credit Score And You Are Finding It Hard To Obtain Capital Loan From Local Banks And Other Financial Institutes? Interested Applicants Should Contact Us Via Email: SuiteCapitals@Gmail.com ( SuiteCapitals@Post.com )
Our Loans Are Well Insured For Maximum Security Is Our Priority, Our Leading Goal Is To Help You Get The Services You Deserve, Our Program Is The Quickest Way To Get What You Need In A Snap. Reduce Your Payments To Ease The Strain On Your Monthly Expenses. Gain Flexibility With Which You Can Use For Any Purpose From Vacations To Education To Unique Purchases. Interested Applicants Should Contact Us Via Email: CYSCredits@Post.com ( CYSCredits@Asia.com )
We Offer A Wide Range Of Financial Services Which Includes: Business Planning, Commercial and Development Finance, Properties and Mortgages, Debt Consolidation Loans, Business Loans, Private Loans, Home Refinancing Loans With Low Interest Rate @1.00% Per Annul For Individuals, Companies and Corporate Bodies. Get The Best For Your Family And Own Your Dream Home As Well With Our General Loan Scheme. Interested Applicants Should Contact Us Via Email: ValidusCapital@Execs.com ( ValidusCapital@Techie.com )
CYSCredits@Asia.com OFFER ALL KIND OF LOANS - APPLY FOR AFFORDABLE LOANS ( CYSCredits@Post.com )
|
| IYUO |
2023-03-20 09:03:34 |
|
Loan Offer Apply Now @ Via Email: IFSCapitalloan@gmail.com ( IFSCapitalloan@gmail.com )
Are You A Business Man Or Woman? Are You In Any Financial Mess Or Do You Need Funds To Start Up Your Own Business? If Yes Contact Us Via Email: RMPCapitals@Gmail.com ( RMPCapitals@Usa.com )
Do You Need A Loan To Start A Nice Small Scale And Medium Business? Do You Have A Low Credit Score And You Are Finding It Hard To Obtain Capital Loan From Local Banks And Other Financial Institutes? Interested Applicants Should Contact Us Via Email: SuiteCapitals@Gmail.com ( SuiteCapitals@Post.com )
Our Loans Are Well Insured For Maximum Security Is Our Priority, Our Leading Goal Is To Help You Get The Services You Deserve, Our Program Is The Quickest Way To Get What You Need In A Snap. Reduce Your Payments To Ease The Strain On Your Monthly Expenses. Gain Flexibility With Which You Can Use For Any Purpose From Vacations To Education To Unique Purchases. Interested Applicants Should Contact Us Via Email: CYSCredits@Post.com ( CYSCredits@Asia.com )
We Offer A Wide Range Of Financial Services Which Includes: Business Planning, Commercial and Development Finance, Properties and Mortgages, Debt Consolidation Loans, Business Loans, Private Loans, Home Refinancing Loans With Low Interest Rate @1.00% Per Annul For Individuals, Companies and Corporate Bodies. Get The Best For Your Family And Own Your Dream Home As Well With Our General Loan Scheme. Interested Applicants Should Contact Us Via Email: ValidusCapital@Execs.com ( ValidusCapital@Techie.com )
CYSCredits@Asia.com OFFER ALL KIND OF LOANS - APPLY FOR AFFORDABLE LOANS ( CYSCredits@Post.com )
|
| IYUO |
2023-03-18 18:38:26 |
|
IFSCapitalloan@Gmail.com OFFER ALL KIND OF LOANS - APPLY FOR AFFORDABLE LOANS ( IFSCapital@Post.com )
Are You A Business Man Or Woman? Are You In Any Financial Mess Or Do You Need Funds To Start Up Your Own Business? If Yes Contact Us Via Email: RMPCapitals@Gmail.com ( RMPCapitals@Usa.com )
Do You Need A Loan To Start A Nice Small Scale And Medium Business? Do You Have A Low Credit Score And You Are Finding It Hard To Obtain Capital Loan From Local Banks And Other Financial Institutes? Interested Applicants Should Contact Us Via Email: SuiteCapitals@Gmail.com ( SuiteCapitals@Post.com )
Our Loans Are Well Insured For Maximum Security Is Our Priority, Our Leading Goal Is To Help You Get The Services You Deserve, Our Program Is The Quickest Way To Get What You Need In A Snap. Reduce Your Payments To Ease The Strain On Your Monthly Expenses. Gain Flexibility With Which You Can Use For Any Purpose From Vacations To Education To Unique Purchases. Interested Applicants Should Contact Us Via Email: CYSCredits@Post.com ( CYSCredits@Asia.com )
We Offer A Wide Range Of Financial Services Which Includes: Business Planning, Commercial and Development Finance, Properties and Mortgages, Debt Consolidation Loans, Business Loans, Private Loans, Home Refinancing Loans With Low Interest Rate @1.00% Per Annul For Individuals, Companies and Corporate Bodies. Get The Best For Your Family And Own Your Dream Home As Well With Our General Loan Scheme. Interested Applicants Should Contact Us Via Email: ValidusCapital@Execs.com ( ValidusCapital@Techie.com )
CYSCredits@Asia.com OFFER ALL KIND OF LOANS - APPLY FOR AFFORDABLE LOANS ( CYSCredits@Post.com )
|
| TOM COOK |
2023-03-09 19:54:06 |
|
Vai jums ir nepieciešama finansiāla palīdzība?? Nemeklējiet vairs, jo mēs esam šeit, lai visas jūsu finansiālās problēmas kļūtu par pagātni. Mēs izsniedzam aizdevumus uzņēmumiem un privātpersonām, kam nepieciešama finansiāla palīdzība, kuriem ir slikta kredītvēsture vai kuriem ir vajadzīga nauda, lai samaksātu rēķinus vai ieguldītu uzņēmējdarbībā.
Piesakies jau tagad visu veidu aizdevumiem un saņemiet to steidzami!
* Tikšanās aizdevuma summa, sākot no 1000,00 USD līdz 10 000 000,00 USD
* Procentu likme ir 2%
* Izvēlieties atmaksas periodu no 1 līdz 30 gadiem.
* Izvēlieties ikmēneša vai gada atmaksas plānu.
* Aizdevuma elastības noteikumi.
Visi šie plāni un citi, lūdzu, sazinieties ar mums.
Saziņas e-pasts: tomcookusa1@gmail.com
|
| JURGEN STEFAN |
2023-03-09 11:54:18 |
|
Godātais kungs/kundze!
Mēs piedāvājam privātos aizdevumus, komerciālos un personīgos aizdevumus ar procentu likmēm līdz 3%, 1 līdz 5 gadu laikā atgriežas jebkurā pasaules daļā, mūsu aizdevumi ir labi apdrošināti, lai nodrošinātu maksimālu drošību. Kandidātiem lūdzam sazināties ar mums, lai iegūtu plašāku informāciju, izmantojot šo e-pastu jurgenstefanfinancialservice@gmail.com whatsapp https://wa.me/+919654763221
|
| WAHEED FINANšU FIRMA |
2023-03-06 09:41:34 |
|
Do you need financing?
Do you need a loan for business or personal needs?
We give loans at 3% interest rate for personal, business and investment
funding.
We offer all types of loans to individuals or companies regardless of
your present credit score. For further information, please do not
hesitate to contact us today if you are seriously interested in our
offer.
info@waheedfinance.com
WhatsApp: +91 636 671 0014
Regards
Waheed Finance Firm
|
| LMP |
2023-03-06 02:22:08 |
|
Loan Offer Apply Now @ Via Email: IFSCapitalloan@gmail.com
( IFSCapitalloan@gmail.com ) OFFER ALL KIND OF LOANS - APPLY FOR AFFORDABLE LOANS ( IFSCapital@post.com )
Do You Need A Loan To Consolidate Your Debt At 1%? RMPCapitals@gmail.com ( RMPCapitals@usa.com ) Or A Personal Loans * Business Loans etc. Interested Parties Should Contact Us For More Information Via Email: ( SuiteCapitals@gmail.com ) SuiteCapitals@post.com
Please Fill the Application Form Below: -
Complete Name: -
Loan amount needed: -
Loan Duration: -
Purpose of loan: -
City / Country: -
Telephone: -
Name Of The Site You/Link Hear About Us:
Do You Need A Loan To Consolidate Your Debt At 1%? CYSCredits@Post.com ( CYSCredits@Asia.com ) Or A Personal Loans * Business Loans etc. Interested Parties Should Contact Us For More Information Via Email: ( ValidusCapital@execs.com ) ValidusCapital@techie.com
( CYSCredits@Asia.com ) OFFER ALL KIND OF LOANS - APPLY FOR AFFORDABLE LOANS ( CYSCredits@Post.com )
|
| SKY FINANCE |
2023-03-01 22:58:39 |
|
SKY FINANCE AIZDEVUMA PIEDĀVĀJUMS 2023. GADAM
Saņemiet steidzamu aizdevumu šodien 48 stundu laikā
Aizņemieties līdz USD 50 000 – 1 000 000.00 un vairāk bez ķīlas, veicot dažas vienkāršas darbības 48 stundu laikā.
Labdien, kungs/kundze
Auto aizdevumi
Hipotekārie kredīti
Biznesa aizdevumi
Aizdevumi privātpersonām
Nekustamā īpašuma aizdevums
Studenta aizņēmums
Mājas aizdevums.
Lai iegūtu vairāk informācijas, lūdzu, sazinieties ar mums, e-pasts: skyfinanceusa@gmail.com
Vietne: www.skyfinancial.com
Galvenā biroja adrese: 1100 New York Ave NW, Vašingtona, DC 20005, ASV
Aizdevuma aģents: Sky Finance
Paldies.
|
| FLORA SCOTT |
2023-02-24 02:54:34 |
|
Sveiki, dārgie cilvēki!
Mani sauc Keita Vilsona kundze. Mana ģimene ir ļoti laimīga, jo man bija iespēja saņemt vienkāršu aizdevumu 60 000 dolāru apmērā no labdarības aizdevuma firmas Flora Scott Loan Firm, mana māsa mani novirzīja uz Flora Scott Loan Firm, kad es biju man bija nepieciešams aizdevums 60 000 USD nieres transplantācijas operācijai manam mazajam dēlam Luisam, tad nolēmu pieteikties aizdevumam Flora Scott aizdevumu firmā, man par lielāko pārsteigumu mans aizdevums tika apstiprināts un piešķirts bez jebkāda veida kredīta atskaite, bez nodrošinājuma, bez kavēšanās un tikai ar 2% procentiem.
Es ieteikšu ikvienam, kam nepieciešama finansiāla palīdzība, sazināties ar Flora Scott Loan Firm, lai iegūtu plašāku informāciju par šo darījumu. Šeit ir viņu e-pasta adrese (flora_scott@outlook.com), un kādam, lūdzu, jāpateicas Flora Scott Loan Firm par mani.
Paldies
Flora Skotas kundze
|
| YXG |
2023-02-15 02:46:10 |
|
Sveiki, visi, mani sauc viesmīle Morisona kundze. Es dzīvoju Apvienotajā Karalistē, Londonā, Liverpūlē un šodien esmu laimīga sieviete? un es sev teicu, ka jebkurš aizdevējs, kas var izglābt manu ģimeni no mūsu sliktā stāvokļa, es nosūtīšu uzņēmumam jebkuru personu, kas meklē aizdevumu. Viss paldies jāsaka New World Finance Services Atbildīgais vīrietis sniedza man laimi man un manai ģimenei, man bija vajadzīgs aizdevums 300 000,00 mārciņu apmērā, lai sāktu savu dzīvi no jauna, jo esmu vientuļā māte ar 2 bērniem, es to satiku. godīgs un DIEVA baidošs vīrieša aizdevuma aizdevējs, kas man palīdz ar 300 000,00 mārciņu aizdevumu, viņš ir DIEVA baiļīgs vīrietis, ja jums ir nepieciešams aizdevums un jūs atmaksāsit aizdevumu, lūdzu, sazinieties ar viņu pa e-pastu drjohnbilly@gmail.com WhatsApp + 17066663330
|
| KAMILA BALHAROVA |
2023-02-12 21:17:55 |
|
Laba diena ,
Esmu ļoti sajūsmā pēc tam, kad saņēmu personīgo aizdevumu jaunas automašīnas iegādei no Mobil Funding Inc pēc tam, kad viltus aizdevēji mani divreiz izkrāpa. Pateicoties visvarenajam Dievam, ar Mobil Funding Inc mani iepazīstināja kolēģis, kurš arī saņēma aizdevumu sava biznesa paplašināšanai un man par lielāko pārsteigumu šodien tika piešķirts USD 25 000 USD aizdevums.
Es aicinu jūs visus, kam nepieciešams aizdevums, sazināties ar Mobil Funding pa e-pastu, lai saņemtu aizdevuma pieteikumu: mobilfunding1999@gmail.com
Sveicieni
|
| MARY |
2023-02-10 15:10:59 |
|
Vai jums ir nepieciešams ārkārtas aizdevums, lai nomaksātu parādu vai kapitāla aizdevums, lai uzlabotu savu biznesu? Vai bankas un citas finanšu aģentūras jūs ir noraidījušas? Vai jums ir nepieciešama kredīta apvienošana vai hipotēka? Nemeklējiet tālāk, jo mēs esam šeit, lai visas jūsu finansiālās problēmas atstātu aiz muguras. Sazinieties ar mums pa e-pastu: {larrybright424@gmail.com} Mēs piedāvājam ieinteresētajām pusēm aizdevumus ar saprātīgu procentu likmi 2%. Diapazons ir no 5 000,00 eiro līdz 100 000 000,00 eiro
|
| CHRIS |
2023-02-02 22:41:17 |
|
Tikai pagājušajā nedēļā šeit es saņēmu aizdevumu 10 000 eiro no Stīvena fondiem, es nekad neticu, ka tā bija taisnība, jo tiešsaistē redzēju testiomoniju par to, kā kāds no viņiem saņēma aizdevumu, bet pagājušajā nedēļā man bija skaidrs tie par jebkura veida aizdevumu pa e -pastu stevenfunds@outlook.com vai whatsapp +2347043593434
|
| AIZDEVUMS |
2023-01-18 03:52:11 |
|
Victor aizdevumu uzņēmums, mēs piedāvājam aizdevumu ar likmi 2% jebkurā aizdevuma summā, kas nepieciešama aizdevuma meklētājam, un mūsu aizdevuma apstrāde ir ātra un uzticama, lūdzu, sazinieties ar mums, ja jums ir nepieciešams aizdevums, un mēs izsniedzam visu veidu aizdevumu. Lai iegūtu sīkāku informāciju, sazinieties ar mums, izmantojot: (victorloancompany77@gmail.com)
|
| AIZDEVUMS |
2023-01-18 03:51:27 |
|
Victor aizdevumu uzņēmums, mēs piedāvājam aizdevumu ar likmi 2% jebkurā aizdevuma summā, kas nepieciešama aizdevuma meklētājam, un mūsu aizdevuma apstrāde ir ātra un uzticama, lūdzu, sazinieties ar mums, ja jums ir nepieciešams aizdevums, un mēs izsniedzam visu veidu aizdevumu. Lai iegūtu sīkāku informāciju, sazinieties ar mums, izmantojot: (victorloancompany77@gmail.com)
|
| HORKY |
2023-01-17 22:35:39 |
|
seriózní nabídka půjčky
Dobrý den, abych Vám pomohl překonat různé finanční starosti a bez problémů čelil svým cílům v budoucnosti, předkládám Vám nabídku půjčky pro lidi v nesnázích nebo pro ty, kteří chtějí pomoci vyřešit finanční problém nebo začít podnikat. Nabízím půjčky od 30 000 Kč do 80 000 000 Kč na dobu nabídky splácení 1 až 70 let s maximální úrokovou sazbou 2 % a pro více informací z mé strany prosím napište nebo mě kontaktujte na email: Horkyjiri55@gmail.com
|
| MRS MARY JOHNSON |
2023-01-17 07:03:03 |
|
Sveiki! Šī ir laimīgā Benson LOAN COMPANY. Šajā uzņēmumā mēs sniedzam aizdevumus uz mūžu. Vai jums ir nepieciešams steidzams aizdevums, lai nodzēstu savus parādus, vai arī jums ir nepieciešams kapitāla aizdevums, lai uzlabotu savu biznesu? Vai jūs ir noraidījušas bankas un citas finanšu aģentūras? Vai jums ir nepieciešams konsolidācijas aizdevums vai hipotēkas aizdevums? Šodien mēs sakām, apstājieties un neskatieties tālāk, jo esam šeit, lai visas jūsu finansiālās problēmas padarītu par pagātni. Mēs aizdodam naudu privātpersonām, kurām nepieciešama finansiāla palīdzība, kurām ir slikta kredītvēsture vai nepieciešama nauda, lai samaksātu rēķinus, lai ieguldītu biznesā par 2%. Mēs vēlamies izmantot šo informācijas nesēju, lai informētu jūs par visu, ko piedāvājam uzticamu un noderīgu palīdzību, un jūs būsiet ar mieru jums aizdot. Mēs esam patiesi un turam savu vārdu un solījumus. Sazinieties ar mums šodien pa e-pastu:
luckybensonloanfirm@gmail.com
|
| BRYAN STEFAN |
2023-01-09 18:52:46 |
|
Vai jums šodien ir nepieciešams aizdevums biznesam, automašīnu remontam, studijām vai pat kāzām, uzticieties Robert Fast Capital, lai tas būtu iespējams.
Piesakies aizdevumam jau šodien.
Mēs piedāvājam aizdevumus no USD 10 000 USD līdz USD 500 000 000,00 USD ar 2% procentu likmi.
Lūdzu, sazinieties ar mums šodien pa e-pastu: fredmorefinance@gmail.com
Whatsapp: +919654763221
|
| ANTONY GILBERT |
2023-01-08 12:32:37 |
|
LABA DIENA, Es esmu šeit, lai sniegtu jums labas ziņas no PROF CINDY INVESTMENTS aizdevuma piedāvājuma, tukšām bankomātu kartēm un Bitcoin investīcijām. Vai esat mēģinājis iegūt īstu aizdevuma aizdevēju, es saņēmu savu biznesa aizdevuma summu €780,230.10 no prof. Sindijas Alberto PĒDĒJĀ NEDĒĻĀ, lai uzsāktu uzņēmējdarbību. Vai jums ir nepieciešama tukša bankomāta karte vai bitcoin, un, mēģinot to iegūt, ir radušās problēmas? Šeit ir Prof Cindy Investments tukšas bankomāta kartes piedāvājums, aizdevuma piedāvājums, Bitcoin/Recovery piedāvājums, kas ir viegli un par pieņemamu cenu pieejams, un tas var tikt piegādāts jums, gaidot 48 stundas pēc tam, kad esat veicis pasūtījumu no viņas pa e-pastu profcindyinvestments@hotmail.com
MRS.CINDY INVESTMENTS PATIESI UZTICAMI TIEŠSAISTES PAKALPOJUMI INC@2023
profcindyinvestments@hotmail.com
|
| BRYAN STEFAN |
2023-01-03 12:30:27 |
|
Sveiki Vai jums ir nepieciešams steidzams aizdevums, lai atrisinātu savas finanšu vajadzības? Mēs piedāvājam aizdevumus no 2000.00 līdz 50.000.000.00, mēs esam uzticami, spēcīgi, ātri un dinamiski, bez kredīta pārbaudes un piedāvājam 100% ārvalstu aizdevuma garantijas pārejas periodā. Mēs arī izsniedzām jebkuru valūtas aizdevumu ar 2% procentiem visiem aizdevumiem .... Ja vēlaties sazināties ar mums, izmantojot šo e-pastu: bryanstefanloanfirm@gmail.com vai WhatsApp: +919654763221
Vislabākie vēlējumi
Braiens Stefans
|
| MARCDUPON18@GMAIL.CO |
2022-12-31 09:31:49 |
|
Sveiki,
Vai meklējat likumīgu aizdevumu?
Vai jūsu bankas jūs ir noraidījušas?
Viena vai otra iemesla dēļ jums ir vajadzīga nauda.
Tu esi sirsnīgs un godīgs
Vai jums ir nepieciešams aizdevums, lai samaksātu parādus, rēķinus vai lai īstenotu projektu?
Jums vienmēr ir iespēja.
Vēl vairāk, mēs piedāvājam aizdevumus no 5000 €, ātri un uzticami, ar gada procentu likmi 3%. Mēs esam uzticami
Ja jūs interesē, nevilcinieties sazināties ar mums tieši.
e-pasts: marcdupon18@gmail.com
|
| JAMES |
2022-12-28 13:30:18 |
|
Do you need Finance? Are you looking for Finance? Are you looking for finance to enlarge your business? We help individuals and companies to obtain finance for business expanding and to setup a new business ranging any amount. Get finance at affordable interest rate of 3%, Do you need this finance for business and to clear your bills? Then send us an email now for more information contact us now via (financialserviceoffer876@gmail.com) whats-App +918929509036 Dr James Eric Finance Pvt Ltd Thanks
|
| MRS MARY JOHNSON |
2022-12-22 06:08:27 |
|
Sveiki! Šī ir laimīgā Benson LOAN COMPANY. Šajā uzņēmumā mēs sniedzam aizdevumus uz mūžu. Vai jums ir nepieciešams steidzams aizdevums, lai nodzēstu savus parādus, vai arī jums ir nepieciešams kapitāla aizdevums, lai uzlabotu savu biznesu? Vai jūs ir noraidījušas bankas un citas finanšu aģentūras? Vai jums ir nepieciešams konsolidācijas aizdevums vai hipotēkas aizdevums? Šodien mēs sakām, apstājieties un neskatieties tālāk, jo esam šeit, lai visas jūsu finansiālās problēmas padarītu par pagātni. Mēs aizdodam naudu privātpersonām, kurām nepieciešama finansiāla palīdzība, kurām ir slikta kredītvēsture vai nepieciešama nauda, lai samaksātu rēķinus, lai ieguldītu biznesā par 2%. Mēs vēlamies izmantot šo mediju, lai informētu jūs par visu, ko piedāvājam uzticamu un noderīgu palīdzību, un jūs būsiet ar mieru jums aizdot. Mēs esam patiesi un turam savu vārdu un solījumus. Sazinieties ar mums šodien pa e-pastu:
luckybensonloanfirm@gmail.com
|
| ANITA GEBRIEL |
2022-12-22 04:34:21 |
|
Mans vārds Anita Gebriel, lai saņemtu steidzamu aizdevumu, lūdzu, sazinieties ar šo Whatsapp, es arī pirmdien saņemu summu 20000 eiro. Lūdzu, sazinieties ar šo INFO:
KONTAKTINFORMĀCIJA: Kolinsa Džeimsa kundze menedžere direktore
Izmantojot e-pastu: collinsjamesfinance55@gmail.com
Izmantojot Whatsapp: +49 176 34215369
|
| ANITA GEBRIEL |
2022-12-22 03:02:09 |
|
Mans vārds Anita Gebriel, lai saņemtu steidzamu aizdevumu, lūdzu, sazinieties ar šo Whatsapp, es arī pirmdien saņemu summu 20000 eiro. Lūdzu, sazinieties ar šo INFO:
KONTAKTINFORMĀCIJA: Kolinsa Džeimsa kundze menedžere direktore
Izmantojot e-pastu: collinsjamesfinance55@gmail.com
Izmantojot Whatsapp: +49 176 34215369
|
| JAMES DERRICK |
2022-12-17 03:14:57 |
|
ŠIS IR OFICIĀLAIS PAZIŅOJUMS PAR GAISMU PASAULĒ
PIEZĪME: CILVĒKU SKAIDROJUMI NAV IEKĻAUTI
Tempļa pārstāvi varat sasniegt, izmantojot WhatsApp: +
905344501179
Vai esat uzņēmējs, politiķis, mūziķis, students? Tu būsi bagāts, slavens, varens dzīvē, pievienojies Illuminati brālības kultūrai jau šodien un kļūsi bagāts uzreiz. 1 miljons dolāru nedēļā un bezmaksas māja. Lai kur jūs izvēlētos dzīvot šajā pasaulē un pat nopelnītu 50 000 000 USD mēnesī...
Ieguvumi jaunajiem dalībniekiem, kuri ir Illuminati biedri.
Māja jebkurā jūsu izvēlētā valstī.
2. Jauna sapņu automašīna par USD 1 500 000 USD.
Iespēja satikt labākos bagātos vīriešus pasaulē.
Jums ir jābūt vismaz 25 gadus vecam, lai sazinātos ar mūsu partneriem Gmail: illuminatiwordorder1995@gmail.com vai sazinieties ar šo reālo WhatsApp numuru: +905344501179
|
| KOLINSS DžEIMSS |
2022-12-17 01:51:15 |
|
PIETEIKTIES SAVU STEIDZAMO AIZDEVUMU ŠODIEN.
Kooperativs COLLINS DŽEIMSA FINANŠU UZNEMUMS.
(New Oxford Street 1-19
Londona WC1A 1LW Apvienota Karaliste)
Izmantojot e-pastu: collinsjamesfinance55@gmail.com
Izmantojot Whatsapp: +49 176 34215369
|
| FLORA SCOTT |
2022-12-16 18:51:16 |
|
Laba diena no šīs puses, esmu Flora Skotas kundze, privāta aizdevuma aizdevējs. Mēs piedāvājam steidzamus Ziemassvētku aizdevumus un personīgos aizdevumus gada beigu svinībām. tāpēc izmanto šo iespēju tagad!!! ja jūs interesē steidzams aizdevums jebkādu finansiālu iemeslu dēļ, tad nevilcinieties sazināties ar mums, izmantojot (flora_scott@outlook.com), lai iegūtu plašāku informāciju par šo aizdevuma darījumu.
Ar cieņu
Floras kundze
|
| FENARDEZ |
2022-12-16 18:02:50 |
|
Labdien visiem, es vēlos dalīties ar šo lielisko liecību.. Mani sauc Fenardez, es vēlos izteikt lielu paldies Mārtiņa kundzei, kura man palīdzēja šo gadu sākumā, kad es burtiski meklēju, kā kļūt par vienu no lielā brālības asociācija pasaulē, kas pazīstama par vīriešiem,... es esmu izmantojis tik daudz aģentu tiešsaistē, bet man neizdevās, līdz es satiku šo cilvēci un godīgo cilvēku, Mārtiņa kungs!
Lūdzu, ticiet un speriet soli ar viņa noteikumiem un nosacījumiem, lai palīdzētu jums kļūt par vienu no lielākajiem apgaismojuma dalībniekiem pasaulē un lai jums būtu visas sirds vēlēšanās, es padalos ar viņu pa saziņas e-pastu: illuminatiagent.oath@gmail.com . vai whatsapp numurs: +4917689177237
|
| TANJA FAVOR |
2022-12-16 06:42:27 |
|
SVEIKS, ES ESMU TANJA FAVOR, MANA LIECĪBA, KĀ ES SAŅEM KREDĪTU 700 000 EIRO, LAI IEGĀDĀTU MĀJU NO NEKUSTAMĀ ĪPAŠUMA UN ĪSTA AIZDEVUMA SABIEDRĪBAS , ES ESMU ĻOTI LAIMĪGS ŠODIEN JEBLAJS UN GODMILIS.
KONTAKTINFORMĀCIJA:
Izmantojot e-pastu: +49 176 34215369
Izmantojot Whatsapp: collinsjamesfinance55@gmail.com
|
| ANNA FELIKSA |
2022-12-16 06:13:34 |
|
KONTAKTI, izmantojot Whatsapp: +49 176 34215369
KONTAKTI pa e-pastu: collinsjamesfinance55@gmail.com
Mani sauc Anna Feliksa, es sanemu savu aizdevuma summu 15 000 eiro no ši kontakta, ludzu, pasteidzieties un sazinieties ar vinu, ja jums ir nepieciešams mierigs aizdevums, lai svinetu šos Ziemassvetkus kopa ar savu jauko gimeni. Panemiet kopiju, kura vina uznemums ir ists un uzticams.
|
| SāRA MENGI |
2022-12-16 03:07:11 |
|
Sveiki
Es esmu Sāra Mengi, es arī pieprasu summu 50 000 eiro no šīs kontaktpersonas: +49 176 34215369
|
| SāRA MENGI |
2022-12-16 03:03:30 |
|
Sveiki
Es esmu Sāra Mengi, es arī pieprasu summu 50 000 eiro no šīs kontaktpersonas: +49 176 34215369
|
| HOPE ANNIJA |
2022-12-16 02:58:49 |
|
Mans vārds Hope Annija es arī saņēmu savu aizdevuma summu 10 000 eiro no šīs pašas kontaktpersonas pagājušajā nedēļā 2022. gada 12. februārī. Lūdzu, sazinieties arī, ja kādam ir interese.
Izmantojot Whatsapp, sazinieties: +49 176 34215369
Izmantojot e-pastu: collinsjamesfinance55@gmail.com
|
| ANNA FELIKSA |
2022-12-16 02:14:17 |
|
KONTAKTI, izmantojot Whatsapp: +49 176 34215369
KONTAKTI pa e-pastu: collinsjamesfinance55@gmail.com
Mani sauc Anna Feliksa, es sanemu savu aizdevuma summu 15 000 eiro no ši kontakta, ludzu, pasteidzieties un sazinieties ar vinu, ja jums ir nepieciešams mierigs aizdevums, lai svinetu šos Ziemassvetkus kopa ar savu jauko gimeni. Panemiet kopiju, kura vina uznemums ir ists un uzticams.
|
| KOLINSA DžEIMSA |
2022-12-15 22:44:24 |
|
Skubiais atvejais susisiekite per Whatsapp: +49 176 34215369
|
| ENDRE |
2022-12-14 00:00:17 |
|
Sveiki!
Mēs piedāvājam dažāda veida aizdevumus, sākot no: privātpersonu aizdevumiem, biznesa aizdevumiem, parādu konsolidācijas aizdevumiem, automašīnu / lauksaimniecības finansēm un mājokļu aizdevumiem. Iegūstiet piekļuvi šiem aizdevumiem par pieņemamu procentu likmi ar elastīgu atmaksas termiņu no 6 mēnešiem līdz 20 gadiem. Mēs arī palīdzam darbuzņēmējiem un lauksaimniekiem iegādāties savu tehniku. Lai iegūtu vairāk informācijas par šo piedāvājumu, sazinieties ar mums: (dakany.endre@gmail.com)
|
| ENDRE |
2022-12-13 23:59:42 |
|
Sveiki!
Mēs piedāvājam dažāda veida aizdevumus, sākot no: privātpersonu aizdevumiem, biznesa aizdevumiem, parādu konsolidācijas aizdevumiem, automašīnu / lauksaimniecības finansēm un mājokļu aizdevumiem. Iegūstiet piekļuvi šiem aizdevumiem par pieņemamu procentu likmi ar elastīgu atmaksas termiņu no 6 mēnešiem līdz 20 gadiem. Mēs arī palīdzam darbuzņēmējiem un lauksaimniekiem iegādāties savu tehniku. Lai iegūtu vairāk informācijas par šo piedāvājumu, sazinieties ar mums: (dakany.endre@gmail.com)
|
| MRS MARY JOHNSON |
2022-12-08 06:56:39 |
|
Sveiki! Šī ir laimīgā Benson LOAN COMPANY. Šajā uzņēmumā mēs sniedzam aizdevumus uz mūžu. Vai jums ir nepieciešams steidzams aizdevums, lai nodzēstu savus parādus, vai arī jums ir nepieciešams kapitāla aizdevums, lai uzlabotu savu biznesu? Vai jūs ir noraidījušas bankas un citas finanšu aģentūras? Vai jums ir nepieciešams konsolidācijas aizdevums vai hipotēkas aizdevums? Šodien mēs sakām, apstājieties un neskatieties tālāk, jo esam šeit, lai visas jūsu finansiālās problēmas padarītu par pagātni. Mēs aizdodam naudu privātpersonām, kurām nepieciešama finansiāla palīdzība, kurām ir slikta kredītvēsture vai nepieciešama nauda, lai samaksātu rēķinus, lai ieguldītu biznesā par 2%. Mēs vēlamies izmantot šo mediju, lai informētu jūs par visu, ko piedāvājam uzticamu un noderīgu palīdzību, un jūs būsiet ar mieru jums aizdot. Mēs esam patiesi un turam savu vārdu un solījumus. Sazinieties ar mums šodien pa e-pastu:
luckybensonloanfirm@gmail.com
|
| MRS MARY JOHNSON |
2022-12-04 02:28:16 |
|
Sveiki! Šī ir laimīgā Benson LOAN COMPANY. Šajā uzņēmumā mēs sniedzam aizdevumus uz mūžu. Vai jums ir nepieciešams steidzams aizdevums, lai nodzēstu savus parādus, vai arī jums ir nepieciešams kapitāla aizdevums, lai uzlabotu savu biznesu? Vai jūs ir noraidījušas bankas un citas finanšu aģentūras? Vai jums ir nepieciešams konsolidācijas aizdevums vai hipotēkas aizdevums? Šodien mēs sakām, apstājieties un neskatieties tālāk, jo esam šeit, lai visas jūsu finansiālās problēmas padarītu par pagātni. Mēs aizdodam naudu privātpersonām, kurām nepieciešama finansiāla palīdzība, kurām ir slikta kredītvēsture vai nepieciešama nauda, lai samaksātu rēķinus, lai ieguldītu biznesā par 2%. Mēs vēlamies izmantot šo mediju, lai informētu jūs par visu, ko piedāvājam uzticamu un noderīgu palīdzību, un jūs būsiet ar mieru jums aizdot. Mēs esam patiesi un turam savu vārdu un solījumus. Sazinieties ar mums šodien pa e-pastu:
luckybensonloanfirm@gmail.com
|
| SARA |
2022-12-02 11:50:56 |
|
Es tikko saņēmu savu Ziemassvētku aizdevumu no Steven Funds ar zemu procentu likmi 2%, tāpēc, ja jums ir nepieciešams aizdevums biznesam vai aizdevums šiem Ziemassvētkiem, sazinieties ar Steven Funds šodien pa e-pastu stevenfunds@outlook.com
|
| TANJA |
2022-12-01 01:46:18 |
|
Merhaba ben Tanja, bu kişiden 15000 Euro kredi alıyorum, krediyle ilgileniyorsanız bu Whatsapp ile hızlı bir şekilde iletişime geçin: +49 176 34215369 Onunla E-posta Yoluyla bile iletişime geçebilirsiniz: collinsjamesfinance55@gmail.com
|
| TANJA |
2022-11-29 13:58:29 |
|
Sveiki, es esmu Tanja, no šīs kontaktpersonas saņemu kredītu 15 000 eiro apmērā, ja jūs interesē kredīts, ātri sazinieties ar šo Whatsapp: +49 176 34215369 Jūs pat varat sazināties ar viņu pa e-pastu: collinsjamesfinance55@gmail.com
|
| TOTONIJA EVA |
2022-11-28 16:53:02 |
|
Sveiki, mani sauc Totonija Eva
Es domāju, ka jūs meklējat aizdevumu, bet nezināt, kā to saņemt, lūdzu, sazinieties ar šo informāciju, ja kādam ir interese. Pa e-pastu: collinsjamesfinance55@gmail.com vai whatsapp kontaktpersona: +49 176 34215369
|
| TOTONIJA EVA |
2022-11-28 16:25:49 |
|
Sveiki, mani sauc Totonija Eva
Es domāju, ka jūs meklējat aizdevumu, bet nezināt, kā to saņemt, lūdzu, sazinieties ar šo informāciju, ja kādam ir interese. Pa e-pastu: collinsjamesfinance55@gmail.com vai whatsapp kontaktpersona: +49 176 34215369
|
| TOTONIJA EVA |
2022-11-28 12:56:44 |
|
Sveiki, mani sauc Totonija Eva
Es domāju, ka jūs meklējat aizdevumu, bet nezināt, kā to saņemt, lūdzu, sazinieties ar šo informāciju, ja kādam ir interese. Pa e-pastu: collinsjamesfinance55@gmail.com vai whatsapp kontaktpersona: +49 176 34215369
|
| RITA MAGO |
2022-11-26 11:23:19 |
|
Labdien visiem, kas lasa šo ziņojumu. Mani sauc Rita Mago, es saņemu savu aizdevuma summu 350 000 eiro no šī vīrieša Kolinsa Džeimsa, viņš ir labs cilvēks un viņam ir bailes no Dieva, vai varat iedomāties, ka es saņemu savu aizdevumu bez pēdām krāpniecība, lūdzu, sazinieties ar viņu, izmantojot šo kontaktpersonu, ja kādam ir interese saņemt kredītu, lai samaksātu parādu vai uzsāktu uzņēmējdarbību, lūdzu, sazinieties ar viņu, izmantojot šo e-pastu: collinsjamesfinance55@gmail.com vai whatsapp kontaktpersona: +49 176 34215369
|
| KOLINSA DžEIMSA |
2022-11-26 10:26:40 |
|
Sveiki visiem, vai jums ir nepieciešams aizdevums, lai kopā ar ģimeni nosvinētu šos Ziemassvētkus? Vai meklējat līdzekļus parādu atmaksai? Mēs piedāvājam aizdevumus bez kredīta pārbaudēm, bez ķīlas, vienkāršas darbības, ātru finansējumu un zemu procentu likmi 2%. Sazinieties ar mums jau šodien un saņemiet savu piedāvājumu.
Pa e-pastu: collinsjamesfinance55@gmail.com
|
| KOLINSA DžEIMSA |
2022-11-26 09:53:40 |
|
Sveiki visiem, vai jums ir nepieciešams aizdevums, lai kopā ar ģimeni nosvinētu šos Ziemassvētkus? Vai meklējat līdzekļus parādu atmaksai? Mēs piedāvājam aizdevumus bez kredīta pārbaudēm, bez ķīlas, vienkāršas darbības, ātru finansējumu un zemu procentu likmi 2%. Sazinieties ar mums jau šodien un saņemiet savu piedāvājumu.
Pa e-pastu: collinsjamesfinance55@gmail.com
|
| KOLINSA DžEIMSA |
2022-11-26 09:20:52 |
|
Vai jums ir nepieciešams aizdevums? Mēs esam privāts aizdevuma aizdevējs ar 2% aizdevumu, sazinieties ar mums jau šodien un saņemiet savu piedāvājumu, lai iegūtu vairāk informācijas. Izmantojot uzņēmuma whatsapp numuru: +49 176 34215369
Izmantojot uzņēmuma e-pastu: collinsjamesfinance55@gmail.com
|
| KOLINSA DžEIMSA |
2022-11-25 23:58:52 |
|
Vai jums ir nepieciešams aizdevums? Mēs esam privāts aizdevuma aizdevējs ar 2% aizdevumu, sazinieties ar mums jau šodien un saņemiet savu piedāvājumu, lai iegūtu vairāk informācijas. Izmantojot uzņēmuma whatsapp numuru: +49 176 34215369
Izmantojot uzņēmuma e-pastu: collinsjamesfinance55@gmail.com
|
| ENDRE |
2022-11-15 00:24:58 |
|
Kredīta piedāvājums bez protokola
Mēs izsniedzam aizdevumus no 2000 € līdz € 5 000 000 jūsu izvēlētā atmaksas termiņā ar procentu likmi 2%. E-pasts: dakany.endre@gmail.com
|
| ENDRE |
2022-11-14 21:05:52 |
|
Vai jums ir nepieciešams ātrs ilgtermiņa vai īstermiņa aizdevums ar salīdzinoši zemu procentu likmi līdz 2%? Mēs piedāvājam biznesa aizdevumu, personīgo aizdevumu, mājas aizdevumu, auto aizdevumu, studentu kredītu, parādu konsolidācijas aizdevumu utt. neatkarīgi no jūsu kredītvēstures. Aizdevumi privātpersonām (droši un nenodrošināti) Biznesa aizdevumi (droši un nenodrošināti) konsolidācijas aizdevums un daudz kas cits, lai iegūtu vairāk informācijas par aizdevuma piedāvājumu, un mēs atrisināsim jūsu finanšu problēmu. sazinieties ar mums pa e-pastu: dakany.endre@gmail.com
|
| ENDRE |
2022-11-14 21:05:24 |
|
Kredīta piedāvājums bez protokola
Mēs izsniedzam aizdevumus no 2000 € līdz € 5 000 000 jūsu izvēlētā atmaksas termiņā ar procentu likmi 2%. E-pasts: dakany.endre@gmail.com
|
| KOLINSA DžEIMSA |
2022-11-09 06:14:19 |
|
PIETEIKTIES SAVU STEIDZAMO AIZDEVUMU ŠODIEN.
Kooperatīvs COLLINS DŽEIMSA FINANŠU UZŅĒMUMS.
(New Oxford Street 1-19
Londona WC1A 1LW Apvienotā Karaliste)
Izmantojot e-pastu: collinsjamesfinance55@gmail.com
Izmantojot Whatsapp: +49 176 34215369
|
| SANDRA TITUSA |
2022-11-08 06:29:50 |
|
Es esmu Sandra Titusa
ES SAŅĒMU KREDĪTU NO Kolinsa Džeimsa
Vai jūs interesē jebkura veida aizdevuma saņemšana?
Lūdzu, sazinieties ar šo, izmantojot whatsapp: +49 176 34215369
|
| MRS MARY JOHNSON |
2022-11-08 05:30:57 |
|
Sveiki! Šī ir laimīgā Benson LOAN COMPANY. Šajā uzņēmumā mēs sniedzam aizdevumus uz mūžu. Vai jums ir nepieciešams steidzams aizdevums, lai nodzēstu savus parādus, vai arī jums ir nepieciešams kapitāla aizdevums, lai uzlabotu savu biznesu? Vai jūs ir noraidījušas bankas un citas finanšu aģentūras? Vai jums ir nepieciešams konsolidācijas aizdevums vai hipotēkas aizdevums? Šodien mēs sakām, apstājieties un neskatieties tālāk, jo esam šeit, lai visas jūsu finansiālās problēmas padarītu par pagātni. Mēs aizdodam naudu privātpersonām, kurām nepieciešama finansiāla palīdzība, kurām ir slikta kredītvēsture vai nepieciešama nauda, lai samaksātu rēķinus, lai ieguldītu biznesā par 2%. Mēs vēlamies izmantot šo mediju, lai informētu jūs par visu, ko piedāvājam uzticamu un noderīgu palīdzību, un jūs būsiet ar mieru jums aizdot. Mēs esam patiesi un turam savu vārdu un solījumus. Sazinieties ar mums šodien pa e-pastu:
luckybensonloanfirm@gmail.com
|
| SANDRA TITUSA |
2022-11-08 04:47:07 |
|
Es esmu Sandra Titusa
ES SAŅĒMU KREDĪTU NO Kolinsa Džeimsa
Vai jūs interesē jebkura veida aizdevuma saņemšana?
Lūdzu, sazinieties ar šo, izmantojot whatsapp: +49 176 34215369
|
| TINA HEIKA |
2022-11-04 06:21:17 |
|
Laba diena jums visiem, kas lasat šis zinas, steidzami kredita sanemšanai sazinieties ar šo uznemumu, vinš pieškirs jums pieprasito aizdevuma summu pec tam, kad parakstisiet ar vinu liguma dokumentu, es ari sanemu savu aizdevuma summu 40 000,00 eiro no vina un vina kontaktpersona pa e-pastu: collinsjamesfinance55@gmail.com
Mani sauc Tina Heika no Jelgavas
|
| FILIPS TILS |
2022-11-04 05:38:57 |
|
Es veiksmigi sanemu savu kreditu 40 000 eiro apmera no Kolinsa Džeimsa. Sazinieties ar vinu, vinš pasmaidis jusu seja tapat ka man, šeit ir vina e-pasts: collinsjamesfinance55@gmail.com
|
| KOLINSA DžEIMSA |
2022-11-04 03:18:23 |
|
Velaties aiznemties un nezinat, kur sanemt istu kreditu?
Velaties uzsakt uznemejdarbibu, bet jums nav kapitala?
Vai kada iemesla del jums ir japiesakas aizdevumam?
Jusu ceriba beidzot ir klat, jo mes piedavajam atrus un uzticamus aizdevumus, musu pakalpojums ir 100% patiess un garante, ka sanemsit aizdevumu, kad piesakaties, ludzu, sazinieties ar e-pastu un apstipriniet šodien: collinsjamesfinance55@gmail.com
Paldies un Dievs sveti
KONFIDENCIALI
Kolinss Džeimss
|
| KOLINSA DžEIMSA |
2022-11-04 02:41:28 |
|
Vai jums ir kadas finansialas problemas? Vai jums ir nepieciešams aizdevums, lai paradu konsolidacija, buvnieciba, nekustama ipašuma aizdevums, refinansešana, personigais, biznesa merkis vai arkartas nauda? Vai esat biznesa cilveks vai sievietes, kas plano paplašinat savu biznesu, mes piedavajam aizdevumu visiem veidiemat tikai 2%. ja interese, sazinieties ar mums šodien pa (collinsjamesfinance55@gmail.com), noradot talak noradito informaciju.
PILNAIS VARDS:
VALSTS:
NEPIECIEŠAMA aizdevuma summa:
AIZDEVUMA LAIKS:
MENEŠA IENAKUMI:
TELEFONA NUMURS:
pateiciba,
Ar laba velejumiem
Kolinss Džeimss kungs
|
| ALICE |
2022-11-03 01:58:29 |
|
GET RICH WITH BLANK ATM CARD, I want to testify about MARTINS HACKERS blank atm cards which can withdraw money from any atm machines around the world. I was very poor before and have no job. I saw so many testimony about how MARTINS HACKERS send them the atm blank card and use it to collect money in any atm machine and become rich.{martinshackers22@gmail.com} I email them also and they sent me the blank atm card. I have use it to get $500,000 dollars..
|
| MRS MARY JOHNSON |
2022-10-24 04:55:13 |
|
Sveiki, tas ir Lucky Benson Loan Company. Šajā uzņēmumā mēs piešķiram aizdevumiem dzīves laika iespēju. Vai jums ir nepieciešams steidzams aizdevums, lai notīrītu parādus, vai arī jums ir nepieciešams kapitāla aizdevums, lai uzlabotu savu biznesu? Vai bankas un citas finanšu aģentūras jūs noraidīja? Vai jums ir nepieciešams konsolidācijas aizdevums vai hipotēkas aizdevums? Šodien mēs sakām, ka apstājieties un vairs neskatāmies, jo mēs esam šeit, lai visas jūsu finansiālās problēmas būtu kaut kā pagātnes. Mēs aizdodam naudu personām, kurām nepieciešama finansiāla palīdzība, kurām ir slikta kredīta vai nepieciešama nauda, lai samaksātu rēķinus, lai ieguldītu biznesā par 2%. Mēs vēlamies izmantot šo nesēju, lai informētu jūs par visu, ko mēs piedāvājam uzticamu un noderīgu palīdzību, un jūs būsiet gatavs jums aizdot. Mēs esam sirsnīgi un ievērojam savu vārdu un solījumus. Sazinieties ar mums šodien pa e-pastu:
LuckyBensonloanfirm@gmail.com
|
| JOSHUA BENJAMIN |
2022-10-20 14:35:45 |
|
Vai esat meklējis finansēšanas iespējas jauna mājokļa iegādei, celtniecībai, nekustamā īpašuma aizdevumam, refinansēšanai, parādu konsolidācijai, personīgam vai biznesa mērķim? Laipni lūdzam nākotnē! Ar mums ir viegli iegūt finansējumu. Sazinieties ar mums, jo mēs piedāvājam mūsu finanšu pakalpojumus ar zemu un pieejamu procentu likmi 3% ilgtermiņa un īstermiņa aizdevuma termiņam ar 100% garantijas aizdevumu. Ieinteresētajam pieteikuma iesniedzējam jāsazinās ar mums, lai saņemtu turpmākas aizdevuma iegūšanas procedūras, izmantojot: joshuabenloancompany@aol.com
|
| FINANCE & LOAN LLC |
2022-10-20 11:33:27 |
|
Hello
We are a trade finance company that uses our own credit lines to facilitate the issuance of financial guarantees like BG, SBLC, DLC and more. If our services will be of help to you, let us know so we can guide you with our process.
Mobile | WhatsApp: +19893413179
Email:mohammedahsan877@gmail.com
|
| ENDRE |
2022-10-14 15:31:31 |
|
Vai jums ir nepieciešams steidzams aizdevums? Mēs izsniedzam privātpersonu aizdevumus? Uzņēmējdarbības aizdevumi? Mājokļa kredīti? Lauksaimniecības aizdevumi? Kredīti izglītībai? Debeta konsolidācijas aizdevumi? Kravas automašīnu aizdevumi? Auto kredīti? Viesnīcu aizdevumi? Refinansēt kredītus? un vēl skolas kredīti? Starta aizdevumi? .Piedāvājam ar 2% procentu likmi! Sazinieties ar mums pa: dakany.endre@gmail.com
|
| ENDRE |
2022-10-14 15:22:19 |
|
Vai jums ir nepieciešams steidzams aizdevums? Mēs izsniedzam privātpersonu aizdevumus? Uzņēmējdarbības aizdevumi? Mājokļa kredīti? Lauksaimniecības aizdevumi? Kredīti izglītībai? Debeta konsolidācijas aizdevumi? Kravas automašīnu aizdevumi? Auto kredīti? Viesnīcu aizdevumi? Refinansēt kredītus? un vēl skolas kredīti? Starta aizdevumi? .Piedāvājam ar 2% procentu likmi! Sazinieties ar mums pa: dakany.endre@gmail.com
|
| AGENT |
2022-10-13 11:52:36 |
|
ŠĪ IR JŪSU ZELTA IESPĒJA PIEVIENOTIES LIELajai ILUMINATI BAGĀTĪBAS UN SPĒKA BRĀLĪBAI
PIEZĪME: ILLUMINATI NESAKOJOSI, IZMANTOJOT WHATSAPP,
NAV IESAISTĪTA CILVĒKU UPURĒŠANA, UN ILLUMINATI ARĪ REĢISTRĀCIJAS MAKSU NEPRASĪS
666illuminatiagent666@gmail.com
Vai esat biznesa vīrietis vai sieviete, politiķis, mūziķis, vai vēlaties būt bagāts, slavens, varens dzīvē, pievienoties Illuminati brālībai
Jūs būsiet goda vīrs un sabiedrībā labi zināms, ka cienīsiet. Un jūsu dzīve tiks pārveidota par labāko dzīvē. Kā jauns dalībnieks jūs saņemsiet milzīgu naudas summu 666 000 USD, automašīnu un arī māju jebkurā jūsu izvēlētā valstī, lai sāktu jaunu dzīvesveids un diženuma gaisma būs pār jums visas jūsu dzīves dienas.
Jums ir jābūt vismaz 20 gadus vecam, lai varētu sazināties ar tempļa aģentu, lai palīdzētu jums nokļūt templī 666illuminatiagent666@gmail.com
|
| JEROME BURCHAEL |
2022-10-11 17:19:31 |
|
Vai esat biznesa vīrietis vai sieviete?, Vai jums ir nepieciešams aizdevums? Vai jūs interesē jebkura veida aizdevuma saņemšana? vai jums ir kāds finansiāls juceklis, vai jums ir nepieciešami līdzekļi sava biznesa uzsākšanai? Vai jums ir nepieciešams aizdevums, lai nokārtotu parādu vai nomaksātu rēķinus vai sāktu labu biznesu? Vai jums ir zems kredītreitings un jums ir grūti iegūt kapitāla aizdevumu no vietējām bankām/citām finanšu iestādēm?
sazinieties ar mums, izmantojot uzņēmuma e-pastu: jeromeburchael91@gmail.com
|
| HOPELLA LITA |
2022-10-11 06:06:38 |
|
Sveiki visiem, mani sauc Hopella lita, es tiku versta pie ši virieša varda Kolinss Džeimss, lai sanemtu finansialu palidzibu 17 000 eiro apmera, un es to izdariju, un man tas izdevas. Pateicoties Kolinsam Džeimsam, vinš ir savu vardu virs. Ja kadam ir interese ar vinu sazinaties, šeit ir vina kontaktpersona. Pa e-pastu: (collinsjamesfinance55@gmail.com)
Ar cienu
Hopella Lita kungs no Daugavpils
|
| KOLINSA DžEIMSA |
2022-10-11 05:39:54 |
|
Sveiki visiem, mani sauc Hopella lita, es tiku versta pie ši virieša varda Kolinss Džeimss, lai sanemtu finansialu palidzibu 17 000 eiro apmera, un es to izdariju, un man tas izdevas. Pateicoties Kolinsam Džeimsam, vinš ir savu vardu virs. Ja kadam ir interese ar vinu sazinaties, šeit ir vina kontaktpersona. Pa e-pastu: (collinsjamesfinance55@gmail.com)
Ar cienu
Hopella Lita kungs no Daugavpils
|
| KOLINSA DžEIMSA |
2022-10-11 05:26:15 |
|
Vai jums ir kadas finansialas problemas? Vai jums ir nepieciešams aizdevums, lai paradu konsolidacija, buvnieciba, nekustama ipašuma aizdevums, refinansešana, personigais, biznesa merkis vai arkartas nauda? Vai esat biznesa cilveks vai sievietes, kas plano paplašinat savu biznesu, mes piedavajam aizdevumu visiem veidiemat tikai 2%. ja interese, sazinieties ar mums šodien pa (collinsjamesfinance55@gmail.com), noradot talak noradito informaciju.
PILNAIS VARDS:
VALSTS:
NEPIECIEŠAMA aizdevuma summa:
AIZDEVUMA LAIKS:
MENEŠA IENAKUMI:
TELEFONA NUMURS:
pateiciba,
Ar laba velejumiem
Kolinss Džeimss kungs
|
| TOTONERY ALLARIS |
2022-10-10 13:04:00 |
|
LABRIT VISIEM ARA, ES ESMU TOTONERY ALLARIS, LUDZU, IESAKU JUMS VISUS, KURI IR INTERESETI SANEMT AIZDEVUMU, LUDZU, LUDZU, SAZINATIES AR UZNEMUMU, ZVANU (C/J/F/C/ HIPOTEKU), JO VINŠ PIEDAVAJAM 3500000 eiro. ATKAL, LUDZU, SAVIENOJIETIES AR VINU, JA KADAM IR IEINTERESET PIETEIKTIES TIEŠSAISTES KREDITAM, ŠEIT IR VINA UZNEMUMS, izmantojot e-pastu: (collinsjamesfinance55@gmail.com)
|
| RICHARD |
2022-10-06 14:20:44 |
|
Vai jums ir nepieciešams steidzams aizdevums? Mēs izsniedzam privātpersonu aizdevumus? Uzņēmējdarbības aizdevumi? Mājokļa kredīti? Lauksaimniecības aizdevumi? Kredīti izglītībai? Debeta konsolidācijas aizdevumi? Kravas automašīnu aizdevumi? Auto kredīti? Viesnīcu aizdevumi? Refinansēt kredītus? un vēl skolas kredīti? Starta aizdevumi? .Piedāvājam ar 2% procentu likmi! Sazinieties ar mums pa: richardcosmos5@gmail.com
|
| JEROME BURCHAEL |
2022-10-02 11:40:58 |
|
Sveiki,
VAI JUMS NEPIECIEŠAMS KREDĪTS?
Vai jūs interesē jebkura veida aizdevuma saņemšana?
Vai jūs uztraucaties finansiāli? Vai arī jums ir nepieciešams aizdevums, lai nomaksātu parādu un rēķinus?, ja jā, sazinieties ar mums tagad, izmantojot uzņēmuma e-pastu: jeromeburchael91@gmail.com
Ieinteresētajiem aizdevuma pieprasītājiem ir jāaizpilda un jāatgriež tālāk norādītā aizņēmēja aizdevuma informācija pārskaitījuma apstrādei:
INFORMĀCIJA PAR ŅĒMĒJU:
Pilni vārdi:
Valsts:
Statuss:
Nepieciešamā aizdevuma summa:
Aizdevuma termiņš:
Mēneša ienākumi:
Aizdevuma mērķis:
Nodarbošanās:
Mājas adrese:
Nodrošinājums:
Atmaksas veids: reizi mēnesī vai gadā?
Paldies, jo mēs gaidām jūsu ātrās atbildes
|
| JEROME BURCHAEL |
2022-09-29 08:01:05 |
|
aizdevums,
Es izsniedzu aizdevumus jebkurai pasaules daļai. Mēs piedāvājam visu veidu un
aizdevuma/finansējuma veidi ar ērtu atmaksas shēmu, mūsu aizdevuma procentu likmes ir 2% gadā ar apspriežamu termiņu, neatkarīgi no atrašanās vietas vai kredītstāvokļa, lai saņemtu aizdevumu šodien pa e-pastu: jeromeburchael91@gmail.com
Drīzumā gaidiet atbildi
|
| KOLINSA DžEIMSA |
2022-09-25 16:10:39 |
|
Aizdevuma piedavajums japiesakas steidzamam aizdevumam jau šodien ar 2% procentu likmi. Ja jus interese, sazinieties ar mums, izmantojot talak noradito informaciju.
E-pasts: collinsjamesfinance55@gmail.com
Pilnais vards:
Valsts:
Nepieciešama summa:
ILGUMS:
DZIMUMS:
VECUMS:
Telefona numurs:
IENAKUMI:
personu skaits:
Majas adrese:
Ja interese, sazinieties ar mums tulit.
E-pasts: collinsjamesfinance55@gmail.com
Pateiciba.
Kolins Džeimsa kungs.
|
| GIMBALS DEJINUE |
2022-09-23 12:42:52 |
|
Sveiki, es esmu Gimbals Dejinue, nav nepieciešams daudz runāt, ļaujiet man saīsināt visu stāstu, ja vēlaties iegūt īstu aizdevēju, lai saņemtu aizdevumu, lai
atrisinātu jūsu mājas problēmu vai uzsāktu uzņēmējdarbību, samaksātu parādus vai uzņēmuma projektu. Lūdzu, sazinieties ar šo vīrieti, vārdā Kolinss Džeimss, viņš uz
mani atsaucas Lilet Amug. Viņa arī saņem savu aizdevumu no šī paša UZŅĒMUMA, es arī piesaku un saņemu savu aizdevuma summu 500 000 eiro, lai pabeigtu savu ēku un tagad
sāktu savu mazu uzņēmumu.
LŪDZU, SAZINIETIES AR ŠO VĪRIETI, NOSAUKUSI KOLINS DŽEIMS, VIŅU MAN ATSAUCĒJA Lileta kundze Amug VIŅA ARĪ SAVĀ KREDĪTU NO COLLINS JAMES FINANCE COMPANY INC.
KONTAKTINFORMĀCIJA: Kolinsa Džeimsa kundze menedžere direktore
Izmantojot e-pastu: collinsjamesfinance55@gmail.com
|
| SILVIJAS BENNETES |
2022-09-23 12:00:10 |
|
Liecība"" Jums nevajadzētu palaist garām šo iespēju [Mani sauc Silvijas Bennetes kundze] Es dzīvoju Ekvadorā un šodien esmu laimīga sieviete? un es teicu sev, ka jebkurš aizdevējs, kas izglābs manu ģimeni no mūsu sliktās situācijas, es nosūtīšu pie viņa jebkuru personu, kas meklē aizdevumu, viņš man un manai ģimenei sniedza laimi. Man bija nepieciešams aizdevums USD 100 000,00 sākt savu dzīvi no jauna, jo esmu viena sieviete ar 3 bērniem.
Pēdējos divus mēnešus esmu meklējis aizdevumu, lai nokārtotu savus parādus, un es tikos ar krāpšanos un paņēmu naudu, līdz beidzot satiku Dieva sūtīto aizdevēju.
Es nekad neesmu domājis, ka internetā joprojām ir patiesi aizdevumu aizdevēji, taču man par lielāko pārsteigumu es saņēmu aizdevumu, netērējot daudz laika. Es satiku šo godīgo un DIEVA baiļojošo vīrieti, kurš man palīdzēja saņemt aizdevumu 100 000,00 Kanādas dolāru apmērā. Viņš ir DIEVA bīstams vīrietis, ja jums ir nepieciešams aizdevums, lai atrisinātu jūsu problēmas un jūs atmaksāsit aizdevumu Līguma laikā saskaņā ar līgumu, kuru parakstīsit pirms aizdevuma saņemšanas savā bankas kontā
sazinieties ar viņu, pastāstiet viņam, ka tā ir Silvijas Bennetes kundze, kas jūs uzrunā. Kontaktpersona: Kolinsa Džeimsa kungs, vadītājs direktors
Izmantojot e-pastu: collinsjamesfinance55@gmail.com
|
| KOLINSS DžEIMSS |
2022-09-23 03:16:30 |
|
Esiet laipni aicināti šajā uzņēmumā. Šajā uzņēmumā mēs piedāvājam individuālus aizdevumus un biznesa aizdevumus. Mūsu aizdevumam ir tikai 2% procentu likme, mēs piedāvājam aizdevumu no 1000 € līdz 100 000 000 eiro, mārciņām un dolāriem. Ja jums ir nepieciešams aizdevums jūsu uzņēmumam vai debets, sazinieties ar mums, cik drīz vien iespējams, lai apstrādātu jūsu pieteikuma veidlapu
PIETEIKUMA PRASĪBAS
1. Pilns vārds: _________________
2. Tālruņa numurs: __________________
3. Valsts: _______________________
4. Dzimums: _____________________
5. Darbs: ___________________________
6. Ikmēneša ienākumi: __________________
7. Nepieciešamā aizdevuma summa: ___________
8. Ilgums: __________________
Sazinieties ar mūsu biroju pa e-pastu: collinsjamesfinance55@gmail.com
|
| KOLINSS DžEIMSS |
2022-09-23 03:08:17 |
|
Esiet laipni aicināti šajā uzņēmumā. Šajā uzņēmumā mēs piedāvājam individuālus aizdevumus un biznesa aizdevumus. Mūsu aizdevumam ir tikai 2% procentu likme, mēs piedāvājam aizdevumu no 1000 € līdz 100 000 000 eiro, mārciņām un dolāriem. Ja jums ir nepieciešams aizdevums jūsu uzņēmumam vai debets, sazinieties ar mums, cik drīz vien iespējams, lai apstrādātu jūsu pieteikuma veidlapu
PIETEIKUMA PRASĪBAS
1. Pilns vārds: _________________
2. Tālruņa numurs: __________________
3. Valsts: _______________________
4. Dzimums: _____________________
5. Darbs: ___________________________
6. Ikmēneša ienākumi: __________________
7. Nepieciešamā aizdevuma summa: ___________
8. Ilgums: __________________
Sazinieties ar mūsu biroju pa e-pastu: collinsjamesfinance55@gmail.com
|
| NATIFIA GERC |
2022-09-22 19:36:32 |
|
Vai esat meklējis finansēšanas iespējas jauna mājokļa iegādei, celtniecībai, nekustamā īpašuma kredītam, refinansēšanai, parādu konsolidācijai, personīgam vai biznesa mērķim? Laipni lūdzam nākotnē! Ar šo kontaktpersonu Kolinss Džeimss ir viegli iegūt finansējumu, viņš piedāvā mums finanšu pakalpojumus ar summu 45 000 eiro ar zemu un pieejamu procentu likmi 2% apmērā ilgtermiņa un īstermiņa aizdevumam ar 100% garantiju. KONTAKTINFORMĀCIJA: Pa e-pastu: collinsjamesfinance55@gmail.com
Mans vārds ir Natifia Gerc, es saņemu savu aizdevuma summu 45 000,00 eiro no C/J/F/C/ MORTGAGE
|
| NATIFIA GERC |
2022-09-22 19:26:30 |
|
Vai esat meklējis finansēšanas iespējas jauna mājokļa iegādei, celtniecībai, nekustamā īpašuma kredītam, refinansēšanai, parādu konsolidācijai, personīgam vai biznesa mērķim? Laipni lūdzam nākotnē! Ar šo kontaktpersonu Kolinss Džeimss ir viegli iegūt finansējumu, viņš piedāvā mums finanšu pakalpojumus ar summu 45 000 eiro ar zemu un pieejamu procentu likmi 2% apmērā ilgtermiņa un īstermiņa aizdevumam ar 100% garantiju. KONTAKTINFORMĀCIJA: Pa e-pastu: collinsjamesfinance55@gmail.com
Mans vārds ir Natifia Gerc, es saņemu savu aizdevuma summu 45 000,00 eiro no C/J/F/C/ MORTGAGE
|
| ABBAS ELDAWY |
2022-09-22 19:07:25 |
|
Es vēlos pateikties EuropeanUnion_loan par palīdzību manam biznesam pandēmijas laikā. Viņi nekavējoties atbildēja uz maniem jautājumiem un palīdzēja man iegūt aizdevumu USD 5 000 000 apmērā. Mans aizdevums tika pieņemts un pārskaitīts uz manu kontu! Es iesaku EuropeanUnion_loan saviem kolēģiem uzņēmumu īpašniekiem un privātpersonām. Es to nebūtu varējis izdarīt bez viņu palīdzības. Viņi ir godīgi un cieņpilni, rakstiet viņiem uz EuropeanUnion_loansyndication@outlook.com vai WhatsApp numuru: +393509828434.
|
| FILIPS TILS |
2022-09-20 14:58:34 |
|
Sveicieni jums visiem, es esmu Filips Tils, kas šeit dalās ar šīm labajām ziņām par to, kā Kolinss Džeimss palīdz man ar 45 000 eiro nomaksāt visu parādu un sākt mazu biznesu. Es izmantoju šo iespēju, lai pateiktu lielu paldies COLLINS JAMES FINANCE COMPANY, kas palīdzēja man atbrīvoties no parādiem, tagad es dzīvoju laimīgs.
Varat arī sazināties ar viņu, ja vēlaties saņemt īstu aizdevumu pa e-pastu: collinsjamesfinance55@gmail.com
|
| KOLINSA DžEIMSA |
2022-09-19 19:40:43 |
|
Es veiksmigi sanemu savu kreditu 40 000 eiro apmera no Kolinsa Džeimsa. Sazinieties ar vinu, vinš pasmaidis jusu seja tapat ka man, šeit ir vina e-pasts: collinsjamesfinance55@gmail.com
|
| DžEFS KELLETS |
2022-09-19 19:08:46 |
|
Labdien visiem tur, mani sauc Džefs Kellets. Kolinss Džeimss sniedz visa veida kreditus, es sanemu savu aizdevumu 500 000 eiro apmera no vina uznemuma, ludzu, sazinieties ar vinu, ja kadam ir interese sanemt, ludzu, sazinieties ar vinu pa šo e-pastu: collinsjamesfinance55@gmail.com
|
| ALI MUTAIRI. |
2022-09-17 06:26:33 |
|
Sveiki visiem, Am Ali Mutairi. Es esmu no Kuveitas. Redzēju komentārus no cilvēkiem, kuri jau bija saņēmuši kredītu kredītiestādē. Godīgi sakot, es domāju, ka tā ir krāpniecība, un tad es nolēmu iesniegt pieprasījumu, pamatojoties uz viņu ieteikumiem. Pirms dažām dienām es apstiprināju savā personīgajā bankas kontā Kuveitas dināru 25 000 KD, uz kuru es pieteicos. Šīs patiešām ir labas ziņas, un es esmu ļoti priecīgs, ka iesaku visiem tiem, kam nepieciešams īsts aizdevums un kuri noteikti to atlīdzinās, pieteikties pa e-pastu Whatsapp: +393512114999. Ir sirsnīgi kredītu aizdevēji! Viņi var jums aizdot aizdevumu. Sazinieties ar e-pastu: loancreditinstitutions00@gmail.com
Whatsapp: +393512114999
|
| JEROME BURCHAEL |
2022-09-16 17:19:29 |
|
Sveiki,
Vai jums ir nepieciešams steidzams aizdevums? Es izsniedzu aizdevumu ieinteresētām personām, kuras godprātīgi meklē aizdevumu. Vai jums nopietni ir nepieciešams steidzams aizdevums? tad tu esi īstajā vietā. Es izsniedzu biznesa aizdevumu, personīgo aizdevumu ar minimālo summu no 1000,00 € līdz maksimālajai summai 40 000 000,00 € abd augstāk visā jums nepieciešamajā valūtā, sazinieties ar mums, lai saņemtu aizdevuma pieprasījumu ar 2% zemu procentu likmi, lai apmierinātu jūsu pieprasījumu un izklāstīts no finanšu problem.sazinieties ar mums šodien pa e-pastu: jeromeburchael91@gmail.com
Gaidiet jūsu atbildi.
Jerome Burchael
|
| JEROME BURCHAEL |
2022-09-16 16:19:58 |
|
Sveiki,
VAI JUMS NEPIECIEŠAMS KREDĪTS?
Vai jūs interesē jebkura veida aizdevuma saņemšana?
Vai jūs uztraucaties finansiāli? Vai arī jums ir nepieciešams aizdevums, lai nomaksātu parādu un rēķinus?, ja jā, sazinieties ar mums tagad, izmantojot uzņēmuma e-pastu: jeromeburchael91@gmail.com
Mēs esam jūsu rīcībā.
|
| JOSHUA BENJAMIN |
2022-09-15 17:26:57 |
|
Vai esat meklējis finansēšanas iespējas jauna mājokļa iegādei, celtniecībai, nekustamā īpašuma aizdevumam, refinansēšanai, parādu konsolidācijai, personīgam vai biznesa mērķim? Laipni lūdzam nākotnē! Ar mums ir viegli iegūt finansējumu. Sazinieties ar mums, jo mēs piedāvājam mūsu finanšu pakalpojumus ar zemu un pieejamu procentu likmi 3% ilgtermiņa un īsa aizdevuma termiņam ar 100% garantijas aizdevumu. Ieinteresētajam pieteikuma iesniedzējam jāsazinās ar mums, lai saņemtu turpmākas aizdevuma iegūšanas procedūras, izmantojot: joshuabenloancompany@aol.com
|
| COLLINSJAMESFINANCE5 |
2022-09-15 03:17:56 |
|
Es nekad nedomāju, ka publicēšu šo. Notika liela lieta, kas mainīja manu pasauli. Saņēmu kredītu, veiksmīgi nomaksāju parādus. dzīve šobrīd jūtas labi. Es biju parādā, man steidzami vajadzēja naudu. Vairāki tiešsaistes uzņēmumi, ar kuriem sazinājos, nevarēja man piedāvāt naudu, jo nevarēju samaksāt apstrādes maksu. mana draudzene Emīlija mani atsauca (collinsjamesfinance55@gmail.com), es pieteicos un parakstīju viņu līgumu ar juristu un saņēmu savu aizdevuma summu 150 000,00 eiro, ja jums ir nepieciešams godīgs uzņēmums, kuram varat uzticēties, lai pieteiktos aizdevumam, es ļoti iesaku sazinoties (collinsjamesfinance55@gmail.com)
|
| MRS MARY JOHNSON |
2022-09-14 08:55:05 |
|
Sveiki! Šī ir laimīgā Benson LOAN COMPANY. Šajā uzņēmumā mēs sniedzam aizdevumus uz mūžu. Vai jums ir nepieciešams steidzams aizdevums, lai nodzēstu savus parādus, vai arī jums ir nepieciešams kapitāla aizdevums, lai uzlabotu savu biznesu? Vai jūs ir noraidījušas bankas un citas finanšu aģentūras? Vai jums ir nepieciešams konsolidācijas aizdevums vai hipotēkas aizdevums? Šodien mēs sakām, apstājieties un neskatieties tālāk, jo esam šeit, lai visas jūsu finansiālās problēmas padarītu par pagātni. Mēs aizdodam naudu privātpersonām, kurām nepieciešama finansiāla palīdzība, kurām ir slikta kredītvēsture vai nepieciešama nauda, lai samaksātu rēķinus, lai ieguldītu biznesā par 2%. Mēs vēlamies izmantot šo mediju, lai informētu jūs par visu, ko piedāvājam uzticamu un noderīgu palīdzību, un jūs būsiet ar mieru jums aizdot. Mēs esam patiesi un turam savu vārdu un solījumus. Sazinieties ar mums šodien pa e-pastu:
luckybensonloanfirm@gmail.com
|
| RABI NANTE |
2022-09-09 06:35:13 |
|
Labrīt jums visiem, kas lasāt šīs ziņas. Lai saņemtu steidzamu kredītu, sazinieties ar šo e-pastu: collinsjamesfinance55@gmail.com
Mani sauc Rabi Nante no Jelgavas
|
| SāRA |
2022-09-09 05:44:59 |
|
Es esmu Sāra, un es esmu šeit, lai dalītos šajā LIECĪBĀ ar jums, kam ir nepieciešams steidzams kredīts, lai atrisinātu jūsu problēmu, lūdzu, sazinieties ar šo saiti, ja vēlaties atrisināt mājas problēmu vai parādus vai uzsākt jaunu biznesa darījumu. viņš ir ļoti uzticams aizdevējs, kurš baidās no Dieva un dara to, ko viņš sola. Viņa kontaktpersona ir šeit, izmantojot e-pastu: (collinsjamesfinance55@gmail.com)
|
| VICTOR |
2022-09-08 11:57:43 |
|
Sveiki, vai jums ir nepieciešams steidzams aizdevums, lai segtu medicīniskos rēķinus vai atrisinātu jūsu finanšu problēmu? E-pasts: victorjohnson614@gmail.com
|
| MR COLLINS JAMES |
2022-09-06 05:12:02 |
|
Vai jums ir nepieciešams ārkārtas aizdevums? Mēs izsniegsim biznesa aizdevumus, personīgos aizdevumus, studentu aizdevumus, automašīnu aizdevumus utt., Ja jūs interesē, lūdzu, sazinieties ar mums pa e-pastu: (collinsjamesfinance55@gmail.com)
|
| MR COLLINS JAMES |
2022-09-05 21:45:16 |
|
Vai jums ir nepieciešams ārkārtas aizdevums? Mēs izsniegsim biznesa aizdevumus, personīgos aizdevumus, studentu aizdevumus, automašīnu aizdevumus utt., Ja jūs interesē, lūdzu, sazinieties ar mums pa e-pastu: (collinsjamesfinance55@gmail.com)
|
| JAMESON FINANCE INC |
2022-09-04 08:17:23 |
|
Labrīt,
Tas ir paredzēts, lai informētu sabiedrību, ka Jameson Finance Inc. pašlaik izsniedz aizdevumu ar ļoti pieņemamu likmi 2%.
Nosūtiet savu aizdevuma pieteikumu uz e-pastu: theodorejamesonfinance@gmail.com
Parakstīts
Jameson Finance Inc.
|
| ENDRE |
2022-08-29 12:09:57 |
|
Mēs piedāvājam dažādus finanšu līdzekļus, tostarp: aizdevumu privātpersonām, mājokļa aizdevumu, parādu konsolidācijas aizdevumu, automašīnu aizdevumus, lauksaimniecības aizdevumu, biznesa aizdevumus un uzņēmumu aizdevumus ar 2% procentu likmi gadā, un tā ir fiksēta. Lūdzu, sazinieties ar mums pa e-pastu: (dakany.endre@gmail.com), lai iegūtu vairāk informācijas.
Steidzami aizdevuma piedāvājums.
|
| ENDRE |
2022-08-29 02:56:03 |
|
Vai vēlaties aizņemties naudu? ja jā, sazinieties ar mums šodien pa e-pastu: (dakany.endre@gmail.com)
Steidzami aizdevuma piedāvājums.
Steidzami aizdevumi, sazinieties ar mums: dakany.endre@gmail.com
|
| ENDRE |
2022-08-29 02:55:13 |
|
Vai jums ir nepieciešams aizdevums? privātais kredīts? Uzņēmējdarbības aizdevumi? Hipotēku? Lauksaimniecības un projektu finansēšana? Mēs piedāvājam visa veida aizdevumus ar 2% procentiem! Sazinieties ar mums pa e-pastu: dakany.endre@gmail.com
|
| KURT |
2022-08-23 15:49:56 |
|
Laba diena ,
Vienīgais interneta aizdevējs, kuram es uzticos, ir MOORE FINANCE Inc. Es saņēmu aizdevumu 225 000 eiro, lai paplašinātu savu biznesu, un divi mani draugi, kuriem es atsaucos uz uzņēmumu, arī ir saņēmuši savus aizdevumus no uzņēmuma bez jebkādām grūtībām. Es iesaku jums sazināties ar viņiem, ja jums ir nopietni nepieciešams aizdevums personīgiem vai biznesa mērķiem. Es liecinu par šo uzņēmumu, jo esmu patiesi pārsteigts par viņu pakalpojumiem. Zemāk atrodiet viņu e-pasta adreses, tās ir pazīstamas ar to, ka sniedz ļoti ātrus un uzticamus pakalpojumus.
moorefinance@yahoo.com
Tālr.: +1 373 227 1589
Paldies
Ar cieņu
Kurts Boekmans
|
| KURT |
2022-08-23 15:49:55 |
|
Laba diena ,
Vienīgais interneta aizdevējs, kuram es uzticos, ir MOORE FINANCE Inc. Es saņēmu aizdevumu 225 000 eiro, lai paplašinātu savu biznesu, un divi mani draugi, kuriem es atsaucos uz uzņēmumu, arī ir saņēmuši savus aizdevumus no uzņēmuma bez jebkādām grūtībām. Es iesaku jums sazināties ar viņiem, ja jums ir nopietni nepieciešams aizdevums personīgiem vai biznesa mērķiem. Es liecinu par šo uzņēmumu, jo esmu patiesi pārsteigts par viņu pakalpojumiem. Zemāk atrodiet viņu e-pasta adreses, tās ir pazīstamas ar to, ka sniedz ļoti ātrus un uzticamus pakalpojumus.
moorefinance@yahoo.com
Tālr.: +1 373 227 1589
Paldies
Ar cieņu
Kurts Boekmans
|
| KURT |
2022-08-23 15:49:55 |
|
Laba diena ,
Vienīgais interneta aizdevējs, kuram es uzticos, ir MOORE FINANCE Inc. Es saņēmu aizdevumu 225 000 eiro, lai paplašinātu savu biznesu, un divi mani draugi, kuriem es atsaucos uz uzņēmumu, arī ir saņēmuši savus aizdevumus no uzņēmuma bez jebkādām grūtībām. Es iesaku jums sazināties ar viņiem, ja jums ir nopietni nepieciešams aizdevums personīgiem vai biznesa mērķiem. Es liecinu par šo uzņēmumu, jo esmu patiesi pārsteigts par viņu pakalpojumiem. Zemāk atrodiet viņu e-pasta adreses, tās ir pazīstamas ar to, ka sniedz ļoti ātrus un uzticamus pakalpojumus.
moorefinance@yahoo.com
Tālr.: +1 373 227 1589
Paldies
Ar cieņu
Kurts Boekmans
|
| KURT |
2022-08-23 15:49:54 |
|
Laba diena ,
Vienīgais interneta aizdevējs, kuram es uzticos, ir MOORE FINANCE Inc. Es saņēmu aizdevumu 225 000 eiro, lai paplašinātu savu biznesu, un divi mani draugi, kuriem es atsaucos uz uzņēmumu, arī ir saņēmuši savus aizdevumus no uzņēmuma bez jebkādām grūtībām. Es iesaku jums sazināties ar viņiem, ja jums ir nopietni nepieciešams aizdevums personīgiem vai biznesa mērķiem. Es liecinu par šo uzņēmumu, jo esmu patiesi pārsteigts par viņu pakalpojumiem. Zemāk atrodiet viņu e-pasta adreses, tās ir pazīstamas ar to, ka sniedz ļoti ātrus un uzticamus pakalpojumus.
moorefinance@yahoo.com
Tālr.: +1 373 227 1589
Paldies
Ar cieņu
Kurts Boekmans
|
| ABDUR RAHEEM |
2022-08-23 01:25:53 |
|
Es esmu Čārlijs Bīns. es dzīvoju Toronto, Kanādā. Man bija nepieciešams kredīts, lai iegādātos māju, un es meklēju hipotekāro kredītu visās bankās, un man tika liegts, un es zaudēju cerības iegūt savu māju, līdz es atradu ziņu tāpat kā jūs lasāt manu ziņu. Es redzēju ziņu par aizdevuma kredītiestādi, kas izsniedz aizdevumu ar 2% procentiem, tāpēc es pieteicos Aizdevuma kredītiestādē. mans aizdevums 320 000 Kanādas dolāru tika piešķirts, tas bija kā sapnis, bet tas bija patiess, un tagad esmu Toronto mājas īpašnieks un maksāju hipotekāro kredītu bez stresa, kā arī es pieprasīju, vai man var piešķirt biznesa aizdevumu, un es biju arī piešķirts. Tagad es dzīvoju laimīgu dzīvi, es jums sniegšu padomu, ja jums ir finansiālas problēmas un jums ir nepieciešama nauda, lai tās atrisinātu, lai jūs varētu maksāt bez stresa, vienkārši sazinieties ar Aizdevuma kredītiestādi pa e-pastu (loancreditinstitutions00@gmail.com) Whatsapp: +393512114999
|
| CHRISTY WALTON |
2022-08-18 03:21:24 |
|
Sveiki, vai jūs meklējat parādu konsolidācijas aizdevumu, aizdevumus bez ķīlas, biznesa aizdevumus, hipotēkas aizdevumus, automašīnu aizdevumus, studentu aizdevumus, personīgos aizdevumus, riska kapitālu utt.! Esmu privāts aizdevējs, izsniedzu aizdevumus uzņēmumiem un privātpersonām ar zemām un saprātīgām procentu likmēm 2%. E-pasts uz: christywalton355@gmail.com
|
| JEROME BURCHAEL |
2022-08-08 10:34:10 |
|
Sveiki,
Konsolidēt savu parādu? Saņemt mājas aizdevumu? Nav kredīta pārbaudes? Jā tu vari...
Es piedāvāju plašu finanšu pakalpojumu klāstu, kas ietver: biznesa plānošanu, komercdarbības un attīstības finanses, īpašumus un hipotēkas, parādu konsolidācijas aizdevumus, biznesa aizdevumus, privātos aizdevumus, mājokļu refinansēšanu, viesnīcu kredītus studentu kredītus ar zemu procentu likmi 2%. Lūdzu, sazinieties ar mums, lai saņemtu drošu un nenodrošinātu aizdevumu. Ieinteresētajiem pretendentiem vajadzētu sazināties ar mums pa e-pastu: jeromeburchael91@gmail.com
Sazinieties ar manu whatsapp numuru: +12149748303
Ar cieņu,
Jerome Burchael aizdevuma uzņēmums.
|
| KREDīTS VISIEM |
2022-08-06 10:16:27 |
|
Laba diena,
Hopkinson Finance Limited privātais aizdevējs piedāvā:
Privātais aizdevums
Biznesa aizdevums
Finanšu pakalpojumi
Būvniecības kredīts
Naftas un gāzes aizdevums
Nekustamā īpašuma aizdevums
Konsultāciju pakalpojumi
Rehab kredīts
Vispārēji finanšu pakalpojumi
Sazināties: E-pasts: hopkinsonloan@hotmail.com.
Vietne: http://hopkinsonloans.webs.com/
Paldies.
|
| JEROME BURCHAEL |
2022-08-05 15:57:10 |
|
Sveiki,
Vai jums ir nepieciešams steidzams aizdevums? Mēs izsniedzam aizdevumu ieinteresētām personām, kuras godprātīgi meklē aizdevumu. Mēs piedāvājam plašu finanšu pakalpojumu klāstu, kas ietver: biznesa plānošanu, komerciālo un attīstības finansēšanu, īpašumus un hipotēkas, parādu konsolidācijas aizdevumus, uzņēmumu aizdevumus, privātos aizdevumus, mājokļu refinansēšanu, viesnīcu kredītus studentu kredītus ar zemu procentu likmi 2%. Lūdzu, sazinieties ar mums, lai saņemtu drošu un nenodrošinātu aizdevumu. Ieinteresētajiem pretendentiem vajadzētu sazināties ar mums pa e-pastu: jeromeburchael91@gmail.com
Sazinieties ar whatsapp: +12149748303
Ar cieņu,
Džeroms Buršela kungs
|
| CHRISTY WALTON |
2022-08-01 00:18:48 |
|
Sveiki visi!
Es esmu privāts aizdevējs, es piedāvāju aizdevumu 2% apmērā, tas ir likumīgs uzņēmums ar godu un atšķirību, mēs esam gatavi jums palīdzēt jebkurā jūsu finansiālajā problēmā, mēs piedāvājam visa veida aizdevumu, tāpēc, ja jūs interesē šis aizdevuma piedāvājums lūdzu, sazinieties ar mums pa e-pastu: (christywalton355@gmail.com) Norādiet arī tālāk norādīto informāciju, lai mēs varētu nekavējoties turpināt aizdevumu.
Vārds:
Nepieciešamā summa:
Ilgums:
valsts:
Aizdevuma mērķis:
Mēneša ienākumi:
Telefona numurs:
Sazinieties ar mums, norādot iepriekš minēto informāciju pa e-pastu: christywalton355@gmail.com
Ar cieņu jums visiem.
|
| MAEVA |
2022-07-30 17:37:41 |
|
aizdevuma piedāvājums starp nopietnu un godīgu cilvēku
Vai jums ir nepieciešams aizdevums? Mēs piedāvājam aizdevumus visām personām, kurām tas ir nepieciešams un kas spēj atmaksāt aizdevumu.
Lai iegūtu jebkādu informāciju, sazinieties ar mums pa šo e-pastu: maeva.emanuela@gmail.com. Paldies
|
| JEROME BURCHAEL |
2022-07-29 15:31:13 |
|
Sveiki,
Konsolidēt savu parādu? Saņemt mājas aizdevumu? Nav kredīta pārbaudes? Jā tu vari...
Es piedāvāju plašu finanšu pakalpojumu klāstu, kas ietver: biznesa plānošanu, komercdarbības un attīstības finanses, īpašumus un hipotēkas, parādu konsolidācijas aizdevumus, biznesa aizdevumus, privātos aizdevumus, mājokļu refinansēšanu, viesnīcu kredītus studentu kredītus ar zemu procentu likmi 2%. Lūdzu, sazinieties ar mums, lai saņemtu drošu un nenodrošinātu aizdevumu. Ieinteresētajiem pretendentiem vajadzētu sazināties ar mums pa e-pastu: jeromeburchael91@gmail.com
Sazinieties ar manu whatsapp numuru: +12149748303
Ar cieņu,
aizdevuma uzņēmums.
|
| JEROME BURCHAEL |
2022-07-23 16:52:13 |
|
Sveiki,
Vai esat biznesa virietis vai sieviete?, Vai jums ir nepieciešams aizdevums? Vai jus interese jebkura veida aizdevuma sanemšana? vai jums ir kads finansials juceklis, vai jums ir nepieciešami lidzekli sava biznesa uzsakšanai? Vai jums ir nepieciešams aizdevums, lai nokartotu paradu vai nomaksatu rekinus vai saktu labu biznesu? Vai jums ir zems kreditreitings un jums ir gruti iegut kapitala aizdevumu no vietejam bankam/citam finanšu iestadem?
sazinieties ar mums, izmantojot uznemuma e-pastu: jeromeburchael91@gmail.com
Sazinieties ari caur whatsapp: +12149748303
Aizdevums/finanšu sniedzeji.
Jerome Burchael
|
| CHRISTY WALTON |
2022-07-20 03:26:39 |
|
Sveiki, vai jūs meklējat parādu konsolidācijas aizdevumu, aizdevumus bez ķīlas, biznesa aizdevumus, hipotēkas aizdevumus, automašīnu aizdevumus, studentu aizdevumus, personīgos aizdevumus, riska kapitālu utt.! Esmu privāts aizdevējs, izsniedzu aizdevumus uzņēmumiem un privātpersonām ar zemām un saprātīgām procentu likmēm 2%. E-pasts uz: christywalton355@gmail.com
|
| CHRISTY WALTON |
2022-07-20 03:25:57 |
|
Sveiki, vai jūs meklējat parādu konsolidācijas aizdevumu, aizdevumus bez ķīlas, biznesa aizdevumus, hipotēkas aizdevumus, automašīnu aizdevumus, studentu aizdevumus, personīgos aizdevumus, riska kapitālu utt.! Esmu privāts aizdevējs, izsniedzu aizdevumus uzņēmumiem un privātpersonām ar zemām un saprātīgām procentu likmēm 2%. E-pasts uz: christywalton355@gmail.com
|
| MRS MARY JOHNSON |
2022-07-17 11:06:29 |
|
Sveiki! Šī ir laimīgā Benson LOAN COMPANY. Šajā uzņēmumā mēs sniedzam aizdevumus uz mūžu. Vai jums ir nepieciešams steidzams aizdevums, lai nodzēstu savus parādus, vai arī jums ir nepieciešams kapitāla aizdevums, lai uzlabotu savu biznesu? Vai bankas un citas finanšu aģentūras jūs ir noraidījušas? Vai jums ir nepieciešams konsolidācijas aizdevums vai hipotēkas aizdevums? Šodien mēs sakām apstāties un neskatīties tālāk, jo esam šeit, lai visas jūsu finansiālās problēmas padarītu par pagātni. Mēs aizdodam naudu privātpersonām, kurām nepieciešama finansiāla palīdzība, kurām ir slikta kredītvēsture vai nepieciešama nauda, lai samaksātu rēķinus, lai ieguldītu biznesā par 2%. Mēs vēlamies izmantot šo informācijas nesēju, lai informētu jūs par visu, ko piedāvājam uzticamu un noderīgu palīdzību, un jūs būsiet ar mieru jums aizdot. Mēs esam patiesi un turam savu vārdu un solījumus. Sazinieties ar mums šodien pa e-pastu: luckybensonloanfirm@gmail.com
|
| ENDRE |
2022-07-16 11:52:38 |
|
Dārgais vērtīgais klient,
Vai jums ir nepieciešams personīgais aizdevums, investīciju aizdevums, atvaļinājuma aizdevums, biznesa aizdevums, studentu aizdevums, mājokļa aizdevums vai jebkāda veida aizdevums? Mēs piedāvājam aizdevumus ar 2% procentu likmi. Mēs piedāvājam pieejamus aizdevumus no 2000 eiro līdz 8 000 000 eiro. Sazinieties ar mums pa e-pastu: (dakany.endre@gmail.com) Lai iegūtu vairāk informācijas
Steidzami aizdevuma piedāvājums.
|
| MR. SUMITI |
2022-07-13 00:43:57 |
|
Good day. I am a private loan lender that gives out both business and personal loans to individual at a low interest rate of 2% no matter your location. If you are interested Contact me (Whats App) number:+917310847059 sumitihomelend@gmail.com Mr. Sumiti
|
| MR. SUMITI |
2022-07-13 00:43:38 |
|
Good day. I am a private loan lender that gives out both business and personal loans to individual at a low interest rate of 2% no matter your location. If you are interested Contact me (Whats App) number:+917310847059 sumitihomelend@gmail.com Mr. Sumiti
|
| SMITHBRYANT135@GMAIL |
2022-07-07 09:50:22 |
|
HOW TO RECOVER BITCOIN / CRYPTO ASSETS LOST TO online theft,
Anyone out there seeking to recover any form of crypto coins and financial assets from online scams or wallet hackers ,also BTC sent to wrong addresses , i recommend this very dependable agency (wzardgarryspeedhack@gmail.com) . This recovery specialist was fantastic in helping me recover my BTC, lost to these evil con-artists after I provided all relative information and necessary requirements to this recovery specialist . Of my 1.9BTC stolen from my wallet a total of 1.6138 BTC was finally recovered . I was glad I was able to recover this much after losing even more to the fakes I initially contacted before I Was in contact with this excellent specialist .Go ahead, contact wzardgarryspeedhack@gmail.com if you are in such a situation seeking recovery from any form of online cryptocurrency scam ,narrate incidence and follow their instructions so they could help you with recuperation.
whatsapp: +1 (540) 209-1989
website: https://wzardgarryspeedhac.wixsite.com/my-site-1
|
| AMBER SHAW |
2022-07-04 05:52:19 |
|
Labdien, mani sauc Amber Shaw, un es esmu šeit, lai ieteiktu likumīgu aizdevuma aizdevēju, kurš man piešķīra aizdevumu 15 000 eiro apmērā, viņa vārds ir Otto kungs no Mobil Funds Inc., lūdzu, sazinieties ar viņu šodien, lai saņemtu aizdevuma pieprasījumu pa e-pastu: mobilfunding1999@gmail.com sazinieties ar viņu šodien un pateicos man vēlāk, jo viņš patiešām ir uzticams un uzticams cilvēks.
|
| VICTOR |
2022-06-30 02:31:27 |
|
Sveiki visiem, vai jums ir nepieciešams aizdevums, lai nomaksātu parādus vai izveidotu uzņēmumu? E-pasts: victorjohnson614@gmail.com vai Whatsapp +35677748901
|
| ABDUR RAHEEM |
2022-06-29 15:35:13 |
|
KĀ ES PAGADĒJĀ NEDĒĻĀ SAŅEMU SAVU VĒLAMO AIZDEVUMA SUMMU NO UZTICAMA UN UZTICĪMA AIZDEVUMA UZŅĒMUMA E-pasts tūlītējai atbildei: (loancreditinstitutions00@gmail.com) Whatsapp: (+393512114999)
Sveiki visiem, Mani sauc Abdur Raheem kungs, es esmu no Saūda Arābijas, bet es dzīvoju Latvijā
Es esmu šeit, lai liecinātu par to, kā es saņēmu savu aizdevumu no aizdevumu kredītiestādēm (loancreditinstitutions00@gmail.com) pēc tam, kad es divas reizes pieteicos no dažādiem aizdevumu aizdevējiem, kuri apgalvoja, ka ir aizdevēji tieši šeit, šajā forumā, es domāju, ka viņu aizdevumi ir reāli un es pieteicās, bet viņi man nekad nedeva aizdevumu, līdz kāds mans draugs mani iepazīstināja ar {Elijas kungu} Aizdevuma kredītiestāžu C.E.O, kurš apsolīja man palīdzēt ar aizdevumu pēc manas vēlēšanās, un viņš patiešām izdarīja, kā solīja, bez jebkādas kavēšanās. nekad nedomāju, ka joprojām ir uzticami aizdevumu aizdevēji, līdz satiku {Elija kungu}, kurš man patiešām palīdzēja ar aizdevumu 35 000 USD apmērā un mainīja manu dzīvi uz labo pusi. Es nezinu, vai arī jums ir nepieciešams steidzams aizdevums, tāpēc sazinieties ar kredītiestāžu e-pasta adresi: ( loancreditinstitutions00@gmail.com ) Aizdevumu kredītiestādēs ir visa informācija par to, kā ātri un ātri iegūt naudu.
nesāpīgi, izmantojot Whatsapp (+393512114999) E-pasts: ( loancreditinstitutions00@gmail.com)
Un apsveriet visas savas finansiālās problēmas atrisinātas un atrisinātas. Kopīgojiet to, lai palīdzētu kādai dvēselei tieši tagad. Paldies
|
| MACUS LUZEL |
2022-06-20 08:38:52 |
|
Ja jums ir liela parādu problēma un vēlaties atbrīvoties no šīs informācijas, es saņemu savu aizdevuma summu 300 000 eiro, lai pabeigtu ēkas projektu un nomaksātu parādus un atvērtu savu biznesu, tagad es un mani ģimene dzīvo laimīgu dzīvi.
Mani sauc Macus Luzel, es vēlos, lai jūs sazināties ar viņa e-pastu: collinsjamesfinance55@gmail.com
|
| MRROLANDJOHNSON62@GM |
2022-06-20 07:08:00 |
|
Dārgais draugs,
Ja jums ir nepieciešams jebkāda veida aizdevums: automašīna, hipotēka, bizness, laulība, algas diena,
Aizdevums privātpersonām un nekustamajam īpašumam utt. ar procentu likmi 3% gadā, laipni
sazinieties ar mums, lai iegūtu sīkāku informāciju. Aizdevums jums būs pieejams 2 - 3 laikā
darba dienas.
E-pasts: Mrrolandjohnson62@gmail.com
Paldies.
Rolanda Džonsona kungs
Administrācijas darbinieks.
|
| DJEGO FRANSISKO |
2022-06-20 00:12:03 |
|
Sveiki visiem, mani sauc Diego Francisco no Madrides, bet es uzaugu Hjūstonā, Teksasā. Esmu šeit, lai iepazīstinātu ar lielisku un uzticamu uzņēmumu ar 100% īstu Jessica Rojas aizdevumu uzņēmumu. Es biju ļoti sliktā situācijā, mana mamma ļoti cieta no krūts vēža, tāpēc man bija vajadzīga palīdzība no visur, bet tas bija veltīgi, tāpēc mans draugs mani iepazīstināja ar šo lielisko uzņēmumu, jo mana valsts piedāvā aizdevumu ar augstiem procentiem. nekas cits kā meklēt aizdevumu no citas valsts, mans draugs iepazīstināja ar Džesikas Rojas aizdevuma kompāniju. God Be The Glory, šis uzņēmums ir ļoti izcils un godīgs, tāpēc es lūdzu aizdevumu 50 000,00 USD apmērā manas mātes ārstēšanai un neliela biznesa uzsākšanai. Man par pārsteigumu uzreiz saņēmu brīdinājumu par aizdevumu, visa man prasītā informācija tika aizpildīta un apstiprināta, un, paldies Dievam, uzņēmuma vadība manu aizdevumu apstiprināja. un nākamo 24 stundu laikā es saņēmu brīdinājumu par aizdevuma saņemšanu, kā man solīja Džesikas Rojas kundzes aizdevuma klientu apkalpošana.
Šeit ir uzņēmuma pasts, ja plānojat ņemt aizdevumu {Jessicarojasloanfirm1998@hotmail.com] VAI WhatsApp tieši +1 (325) 231-4574
Vislabākie vēlējumi
Djego Fransisko
|
| DJEGO FRANSISKO |
2022-06-20 00:11:47 |
|
Sveiki visiem, mani sauc Diego Francisco no Madrides, bet es uzaugu Hjūstonā, Teksasā. Esmu šeit, lai iepazīstinātu ar lielisku un uzticamu uzņēmumu ar 100% īstu Jessica Rojas aizdevumu uzņēmumu. Es biju ļoti sliktā situācijā, mana mamma ļoti cieta no krūts vēža, tāpēc man bija vajadzīga palīdzība no visur, bet tas bija veltīgi, tāpēc mans draugs mani iepazīstināja ar šo lielisko uzņēmumu, jo mana valsts piedāvā aizdevumu ar augstiem procentiem. nekas cits kā meklēt aizdevumu no citas valsts, mans draugs iepazīstināja ar Džesikas Rojas aizdevuma kompāniju. God Be The Glory, šis uzņēmums ir ļoti izcils un godīgs, tāpēc es lūdzu aizdevumu 50 000,00 USD apmērā manas mātes ārstēšanai un neliela biznesa uzsākšanai. Man par pārsteigumu uzreiz saņēmu brīdinājumu par aizdevumu, visa man prasītā informācija tika aizpildīta un apstiprināta, un, paldies Dievam, uzņēmuma vadība manu aizdevumu apstiprināja. un nākamo 24 stundu laikā es saņēmu brīdinājumu par aizdevuma saņemšanu, kā man solīja Džesikas Rojas kundzes aizdevuma klientu apkalpošana.
Šeit ir uzņēmuma pasts, ja plānojat ņemt aizdevumu {Jessicarojasloanfirm1998@hotmail.com] VAI WhatsApp tieši +1 (325) 231-4574
Vislabākie vēlējumi
Djego Fransisko
|
| SHARON |
2022-06-19 22:32:01 |
|
Laba diena,
Vai jums ir kāda veida finansiāla palīdzība? vai Vai jums ir nepieciešams ātrais kredīts, lai nokārtotu parādus un atgrieztos savā biznesā ar ļoti zemu procentu likmi? Ja jā, e-pastu: mobilfunding1999@gmail.com, lai iegūtu vairāk informācijas, jo es saņēmu savu aizdevumu no viņiem, un viņi ir pilnībā uzticami.
Sveicieni.
|
| DJEGO FRANSISKO |
2022-06-19 03:38:57 |
|
Labdien visiem, mani sauc Djego Fransisko no Madrides, bet esmu uzaudzis Hjūstonā, Teksasā. Esmu šeit, lai iepazīstinātu ar lielisku un uzticamu uzņēmumu ar 100% īstu Džesikas Rojasa aizdevuma kompāniju. Es biju ļoti sliktā situācijā, mana mamma bija ļoti slima ar krūts vēzi, tāpēc man bija vajadzīga palīdzība no jebkuras vietas, bet tas bija veltīgi, tāpēc mans draugs mani iepazīstināja ar šo lielisko uzņēmumu, jo mana valsts piedāvā aizdevumu ar augstu procentu likmi Man nebija citas izvēles, kā meklēt aizdevumu no citas valsts, ko mans draugs iepazīstināja ar Džesikas Rojas Loan Company. God Be The Glory, šis uzņēmums ir ļoti lielisks un patiess, tāpēc es pieprasīju aizdevuma summu 50 000,00 USD manas mammas ārstēšanai un neliela biznesa uzsākšanai. lai būtu pārsteigts, es nekavējoties saņēmu brīdinājumu par aizdevuma pilnu informāciju, kas no manis tika aizpildīta un apstiprināta, un paldies Dievam, ka uzņēmuma vadība apstiprināja manu aizdevumu. un es saņēmu savu brīdinājumu par aizdevumu nākamo 24 stundu laikā, kā man solīja Džesikas Rojas Loan klientu apkalpošanas dienests.
Šeit ir uzņēmuma pasts, ja plānojat ņemt aizdevumu { Jessicarojasloanfirm1998@hotmail.com ] VAI WhatsApp tieši +1 (325) 231-4574
Ar laba vēlējumiem.
Djego Fransisko
|
| DJEGO FRANSISKO |
2022-06-19 03:38:23 |
|
Labdien visiem, mani sauc Djego Fransisko no Madrides, bet esmu uzaudzis Hjūstonā, Teksasā. Esmu šeit, lai iepazīstinātu ar lielisku un uzticamu uzņēmumu ar 100% īstu Džesikas Rojasa aizdevuma kompāniju. Es biju ļoti sliktā situācijā, mana mamma bija ļoti slima ar krūts vēzi, tāpēc man bija vajadzīga palīdzība no jebkuras vietas, bet tas bija veltīgi, tāpēc mans draugs mani iepazīstināja ar šo lielisko uzņēmumu, jo mana valsts piedāvā aizdevumu ar augstu procentu likmi Man nebija citas izvēles, kā meklēt aizdevumu no citas valsts, ko mans draugs iepazīstināja ar Džesikas Rojas Loan Company. God Be The Glory, šis uzņēmums ir ļoti lielisks un patiess, tāpēc es pieprasīju aizdevuma summu 50 000,00 USD manas mammas ārstēšanai un neliela biznesa uzsākšanai. lai būtu pārsteigts, es nekavējoties saņēmu brīdinājumu par aizdevuma pilnu informāciju, kas no manis tika aizpildīta un apstiprināta, un paldies Dievam, ka uzņēmuma vadība apstiprināja manu aizdevumu. un es saņēmu savu brīdinājumu par aizdevumu nākamo 24 stundu laikā, kā man solīja Džesikas Rojas Loan klientu apkalpošanas dienests.
Šeit ir uzņēmuma pasts, ja plānojat ņemt aizdevumu { Jessicarojasloanfirm1998@hotmail.com ] VAI WhatsApp tieši +1 (325) 231-4574
Ar laba vēlējumiem.
Djego Fransisko
|
| DJEGO FRANSISKO |
2022-06-19 03:37:58 |
|
Labdien visiem, mani sauc Djego Fransisko no Madrides, bet esmu uzaudzis Hjūstonā, Teksasā. Esmu šeit, lai iepazīstinātu ar lielisku un uzticamu uzņēmumu ar 100% īstu Džesikas Rojasa aizdevuma kompāniju. Es biju ļoti sliktā situācijā, mana mamma bija ļoti slima ar krūts vēzi, tāpēc man bija vajadzīga palīdzība no jebkuras vietas, bet tas bija veltīgi, tāpēc mans draugs mani iepazīstināja ar šo lielisko uzņēmumu, jo mana valsts piedāvā aizdevumu ar augstu procentu likmi Man nebija citas izvēles, kā meklēt aizdevumu no citas valsts, ko mans draugs iepazīstināja ar Džesikas Rojas Loan Company. God Be The Glory, šis uzņēmums ir ļoti lielisks un patiess, tāpēc es pieprasīju aizdevuma summu 50 000,00 USD manas mammas ārstēšanai un neliela biznesa uzsākšanai. lai būtu pārsteigts, es nekavējoties saņēmu brīdinājumu par aizdevuma pilnu informāciju, kas no manis tika aizpildīta un apstiprināta, un paldies Dievam, ka uzņēmuma vadība apstiprināja manu aizdevumu. un es saņēmu savu brīdinājumu par aizdevumu nākamo 24 stundu laikā, kā man solīja Džesikas Rojas Loan klientu apkalpošanas dienests.
Šeit ir uzņēmuma pasts, ja plānojat ņemt aizdevumu { Jessicarojasloanfirm1998@hotmail.com ] VAI WhatsApp tieši +1 (325) 231-4574
Ar laba vēlējumiem.
Djego Fransisko
|
| VICTOR |
2022-06-12 12:55:51 |
|
Sveiki, vai meklējat steidzamu aizdevumu, lai atrisinātu savas finansiālās problēmas? E-pasts: victorjohnson614@gmail.com vai WhatsApp: +35677748901
|
| SAUC DORISA |
2022-06-10 14:58:39 |
|
Kā es varētu nopirkt savu māju. Mani sauc Dorisa Sjūzena no Latvijas, es vēlos izteikt sirsnīgu pateicību Aizdevumu kredītiestādēm par palīdzību man ar $ 100 000 dolāru aizdevumu, lai nopirktu savu māju ar zemu procentu likmi 2% 30. maijā. 2022. gads pēc tam, kad mani noraidīja mana banka un citas finanšu aģentūras, kuras es apmeklēju. Vēlos arī uzrunāt plašāku sabiedrību, jo iesaku ikvienam, kam nepieciešama finansiāla palīdzība, sazināties ar šo uzņēmumu, lai nenonāktu nepareizās rokās, meklējot atbildīgu aizdevumu, izmantojot e-pasta adresi uzņēmums: (loancreditinstitutions00@gmail.com ) / vai Whatsapp: +393512114999
|
| KOLINSA DžEIMSA KUND |
2022-06-08 12:25:33 |
|
Mēs esam gatavi jums palīdzēt jebkurā jūsu finansiālajā problēmā, mēs piedāvājam visa veida aizdevumu, tāpēc, ja jūs interesē šis aizdevuma piedāvājums, lūdzu, sazinieties ar mums pa e-pastu: (collinsjamesfinance55@gmail.com) Procenti ir 2%
Vārds:
Valsts:
Telefona numurs :
Summa, kas nepieciešama kā aizdevums:
Aizdevuma mērķis:
E-pasts:
Kolinsa Džeimsa kundze
|
| AHMADS ASNULS BRUNEJ |
2022-06-06 15:20:25 |
|
Labrīt, mani sauc Ahmads Asnuls Brunejs un es dzīvoju latvijā. Vēlos runāt par Dieva labestību manā dzīvē pēc tik daudzu mēnešu mēģinājuma saņemt aizdevumu internetā, un es tiku izkrāpts, tāpēc es biju izmisumā iegūt aizdevums no likumīga aizdevēja tiešsaistē, tad es redzēju komentāru no drauga, vārdā Valters Čads, un viņš runāja par šo likumīgo aizdevuma kompāniju, kur viņš ātri un viegli saņēma aizdevumu bez jebkāda stresa, tāpēc viņš mani iepazīstināja ar dāmu vārdā MR. Julian Hoffman, kurš kontrolē uzņēmumu ar nosaukumu Loan Credit Institutions, tāpēc es pieteicos aizdevuma summai 75 000,00 dolāru apmērā ar zemu procentu likmi 2%, tāpēc aizdevums tika apstiprināts un iemaksāts arī manā bankas kontā. tas bija veids, kā es varēju saņemt aizdevumu, lai saglabātu savu salauzto biznesu, kā arī apmaksātu rēķinus, tāpēc iesaku ikvienam, kurš vēlas ātri un viegli saņemt aizdevumu, sazināties ar viņu Aizdevuma uzņēmumam pa e-pastu: (loancreditinstitutions00@gmail.com ) / vai Whatsapp: +393512114999, lai saņemtu jebkāda veida aizdevumu, kas jums nepieciešams, paldies, ka izlasījāt manas dzīves lieliskāko atsauksmi.
|
| CHRISTY WALTON |
2022-06-06 03:56:14 |
|
Sveiki visi!
Es esmu privāts aizdevējs, es piedāvāju aizdevumu 2% apmērā, tas ir likumīgs uzņēmums ar godu un atšķirību, mēs esam gatavi jums palīdzēt jebkurā jūsu finansiālajā problēmā, mēs piedāvājam visa veida aizdevumu, tāpēc, ja jūs interesē šis aizdevuma piedāvājums lūdzu, sazinieties ar mums pa e-pastu: (christywalton355@gmail.com) Norādiet arī tālāk norādīto informāciju, lai mēs varētu nekavējoties turpināt aizdevumu.
Vārds:
Nepieciešamā summa:
Ilgums:
valsts:
Aizdevuma mērķis:
Mēneša ienākumi:
Telefona numurs:
Sazinieties ar mums, norādot iepriekš minēto informāciju pa e-pastu: christywalton355@gmail.com
Ar cieņu jums visiem.
|
| HāRVIJS Lī |
2022-06-03 11:21:28 |
|
Es līdz šim nebiju ticējis Džesikas Rojas aizdevuma uzņēmumam… (Jessicarojasloanfirm1998@hotmail.com)
Sveiki visiem! Pēc tik daudz zaudējuma un finansiālām grūtībām es biju patiešām nomākts, neviens man nepalīdzēja, un viss, ko es varēju darīt, bija vienkārši sēdēt un skatīties, kā mans bizness krītas un gandrīz zaudēju savu dēlu slimības dēļ. Tomēr es satieku vecu koledžas biedru, kurš man pastāstīja par aizdevumu, ko viņš saņēma no Džesikas Rojas Loan Company, un līdz šim uzņēmums ir palīdzējis tik daudziem viņa draugiem, meklējot aizdevumu. Tāpēc es viņam teicu, ka aizdevuma saņemšana vairs nav mans stils, jo mana banka un cita aizdevuma kompānija, kurai es uzticējos, bija vilšanās, taču viņš uzstāja, ka es to piesaku, un tagad es varu dot ieguldījumu sava uzņēmuma pilnīgā krāšņumā. Es turpināšu liecināt Jessica Rojas Loan Company vārdā, jo viņi ir likuši mani atkal kļūt par vīrieti. Tāpēc, ja jūs interesē jebkāda veida aizdevuma iegūšana tikai ar 2% likmi, lūdzu, šodien nosūtiet viņiem e-pastu, izmantojot: {jessicarojasloanfirm1998@hotmail.com} VAI WhatsApp klientu apkalpošanas dienests (+1 (325) 231-4574). Es esmu Hārvijs Lī.
|
| HāRVIJS Lī |
2022-06-03 11:21:09 |
|
Es līdz šim nebiju ticējis Džesikas Rojas aizdevuma uzņēmumam… (Jessicarojasloanfirm1998@hotmail.com)
Sveiki visiem! Pēc tik daudz zaudējuma un finansiālām grūtībām es biju patiešām nomākts, neviens man nepalīdzēja, un viss, ko es varēju darīt, bija vienkārši sēdēt un skatīties, kā mans bizness krītas un gandrīz zaudēju savu dēlu slimības dēļ. Tomēr es satieku vecu koledžas biedru, kurš man pastāstīja par aizdevumu, ko viņš saņēma no Džesikas Rojas Loan Company, un līdz šim uzņēmums ir palīdzējis tik daudziem viņa draugiem, meklējot aizdevumu. Tāpēc es viņam teicu, ka aizdevuma saņemšana vairs nav mans stils, jo mana banka un cita aizdevuma kompānija, kurai es uzticējos, bija vilšanās, taču viņš uzstāja, ka es to piesaku, un tagad es varu dot ieguldījumu sava uzņēmuma pilnīgā krāšņumā. Es turpināšu liecināt Jessica Rojas Loan Company vārdā, jo viņi ir likuši mani atkal kļūt par vīrieti. Tāpēc, ja jūs interesē jebkāda veida aizdevuma iegūšana tikai ar 2% likmi, lūdzu, šodien nosūtiet viņiem e-pastu, izmantojot: {jessicarojasloanfirm1998@hotmail.com} VAI WhatsApp klientu apkalpošanas dienests (+1 (325) 231-4574). Es esmu Hārvijs Lī.
|
| D |
2022-06-01 02:51:16 |
|
Sveiki, mani sauc Karolīna Glovskas kundze. Es dzīvoju Apvienotajā Karalistē pagājušajā nedēļā. Es meklēju steidzamu aizdevumu USD 100 000 apmērā, lai uzsāktu uzņēmējdarbību un samaksātu savus rēķinus, kuriem pieteicos uzņēmumā Rank Carlos Loan Company Dienvidāfrikā. Mani izkrāpa par 2000 USD, jo pagājušajā nedēļā es joprojām meklēju aizdevumu, taču kādu dienu redzēju, ka Darvins internetā publicēja, kā viņš iekasē maksu no aizdevuma, tāpēc es sekoju saitei zem e-pasta adreses (loancreditinstitutions00@gmail.com ) Tad es pieteicos aizdevumam $ 100 000, bet pirms pieteikšanās baidījos, ka netikšu atkal izkrāpts, tāpēc visu savu darbu nodevu Dievam un aizdevu kredītiestādēm, tāpēc to pieprasīju. Es nekavējoties pieprasīju, lai 72 stundu laikā saņemtu aizdevumu savā bankas kontā šeit, Lielbritānijā, tāpēc vēlos to izmantot. Neliela iespēja pateikt visiem šeit Apvienotajā Karalistē, lai nepiesakās nevienam aizdevumam, kas nav apdrošināts un ka es zinu, ka ir daudzi aizdevēji, kuri patiesībā nav, bet šajā gadījumā par kredītiestādēm es uzticos viņam, jo esmu apmierināts ar to, ka viņš ir tiešām un viņa aizdevums ir apdrošināts, tāpēc es viņai šodien nosūtu zem viņas kontaktadreses. sazinieties ar uzņēmumu pa e-pastu: loancreditinstitutions00@gmail.com / WhatsApp: +393512114999 un arī Karolīna Glovskas kundze ir šeit, lai dzirdētu mūsu pašu liecību tāpat kā es, jo es nevaru paturēt šo lielisko stāstu no sirds, tāpēc es dalos ar katru. viena no labajām lietām, ko aizdevuma kredītiestādes ir palīdzējušas man un manai ģimenei, tāpēc uzturiet kontaktus, lai satiktos ar aizdevumu kredītiestādēm un izpirktu savu aizdevumu bez jebkādas ielas un vilšanās, gaidot jūsu lielisko liecību, un šodien mana dzīve ir mainījusi vēsturi uz Godību un Dievu. svētī jūs un jūsu ģimeni, sekojot mūsu valsts labumam Apvienotajā Karalistē un Dievs svētī aizdevumu kredītiestādes. sazinieties ar uzņēmumu pa e-pastu: loancreditinstitutions00@gmail.com / WhatsApp: +393512114999
|
| ZEPUEL JUKI |
2022-05-28 07:34:29 |
|
Sveiki, mani sauc Zepuel juki, es velos jums to visu pastastit, ka šis virietis varda Kolinss Džeimss ir likumigs aizdevejs, vinš palidz man ar 30 000 eiro, lai uzsaktu savu biznesu, es vairs nestradaju cilveku laba, neuzticos nevienam jo esmu ari apkrapta, pirms Linda, mans draugs, mani novirzija pie Vina, es dalos ar vina kontaktpersonu, ja kadam ir interese par aizdevumu, ludzu, sazinieties ar vina pa e-pastu: collinsjamesfinance55@gmail.com, ka ari jus varat sazinaties ar vinu vietne Whatsapp: +44 7495 701947
|
| FATIMA |
2022-05-26 14:36:38 |
|
Mani sauc Fatima. Es vēlos pateikties aizdevuma kredītiestādēm par man piešķirto aizdevumu 14 000 eiro apmērā. Ja jums ir nepieciešams ātrais kredīts, lai izvairītos no viltus aizdevēju apkrāpšanas un piesakieties no īstas aizdevuma kompānijas. Es sev teicu, ka jebkurš aizdevuma aizdevējs, kas varētu mainīt manu un manas ģimenes dzīvi pēc tam, kad tie ir vairāki tiešsaistes aizdevēju krāpnieki, es atsaukšos uz persona, kas aizdod Kredītiestādes, kas sniedza man un manai ģimenei laimi, lai gan sākumā man bija grūti uzticēties šim uzņēmumam, jo mana pieredze ar iepriekšējiem kredīta aizdevējiem, man bija nepieciešams aizdevums 14 000 eiro apmērā, lai sāktu savu dzīvi no sākuma. vientuļais vecāks ar 2 bērniem, viņš patiešām ir sieviete, kas baidās no Dieva, strādā ar cienījamu aizdevumu kompāniju. Ja jums ir nepieciešams aizdevums un esat 100% pārliecināts, ka atmaksāsiet aizdevumu, lūdzu, sazinieties ar uzņēmumu pa e-pastu: loancreditinstitutions00@gmail.com / WhatsApp: +393512114999
WhatsApp: +393512114999
|
| MARCUS |
2022-05-23 04:14:04 |
|
Laba diena Cienījamais aizdevuma meklētāj! Vai jums ir nepieciešams steidzams finanšu kredīts ***? * Ļoti ātrs un tiešs pārskaitījums uz jūsu bankas kontu * Atmaksa sākas astoņus mēnešus pēc tam, kad nauda nonāk jūsu bankas kontā * Zema procentu likme 1% * Ilgtermiņa atmaksa (1-30 gadi) Augums * Elastīgs ***pēc tam katru mēnesi maksājums *. Cik ilgi tas tiks finansēts? Pēc pieteikuma iesniegšanas *** Sākotnējo atbildi varat sagaidīt mazāk nekā 24 stundu laikā, finansējums 72-96 stundu laikā pēc tam, kad būs saņemta no jums nepieciešamā informācija. Ja jūs interesē, sazinieties ar mums pa: unisoncreditunion344@gmail.com un aizpildiet zemāk esošo aizdevuma pieteikuma veidlapu. Aizdevuma pieteikuma veidlapa: Pilns vārds:................... Valsts:................................ Valsts:.............. Pilsēta:............. Dzimums:................ ......... Tālruņa numurs:......... Aizdevuma summa :....... Ikmēneša ienākumi:.......... Nodarbošanās:................... .... Aizdevuma termiņš:...................... ................. Aizdevuma mērķis:........................ .... ....... Epasta adrese:...................... ................ Vai esat jau pieteicies?................... Mēs gaidām, lai jūsu steidzamā pieteikuma veidlapa tiks aizpildīta ok. Nosūtiet mums e-pastu:
( unisoncreditunion344@gmail.com ) Ar cieņu. UNISON kungs Uzņēmuma nosaukums: UNISON CREDIT UNION e-pasta adrese: unisoncreditunion344@gmail.com
E-pasta adrese: unisoncreditunion344@gmail.com
E-pasta adrese: unisoncreditunion344@gmail.com
|
| MARCUS |
2022-05-23 04:13:26 |
|
Laba diena Cienījamais aizdevuma meklētāj! Vai jums ir nepieciešams steidzams finanšu kredīts ***? * Ļoti ātrs un tiešs pārskaitījums uz jūsu bankas kontu * Atmaksa sākas astoņus mēnešus pēc tam, kad nauda nonāk jūsu bankas kontā * Zema procentu likme 1% * Ilgtermiņa atmaksa (1-30 gadi) Augums * Elastīgs ***pēc tam katru mēnesi maksājums *. Cik ilgi tas tiks finansēts? Pēc pieteikuma iesniegšanas *** Sākotnējo atbildi varat sagaidīt mazāk nekā 24 stundu laikā, finansējums 72-96 stundu laikā pēc tam, kad būs saņemta no jums nepieciešamā informācija. Ja jūs interesē, sazinieties ar mums pa: unisoncreditunion344@gmail.com un aizpildiet zemāk esošo aizdevuma pieteikuma veidlapu. Aizdevuma pieteikuma veidlapa: Pilns vārds:................... Valsts:................................ Valsts:.............. Pilsēta:............. Dzimums:................ ......... Tālruņa numurs:......... Aizdevuma summa :....... Ikmēneša ienākumi:.......... Nodarbošanās:................... .... Aizdevuma termiņš:...................... ................. Aizdevuma mērķis:........................ .... ....... Epasta adrese:...................... ................ Vai esat jau pieteicies?................... Mēs gaidām, lai jūsu steidzamā pieteikuma veidlapa tiks aizpildīta ok. Nosūtiet mums e-pastu:
( unisoncreditunion344@gmail.com ) Ar cieņu. UNISON kungs Uzņēmuma nosaukums: UNISON CREDIT UNION e-pasta adrese: unisoncreditunion344@gmail.com
E-pasta adrese: unisoncreditunion344@gmail.com
E-pasta adrese: unisoncreditunion344@gmail.com
|
| VICTOR |
2022-05-21 10:53:35 |
|
Sveiki, vai meklējat steidzamu aizdevumu, lai atrisinātu savas finansiālās problēmas? E-pasts: victorjohnson614@gmail.com vai WhatsApp: +35677748901
|
| JENIFER YUAL |
2022-05-19 15:59:37 |
|
!!! NEINJICĒJIET, VELTIET LAIKU ŠĪS LIECĪBAS IZLASĪŠANAI!
Mani sauc JENIFER YUAL Es esmu 3 gadus vecu meitu māte jau 40 gadus. Pirms mēneša mana meita cieta no smadzeņu vēža. Man bija jānodrošina viņa atveseļošanās, tāpēc sāku meklēt 20 000 eiro kredītu. Bet diemžēl es apkrāpu aizdevējam, man nebūtu izvēles, kurā es saglabāju savu laimi, ka mana drosme mani ielika īstajā cilvēkā Kolinss Džeimss ir cilvēks, kurš man iedeva 47 000 eiro 72 stundu laikā tikai ar bankas pārskaitījumu, kas ļāva dziedinot manu meitu un atverot manu mazo uzņēmumu aizdevumu meklēšanu. Šis tests ir paredzēts tiem no jums, kuriem ir apnicis, ka bankas tiek noraidītas. Jūs zināt pietiekami daudz, lai izsekotu savām finansiālajām problēmām. Jums ir nepieciešams steidzams, ātrs, uzticams un likumīgs veids, kā finansēt vienu adresi, kuru varat satikt. E-pasta adrese: pa e-pastu: collinsjamesfinance55@gmail.com Izmantojot Whatsapp: +44 7495 701947
|
| SANNA GAUJA |
2022-05-17 17:07:12 |
|
Labvakar, mani labie ļaudis, es vēlos ar jums pastāstīt šīs interesantās labās ziņas par to, kā es saņemu aizdevumu no Kolinsa Džeimsa finanšu kompānijas, viņš ir labs cilvēks ar bailēm no Dieva, viņš palīdz man ar aizdevuma summu 150 000,00 eiro, lai pabeigtu māju. projekts tagad, mēs esam jaunajā mājā, lai Dievs tur savu roku jūsu biznesā.
Mani sauc Sanna Gauja. Dzīvoju Olainē ar ģimeni. Jūs varat sazināties ar viņu pa kontaktpersonu:
KONTAKTINFORMĀCIJA:
pa e-pastu: collinsjamesfinance55@gmail.com
Izmantojot Whatsapp: +44 7495 701947
|
| SINTIJA HUKA |
2022-05-16 10:29:29 |
|
LIECIBA LIECIBA LIECIBA
Mani sauc Sintija Huka, es esmu no Latvijas, es velos izmantot šo iespeju, lai dalitos šaja lieciba ar jums visiem, es esmu loti priecigs jums visiem to pateikt, jo es un mana gimene dzivojam loti laimigi, jo palidz šis virietis, varda Kolinss Džeimss. kad esmu nopietnos parados, vinš izglabj manu un manu gimeni no nepatikšanam. Lai Visvarenais Dievs uzlabo savu biznesu Amen. Kolinss Džeimss man aizdeva aizdevuma summu 200 000 eiro pec liguma dokumenta parakstišanas, es sanemu savu aizdevumu bez krapniecibas pedam, ar prieku dališos ar šo liecibu visiem, kam nepieciešama finansiala palidziba. Ludzu, sazinieties ar vinu šaja Via info!
KONTAKTINFORMACIJA:
Izmantojot e-pastu: collinsjamesfinance55@gmail.com
Pa e-pastu: emanuelloanfirm501@gmail.com
Izmantojot Whatsapp: +44 7495 701947
|
| SINTIJA HUKA |
2022-05-16 10:06:35 |
|
LIECIBA LIECIBA LIECIBA
Mani sauc Sintija Huka, es esmu no Latvijas, es velos izmantot šo iespeju, lai dalitos šaja lieciba ar jums visiem, es esmu loti priecigs jums visiem to pateikt, jo es un mana gimene dzivojam loti laimigi, jo palidz šis virietis, varda Kolinss Džeimss. kad esmu nopietnos parados, vinš izglabj manu un manu gimeni no nepatikšanam. Lai Visvarenais Dievs uzlabo savu biznesu Amen. Kolinss Džeimss man aizdeva aizdevuma summu 200 000 eiro pec liguma dokumenta parakstišanas, es sanemu savu aizdevumu bez krapniecibas pedam, ar prieku dališos ar šo liecibu visiem, kam nepieciešama finansiala palidziba. Ludzu, sazinieties ar vinu šaja Via info!
KONTAKTINFORMACIJA:
Izmantojot e-pastu: collinsjamesfinance55@gmail.com
Pa e-pastu: emanuelloanfirm501@gmail.com
Izmantojot Whatsapp: +44 7495 701947
|
| KOLINSS DžEIMSS KUNG |
2022-05-16 09:37:11 |
|
LIECIBA LIECIBA LIECIBA
Mani sauc Sintija Huka, es esmu no Latvijas, es velos izmantot šo iespeju, lai dalitos šaja lieciba ar jums visiem, es esmu loti priecigs jums visiem to pateikt, jo es un mana gimene dzivojam loti laimigi, jo palidz šis virietis, varda Kolinss Džeimss. kad esmu nopietnos parados, vinš izglabj manu un manu gimeni no nepatikšanam. Lai Visvarenais Dievs uzlabo savu biznesu Amen. Kolinss Džeimss man aizdeva aizdevuma summu 200 000 eiro pec liguma dokumenta parakstišanas, es sanemu savu aizdevumu bez krapniecibas pedam, ar prieku dališos ar šo liecibu visiem, kam nepieciešama finansiala palidziba. Ludzu, sazinieties ar vinu šaja Via info!
KONTAKTINFORMACIJA:
Izmantojot e-pastu: collinsjamesfinance55@gmail.com
Pa e-pastu: emanuelloanfirm501@gmail.com
Izmantojot Whatsapp: +44 7495 701947
|
| KOLINSS DžEIMSS KUNG |
2022-05-16 09:14:10 |
|
SVEIKI VISIEM.
Legitima aizdevuma sanemšana vienmer ir bijusi liela problema klientu finanšu vajadzibam. Kredita un kilas jautajums ir tas, par ko klienti arvien vairak satraucas, meklejot aizdevumu pie likumiga aizdeveja. 2000 virs, savukart maksimala summa ir 10 000 000,00. Ja velaties sanemt finansialu palidzibu, ludzu, sazinieties ar mums pa e-pastu: collinsjamesfinance55@gmail.com vai Whatsapp: +1 (903) 326-3619
Vards: .........
Adrese: ..........
Valsts: ........
Statuss: .......
Pasta indekss: .........
Mobilais: .........
Dzimšanas datums: .........
Dzimums: .........
Gimenes stavoklis: .........
Nodarbošanas: .........
Nepieciešama summa: ......
Aizdevuma merkis: ......
Tiklidz esat pabeidzis iepriekš mineto, nekavejoties un velak iesniedziet to musu Protokola/Inspekcijas departamentam
parlukprogrammas un lietojumprogrammu apstradei.
Sveicinati,
Kolinss Džeimss kungs
|
| SINTIJA HUKA |
2022-05-15 15:04:00 |
|
Mani sauc Sintija Huka, es esmu no Latvijas, es velos izmantot šo iespeju, lai dalitos šaja lieciba ar jums visiem, es esmu loti priecigs jums visiem to pateikt, jo es un mana gimene dzivojam loti laimigi, jo palidz šis virietis, varda Kolinss Džeimss. kad esmu nopietnos parados, vinš izglabj manu un manu gimeni no nepatikšanam. Lai Visvarenais Dievs uzlabo savu biznesu Amen. Kolinss Džeimss man aizdeva aizdevuma summu 200 000 eiro pec liguma dokumenta parakstišanas, es sanemu savu aizdevumu bez krapniecibas pedam, ar prieku dališos ar šo liecibu visiem, kam nepieciešama finansiala palidziba. Ludzu, sazinieties ar vinu šaja Via info!
KONTAKTINFORMACIJA:
Izmantojot e-pastu: collinsjamesfinance55@gmail.com
Pa e-pastu: emanuelloanfirm501@gmail.com
Izmantojot Whatsapp: +44 7495 701947
|
| SīTIJA PURīTE |
2022-05-11 07:54:39 |
|
Lūdzu, pasteidzieties un saņemiet kredītu pie īsta aizdevēja, ko sauc par COLLINS JAMES FINANCE COMPANY. Es arī saņēmu savu aizdevuma summu 45 000 EUR, lai samaksātu īri un sāktu savu aptiekas biznesu tagad. Es ļoti pateicos jums, kungs, par jūsu palīdzību. Es apsolu tevi nepievilt. Es noteikti turēšu savu vārdu un atgriezīšu summu kā vienošanās datumu. Jūs esat labs cilvēks ar bailēm no Dieva, lai visvarenais Dievs turpina svētību jūsu darbam. Āmen. Cilvēki ārpus mājas Ja vēlaties sazināties ar viņu pēc palīdzības, lūdzu, sazinieties ar viņu pa e-pastu: collinsjamesfinance55@gmail.com
Mani sauc Sītija Purīte no Pļaviņām ar savu jauko ģimeni.
Kolinsam Džeimsam ir laba procentu likme, kas ir 2%
|
| COLLINS JAMES |
2022-05-11 07:07:39 |
|
Vai jums ir nepieciešams steidzams aizdevums, lai nodzēstu savus parādus, vai arī jums ir nepieciešams kapitāla aizdevums, lai uzlabotu savu biznesu? Vai esat saņēmis atteikumu no bankām un citām finanšu aģentūrām? Vai jums ir nepieciešama kredīta apvienošana vai hipotēka? Nemeklējiet tālāk, kā mēs esam šeit, lai visas jūsu finansiālās problēmas kļūtu par pagātni.
Šī ir vienkārša aizdevumu kompānija. Piedāvājam aizdevumus tiem, kurus interesē saprātīga 2% procentu likme. Diapazons svārstās no 5000 USD līdz 100 000 000,00 USD.
Mūsu aizdevumi ir labi apdrošināti, jo mūsu prioritāte ir maksimāla drošība.
Sazinieties ar mums pa e-pastu: (collinsjamesfinance55@gmail.com)
Sveicieni
Kolinss Džeimss (collinsjamesfinance55@gmail.com)
2% sākotnējais aizdevums un garantija jums visiem.
|
| COLLINS JAMES |
2022-05-11 06:45:20 |
|
Vai meklējat līdzekļus kredītu un parādu dzēšanai? { (collinsjamesfinance55@gmail.com) } Ir šeit, lai apturētu jūsu finanšu problēmas. Piedāvājam visa veida aizdevumus (personīgo kredītu, komerckredītu u.c.) Izsniedzam kredītu ar procentu likmi 2%. Ieinteresētajiem pretendentiem jāsazinās ar mums pa e-pastu: (collinsjamesfinance55@gmail.com)
Lūdzu, aizpildiet zemāk esošo pieteikuma veidlapu:
- Pilns nosaukums:
- Nepieciešamā aizdevuma summa:
- Aizdevuma termiņš:
- Aizdevuma mērķis:
- Pilsēta valsts:
- Tālrunis:
- Kā tu uzzināji par mums:
Ja vēlaties saņemt aizdevumu, lūdzu, rakstiet mums ar aizdevuma prasību. Lūdzu, sazinieties ar mums pa e-pastu: (collinsjamesfinance55@gmail.com)
|
| COLLINS JAMES |
2022-05-11 06:15:05 |
|
Vai jums ir nepieciešams steidzams aizdevums, lai nodzēstu savus parādus, vai arī jums ir nepieciešams kapitāla aizdevums, lai uzlabotu savu biznesu? Vai esat saņēmis atteikumu no bankām un citām finanšu aģentūrām? Vai jums ir nepieciešama kredīta apvienošana vai hipotēka? Nemeklējiet tālāk, kā mēs esam šeit, lai visas jūsu finansiālās problēmas kļūtu par pagātni.
Šī ir vienkārša aizdevumu kompānija. Piedāvājam aizdevumus tiem, kurus interesē saprātīga 2% procentu likme. Diapazons svārstās no 5000 USD līdz 100 000 000,00 USD.
Mūsu aizdevumi ir labi apdrošināti, jo mūsu prioritāte ir maksimāla drošība.
Sazinieties ar mums pa e-pastu: (collinsjamesfinance55@gmail.com)
Sveicieni
Kolinss Džeimss (collinsjamesfinance55@gmail.com)
2% sākotnējais aizdevums un garantija jums visiem.
|
| COLLINS JAMES |
2022-05-10 05:59:36 |
|
Tas ir Collins James Finance, mēs piedāvājam aizdevumus privātpersonām un uzņēmumiem visā pasaulē, mēs esam reģistrēts un licencēts kreditēšanas uzņēmums. Vai jums ir nepieciešams aizdevums, lai apmaksātu rēķinus? Vai jums ir nepieciešams aizdevums, lai sāktu uzņēmējdarbību? vai jums ir nepieciešams kredīts dzīvokļa iegādei? mēs piedāvājam visu veidu aizdevumus no 2000 eiro līdz 100 000 000 eiro, ja esat ieinteresēts saņemt jebkura veida aizdevumu. Sazinieties ar mums pa e-pastu: collinsjamesfinance55@gmail.com
|
| LIDIJA PURīTE |
2022-04-22 08:17:39 |
|
Tas ir Collins James Finance, mēs piedāvājam aizdevumus privātpersonām un uzņēmumiem visā pasaulē, mēs esam reģistrēts un licencēts kreditēšanas uzņēmums. Vai jums ir nepieciešams aizdevums, lai apmaksātu rēķinus? Vai jums ir nepieciešams aizdevums, lai sāktu uzņēmējdarbību? vai jums ir nepieciešams kredīts dzīvokļa iegādei? mēs piedāvājam visu veidu aizdevumus no 2000 eiro līdz 100 000 000 eiro, ja esat ieinteresēts saņemt jebkura veida aizdevumu. Sazinieties ar mums pa e-pastu: collinsjamesfinance55 @gmail.com
|
| FRANK FRED |
2022-04-21 05:28:06 |
|
wow, tas ir neticami, es tikko saņēmu savu aizdevumu € 52 000 no Collins James Bank ar ļoti zemu procentu likmi, šis uzņēmums ir ļoti reāls un 100% likumīgs, lūdzu, neļaujiet sevi apmānīt, jūs varat sazināties ar šo uzņēmumu pa e-pastu: collinsjamesfinance55 @gmail.com
|
| KOLINSS DžEIMSS KUNG |
2022-04-13 18:10:43 |
|
SVEIKI VISIEM.
Leģitīma aizdevuma saņemšana vienmēr ir bijusi liela problēma klientu finanšu vajadzībām. Kredīta un ķīlas jautājums ir tas, par ko klienti arvien vairāk satraucas, meklējot aizdevumu pie likumīga aizdevēja. 2000 virs, savukārt maksimālā summa ir 10 000 000,00. Ja vēlaties saņemt finansiālu palīdzību, lūdzu, sazinieties ar mums pa e-pastu: collinsjamesfinance55@gmail.com vai Whatsapp: +1 (903) 326-3619
Vārds: .........
Adrese: ..........
Valsts: ........
Statuss: .......
Pasta indekss: .........
Mobilais: .........
Dzimšanas datums: .........
Dzimums: .........
Ģimenes stāvoklis: .........
Nodarbošanās: .........
Nepieciešamā summa: ......
Aizdevuma mērķis: ......
Tiklīdz esat pabeidzis iepriekš minēto, nekavējoties un vēlāk iesniedziet to mūsu Protokola/Inspekcijas departamentam
pārlūkprogrammas un lietojumprogrammu apstrādei.
Sveicināti,
Kolinss Džeimss kungs
|
| FRANK FRED |
2022-04-07 09:34:40 |
|
Vai jums ir neapmaksāti rēķini vai jums ir nepieciešams steidzams aizdevums? Neuztraucieties pārāk daudz, mēs piedāvājam visu veidu aizdevumus ar procentu likmi 2%. Ja jūs interesē, lūdzu, atbildiet mums tagad, lai iegūtu sīkāku informāciju.
Izmantojot e-pasta informāciju:
collinsjamesfinance55@gmail.com
emanuelloanfirm501@gmail.com
ffred5107@gmail.com
|
| FRANK FRED |
2022-04-07 03:00:21 |
|
Sveiki, visi, kas lasa šo vēstuli, lūdzu, sazinieties ar e-pastu, lai saņemtu steidzamu aizdevumu jūsu biznesa izaicinājumiem vai ģimenes laimei. Lūdzu, sazinieties ar šo:
Izmantojot informāciju:
collinsjamesfinance55@gmail.com
emanuelloanfirm501@gmail.com
ffred5107@gmail.com
|
| VICTOR |
2022-04-06 05:25:15 |
|
Sveiki, vai meklējat steidzamu aizdevumu, lai atrisinātu savas finansiālās problēmas? E-pasts: victorjohnson614@gmail.com vai WhatsApp: +35677748901
|
| BRYAN STEFAN |
2022-03-10 18:13:20 |
|
Sveiki Vai jums ir nepieciešams steidzams aizdevums, lai atrisinātu savas finanšu vajadzības? Mēs piedāvājam aizdevumus no 2000.00 līdz 50.000.000.00, mēs esam uzticami, spēcīgi, ātri un dinamiski, bez kredīta pārbaudes un piedāvājam 100% ārvalstu aizdevuma garantijas pārejas periodā. Mēs arī izsniedzām jebkuru valūtas aizdevumu ar 2% procentu visiem aizdevumiem Ja jūs interesē, sazinieties ar mums, izmantojot šo e-pastu: (bryanstefanloanfirm@gmail.com) (bryanstefanloanfirm@outlook.com) vai WhatsApp: +919654763221.
|
| AKVIFOLIJA |
2022-03-06 16:02:19 |
|
jums ir nepieciešams personīgais aizdevums vai biznesa aizdevums ar zemu procentu likmi 3%, ja jā, rakstiet uz: customerservice002022@outlook.com
|
| ENDRE |
2022-03-02 03:23:04 |
|
Vai jums ir nepieciešama jebkāda veida finansiāla palīdzība? Personīgā nauda? Biznesa nauda? Hipotēkas nauda? Uzņēmuma nauda? Lauksaimniecības un projektu finansējums? Izsniedzam naudu ar 2% procentu likmi! Sazināties: (dakany.endre@gmail.com)
Steidzami naudas piedāvājums.
|
| ENDRE |
2022-03-02 03:22:31 |
|
Vai jums ir nepieciešama jebkāda veida finansiāla palīdzība? Personīgā nauda? Biznesa nauda? Hipotēkas nauda? Uzņēmuma nauda? Lauksaimniecības un projektu finansējums? Izsniedzam naudu ar 2% procentu likmi! Sazināties: (dakany.endre@gmail.com)
Steidzami naudas piedāvājums.
|
| AGNESE |
2022-02-25 19:33:35 |
|
Es saņemu 200 000 eiro no šī e-pasta, kas nodrošina tūlītēju aizdevumu tikai 24 stundu laikā, tie bija tikai 2% procenti, es šodien biju ļoti priecīgs, ja vēlaties saņemt aizdevumu no viņiem, šis ir viņu e-pasts: loaninstant790 @ gmail. com)
|
| CRIF |
2022-02-19 15:08:00 |
|
Vai jums ir nepieciešams ātrs ilgtermiņa vai īstermiņa aizdevums ar salīdzinoši zemu procentu likmi līdz 2%? Mēs piedāvājam biznesa aizdevumu, personīgo aizdevumu, mājas aizdevumu, auto aizdevumu, studentu kredītu, parādu konsolidācijas aizdevumu utt. neatkarīgi no jūsu kredītvēstures.
Aizdevumi privātpersonām (nodrošināti un nenodrošināti)
Uzņēmējdarbības aizdevumi (nodrošināti un nenodrošināti)
Konsolidācijas aizdevums un daudz kas cits.
Sazinieties ar mums, lai iegūtu plašāku informāciju par aizdevuma piedāvājumu, un mēs atrisināsim jūsu jautājumu
finansiāla problēma. sazinieties ar mums pa e-pastu: crifcreditmanagement23@gmail.com
|
| BEN |
2022-02-10 22:18:39 |
|
vai vēlaties aizņemties naudu ar zemu procentu likmi 2%, ja jā, sazinieties ar mums pa e-pastu (benleon340@gmail.com)
|
| BEN |
2022-02-07 13:57:38 |
|
Vai jums ir nepieciešams aizdevums? Vai jums ir finanšu krīze vai jums ir nepieciešama nauda, lai sāktu savu biznesu? Vai jums ir nepieciešams aizdevums, lai nomaksātu parādus vai samaksātu rēķinus vai sāktu labu biznesa pakalpojumu? Vai jums ir zems kredītreitings un jums ir grūti aizņemties no vietējām bankām un citām finanšu iestādēm? Šeit ir jūsu iespēja saņemt aizdevumu no mūsu organizācijas. Mēs piedāvājam aizdevumus privātpersonām šādiem un citiem mērķiem. Aizdevumi privātpersonām, biznesa paplašināšana, pakalpojumi un biznesa uzsākšana, bizness pakalpojumu jomā, izglītība, aizdevumi parādu konsolidācijai, liela nauda. Mēs piedāvājam aizdevumus ar zemu procentu likmi 2%. Sazinieties ar mums šodien pa e-pastu: (benleon340@gmail.com)
|
| SOFIJA |
2022-01-26 14:41:09 |
|
Labdien! Es esmu Sofija, šobrīd dzīvoju Latvijā, šobrīd esmu atraitne ar diviem bērniem. Esmu tik laimīgs šodien, es saņēmu savu aizdevuma summu 50000 eiro no īsta un uzticama aizdevēja ar nosaukumu Paul Green kungs, Viņi ir uzticami un legit aizdevumu aizdevēji. Ja kādam steidzami nepieciešams aizdevums, laipni sazinieties ar Paul Green kungu. Lūdzu, pasakiet viņiem to, kas jums iesaka.
Šeit ir Paul Green kungs. WHATSAPP TIKAI: +91 834 690 96 83
E-pasts: ziploanfinance@protonmail.com
|
| ANTONIO |
2022-01-24 04:45:26 |
|
Vai jums ātri un bez stresa jāpiešķir personīgais vai biznesa aizdevums? Vai jums šodien ir nepieciešams 2% ārkārtas aizdevums? Rakstiet mums pa e-pastu (officeloan975@gmail.com)
Aizdevuma piedāvāšana ir obligāta.
|
| JURGEN STEFAN |
2022-01-17 00:52:32 |
|
Es esmu privāts aizdevējs un investors, vai jums ir nepieciešams likumīgs, godīgs, cienījams un ātrs aizdevums? Varu palīdzēt ar 100% garantētu apkalpošanu, piedāvāju uzņēmumiem un individuālos kredītus, papildus finansējam arī visa veida projektus. Lai iegūtu papildinformāciju, apmeklējiet: jurgenstefanfinancialservice@gmail.com jurgenstefanfinancialservice@outlook.com vai Whatsapp +919654763221
|
| LOAN OFFER |
2022-01-14 03:40:41 |
|
Sveiki kungs / kundze
Mēs piedāvājam aizdevumus no: 10 000 līdz 9 500 000 € ar procentu likmi 2%.
Jūs zināt, ka aizņemties naudu ir aizliegts.
Jums ir jāsaņem kredīts, pievērsiet uzmanību jomām, kurās mēs varam.
Palidzet tev:
* Finansiāli
* Uzņēmuma aizdevums
* Hipotēkas
* Investīciju aizdevumi
* Auto kredīti
* Parādu konsolidācija
* Kredītlīnija
* Otrā hipotēka
* Kredīta atpirkšana
* Aizdevumi privātpersonām
*Studenta aizņēmums
Jūs meklējat projektu un jums ir nepieciešams finansējums, jums ir vajadzīga nauda, lai samaksātu rēķinus, nauda, ko ieguldīt biznesā.
sazinieties ar mums pa e-pastu [ georgewilliamsloanfirm333@gmail.com ]
|
| MEAFNAN16@GMAIL.COM |
2022-01-14 03:40:24 |
|
Sveiki kungs / kundze
Mēs piedāvājam aizdevumus no: 10 000 līdz 9 500 000 € ar procentu likmi 2%.
Jūs zināt, ka aizņemties naudu ir aizliegts.
Jums ir jāsaņem kredīts, pievērsiet uzmanību jomām, kurās mēs varam.
Palidzet tev:
* Finansiāli
* Uzņēmuma aizdevums
* Hipotēkas
* Investīciju aizdevumi
* Auto kredīti
* Parādu konsolidācija
* Kredītlīnija
* Otrā hipotēka
* Kredīta atpirkšana
* Aizdevumi privātpersonām
*Studenta aizņēmums
Jūs meklējat projektu un jums ir nepieciešams finansējums, jums ir vajadzīga nauda, lai samaksātu rēķinus, nauda, ko ieguldīt biznesā.
sazinieties ar mums pa e-pastu [ georgewilliamsloanfirm333@gmail.com ]
|
| JURGEN STEFAN |
2022-01-13 12:21:41 |
|
Es esmu privāts aizdevējs un investors, vai jums ir nepieciešams likumīgs, godīgs, cienījams un ātrs aizdevums? Varu palīdzēt ar 100% garantētu apkalpošanu, piedāvāju uzņēmumiem un individuālos kredītus, papildus finansējam arī visa veida projektus. Lai iegūtu papildinformāciju, apmeklējiet: jurgenstefanfinancialservice@gmail.com jurgenstefanfinancialservice@outlook.com vai Whatsapp +919654763221
|
| MR ROLAND JOHNSON |
2022-01-10 07:09:22 |
|
Rolands Džonsons kungs KREDĪTU FINANSIJS
Vai jums ir nepieciešams īsts aizdevums, lai nokārtotu savus rēķinus un uzsāktu biznesu? sazinieties ar mums tagad, norādot savu informāciju, lai saņemtu labu aizdevumu ar zemu likmi 3% gadā, nosūtiet mums e-pastu: Vai jums ir nepieciešamas personīgās finanses? Biznesa naudas finanses? Finanses bez ķīlas Ātras un vienkāršas finanses? Ātrs pieteikšanās process? Finanses. Sniegtie pakalpojumi ietver: *Parādu konsolidācijas finanses *Uzņēmējdarbības finansēšanas pakalpojumi *Personīgo finanšu pakalpojumi Palīdzība Lūdzu, rakstiet, ja interesē mūsu procentu likme. E-pasts: Mrrolandjohnson62@gmail.com
|
| MR ROLAND JOHNSON |
2022-01-10 07:08:22 |
|
Rolands Džonsons kungs KREDĪTU FINANSIJS
Vai jums ir nepieciešams īsts aizdevums, lai nokārtotu savus rēķinus un uzsāktu biznesu? sazinieties ar mums tagad, norādot savu informāciju, lai saņemtu labu aizdevumu ar zemu likmi 3% gadā, nosūtiet mums e-pastu: Vai jums ir nepieciešamas personīgās finanses? Biznesa naudas finanses? Finanses bez ķīlas Ātras un vienkāršas finanses? Ātrs pieteikšanās process? Finanses. Sniegtie pakalpojumi ietver: *Parādu konsolidācijas finanses *Uzņēmējdarbības finansēšanas pakalpojumi *Personīgo finanšu pakalpojumi Palīdzība Lūdzu, rakstiet, ja interesē mūsu procentu likme. E-pasts: Mrrolandjohnson62@gmail.com
|
| TūLīTēJS KREDīTS |
2022-01-07 01:21:12 |
|
Tas tiek darīts, lai sabiedrība uzzinātu, ka ātro kredītu kompānija paver finansiālās iespējas ikvienam, kam nepieciešama jebkāda finansiāla palīdzība. Mēs izsniedzam aizdevumus ar likmi 2% no summas fiziskām, juridiskām personām un organizācijām skaidrā un saprotamā veidā. Sazinieties ar mums šodien pa e-pastu: loaninstant790@gmail.com
|
| FRED |
2022-01-06 23:57:36 |
|
Nāciet tagad un saņemiet steidzamu aizdevumu fredlarryloanfirm@gmail.com
Šeit mēs esam gatavi apstrādāt jūsu aizdevumu
Laba diena,
Vai esat biznesa vīrietis vai sieviete? Ir pienācis laiks piepildīt jūsu sapni, mēs esam sertificēts aizdevumu uzņēmums, piedāvājam aizdevumus ar zemu procentu likmi 3%, privātpersonām un uzņēmumiem visā pasaulē, jebkurā valūtā, kuru vēlaties, mārciņas, dolārs, eiro utt.
Paļaujieties uz mums šodien, lai saņemtu ātru un garantētu aizdevumu
sazinieties ar mums, izmantojot
E-pasts: (fredlarryloanfirm@gmail.com)
Whatsapp numurs: +967737371424
|
| INCRED FINANCE |
2022-01-04 08:52:16 |
|
Piesakieties tūlīt, lai saņemtu jebkāda veida aizdevumus...Mūsu piedāvātie pakalpojumi ir:...
✔️ Personīgais aizdevums
✔️Auto kredīts
✔️ Mājas kredīts
✔️Aizdevums uzņēmējdarbībai
✔️Zelta aizdevums
Ja jums ir kādi jautājumi un jautājumi, sazinieties ar pa e-pastu: INCREDFINANCE@YAHOO.COM
WHATSAPP: +91-9751608547
|
| LOAN OFFER |
2022-01-02 03:44:22 |
|
Sveiki kungs / kundze
Mēs piedāvājam aizdevumus no: 10 000 līdz 9 500 000 € ar procentu likmi 2%.
Jūs zināt, ka aizņemties naudu ir aizliegts.
Jums ir jāsaņem kredīts, pievērsiet uzmanību jomām, kurās mēs varam.
Palidzet tev:
* Finansiāli
* Uzņēmuma aizdevums
* Hipotēkas
* Investīciju aizdevumi
* Auto kredīti
* Parādu konsolidācija
* Kredītlīnija
* Otrā hipotēka
* Kredīta atpirkšana
* Aizdevumi privātpersonām
*Studenta aizņēmums
Jūs meklējat projektu un jums ir nepieciešams finansējums, jums ir vajadzīga nauda, lai samaksātu rēķinus, nauda, ko ieguldīt biznesā.
sazinieties ar mums pa e-pastu [ georgewilliamsloanfirm333@gmail.com ]
|
| MEAFNAN16@GMAIL.COM |
2022-01-02 03:43:11 |
|
Sveiki kungs / kundze
Mēs piedāvājam aizdevumus no: 10 000 līdz 9 500 000 € ar procentu likmi 2%.
Jūs zināt, ka aizņemties naudu ir aizliegts.
Jums ir jāsaņem kredīts, pievērsiet uzmanību jomām, kurās mēs varam.
Palidzet tev:
* Finansiāli
* Uzņēmuma aizdevums
* Hipotēkas
* Investīciju aizdevumi
* Auto kredīti
* Parādu konsolidācija
* Kredītlīnija
* Otrā hipotēka
* Kredīta atpirkšana
* Aizdevumi privātpersonām
*Studenta aizņēmums
Jūs meklējat projektu un jums ir nepieciešams finansējums, jums ir vajadzīga nauda, lai samaksātu rēķinus, nauda, ko ieguldīt biznesā.
sazinieties ar mums pa e-pastu [ georgewilliamsloanfirm333@gmail.com ]
|
| LOAN |
2021-12-30 21:28:23 |
|
Vai esat daudz parādā finanšu iestādēm un jums ir nepieciešama palīdzība, lai no tā atbrīvotos? Kur nepieciešami līdzekļi dažādu aktivitāšu vai projektu finansēšanai. Iesniedziet savu pieprasījumu tūlīt. Aizdevums tiek apstiprināts mazāk nekā 48 stundu laikā bez ilgstoša administratīvā procesa un pēc tam ātri pārskaitīts uz jūsu bankas kontu.
E-pasts: officeloan975@gmail.com
|
| MR ROLAND JOHNSON |
2021-12-30 00:05:48 |
|
VAI JUMS NEPIECIEŠAMS PERSONAS/UZŅĒMUMA/IEGULDĪJUMU KREDĪTS? SAZINIETIES AR MUMS ŠODIEN, PA e-pastu Mrrolandjohnson62@gmail.com
Mēs esam izsnieguši vairāk nekā 1 miljardu USD biznesa aizdevumus vairāk nekā 15 000 uzņēmumu īpašniekiem, tāpat kā jūs. Mēs izmantojam mūsu pašu noteikto riska tehnoloģiju, lai sniegtu jums pareizo biznesa aizdevumu, lai jūs varētu attīstīt savu biznesu. Mūsu pakalpojumi ir ātri un uzticami, aizdevumi tiek apstiprināti 24 stundu laikā pēc veiksmīgas pieteikuma iesniegšanas. Mēs piedāvājam aizdevumus no minimālā diapazona no USD 5000 līdz USD 500 miljoniem.
Vai jums ir problēmas ar neapmaksātiem rēķiniem un nezināt, uz kuru pusi iet vai kur vērsties? Kā būtu ar cienījamas parādu konsolidācijas firmas atrašanu, kas var palīdzēt samazināt ikmēneša iemaksu, lai jums būtu pieejamas atmaksas iespējas, kā arī būtu iespēja elpot, kad mēneša beigās ir jāsamaksā rēķini? Rolands Džonsons ®Capital Managements Inc™ ir atbilde. Samaziniet savus maksājumus, lai atvieglotu ikmēneša izdevumu slodzi. E-pasts (Mrrolandjohnson62@gmail.com)
VAI NEPIECIEŠAMS 100% FINANSES? mēs izsniedzam aizdevumus ar pieņemamu procentu likmi 2%
Uzņēmuma ®Capital Managements Inc™ (Mrrolandjohnson62@gmail.com) mērķis ir nodrošināt izcilus profesionālus finanšu pakalpojumus.
Mūsu pakalpojumi ietver šādus pakalpojumus:
* Kravas automašīnu aizdevumi
* Aizdevumi privātpersonām
* Parādu konsolidācijas aizdevumi
* Auto kredīti
* Uzņēmējdarbības aizdevumi
* Kredīti izglītībai
* Hipotēka
*Refinansēšanas aizdevumi
* Mājas kredīti
Mēs sniedzam jums aizdevumu ar zemu procentu likmi 2% un aizdevuma termiņu no 1 līdz 30 gadiem, lai atmaksātu aizdevumu (nodrošinātu un nenodrošinātu). Neatturiet savas finansiālās problēmas pie sevis, lai jūs nebūtu parādu saimnieks vai finansiālās spriedzes, tāpēc jums ir steidzami jāsazinās ar mums, lai saņemtu savu finanšu problēmu risinājumu. Mums būs liels prieks, ja būsiet finansiāli stabili. E-pasts (Mrrolandjohnson62@gmail.com)
PIEZĪME. Ņemiet vērā, ka faila apstrāde aizņems tikai mazāk nekā 24 stundas, un tas ir 100% garantēts neatkarīgi no jūsu kredītreitinga.
Ar cieņu,
Rolands Džonsons
E-pasts: Mrrolandjohnson62@gmail.com
Mēs esam sertificēti, un jūsu privātums ar mums ir 100% drošībā. Vairs neuztraucieties par saviem aizdevumiem vai finansēm.
|
| ENDRE |
2021-12-21 17:24:12 |
|
Vai jums ir nepieciešams aizdevums? privātie aizdevumi? biznesa aizdevumi? hipotekārie kredīti? lauksaimniecības un projektu finansējumu? izsniedzam visa veida kredītus ar 2% procentu likmi! Saziņas e-pasts; dakany.endre@gmail.com
|
| SCOTTIES |
2021-12-06 09:05:29 |
|
Thanks for accepting me on your blog. I will bring many other bloggers to get your RSS roots to get more informed by your related articles.
I tumble on a list of medical certifications courses online and I have decided to share with you the good news because I know many people are searching for jobs online, this may help many people to get employed directly abroad.
We have examples of ATTACHED MEDICAL CERTIFICATION COURSES you can use these to get your job abroad, I will also take the advantage to ask for your permission to join our 179.3k members TELEGRAM GROUP
to share with us your ideas or any latest update on your blog.
Thanks I am Scott from Globex, we are expecting you on our platform.
|
| MARY MASON |
2021-11-05 20:50:50 |
|
Sky Wealth aizdevumu firma, mēs izsniedzam aizdevumus ar procentu likmi 0f 3%.
Labdien, kungs/mamma.
Mēs esam privāts uzņēmums un piedāvājam aizdevumus ar zemām procentu likmēm, nosakot aizdevuma apmēru no 100 miljoniem aizdevuma uzkrājumi 1000 eiro aizdevums biznesa attīstībai: malas / biznesa paplašināšanas konkurētspēja.
(Whatsapp numurs: +79652625435)
Mēs piedāvājam dažādus aizdevumus
* Aizdevumi privātpersonām (nodrošināti un nenodrošināti)
* Uzņēmējdarbības aizdevumi (nodrošināti un nenodrošināti)
* Konsolidācijas aizdevums
Nav avansa maksas
Mēs pateicamies, ka veltījāt laiku, lai izlasītu šo sludinājumu. Lai iegūtu plašāku informāciju un jautājumus, nosūtiet mums e-pastu jau šodien
skywealthloanfirm@gmail.com
skywealthloanfirm@gmail.com
skywealthloanfirm@gmail.com
Jūs varat arī sazināties ar mums caur uzņēmumu
vietne: http://skywealthloanfirm.wixsite.com/webworld
Mērijas Meisonas kundze.
|
| MEAFNAN16@GMAIL.COM |
2021-11-04 19:53:47 |
|
Sveiki kungs / kundze
Mēs piedāvājam aizdevumus no: 10 000 līdz 9 500 000 € ar procentu likmi 2%.
Jūs zināt, ka aizņemties naudu ir aizliegts.
Jums ir jāsaņem kredīts, atzīmējiet jomas, kurās mēs varam.
palīdzēt tev:
* Finansiāli
* Hipotēkas
* Investīciju aizdevumi
* Auto kredīti
* Parādu konsolidācija
* Kredītlīnija
* Otrā hipotēka
* Kredīta atpirkšana
* Aizdevumi privātpersonām
Jūs meklējat projektu un jums ir nepieciešams finansējums, jums ir vajadzīga nauda, lai samaksātu rēķinus, nauda, lai ieguldītu biznesā.
sazinieties ar ASV pa e-pastu [ georgewilliamsloanfirm333@gmail.com ]
|
| MEAFNAN16@GMAIL.COM |
2021-11-04 19:52:53 |
|
Sveiki kungs / kundze
Mēs piedāvājam aizdevumus no: 10 000 līdz 9 500 000 € ar procentu likmi 2%.
Jūs zināt, ka aizņemties naudu ir aizliegts.
Jums ir jāsaņem kredīts, atzīmējiet jomas, kurās mēs varam.
palīdzēt tev:
* Finansiāli
* Hipotēkas
* Investīciju aizdevumi
* Auto kredīti
* Parādu konsolidācija
* Kredītlīnija
* Otrā hipotēka
* Kredīta atpirkšana
* Aizdevumi privātpersonām
Jūs meklējat projektu un jums ir nepieciešams finansējums, jums ir vajadzīga nauda, lai samaksātu rēķinus, nauda, lai ieguldītu biznesā.
sazinieties ar ASV pa e-pastu [ georgewilliamsloanfirm333@gmail.com ]
|
| FRED |
2021-10-21 13:19:13 |
|
Nāciet un saņemiet steidzamu aizdevumu uz e -pastu fredlarryloanfirm@gmail.com
Šeit mēs esam gatavi apstrādāt jūsu aizdevumu
Laba diena,
Vai esat biznesa vīrietis vai sieviete? Ir pienācis laiks piepildīt jūsu sapni, mēs esam sertificēts aizdevumu uzņēmums, mēs piedāvājam aizdevumus ar zemu procentu likmi 3%, privātpersonām un uzņēmumiem visā pasaulē jebkurā vēlamajā valūtā, mārciņās, dolāros, eiro utt.
Paļaujieties uz mums šodien, lai saņemtu ātru un garantētu aizdevumu
sazinieties ar mums, izmantojot
E -pasts: (fredlarryloanfirm@gmail.com) vai (fredlarryloanfirm@hotmail.com)
Whatsapp numurs: +2347061892843
Whatsapp numurs: +967737371424
|
| VALēRIJA MARKO |
2021-10-16 11:36:57 |
|
Mani sauc Valērija Marko, pirms 6 mēnešiem mans bizness sabruka, man nebija cerību atgūt savu biznesu. Es mēģināju aizņemties naudu no bankas, bet manā kredītkartē nebija pietiekami daudz naudas un manta nebija kā ķīla, lai saņemtu aizdevumu, tad mana ļoti tuvā draudzene Kamila Djego iepazīstināja mani ar īstu aizdevuma devēju, izmantojot internetu GINA MORGAN LOAN COMPANY LTD. Šī sievietes aizdevumu kompānija varēja man piešķirt aizdevumu 160,000 eiro apmērā bez jebkāda īpašuma kā ķīlas vai kredītkartes, bet viņa to man uzticēja. Tāpēc mani draugi es sev teicu, kāpēc es esmu egoists, tāpēc es nolēmu dalīties ar šo informāciju ar visiem. Ja jums ir nepieciešams aizdevums no uzticama aizdevuma aizdevēja, sazinieties ar Džinu Morganu, izmantojot viņas e -pastu: ginamorganloancompany@gmail.com
|
| VALēRIJA MARKO |
2021-10-16 11:36:03 |
|
Mani sauc Valērija Marko, pirms 6 mēnešiem mans bizness sabruka, man nebija cerību atgūt savu biznesu. Es mēģināju aizņemties naudu no bankas, bet manā kredītkartē nebija pietiekami daudz naudas un manta nebija kā ķīla, lai saņemtu aizdevumu, tad mana ļoti tuvā draudzene Kamila Djego iepazīstināja mani ar īstu aizdevuma devēju, izmantojot internetu GINA MORGAN LOAN COMPANY LTD. Šī sievietes aizdevumu kompānija varēja man piešķirt aizdevumu 160,000 eiro apmērā bez jebkāda īpašuma kā ķīlas vai kredītkartes, bet viņa to man uzticēja. Tāpēc mani draugi es sev teicu, kāpēc es esmu egoists, tāpēc es nolēmu dalīties ar šo informāciju ar visiem. Ja jums ir nepieciešams aizdevums no uzticama aizdevuma aizdevēja, sazinieties ar Džinu Morganu, izmantojot viņas e -pastu: ginamorganloancompany@gmail.com
|
| GEORGE MASON |
2021-10-13 14:40:34 |
|
Laipni lūdzam LIELAJĀ ILLUMINATI BRĀLĪBĀ.
PIEZĪME: NAV CILVĒKA ZIEDOŠANAS IESAISTĪTĀS UN GAISMAS ARĪ PIEPRASĪJUMS PAR REĢISTRĀCIJAS MAKSU
Vai esat biznesa vīrietis vai sieviete, mākslinieks, politiķis, mūziķis, vai vēlaties būt bagāts, slavens, spēcīgs dzīvē, pievienoties Illuminati brālības kultam šodien un nedēļas laikā iegūt tūlītēju bagātīgu summu, un bez maksas mājās.kur jūs izvēlaties dzīvot šajā pasaulē un saņemt arī 1 000 000 ASV dolāru, lai sāktu jaunu dzīvi.
IEGUVUMI, KAS DOTI JAUNIEM DALĪBNIEKIEM, KURI PIEVIENOJAS ILLUMINATI.
1. Naudas atlīdzība USD 1 000 000 USD apmērā
2. New Sleek Dream CAR, kura vērtība ir USD 50 000 USD
3. Sapņu māja, kas iegādāta valstī pēc jūsu izvēles
4. V.I.P ārstēšana visās pasaules lidostās
. Ja jūs interesē, zvaniet aģentam tūlīt +1 334-708-0560 vai whatsapp viņu
+1 334-708-0560) Lai sazinātos ar mūsu partneriem, jums jābūt vismaz 20 gadus vecam. Nepievienojieties, ja esat students
|
| FRED |
2021-10-08 01:22:36 |
|
Nāciet un saņemiet steidzamu aizdevumu uz e -pastu fredlarryloanfirm@gmail.com
Šeit mēs esam gatavi apstrādāt jūsu aizdevumu
Laba diena,
Vai esat biznesa vīrietis vai sieviete? Ir pienācis laiks piepildīt jūsu sapni, mēs esam sertificēts aizdevumu uzņēmums, mēs piedāvājam aizdevumus ar zemu procentu likmi 3%, privātpersonām un uzņēmumiem visā pasaulē jebkurā vēlamajā valūtā, mārciņās, dolāros, eiro utt.
Paļaujieties uz mums šodien, lai saņemtu ātru un garantētu aizdevumu
sazinieties ar mums, izmantojot
E -pasts: (fredlarryloanfirm@gmail.com) vai (fredlarryloanfirm@hotmail.com)
Whatsapp numurs: +2347061892843
Whatsapp numurs: +967737371424
|
| MEAFNAN16@GMAIL.COM |
2021-10-06 12:49:49 |
|
Vai jūs meklējat līdzekļus, lai atmaksātu kredītus un parādus?
{georgewilliamsloanfirm333@gmail.com} Ir gatavs pārtraukt jūsu finansiālās problēmas. Mēs piedāvājam visu veidu aizdevumus (personīgais aizdevums, komerciālais aizdevums utt.). Mēs izsniedzam aizdevumu ar 2%procentu likmi. Ieinteresētajiem pretendentiem jāsazinās ar mums pa e -pastu: {georgewilliamsloanfirm333@gmail.com}
Lūdzu, aizpildiet zemāk esošo pieteikuma veidlapu:
- Pilns nosaukums:
- Nepieciešamā aizdevuma summa:
- aizdevuma ilgums:
- aizdevuma mērķis:
- Pilsēta valsts:
- Tālrunis:
- Kā jūs par mums dzirdējāt: [georgewilliamsloanfirm333@gmail.com]
|
| HUMMELS |
2021-10-05 19:35:46 |
|
Labdien, Vai jums ir nepieciešams ārkārtas aizdevums, lai apmierinātu savas finansiālās vajadzības? Mēs piedāvājam aizdevumus no 2 000,00 līdz 100 000 000,00, mēs esam uzticami, spēcīgi, ātri un dinamiski, bez kredīta pārbaudes un piedāvājam 100% garantiju ārvalstu aizdevumiem šī pārveduma laikā. Mēs arī izsniedzām aizdevumu visā valūtā ar 2% procentiem visiem aizdevumiem un bez avansa maksājumiem .... Ja jūs interesē, sazinieties ar mums, izmantojot šo e -pastu. Lūdzu, sazinieties ar mums, ja jūs interesē, izmantojot: {jameskelvine28@gmail.com}, un jūs būsit pilnībā apmierināts.
|
| STIPENDIARY |
2021-09-26 19:15:24 |
|
I am a veteran with the world trade organization humanitarian delivery agency, an ancillary of the UN..
Mrs. Bernice Clark 69 died of covid-19 related virus. Before her death she left manifold amounts with a security & finance firm in Europe for preservation. she disclosed that the trust-funds should not be left unclaimed. You are to stand as the stipendiary to late Bernice Clark.
Get back to us with your interestedness at (wldtrdeorgnztionhumangcy@gmail.com). and contact data for all other formalities which are certifiable.
Hoping to have an opulence pact with you on communal trust.
|
| PATRīCIJA MāRTIņA |
2021-09-17 15:18:14 |
|
Mani sauc Patrīcija Mārtiņa, vientuļā vecāka. Kādu dienu, izmantojot internetu, es saskāros ar (Pedro Gonsalo) liecību par to, kā GINA MORGAN viņam palīdzēja ar aizdevumu. Tāpēc es pieteicu aizdevumu 85,000 eiro apmērā uz 5 gadiem no uzņēmuma, izmantojot viņas pastu (ginamorganloancompany@gmail.com). Kad es piesakos aizdevumam, es devu solījumu Dievam, ka, ja es saņemšu aizdevumu ļaujiet pasaulei uzzināt, ko viņš man darīja, man par lielāko pārsteigumu, nepilnu 48 stundu laikā mans aizdevums tika piešķirts ar 2%procentu likmi. Tagad esmu nokārtojis vīra parādu un sāku jaunu dzīvi un savu biznesu. Es tikko izpildīju savu solījumu. Tātad, ja vēlaties saņemt jebkāda veida aizdevumu tikai par 2%, lūdzu, sazinieties ar GINA MORGAN LOAN COMPANY LTD uz viņas e -pastu: ginamorganloancompany@gmail.com
|
| PATRīCIJA MāRTIņA |
2021-09-17 15:17:22 |
|
Mani sauc Patrīcija Mārtiņa, vientuļā vecāka. Kādu dienu, izmantojot internetu, es saskāros ar (Pedro Gonsalo) liecību par to, kā GINA MORGAN viņam palīdzēja ar aizdevumu. Tāpēc es pieteicu aizdevumu 85,000 eiro apmērā uz 5 gadiem no uzņēmuma, izmantojot viņas pastu (ginamorganloancompany@gmail.com). Kad es piesakos aizdevumam, es devu solījumu Dievam, ka, ja es saņemšu aizdevumu ļaujiet pasaulei uzzināt, ko viņš man darīja, man par lielāko pārsteigumu, nepilnu 48 stundu laikā mans aizdevums tika piešķirts ar 2%procentu likmi. Tagad esmu nokārtojis vīra parādu un sāku jaunu dzīvi un savu biznesu. Es tikko izpildīju savu solījumu. Tātad, ja vēlaties saņemt jebkāda veida aizdevumu tikai par 2%, lūdzu, sazinieties ar GINA MORGAN LOAN COMPANY LTD uz viņas e -pastu: ginamorganloancompany@gmail.com
|
| SUSAN BENSON |
2021-09-15 05:19:10 |
|
Labdien, dāmas un kungi, vai jums nepieciešama finansiāla palīdzība? Es esmu Sjūzena Bensone. Esmu aizdevējs un arī finanšu konsultants.
Vai jums ir nepieciešams biznesa aizdevums, personīgais aizdevums, hipotēkas aizdevums vai aizdevums, lai pabeigtu projektu? Ja jūsu atbilde ir apstiprinoša, es ieteiktu jums sazināties ar manu uzņēmumu. Mēs sniedzam visu veidu aizdevumu pakalpojumus, ieskaitot ilgtermiņa un īstermiņa aizdevumus. Lai iegūtu vairāk informācijas, rakstiet mums pa e -pastu: (sunshinefinancialgroupinc@gmail.com) vai rakstiet man ziņojumu tieši uz WhatsApp, izmantojot: +447903159998, un saņemiet atbildi uzreiz.
Mēs esam visaptverošs finanšu pakalpojumu uzņēmums un esam apņēmušies palīdzēt jums īstenot visas jūsu vēlmes. Mēs specializējamies strukturētu finanšu risinājumu nodrošināšanā privātpersonām un uzņēmumiem visefektīvākajā un ātrākajā veidā.
Šeit ir daži iemesli, kāpēc jums vajadzētu sazināties ar mums, lai saņemtu aizdevumu;
* Ērtības - Jūs varat pieteikties aizdevumam jebkurā laikā un vietā.
* Elastīga summa - jūs izlemjat, cik daudz vēlaties aizņemties.
* Ātrs tiešais finansējums - saņemiet aizdevumu 24 stundu laikā pēc apstiprināšanas.
* Elastīga procentu likme - Pieejama procentu likme 3%.
* Augstas apstiprināšanas likmes - jums ir 99,9% iespēja saņemt aizdevumu
* Elastīga atmaksa - Jums ir jāizvēlas atmaksas datums katru nedēļu, mēnesi vai gadu 1-30 gadus.
* Vienkārša tiešsaistes lietojumprogramma.
* Personalizētas norādes un zināšanas.
* Nav slēptu maksu
Nezaudējiet iespēju finanšu trūkuma dēļ. Sazinieties ar manu uzņēmumu tūlīt, mēs varam jums palīdzēt ar aizdevumu, jo esam palīdzējuši daudzām personām un organizācijām, kuras visā pasaulē ir saskārušās ar finansiālām grūtībām
Lai iegūtu vairāk informācijas par mūsu aizdevuma piedāvājumu, lūdzu, nosūtiet mums savu aizdevuma pieprasījumu, izmantojot
E -pasts: sunshinefinancialgroupinc@gmail.com
WhatsApp/Telegram: +447903159998
Starpnieki/konsultanti/brokeri ir laipni aicināti ņemt līdzi savus klientus un ir 100% aizsargāti. Pilnībā pārliecināti, mēs strādāsim kopā visu iesaistīto pušu labā.
|
| LUISS ROLANDS |
2021-09-14 18:15:53 |
|
Mani sauc Luiss Rolands, man ir jauka sieva un 3 bērni. pirms nedēļas man izmisīgi vajadzēja naudu, tāpēc es izdomāju aizdevumu, tad es saskāros ar tik daudziem krāpniekiem, kuri no manis iekasēja 2500 eiro un atsakās sūtīt man e -pastu. Es kļuvu ļoti neapmierināta un galu galā piedzērusies, vienā uzticīgā dienā es devos uz klubu dzert dzērienu, kur es satiku vecu draugu, es viņam izstāstīju visu, kas ar mani notika, viņš iepazīstināja mani ar GINA MORGAN LOAN COMPANY LTD un iedeva man savu e -pastu adresi (ginamorganloancompany@gmail.com), viņš man pastāstīja, kā Uzņēmums palīdzēja viņam un viņa ģimenei. Es nekavējoties sazinājos ar viņu, kad nokļuvu mājās, man tika paziņoti noteikumi un noteikumi. Pēc aizdevuma apstrādes mazāk nekā 24 stundu laikā es saņēmu savu aizdevumu 80 000 eiro apmērā. Tātad, ja jūs interesē aizdevums, varat arī sazināties ar viņuWhats App: +393510840300 un e -pastu: ginamorganloancompany@gmail.com
|
| BENSON LEASE IZPILDD |
2021-09-13 20:40:00 |
|
Godātais kungs/kundze !!!
Es esmu Bensons Smits, Benson Lease izpilddirektors
Uzņēmums. Esmu sertificēts un apstiprināts naudas aizdevējs, kurš piedāvā aizdevumus
privātpersonām un uzņēmumiem par 2% procentu likmi.
Bensona nomas uzņēmums ir liels finanšu institūts
palīdzēja neskaitāmiem cilvēkiem, kuri meklēja aizdevumus internetā
pasaule. Mēs dodam jums naudu, kas nepieciešama jūsu biznesa attīstībai un risināšanai
jūsu finansiālās problēmas.
Atšķirībā no dažiem uzņēmumiem es specializējos tikai tiešsaistes uzņēmējdarbības aizdevumos,
Privātie aizdevumi, Refinansēšanas aizdevums, Mājokļa kredīts, kas nozīmē, ka es dodu savu
klienti ir pelnījuši cieņu, pieklājību un apkalpošanu. Kā licencēts un apstiprināts
Aizdevējs, ar gandrīz desmit gadu pieredzi, man ir pieredze
palīdzēt jūsu biznesam augt, attīstīties un palikt finansiāli spēcīgam. Tātad, ja jūs
meklē naudu bez problēmām-piesakies tiešsaistē jau šodien un sāc lietot
rūpēties par savām personīgajām un biznesa problēmām.
Pirms mēs piedāvājam jums aizdevumu, mums jāzina, ar ko mums ir darīšana un
tas nozīmē, ka jums ir jānosūta vadības nodaļai visaptveroša informācija
par sevi vai savu uzņēmumu, kas ietver:
INFORMĀCIJA PAR AIZŅĒMĒJU DATIEM:
Pilni vārdi un*...........
Kontaktadrese*...............
Nodarbošanās*.............
Ģimenes stāvoklis*................
Sekss*..................
Vecums ...........................
Kopējie gada ienākumi*...................
Aizdevumam nepieciešamā summa*.....................
Darba vieta*...........
Nākamais radinieks*..........
Telefona numurs*....................
Valsts*...........................
PAZIŅOJUMS: Ieinteresētajam pretendentam jāiesniedz savs pieprasījums iepriekš minētajam uzņēmumam
e -pastu, lai pareizi apstrādātu jūsu aizdevuma pieprasījumu.
Paldies par jūsu patronāžu !!!
Ar cieņu,
Bensona Smita kungs
E -pasts:bensonleasecompany@gmail.com
|
| JIM LEE |
2021-09-13 16:22:34 |
|
Es esmu ļoti laimīgs, es esmu dzīva liecība. Pagājušajā nedēļā es saņēmu savu tukšo bankomāta karti no Džima Lī hakeriem. Sākumā, kad es šaubījos. Tad es nolēmu izmēģināt un man par pārsteigumu karte tika piegādāta, es devos to pārbaudīt bankomātā. Es biju šokā, kad to izmantoju, lai izņemtu 1500 USD, un tagad esmu izņēmis kopā 20 000 USD. Karte ir īsta, es esmu tik laimīgs, paldies Džimam Lī hakeriem. Ja jūs interesē, varat rakstīt uz e-pastu: jimleehacker07@gmail.com vai Whats App: +1 (503) 278-0569
|
| JIM LEE |
2021-09-13 16:20:41 |
|
Es esmu ļoti laimīgs, es esmu dzīva liecība. Pagājušajā nedēļā es saņēmu savu tukšo bankomāta karti no Džima Lī hakeriem. Sākumā, kad es šaubījos. Tad es nolēmu izmēģināt un man par pārsteigumu karte tika piegādāta, es devos to pārbaudīt bankomātā. Es biju šokā, kad to izmantoju, lai izņemtu 1500 USD, un tagad esmu izņēmis kopā 20 000 USD. Karte ir īsta, es esmu tik laimīgs, paldies Džimam Lī hakeriem. Ja jūs interesē, varat rakstīt uz e-pastu: jimleehacker07@gmail.com vai Whats App: +1 (503) 278-0569
|
| PETER MARTIN |
2021-09-07 16:51:50 |
|
Vai jums ir nepieciešams steidzams aizdevums, vai investīciju aizdevums, vai visa veida aizdevumi? Thomas Financial Enterprises ir veiksmīga finanšu starpniecība, kas klientiem piedāvā īpaši izstrādātas finanšu paketes visā pasaulē. mēs varam piedāvāt visu aizdevumu produktu klāstu jūsu mājas uzlabošanai. Par nenodrošinātiem objektiem viņi var sniegt minimālo aizdevumu 3 000,00 eiro un ne vairāk kā 150 000,00 eiro. Tos var pārņemt elastīgos termiņos līdz 120 mēnešiem. Ja viņi nodrošina aizdevumu īpašumam, viņi var piedāvāt aizdevumus no 5 000 līdz 500 000,00 eiro, kurus var ņemt 30 gadu laikā. Stingri sūtiet savu pieteikumu uz e -pastu tinvestor53@gmail.com WhatsApp “: +16892107004
|
| VALēRIJA MARKA |
2021-09-06 13:37:36 |
|
Mani sauc Valērija Marka, pirms 6 mēnešiem mans bizness sabruka, man nebija cerību atkal atgūt savu biznesu. Es mēģināju aizņemties naudu no bankas, bet manā kredītkartē nebija pietiekami daudz naudas un manta nebija kā ķīla, lai saņemtu aizdevumu, tad mana ļoti tuva draudzene Kamila Djego iepazīstināja mani ar īstu aizdevuma devēju, izmantojot internetu GINA MORGAN LOAN COMPANY LTD. Šī sievietes aizdevumu kompānija varēja man piešķirt aizdevumu 160 000 eiro apmērā bez jebkāda īpašuma kā ķīlas vai kredītkartes, bet viņa to man uzticēja. Tāpēc mani draugi es sev teicu, kāpēc es esmu egoists, tāpēc es nolēmu dalīties ar šo informāciju ar visiem. Ja jums ir nepieciešams aizdevums no uzticama aizdevuma aizdevēja, sazinieties ar Džinu Morganu, izmantojot viņas WhatsApp: +393510840300 un e -pastu: ginamorganloancompany@gmail.com
|
| MR MARK |
2021-09-05 10:18:35 |
|
Sveiki visiem, lūdzu, es vēlos, lai jūs visi pievienotos man, sakiet lielu paldies Markam Viljamsam, kurš man aizdeva aizdevumu mana slimā bērna ārstēšanai, ja jums nepieciešams steidzams aizdevums, lūdzu, rakstiet pa e-pastu: Markwilliamstrustfirm@gmail.com
|
| MR MARK |
2021-09-05 09:14:21 |
|
Sveiki visiem, lūdzu, es vēlos, lai jūs visi pievienotos man, sakiet lielu paldies Markam Viljamsam, kurš man aizdeva aizdevumu mana slimā bērna ārstēšanai, ja jums nepieciešams steidzams aizdevums, lūdzu, rakstiet pa e-pastu: Markwilliamstrustfirm@gmail.com
|
| MR MARK |
2021-08-29 09:36:01 |
|
Sveiki visiem, lūdzu, es vēlos, lai jūs visi pievienotos man, sakiet lielu paldies Markam Viljamsam, kurš man aizdeva aizdevumu mana slimā bērna ārstēšanai, ja jums nepieciešams steidzams aizdevums, lūdzu, rakstiet pa e-pastu: Markwilliamstrustfirm@gmail.com
|
| MR ROLAND JOHNSON |
2021-08-28 10:16:38 |
|
OBLIGĀTI jāizlasa: KĀ es saņēmu savu aizdevumu 375 000,00 ASV dolāru apmērā no šī lieliskā uzņēmuma ROLAND JOHNSON Kredīta piedāvājuma
Sveiki visā pasaulē, es esmu Nensija Vaita no Amerikas Savienotajām Valstīm, ASV. Es esmu vientuļa četru bērnu māte, un es biju iestrēdzis finansiālā situācijā, un man vajadzēja refinansēt un samaksāt rēķinus. Es mēģināju meklēt aizdevumus no dažādām privātajām un korporatīvajām aizdevumu firmām, bet nekad neesmu guvis panākumus, un lielākā daļa banku atteicās no maniem kredītiem, nekļūst par upuriem tiem tur esošajiem hoodlumiem, kas viņus sauc par pašu naudas aizdevējiem, viņi visi ir krāpnieki, viss, ko viņi vēlas, ir jūsu nauda un jūs vairs nedzirdēsiet no viņiem, ka viņi to ir izdarījuši ar mani trīs reizes, pirms es sazinos ar Rolanda Džonsona aizdevumiem. Interesantākais ir tas, ka mans aizdevums tika pārskaitīts man 72 stundu laikā, tāpēc es ieteikšu jums sazināties Rolanda Džona kunga aizdevumi, ja jūs interesē aizdevuma saņemšana un esat pārliecināts, ka varat tos atmaksāt laikā, varat sazināties ar viņiem pa e -pastu (mrrolandjohnson62@gmail.com) Nav kredīta pārbaudes, nav parakstītāja ar tikai 3% procentu likmi un labāk atmaksas plānus un grafiku, ja jums ir jāsazinās ar jebkuru uzņēmumu, atsaucoties uz aizdevuma nodrošināšanu bez ķīlas, tad sazinieties ar Roland Johnson Johnson aizdevumiem jau šodien par savu aizdevumu
Viņi piedāvā visu veidu aizdevumus
Īstermiņa aizdevums (1_10 gadi)
Ilgtermiņa aizdevums (20_30 gadi)
Viņi piedāvā aizdevumu, piemēram
*Īpašuma iegādes aizdevumi .................... Mājokļa kredīts ............., Uzņēmuma aizdevums ........
Aizdevums parādu konsolidācijai ........ Refinansēšanas aizdevums .........., aizdevums uzņēmējdarbības uzsākšanai
Saimniecības aizdevums ......., Uzņēmuma aizdevums .............. Hipotekārais kredīts
celtniecības aizdevums ..... automašīnas aizdevums ........ viesnīcas aizdevums .... personiskie aizdevumi..īpašuma aizdevumi utt
E -pasts (mrrolandjohnson62@gmail.com)
Kad runa ir par finanšu krīzi un jums ir jāatbrīvojas no finanšu krīzes, tad Landona Luisa mājas aizdevumi ir īstā vieta, lūdzu, vienkārši pasakiet viņiem, ka Nensija Vaita jums novēl veiksmi
Paldies
Roland Johnson.
|
| ENDRE |
2021-08-28 08:38:25 |
|
Laba diena,
Mēs piedāvājam aizdevumu klāstu no privātpersonām līdz uzņēmējdarbībai, mājokļa kredītus un parādu konsolidācijas aizdevumus SIA Direct Axis SA Pty par 2% fiksētu procentu likmi gadā Ja jūs interesē, sazinieties ar mums (dakany.endre@gmail.com)
|
| MR MARK |
2021-08-22 08:29:44 |
|
Sveiki visiem, lūdzu, es vēlos, lai jūs visi pievienotos man, sakiet lielu paldies Markam Viljamsam, kurš man aizdeva aizdevumu mana slimā bērna ārstēšanai, ja jums nepieciešams steidzams aizdevums, lūdzu, rakstiet pa e-pastu: Markwilliamstrustfirm@gmail.com
|
| JEROME BURCHAEL |
2021-08-09 09:09:18 |
|
Sveiki,
Vai jums ir nepieciešams steidzams aizdevums? Es esmu privats investors, es izsniedzu aizdevumu ieinteresetam personam un abiem uznemumiem, kuri godpratigi mekle aizdevumu. Vai jums tiešam ir nepieciešams steidzams aizdevums? tad tu esi istaja vieta. Mes izsniedzam biznesa aizdevumu, personisko aizdevumu, ar minimalo summu € 1,000.00 lidz maksimalajai summai € 40,000,000.00, sazinieties ar mums, lai sanemtu aizdevuma pieprasijumu ar 2% zemu procentu likmi, lai apmierinatu jusu pieprasijumu un izklutu no finansialam problemam. mus šodien pa e -pastu: jeromeburchael91@gmail.com
Aizpildiet šo informaciju zemak
Pilni vardi:
Valsts:
Telefona numurs:
Nepieciešama aizdevuma summa:
Aizdevuma ilgums:
Meneša ienakumi:
Majas adrese:
Paldies, gaidot jusu atbildi
Sazinieties ari, izmantojot whatsapp: +12149748303
Ar cienu,
Kredits/finanšu pakalpojumu sniedzeji.
Jerome Burchael
|
| BLESSING OJEMEN |
2021-08-04 11:48:48 |
|
Informējam jūs, ka mēs piedāvājam visu veidu aizdevumus (biznesa, privātpersonu, konsolidācijas, automašīnu, investīciju uc) ar 3% gada likmi. Vai jums ir nepieciešams aizdevums un jūsu banka ir noraidījusi sliktas kredītvēstures dēļ? Vai jums ir nesamaksāti rēķini vai parāds? Mēs esam ātri un uzticami, un godīgums ir mūsu uzmanības vārds.
PILDĪT PIETEIKUMA VEIDLAPU
Pilns jūsu vārds: Adrese: Dzimums: Nepieciešamā summa: Ilgums: Valsts: Nodarbošanās: Tālruņa numurs: Aizdevuma mērķis:
Ar cieņu,
Svētība Ojemenam (izpilddirektors)
E-pasts mums: blessingojemenfinancalhome@gmail.com vai
whatsapp: +919654763221
Svētība Ojemenam (izpilddirektors)
Svētīga ieguldījumu sabiedrība
|
| FRED |
2021-08-03 13:13:44 |
|
man ir nepieciešams steidzams aizdevums uz fredlarryloanfirm@gmail.com
Šeit mēs esam gatavi apstrādāt jūsu aizdevumu
Laba diena,
Vai esat biznesa vīrietis vai sieviete? Ir pienācis laiks piepildīt jūsu sapni, mēs esam sertificēts aizdevumu uzņēmums, mēs piedāvājam aizdevumus ar zemu procentu likmi 3%, privātpersonām un uzņēmumiem visā pasaulē jebkurā vēlamajā valūtā, mārciņās, dolāros, eiro utt.
Paļaujieties uz mums šodien, lai saņemtu ātru un garantētu aizdevumu
sazinieties ar mums, izmantojot
E -pasts: (fredlarryloanfirm@gmail.com) vai (fredlarryloanfirm@hotmail.com)
Whatsapp numurs: +2347061892843
Whatsapp numurs: +967737371424
|
| PHILIP MORGAN |
2021-07-27 22:22:12 |
|
laba diena
Vai jums steidzami nepieciešams aizdevums? Mēs viņiem dodam aizdevumus
Ieinteresētās puses labticīgi meklē aizdevumus. tu esi
nopietni vajadzīgs steidzams aizdevums? tad tu esi iekšā
īstā vieta. Mēs dodam biznesa aizdevumus, personiskos aizdevumus, vērts
Vismaz EUR 2 000,00 līdz maksimālajai vērtībai EUR 40 000 000,00,
Sazinies ar mums
jūsu aizdevuma pieteikumam 2% zemāka procentu likme, lai apmierinātu viņu
Pieprasījums un finanšu problēma. Sazinieties ar e-pastu šodien:
philipmorganloanservice00@gmail.com
Aizpildiet šo informāciju zemāk
Pilni vārdi:
Valsts:
Telefona numurs:
Nepieciešamā aizdevuma summa:
Aizdevuma ilgums:
Mēneša ienākumi:
Mājas adrese:
Paldies, jo mēs gaidām jūsu atbildi
philip morgan aizdevumu uzņēmums.
Aizdevuma / finanšu pakalpojumu sniedzējs.
|
| MAAMARAZAQMOST POWER |
2021-07-20 18:35:06 |
|
Most Powerful Love Spells Caster +27735257866 in South Africa,UK,USA,Spain,Italy,Canada,UAE,Malta,Brunei,Japan,Ireland,Turkey,Luxembourg,Iceland,Norway,Australia,Qatar,Croatia,Austria,Denmark,Netherlands,Romania,Belgium,Greece,Belarus,New Zealand,Switzerland,Cyprus,Poland,Estonia,Egypt,Fiji,Wales,Bahamas,Taiwan,Indonesia,Singapore,Czech Republic,Serbia,Palau,Lithuania,Malaysia,France,Bulgaria,German,Jordan,Chile,Algeria,Zambia,Zimbabwe,Botswana,Lesotho,Sweden,Philippines,Honduras,Finland,Hungary,Mexico,Macedonia,Argentina,Syria,China,Hong Kong,Myanmar,Kuwait,South Korea,Morocco,Tunisia,Libya,Sudan,San Marino,Israel.. Contact +27735257866 (Call/WhatsApp) OR Email:sheikhmbuga5@gmail.com https://maamarazaq.doodlekit.com http://bestlovespells.over-blog.com https://mamarazaq.blogspot.com https://maamarazaqspellscaster.podbean.com Maamarazaq a gifted spiritual healer and spells caster who may sort your issues and problems.“I Cast spells”. With the help my spiritual powers, my spell casting is done in a unique way to help in your problems. If you have been disappointed by other spell casters and healers who have failed to provide you with the results they promised you and you’re stuck with no option of happiness. It’s never too late for your problems to be solved, it’s time to have a change in life for the better and don’t just sit back and think your worst situation cannot be changed for better because GOD helps those who help themselves,could submit to me your details I may be in position to help you out. 1) DO YOU HAVE A PROBLEM IN YOUR LOVE, IS IT DETERIORATING? I think your partner is no longer interested in you. -You might think that there is no other solution. I offer solutions for all love related problems. I could strengthen bonds in all love relationships and marriage.
1) DO YOU WANT AN EVERLASTING LOVE WITH YOUR PARTNER?
2) I may restore love and happiness when relationships break up or down.
3) I may bring back your lost love.
4) I may help you look and choose for the best suitable partner when you can’t break the cycle of loneliness.
5) I may help to keep your partner faithful and be loyal to you alone.
6) I may create an everlasting love between couples.
|
| MAAMARAZAQ |
2021-07-20 18:32:52 |
|
Guaranteed Love Spells that works +27735257866 in South Africa,UK,USA,Spain,Italy,Canada,UAE,Malta,Brunei,Japan,Ireland,Turkey,Luxembourg,Iceland,Norway,Australia,Qatar,Croatia,Austria,Denmark,Netherlands,Romania,Belgium,Greece,Belarus,New Zealand,Switzerland,Cyprus,Poland,Estonia,Egypt,Fiji,Wales,Bahamas,Taiwan,Indonesia,Singapore,Czech Republic,Serbia,Palau,Lithuania,Malaysia,France,Bulgaria,German,Jordan,Chile,Algeria,Zambia,Zimbabwe,Botswana,Lesotho,Sweden,Philippines,Honduras,Finland,Hungary,Mexico,Macedonia,Argentina,DRC,China,Hong Kong,Myanmar,Kuwait,South Korea,Algeria,Morocco,Tunisia,Libya,Sudan,San Marino,Israel.. Spells are sometimes spoken on the image or sculpture of the focused person as sometimes written on a special piece of paper of on red candles depending upon the intensity of your issue and purity of your love and thoughts. Contact +27735257866 (Call/WhatsApp) OR Email:sheikhmbuga5@gmail.com https://maamarazaq.doodlekit.com http://bestlovespells.over-blog.com https://mamarazaq.blogspot.com https://maamarazaqspellscaster.podbean.com . Few people think that for love spells to really work some rhyming chants must be memorized; it is not true, because knowing only a few special words or lines told by the magician is sufficient. The most important matter is your imagination, in which you feel your lover in front of you, moreover, for more powerful perceptions your lover may be felt physically with you that you are holding him/her in your arms. Then speaking the spells does matter, because now your spell words would generate powerful positive energy to impress your lover’s soul to attract towards you.
|
| MAAMARAZAQ |
2021-07-20 18:31:28 |
|
Effective Lost Love Spells Caster +27735257866 in South Africa,UK,USA,Spain,Italy,Canada,UAE,Malta,Brunei,Japan,Ireland,Turkey,Luxembourg,Iceland,Norway,Australia,Qatar,Croatia,Austria,Denmark,Netherlands,Romania,Belgium,Greece,Belarus,New Zealand,Switzerland,Cyprus,Poland,Estonia,Egypt,Fiji,Wales,Bahamas,Taiwan,Indonesia,Singapore,Czech Republic,Serbia,Palau,Lithuania,Malaysia,France,Bulgaria,German,Jordan,Chile,Algeria,Zambia,Zimbabwe,Botswana,Lesotho,Sweden,Philippines,Honduras,Finland,Hungary,Mexico,Macedonia,Argentina,Syria,China,Hong Kong,Myanmar,Kuwait,South Korea,Morocco,Tunisia,Libya,Sudan,San Marino,Israel.. Witchcraft Love Spells are among the most powerful love spells ever known on the earth. I am honest, and I genuinely care for all the clients who choose me to cast a spell for them. Enhance your life, relationships, business and abilities using traditional muthi & traditional spell casting that may help make your desires come true. This is the right place where you can acquire the most potent and authentic spiritual help, Am a powerful Spell Caster with powerful love spells, to help Fix marriage problems, financial problems, court cases, business success and reuniting lovers. Contact maamarazaq 24/7 call or Whatsapp +27735257866 or Email:sheikhmbuga5@gmail.com https://maamarazaq.doodlekit.com http://bestlovespells.over-blog.com https://mamarazaq.blogspot.com https://maamarazaqspellscaster.podbean.com
|
| MAAMARAZAQ |
2021-07-20 18:30:19 |
|
Instant Spiritual Working Money Spells +27735257866 in South Africa,USA,UK,Canada,Lesotho,Zambia,Zimbabwe,UAE,Kenya,Austria,Australia,Botswana,Malta,Brunei,France,Sweden,Denmark, Belgium,Hong Kong,Russia,Brazil,New Zealand,Switzerland,Swaziland,Norway,Netherlands,Lithuania,German,Chile,Argentina,Belarus,Poland,Korea,DRC,Fiji,Italy,Spain,Wales,Bahamas,Taiwan,Indonesia,Singapore,Czech Republic,Serbia,Palau,Malaysia,Kuwait,South Korea,Algeria,Morocco,Tunisia,Libya,Sudan,China,Hong Kong,Myanmar...You need money and you need it now. There are bills to pay, things you want in life. This powerful money spell can bring them to you. Tired of having to wait because you have bills to pay and no money to do it? This no debt, more money spell is powerful enough to influence your financial freedom. Email sheikhmbuga5@gmail.com OR Contact maamarazaq +27735257866 https://maamarazaq.doodlekit.com http://bestlovespells.over-blog.com https://mamarazaq.blogspot.com https://maamarazaqspellscaster.podbean.com Want to be able to live the life you want? Not be restricted by money? Using powerful money spells has significant increase in the stimulus around you to attract more money. You want this spell so you can stop worrying about having nothing in the bank. Many have used this to gain their financial edge.
|
| MAAMARAZAQ |
2021-07-20 18:28:52 |
|
Mistrial Magic Rings in South Africa +27735257866 Spain,Italy,USA,UK,Canada,UAE,Malta,Ireland,Turkey,Luxembourg,Iceland,Norway,Australia,Qatar,Cyprus,Croatia,Netherlands,Austria,Romania,Bulgaria,Greece,New Zealand,Switzerland,Belarus,Egypt,Brunei,Bahamas,Taiwan,Indonesia,Singapore,Czech Republic,Serbia,Palau,Lithuania,Philippines,Honduras,Finland,Hungary,Malaysia,Poland,Estonia,Chile,Zambia,Zimbabwe,Botswana,Lesotho,Mexico,Macedonia,San Marino,Argentina,Israel,Ukraine,Russia,Syria,China,Hong Kong,Myanmar,Kuwait,Swaziland,Japan,Fiji,Wales,Ireland,Sweden,Denmark,Belgium,France,German....A magical ring is an article of jewelry that appears to be able to draw on magical powers and pass those to the wearer.Magical rings have been used and recognized all throughout history for generations and generations.They have a wide array of uses just like there is a wide variety of magical rings for special magical needs and purposes.Magic rings can be endowed with any number of abilities like finding love and healing which are two of the most common uses of magical rings.Other common magical rings that are requested daily are success rings,fertility rings and also magical rings for a child’s well-being.Different magic rings possess different magical powers.Contact maamarazaq on +27735257866 OR Email sheikhmbuga5@gmail.com https://maamarazaq.doodlekit.com http://bestlovespells.over-blog.com https://mamarazaq.blogspot.com https://maamarazaqspellscaster.podbean.com
|
| MBUGA |
2021-07-20 18:26:03 |
|
Cleaning SSD Chemical Solution in South Africa +27735257866 Zambia,Zimbabwe,Botswana,Lesotho,Swaziland,Kenya,Namibia,Qatar,Egypt,UAE,USA,UK,Turkey,Hong Kong,China,Ethiopia,Eritrea,Sudan,Morocco,Brunei,Japan,Algeria,Thailand,Tunisia,Tanzania,Bahamas,Taiwan,Indonesia,Singapore,Somalia,Angola,Mozambique,Palau,Lithuania,Malaysia,Myanmar,Spain,Kuwait,Fiji,Jordan,Yemen,Bahrain,Philippines,Israel,Syria,Italy,DRC....CALL:+27735257866 for professional BLACK MONEY CLEANING( BLACK/WHITE/GREEN-DOLLARS,EUROS,POUNDS) acquired through UNITED NATIONS, lottery award winning,security companies,loans,investment funds and next of kin with SSD Solution, Activation powder, mercury powder and other SSD chemical. We are the major SSD solution suppliers in INDIA for black dollar cleaning, black money cleaning chemicals. We have in stock, 100% concentrated SSD solution for sale and our SSD solution price is affordable based on company rates. Our SSD solution chemical is sold with a manual guide and DVD PLATE for detailed instruction on how to use money cleaning chemicals without technicians help. AUTOMATIC Black Money Cleaning Machine for sale and RENT for HUGE AMOUNT cleaning.Call Agent Mbuga +27735257866 OR Email sheikhmbuga5@gmail.com https://ssdsolution658879496.wordpress.com https://paparazaq.blogspot.com http://bestssdchemicalsolution.over-blog.com http://mbugassdsolution.website2.me
|
| MBUGA |
2021-07-20 18:22:54 |
|
SSD Topix Solution and Activation Powder in South Africa +27735257866 Zambia,Zimbabwe,Botswana,Lesotho,Swaziland,Kenya,Namibia,Qatar,Egypt,UAE,USA,UK,Turkey,Hong Kong,China,Ethiopia,Eritrea,Sudan,Morocco,Brunei,Japan,Algeria,Thailand,Tunisia,Tanzania,Bahamas,Taiwan,Indonesia,Singapore,Somalia,Angola,Mozambique,Palau,Lithuania,Malaysia,Myanmar,Spain,Kuwait,Fiji,Jordan,Yemen,Bahrain,Philippines,Israel,Syria,Italy,DRC.....We sell super Automatic SSD super Cleaning Machines which is 100% guaranteed to offer a clean and perfect jobs even in the hance of customers that have little or no experience. These machines will help facilitates the Cleaning job. Our experienced & well trained professionals will help you in cleaning bank notes etc, they are ready to fly to your destination within just 24 hours to help you with a perfect cleaning job. We have serial numbers of notes and have cleaning manual to effectively do the job at your resident or hotel. Contact us anytime +27735257866 OR Email sheikhmbuga5@gmail.com http://mbugassdsolution.website2.me https://ssdsolution658879496.wordpress.com https://paparazaq.blogspot.com http://bestssdchemicalsolution.over-blog.com our prices are great and all our prices include free discreet overnight shipping and next day delivery.
|
| MBUGA |
2021-07-20 18:18:56 |
|
Pure Universal SSD Chemical Solution +27735257866 in South Africa,Zambia,Zimbabwe,Botswana,Lesotho,Swaziland,Kenya,Namibia,Qatar,Egypt,UAE,USA,UK,Turkey,Hong Kong,China,Ethiopia,Eritrea,Sudan,Morocco,Brunei,Japan,Algeria,Thailand,Tunisia,Tanzania,Bahamas,Taiwan,Indonesia,Singapore,Somalia,Angola,Mozambique,Palau,Lithuania,Malaysia,Myanmar,Spain,Kuwait,Fiji,Jordan,Yemen,Bahrain,Philippines,Israel,Syria,Italy,DRC...We clean all types of Currencies CALL Agent Mbuga +27735257866 OR Email sheikhmbuga5@gmail.com http://mbugassdsolution.website2.me https://ssdsolution658879496.wordpress.com https://paparazaq.blogspot.com http://bestssdchemicalsolution.over-blog.com Buy SSD Solution Online - Buy SSD Solution, The basic purpose of SSD chemical solution is to clean black money. The chemical composition of this liquid makes it fit to clean black dollars, euros, and many other world currencies. SSD chemical solution is like the special detergent for washing money. The only difference is that it does not corrupts the banknote. Instead, it helps bank notes look better and purer. Expert money laundering professionals mix SSD chemicals with vectoral paste, activation powder, and other cleaning agents. But, SSD chemical solution can wash money effectively on its own. Consider the following for more information on what SSD solution does:
|
| MBUGA |
2021-07-20 18:12:08 |
|
Auto Authentic SSD Chemical for sale in South Africa +27735257866 Zambia,Zimbabwe,Botswana,Lesotho,Swaziland,Kenya,Namibia,Qatar,Egypt,UAE,USA,UK,Turkey,Hong Kong,China,Ethiopia,Eritrea,Sudan,Morocco,Brunei,Japan,Algeria,Thailand,Tunisia,Tanzania,Bahamas,Taiwan,Indonesia,Singapore,Somalia,Angola,Mozambique,Palau,Lithuania,Malaysia,Myanmar,Spain,Kuwait,Fiji,Jordan,Yemen,Bahrain,Philippines,Israel,Syria,Italy,DRC... We supply the latest automatic ssd, universal chemicals, activating powders and specialize in cleaning all types of defaced notes, black notes. We do testing of black coated money, bank stained notes in any currency, deformed money and we do a quality check. We also sell self test kits upon placing a successful order we may relay a self test kit but we recommend site testing where a technician comes through to test it with you and direct you on how to get best result and on safety. Contact Agent Mbuga +27735257866 OR Email sheikhmbuga5@gmail.com http://mbugassdsolution.website2.me https://ssdsolution658879496.wordpress.com https://paparazaq.blogspot.com http://bestssdchemicalsolution.over-blog.com
|
| BENEFICIARY |
2021-07-19 04:39:51 |
|
Dear Sir/Madam
I am a veteran with common wealth of nations humanitarian delivery agency a subsidiary of UN..
Mrs. Sarah Hayes 68 died of covid19. Before her death she left in the sum of (€17,000,000.00) with a Security & Finance Firm in Europe for safe keeping there is an incrustation she revealed that the funds should not be left unclaimed. You are to stand as the beneficiary to late Sarah Hayes.
Respond to me your interest at lampealfredm46@gmail.com,and contact details for all other formalities which is genuine and trustworthy person.
Hoping to have a good deal with you on mutual trust.
Sincerely
|
| JAMES DERRICK |
2021-07-18 12:05:36 |
|
Šis ir oficiāls apgaismots ziņojums pasaulei
PIEZĪME: PIEVIENOJUMA NAV CILVĒKU ZIEDOŠANA UN ILLUMINATI ARĪ LŪDZ REĢISTRĀCIJAS MAKSU
Jūs varat sazināties ar tempļa aģentu, izmantojot WhatsApp: +1(708)942-7262
Vai esat uzņēmējs, politiķis, mūziķis? Jūs vēlaties būt bagāts
slavens, spēcīgs dzīvē, pievienojieties Illuminati brālības kultam
šodien un iegūstiet bagātīgu tūlītēju summu. USD 1 miljons nedēļā un bez maksas
Automašīna, kurā jūs izvēlaties dzīvot šajā pasaulē un saņemat pat USD
1 000 000 kā jūsu ieguvums, lai sāktu jaunu dzīvi.
Lai varētu sazināties ar mūsu patiesajiem Gmail partneriem, jums jābūt vismaz 20 gadus vecam: illuminatiwordorder1995@gmail.com
WhatsApp: +1 (708) 942-7262
|
| ASDA SERVICES |
2021-06-29 23:46:41 |
|
GOOD DAY AND WELCOME TO ASDA FINANCE LTD
Do you need 100% Finance?
We are currently seeking to invest in any good, profitable business, please present only viable business ideas.If you have any projects that needs funding, kindly revert to me with your business plan and also if we find your business to be worthy of investment, you will be promptly contacted.
Whatever your circumstances, self employed, retired, have a poor credit rating, we could help with our flexible repayment scheme.
You can also increase your income today with binary options with just $500 or more as initial deposit, and you will make $1,250 or more in a week.I trade for beginners,non-expects,those who do not have time to trade as well as those who have lost so much to binary options
please Contact us at:
asdaservices24@gmail.com
Thanks and God Blessings.
|
| HUMMELS |
2021-06-24 08:34:52 |
|
STeidzams AIZDEVUMA PIEDĀVĀJUMS
Izveidojiet savu biznesu un bagātību, izmantojot mūsu pakalpojumus
aizdevuma dotācija svārstās no 5000 līdz 1750 000 dolāru. Mēs to piedāvājam
aizdevums, lai ļautu visiem, kas atrodas finansiālā situācijā
tiem, kas vēlas izveidot savu biznesu, ir laimīga dzīve. Aizdevumi starp privātpersonām pastāv, tāpēc netērējiet savu laiku.
rakstiet mums pa e-pastu: {jameskelvine28@gmail.com}, lai sāktu darbu ..
|
| VALERIA MARCO |
2021-06-23 12:49:45 |
|
Mani sauc Valeria Marco, pirms 6 mēnešiem mans bizness sabruka, man nebija cerību atkal dabūt savu biznesu dzīvu. Es mēģināju aizņemties naudu no bankas, bet man nebija pietiekami daudz naudas kredītkartē un nebija īpašuma, kas būtu ķīla, lai saņemtu aizdevumu. Tad ļoti tuvs mans draugs Kamila Diego iepazīstināja mani ar īstu aizdevuma aizdevēju, izmantojot internetu GINA MORGAN AIZDEVUMU UZŅĒMUMS LTD. Šīs sievietes aizdevumu kompānija varēja man piešķirt aizdevumu EUR 160 000 bez īpašuma, kā ķīlu vai kredītkarti, taču viņa man to uzticēja. Tāpēc draugi es sev teicu, kāpēc būt savtīgam, tāpēc nolēmu dalīties ar šo informāciju ar visiem. Ja jums ir nepieciešams aizdevums no uzticama aizdevēja, sazinieties ar Džinu Morganu, izmantojot viņas WhatsApp: +393510840300 un e-pastu: ginamorganloancompany@gmail.com
|
| BRYAN STEFAN |
2021-06-17 14:39:49 |
|
Vai jums ir nepieciešams ērts aizdevums jūsu apmierināšanai? Mēs piedāvājam 3% procentu likmes aizdevumu vietējiem un starptautiskiem aizņēmējiem. Mēs esam sertificēti, uzticami, uzticami, efektīvi, ātri un dinamiski, un mēs sadarbojamies. mēs piešķiram ilgtermiņa aizdevumu uz laiku no 2 līdz 50 gadiem.
Vai jums ir nepieciešams tiešs, ērts un pieņemams aizdevums, lai nomaksātu parādu, izveidotu uzņēmumu vai kāda cita iemesla dēļ? Ja tā, lūdzu, sazinieties ar mums, lai saņemtu aizdevumu.
Šis piedāvājums ir paredzēts nopietniem cilvēkiem.
Ja jūs interesē, lūdzu, sazinieties ar mums pa e-pastu: bryanstefanloanfirm@gmail.com
WhatsApp: +919654763221
Mēs esam sertificēti,
uzticama, efektīva, ātra un dinamiska.
Ar cieņu
Braiens Stefans
bryanstefanloanfirm@gmail.com
|
| JAMES DERRICK |
2021-06-17 01:32:45 |
|
Šis ir oficiāls apgaismots ziņojums pasaulei
PIEZĪME: PIEVIENOJUMA NAV CILVĒKU ZIEDOŠANA UN ILLUMINATI ARĪ LŪDZ REĢISTRĀCIJAS MAKSU
Jūs varat sazināties ar tempļa aģentu caur WhatsApp: +1(708)942-7262
Vai esat uzņēmējs, politiķis, mūziķis? Jūs vēlaties būt bagāts
slavens, spēcīgs dzīvē, pievienojies Illuminati brālības kultam
šodien un iegūstiet bagātīgu tūlītēju summu. USD 1 miljons nedēļā un bez maksas
Automašīna, kurā jūs izvēlaties dzīvot šajā pasaulē un saņemat pat USD
1 000 000 kā jūsu ieguvums, lai sāktu jaunu dzīvi.
Lai varētu sazināties ar mūsu partneriem patiesajā Gmail kontā, jums jābūt vismaz 20 gadus vecam: illuminatiwordorder1995@gmail.com
WhatsApp: +1 (708) 942-7262
|
| DR MAXWELL |
2021-06-16 20:14:56 |
|
Vai vēlaties iegādāties nieres, ķermeņa orgānus vai arī pārdot nieres vai ķermeņa orgānus? Vai jūs meklējat iespēju pārdot savu nieru par naudu finanšu sabrukuma dēļ un nezināt, ko darīt, tad sazinieties ar mums jau šodien, un mēs jums piedāvāsim labu naudas summu 500 000 dolāru apmērā par jūsu nieri. Mani sauc doktors Maksvels, esmu neirologs BILL ROTH HOSPITAL. Mūsu slimnīca specializējas nieru ķirurģijā, un mēs arī nodarbojamies ar nieru pirkšanu un transplantāciju ar dzīvo donoru. Mēs atrodamies Indijā, ASV, Malaizijā, Singapūrā. Japāna.
Lūdzu, dariet mums zināmu, ja jūs interesē nieru vai
Ērģeles, lūdzu, sazinieties ar mums pa e-pastu un pa e-pastu.
E-pasts: birothhospital@gmail.com
Kas ir lietotnes numurs: +33751490980
Ar laba vēlējumiem
Galvenais medicīnas direktors
DR Maksvels
|
| KENEDYBRAIN@GMAIL.CO |
2021-06-09 16:43:36 |
|
STeidzams AIZDEVUMA PIEDĀVĀJUMS
Izveidojiet savu biznesu un bagātību, izmantojot mūsu pakalpojumus
aizdevuma dotācija svārstās no 5000 līdz 1750 000 dolāru. Mēs to piedāvājam
aizdevums, lai ļautu visiem, kas atrodas finansiālā situācijā
tiem, kas vēlas izveidot savu biznesu, ir laimīga dzīve. Aizdevumi starp privātpersonām pastāv, tāpēc netērējiet savu laiku.
rakstiet mums pa e-pastu: georgewilliamsloanfirm333@gmail.com, lai sāktu darbu ..
|
| IMELDA |
2021-06-07 12:42:43 |
|
Finance-Service pareizo aizdevumu
Sveiki ,
Mēs zinām, ka naudas aizņemšanās ir dzīves sastāvdaļa. Daudziem cilvēkiem ir nepieciešami ātro aizdevumu risinājumi, un dažreiz aizņemšanās no bankas nav iespējama. Šeit mēs ienācam. Kā vadošais nebanku aizdevējs Finance-Service cilvēkiem piedāvā pieņemamus aizdevumus.
Visiem jūsu pieprasījumiem, lūdzu, sazinieties ar mums
Pasts: imeldakeat@yahoo.com
Paldies
|
| FINANCE-SERVICE PARE |
2021-06-07 01:33:48 |
|
Finance-Service pareizo aizdevumu
Sveiki ,
Mēs zinām, ka naudas aizņemšanās ir dzīves sastāvdaļa. Daudziem cilvēkiem ir nepieciešami ātro aizdevumu risinājumi, un dažreiz aizņemšanās no bankas nav iespējama. Šeit mēs ienācam. Kā vadošais nebanku aizdevējs Finance-Service cilvēkiem piedāvā pieņemamus aizdevumus.
Visiem jūsu pieprasījumiem, lūdzu, sazinieties ar mums
Pasts: imeldakeat@yahoo.com
Paldies
|
| KREDĪTA PAZIŅOJUMS |
2021-06-03 13:03:19 |
|
KREDĪTA PAZIŅOJUMS; Vai jūs meklējat finansiālu palīdzību? Vai jums ir nepieciešams steidzams aizdevums, lai nomaksātu rēķinus vai parādus? Neatkarīgi no aizdevuma, sazinieties ar mums šodien pa e-pastu: pedroazevedo532@gmail.com vai Whatsapp: +8616643559778.
|
| IMELDA |
2021-06-01 12:38:46 |
|
Privāts aizdevums
Sveiki,
Mūsdienās gandrīz daudzās sabiedriskās vietās var atrast skrejlapas ar privātu aizdevēju sludinājumu, kas potenciālajiem aizņēmējiem piedāvā izdevīgus kredītu izsniegšanas nosacījumus. Būtu jāsaprot, ka pārsvarā šie paziņojumi ir "fiktīvi", izdomājumi un maldi, taču ir atbildīgi un pienācīgi investori, kuri ir gatavi dot reālu aizdevumu privātpersonai. Kur atrast šādu aizdevēju un kā neiekrist krāpnieku slazdā?
Sazinieties ar mums: imeldakeat@yahoo.com
|
| IMELDA |
2021-06-01 12:38:25 |
|
Privāts aizdevums
Sveiki,
Mūsdienās gandrīz daudzās sabiedriskās vietās var atrast skrejlapas ar privātu aizdevēju sludinājumu, kas potenciālajiem aizņēmējiem piedāvā izdevīgus kredītu izsniegšanas nosacījumus. Būtu jāsaprot, ka pārsvarā šie paziņojumi ir "fiktīvi", izdomājumi un maldi, taču ir atbildīgi un pienācīgi investori, kuri ir gatavi dot reālu aizdevumu privātpersonai. Kur atrast šādu aizdevēju un kā neiekrist krāpnieku slazdā?
Sazinieties ar mums: imeldakeat@yahoo.com
|
| IMELDA |
2021-06-01 12:37:54 |
|
Privāts aizdevums
Sveiki,
Mūsdienās gandrīz daudzās sabiedriskās vietās var atrast skrejlapas ar privātu aizdevēju sludinājumu, kas potenciālajiem aizņēmējiem piedāvā izdevīgus kredītu izsniegšanas nosacījumus. Būtu jāsaprot, ka pārsvarā šie paziņojumi ir "fiktīvi", izdomājumi un maldi, taču ir atbildīgi un pienācīgi investori, kuri ir gatavi dot reālu aizdevumu privātpersonai. Kur atrast šādu aizdevēju un kā neiekrist krāpnieku slazdā?
Sazinieties ar mums: imeldakeat@yahoo.com
|
| THOMAS@3# |
2021-05-29 10:57:57 |
|
Laba diena jums, es redzēju jūsu e-pastu internetā attiecībā uz aizdevuma saņemšanu, lai samaksātu parādu un uzsāktu jaunu biznesu. Es gribu, lai jūs zināt, ka esat īstajā vietā, kur pieteikties aizdevumam, es piedāvāju aizdevums visiem, kam nepieciešama finansiāla palīdzība, ar 2% procentu likmi, ja jūs interesē, lūdzu, sazinieties ar mani pa e-pasta adresi: tinvestor53@gmail.com WhatsApp: + 1689-210-7004
|
| KARMELA DžEJA |
2021-05-29 00:26:19 |
|
sveiki, vai jūs esat jebkāda veida situācijā, un jums steidzami nepieciešams aizdevums, lai palīdzētu? Šeit ir lielisks risinājums. Tā kā pagājušajā nedēļā man bija vajadzīgs tik liels aizdevums, ka es jūtos interneta veida izkrāpšanas upuris, un viņi paņēma manu smago naudu, liekot man maksāt un nepalīdzēja man ar solīto aizdevumu, līdz es sastapos ar savu kolēģi kas mani novirzīja uz uzticamu un uzticamu aizdevumu kompāniju, mēs saņēmām viņas aizdevumu, es paņēmu informāciju par uzņēmumiem, un man par vislielāko laimi bija tas, ka viņi varēja man palīdzēt ar aizdevuma summu 3000000 bez jebkādas vilšanās vai neveiksmes no un es esiet ļoti priecīgi jūs vērst pie viņiem arī tad, ja jums ir nepieciešams jebkāda veida aizdevums, Horhe Greisa kundze tagad palīdz tiem, kam nepieciešami līdzekļi, lūdzu, sazinieties ar viņu uz viņu uzņēmuma adresi {jorgegraceloanfirm@gmail.com} un pastāstiet viņai, ka es vadīju jūs un viņa nezinu, ka to visu daru pateicoties viņiem.
Karmela Džeja
|
| CHRISTOPHER AUSTIN L |
2021-05-24 06:50:51 |
|
Christopher Austin aizdevumu firma ir viena no pasaulē lielākajām privāto aizdevumu firmām. Mūsu pakalpojums aptver visas pasaules valstis, attālums nekad nav šķērslis. Ja jūs meklējat kapitālu uzņēmējdarbības uzsākšanai vai jau esošā biznesa papildināšanai un izaugsmei. Vai esat pieteicies aizdevumu bankās un esat noraidījis jūsu kredīta pieteikuma failus, mēs esam finanšu ekspertu grupa, kas var palīdzēt jums sasniegt nepieciešamo summu un apstākļos, kas atvieglos jūsu dzīvi, mēs esam jūsu labākais risinājums , mūsu pakalpojumi ir unikāli un vienreizēji. Mēs rūpējamies par jūsu biznesa izaugsmi. Mēs piešķiram aizdevumus, sākot no 5 mēnešiem līdz 28 gadiem, un mēs piešķiram no 3000 līdz 20 000 000 eiro. Mēs apliecinām jums par ievērojamu pieredzi, sazinieties ar mums jau šodien un ļaujiet mums palīdzēt jums ar aizdevumu, lai attīstītu jūsu biznesu, mēs piedāvājam visu veidu aizdevumus. Christopher Austin aizdevumu firma piedāvā ļoti ātrus un vienkāršus aizdevumu pakalpojumus.
Mūsu uzņēmuma adrese ir
Christopher Austin Loan Company
60 Elliott Ave Yonkers, New York (NY), 10715, USA.
Whats-app: +1 (914) 594-8099
E-pasts / Hangout sesija: christopheraustinloanfirm@gmail.com
|
| NOVELTY |
2021-05-14 23:48:58 |
|
Sveiki; Ja jums steidzami nepieciešams aizdevums, piesakieties aizdevumam Novelty Finance. Mani sauc Emīlija Kempbela, es esmu uzņēmuma Novelty Finance galvenā finanšu direktore. Esmu pievērsis uzmanību tam, ka privātpersonām un uzņēmumiem ir tik grūti saņemt aizdevumu no bankām vai citām finanšu iestādēm. Mans uzņēmums (Novelty Finance) ir šeit, lai sniegtu un palīdzētu jums saņemt nepieciešamo aizdevumu.
Neatkarīgi no tā, vai vēlaties dot stimulu savam dzīvesveidam, vai arī jums ir negaidīti izdevumi, jums ir nepieciešams aizdevums NOVELTY FINANCE.
NOVELTY FINANCE ir elastīga: jūs varat aizņemties līdz pieciem miljoniem eiro (EUR 5 000 000,00), piemēroti atmaksas termiņi svārstās no 6 mēnešiem līdz 30 gadiem. Jūs varat pieteikties gan uz nodrošinājumu, gan uz nenodrošinātu aizdevumu. Mēs piedāvājam plašu klāstu personīgo aizdevumu, biznesa aizdevumu, mājas aizdevumu un parāda konsolidācijas aizdevumu, kurus var pielāgot jūsu mainīgajām vajadzībām un apstākļiem ar ļoti zemu procentu likmi.
Ko jūs saņemat, piesakoties Novelty Finance:
√ Tūlītēja piekļuve jūsu līdzekļiem pēc apstiprināšanas.
√ Konkurētspējīgas procentu likmes (3% gadā)
√ Elastīgi atmaksas noteikumi
√ Spēja ātrāk nomaksāt aizdevumu
√ Viegla apstiprināšana, ja jums nepieciešami papildu līdzekļi
√ Jums netiks steidzami atmaksāt aizdevumu, jums tiks dots laiks sākt kredīta atmaksu.
√ Nav slēptu maksu
Kā pieteikties:
Pieteikšanās kredītam ir ātra un vienkārša!
Uzņēmumiem vai personām, kuras vēlas pieteikties aizdevumam ar Novelty Finance un kurām nepieciešama plašāka informācija par aizdevuma piedāvājumu, SŪTĪT E-PASTU uz adresi (noveltyfinances@gmail.com) VAI nosūtīt ziņojumu WhatsApp / Telegram pa tālruni +447868796107, lai iegūtu vairāk informācijas un mutiskas instruktāžas Piesakieties .T & C.
|
| MARY MASON |
2021-05-14 15:44:10 |
|
Sky Wealth aizdevums Firma, mēs izsniedzam aizdevumus ar procentu likmi 0f 3%.
Laba diena ser / ma am.
Mēs esam privāts uzņēmums, un mēs piedāvājam aizdevumus ar zemām procentu likmēm, nosakot aizdevuma apjomu starp 100 miljoniem aizdevumu uzkrājumu no 1000 eiro aizdevuma uzņēmējdarbības attīstībai: priekšrocība / biznesa paplašināšanās konkurētspēja.
(Whatsapp numurs: +79652625435)
Mēs piedāvājam dažādus aizdevumus
* Personīgie aizdevumi (nodrošināti un nenodrošināti)
* Biznesa aizdevumi (nodrošināti un nenodrošināti)
* Konsolidācijas aizdevums
Nav iepriekšējas maksas
Mēs pateicamies, ka veltījāt laiku šīs reklāmas lasīšanai. Lai iegūtu papildinformāciju un jautājumus, nosūtiet mums e-pastu jau šodien
skywealthloanfirm@gmail.com
skywealthloanfirm@gmail.com
skywealthloanfirm@gmail.com
Jūs varat arī sazināties ar mums, izmantojot uzņēmuma vietni: http://skywealthloanfirm.wixsite.com/webworld
Mērijas Meisones kundze.
|
| GINAMORGANLOANCOMPAN |
2021-05-01 11:39:09 |
|
Mani sauc Valeria Marco, pirms 6 mēnešiem mans bizness sabruka, man nebija cerību atkal dabūt savu biznesu dzīvu. Es mēģināju aizņemties naudu no bankas, bet man nebija pietiekami daudz naudas kredītkartē un nebija īpašuma, kas būtu ķīla, lai saņemtu aizdevumu. Tad ļoti tuvs mans draugs Kamila Diego iepazīstināja mani ar īstu aizdevuma aizdevēju, izmantojot internetu GINA MORGAN AIZDEVUMU UZŅĒMUMS LTD. Šīs sievietes aizdevumu kompānija varēja man piešķirt aizdevumu EUR 160,000 bez īpašuma, kā ķīlu vai kredītkarti, taču viņa man to uzticēja. Tāpēc draugi es sev teicu, kāpēc būt savtīgam, tāpēc nolēmu dalīties ar šo informāciju ar visiem. Ja jums ir nepieciešams aizdevums no uzticama aizdevēja, sazinieties ar Džinu Morganu, izmantojot viņas WhatsApp: +393510840300 un e-pastu: ginamorganloancompany@gmail.com
|
| GINAMORGANLOANCOMPAN |
2021-05-01 11:38:15 |
|
Mani sauc Valeria Marco, pirms 6 mēnešiem mans bizness sabruka, man nebija cerību atkal dabūt savu biznesu dzīvu. Es mēģināju aizņemties naudu no bankas, bet man nebija pietiekami daudz naudas kredītkartē un nebija īpašuma, kas būtu ķīla, lai saņemtu aizdevumu. Tad ļoti tuvs mans draugs Kamila Diego iepazīstināja mani ar īstu aizdevuma aizdevēju, izmantojot internetu GINA MORGAN AIZDEVUMU UZŅĒMUMS LTD. Šīs sievietes aizdevumu kompānija varēja man piešķirt aizdevumu EUR 160,000 bez īpašuma, kā ķīlu vai kredītkarti, taču viņa man to uzticēja. Tāpēc draugi es sev teicu, kāpēc būt savtīgam, tāpēc nolēmu dalīties ar šo informāciju ar visiem. Ja jums ir nepieciešams aizdevums no uzticama aizdevēja, sazinieties ar Džinu Morganu, izmantojot viņas WhatsApp: +393510840300 un e-pastu: ginamorganloancompany@gmail.com
|
| MR MARK |
2021-05-01 01:48:08 |
|
vai jums ir nepieciešams aizdevums? E-pasts Markwilliamstrustfirm@gmail.com
|
| MR SHWN |
2021-04-30 01:56:56 |
|
Hello
Vai jūs tikko noraidīja jūsu bankas pēdējā laikā, un nav kur vēl jūs varētu saņemt aizdevumu,jums ir nepieciešams, sazināties ar mums šodien un ļauj redzēt, kā mēs varam jums palīdzēt, tikai godīgi un patiesi cilvēki laipni pieteikties, dažreiz to, kas mums ir nepieciešams, ir tikai ap mums, un mēs varam beigties nav nepieciešams iekļūt vairāk parādu, lai sakārtotu mūsu finansiālās problēmas, ar labu padomu un risinājumu, ko mēs piedāvājam, jūs varat būt drošs, jūs meklējat, lai izkļūt no šīs saspringto stūrī jums atrast sev brīdī. Ikviens ir laipni aicināti noskaidrot par mūsu pakalpojumiem.
Aizpildiet tālāk norādīto informāciju:
nosaukums:
Vecums:
adrese:
valsts:
valsts:
tālrunis:
nepieciešamā summa:
aizdevuma ilgums:
aizdevuma mērķis:
Lūdzu, sazinieties ar mani ASAP, lai mēs varētu sākt ar jūsu aizdevuma procesu
E-pasts(chasebanktransferdesk@gmail.com)
chasebanktransferdesk@yandex.com
Ar Cieņu.
Džeimss Tons.
|
| CLAUDIA KLEIN |
2021-04-23 01:27:16 |
|
Sveiki, laipni lūdzam Spotcap Global Financial Services, mani sauc Klaudija Kleina, es esmu vāciete un piedāvāju visu veidu aizdevumu pakalpojumus
Vai jums ļoti nepieciešams finansiāls atbalsts? Vai jums ir nepieciešams aizdevums dažādiem mērķiem? ja atbilde ir "jā", es iesaku jums sazināties ar manu firmu, izmantojot | spotcapglobalservices@gmail.com | vai ziņojiet mums vietnē WhatsApp: +4915758108767 | un 24 stundu laikā kontā ir aizdevums, jo mēs sniedzam lieliskus aizdevumu pakalpojumus visā pasaulē.
Mēs piedāvājam visu veidu aizdevumu pakalpojumus (personīgais aizdevums, biznesa aizdevums un daudzi citi), mēs piedāvājam gan ilgtermiņa, gan īstermiņa aizdevumus, kā arī jūs varat aizņemties līdz 15 miljoniem eiro, un mēs izsniedzam aizdevumus ar zemu procentu likmi 3% gadā. Mans uzņēmums palīdzēs jums sasniegt dažādus mērķus ar plašu aizdevuma produktu klāstu.
Es atzīstu faktu, ka likumīga aizdevuma saņemšana vienmēr ir bijusi milzīga problēma Personām, kurām ir finansiālas problēmas un kurām ir nepieciešams to risinājums, daudziem cilvēkiem ir tik grūti iegūt kapitāla aizdevumu no savām vietējām bankām vai citām finanšu institūcijām sakarā ar augsta procentu likme, nepietiekams nodrošinājums, parāda un ienākumu attiecība, zems kredītreitings vai citi iemesli
Vairs nav gaidīšanas laika vai stresa pilnu bankas apmeklējumu. Mūsu pakalpojums ir pieejams visu diennakti - jūs varat saņemt aizdevumu un pabeigt darījumus jebkurā laikā un vietā, kur jums tas nepieciešams
Mēs sniedzam 24 stundu pasaules klases aizdevumu pakalpojumus. Vai jums ir jautājumi / jautājumi? - Nosūtīt e-pastu uz spotcapglobalservices@gmail.com | vai ziņojiet mums vietnē WhatsApp: +4915758108767 | un mēs tevi nekavējoties apmeklēsim
Jūsu ģimenei, draugiem un kolēģiem nav jāzina, ka jums ir maz naudas, vienkārši vienkārši rakstiet mums un jūs saņemsiet aizdevumu.
Tava finansiālā brīvība ir tavās rokās !!
|
| MR MARK |
2021-04-19 15:14:37 |
|
Sveiki visiem, es vēlos pateikt lielu paldies Markam Viljamsam, kurš man aizdeva aizdevumu mana slimā bērna medikamentozai ārstēšanai. Es šodien esmu tik priecīgs satikt Marku Viljamsu, sazinieties ar viņu pa e-pastu, ja jums nepieciešams steidzams aizdevums (markwilliamstrustfirm@gmail.com)
|
| STEVE MARCIN BRAYDON |
2021-04-18 02:32:36 |
|
Sveiki visiem, es gribētu pateikt lielu paldies Stīvam marcinam
Brydon, kurš man aizdeva aizdevumu mana dēla operācijai. Es esmu tik priecīgs iepazīties ar Stīvu marcin Braydon! viņš ir tik labs cilvēks. Jums nav no kā baidīties! Viņš ir uzticams cilvēks.
Sazinieties ar viņu pa e-pastu
ja jums nepieciešams steidzams aizdevums. (stevemarcinbrydon@gmail.com)
|
| GINA MORGAN LOAN |
2021-04-14 12:14:28 |
|
Mani sauc Luis Roland, man ir jauka sieva un 3 bērni. pirms nedēļas man bija ļoti vajadzīga nauda, tāpēc es domāju, ka man būs aizdevums, tad es uzskrēju tik daudziem krāpniekiem, kas no manis iekasēja € 2,500 eiro un atsakās man sūtīt e-pastu. Es kļuvu ļoti neapmierināta un galu galā piedzērusies. Vienu uzticīgu dienu es devos uz klubu iedzert kādu dzērienu, kur es satiku vecu draugu, es viņam izstāstīju visu, kas ar mani notika, viņš mani iepazīstināja ar GINA MORGAN LOAN COMPANY LTD un iedeva man e-pastu adresi (ginamorganloancompany@gmail.com), viņš man pastāstīja, kā Uzņēmums palīdzēja viņam un viņa ģimenei. Es ar viņu sazinājos uzreiz, kad es nokļuvu mājās, man pateica noteikumus un noteikumus, pēc aizdevuma noformēšanas mazāk nekā 24 stundu laikā es saņēmu savu aizdevumu € 80,000 eiro apmērā. Tātad, ja jūs interesē aizdevums, varat arī sazināties ar viņu Whats App: +393510840300 un e-pastu: ginamorganloancompany@gmail.com
|
| GINA MORGAN LOAN |
2021-04-14 12:13:29 |
|
Mani sauc Luis Roland, man ir jauka sieva un 3 bērni. pirms nedēļas man bija ļoti vajadzīga nauda, tāpēc es domāju, ka man būs aizdevums, tad es uzskrēju tik daudziem krāpniekiem, kas no manis iekasēja € 2,500 eiro un atsakās man sūtīt e-pastu. Es kļuvu ļoti neapmierināta un galu galā piedzērusies. Vienu uzticīgu dienu es devos uz klubu iedzert kādu dzērienu, kur es satiku vecu draugu, es viņam izstāstīju visu, kas ar mani notika, viņš mani iepazīstināja ar GINA MORGAN LOAN COMPANY LTD un iedeva man e-pastu adresi (ginamorganloancompany@gmail.com), viņš man pastāstīja, kā Uzņēmums palīdzēja viņam un viņa ģimenei. Es ar viņu sazinājos uzreiz, kad es nokļuvu mājās, man pateica noteikumus un noteikumus, pēc aizdevuma noformēšanas mazāk nekā 24 stundu laikā es saņēmu savu aizdevumu € 80,000 eiro apmērā. Tātad, ja jūs interesē aizdevums, varat arī sazināties ar viņu Whats App: +393510840300 un e-pastu: ginamorganloancompany@gmail.com
|
| MR MARK |
2021-04-08 14:08:48 |
|
Sveiki visiem, es vēlos pateikt lielu paldies Markam Viljamsam, kurš man aizdeva aizdevumu mana slimā bērna medikamentozai ārstēšanai. Es šodien esmu tik priecīgs satikt Marku Viljamsu, sazinieties ar viņu pa e-pastu, ja jums nepieciešams steidzams aizdevums (markwilliamstrustfirm@gmail.com)
|
| SUSAN BENSON |
2021-04-05 18:46:29 |
|
Sveiki, dāmas un kungi, vai jums nepieciešama finansiāla palīdzība? Es esmu Sjūzena Bensone. Es esmu aizdevējs un arī finanšu konsultants.
Vai jums ir nepieciešams biznesa aizdevums, personīgais aizdevums, hipotēkas aizdevums vai aizdevums, lai pabeigtu projektu? ja atbilde ir apstiprinoša, iesaku sazināties ar manu firmu. Mēs sniedzam visu veidu aizdevumu pakalpojumus, ieskaitot ilgtermiņa un īstermiņa aizdevumus. Lai iegūtu vairāk informācijas, rakstiet mums pa e-pastu: (sunshinefinancialgroupinc@gmail.com) vai nosūtiet man ziņojumu tieši vietnē WhatsApp pa tālruni: +447903159998 un uzreiz saņemiet atbildi.
Mēs esam visaptverošs finanšu pakalpojumu uzņēmums, un mēs esam apņēmušies palīdzēt jums sasniegt visus jūsu vēlmes. Mēs specializējamies strukturētu finanšu risinājumu sniegšanā privātpersonām un uzņēmumiem visefektīvākajā un ātrākajā veidā.
Šeit ir daži iemesli, kāpēc jums vajadzētu sazināties ar mums, lai saņemtu aizdevumu;
* Ērtības - Jūs varat pieteikties aizdevumam jebkurā laikā un vietā.
* Elastīga summa - jūs izlemjat, cik daudz vēlaties aizņemties.
* Ātrais tiešais finansējums - saņemiet aizdevumu 24 stundu laikā pēc apstiprināšanas.
* Elastīga procentu likme - pieņemama procentu likme 3%.
* Augstas apstiprināšanas likmes
* Elastīga atmaksa - jūs saņemat iespēju izvēlēties atmaksas datumu, reizi nedēļā, mēnesī vai gadā uz 1-30 gadiem.
* Vienkārša tiešsaistes lietojumprogramma.
* Personalizēta vadība un zināšanas.
* Nav slēptu maksu
Nepazaudējiet iespēju līdzekļu trūkuma dēļ. Sazinieties ar manu uzņēmumu tūlīt, mēs varam jums palīdzēt ar aizdevumu, jo mēs esam palīdzējuši daudzām personām un organizācijām, kuras visā pasaulē ir saskārušās ar finansiālām grūtībām
Lai iegūtu vairāk informācijas par mūsu aizdevuma piedāvājumu, lūdzu, nosūtiet mums aizdevuma pieprasījumu, izmantojot šo e-pasta adresi sunshinefinancialgroupinc@gmail.com vai vietnē WhatsApp pa tālruni +447903159998
Starpnieki / konsultanti / brokeri ir laipni aicināti piesaistīt savus klientus un ir 100% aizsargāti. Pilnīgā pārliecībā mēs strādāsim kopā visu iesaistīto pušu labā.
|
| CLAUDIA |
2021-04-02 15:46:44 |
|
Kredīta piedāvājums bez priekšapmaksas
Sveiki
Mums ir kapitāls, kuru mēs darām pieejamu visiem nopietniem un godīgiem cilvēkiem, kuri vēlas ņemt aizdevumu. Jūs varat saņemt izvēlēto aizdevumu par pieņemamu procentu likmi. Mēs vienmēr esam jūsu rīcībā, lai iegūtu papildu informāciju.
Kontaktpersona:
pasts: claudiahahn256@gmail.com
|
| CLAUDIA |
2021-04-02 15:45:24 |
|
Kredīta piedāvājums bez priekšapmaksas
Sveiki
Mums ir kapitāls, kuru mēs darām pieejamu visiem nopietniem un godīgiem cilvēkiem, kuri vēlas ņemt aizdevumu. Jūs varat saņemt izvēlēto aizdevumu par pieņemamu procentu likmi. Mēs vienmēr esam jūsu rīcībā, lai iegūtu papildu informāciju.
Kontaktpersona:
pasts: claudiahahn256@gmail.com
|
| CLAUDIA |
2021-04-02 15:42:36 |
|
Kredīta piedāvājums bez priekšapmaksas
Sveiki
Mums ir kapitāls, kuru mēs darām pieejamu visiem nopietniem un godīgiem cilvēkiem, kuri vēlas ņemt aizdevumu. Jūs varat saņemt izvēlēto aizdevumu par pieņemamu procentu likmi. Mēs vienmēr esam jūsu rīcībā, lai iegūtu papildu informāciju.
Kontaktpersona:
pasts: claudiahahn256@gmail.com
|
| DžORDANA VILJAMA KUN |
2021-03-26 04:55:09 |
|
Sveiki,
Mūsu uzņēmums piedāvā dinamiskus tiešsaistes aizdevumus, kas sastāv no vairāk nekā 2 miljoniem aizņēmēju. Tas dod jums iespēju apstrīdēt un dominēt, lai saņemtu aizdevumu vismaz 3 000,00 eiro un maksimāli 300 000 000,00 eiro apmērā
Vai esat domājis par likumīga aizdevuma aizdevēja iegūšanu, kur vēlaties ieguldīt atkārtoti pēc daudzām dividendēm? Ņemiet vērā, ka mēs piedāvājam aizdevumu ar zemu procentu likmi 2% gadā vai mēnesī. Tomēr mēs piedāvājam plašu finanšu pakalpojumu klāstu privātpersonām un uzņēmumu īpašniekiem. Mēs strādājam ar privātpersonām, maziem, vidējiem un lieliem uzņēmumiem, lai palīdzētu viņiem vai nu sākt, vai arī paplašināties jaunās teritorijās. Mēs palīdzam finansēt mazos uzņēmumus, kad tas ir nepieciešams visvairāk, lai paplašinātu esošo biznesu, nopirktu kapitālo aprīkojumu, apmaksātu izdevumus un daudzām citām vajadzībām, piemēram, reklāmai, nomai, renovācijai utt. E-pasts: marcylandloans@gmail.com, lai iegūtu vairāk informācijas.
Paldies
Ar laba vēlējumiem,
Džordana Viljama kungs.
E-pasts: marcylandloans@gmail.com
Sistēmu tīkls, Kanzasa, ASV
|
| DžORDANA VILJAMA KUN |
2021-03-26 04:54:48 |
|
Sveiki,
Mūsu uzņēmums piedāvā dinamiskus tiešsaistes aizdevumus, kas sastāv no vairāk nekā 2 miljoniem aizņēmēju. Tas dod jums iespēju apstrīdēt un dominēt, lai saņemtu aizdevumu vismaz 3 000,00 eiro un maksimāli 300 000 000,00 eiro apmērā
Vai esat domājis par likumīga aizdevuma aizdevēja iegūšanu, kur vēlaties ieguldīt atkārtoti pēc daudzām dividendēm? Ņemiet vērā, ka mēs piedāvājam aizdevumu ar zemu procentu likmi 2% gadā vai mēnesī. Tomēr mēs piedāvājam plašu finanšu pakalpojumu klāstu privātpersonām un uzņēmumu īpašniekiem. Mēs strādājam ar privātpersonām, maziem, vidējiem un lieliem uzņēmumiem, lai palīdzētu viņiem vai nu sākt, vai arī paplašināties jaunās teritorijās. Mēs palīdzam finansēt mazos uzņēmumus, kad tas ir nepieciešams visvairāk, lai paplašinātu esošo biznesu, nopirktu kapitālo aprīkojumu, apmaksātu izdevumus un daudzām citām vajadzībām, piemēram, reklāmai, nomai, renovācijai utt. E-pasts: marcylandloans@gmail.com, lai iegūtu vairāk informācijas.
Paldies
Ar laba vēlējumiem,
Džordana Viljama kungs.
E-pasts: marcylandloans@gmail.com
Sistēmu tīkls, Kanzasa, ASV
|
| DžORDANA VILJAMA KUN |
2021-03-26 04:50:13 |
|
Sveiki,
Mūsu uzņēmums piedāvā dinamiskus tiešsaistes aizdevumus, kas sastāv no vairāk nekā 2 miljoniem aizņēmēju. Tas dod jums iespēju apstrīdēt un dominēt, lai saņemtu aizdevumu vismaz 3 000,00 eiro un maksimāli 300 000 000,00 eiro apmērā
Vai esat domājis par likumīga aizdevuma aizdevēja iegūšanu, kur vēlaties ieguldīt atkārtoti pēc daudzām dividendēm? Ņemiet vērā, ka mēs piedāvājam aizdevumu ar zemu procentu likmi 2% gadā vai mēnesī. Tomēr mēs piedāvājam plašu finanšu pakalpojumu klāstu privātpersonām un uzņēmumu īpašniekiem. Mēs strādājam ar privātpersonām, maziem, vidējiem un lieliem uzņēmumiem, lai palīdzētu viņiem vai nu sākt, vai arī paplašināties jaunās teritorijās. Mēs palīdzam finansēt mazos uzņēmumus, kad tas ir nepieciešams visvairāk, lai paplašinātu esošo biznesu, nopirktu kapitālo aprīkojumu, apmaksātu izdevumus un daudzām citām vajadzībām, piemēram, reklāmai, nomai, renovācijai utt. E-pasts: marcylandloans@gmail.com, lai iegūtu vairāk informācijas.
Paldies
Ar laba vēlējumiem,
Džordana Viljama kungs.
E-pasts: marcylandloans@gmail.com
Sistēmu tīkls, Kanzasa, ASV
|
| BRYAN STEFAN LOAN FI |
2021-03-17 18:58:59 |
|
Personīgā un biznesa aizdevuma piedāvājums!
Vai jūs esat finansiāli nolaists? Vai arī jūs meklējat līdzekļus aizdevumu un parādu atmaksai vai sava biznesa uzsākšanai? Vienkārši atbildiet uz šo piedāvājumu, lai saņemtu iepriekšēju aizdevuma apstiprinājumu personīgai vai uzņēmējdarbībai, kas piemērota jebkuram mērķim, piemēram:
1 • Hipotēku aizdevumi
2 • Personīgie aizdevumi
3 • Automātiskie aizdevumi
4 • Projekta finansēšana
5 • Kapitāla palielināšana
Nodrošiniet aizdevumu pie mums jau šodien un sāciet ar kaut ko atalgojošu. 100% garantēta, jo mēs nodrošinām arī sirsnīgas attiecības ar klientiem, bez kredīta pārbaudēm un bez ķīlas ar vienkāršiem soļiem un ātru finansēšanu ar zemu procentu likmi, maksimāli līdz 3% nekā citi institūti. Mums ir kreditēšanas spēja līdz 5 miljoniem eiro.
Nopietniem un labprātīgiem interesentiem vienkārši jāatbild.
Sazinieties ar mums pa e-pastu bryanstefanloanfirm@gmail.com vai whatsapp: +919654763221
Ar cieņu!
Braiens Stefans
|
| BRYAN STEFAN |
2021-03-17 18:58:12 |
|
Personīgā un biznesa aizdevuma piedāvājums!
Vai jūs esat finansiāli nolaists? Vai arī jūs meklējat līdzekļus aizdevumu un parādu atmaksai vai sava biznesa uzsākšanai? Vienkārši atbildiet uz šo piedāvājumu, lai saņemtu iepriekšēju aizdevuma apstiprinājumu personīgai vai uzņēmējdarbībai, kas piemērota jebkuram mērķim, piemēram:
1 • Hipotēku aizdevumi
2 • Personīgie aizdevumi
3 • Automātiskie aizdevumi
4 • Projekta finansēšana
5 • Kapitāla palielināšana
Nodrošiniet aizdevumu pie mums jau šodien un sāciet ar kaut ko atalgojošu. 100% garantēta, jo mēs nodrošinām arī sirsnīgas attiecības ar klientiem, bez kredīta pārbaudēm un bez ķīlas ar vienkāršiem soļiem un ātru finansēšanu ar zemu procentu likmi, maksimāli līdz 3% nekā citi institūti. Mums ir kreditēšanas spēja līdz 5 miljoniem eiro.
Nopietniem un labprātīgiem interesentiem vienkārši jāatbild.
Sazinieties ar mums pa e-pastu bryanstefanloanfirm@gmail.com vai whatsapp: +919654763221
Ar cieņu!
Braiens Stefans
|
| CLAUDIA KLEIN |
2021-03-11 02:19:12 |
|
Sveiki, laipni lūdzam Spotcap Global Financial Services, mani sauc Klaudija Kleina, es esmu vāciete un piedāvāju visu veidu aizdevumu pakalpojumus
Vai jums ļoti nepieciešams finansiāls atbalsts? Vai jums ir nepieciešams aizdevums dažādiem mērķiem? ja atbilde ir "jā", es iesaku jums sazināties ar manu firmu, izmantojot | spotcapglobalservices@gmail.com | vai ziņojiet mums vietnē WhatsApp: +4915758108767 | un 24 stundu laikā kontā ir aizdevums, jo mēs sniedzam lieliskus aizdevumu pakalpojumus visā pasaulē.
Mēs piedāvājam visu veidu aizdevumu pakalpojumus (personīgais aizdevums, biznesa aizdevums un daudzi citi), mēs piedāvājam gan ilgtermiņa, gan īstermiņa aizdevumus, kā arī jūs varat aizņemties līdz pat 15 miljoniem eiro, un mēs izsniedzam aizdevumus ar zemu procentu likmi 3% gadā. Mans uzņēmums palīdzēs jums sasniegt dažādus mērķus ar plašu aizdevuma produktu klāstu.
Es atzīstu faktu, ka likumīga aizdevuma saņemšana vienmēr ir bijusi milzīga problēma Personām, kurām ir finansiālas problēmas un kurām ir nepieciešams to risinājums, daudziem cilvēkiem ir tik grūti iegūt kapitāla aizdevumu no savām vietējām bankām vai citām finanšu iestādēm, jo augsta procentu likme, nepietiekams nodrošinājums, parāda un ienākumu attiecība, zems kredītreitings vai citi iemesli
Vairs nav gaidīšanas laika vai stresa pilnu bankas apmeklējumu. Mūsu pakalpojums ir pieejams visu diennakti - jūs varat saņemt aizdevumu un pabeigt darījumus jebkurā laikā un vietā, kur jums tas nepieciešams
Mēs sniedzam 24 stundu pasaules klases aizdevumu pakalpojumus. Vai jums ir jautājumi / jautājumi? - Nosūtīt e-pastu uz spotcapglobalservices@gmail.com | vai ziņojiet mums vietnē WhatsApp: +4915758108767 | un mēs tevi nekavējoties apmeklēsim
Jūsu ģimenei, draugiem un kolēģiem nav jāzina, ka jums ir maz naudas, vienkārši vienkārši rakstiet mums un jūs saņemsiet aizdevumu.
Tava finansiālā brīvība ir tavās rokās !!
|
| COVID-19 LOANS OFFER |
2021-03-10 01:21:02 |
|
Ja jums ir problēmas ar pašreizējo kredītreitingu vai ja nevarat saņemt aizdevumu un jums ir problēmas ar īres maksāšanu. Izmantojot elastīgās aizdevumu paketes, mēs esam garantēti un spējam sniegt finanšu pakalpojumus daudziem mūsu klientiem visā pasaulē. Mēs strādājam ar skaidriem un saprotamiem noteikumiem un piedāvājam visu veidu aizdevumus ieinteresētiem klientiem, uzņēmumiem, uzņēmumiem, biznesa organizācijām, privātpersonām un nekustamā īpašuma investoriem.
Nekavējoties sazinieties ar mums, lai iegūtu vairāk informācijas un interešu, lūdzu, sazinieties ar mums pa e-pastu (covid19unemploymentloans@gmail.com).
|
| BLACKSBURG CLINIC |
2021-03-10 01:17:18 |
|
Apzināšanās
Mērķis ir informēt sabiedrību par veseliem vīriešiem un sievietēm. Kas interesē
Pārdodot kaulu smadzenes (nieru orgānus) nierēm, sēkliniekiem un 100% nopietni sazinoties. E-pasts; blacksburgclinic@gmail.com
Jo mums ir daudz
Pašlaik pacientiem nepieciešama nieru transplantācija.
Meklējiet veidus, kā pārdot savu nieru naudu, lai palīdzētu to finansēt
Mēs pērkam jūsu
Nieres par 1 000 000 eiro
Svira: 800 000 eiro s
Olnīcas: 350 000 eiro
Astoņas smadzenes: 550 000 eiro
Nosūtiet mums e-pastu
E-pasts;
E-pasts; blacksburgclinic@gmail.com
WhatsApp: pajautājiet man
Godīgi sakot
Blacksburgas klīnika
Lūdzu, ņemiet vērā, ka tikai donori var pieteikties uz derīgu donora sertifikātu. Lai uzzinātu vairāk par sertifikātu, sazinieties ar mums.
|
| FRED |
2021-03-09 13:20:23 |
|
man nepieciešams steidzams aizdevums uz fredlarryloanfirm@gmail.com
Šeit mēs esam gatavi apstrādāt jūsu aizdevumu
Laba diena,
Vai esat biznesa vīrietis vai sieviete? Ir pienācis laiks izpildīt jūsu sapņus, mēs esam sertificēta aizdevumu kompānija, mēs piedāvājam aizdevumus ar zemu procentu likmi 3%, privātpersonām un uzņēmumiem visā pasaulē jebkurā vēlamajā valūtā, mārciņās, dolāros, eiro utt.
Paļaujieties uz mums šodien, lai saņemtu ātru un garantētu aizdevumu
sazinieties ar mums pa
E-pasts: (fredlarryloanfirm@gmail.com) vai (fredlarryloanfirm@hotmail.com)
WhatsApp numurs: +967737371424
|
| SUSAN BENSON |
2021-03-06 17:50:46 |
|
Sveiki, dāmas un kungi, vai jums nepieciešama finansiāla palīdzība? Es esmu Sūzena Bensone. Es esmu aizdevējs un arī finanšu konsultants.
Vai jums ir nepieciešams biznesa aizdevums, personīgais aizdevums, hipotēkas aizdevums vai aizdevums, lai pabeigtu projektu? ja atbilde ir apstiprinoša, iesaku sazināties ar manu firmu. Mēs sniedzam visu veidu aizdevumu pakalpojumus, ieskaitot ilgtermiņa un īstermiņa aizdevumus. Lai iegūtu vairāk informācijas, rakstiet mums pa e-pastu: (sunshinefinancialgroupinc@gmail.com) vai nosūtiet man ziņojumu tieši vietnē WhatsApp pa tālruni: +447903159998 un uzreiz saņemiet atbildi.
Mēs esam visaptverošs finanšu pakalpojumu uzņēmums, un mēs esam apņēmušies palīdzēt jums sasniegt visus jūsu vēlmes. Mēs specializējamies strukturētu finanšu risinājumu sniegšanā privātpersonām un uzņēmumiem visefektīvākajā un ātrākajā veidā.
Šeit ir daži iemesli, kāpēc jums vajadzētu sazināties ar mums, lai saņemtu aizdevumu;
* Ērtības - Jūs varat pieteikties aizdevumam jebkurā laikā un vietā.
* Elastīga summa - jūs izlemjat, cik daudz vēlaties aizņemties.
* Ātrais tiešais finansējums - saņemiet aizdevumu 24 stundu laikā pēc apstiprināšanas.
* Elastīga procentu likme - pieņemama procentu likme 3%.
* Augstas apstiprināšanas likmes
* Elastīga atmaksa - jūs saņemat iespēju izvēlēties atmaksas datumu - reizi nedēļā, mēnesī vai gadā uz 1-30 gadiem.
* Vienkārša tiešsaistes lietojumprogramma.
* Personalizēta vadība un zināšanas.
* Nav slēptu maksu
Nepazaudējiet iespēju līdzekļu trūkuma dēļ. Sazinieties ar manu uzņēmumu tūlīt, mēs varam jums palīdzēt ar aizdevumu, jo mēs esam palīdzējuši daudzām personām un organizācijām, kuras visā pasaulē ir saskārušās ar finansiālām grūtībām
Lai iegūtu vairāk informācijas par mūsu aizdevuma piedāvājumu, lūdzu, nosūtiet mums savu aizdevuma pieprasījumu, izmantojot:
E-pasts: sunshinefinancialgroupinc@gmail.com
WhatsApp: +447903159998
Starpnieki / konsultanti / brokeri ir laipni aicināti piesaistīt savus klientus un ir 100% aizsargāti. Pilnīgā pārliecībā mēs strādāsim kopā visu iesaistīto pušu labā.
|
| BRYAN STEFAN |
2021-02-26 08:40:54 |
|
Personīgā un biznesa aizdevuma piedāvājums!
Vai jūs esat finansiāli nolaists? Vai arī jūs meklējat līdzekļus aizdevumu un parādu atmaksai vai sava biznesa uzsākšanai? Vienkārši atbildiet uz šo piedāvājumu, lai saņemtu iepriekšēju aizdevuma apstiprinājumu personīgai vai uzņēmējdarbībai, kas piemērota jebkuram mērķim, piemēram:
1 • Hipotēku aizdevumi
2 • Personīgie aizdevumi
3 • Automātiskie aizdevumi
4 • Projekta finansēšana
5 • Kapitāla palielināšana
Nodrošiniet aizdevumu pie mums jau šodien un sāciet ar kaut ko atalgojošu. 100% garantēta, jo mēs nodrošinām arī sirsnīgas attiecības ar klientiem, bez kredīta pārbaudēm un bez ķīlas ar vienkāršiem soļiem un ātru finansējumu ar zemu procentu likmi, maksimāli līdz 3% nekā citi institūti. Mums ir kreditēšanas spēja līdz 5 miljoniem eiro.
Nopietniem un labprātīgiem interesentiem vienkārši jāatbild.
Sazinieties ar mums pa e-pastu bryanstefanloanfirm@gmail.com vai whatsapp: +919654763221
Ar cieņu!
Braiens Stefans
|
| BRYAN STEFAN |
2021-02-26 08:40:26 |
|
Personīgā un biznesa aizdevuma piedāvājums!
Vai jūs esat finansiāli nolaists? Vai arī jūs meklējat līdzekļus aizdevumu un parādu atmaksai vai sava biznesa uzsākšanai? Vienkārši atbildiet uz šo piedāvājumu, lai saņemtu iepriekšēju aizdevuma apstiprinājumu personīgai vai uzņēmējdarbībai, kas piemērota jebkuram mērķim, piemēram:
1 • Hipotēku aizdevumi
2 • Personīgie aizdevumi
3 • Automātiskie aizdevumi
4 • Projekta finansēšana
5 • Kapitāla palielināšana
Nodrošiniet aizdevumu pie mums jau šodien un sāciet ar kaut ko atalgojošu. 100% garantēta, jo mēs nodrošinām arī sirsnīgas attiecības ar klientiem, bez kredīta pārbaudēm un bez ķīlas ar vienkāršiem soļiem un ātru finansējumu ar zemu procentu likmi, maksimāli līdz 3% nekā citi institūti. Mums ir kreditēšanas spēja līdz 5 miljoniem eiro.
Nopietniem un labprātīgiem interesentiem vienkārši jāatbild.
Sazinieties ar mums pa e-pastu bryanstefanloanfirm@gmail.com vai whatsapp: +919654763221
Ar cieņu!
Braiens Stefans
|
| STEIDZAMS AIZDEVUMU |
2021-02-20 12:48:22 |
|
STeidzams AIZDEVUMU PIEDĀVĀJUMS AR ZEMU PROCENTU LIKMU 3% PIESAKIES TŪLĪT. Uzņēmējdarbības aizdevuma un visu citu saistīto aizdevumu iegūšana jūs nodrošinājāt ar KRISTU AIZDEVUMU FONDI, mums ir īpašs piedāvājums, mēs piedāvājam jums platformu, kurā jūs varat izmantot aizdevumu ar procentu likmi 3% interesantā laika posmā no 1 līdz 35 gadiem, mēs esam uzticami, uzticības cienīgi un likumīgi. Mēs piedāvājam aizdevumu no vismaz USD 5 000 līdz maksimāli USD 80 000 000: 00. Ieinteresētajiem klientiem laipni jāziņo mums caur uzņēmuma portālu, lai aizpildītu pieteikuma veidlapu, izmantojot WhatsApp: +256756543536 vai e-pastu: christharmonyloanfund@gmail.com
|
| FRED |
2021-02-19 15:11:10 |
|
man nepieciešams steidzams aizdevums uz fredlarryloanfirm@gmail.com
Šeit mēs esam gatavi apstrādāt jūsu aizdevumu
Laba diena,
Vai esat biznesa vīrietis vai sieviete? Ir pienācis laiks izpildīt jūsu sapni, mēs esam sertificēta aizdevumu kompānija, mēs piedāvājam aizdevumus ar zemu procentu likmi 3%, privātpersonām un uzņēmumiem visā pasaulē jebkurā vēlamajā valūtā, mārciņās, dolāros, eiro utt.
Paļaujieties uz mums šodien, lai saņemtu ātru un garantētu aizdevumu
sazinieties ar mums pa
E-pasts: (fredlarryloanfirm@gmail.com) vai (fredlarryloanfirm@hotmail.com)
WhatsApp numurs: +967737371424
|
| CLAUDIA KLEIN |
2021-02-18 11:40:28 |
|
Sveiki un laipni lūdzam Spotcap globālajos aizdevumu pakalpojumos, mani sauc Klaudija Kleina, esmu aizdevēja un arī finanšu konsultante.
Vai jums ļoti nepieciešams finansiāls atbalsts? Vai jums ir nepieciešams aizdevums dažādiem mērķiem? ja atbilde ir "jā", es iesaku jums sazināties ar manu firmu, izmantojot | spotlightglobalservices@gmail.com | vai ziņojiet mums vietnē WhatsApp: +4915758108767 | un 24 stundu laikā kontā ir aizdevums, jo mēs sniedzam lieliskus aizdevumu pakalpojumus visā pasaulē.
Mēs piedāvājam visu veidu aizdevumu pakalpojumus (personīgais aizdevums, biznesa aizdevums un daudzi citi), mēs piedāvājam gan ilgtermiņa, gan īstermiņa aizdevumus, kā arī jūs varat aizņemties līdz 15 miljoniem eiro, un mēs izsniedzam aizdevumus ar zemu procentu likmi 3% gadā. Mans uzņēmums palīdzēs jums sasniegt dažādus mērķus ar plašu aizdevuma produktu klāstu.
Mēs zinām, ka likumīga aizdevuma saņemšana vienmēr ir bijusi milzīga problēma Personām, kurām ir finansiālas problēmas un kurām nepieciešama to risināšana, daudziem cilvēkiem ir ļoti grūti saņemt kapitāla aizdevumu no savām vietējām bankām vai citām finanšu iestādēm lielu interešu dēļ. likme, nepietiekams nodrošinājums, parāda un ienākumu attiecība, zems kredītreitings vai citi iemesli
Vairs nav gaidīšanas laika vai stresa pilnu bankas apmeklējumu. Mūsu pakalpojums ir pieejams visu diennakti - jūs varat saņemt aizdevumu un pabeigt darījumus jebkurā laikā un vietā, kur jums tas nepieciešams
Mēs sniedzam 24 stundu pasaules klases aizdevumu pakalpojumus. Vai jums ir jautājumi / jautājumi? - Nosūtīt e-pastu uz spotlightglobalservices@gmail.com | vai nosūtiet mums ziņojumu WhatsApp: +4915758108767 | vai izmantojot vietni: https://spotlightglobalfin.wixsite.com/financial ||
Jūsu ģimenei, draugiem un kolēģiem nav jāzina, ka jums ir maz naudas, vienkārši vienkārši rakstiet mums un jūs saņemsiet aizdevumu.
Tava finansiālā brīvība ir tavās rokās !!
|
| BRUNO GERMAIN |
2021-02-16 21:22:19 |
|
Tere, olen hõivatud veebis levivate isiklike laenude kuulutuste hulga suurenemisega. Kardan, et paljud raskustes ja kiireloomulistes oludes viskavad end pimesi riskantsesse operatsiooni. Soovitan teil võtta ühendust pr Chantale LAUDiga. See annab rahalaene tõsiste isikute vahel.
Siin on tema e-post: chantalelaud@gmail.com
|
| CLAUDIA KLEIN |
2021-02-04 01:48:19 |
|
Sveiki un laipni lūdzam Spotcap globālajos aizdevumu pakalpojumos, mani sauc Klaudija Kleina, esmu aizdevēja un arī finanšu konsultante.
Vai jums ļoti nepieciešams finansiāls atbalsts? Vai jums ir nepieciešams aizdevums dažādiem mērķiem? ja atbilde ir "jā", es iesaku jums sazināties ar manu firmu, izmantojot | spotlightglobalservices@gmail.com | vai nosūtiet mums ziņojumu WhatsApp: +4915758108767 | un 24 stundu laikā kontā ir aizdevums, jo mēs sniedzam lieliskus aizdevumu pakalpojumus visā pasaulē.
Mēs piedāvājam visu veidu aizdevumu pakalpojumus (personīgais aizdevums, biznesa aizdevums un daudzi citi), mēs piedāvājam gan ilgtermiņa, gan īstermiņa aizdevumus, kā arī jūs varat aizņemties līdz 15 miljoniem eiro, un mēs izsniedzam aizdevumus ar zemu procentu likmi 3% gadā. Mans uzņēmums palīdzēs jums sasniegt dažādus mērķus ar plašu aizdevumu produktu klāstu.
Mēs zinām, ka likumīga aizdevuma saņemšana vienmēr ir bijusi milzīga problēma Personām, kurām ir finansiālas problēmas un kurām ir nepieciešams to risinājums, daudziem cilvēkiem ir ļoti grūti saņemt kapitāla aizdevumu no savām vietējām bankām vai citām finanšu iestādēm lielu interešu dēļ. likme, nepietiekams nodrošinājums, parāda un ienākumu attiecība, zems kredītreitings vai citi iemesli
Vairs nav gaidīšanas laika vai stresa pilnu bankas apmeklējumu. Mūsu pakalpojums ir pieejams visu diennakti - jūs varat saņemt aizdevumu un pabeigt darījumus jebkurā laikā un vietā, kur jums tas nepieciešams
Mēs sniedzam 24 stundu pasaules klases aizdevumu pakalpojumus. Vai jums ir jautājumi / jautājumi? - Nosūtīt e-pastu uz spotlightglobalservices@gmail.com | vai nosūtiet mums ziņojumu WhatsApp: +4915758108767 | vai izmantojot vietni: https://spotlightglobalfin.wixsite.com/financial ||
Jūsu ģimenei, draugiem un kolēģiem nav jāzina, ka jums ir maz naudas, vienkārši vienkārši rakstiet mums un jūs saņemsiet aizdevumu.
Tava finansiālā brīvība ir tavās rokās !!
|
| MR MARK |
2021-01-23 09:51:59 |
|
Sveiki, vai jums steidzami nepieciešams aizdevums, lai atrisinātu savas finansiālās problēmas? ja jā, nosūtiet mums tūlīt e-pastu: markwilliamstrustfirm@gmail.com
|
| MR MARK |
2021-01-23 08:50:38 |
|
Sveiki visiem, es vēlos pateikt lielu paldies Markam Viljamsam, kurš man aizdeva aizdevumu mana slimā bērna medikamentozai ārstēšanai. Es šodien esmu tik priecīgs satikt Marku Viljamsu, sazinieties ar viņu pa e-pastu, ja jums nepieciešams steidzams aizdevums (markwilliamstrustfirm@gmail.com)
|
| IRENE |
2021-01-16 17:11:23 |
|
Mani sauc Irēna Kovaciča no Horvātijas. Es sazinājos ar Simon Finn Financial Help Company kungu par uzņēmējdarbības aizdevuma summu EUR 50 000,00 apmērā. Pēc tam man atkal tika paziņots par manas pieprasītās aizdevuma summas apstiprināšanas soli pēc tam, kad atkal riskēju, jo biju tik ļoti izmisis no uzņēmējdarbības izveides man par vislielāko pārsteigumu, aizdevuma summa tika ieskaitīta manā bankas kontā 12 stundu laikā, neradot stresu par aizdevuma saņemšanu. Es biju pārsteigts, jo es vispirms biju krāpniecības upuris! Ja jūs interesē kādas aizdevuma summas nodrošināšana un jūs atrodaties jebkurā valstī, es iesaku jums sazināties ar Simon Finn kungu pa e-pastu: simonfinnloan.inc@gmail.com.
|
| HOPKINSON LANCE |
2021-01-16 08:47:53 |
|
Laba diena,
Vai jums ir nepieciešams aizdevums?
Vai jums ir kāda finanšu krīze?
Jums ir paveicies, jo mēs visiem 24 stundu laikā piešķiram aizdevumus un finansiālu palīdzību neatkarīgi no jūsu finansiālā stāvokļa. Ja ir interese, varat sazināties ar mums pa hopkinsonloan@outlook.com un aizpildīt zemāk esošo informāciju.
Pilnais vārds:
Aizdevuma summa:
Aizdevuma ilgums:
Paldies.
|
| MR MARK |
2021-01-14 15:52:44 |
|
Sveiki visiem, es vēlos pateikt lielu paldies Markam Viljamsam, kurš man aizdeva aizdevumu mana slimā bērna medikamentozai ārstēšanai. Es šodien esmu tik priecīgs satikt Marku Viljamsu, sazinieties ar viņu pa e-pastu, ja jums nepieciešams steidzams aizdevums (markwilliamstrustfirm@gmail.com)
|
| MR MARK |
2021-01-14 15:39:49 |
|
Sveiki visiem, es vēlos pateikt lielu paldies Markam Viljamsam, kurš man aizdeva aizdevumu mana slimā bērna medikamentozai ārstēšanai. Es šodien esmu tik priecīgs satikt Marku Viljamsu, sazinieties ar viņu pa e-pastu, ja jums nepieciešams steidzams aizdevums (markwilliamstrustfirm@gmail.com)
|
| MR MARK |
2021-01-13 12:27:45 |
|
Sveiki visiem, es vēlos pateikt lielu paldies Markam Viljamsam, kurš man aizdeva aizdevumu mana slimā bērna medikamentozai ārstēšanai. Es šodien esmu tik priecīgs satikt Marku Viljamsu, sazinieties ar viņu pa e-pastu, ja jums nepieciešams steidzams aizdevums (markwilliamstrustfirm@gmail.com)
|
| SUSAN BENSON |
2021-01-13 11:09:51 |
|
Sveiki, dāmas un kungi, vai jums nepieciešama finansiāla palīdzība? Es esmu Sjūzena Bensone. Es esmu aizdevējs un arī finanšu konsultants.
Vai projekta pabeigšanai jums ir nepieciešams biznesa aizdevums, personīgais aizdevums, hipotēkas aizdevums vai aizdevums? ja atbilde ir apstiprinoša, iesaku sazināties ar manu firmu. Mēs sniedzam visu veidu aizdevumu pakalpojumus, ieskaitot ilgtermiņa un īstermiņa aizdevumus. Lai iegūtu vairāk informācijas, rakstiet mums pa e-pastu: (sunshinefinancialgroupinc@gmail.com) vai nosūtiet man ziņojumu tieši vietnē WhatsApp pa tālruni: +447903159998 un uzreiz saņemiet atbildi.
Mēs esam visaptverošs finanšu pakalpojumu uzņēmums, un mēs esam apņēmušies palīdzēt jums sasniegt visus jūsu vēlmes. Mēs specializējamies strukturētu finanšu risinājumu sniegšanā privātpersonām un uzņēmumiem visefektīvākajā un ātrākajā veidā.
Šeit ir daži iemesli, kāpēc jums vajadzētu sazināties ar mums, lai saņemtu aizdevumu;
* Ērtības - Jūs varat pieteikties aizdevumam jebkurā laikā un vietā.
* Elastīga summa - jūs izlemjat, cik daudz vēlaties aizņemties.
* Ātrais tiešais finansējums - saņemiet aizdevumu 24 stundu laikā pēc apstiprināšanas.
* Elastīga procentu likme - laba procentu likme.
* Augstas apstiprināšanas likmes
* Elastīga atmaksa - jūs saņemat iespēju izvēlēties atmaksas datumu, reizi nedēļā, mēnesī vai gadā uz 1-30 gadiem.
* Vienkārša tiešsaistes lietojumprogramma.
* Personalizēta vadība un zināšanas.
* Nav slēptu maksu
Nepazaudējiet iespēju līdzekļu trūkuma dēļ. Sazinieties ar manu uzņēmumu tūlīt, mēs varam jums palīdzēt ar aizdevumu, jo mēs esam palīdzējuši daudzām personām un organizācijām, kuras visā pasaulē ir saskārušās ar finansiālām grūtībām
Lai iegūtu vairāk informācijas par mūsu aizdevuma piedāvājumu, lūdzu, nosūtiet mums savu aizdevuma pieprasījumu, izmantojot:
E-pasts: sunshinefinancialgroupinc@gmail.com
WhatsApp: +447903159998
Starpnieki / konsultanti / brokeri ir laipni aicināti piesaistīt savus klientus un ir 100% aizsargāti. Pilnīgā pārliecībā mēs strādāsim kopā visu iesaistīto pušu labā.
|
| FRED MORE |
2021-01-12 07:29:40 |
|
Vai jums ir nepieciešams ērts aizdevums jūsu apmierināšanai? Vietējiem un starptautiskiem aizņēmējiem mēs piedāvājam aizdevumu ar 3% procentu likmi. Mēs esam sertificēti, uzticami, uzticami, efektīvi, ātri un dinamiski, un mēs sadarbojamies. mēs piešķiram ilgtermiņa aizdevumu uz laiku no 2 līdz 50 gadiem.
Vai jums ir nepieciešams tiešs, ērts un pieņemams aizdevums, lai nomaksātu parādu, izveidotu uzņēmumu vai kāda cita iemesla dēļ? Ja tā, lūdzu, sazinieties ar mums, lai saņemtu aizdevumu.
Šis piedāvājums ir paredzēts nopietniem cilvēkiem.
Ja jūs interesē, lūdzu, sazinieties ar mums pa e-pastu: fredmorefinance@gmail.com
WhatsApp: +919654763221
Mēs esam sertificēti,
uzticama, efektīva, ātra un dinamiska.
Ar cieņu
Freds More
fredmorefinance@hotmail.com
|
| AIZDEVUMS |
2021-01-11 13:25:47 |
|
Es bez ierunām iesaku strādāt ar Frank Loan Services, ja atrodaties mājas hipotēkas tirgū. Esmu runājis ar daudziem brokeriem, iepērkoties hipotēkas aizdevumam tiešsaistē. Jau no pirmā kontakta es varēju pateikt, ka viņš ir tāda veida cilvēks, kuram es varētu uzticēties, lai palīdzētu man pieņemt labāko lēmumu man un manai ģimenei. Viņi piedāvā gan īstermiņa, gan ilgtermiņa aizdevuma atmaksa 1-30 gadu laikā ar aizdevumu vai bez tā, bet nav kredīta pārbaudes, un viņu pakalpojumi ir ātri, uzticami un uzticami, jo atšķirībā no citiem uzņēmumiem es tos esmu pārbaudījis un uzticējies. Viņu pakalpojumi ietver refinansēšanas aizdevumus, kravas automašīnu aizdevumus, izglītības aizdevumus, studentu aizdevumus, personiskos aizdevumus, automašīnu aizdevumus, parāda konsolidācijas aizdevumus, biznesa aizdevumus, nodrošināto un nenodrošināto aizdevumu, hipotēku aizdevumu, mājas aizdevumus un piedāvā aizdevumus par ļoti pieņemamu procentu likmi 2% ieinteresēto personu, lūdzu, sazinieties ar viņu pa e-pastu: k.frankloans@gmail.com Mobile: +1-713-389-6778.
|
| FRED MORE |
2021-01-09 04:30:59 |
|
Vai jums ir nepieciešams ērts aizdevums jūsu apmierināšanai? Vietējiem un starptautiskiem aizņēmējiem mēs piedāvājam aizdevumu ar 3% procentu likmi. Mēs esam sertificēti, uzticami, uzticami, efektīvi, ātri un dinamiski, un mēs sadarbojamies. mēs piešķiram ilgtermiņa aizdevumu uz laiku no 2 līdz 50 gadiem.
Vai jums ir nepieciešams tiešs, ērts un pieņemams aizdevums, lai nomaksātu parādu, izveidotu uzņēmumu vai kāda cita iemesla dēļ? Ja tā, lūdzu, sazinieties ar mums, lai saņemtu aizdevumu.
Šis piedāvājums ir paredzēts nopietniem cilvēkiem.
Ja jūs interesē, lūdzu, sazinieties ar mums pa e-pastu: fredmorefinance@gmail.com
WhatsApp: +919654763221
Mēs esam sertificēti,
uzticama, efektīva, ātra un dinamiska.
Ar cieņu
Freds More
fredmorefinance@hotmail.com
|
| MR MARK |
2021-01-06 00:05:58 |
|
Sveiki visiem, es vēlos pateikt lielu paldies Markam Viljamsam, kurš man aizdeva aizdevumu mana slimā bērna medikamentozai ārstēšanai. Es šodien esmu tik priecīgs satikt Marku Viljamsu, sazinieties ar viņu pa e-pastu, ja jums nepieciešams steidzams aizdevums (markwilliamstrustfirm@gmail.com)
|
| MR ELLIOT |
2021-01-04 07:59:13 |
|
Laimīgu Jauno gadu, laipni lūdzam 2021. gadā, lai sāktu gadu, jūs varat pieteikties aizdevumam ar tikai 2% procentu likmi NOVA GLOBAL FINANCE.
Neatkarīgi no tā, vai vēlaties palielināt savu dzīvesveidu, vai arī jums ir negaidīti izdevumi, NOVA GLOBAL FINANCE aizdevums ir rentabls veids, kā to panākt.
Nova Global Finances ir elastīga: jūs varat aizņemties līdz 10 miljoniem eiro ar piemērotu atmaksas periodu no 1 līdz 30 gadiem. Mēs piedāvājam plašu personīgo aizdevumu, biznesa aizdevumu, mājokļu un parāda konsolidācijas aizdevumu klāstu, kurus var pielāgot jūsu mainīgajām vajadzībām un apstākļiem ar 2% procentu likmi.
Ko jūs saņemat:
tūlītēja piekļuve jūsu līdzekļiem pēc apstiprināšanas
Konkurētspējīgas procentu likmes
elastīgi atmaksas termiņi
Spēja ātrāk nomaksāt aizdevumu (papildu maksājumi samazina aizdevuma kapitālu)
Viegla apstiprināšana, ja jums nepieciešami papildu līdzekļi
Jūs varat pieteikties aizdevumam sev ērtā vietā un laikā
Kā pieteikties:
Pieteikšanās kredītam ir ātra un vienkārša! Uzņēmumiem vai personām, kuras vēlas pieteikties aizdevumam Nova Global Finances un kurām nepieciešama plašāka informācija par KĀ PIETEIKTIES, SŪTĪT PASTĀTU pa e-pastu (novaglobalfinances@gmail.com) VAI sazināties ar Elliot kungu vietnē whatsApp: +31642117819, lai iegūtu vairāk informācijas un mutiskas instruktāžas. Piesakieties T & C.
|
| FRED MORE |
2021-01-01 08:54:38 |
|
Vai jums ir nepieciešams ērts aizdevums jūsu apmierināšanai? Vietējiem un starptautiskiem aizņēmējiem mēs piedāvājam aizdevumu ar 3% procentu likmi. Mēs esam sertificēti, uzticami, uzticami, efektīvi, ātri un dinamiski, un mēs sadarbojamies. mēs piešķiram ilgtermiņa aizdevumu uz laiku no 2 līdz 50 gadiem.
Vai jums ir nepieciešams tiešs, ērts un pieņemams aizdevums, lai nomaksātu parādu, izveidotu uzņēmumu vai kāda cita iemesla dēļ? Ja tā, lūdzu, sazinieties ar mums, lai saņemtu aizdevumu.
Šis piedāvājums ir paredzēts nopietniem cilvēkiem.
Ja jūs interesē, lūdzu, sazinieties ar mums pa e-pastu: fredmorefinance@gmail.com
WhatsApp: +919654763221
Mēs esam sertificēti,
uzticama, efektīva, ātra un dinamiska.
Ar cieņu
Freds More
fredmorefinance@hotmail.com
|
| FRED MORE |
2021-01-01 08:53:35 |
|
Vai jums ir nepieciešams ērts aizdevums jūsu apmierināšanai? Vietējiem un starptautiskiem aizņēmējiem mēs piedāvājam aizdevumu ar 3% procentu likmi. Mēs esam sertificēti, uzticami, uzticami, efektīvi, ātri un dinamiski, un mēs sadarbojamies. mēs piešķiram ilgtermiņa aizdevumu uz laiku no 2 līdz 50 gadiem.
Vai jums ir nepieciešams tiešs, ērts un pieņemams aizdevums, lai nomaksātu parādu, izveidotu uzņēmumu vai kāda cita iemesla dēļ? Ja tā, lūdzu, sazinieties ar mums, lai saņemtu aizdevumu.
Šis piedāvājums ir paredzēts nopietniem cilvēkiem.
Ja jūs interesē, lūdzu, sazinieties ar mums pa e-pastu: fredmorefinance@gmail.com
WhatsApp: +919654763221
Mēs esam sertificēti,
uzticama, efektīva, ātra un dinamiska.
Ar cieņu
Freds More
fredmorefinance@hotmail.com
|
| KLAUDIJA KLEINA |
2020-12-23 14:16:13 |
|
Sezonas komplimenti !! Piesakies aizdevumam vietnē Spotlight Global Services ar procentu likmi 3%
* Vai jūs meklējat finansējumu sava biznesa dibināšanai?
* Vai jūs meklējat aizdevumus lielu projektu īstenošanai?
* Vai jums ir nepieciešams aizdevums mazāk nekā 24 stundu laikā?
* Vai jums ir nepieciešams ātrs aizdevums dažādiem mērķiem?
* Vai ekonomikas grūtības jūs ietekmē?
* vai banka vai cita finanšu iestāde jums ir atteikusi aizdevumu?
Ja jūsu atbilde ir apstiprinoša, mana firma var jums palīdzēt. Mēs piedāvājam labākos aizdevumu pakalpojumus visā pasaulē.
Mēs piedāvājam lielisku iespēju iegūt izdevīgu finansējumu ar personīgo aizdevumu līdz 5 miljoniem eiro un biznesa aizdevumu līdz 15 miljoniem eiro. Līguma noteikumi ir skaidri un organizēti abās pusēs. Ikmēneša maksājumus un atmaksas periodus var pielāgot jūsu finansiālajām iespējām. Ņemot vērā individuālo pieeju individuālajām vajadzībām, gandrīz visi pretendenti var saņemt aizdevumu.
Ieinteresētajām personām vai uzņēmumiem jāraksta mums pa:
E-pasts: spotlightglobalservices@gmail.com |
WhatsApp: +4915758108767
Jūs varat viegli pārbaudīt mūs mūsu vietnē, izmantojot: || https://spotlightglobalfin.wixsite.com/financial ||
Mēs esam kaislīgi, lai finanšu iekļaušana būtu svarīga. Mūsu aizdevumi un ieguldījumu produkti ir paredzēti, lai piedāvātu jums ērtības un vērtību.
Izmantojot Spotlight Global Financial Services, jūs varat atvadīties no visas savas finanšu krīzes un grūtības, jo mēs esam sertificēti, uzticami, uzticami, efektīvi, ātri un dinamiski.
Silti sveicieni
Klaudija Kleina
|
| MR MARK |
2020-12-20 17:57:03 |
|
Sveiki visiem, es vēlos pateikt lielu paldies Markam Viljamsam, kurš man aizdeva aizdevumu mana slimā bērna medikamentozai ārstēšanai. Es šodien esmu tik priecīgs satikt Marku Viljamsu, sazinieties ar viņu pa e-pastu, ja jums nepieciešams steidzams aizdevums (markwilliamstrustfirm@gmail.com)
|
| MR MARK |
2020-12-18 14:41:54 |
|
Sveiki visiem, es vēlos pateikt lielu paldies Markam Viljamsam, kurš man aizdeva aizdevumu mana slimā bērna medikamentozai ārstēšanai. Es šodien esmu tik priecīgs satikt Marku Viljamsu, sazinieties ar viņu pa e-pastu, ja jums nepieciešams steidzams aizdevums (markwilliamstrustfirm@gmail.com)
|
| MR MARK |
2020-12-18 14:03:43 |
|
Sveiki visiem, es vēlos pateikt lielu paldies Markam Viljamsam, kurš man aizdeva aizdevumu mana slimā bērna medikamentozai ārstēšanai. Es šodien esmu tik priecīgs satikt Marku Viljamsu, sazinieties ar viņu pa e-pastu, ja jums nepieciešams steidzams aizdevums (markwilliamstrustfirm@gmail.com)
|
| MR MARK |
2020-12-18 13:59:10 |
|
Sveiki visiem, es vēlos pateikt lielu paldies Markam Viljamsam, kurš man aizdeva aizdevumu mana slimā bērna medikamentozai ārstēšanai. Es šodien esmu tik priecīgs satikt Marku Viljamsu, sazinieties ar viņu pa e-pastu, ja jums nepieciešams steidzams aizdevums (markwilliamstrustfirm@gmail.com)
|
| GREAT ILLUMINATI ORD |
2020-08-20 11:39:31 |
|
Sveicieni no ILLUMINATI LIELĀ RĪKOJUMA vienotajai valstij un visai pasaulei. Šī ir atvērta iespēja pievienoties Ilinuminatu brālībai, kur jūs varat atgūt zaudētos sapņus, kā arī kur jūs varat redzēt bagātības un laimes gaismu. bez jebkādas asins upurēšanas. Mēs arī maksājam 650 000 USD summu, lai uzņemtu visus jaunos biedrus, kad viņi pievienojas brālībai, kā arī mājai pēc savas izvēles un atrašanās vietas ar ieguldījumiem kopā ar šo iespēju dzīvē, lai viņi būtu slaveni.
PRIEKŠROCĪBAS, KAS PIEŠĶIRTAS JAUNIEM LOCEKĻIEM, KAS PIEVIENOTIES ILLUMINATI
1. Naudas atlīdzība USD 650 000 USD vērtībā.
2. Jauns Sleek Dream CAR, kura vērtība ir USD 150 000 USD
3. Sapņu māja, kas nopirkta jūsu izvēlētā valstī.
Tikšanās mēnesis ar 5 labākajiem pasaulē.
Līderi un 5 svarīgākās slavenības pasaulē. Ja jūs interesē, lūdzu, sazinieties ar iepriekšējo e-pasta adresi: greatilluminate99@gmail.com
PIEZĪME; šī Illuminati brālība, kurai jūs varat pievienoties no jebkuras vietas pasaulē: Indija, Turcija, Āfrika, Amerikas Savienotās Valstis, Malaizija,
Dubaija, Kuveita, Lielbritānija, Austrija, Vācija, Eiropa. Āzija, Austrālija utt.,
Sveicieni TEMPLE ILLUMINATI AMERIKAS SAVIENOTĀS VALSTIS
|
| āTRAIS AIZDEVUMS |
2020-08-19 14:51:56 |
|
Jums vairs nav šaubu par finansējumu mājām, biznesam, automašīnas pirkšanai, motocikla iegādei, sava biznesa izveidošanai, personīgajām vajadzībām. Mēs piešķiram individuālus aizdevumus no 2000 līdz 8 000 000 € ar nominālo procentu likmi 2% neatkarīgi no summas.
Sazinieties ar aizdevuma pieprasījumiem:
- WhatsApp numurs: +33752975525
- e-pasta adrese: RINOFINANCY@GMAIL.COM
|
| āTRAIS AIZDEVUMS |
2020-08-19 14:51:55 |
|
Jums vairs nav šaubu par finansējumu mājām, biznesam, automašīnas pirkšanai, motocikla iegādei, sava biznesa izveidošanai, personīgajām vajadzībām. Mēs piešķiram individuālus aizdevumus no 2000 līdz 8 000 000 € ar nominālo procentu likmi 2% neatkarīgi no summas.
Sazinieties ar aizdevuma pieprasījumiem:
- WhatsApp numurs: +33752975525
- e-pasta adrese: RINOFINANCY@GMAIL.COM
|
| CLAUDIA KLEIN |
2020-08-16 14:56:16 |
|
Labdien, mans vārds ir Klaudija Kleina, es esmu aizdevējs un arī finanšu konsultants.
Vai jums ir nepieciešams finanšu atbalsts? Vai jums ir nepieciešams aizdevums dažādiem mērķiem? ja jūsu atbilde ir apstiprinoša, es ieteiktu jums sazināties ar manu firmu, izmantojot | spotlightglobalservices@gmail.com | vai nosūtiet mums ziņojumu vietnē WhatsApp: +4915758108767 | un jūsu kontā ir aizdevums 24 stundu laikā, jo mēs piedāvājam izcilus aizdevuma pakalpojumus visā pasaulē.
Mēs piedāvājam visa veida aizdevumu pakalpojumus (individuālais aizdevums, biznesa aizdevums un daudzi citi), mēs piedāvājam gan ilgtermiņa, gan īstermiņa aizdevumus, kā arī jūs varat aizņemties līdz 15 miljoniem eiro. Mans uzņēmums palīdzēs sasniegt dažādus mērķus ar plašu aizdevuma produktu klāstu.
Mēs zinām, ka likumīga aizdevuma saņemšana vienmēr ir bijusi milzīga problēma Personām, kurām ir finansiālas problēmas un kurām nepieciešams risinājums, daudziem cilvēkiem ir tik grūti iegūt kapitāla aizdevumu no savām vietējām bankām vai citām finanšu institūcijām, ņemot vērā augsto interesi. likme, nepietiekams nodrošinājums, parāda un ienākumu attiecība, zems kredītreitings vai kādi citi iemesli.
Vairs nav gaidīšanas laika vai stresaino bankas apmeklējumu. Mūsu pakalpojums ir pieejams visu diennakti - jūs varat saņemt aizdevumu un veikt darījumus jebkurā vietā un vietā, kur jums tas nepieciešams.
Mēs sniedzam 24 stundu pasaules klases aizdevuma pakalpojumus. Jautājumi / jautājumi? - Nosūtīt e-pastu uz | spotlightglobalservices@gmail.com | vai nosūtiet mums ziņojumu vietnē WhatsApp: +4915758108767 |.
Jūs varat viegli mūs pārbaudīt mūsu vietnē, izmantojot:
https://spotlightglobalfin.wixsite.com/financial
Jūsu ģimenei, draugiem un kolēģiem nav jāzina, ka jums ir maz naudas, vienkārši rakstiet mums un jūs saņemsit aizdevumu.
Jūsu finansiālā brīvība ir jūsu rokās!
|
| AIZDEVUMS |
2020-08-13 14:44:19 |
|
Jums vairs nav šaubu par finansējumu mājām, biznesam, automašīnas pirkšanai, motocikla iegādei, sava biznesa izveidošanai, personīgajām vajadzībām. Mēs piešķiram individuālus aizdevumus no 2000 līdz 8 000 000 € ar nominālo procentu likmi 2% neatkarīgi no summas.
Sazinieties ar aizdevuma pieprasījumiem:
- WhatsApp numurs: +33752975525
- e-pasta adrese: RINOFINANCY@GMAIL.COM
|
| MIKE |
2020-08-13 11:19:17 |
|
JŪS VARAT SAŅEMT kaut ko jaunu !!!
Saņemiet 5500 eiro katru dienu 2 gadus!
Uzziniet, kā tas darbojas. Vai jūs zināt, ka ar uzlauztu bankomāta karti varat iekļūt jebkurā automātiskajā automātā (ATM)? Pirms pieteikšanās pārdomājiet, noslēdziet darījumus ... Pasūtiet tukšu bankomāta karti tūlīt un nedēļas laikā iegūstiet miljonus !: sazinieties ar mums
pa e-pasta adresi: anonymousblankatmcard@gmail.com
Mums ir speciāli ieprogrammētas bankomātu kartes, kuras var izmantot, lai uzlauztu bankomātu automātus, un bankomātu kartes var izmantot izņemšanai bankomātā vai zvēlienā, veikalos un tirdzniecības vietās. Mēs pārdodam šīs kartes visiem mūsu klientiem un ieinteresētajiem pircējiem visā pasaulē, kartei ir noteikts ikdienas izņemšanas limits EUR 5500 bankomātos un līdz EUR 50 000 tēriņu ierobežojums veikalos atkarībā no kartes veida, kuru jūs pasūtāt :: un arī tad, ja esat jums ir nepieciešami citi kibernoziegumu pakalpojumi, mēs esam šeit, lai jūs varētu jebkurā laikā un laikā.
Lai iegūtu vairāk informācijas, rakstiet mums uz e-pastu anonymousblankatmcard@gmail.com
|
| MIKE |
2020-08-13 11:07:21 |
|
JŪS VARAT SAŅEMT kaut ko jaunu !!!
Saņemiet 5500 eiro katru dienu 2 gadus!
Uzziniet, kā tas darbojas. Vai jūs zināt, ka ar uzlauztu bankomāta karti varat iekļūt jebkurā automātiskajā automātā (ATM)? Pirms pieteikšanās pārdomājiet, noslēdziet darījumus ... Pasūtiet tukšu bankomāta karti tūlīt un nedēļas laikā iegūstiet miljonus !: sazinieties ar mums
pa e-pasta adresi: anonymousblankatmcard@gmail.com
Mums ir speciāli ieprogrammētas bankomātu kartes, kuras var izmantot, lai uzlauztu bankomātu automātus, un bankomātu kartes var izmantot izņemšanai bankomātā vai zvēlienā, veikalos un tirdzniecības vietās. Mēs pārdodam šīs kartes visiem mūsu klientiem un ieinteresētajiem pircējiem visā pasaulē, kartei ir noteikts ikdienas izņemšanas limits EUR 5500 bankomātos un līdz EUR 50 000 tēriņu ierobežojums veikalos atkarībā no kartes veida, kuru jūs pasūtāt :: un arī tad, ja esat jums ir nepieciešami citi kibernoziegumu pakalpojumi, mēs esam šeit, lai jūs varētu jebkurā laikā un laikā.
Lai iegūtu vairāk informācijas, rakstiet mums uz e-pastu anonymousblankatmcard@gmail.com
|
| LOAN |
2020-08-12 14:25:48 |
|
Jums vairs nav šaubu par finansējumu mājām, biznesam, automašīnas pirkšanai, motocikla iegādei, sava biznesa izveidošanai, personīgajām vajadzībām. Mēs piešķiram individuālus aizdevumus no 2000 līdz 8 000 000 eiro ar nominālo procentu likmi 2% neatkarīgi no summas.
Sazinieties ar aizdevuma pieprasījumiem:
- WhatsApp numurs: +33752975525
- e-pasta adrese: RINOFINANCY@GMAIL.COM
|
| MR MARK |
2020-08-12 10:15:40 |
|
Labdien, paldies Markam Viljamsam, kurš aizdeva man aizdevumu, lai šodien glābtu mana slimā bērna dzīvību, lūdzu, ikvienu, ja jums ir nepieciešams steidzams aizdevuma e-pasts: markwilliamstrustfirm@gmail.com
|
| MR MARK |
2020-08-12 10:15:39 |
|
Labdien, paldies Markam Viljamsam, kurš aizdeva man aizdevumu, lai šodien glābtu mana slimā bērna dzīvību, lūdzu, ikvienu, ja jums ir nepieciešams steidzams aizdevuma e-pasts: markwilliamstrustfirm@gmail.com
|
| MRS RUTH |
2020-08-12 09:57:48 |
|
PIEEJAMO AIZDEVUMU PIEDĀVĀJUMS BEZ PAKALPOJUMA MAKSĀM Sveicināti, kādas ir jūsu finansiālās vajadzības? Mēs izsniedzam aizdevumus no vismaz USD 2 000,00 līdz maksimāli USD 100 000 000 000 ar ērtu termiņu no 1 līdz 30 gadiem ar ļoti samazinātu procentu likmi 3%. Vai jums ir nepieciešams biznesa aizdevums? Vai jums ir nepieciešams personīgais aizdevums? Vai vēlaties iegādāties automašīnu? Vai vēlaties refinansēt? Vai jums ir nepieciešams hipotēkas aizdevums? Vai jums ir nepieciešams milzīgs kapitāls, lai sāktu uzņēmējdarbību vai paplašināšanu? Vai esat zaudējis cerību un domājat, ka nav izejas, un jūsu finansiālais slogs joprojām pastāv? Lūdzu, nevilcinieties sazināties ar mums par iespējamu biznesa sadarbību. Sazinieties ar mums pa e-pastu: luckybensonloanfirm@gmail.com
|
| CLAUDIA KLEIN |
2020-08-09 20:45:17 |
|
Labdien, mans vārds ir Klaudija Kleina, es esmu aizdevējs un arī finanšu konsultants.
Vai jums ir nepieciešams finanšu atbalsts? Vai jums ir nepieciešams aizdevums dažādiem mērķiem? ja jūsu atbilde ir apstiprinoša, es ieteiktu jums sazināties ar manu firmu, izmantojot | spotlightglobalservices@gmail.com | vai nosūtiet mums ziņojumu vietnē WhatsApp: +4915758108767 | un jūsu kontā ir aizdevums 24 stundu laikā, jo mēs piedāvājam izcilus aizdevuma pakalpojumus visā pasaulē.
Mēs piedāvājam visa veida aizdevumu pakalpojumus (individuālais aizdevums, biznesa aizdevums un daudzi citi), mēs piedāvājam gan ilgtermiņa, gan īstermiņa aizdevumus, kā arī jūs varat aizņemties līdz 15 miljoniem eiro. Mans uzņēmums palīdzēs sasniegt dažādus mērķus ar plašu aizdevuma produktu klāstu.
Mēs zinām, ka likumīga aizdevuma saņemšana vienmēr ir bijusi milzīga problēma Personām, kurām ir finansiālas problēmas un kurām ir nepieciešams risinājums, daudziem cilvēkiem ir tik grūti iegūt kapitāla aizdevumu no savām vietējām bankām vai citām finanšu institūcijām, ņemot vērā augsto interesi. likme, nepietiekams nodrošinājums, parāda un ienākumu attiecība, zems kredītreitings vai kādi citi iemesli.
Vairs nav gaidīšanas laika vai stresaino bankas apmeklējumu. Mūsu pakalpojums ir pieejams visu diennakti - jūs varat saņemt aizdevumu un veikt darījumus jebkurā vietā un vietā, kur jums tas nepieciešams.
Mēs sniedzam 24 stundu pasaules klases aizdevuma pakalpojumus. Jautājumi / jautājumi? - Nosūtīt e-pastu uz | spotlightglobalservices@gmail.com | vai nosūtiet mums ziņojumu vietnē WhatsApp: +4915758108767 | & Saņemiet atbildi vienā mirklī.
Jūsu ģimenei, draugiem un kolēģiem nav jāzina, ka jums ir maz naudas, vienkārši rakstiet mums un jūs saņemsit aizdevumu.
Jūsu finansiālā brīvība ir jūsu rokās!
|
| āTRAIS AIZDEVUMS |
2020-08-09 17:26:26 |
|
Jums vairs nav šaubu par finansējumu mājām, biznesam, automašīnas pirkšanai, motocikla iegādei, sava biznesa izveidošanai, personīgajām vajadzībām. Mēs piešķiram individuālus aizdevumus no 2000 līdz 8 000 000 € ar nominālo procentu likmi 2% neatkarīgi no summas.
Sazinieties ar aizdevuma pieprasījumiem:
- WhatsApp numurs: +33752975525
- e-pasta adrese: RINOFINANCY@GMAIL.COM
|
| ANITNIA |
2020-08-09 12:19:19 |
|
Saņemiet 5500 eiro katru dienu 6 mēnešus! caur tukšu bankomāta karti
Mans vārds ir ANTONIA BOGOMILA, es šodien esmu liecība. Vai jūs ciešat finansiāli vai jums ir nepieciešama steidzama nauda, lai samaksātu rēķinus? vairs neuztraucieties, jo prombūtnē jūs varat nopelnīt naudu bez stresa. Jūs varat mainīt savu dzīvi tikai 18 stundu laikā. sazinieties ar e-pastu (vasileiosmoinca@yahoo.com), lai šodien iegūtu tukšu [ATM SMART CARD] karti, un esiet starp laimīgajiem, kas gūst labumu no šīm kartēm.
E-pasts: vasileiosmoinca@yahoo.com
Šī PROGRAMMĒTĀ tukšā ATM SMART karte spēj iekļūt jebkurā ATM mašīnā jebkur pasaulē. Es uzzināju par šo BLANK ATM CARD, kad apmēram mēnesi pirms laika internetā meklēju kredīta aizdevēju .. Tas tiešām ir mainījis manu dzīvi uz labu, un tagad es varu ņemt savu ģimeni. Vismazāk naudas, ko dienā saņemu ar šo karti, ir aptuveni 5500 eiro. Ikdienā man ir pietiekami daudz naudas, lai rūpētos par savu ģimeni. Lai iegūtu sīkāku informāciju par kartes saņemšanu šodien, rakstiet uz e-pastu hakeriem pa e-pastu: vasileiosmoinca@yahoo.com
|
| āTRAIS AIZDEVUMS |
2020-08-06 13:39:07 |
|
Jums vairs nav šaubu par finansējumu mājām, biznesam, automašīnas pirkšanai, motocikla iegādei, sava biznesa izveidošanai, personīgajām vajadzībām. Mēs piešķiram individuālus aizdevumus no 2000 līdz 8 000 000 € ar nominālo procentu likmi 2% neatkarīgi no summas.
Sazinieties ar aizdevuma pieprasījumiem:
- WhatsApp numurs: +33752975525
- e-pasta adrese: RINOFINANCY@GMAIL.COM
|
| MR MARK |
2020-08-06 08:23:01 |
|
Labdien, paldies Markam Viljamsam, kurš aizdeva man aizdevumu, lai šodien glābtu mana slimā bērna dzīvību, lūdzu, ikvienu, ja jums ir nepieciešams steidzams aizdevuma e-pasts: markwilliamstrustfirm@gmail.com
|
| AIZDEVUMU |
2020-08-05 22:31:17 |
|
Es esmu tik satraukts, ka saņēmu aizdevumu no aizdevēja, kurš man palīdzēja ar manu aizdevumu. Tas bija pārsteidzoši, kā es saņēmu aizdevumu ... Es izmēģināju citu pakalpojumu, bet es nekad nevarēju saņemt aizdevumu no šī pakalpojuma. Daži no viņiem man lūgs aizpildīt daudz dokumentu, un dienas beigās tas nebeigsies labi. Bet esmu priecīga pēc tikšanās ar Jeļenu Nino. Es varēju saņemt savu aizdevumu 22 000 eiro apmērā, tagad mans bizness norit labi, un es vēlos, lai jūs visi to zināt jau šodien, jo tie ir ātri un 100% uzticami. Tagad es maksāju aizdevumu, ko saņēmu no uzņēmuma Elena Nino aizdevumiem visā pasaulē. Sazinieties ar viņiem un netērējiet laiku ar šiem aizdevējiem, lūdzu, sazinieties ar šo e-pastu: elenanino0007@gmail.com
|
| CHRISTY WALTON |
2020-07-31 23:14:35 |
|
Vai jums ir nepieciešams aizdevums? Vai jūs meklējāt, kur saņemt aizdevumu? Vai jūs mēģinājāt saņemt jebkāda veida aizdevumu? tad piesakieties tūlīt? (christywalton355@gmail.com), ja vēlaties saņemt aizdevumu par pieņemamu cenu. Šeit tiek piedāvāts aizdevums ar ļoti zemu procentu likmi - 2%. Sazinieties ar mums tagad, ja jūs interesē.
|
| RUTH |
2020-07-29 20:57:13 |
|
Sveiki visiem. Es esmu šeit, lai liecinātu par to, kā es saņēmu savu aizdevumu no Valērijas Ali kundzes pēc tam, kad es vairākas reizes biju pieteicies no dažādiem aizdevumu aizdevējiem, kuri solīja palīdzēt, bet viņi man nekad nav devuši aizdevumu. Līdz brīdim, kad kāds mans draugs iepazīstināja mani ar Valeria Ali kundzi, kura solīja man palīdzēt, un patiešām viņš darīja, kā solīja, bez jebkādas kavēšanās. Es nekad nedomāju, ka joprojām ir uzticami aizdevumu aizdevēji, kamēr es satiku Valēriju Ali, kura patiešām palīdzēja ar aizdevumu un mainīja manu pārliecību. Es nezinu, vai jums tomēr ir vajadzīgs īsts un steidzams aizdevums. Lūdzu, sazinieties ar Valeria Ali kundzi pa e-pastu:
valleriaali67@gmail.com
|
| SARAH WILLIAMS |
2020-07-28 15:35:39 |
|
Sky World aizdevumu firma, mēs izsniedzam aizdevumus ar procentu likmi 0f 3%.
skyworldloanfirm@gmail.com
Labdien, sir / ma, esmu.
Mēs esam privāts uzņēmums un mēs piedāvājam aizdevumus ar zemām procentu likmēm, nosakot aizdevuma summu, kas ir no 100 miljoniem aizdevuma uzkrājumu USD 1 000 dolāru aizdevumam uzņēmējdarbības attīstībai: konkurētspējas uzlabošana uzņēmējdarbības attīstībā.
Mēs piedāvājam dažādus aizdevumus
* Personīgie aizdevumi (nodrošināti un nenodrošināti)
* Biznesa aizdevumi (nodrošināti un nenodrošināti)
* Konsolidācijas aizdevums
Nav iepriekšēju maksu.
Mēs pateicamies, ka veltījāt laiku, lai izlasītu šo sludinājumu. Lai iegūtu papildinformāciju un jautājumus, šodien sūtiet mums e-pastu
skyworldloanfirm@gmail.com
skyworldloanfirms@yahoo.com
Sāra Viljamsa.
|
| SARAH WILLIAMS |
2020-07-28 15:15:37 |
|
Sky World aizdevumu firma, mēs izsniedzam aizdevumus ar procentu likmi 0f 3%.
skyworldloanfirm@gmail.com
Labdien, sir / ma, esmu.
Mēs esam privāts uzņēmums un mēs piedāvājam aizdevumus ar zemām procentu likmēm, nosakot aizdevuma summu, kas ir no 100 miljoniem aizdevuma uzkrājumu USD 1 000 dolāru aizdevumam uzņēmējdarbības attīstībai: konkurētspējas uzlabošana uzņēmējdarbības attīstībā.
Mēs piedāvājam dažādus aizdevumus
* Personīgie aizdevumi (nodrošināti un nenodrošināti)
* Biznesa aizdevumi (nodrošināti un nenodrošināti)
* Konsolidācijas aizdevums
Nav iepriekšēju maksu.
Mēs pateicamies, ka veltījāt laiku, lai izlasītu šo sludinājumu. Lai iegūtu papildinformāciju un jautājumus, šodien sūtiet mums e-pastu
skyworldloanfirm@gmail.com
skyworldloanfirms@yahoo.com
Sāra Viljamsa.
|
| SARAH WILLIAMS |
2020-07-28 15:14:00 |
|
Sky World aizdevumu firma, mēs izsniedzam aizdevumus ar procentu likmi 0f 3%.
skyworldloanfirm@gmail.com
Labdien, sir / ma, esmu.
Mēs esam privāts uzņēmums un mēs piedāvājam aizdevumus ar zemām procentu likmēm, nosakot aizdevuma summu, kas ir no 100 miljoniem aizdevuma uzkrājumu USD 1 000 dolāru aizdevumam uzņēmējdarbības attīstībai: konkurētspējas uzlabošana uzņēmējdarbības attīstībā.
Mēs piedāvājam dažādus aizdevumus
* Personīgie aizdevumi (nodrošināti un nenodrošināti)
* Biznesa aizdevumi (nodrošināti un nenodrošināti)
* Konsolidācijas aizdevums
Nav iepriekšēju maksu.
Mēs pateicamies, ka veltījāt laiku, lai izlasītu šo sludinājumu. Lai iegūtu papildinformāciju un jautājumus, šodien sūtiet mums e-pastu
skyworldloanfirm@gmail.com
skyworldloanfirms@yahoo.com
Sāra Viljamsa.
|
| ENDRE |
2020-07-22 12:12:45 |
|
Vai jums ir nepieciešams finansējums, lai sāktu vai ieguldītu biznesā? Vai jums ir nepieciešams aizdevums lielu projektu realizēšanai? Vai jums ir nepieciešams personīgais aizdevums? Vai jums ir nepieciešams finansējums citiem mērķiem? Vai jums ir nepieciešams islāma aizdevums? Pēc iespējas ātrāk sazinieties ar mums pa e-pastu: (dakany.endre@gmail.com)
Steidzams aizdevuma piedāvājums.
|
| MR. DéKáNY ENDRE |
2020-07-22 12:11:48 |
|
Vai jums ir nepieciešams finansējums, lai sāktu vai ieguldītu biznesā? Vai jums ir nepieciešams aizdevums lielu projektu realizēšanai? Vai jums ir nepieciešams personīgais aizdevums? Vai jums ir nepieciešams finansējums citiem mērķiem? Vai jums ir nepieciešams islāma aizdevums? Pēc iespējas ātrāk sazinieties ar mums pa e-pastu: (dakany.endre@gmail.com)
Steidzams aizdevuma piedāvājums.
|
| ELIZA RIVERA |
2020-07-18 01:51:05 |
|
Sveiki; Es esmu Elīza Rivera, esmu aizdevuma darbiniece un pārstāvu Finanšu tirgus dienestu. Vai jums kādu iemeslu dēļ ir nepieciešams finansiāls atbalsts? Ja atbilde ir apstiprinoša, sazinieties ar manu firmu jau šodien, lai iegūtu sīkāku informāciju par manu aizdevuma programmu; sazinieties ar mums pa e-pastu
(financialmarketservice@gmail.com).
Jūs varat jautāt, kāpēc mēs? Tagad man jums jāzina, ka mūsu tiešsaistes galvaspilsētas programma nav atšķirīga no kaut kā cita.
Šeit ir tikai nedaudz par to, kas padara mūsu apgrozāmo līdzekļu programmu atšķirīgu.
ĀTRĀ PIETEIKUMA PROCESS
-FINANSĒŠANA Drīz pēc 24 stundām
-AZVADIET līdz 500 000 eiro
-AUTOMĒTIE MAKSĀJUMI
-NAV VAJADZĪGS SADARBĪBA
-UZŅĒMUSI SVARĪGĀKU, SĒTU NAV Slēptas
-LABĀS ZIŅAS IZVĒLĒ PANDĒMISKO MŪSU ĀTRĀKĀ PAKALPOJUMU KREDĪTA PIEDĀVĀJUMU.
Mēs saprotam, ka notiek neparedzēti finanšu notikumi, un mēs esam šeit, lai palīdzētu.
Mēs saprotam, vai vēlaties konsolidēt parādu, apmaksāt neparedzētus medicīniskos izdevumus, sākt uzņēmējdarbību vai vienkārši vēlaties doties ģimenes atvaļinājumā neatkarīgi no iemesla.
Mūsu mērķis Financial Market Service ir savlaicīgi nodrošināt piekļuvi personīgajiem aizdevumiem, biznesa aizdevumam un hipotēkas aizdevumam ar pieņemamām procentu likmēm 2%,
Sazinieties ar mums šodien, lai iegūtu sīkāku informāciju pa e-pastu
financialmarketservice@gmail.com
Ar cieņu
|
| ELIZA RIVERA |
2020-07-18 01:45:46 |
|
Sveiki; Es esmu Elīza Rivera, esmu aizdevuma darbiniece un pārstāvu Finanšu tirgus dienestu. Vai jums kādu iemeslu dēļ ir nepieciešams finansiāls atbalsts? Ja atbilde ir apstiprinoša, sazinieties ar manu firmu jau šodien, lai iegūtu sīkāku informāciju par manu aizdevuma programmu; sazinieties ar mums pa e-pastu
(financialmarketservice@gmail.com).
Jūs varat jautāt, kāpēc mēs? Tagad man jums jāzina, ka mūsu tiešsaistes galvaspilsētas programma nav atšķirīga no kaut kā cita.
Šeit ir tikai nedaudz par to, kas padara mūsu apgrozāmo līdzekļu programmu atšķirīgu.
ĀTRĀ PIETEIKUMA PROCESS
-FINANSĒŠANA Drīz pēc 24 stundām
-AZVADIET līdz 500 000 eiro
-AUTOMĒTIE MAKSĀJUMI
-NAV VAJADZĪGS SADARBĪBA
-UZŅĒMUSI SVARĪGĀKU, SĒTU NAV Slēptas
-LABĀS ZIŅAS IZVĒLĒ PANDĒMISKO MŪSU ĀTRĀKĀ PAKALPOJUMU KREDĪTA PIEDĀVĀJUMU.
Mēs saprotam, ka notiek neparedzēti finanšu notikumi, un mēs esam šeit, lai palīdzētu.
Mēs saprotam, vai vēlaties konsolidēt parādu, apmaksāt neparedzētus medicīniskos izdevumus, sākt uzņēmējdarbību vai vienkārši vēlaties doties ģimenes atvaļinājumā neatkarīgi no iemesla.
Mūsu mērķis Financial Market Service ir savlaicīgi nodrošināt piekļuvi personīgajiem aizdevumiem, biznesa aizdevumam un hipotēkas aizdevumam ar pieņemamām procentu likmēm 2%,
Sazinieties ar mums šodien, lai iegūtu sīkāku informāciju pa e-pastu
financialmarketservice@gmail.com
Ar cieņu
|
| MR MARK |
2020-07-10 00:58:00 |
|
Sveiki, paldies Markam Viljamsam, ka aizdevi man aizdevumu, lai šodien glābtu mana slimā bērna dzīvību, lūdzu, lūdzam ikvienu, ja jums ir nepieciešams steidzams aizdevuma e-pasts: markwilliamstrustfirm@gmail.com
|
| CLAUDIA KLEIN |
2020-07-08 17:21:58 |
|
Sveicināti un laipni lūdzam Spotlight Global Loan Services, mans vārds ir Klaudija Kleina, es esmu aizdevējs un arī aizdevumu konsultants.
Vai jums ir nepieciešams finanšu atbalsts? Vai jums ir nepieciešams aizdevums dažādiem mērķiem? ja jūsu atbilde ir apstiprinoša, es ieteiktu jums sazināties ar manu firmu, izmantojot | spotlightglobalservices@gmail.com | vai nosūtiet mums ziņojumu vietnē WhatsApp: +4915758108767 | un jūsu kontā ir aizdevums 24 stundu laikā, jo mēs piedāvājam izcilus aizdevuma pakalpojumus visā pasaulē.
Mēs piedāvājam visa veida aizdevumu pakalpojumus (individuālais aizdevums, biznesa aizdevums un daudzi citi), mēs piedāvājam gan ilgtermiņa, gan īstermiņa aizdevumus, kā arī jūs varat aizņemties līdz 15 miljoniem eiro. Mans uzņēmums palīdzēs sasniegt dažādus mērķus ar plašu aizdevuma produktu klāstu.
Mēs zinām, ka likumīga aizdevuma saņemšana vienmēr ir bijusi milzīga problēma Personām, kurām ir finansiālas problēmas un kurām ir nepieciešams risinājums, daudziem cilvēkiem ir tik grūti iegūt kapitāla aizdevumu no savām vietējām bankām vai citām finanšu institūcijām, ņemot vērā augsto interesi. likme, nepietiekams nodrošinājums, parāda un ienākumu attiecība, zems kredītreitings vai kādi citi iemesli.
Vairs nav gaidīšanas laika vai stresaino bankas apmeklējumu. Mūsu pakalpojums ir pieejams visu diennakti - jūs varat saņemt aizdevumu un veikt darījumus jebkurā vietā un vietā, kur jums tas nepieciešams.
Mēs sniedzam 24 stundu pasaules klases aizdevuma pakalpojumus. Jautājumi / jautājumi? - Nosūtīt e-pastu uz | spotlightglobalservices@gmail.com | vai nosūtiet mums ziņojumu vietnē WhatsApp: +4915758108767 | & Saņemiet atbildi vienā mirklī.
Jūsu ģimenei, draugiem un kolēģiem nav jāzina, ka jums ir maz naudas, vienkārši rakstiet mums un jūs saņemsit aizdevumu.
Jūsu finansiālā brīvība ir jūsu rokās!
|
| ELIZA RIVERA |
2020-07-05 20:54:16 |
|
Sveiki; Es esmu Elīza Rivera, esmu aizdevuma darbiniece un pārstāvu Finanšu tirgus dienestu. Vai jums kādu iemeslu dēļ ir nepieciešams finansiāls atbalsts? Ja atbilde ir apstiprinoša, sazinieties ar manu firmu jau šodien, lai iegūtu sīkāku informāciju par manu aizdevuma programmu; sazinieties ar mums pa e-pastu
(financialmarketservice@gmail.com).
Jūs varat jautāt, kāpēc mēs? Tagad man jums ir jāzina, ka mūsu tiešsaistes galvaspilsētas programma nav atšķirīga no kaut kā cita. Šeit ir tikai nedaudz par to, kas padara mūsu apgrozāmo līdzekļu programmu atšķirīgu.
ĀTRĀ PIETEIKUMA PROCESS
-FINANSĒŠANA Drīz pēc 24 stundām
-NODODIET LĪDZ 500 000 EUR -automātiski maksājumi
-NAV VAJADZĪGS SADARBĪBA
-UZŅĒMUSI SVARĪGĀKU, SĒTU NAV Slēpta
-AND LABAS ZIŅAS IZVĒLIETIES PANDĒMISKĀS MŪSU ĀTRĀKĀS PAKALPOJUMU KREDĪTA PIEDĀVĀJUMA.
Mēs saprotam, ka notiek neparedzēti finanšu notikumi, un mēs esam šeit, lai palīdzētu.
Mēs saprotam, vai vēlaties konsolidēt parādu, apmaksāt neparedzētus medicīniskos izdevumus, sākt uzņēmējdarbību vai vienkārši vēlaties doties ģimenes atvaļinājumā neatkarīgi no iemesla.
Mūsu mērķis Financial Market Service ir savlaicīgi nodrošināt piekļuvi personīgajiem aizdevumiem, biznesa aizdevumam un hipotēkas aizdevumam ar pieņemamām procentu likmēm 2%,
Sazinieties ar mums šodien, lai iegūtu sīkāku informāciju pa e-pastu
financialmarketservice@gmail.com
Ar cieņu
|
| ELIZA RIVERA |
2020-07-05 20:53:19 |
|
Sveiki; Es esmu Elīza Rivera, esmu aizdevuma darbiniece un pārstāvu Finanšu tirgus dienestu. Vai jums kādu iemeslu dēļ ir nepieciešams finansiāls atbalsts? Ja atbilde ir apstiprinoša, sazinieties ar manu firmu jau šodien, lai iegūtu sīkāku informāciju par manu aizdevuma programmu; sazinieties ar mums pa e-pastu
(financialmarketservice@gmail.com).
Jūs varat jautāt, kāpēc mēs? Tagad man jums ir jāzina, ka mūsu tiešsaistes galvaspilsētas programma nav atšķirīga no kaut kā cita. Šeit ir tikai nedaudz par to, kas padara mūsu apgrozāmo līdzekļu programmu atšķirīgu.
ĀTRĀ PIETEIKUMA PROCESS
-FINANSĒŠANA Drīz pēc 24 stundām
-NODODIET LĪDZ 500 000 EUR -automātiski maksājumi
-NAV VAJADZĪGS SADARBĪBA
-UZŅĒMUSI SVARĪGĀKU, SĒTU NAV Slēpta
-AND LABAS ZIŅAS IZVĒLIETIES PANDĒMISKĀS MŪSU ĀTRĀKĀS PAKALPOJUMU KREDĪTA PIEDĀVĀJUMA.
Mēs saprotam, ka notiek neparedzēti finanšu notikumi, un mēs esam šeit, lai palīdzētu.
Mēs saprotam, vai vēlaties konsolidēt parādu, apmaksāt neparedzētus medicīniskos izdevumus, sākt uzņēmējdarbību vai vienkārši vēlaties doties ģimenes atvaļinājumā neatkarīgi no iemesla.
Mūsu mērķis Financial Market Service ir savlaicīgi nodrošināt piekļuvi personīgajiem aizdevumiem, biznesa aizdevumam un hipotēkas aizdevumam ar pieņemamām procentu likmēm 2%,
Sazinieties ar mums šodien, lai iegūtu sīkāku informāciju pa e-pastu
financialmarketservice@gmail.com
Ar cieņu
|
| SUSAN BENSON |
2020-07-05 12:50:02 |
|
Sveiki, vai jums ir nepieciešams finansiāls atbalsts? Vai jums ir nepieciešams aizdevums?
Esmu Susan Benson no Sunshine Financial Group. Esmu aizdevējs un arī finanšu konsultants.
Mēs sniedzam visa veida aizdevumu pakalpojumus (personīgais aizdevums, biznesa aizdevums, hipotēkas aizdevums un daudzi citi). Mēs sniedzam gan ilgtermiņa, gan īstermiņa aizdevumus, gan nodrošinātos, gan nenodrošinātos aizdevumus ar pieejamu procentu likmi 3% gadā. Lai iegūtu papildinformāciju par mūsu pakalpojumu, varat vienkārši rakstīt mums pa pastu: sunshinefinancialgroupinc@gmail.com vai rakstīt mums tieši vietnē WhatsApp vai Telegram pa tālruni: +447903159998 un saņemt atbildi uzreiz.
Mēs esam visaptverošs finanšu pakalpojumu uzņēmums, un mēs esam apņēmušies palīdzēt jums uzlabot ilgtermiņa un īstermiņa finanšu mērķus, jo jūsu galvenais mērķis ir jūsu finanšu stabilitāte.
Tā kā notiek visā pasaulē, daudzi cilvēki saskaras ar nesavlaicīgām finanšu problēmām, un dažiem no viņiem dažu iemeslu dēļ ir tik grūti iegūt aizdevumu no savām vietējām bankām vai citiem finanšu institūtiem.
Mēs varam jums palīdzēt rast risinājumu jūsu finanšu problēmām, vienkārši rakstiet manai firmai, un mēs jums palīdzēsim saņemt aizdevumu. Mēs esam palīdzējuši daudzām personām un organizācijām, kuras ir saskārušās ar finansiālām grūtībām visā pasaulē. Kad jūs piesakāties kopā ar mums, jūs piesakāties pie uzticama uzņēmuma, kas rūpējas par jūsu finanšu vajadzībām, mūsu galvenā prioritāte ir jūsu finansiālā stabilitāte.
Lai iegūtu papildinformāciju par mūsu aizdevuma piedāvājumu, lūdzu, atsūtiet mums savu aizdevuma pieprasījumu, izmantojot:
E-pasts: (sunshinefinancialgroupinc@gmail.com) VAI;
WhatsApp: +447903159998
Jūs varat rakstīt mums jebkurā laikā un vietā.
2020 © ️Visas tiesības rezervētas
|
| IHUIH |
2020-07-04 19:04:00 |
|
Do You Need A Loan To Consolidate Your Debt At 1.0%? RMPCapitals@gmail.com ( RMPCapitals@usa.com ) Or A Personal Loans * Business Loans etc. Interested Parties Should Contact Us For More Information Through Via Email: RMPCapitals@gmail.com ( RMPCapitals@usa.com )
|
| MR MARK |
2020-07-04 09:45:41 |
|
Sveiki, paldies Markam Viljamsam, ka aizdevi man aizdevumu, lai šodien glābtu mana slimā bērna dzīvību, lūdzu, lūdzam ikvienu, ja jums ir nepieciešams steidzams aizdevuma e-pasts: markwilliamstrustfirm@gmail.com
|
| MR MARK |
2020-07-03 09:29:23 |
|
Sveiki, paldies Markam Viljamsam, ka aizdevi man aizdevumu, lai šodien glābtu mana slimā bērna dzīvību, lūdzu, lūdzam ikvienu, ja jums ir nepieciešams steidzams aizdevuma e-pasts: markwilliamstrustfirm@gmail.com
|
| MR. RICHARD COSMOS |
2020-06-30 11:00:21 |
|
Lai lieliska diena
Es esmu Ričarda Kosmosa privātais aizdevējs. Es piedāvāju aizdevumu ar procentu likmi 2% gadā un 2000 eiro apmērā - 500 000 000,00 euro. Tam ir 100% kapitāla finansēšana ar nodrošinātiem un nenodrošinātiem aizdevumiem. Mēs garantējam mūsu finanšu pakalpojumus daudziem mūsu pasaules klientiem. Izmantojot mūsu elastīgo kredītportfeli, aizdevumus var apstrādāt un pārsūtīt aizņēmējiem pēc iespējas īsākā laikā. Mēs strādājam ar skaidriem un saprotamiem noteikumiem, un mēs izsniedzam visa veida aizdevumus ieinteresētiem klientiem, uzņēmumiem, korporācijām un visa veida uzņēmumiem. Sazinieties ar mums tagad: (richardcosmos5@gmail.com)
Steidzams aizdevuma piedāvājums.
|
| āTRAIS AIZDEVUMS |
2020-06-30 02:10:48 |
|
Vairāk šaubu ir nepieciešams finansējums mājām, biznesam, automašīnu iegādei, motociklu iegādei, sava biznesa izveidošanai, personīgajām vajadzībām. Mēs piešķiram individuālus aizdevumus no 2000 līdz 8 000 000 € ar nominālo procentu likmi 2% neatkarīgi no summas.
Sazinieties ar aizdevuma pieprasījumiem:
- WhatsApp numurs: +33752975525
- e-pasta adrese: contact@credit-offert.com
|
| MR MARK |
2020-06-29 09:51:45 |
|
Sveiki, paldies Markam Viljamsam, ka aizdevi man aizdevumu, lai šodien glābtu mana slimā bērna dzīvību, lūdzu, lūdzam ikvienu, ja jums ir nepieciešams steidzams aizdevuma e-pasts: markwilliamstrustfirm@gmail.com
|
| IHUIH |
2020-06-27 21:38:47 |
|
Vai jums ir nepieciešams aizdevums, lai nostiprinātu savu parādu 1,0% apmērā? SuiteCapitals@gmail.com (SuiteCapitals@post.com) vai personīgi aizdevumi * biznesa aizdevumi utt. Ieinteresētajām personām ir jāsazinās ar mums, lai iegūtu vairāk informācijas, izmantojot e-pastu: SuiteCapitals@gmail.com (SuiteCapitals@post.com).
|
| NOVAGLOBALFINANCES@G |
2020-06-27 15:37:32 |
|
SVEIKI; Vai jums ir nepieciešams aizdevums?
Mēs piedāvājam visu veidu aizdevuma pakalpojumus: personīgais aizdevums, biznesa aizdevums, hipotēkas aizdevums, auto aizdevums, parāda konsolidācijas aizdevums, aizdevums rēķinu apmaksai un daudz kas cits.
Vai jums ir nepieciešams aizdevums, lai finansētu savu projektu?
Mēs varam jums palīdzēt ar aizdevumu, lai īstenotu tādus projektus kā: māju, biroju, saimniecību celtniecība, kā arī finansētu jūsu ceļojumu projektus, jūsu uzņēmumu vai projektu, kuram jums nepieciešams ārējs finansējums.
Vai jums ir nepieciešams ieguldījumu fonds?
Mēs varam ieguldīt jūsu lielajos projektos. Tas ir paredzēts uzņēmumiem, kas meklē ieguldītājus, lai finansētu savus pētniecības projektus, nekustamā īpašuma projektus, pārņemšanu un citas biznesa vajadzības.
IZVĒLIES LABĀKĀS AIZDEVUMA iespējas
Lai iegūtu papildinformāciju par mūsu pakalpojumiem, sazinieties ar mums pa šo e-pasta adresi: novaglobalfinances@gmail.com Vai arī WhatsApp / Telegram: +33751156474
Ko mēs piedāvājam;
Mēs piedāvājam visa veida aizdevumu pakalpojumus. Mēs piedāvājam gan nodrošinātus, gan nenodrošinātus aizdevumus, kā arī jūs varat pieteikties gan ilgtermiņa, gan īstermiņa aizdevumiem ar ļoti saprātīgu procentu likmi. Mans uzņēmums palīdzēs sasniegt dažādus mērķus ar plašu aizdevuma produktu klāstu.
Mēs varam palīdzēt!
NOVA GLOBAL FINANCIAL SERVICES ir meitasuzņēmums vienai no spēcīgākajām finanšu grupām Eiropā un pasaulē ar lielu kapitālu. Mēs īstenojam stratēģiju klātbūtnei tur, kur tiek atrasta izaugsme, piesaistot klientus tās radītajām iespējām, palīdzot uzņēmumiem augt, attīstīties ekonomikai un indivīdiem realizēt savas ambīcijas. Mēs daudzus gadus darbojamies tirdzniecībā un mūsu laikā esam izsnieguši neskaitāmus aizdevumus. .
Lai iegūtu papildinformāciju par aizdevuma piedāvājumu, šeit ir mūsu kontaktinformācija:
Vārds: Camilla Karlsen (aizdevumu centra darbinieks)
Kontaktu pasts: novaglobalfinances@gmail.com
WhatsApp / Telegram kontaktinformācija: +33751156474
|
| CHRISTY WALTON |
2020-06-24 12:18:19 |
|
Claus tirdzniecības signāls man palīdzēja nopelnīt USD 15 000 ar USD 2 000 pēc 7 dienu tirdzniecības ar bitcoin investīcijām. Jūs patiešām esat iedvesma vārdam Claus, sazinieties ar viņu Via whatsapp: (+12166263236) VAI
pa e-pastu: claustradingsignal07@aol.com
|
| ONOMOR DORIS |
2020-06-24 05:37:00 |
|
Sveiki, katrs, mans vārds ir Onomor Doris kundze. Es dzīvoju ASV un šodien esmu laimīga sieviete? un es sev teicu, ka jebkurš aizdevējs, kurš var izglābt manu ģimeni no mūsu sliktās situācijas, es nodošu jebkurai personai, kura meklē aizdevumu, aizdevējam, paldies, lai aiziet medallon financia, viņš man un manai ģimenei deva laimi, es biju Nepieciešams aizdevums 300 000,00 euro, lai sāktu dzīvi visā, tā kā esmu vientuļā māte ar 3 bērniem, es satiku šo godīgo un DIEVA baidāmo sieviešu aizdevuma aizdevēju, kas man palīdz ar aizdevumu 300 000,00 euro, viņa ir DIEVA baidīga sieviete, ja jums ir nepieciešams aizdevums un jūs atmaksāsit aizdevumu, lūdzu, sazinieties ar viņu, izmantojot vietni; https://medallonfinance.wixsite.com/finance e-pasts. (medallonfinancia@gmail.com) medallonfinancia@hotmail.com, un tur whatsapp ir +7984110408 Onomor Doris kundze
|
| STEVE HOFFMAN |
2020-06-22 03:09:49 |
|
Labdien, dāmas un kungi!
Vai jums ir nepieciešams finanšu atbalsts (aizdevums)?
Liela daļa cilvēku saskaras ar nelaikā esošām finanšu problēmām, un vairums no viņiem augsto procentu likmju, nepietiekamā nodrošinājuma, parāda un ienākumu attiecības, zemā kredītvērtējuma vai citu iemeslu dēļ nespēj saņemt kapitāla aizdevumus no savām vietējām bankām vai citām finanšu institūcijām.
Ja jums ir nepieciešams steidzams aizdevums, es ieteiktu jums sazināties ar manu uzņēmumu, un mēs jums palīdzēsim saņemt aizdevumu.
Mēs piedāvājam visa veida aizdevumu pakalpojumus (individuālais aizdevums, biznesa aizdevums, hipotēkas aizdevums un daudzi citi), mēs piedāvājam gan ilgtermiņa, gan īstermiņa aizdevumus, gan nodrošinātus, gan nenodrošinātus aizdevumus, kā arī jūs varat aizņemties līdz 20 miljoniem eiro. Mans uzņēmums palīdzēs sasniegt dažādus mērķus ar plašu aizdevuma produktu klāstu.
Papildinformāciju par mūsu aizdevuma piedāvājumu; šeit ir mūsu kontaktinformācija.
Kontaktpersonas e-pasts: novicapfinancialservices@gmail.com
Kontakta numurs: +31642117819 (WhatsApp)
Vairs nav gaidīšanas laika vai stresaino bankas apmeklējumu. Mūsu pakalpojums ir pieejams visu diennakti - jūs varat saņemt aizdevumu un veikt darījumus jebkurā vietā un vietā, kur jums tas nepieciešams.
|
| MARIA BAV |
2020-06-21 16:44:31 |
|
Izlasiet manu liecību par to, kā es saņēmu savu aizdevumu
Mani sauc Sonia Gordic. Es devos tiešsaistē un sastapos ar JOSE Luse aizdevumu publikācijā, kurā teikts, ka aizdevumu kompānija plašai sabiedrībai piešķir aizdevumu ar ļoti zemām procentu likmēm.
Tātad, es sazinājos ar uzņēmumu, izmantojot viņas e-pastu: joseluisloans@gmail.com
kuru es pieteicos aizdevumam 15 000 eiro uz 2 gadu periodu. Uzņēmums man atbildēja un atsūtīja man visus tās uzņēmuma noteikumus, kurus biju lasījis, un es viņiem piekritu. Pēc aizdevuma pieteikuma apstiprināšanas no bankas saņēmu paziņojumu, ka manā bankas kontā ir norādīts, ka 15 000 eiro ir konvertēts uz rūpiju, es pabeidzu aizdevuma atmaksu 18. decembrī, pirms sākās koronas uzliesmojums.
Tāpēc es vēlētos izmantot šo iespēju un nosūtīt ziņojumu visiem, kas internetā meklē uzticamu privātu aizdevēju, lai pieteiktos uz jose luis aizdevumu pa e-pastu: Konts (joseluisloans@gmail.com)
Varat arī sazināties ar viņiem lietotnē Kas notiek: (+1 3075431042) Varat arī sazināties ar mani, ja jums ir nepieciešama mana palīdzība vai vēlaties uzdot man jautājumus par to, kā es saņēmu aizdevumu. Šeit ir mans e-pasts:
(soniablink26@yahoo.com]
|
| SAARA FINANCE |
2020-06-20 11:51:34 |
|
Vai jums ir nepieciešams personīgais vai biznesa aizdevums bez stresa un ātra apstiprināšanas? Ja jā, lūdzu, sazinieties ar mums, mēs tagad piedāvājam aizdevumus ar 3% procentu likmi. Mūsu aizdevums ir drošs un drošs. Lai iegūtu vairāk informācijas un lietojumprogrammas, lūdzu, sazinieties ar mums pa e-pastu: saara.kemi@gmail.com
|
| MR MARK |
2020-06-20 09:53:44 |
|
Sveiki, paldies Markam Viljamsam, ka aizdevi man aizdevumu, lai šodien glābtu mana slimā bērna dzīvību, lūdzu, lūdzam ikvienu, ja jums ir nepieciešams steidzams aizdevuma e-pasts: markwilliamstrustfirm@gmail.com
|
| MARK |
2020-06-20 08:49:05 |
|
Sveiki, paldies Markam Viljamsam, ka aizdevi man aizdevumu, lai šodien glābtu mana slimā bērna dzīvību, lūdzu, lūdzam ikvienu, ja jums ir nepieciešams steidzams aizdevuma e-pasts: markwilliamstrustfirm@gmail.com
|
| RICHARD |
2020-06-14 10:16:14 |
|
Laba diena,
Es esmu reģistrēts privāts kreditors. Mēs izsniedzam aizdevumus, kas palīdz cilvēkiem un uzņēmumiem, kuriem visā pasaulē ir nepieciešams atjaunot savu finansiālo stāvokli visā pasaulē ar ļoti zemām gada procentu likmēm 2% gadā, 30 gadu atmaksāšanas periodam visā pasaulē. Mēs izsniegsim aizdevumus no 1,000 līdz 100 000 000 eiro. Aizdevumi ir labi nodrošināti, un mūsu prioritāte ir nodrošināt maksimālu drošību. Personai, kas jūs interesē, sazinieties ar mani pa e-pastu (richardcosmos5@gmail.com)
Aizdevuma piedāvājums.
|
| MR. DéKáNY ENDRE |
2020-06-14 02:16:12 |
|
Vai jums ir nepieciešams finansiāls atbalsts? Privātie aizdevumi? Biznesa aizdevumi? Hipotēku kredīts? Biznesa aizdevumi? Lauksaimniecība un projektu finansēšana? Mēs piešķiram 2% procentu aizdevumus! Kontaktinformācija: (dakany.endre@gmail.com)
Steidzams aizdevuma piedāvājums.
|
| MR. DéKáNY ENDRE |
2020-06-14 02:02:51 |
|
Vai jums ir nepieciešams aizdevums? Mēs esam privāts aizdevējs, kas piešķir 2% aizdevumu. Lai iegūtu vairāk informācijas, sazinieties ar mums šodien: dakany.endre@gmail.com
|
| MR. DéKáNY ENDRE |
2020-06-14 02:01:06 |
|
Vai jums ir nepieciešams aizdevums? Mēs esam privāts aizdevējs, kas piešķir 2% aizdevumu. Lai iegūtu vairāk informācijas, sazinieties ar mums šodien: dakany.endre@gmail.com
|
| MR. DéKáNY ENDRE |
2020-06-14 00:38:23 |
|
Vai jums ir nepieciešams finansiāls atbalsts? Privātie aizdevumi? Biznesa aizdevumi? Hipotēku kredīti? Lauksaimniecība un projektu finansēšana? Mēs izsniedzam 2% procentu aizdevumus! Kontaktinformācija: (dakany.endre@gmail.com)
Steidzams aizdevuma piedāvājums.
|
| NOVAGLOBALFINANCES@G |
2020-06-13 17:22:44 |
|
SVEIKI; VAI VAJADZĪGS AIZDEVUMS
Mēs sniedzam aizdevumus privātpersonām: personīgo aizdevumu patēriņam, mājokļa kredītu, kredīta dzēšanu, parāda dzēšanu, lai iekasētu visus parādus vienā kredītā, studentu aizdevumu, aizdevumu, lai finansētu jūsu automašīnas iegādi.
Vai jums ir nepieciešams finansiāls atbalsts?
Mēs atbalstīsim tādu projektu finansēšanu kā: jūsu māju, biroju, saimniecību celtniecība, mēs finansējam jūsu ceļojumu projektus, jūsu uzņēmumu vai projektu, kuram jums nepieciešams ārējs finansējums.
Vai jums ir nepieciešams ieguldījumu fonds?
Mēs varam ieguldīt jūsu lielajos projektos. Tas ir paredzēts uzņēmumiem, kas meklē ieguldītājus, lai finansētu savus pētniecības projektus, nekustamā īpašuma projektus, pārņemšanu un citas biznesa vajadzības.
IZVĒLIES LABĀKĀS AIZDEVUMA iespējas
Piesakieties, izmantojot šo e-pasta adresi: novaglobalfinances@gmail.com
KO PIEDĀVĀJAM
Mēs piedāvājam visu veidu aizdevumus, gan nodrošinātos, gan nenodrošinātos aizdevumus, parādu konsolidāciju un daudzus citus par ļoti saprātīgām likmēm.
NOVA GLOBAL FINANCIAL SERVICES ir meitasuzņēmums vienai no spēcīgākajām finanšu grupām Eiropā un pasaulē ar lielu kapitālu. NOVA GLOBAL FINANŠU PAKALPOJUMI īsteno stratēģiju klātbūtnei tur, kur ir vērojama izaugsme, pieslēdzot klientus tās radītajām iespējām, palīdzot uzņēmumiem augt, attīstīties ekonomikai un indivīdiem realizēt savas ambīcijas.
Nosūtiet aizdevuma pieprasījumu tūlīt !!!
Vārds: Camilla Karlsen (Aizdevumu centra amatpersona)
Kontaktinformācija: novaglobalfinances@gmail.com
|
| HOPKINSON LANCE |
2020-06-10 04:00:35 |
|
Laba diena,
Vai jums ir nepieciešams nenodrošināts aizdevums?
Vai banka jums ir atteikusi aizdevumu?
Vai jums ir nepieciešams aizdevums, lai atrisinātu savu finanšu problēmu?
Ja tā, tad jums ir paveicies, jo mans uzņēmums piešķir aizdevumus ierobežotā laikā neatkarīgi no jūsu finansiālā stāvokļa vai kredītvēstures.Ja jūs interesē, varat sazināties ar mums pa e-pastu caur hopkinsonloan@outlook.com.
Paldies.
|
| CARLOS OSCAR |
2020-06-08 00:14:00 |
|
Sveiks, skatītāj
Mēs esam profesionāli tirgotāji, nopelnot forex un bināros ieguldītājus katru nedēļu. Labprāt jums pastāstīsim vairāk par mūsu investīciju platformu, kurā jūs varat ieguldīt līdzekļus, sākot no 200 USD, un sākt pelnīt USD 2000 nedēļā, daudzi cilvēki ir guvuši labumu no šī ieguldījuma piedāvājums pirms šī convid-19 vīrusa un tā laikā, ja jums rodas finansiālas grūtības šī koronavīrusa dēļ un jums nepieciešama palīdzība, maksājot rēķinus, vienkārši izvēlieties sev piemērotu investīciju plānu un sāciet gūt peļņu katru nedēļu
200 USD, lai nopelnītu 2000 USD 7 dienās
300 USD, lai nopelnītu 3000 USD 7 dienu laikā
USD 500, lai nopelnītu 5000 USD 7 dienu laikā
USD 1000, lai nopelnītu 10000 USD 7 dienu laikā
5000 USD, lai nopelnītu 50 000 USD 7 dienu laikā
Lai sāktu savu ieguldījumu tagad
WhatsApp: +15022064419 vai e-pastu tradewithcarlos2156@gmail.com
|
| SARAH WILLIAMS |
2020-06-04 09:47:41 |
|
Sky World aizdevumu firma, mēs izsniedzam aizdevumus ar procentu likmi 0f 3%.
skyworldloanfirm@gmail.com
Labdien, sir / ma, esmu.
Mēs esam privāts uzņēmums un mēs piedāvājam aizdevumus ar zemām procentu likmēm, nosakot aizdevuma summu, kas ir no 100 miljoniem aizdevuma uzkrājumu USD 1000 dolāru aizdevumam uzņēmējdarbības attīstībai: konkurētspējas uzlabošana uzņēmējdarbības attīstībā.
Mēs piedāvājam dažādus aizdevumus
* Personīgie aizdevumi (nodrošināti un nenodrošināti)
* Biznesa aizdevumi (nodrošināti un nenodrošināti)
* Konsolidācijas aizdevums
Mēs pateicamies, ka veltījāt laiku, lai izlasītu šo sludinājumu. Lai iegūtu papildinformāciju un jautājumus, šodien nosūtiet mums e-pastu
skyworldloanfirm@gmail.com
skyworldloanfirms@yahoo.com
Sāra Viljamsa.
|
| CLAUDIA KLEIN |
2020-06-02 22:51:36 |
|
Sveicināti un sveicināti Spotcap globālo aizdevumu pakalpojumos. Mans vārds ir Klaudija Kleina, es esmu aizdevējs un arī aizdevumu konsultants.
Vai jums ir nepieciešams finanšu atbalsts? vai jums ir nepieciešams aizdevums dažādiem mērķiem? ja jūsu atbilde ir apstiprinoša, es ieteiktu jums sazināties ar manu firmu, izmantojot | spotcapglobalservices@gmail.com | vai nosūtiet mums ziņojumu vietnē WhatsApp: +4915758108767 | un jūsu kontā ir aizdevums 24 stundu laikā, jo mēs piedāvājam izcilus aizdevuma pakalpojumus visā pasaulē.
Mēs piedāvājam visa veida aizdevumu pakalpojumus (individuālais aizdevums, biznesa aizdevums un daudzi citi), mēs piedāvājam gan ilgtermiņa, gan īstermiņa aizdevumus, kā arī jūs varat aizņemties līdz 15 miljoniem eiro. Mans uzņēmums palīdzēs sasniegt dažādus mērķus ar plašu aizdevuma produktu klāstu.
Mēs zinām, ka likumīga aizdevuma saņemšana vienmēr ir bijusi milzīga problēma Personām, kurām ir finansiālas problēmas un kurām ir nepieciešams risinājums, daudziem cilvēkiem ir tik grūti iegūt kapitāla aizdevumu no savām vietējām bankām vai citām finanšu institūcijām, ņemot vērā augsto interesi. likme, nepietiekams nodrošinājums, parāda un ienākumu attiecība, zems kredītreitings vai kādi citi iemesli.
Vairs nav gaidīšanas laika vai stresaino bankas apmeklējumu. Mūsu pakalpojums ir pieejams visu diennakti - jūs varat saņemt aizdevumu un veikt darījumus jebkurā vietā un vietā, kur jums tas nepieciešams.
Mēs sniedzam 24 stundu pasaules klases aizdevuma pakalpojumus. Jautājumiem / jautājumiem? - Nosūtīt e-pastu uz | spotcapglobalservices@gmail.com | vai nosūtiet mums ziņojumu vietnē WhatsApp: +4915758108767 | & Saņemiet atbildi vienā mirklī.
Jūsu ģimenei, draugiem un kolēģiem nav jāzina, ka jums ir maz naudas, vienkārši rakstiet mums un jūs saņemsit aizdevumu.
|
| PAUL MORITZ KUNGS |
2020-05-24 09:36:02 |
|
Laba diena, kungs / kundze!
Mēs piedāvājam aizdevumus privātām un komerciālām struktūrām ar ļoti zemu gada procentu likmi - 3%, ar atmaksu no viena gada līdz 25 gadiem. Mēs izsniedzam aizdevumus diapazonā no 5000 līdz 500 000 000. Tas ir paredzēts, lai izskaustu pieaugošo sliktā kredīta vēsturi, kā arī lai nodrošinātu stabilu peļņu gan mūsu uzņēmumam, gan klientiem.
Vai jūs naktīs zaudējat miegu, uztraucoties par to, kā iegūt aizdevumu? Kontaktpersona: Pāvila aizdevuma aģentūra tagad pa e-pastu: paulhelpfund@yahoo.com vai WhatsApp: +91 963 289 2493
Mēs piedāvājam aizdevumu ar zemu procentu likmi 3%, un mēs piedāvājam.
* Personīgie aizdevumi
* Parādu konsolidācijas aizdevumi
* Riska kapitāls
* Biznesa aizdevumi
* Izglītības aizdevumi
* Mājokļa aizdevumi
* Aizdevumi jebkura iemesla dēļ
Lai iegūtu vairāk steidzamas informācijas, nekavējoties sazinieties ar mums. paulhelpfund@yahoo.com vai WhatsApp: +91 963 289 2493
Sveicieni
Paul Moritz kungs
|
| CLAUDIA KLEIN |
2020-05-24 00:41:41 |
|
Sveicināti un sveicināti Spotcap globālo aizdevumu pakalpojumos. Mans vārds ir Klaudija Kleina, es esmu aizdevējs un arī aizdevumu konsultants.
Vai jums ir nepieciešams finanšu atbalsts? vai jums ir nepieciešams aizdevums dažādiem mērķiem? ja jūsu atbilde ir apstiprinoša, es ieteiktu jums sazināties ar manu firmu, izmantojot | spotcapglobalservices@gmail.com | vai nosūtiet mums ziņojumu vietnē WhatsApp: +4915758108767 | un jūsu kontā ir aizdevums 24 stundu laikā, jo mēs piedāvājam izcilus aizdevuma pakalpojumus visā pasaulē.
Mēs piedāvājam visa veida aizdevumu pakalpojumus (individuālais aizdevums, biznesa aizdevums un daudzi citi), mēs piedāvājam gan ilgtermiņa, gan īstermiņa aizdevumus, kā arī jūs varat aizņemties līdz 15 miljoniem eiro. Mans uzņēmums palīdzēs sasniegt dažādus mērķus ar plašu aizdevuma produktu klāstu.
Mēs zinām, ka likumīga aizdevuma saņemšana vienmēr ir bijusi milzīga problēma Personām, kurām ir finanšu problēmas un kurām ir nepieciešams tās risinājums, daudziem cilvēkiem ir tik grūti iegūt kapitāla aizdevumu no savām vietējām bankām vai citām finanšu institūcijām, ņemot vērā augsto interesi. likme, nepietiekams nodrošinājums, parāda un ienākumu attiecība, zems kredītreitings vai kādi citi iemesli.
Vairs nav gaidīšanas laika vai stresaino bankas apmeklējumu. Mūsu pakalpojums ir pieejams visu diennakti - jūs varat saņemt aizdevumu un veikt darījumus jebkurā vietā un vietā, kur jums tas nepieciešams.
Mēs sniedzam 24 stundu pasaules klases aizdevuma pakalpojumus. Jautājumiem / jautājumiem? - Nosūtīt e-pastu uz | spotcapglobalservices@gmail.com | vai nosūtiet mums ziņojumu vietnē WhatsApp: +4915758108767 | & Saņemiet atbildi vienā mirklī.
Jūsu ģimenei, draugiem un kolēģiem nav jāzina, ka jums ir maz naudas, vienkārši rakstiet mums un jūs saņemsit aizdevumu.
Jūsu finansiālā brīvība ir jūsu rokās!
|
| SUSAN BENSON |
2020-05-14 20:30:38 |
|
Sveiki, vai jums ir nepieciešams ātrs aizdevums?
Es esmu Sjūzena Bensone, esmu aizdevēja un arī finanšu konsultante.
Ņemot vērā ekonomisko stagnāciju, ko pasaule pārdzīvo jaunās korona vīrusa slimības (COVID-19) rezultātā, daudzi cilvēki saskaras ar nesavlaicīgām finanšu problēmām. Tā kā mūsu iestādē ir skaidras naudas pārpalikums, mēs vēlamies paātrināt naudas apriti, finansējot klientus Eiropā un ārpus tās, izmantojot aizdevumu.
Ja jums ir nepieciešams steidzams aizdevums, lai sāktu uzņēmējdarbību, iegādājieties māju vai automašīnu, vai arī jums ir nepieciešams aizdevums citu personisku iemeslu dēļ? Es vēlos, lai jūs sazinātos ar manu firmu. Mēs sniedzam visa veida aizdevumu pakalpojumus gan ar nodrošinājumu, gan bez ķīlas. Ja jūs to lasāt un zināt, ka jums ir nepieciešams finansiāls atbalsts, varat vienkārši rakstīt mums pa e-pastu: sunshinefinancialgroupinc@gmail.com vai rakstīt man tieši vietnē WhatsApp pa tālruni: +447903159998 un saņemt atbildi uzreiz.
Mēs esam visaptverošs finanšu pakalpojumu uzņēmums, un mēs esam apņēmušies palīdzēt jums uzlabot jūsu ilgtermiņa un īstermiņa finanšu mērķus, jo jūsu finanšu stabilitāte ir mūsu galvenais mērķis.
Īpašības un ieguvums;
* Ērtības - aizdevumam var pieteikties jebkurā laikā un vietā.
* Elastīga summa - jūs izlemjat, cik lielu summu vēlaties aizņemties.
* Ātrs tiešais finansējums - saņemiet aizdevumu 24 stundu laikā pēc apstiprināšanas.
* Elastīga procentu likme 3,0%.
* Augstas apstiprināšanas likmes
* Jums ir iespēja izvēlēties atmaksas datumu katru nedēļu, mēnesi vai gadu uz laiku no 1 līdz 30 gadiem.
* Vienkārša tiešsaistes lietojumprogramma.
* Personalizētas vadlīnijas un zināšanas.
* Nav slēptu maksu
Daudziem cilvēkiem dažu iemeslu dēļ ir tik grūti iegūt aizdevumu no vietējām bankām vai citiem finanšu institūtiem.
Ja jums tiešām ir nepieciešams risinājums jūsu finanšu problēmām, vienkārši rakstiet manai firmai, mēs jums palīdzēsim saņemt aizdevumu. Mēs esam palīdzējuši daudziem cilvēkiem un organizācijām, kas ir saskārušies ar finansiālām grūtībām visā pasaulē. Kad jūs piesakāties kopā ar mums, jūs piesakāties pie uzticama uzņēmuma, kas rūpējas par jūsu finansiālajām vajadzībām, mūsu galvenā prioritāte ir jūsu finansiālā stabilitāte, un par visu procesu jūs parūpēsies.
Lai iegūtu papildinformāciju par mūsu aizdevuma piedāvājumu, lūdzu, atsūtiet mums savu aizdevuma pieprasījumu, izmantojot:
E-pasts: sunshinefinancialgroupinc@gmail.com VAI;
WhatsApp: +447903159998
|
| CLAUDIU MITEAță |
2020-05-09 17:34:18 |
|
Mani sauc Claudiu Miteață, 44 gadus vecs biznesmenis, kādu laiku esmu meklējis likumīgu aizdevēju, 3 labus laikus esmu apkrāpts, ka biju tik satraukts, vakar mans draugs mani iepazīstināja ar Sun Trust, kur es nokļuvu mans aizdevums 55 000 eiro apmērā mana biznesa paplašināšanai. Un es apsolu nobremzēt šo liecību visiem tiem, kas meklē patiesu aizdevēju. Viņa vārds ir Viljams Rodžersa kungs, kas atrodas Amerikas Savienotajās Valstīs, un šeit ir aizdevēja e-pasts {suntrustfinancialhome@gmail.com}, viņš ir likumīgs aizdevējs.
|
| CLAUDIU MITEAță |
2020-05-09 17:33:22 |
|
Mani sauc Claudiu Miteață, 44 gadus vecs biznesmenis, kādu laiku esmu meklējis likumīgu aizdevēju, 3 labus laikus esmu apkrāpts, ka biju tik satraukts, vakar mans draugs mani iepazīstināja ar Sun Trust, kur es nokļuvu mans aizdevums 55 000 eiro apmērā mana biznesa paplašināšanai. Un es apsolu nobremzēt šo liecību visiem tiem, kas meklē patiesu aizdevēju. Viņa vārds ir Viljams Rodžersa kungs, kas atrodas Amerikas Savienotajās Valstīs, un šeit ir aizdevēja e-pasts {suntrustfinancialhome@gmail.com}, viņš ir likumīgs aizdevējs.
|
| DOREEN ZIMMERMAN |
2020-05-08 21:14:51 |
|
Sveiki; Es esmu Doreen Zimmermann, esmu aizdevuma darbinieks un pārstāvu Financial Market Service. Vai jums kādu iemeslu dēļ ir nepieciešams finansiāls atbalsts? Ja atbilde ir apstiprinoša, sazinieties ar manu firmu jau šodien, lai iegūtu sīkāku informāciju par manu aizdevuma programmu; sazinieties ar mums pa e-pastu (financialmarketservice@gmail.com).
Jūs varat jautāt, kāpēc mēs?
Tagad man jums jāzina, ka mūsu tiešsaistes galvaspilsētas programma nav atšķirīga no kaut kā cita. Šeit ir tikai nedaudz no tā, kas mūsu apgrozāmo līdzekļu programmu padara atšķirīgu.
ĀTRĀ PIETEIKUMA PROCESS
-FINANSĒŠANA Drīz pēc 24 stundām
-AZŅEMIET EUR 500 000
-AUTOMĒTIE MAKSĀJUMI
-NAV VAJADZĪGA SADARBĪBA
- UN SVARĪGĀKI, Slēptas maksas nav, un LABĀS ZIŅAS PIEŅEM PANDĒMISKO MŪSU ĀTRĀKĀS PAKALPOJUMU KREDĪTA PIEDĀVĀJUMU, KAS JEBKĀDA.
Mēs saprotam, ka notiek neparedzēti finanšu notikumi, un mēs esam šeit, lai palīdzētu.
Mēs saprotam, vai vēlaties konsolidēt parādu, apmaksāt neparedzētus medicīniskos izdevumus, sākt uzņēmējdarbību vai vienkārši vēlaties doties ģimenes atvaļinājumā neatkarīgi no tā, kādi ir jūsu iemesli.
Mūsu mērķis Financial Market Service ir savlaicīgi nodrošināt piekļuvi personīgajiem aizdevumiem, biznesa aizdevumam un hipotēkas aizdevumam ar pieņemamām procentu likmēm 2%,
Sazinieties ar mums šodien, lai iegūtu pilnīgu informāciju pa e-pastu
financialmarketservice@gmail.com
Ar cieņu
|
| MR. DéKáNY ENDRE |
2020-05-07 00:44:18 |
|
Sveiki visiem,
Vai jums ir nepieciešams steidzams aizdevums? Aizdevums, lai, iespējams, paplašinātu vai dibinātu savu biznesu? Vai arī jums var būt nepieciešams aizdevums, lai apmācītu vai samaksātu parādus un citiem mērķiem ar tikai 2% procentu likmi un ātru un drošu klientu apkalpošanu, kas ir piemērota katram klientam. Sazinieties ar mums tagad, jo esam sertificēti, uzticami un reģistrēti, efektīvi, ātri un dinamiski kreditējoši uzņēmumi ... E-pasts: dakany.endre@gmail.com
|
| MR. DéKáNY ENDRE |
2020-05-07 00:41:30 |
|
Sveiki visiem,
Vai jums ir nepieciešams steidzams aizdevums? Aizdevums, lai, iespējams, paplašinātu vai dibinātu savu biznesu? Vai arī jums var būt nepieciešams aizdevums, lai apmācītu vai samaksātu parādus un citiem mērķiem ar tikai 2% procentu likmi un ātru un drošu klientu apkalpošanu, kas ir piemērota katram klientam. Sazinieties ar mums tagad, jo esam sertificēti, uzticami un reģistrēti, efektīvi, ātri un dinamiski kreditējoši uzņēmumi ... E-pasts: dakany.endre@gmail.com
|
| CHIARA |
2020-05-04 16:59:14 |
|
Sveiki visiem ,
Es esmu Siara no Bolcāno, Itālijā, un es tikai gribu teikt
milzīgs paldies Lindas aizdevuma investīcijām par viņu
sirsnība, atklātība, caurspīdīgums, patiesums, mīlestība un atbalsts laikā
un pēc tam, kad no viņiem saņems aizdevuma līdzekļus. Es daudz esmu pārdzīvojis
šo krāpnieku rokas un laiks neļaus man pateikt visu to, ko es
pēdējos mēnešus tiešsaistē apmeklēja viesi vai saņēmis aizdevumu
Līdzekļu iegūšanai mājās šeit, Ungārijā, bet Dievs atbildēja uz manām lūgšanām
caur Lindas Alberes atbalstu un mīlestību, kas mani apskāva
un saprata ar mani, neskatoties uz manām sākotnējām šaubām un nepamatotību un
ar viņa labo sirdi un mīlestību es tagad esmu mājas īpašnieks caur viņa 2%
procentu likmju aizdevumu fondiem, un es esmu apsolījis izplatīt šīs ziņas, kā arī
pasaki pasaulei, ka joprojām ir īsti un maz labu aizdevumu tiešsaistē
firmas, kas tur var palīdzēt un arī atdzīvināt sausu kaulu, kā es biju
pirms tam. Neklausieties un lasiet šo liecību, jo tas ir a
patiesa dzīves mainīgā pieredze un ikviens, kam vajadzīgs šāda veida pavērsiens
apkārtējiem nevajadzētu par to nešaubīties vai šaubīties, jo esmu pierādījis un es
zvēru Dievam debesīs, ka šis stāsts ir īsts un arī stāsts par
mana pieredze ar viņiem. Ja nepieciešams, pārbaudiet viņus savā e-pastā
finanses! e-pasts: lindaloaninvestment30@gmail.com, vai arī varat sazināties
viņam pa e-pastu: lindaloaninvestment30@gmail.com, lai ātri tērzētu
zvaniet vai whatsapp / + 31687618117
Paldies
Šiāra
|
| CHIARA |
2020-05-04 16:47:37 |
|
Sveiki visiem ,
Es esmu Siara no Bolcāno, Itālijā, un es tikai gribu teikt
milzīgs paldies Lindas aizdevuma investīcijām par viņu
sirsnība, atklātība, caurspīdīgums, patiesums, mīlestība un atbalsts laikā
un pēc tam, kad no viņiem saņems aizdevuma līdzekļus. Es daudz esmu pārdzīvojis
šo krāpnieku rokas un laiks neļaus man pateikt visu to, ko es
pēdējos mēnešus tiešsaistē apmeklēja viesi vai saņēmis aizdevumu
Līdzekļu iegūšanai mājās šeit, Ungārijā, bet Dievs atbildēja uz manām lūgšanām
caur Lindas Alberes atbalstu un mīlestību, kas mani apskāva
un saprata ar mani, neskatoties uz manām sākotnējām šaubām un nepamatotību un
ar viņa labo sirdi un mīlestību es tagad esmu mājas īpašnieks caur viņa 2%
procentu likmju aizdevumu fondiem, un es esmu apsolījis izplatīt šīs ziņas, kā arī
pasaki pasaulei, ka joprojām ir īsti un maz labu aizdevumu tiešsaistē
firmas, kas tur var palīdzēt un arī atdzīvināt sausu kaulu, kā es biju
pirms tam. Neklausieties un lasiet šo liecību, jo tas ir a
patiesa dzīves mainīgā pieredze un ikviens, kam vajadzīgs šāda veida pavērsiens
apkārtējiem nevajadzētu par to nešaubīties vai šaubīties, jo esmu pierādījis un es
zvēru Dievam debesīs, ka šis stāsts ir īsts un arī stāsts par
mana pieredze ar viņiem. Ja nepieciešams, pārbaudiet viņus savā e-pastā
finanses! e-pasts: lindaloaninvestment30@gmail.com, vai arī varat sazināties
viņam pa e-pastu: lindaloaninvestment30@gmail.com, lai ātri tērzētu
zvaniet vai whatsapp / + 31687618117
Paldies
Šiāra
|
| ENDRE |
2020-04-30 23:40:39 |
|
Nepieciešams nodrošināts un nenodrošināts aizdevums? Investoru aizdevumi? Auto aizdevumi? Biznesa aizdevumi? Personīgie aizdevumi? Starptautiskie aizdevumi. Lūdzu, rakstiet mums, ja jums ir interese. E-pasts: (dakany.endre@gmail.com)
Steidzams aizdevuma piedāvājums.
|
| CHRISTY WALTON |
2020-04-29 17:59:16 |
|
Vai jums ir nepieciešams aizdevums? Vai jūs meklējāt, kur saņemt aizdevumu? Vai jūs mēģinājāt saņemt jebkāda veida aizdevumu? pēc tam piesakieties tūlīt? ( christywalton355@gmail.com ), ja vēlaties saņemt aizdevumu par pieņemamu cenu. Šeit tiek piedāvāts aizdevums ar ļoti zemu procentu likmi - 2%. Sazinieties ar mums tagad, ja jūs interesē.
|
| LANLAZAR MARCUS |
2020-04-29 13:41:26 |
|
Sveiki,
Vai jums ir nepieciešams steidzams aizdevums, lai atrisinātu savas finanšu vajadzības? Mēs piedāvājam aizdevumus no 2 000,00 līdz 100 000 000,00, mēs esam uzticami, jaudīgi, ātri un dinamiski, bez kredīta pārbaudes un piedāvājam 100% garantiju ārvalstu aizdevumiem šī pārskaitījuma laikā.
Mēs arī izsniedzām aizdevumu visā valūtā ar 3% procentu likmi visiem aizdevumiem .... Ja esat ieinteresēts, sazinieties ar mums, izmantojot uzņēmuma e-pasta adresi.
Šis e-pasts: Ja jūs interesē, lūdzu, sazinieties ar mums, izmantojot e-pastu: zekoceanfinance1@gmail.com
zekoceanfinance@gmail.com
Sveicieni,
Lanlazar Marcus kungs
zekoceanfinance@gmail.com
zekoceanfinance1@gmail.com
|
| DžEIMSS MORGANS |
2020-04-28 15:26:33 |
|
-
-
-
Es esmu Džeimsa Morgana kungs. Vai jūs meklējat aizdevumu rēķinu apmaksai un
uzsākt savu biznesu? Ja jā, tad tagad dodieties atpakaļ pa e-pastu:
jamesfund60@gmail.com
Nepieciešamās detaļas. Nepieciešamā summa, tālruņa numurs, ilgums, dzimums un vecums.
Piezīme: visa atbilde jānosūta uz e-pastu: jamesfund60@gmail.com
Džeimss Morgans
________________
|
| LANLAZAR MARCUS |
2020-04-28 14:13:06 |
|
Sveiki,
Vai jums ir nepieciešams steidzams aizdevums, lai atrisinātu savas finanšu vajadzības? Mēs piedāvājam aizdevumus no 2 000,00 līdz 100 000 000,00, mēs esam uzticami, jaudīgi, ātri un dinamiski, bez kredīta pārbaudes un piedāvājam 100% garantiju ārvalstu aizdevumiem šī pārskaitījuma laikā.
Mēs arī izsniedzām aizdevumu visā valūtā ar 3% procentu likmi visiem aizdevumiem .... Ja esat ieinteresēts, sazinieties ar mums, izmantojot uzņēmuma e-pasta adresi.
Šis e-pasts: Ja jūs interesē, lūdzu, sazinieties ar mums, izmantojot e-pastu: zekoceanfinance1@gmail.com
zekoceanfinance@gmail.com
Sveicieni,
Lanlazar Marcus kungs
zekoceanfinance@gmail.com
zekoceanfinance1@gmail.com
|
| UTE SCHMID |
2020-04-27 20:55:16 |
|
Liecība par to, kā es saņēmu aizdevumu no Sunshine Financial Group, Inc ar pieejamu likmi 3%.
Papildinot dienu visiem šeit, mans vārds ir Ute Schmid, es esmu vācietis. Es iesaku strādāt ar "Sunshine Financial Group, Inc." visu veidu aizdevumiem bez atrunām es biju finanšu krīzē un man bija nepieciešams aizdevums EUR 105 000 apmērā, es izmēģināju gandrīz visas manas pilsētas bankas un dažas citas aizdevumu firmas, un es nevarēju saņemt atļauju, un tad es nolēmu mēģināt vēlreiz, un es sazinājos ar "Susan Benson", lai saņemtu palīdzību, es varētu teikt, ka viņa ir persona, kurai varu uzticēties, es pieņemu vislabāko lēmumu man un savai ģimenei, par laimi man veiksmīgi tika piešķirts aizdevums, pat ar vai bez ķīlas, kā arī nav kredīta pārbaudes, un viņas apkalpošana ir ātra, uzticama un uzticama.
Sazinieties ar viņu šodien, lai iegūtu papildinformāciju pa e-pastu: sunshinefinancialgroupinc@gmail.com, vai arī nosūtiet ziņojumu tieši vietnē WhatsApp pa tālruni: +447903159998 un saņemiet atbildi tūlīt.
|
| LANLAZAR MARCUS |
2020-04-25 18:17:40 |
|
Sveiki,
Vai jums ir nepieciešams steidzams aizdevums, lai atrisinātu savas finanšu vajadzības? Mēs piedāvājam aizdevumus no 2 000,00 līdz 100 000 000,00, mēs esam uzticami, jaudīgi, ātri un dinamiski, bez kredīta pārbaudes un piedāvājam 100% garantiju ārvalstu aizdevumiem šī pārskaitījuma laikā.
Mēs arī izsniedzām aizdevumu visā valūtā ar 3% procentu likmi visiem aizdevumiem .... Ja esat ieinteresēts, sazinieties ar mums, izmantojot uzņēmuma e-pasta adresi.
Šis e-pasts: Ja jūs interesē, lūdzu, sazinieties ar mums, izmantojot e-pastu: zekoceanfinance1@gmail.com
zekoceanfinance@gmail.com
Sveicieni,
Lanlazar Marcus kungs
zekoceanfinance@gmail.com
zekoceanfinance1@gmail.com
|
| CHRISTY WALTON |
2020-04-24 13:35:34 |
|
Meklējat parāda konsolidācijas aizdevumu, nenodrošinātus aizdevumus, biznesa aizdevumus, hipotēku kredītus, automašīnu aizdevumus, studentu kredītus, personiskos aizdevumus, riska kapitālu, bitcoin aizdevumu utt.! Es esmu privāts aizdevējs, es sniedzu aizdevumus uzņēmumiem un privātpersonām ar zemām procentu likmēm un saprātīgām procentu likmēm 2%. Sūtīt uz e-pastu: christywalton355@gmail.com
|
| PHILIP MORGAN |
2020-04-22 15:18:51 |
|
Mēs piedāvājam steidzamus aizdevumus no 1000 līdz 2000 dolāriem jebkurai jūsu izvēlei un 2-4 stundu ilgam apkalpošanas perioda veiksmīgam darījumam ar 3% procentu likmēm biznesam un privātajam biznesam
MĒRĶI TAGAD PIETEIKTIES AR PAZIŅOJUMU PAMATTIETEŅĀ:
philipmorganloanservice00@gmail.com
PIEPILDĪT UN ATGRIEZTIES
Vārds:
Aizdevuma summa :
Ilgums:
Dzimums:
Valsts:
Mērķis:
Mobilā telefona numurs:
JŪSU ATBILDE IR TIEŠI NEPIECIEŠAMA
|
| DONNA TAMMY |
2020-04-22 06:50:01 |
|
Mīļais
Vai jūs meklējat biznesa aizdevumus, privātpersonu kredītus, mājokļu kredītus, automašīnu aizdevumus, studentu kredītus, parādu konsolidācijas aizdevumus, nenodrošinātus aizdevumus, biznesa kapitālu utt., Vai arī jums ir atteikts aizdevums no bankas vai finanšu iestādes vismaz viena iemesla dēļ , jūs esat pareizajā stāvoklī
Maksājiet savu kredīta risinājumu!
Esmu privāts aizdevējs. Es aizdevu naudu uzņēmumiem un privātpersonām.
Zemas procentu likmes un pieņemamas cenas ar 2% likmi
Vai interesē? Sazinieties ar mums, lai izsekotu kredīta operācijas un
Nodošana 48 stundu laikā
Informācija par pieteikumu:
Vārds:
Dzimšanas diena:
Sekss:
Laulības statuss:
Adrese:
Pilsēta:
Valsts / province:
Pasta indekss:
Valsts:
Tālrunis:
E-pasts:
Aizdevuma mērķis:
Aizdevuma summa:
Kredīta termiņš:
Neto ienākumi mēnesī:
Nosūtīt mums e-pastu @ {Donnaloancompany@gmail.com}. Lai iegūtu vairāk informācijas par mums, lūdzu, apmeklējiet mūsu tīmekļa adresi www.donnaloancompany.com.
Ar cieņu,
Donnas kundze
|
| DONNA TAMMY |
2020-04-22 06:49:12 |
|
Mīļais
Vai jūs meklējat biznesa aizdevumus, privātpersonu kredītus, mājokļu kredītus, automašīnu aizdevumus, studentu kredītus, parādu konsolidācijas aizdevumus, nenodrošinātus aizdevumus, biznesa kapitālu utt., Vai arī jums ir atteikts aizdevums no bankas vai finanšu iestādes vismaz viena iemesla dēļ , jūs esat pareizajā stāvoklī
Maksājiet savu kredīta risinājumu!
Esmu privāts aizdevējs. Es aizdevu naudu uzņēmumiem un privātpersonām.
Zemas procentu likmes un pieņemamas cenas ar 2% likmi
Vai interesē? Sazinieties ar mums, lai izsekotu kredīta operācijas un
Nodošana 48 stundu laikā
Informācija par pieteikumu:
Vārds:
Dzimšanas diena:
Sekss:
Laulības statuss:
Adrese:
Pilsēta:
Valsts / province:
Pasta indekss:
Valsts:
Tālrunis:
E-pasts:
Aizdevuma mērķis:
Aizdevuma summa:
Kredīta termiņš:
Neto ienākumi mēnesī:
Nosūtīt mums e-pastu @ {Donnaloancompany@gmail.com}. Lai iegūtu vairāk informācijas par mums, lūdzu, apmeklējiet mūsu tīmekļa adresi www.donnaloancompany.com.
Ar cieņu,
Donnas kundze
|
| MR. DéKáNY ENDRE |
2020-04-12 17:46:51 |
|
Nepieciešams parāda atmaksas aizdevums, lai nomaksātu rēķinus? Vai šodien kontrolēt savu parādu? Biznesa aizdevuma pagarināšanas piedāvājums tagad? Vai jums ir nepieciešams aizdevums, lai atmaksātu kontu? Vai jums ir nepieciešams aizdevums? Vai jums ir nepieciešams personīgais aizdevums? Biznesa paplašināšanas aizdevums? Uzņēmējdarbības uzsākšana, izglītība, parādu apvienošana Aizdevums par cietu naudu Aizdevums jebkurai lietai? Mēs piedāvājam aizdevumu ar zemu procentu likmi 2% no aizdevuma bez kredīta pārbaudes, E-pasts: (dakany.endre@gmail.com)
Steidzams aizdevuma piedāvājums.
|
| MR. DéKáNY ENDRE |
2020-04-12 17:46:36 |
|
Nepieciešams parāda atmaksas aizdevums, lai nomaksātu rēķinus? Vai šodien kontrolēt savu parādu? Biznesa aizdevuma pagarināšanas piedāvājums tagad? Vai jums ir nepieciešams aizdevums, lai atmaksātu kontu? Vai jums ir nepieciešams aizdevums? Vai jums ir nepieciešams personīgais aizdevums? Biznesa paplašināšanas aizdevums? Uzņēmējdarbības uzsākšana, izglītība, parādu apvienošana Aizdevums par cietu naudu Aizdevums jebkurai lietai? Mēs piedāvājam aizdevumu ar zemu procentu likmi 2% no aizdevuma bez kredīta pārbaudes, E-pasts: (dakany.endre@gmail.com)
Steidzams aizdevuma piedāvājums.
|
| APPLY FOR A LOAN |
2020-04-09 23:11:08 |
|
Vai jūsu apmierināšanai ir nepieciešams ērts aizdevums? Vietējiem un starptautiskiem kredītņēmējiem mēs piedāvājam aizdevumu ar 3% procentu likmi. Mēs esam sertificēti, uzticami, uzticami, efektīvi, ātri un dinamiski, un mēs sadarbojamies. mēs piešķiram ilgtermiņa aizdevumu uz laiku no 2 līdz 50 gadiem.
Vai jums ir nepieciešams tiešs, ērts un pieejams aizdevums, lai nomaksātu savu parādu, nodibinātu uzņēmumu vai cita iemesla dēļ? Ja tā, lūdzu, sazinieties ar mums, lai saņemtu aizdevumu.
Šis piedāvājums paredzēts nopietniem cilvēkiem.
Ja jūs interesē, lūdzu, sazinieties ar mums pa e-pastu: e-pasts: bryanstefanloanfirm@gmail.com
WhatsApp: +19792912614
Mēs esam sertificēti,
uzticama, efektīva, ātra un dinamiska.
Ar cieņu
Braiens Stefans
bryanstefanloanfirm@gmail.com
|
| MR MARK |
2020-04-08 12:42:14 |
|
Sveiki, paldies Markam Viljamsam, ka aizdevi man aizdevumu, lai šodien glābtu mana slimā bērna dzīvību, lūdzu, lūdzam ikvienu, ja jums ir nepieciešams steidzams aizdevuma e-pasts: markwilliamstrustfirm@gmail.com
|
| STEVE HOFFMAN |
2020-04-08 01:41:57 |
|
Labdien, dāmas un kungi!
Vai jums nepieciešama finansiāla palīdzība?
Daudzi cilvēki tur meklē finansiālu palīdzību, bet viņi nezina, kā to panākt.
Vai jūs zināt, ka varat pieteikties aizdevumam un saņemt aizdevumu mazāk nekā 24 stundu laikā, lai atrisinātu savu finansiālo stāvokli? Daži cilvēki var domāt, ka aizdevuma saņemšana ir grūta, taču man jums jāzina, ka aizdevuma saņemšana no mana uzņēmuma ir ļoti vienkārša, jo mēs cenšamies padarīt aizņemšanos vieglu, ērtu un pieejamu.
Mēs piedāvājam elastīgas un vairāku aizdevumu iespējas, ieskaitot nodrošinātos un nenodrošinātos aizdevumus, ilgtermiņa un īstermiņa aizdevumus, kas ir piemēroti jūsu finanšu vajadzībām.
Mūsu pakalpojums ir ļoti ātrs, uzticams un uzticams, un jūs varat aizņemties līdz EUR 20 miljoniem ar subsidētu procentu likmi 2,5% gadā. NoviCap ir īstais uzņēmums, ar kuru sazināties, kad jums steidzami nepieciešams aizdevums.
NoviCap nodrošina finansēšanas risinājumus.
Mēs piedāvājam visa veida finanšu pakalpojumus, piemēram, biznesa aizdevumu, privātpersonu aizdevumus utt. Mēs sniedzam 24 stundu pasaules klases aizdevuma pakalpojumus.
Jūs varat pieteikties aizdevumam jebkurā laikā un vietā, sev ērtā vietā, izmantojot tālruni vai klēpjdatoru. Viss, kas jums jādara, ir sazināties ar mums, izmantojot
E-pasts: (novicapfinancialservices@gmail.com) VAI
Rakstiet mums vietnē WhatsApp pa tālruni: +31642117819.
ŠIS AIZDEVUMS IR PIEEJAMS ikvienam!
|
| ENDRE |
2020-04-07 14:46:02 |
|
Sveiciens
Mēs esam pilnvaroti finanšu konsultanti, kas sniedz uzticamus aizdevumus privātpersonām, kā arī finansējumu biznesam, mājām, personīgajiem un projektiem. Vai jums ir apnicis meklēt aizdevumus, vai arī jums ir finansiālas nepatikšanas. Vai jums ir zems kredītreitings, un jums būs grūti saņemt aizdevumus no bankām un citām finanšu institūcijām? tad vairs neuztraucieties, jo mēs esam risinājums jūsu finansiālajai nelaimei. Mēs piedāvājam visu veidu aizdevumus, sākot no 2000 eiro līdz 650 000 000 eiro ar zemu procentu likmi 2% un aizdevuma ilgumu no 1 līdz 35 gadiem, lai atmaksātu aizdevumu droši un nenodrošināti. Vai jūs naktīs zaudējat miegu, uztraucoties par to, kā iegūt Legit Loan aizdevēju? Ja jā, neuztraucieties, jo mēs esam šeit, lai palīdzētu mazāk finansiālām privilēģijām saņemt nepieciešamo aizdevumu, lai saņemtu atpakaļ uz kājām neatkarīgi no jūsu kredītreitinga, jūs varat atvadīties no visām savām finanšu krīzes un grūtībām. Sazinieties ar mums: (dakany.endre@gmail.com)
Steidzams aizdevuma piedāvājums.
|
| EXCEL |
2020-04-07 13:59:30 |
|
Labdien. Vai jūs meklējat biznesa aizdevumu, individuālu aizdevumu, mājokļa aizdevumu, auto aizdevumu, studentu aizdevumu, parāda konsolidācijas aizdevumu, nenodrošinātu aizdevumu, riska kapitālu utt. ... VAI vai jūs noraidījāt bankas vai kādas finanšu iestādes aizdevumu vienai vai vairāk iemeslu. Jūs esat īstajā vietā saviem aizdevuma risinājumiem! Mēs esam kristiešu aizdevumu organizācija, mēs izsniedzam aizdevumu tiem, kam tas ir vajadzīgs pozitīvi, un arī tiem, kuriem ir uzticības cienīgi, mēs arī izsniedzam aizdevumus uzņēmumiem un privātpersonām ar zemu un pieejamu procentu likmi (2%). lūdzu, sazinieties ar mums pa e-pastu: (excelservices.managementonline@gmail.com)
Steidzams aizdevuma piedāvājums.
|
| ENDRE |
2020-04-07 13:36:06 |
|
Sveiciens
Mēs esam pilnvaroti finanšu konsultanti, kas sniedz uzticamus aizdevumus privātpersonām, kā arī finansējumu biznesam, mājām, personīgajiem un projektiem. Vai jums ir apnicis meklēt aizdevumus, vai arī jums ir finansiālas nepatikšanas. Vai jums ir zems kredītreitings, un jums būs grūti saņemt aizdevumus no bankām un citām finanšu institūcijām? tad vairs neuztraucieties, jo mēs esam risinājums jūsu finansiālajai nelaimei. Mēs piedāvājam visu veidu aizdevumus, sākot no 2000 eiro līdz 650 000 000 eiro ar zemu procentu likmi 2% un aizdevuma ilgumu no 1 līdz 35 gadiem, lai atmaksātu aizdevumu droši un nenodrošināti. Vai jūs naktīs zaudējat miegu, uztraucoties par to, kā iegūt Legit Loan aizdevēju? Ja jā, neuztraucieties, jo mēs esam šeit, lai palīdzētu mazāk finansiālām privilēģijām saņemt nepieciešamo aizdevumu, lai saņemtu atpakaļ uz kājām neatkarīgi no jūsu kredītreitinga, jūs varat atvadīties no visām savām finanšu krīzes un grūtībām. Sazinieties ar mums: (dakany.endre@gmail.com)
Steidzams aizdevuma piedāvājums.
|
| ENDRE |
2020-04-07 13:32:43 |
|
Sveiciens
Mēs esam pilnvaroti finanšu konsultanti, kas sniedz uzticamus aizdevumus privātpersonām, kā arī finansējumu biznesam, mājām, personīgajiem un projektiem. Vai jums ir apnicis meklēt aizdevumus, vai arī jums ir finansiālas nepatikšanas. Vai jums ir zems kredītreitings, un jums būs grūti saņemt aizdevumus no bankām un citām finanšu institūcijām? tad vairs neuztraucieties, jo mēs esam risinājums jūsu finansiālajai nelaimei. Mēs piedāvājam visu veidu aizdevumus, sākot no 2000 eiro līdz 650 000 000 eiro ar zemu procentu likmi 2% un aizdevuma ilgumu no 1 līdz 35 gadiem, lai atmaksātu aizdevumu droši un nenodrošināti. Vai jūs naktīs zaudējat miegu, uztraucoties par to, kā iegūt Legit Loan aizdevēju? Ja jā, neuztraucieties, jo mēs esam šeit, lai palīdzētu mazāk finansiālām privilēģijām saņemt nepieciešamo aizdevumu, lai saņemtu atpakaļ uz kājām neatkarīgi no jūsu kredītreitinga, jūs varat atvadīties no visām savām finanšu krīzes un grūtībām. Sazinieties ar mums: (dakany.endre@gmail.com)
Steidzams aizdevuma piedāvājums.
|
| MR. RICHARD COSMOS |
2020-04-07 12:16:03 |
|
Esmu privāts aizdevējs un ieguldītājs. Vai jums ir nepieciešams likumīgs, godīgs, cienījams un ātrais kredīts? Es varu palīdzēt ar 100% garantiju, piedāvāt biznesa un personīgos aizdevumus un hipotēkas, kā arī finansēt visa veida projektus. Sazinieties ar mums, lai iegūtu sīkāku informāciju: (richardcosmos5@gmail.com)
Steidzams aizdevuma piedāvājums.
|
| NFX |
2020-04-07 10:28:00 |
|
Laba diena
Vai jums ir nepieciešams aizdevums visiem mērķiem? Vai jums ir finansiālas problēmas? Bridge Finance tiek garantēta, nodrošinot klientiem finanšu pakalpojumus ar izdevīgu procentu likmi. Mūsu aizdevumi ir vienkārši un ātri. Sazinieties ar mums jau šodien, lai saņemtu nepieciešamo aizdevumu. Mēs varam jūsu budžetam pielīdzināt jebkuru aizdevumu ar procentu likmi 2%. Ja jūs interesē, lūdzu, sazinieties tagad ar (adrianbay0008@gmail.com)
|
| RUTH |
2020-04-06 22:58:48 |
|
Pēc vārda es esmu Vera Lopesa, es dzīvoju Kalifornijā, Amerikas Savienotajās Valstīs, kura laika posmā no pagājušā gada februāra līdz šī gada janvārim ir kļuvusi par krāpniecības upuri tik daudziem viltotiem aizdevējiem tiešsaistē, bet es pateicos savam radītājam, ka viņš beidzot ir smaidījis es, novirzot mani pie šī jaunā aizdevēja, kurš man 2019. gadā uzsmaidīja man sejā, un viņš mani nedarīja un arī mani nemaldināja un nemeloja, bet tomēr šis aizdevējs, kura vārds ir Valeria Ali kundze, man piešķīra 2% aizdevumu, kas summa ir USD 1 000 000 dolāru pēc tam, kad esmu piekritusi viņu uzņēmuma noteikumiem un nosacījumiem, un viena nozīmīga lieta, ko es mīlu par šo aizdevumu uzņēmumu, ir arī tā, ka tā ir ātra un uzticama, tāpēc mani aizgādņi un māsas jūs varat sazināties ar uzņēmumu tieši caur uzņēmuma e-pastu: valleriaali67@gmail.com
|
| ADRIAN BAYFORD |
2020-04-04 16:12:05 |
|
Laba diena
Vai jums ir nepieciešams aizdevums visiem mērķiem? Vai jums ir finansiālas problēmas? Bridge Finance tiek garantēta, nodrošinot klientiem finanšu pakalpojumus ar izdevīgu procentu likmi. Mūsu aizdevumi ir vienkārši un ātri. Sazinieties ar mums jau šodien, lai saņemtu nepieciešamo aizdevumu. Mēs varam jūsu budžetam pielīdzināt jebkuru aizdevumu ar procentu likmi 2%. Ja jūs interesē, lūdzu, sazinieties tagad ar (adrianbay0008@gmail.com)
|
| CLAUDIA KLEIN |
2020-03-29 13:32:24 |
|
Sveicināti un sveicināti Spotcap globālo aizdevumu pakalpojumos. Mans vārds ir Klaudija Kleina, es esmu aizdevējs un arī aizdevumu konsultants.
Vai jums ir nepieciešams finanšu atbalsts? vai jums ir nepieciešams aizdevums dažādiem mērķiem? ja jūsu atbilde ir apstiprinoša, es ieteiktu jums sazināties ar manu firmu, izmantojot | spotcapglobalservices@gmail.com | vai nosūtiet mums ziņojumu vietnē WhatsApp: +4915758108767 | un jūsu kontā ir aizdevums 24 stundu laikā, jo mēs piedāvājam izcilus aizdevuma pakalpojumus visā pasaulē.
Mēs piedāvājam visa veida aizdevumu pakalpojumus (individuālais aizdevums, biznesa aizdevums un daudzi citi), mēs piedāvājam gan ilgtermiņa, gan īstermiņa aizdevumus, kā arī jūs varat aizņemties līdz 15 miljoniem eiro. Mans uzņēmums palīdzēs sasniegt dažādus mērķus ar plašu aizdevuma produktu klāstu.
Mēs zinām, ka likumīga aizdevuma saņemšana vienmēr ir bijusi milzīga problēma Personām, kurām ir finansiālas problēmas un kurām ir nepieciešams risinājums, daudziem cilvēkiem ir tik grūti iegūt kapitāla aizdevumu no savām vietējām bankām vai citām finanšu institūcijām augsto interešu dēļ. likme, nepietiekams nodrošinājums, parāda un ienākumu attiecība, zems kredītreitings vai kādi citi iemesli
Vairs nav gaidīšanas laika vai stresaino bankas apmeklējumu. Mūsu pakalpojums ir pieejams visu diennakti - jūs varat saņemt aizdevumu un veikt darījumus jebkurā vietā un vietā, kur jums tas nepieciešams
Mēs sniedzam 24 stundu pasaules klases aizdevuma pakalpojumus. Jautājumiem / jautājumiem? - Nosūtīt e-pastu uz | spotcapglobalservices@gmail.com | vai nosūtiet mums ziņojumu vietnē WhatsApp: +4915758108767 | & Saņemiet atbildi vienā mirklī.
Jūsu ģimenei, draugiem un kolēģiem nav jāzina, ka jums ir maz naudas, vienkārši rakstiet mums un jūs saņemsit aizdevumu.
Jūsu finansiālā brīvība ir jūsu rokās!
|
| 45773 |
2020-03-24 14:31:05 |
|
Sveiki, visi, kas tur, es ceru, ka jums, puiši, viss ir kārtībā ??? Mani vārdi ir Elodie Yannick kundze, es nācu no Beļģijas Lježas, pirms dažām nedēļām man bija slikta finansiālā situācija, un man bija nepieciešams steidzams aizdevums, lai apmaksātu rēķinus un finansiāli atgrieztos pie manis pašreizējās finansiālās situācijas dēļ. atteicās man dot aizdevumu, tāpēc man neatlika citas iespējas kā meklēt nenodrošinātu aizdevumu tiešsaistē, izpētes laikā es biju krāpšanas upuris un pazaudēju gandrīz EUR 1,250, un es biju vairāk nepatikšanas, un gandrīz atteicās no cerībām saņemt aizdevumu, līdz atradu tiešsaistes ierakstu, un šī ziņa bija Melissa Nicholas kundzes dalīta liecība no Kanzasas štatiem, kas apliecina, kā viņa ieguva 350,000 USD no Kathy Finance Inc., izlasot ziņu, es nolēmu sazināties ar Kathy Finance Inc pa e-pastu: (kathyrichardfinance@hotmail.com) kontaktpersona, kas kopīgota pa pastu, 48 stundu laikā pēc mana pieprasījuma tika apstiprināts mans nenodrošinātais aizdevuma pieprasījums 120,000 euro apmērā, un viņu aizdevuma procentu likme ir 2%, mans aizdevums tika iemaksāts manā bankas kontā bez jebkādas izlaidība.
Es gribu izteikt dziļu pateicību un arī ieteikt tur esošajiem aizdevumu meklētājiem būt ļoti modriem, jo tur ir daudz krāpnieku, kuru vienīgais mērķis ir izkrāpt nevainīgus aizdevuma meklētājus, tāpēc jums, puišiem, jābūt uzmanīgiem un modriem .. tiem kam nepieciešams aizdevums Es iesaku Kathy Finance Inc, jūs varat sazināties ar uzņēmumu pa e-pastu: (kathyrichardfinance@hotmail.com)
Paldies, ka lasījāt manu liecību, es vēlu veiksmi.
Jūsu,
Elodijs Janiks.
|
| 45773 |
2020-03-23 22:03:36 |
|
Sveiki, visi, kas tur, es ceru, ka jums, puiši, viss ir kārtībā ??? Mani vārdi ir Elodie Yannick kundze, es nācu no Beļģijas Lježas, pirms dažām nedēļām man bija slikta finansiālā situācija, un man bija nepieciešams steidzams aizdevums, lai apmaksātu rēķinus un finansiāli atgrieztos pie manis pašreizējās finansiālās situācijas dēļ. atteicās man dot aizdevumu, tāpēc man neatlika citas iespējas kā meklēt nenodrošinātu aizdevumu tiešsaistē, izpētes laikā es biju krāpšanas upuris un pazaudēju gandrīz EUR 1,250, un es biju vairāk nepatikšanas, un gandrīz atteicās no cerībām saņemt aizdevumu, līdz atradu tiešsaistes ierakstu, un šī ziņa bija Melissa Nicholas kundzes dalīta liecība no Kanzasas štatiem, kas apliecina, kā viņa ieguva 350,000 USD no Kathy Finance Inc., izlasot ziņu, es nolēmu sazināties ar Kathy Finance Inc pa e-pastu: (kathyrichardfinance@hotmail.com) kontaktpersona, kas kopīgota pa pastu, 48 stundu laikā pēc mana pieprasījuma tika apstiprināts mans nenodrošinātais aizdevuma pieprasījums 120,000 euro apmērā, un viņu aizdevuma procentu likme ir 2%, mans aizdevums tika iemaksāts manā bankas kontā bez jebkādas izlaidība.
Es gribu izteikt dziļu pateicību un arī ieteikt tur esošajiem aizdevumu meklētājiem būt ļoti modriem, jo tur ir daudz krāpnieku, kuru vienīgais mērķis ir izkrāpt nevainīgus aizdevuma meklētājus, tāpēc jums, puišiem, jābūt uzmanīgiem un modriem .. tiem kam nepieciešams aizdevums Es iesaku Kathy Finance Inc, jūs varat sazināties ar uzņēmumu pa e-pastu: (kathyrichardfinance@hotmail.com)
Paldies, ka lasījāt manu liecību, es vēlu veiksmi.
Jūsu,
Elodijs Janiks.
|
| 45773 |
2020-03-23 20:51:52 |
|
Sveiki, visi, kas tur, es ceru, ka jums, puiši, viss ir kārtībā ??? Mani vārdi ir Elodie Yannick kundze, es nācu no Beļģijas Lježas, pirms dažām nedēļām man bija slikta finansiālā situācija, un man bija nepieciešams steidzams aizdevums, lai apmaksātu rēķinus un finansiāli atgrieztos pie manis pašreizējās finansiālās situācijas dēļ. atteicās man dot aizdevumu, tāpēc man neatlika citas iespējas kā meklēt nenodrošinātu aizdevumu tiešsaistē, izpētes laikā es biju krāpšanas upuris un pazaudēju gandrīz EUR 1,250, un es biju vairāk nepatikšanas, un gandrīz atteicās no cerībām saņemt aizdevumu, līdz atradu tiešsaistes ierakstu, un šī ziņa bija Melissa Nicholas kundzes dalīta liecība no Kanzasas štatiem, kas apliecina, kā viņa ieguva 350,000 USD no Kathy Finance Inc., izlasot ziņu, es nolēmu sazināties ar Kathy Finance Inc pa e-pastu: (kathyrichardfinance@hotmail.com) kontaktpersona, kas kopīgota pa pastu, 48 stundu laikā pēc mana pieprasījuma tika apstiprināts mans nenodrošinātais aizdevuma pieprasījums 120,000 euro apmērā, un viņu aizdevuma procentu likme ir 2%, mans aizdevums tika iemaksāts manā bankas kontā bez jebkādas izlaidība.
Es gribu izteikt dziļu pateicību un arī ieteikt tur esošajiem aizdevumu meklētājiem būt ļoti modriem, jo tur ir daudz krāpnieku, kuru vienīgais mērķis ir izkrāpt nevainīgus aizdevuma meklētājus, tāpēc jums, puišiem, jābūt uzmanīgiem un modriem .. tiem kam nepieciešams aizdevums Es iesaku Kathy Finance Inc, jūs varat sazināties ar uzņēmumu pa e-pastu: (kathyrichardfinance@hotmail.com)
Paldies, ka lasījāt manu liecību, es vēlu veiksmi.
Jūsu,
Elodijs Janiks.
|
| 45773 |
2020-03-23 20:06:05 |
|
Sveiki, visi, kas tur, es ceru, ka jums, puiši, viss ir kārtībā ??? Mani vārdi ir Elodie Yannick kundze, es nācu no Beļģijas Lježas, pirms dažām nedēļām man bija slikta finansiālā situācija, un man bija nepieciešams steidzams aizdevums, lai apmaksātu rēķinus un finansiāli atgrieztos pie manis pašreizējās finansiālās situācijas dēļ. atteicās man dot aizdevumu, tāpēc man neatlika citas iespējas kā meklēt nenodrošinātu aizdevumu tiešsaistē, izpētes laikā es biju krāpšanas upuris un pazaudēju gandrīz EUR 1,250, un es biju vairāk nepatikšanas, un gandrīz atteicās no cerībām saņemt aizdevumu, līdz atradu tiešsaistes ierakstu, un šī ziņa bija Melissa Nicholas kundzes dalīta liecība no Kanzasas štatiem, kas apliecina, kā viņa ieguva 350,000 USD no Kathy Finance Inc., izlasot ziņu, es nolēmu sazināties ar Kathy Finance Inc pa e-pastu: (kathyrichardfinance@hotmail.com) kontaktpersona, kas kopīgota pa pastu, 48 stundu laikā pēc mana pieprasījuma tika apstiprināts mans nenodrošinātais aizdevuma pieprasījums 120,000 euro apmērā, un viņu aizdevuma procentu likme ir 2%, mans aizdevums tika iemaksāts manā bankas kontā bez jebkādas izlaidība.
Es gribu izteikt dziļu pateicību un arī ieteikt tur esošajiem aizdevumu meklētājiem būt ļoti modriem, jo tur ir daudz krāpnieku, kuru vienīgais mērķis ir izkrāpt nevainīgus aizdevuma meklētājus, tāpēc jums, puišiem, jābūt uzmanīgiem un modriem .. tiem kam nepieciešams aizdevums Es iesaku Kathy Finance Inc, jūs varat sazināties ar uzņēmumu pa e-pastu: (kathyrichardfinance@hotmail.com)
Paldies, ka lasījāt manu liecību, es vēlu veiksmi.
Jūsu,
Elodijs Janiks.
|
| 45773 |
2020-03-23 18:54:13 |
|
Sveiki, visi, kas tur, es ceru, ka jums, puiši, viss ir kārtībā ??? Mani vārdi ir Elodie Yannick kundze, es nācu no Beļģijas Lježas, pirms dažām nedēļām man bija slikta finansiālā situācija, un man bija nepieciešams steidzams aizdevums, lai apmaksātu rēķinus un finansiāli atgrieztos pie manis pašreizējās finansiālās situācijas dēļ. atteicās man dot aizdevumu, tāpēc man neatlika citas iespējas kā meklēt nenodrošinātu aizdevumu tiešsaistē, izpētes laikā es biju krāpšanas upuris un pazaudēju gandrīz EUR 1,250, un es biju vairāk nepatikšanas, un gandrīz atteicās no cerībām saņemt aizdevumu, līdz atradu tiešsaistes ierakstu, un šī ziņa bija Melissa Nicholas kundzes dalīta liecība no Kanzasas štatiem, kas apliecina, kā viņa ieguva 350,000 USD no Kathy Finance Inc., izlasot ziņu, es nolēmu sazināties ar Kathy Finance Inc pa e-pastu: (kathyrichardfinance@hotmail.com) kontaktpersona, kas kopīgota pa pastu, 48 stundu laikā pēc mana pieprasījuma tika apstiprināts mans nenodrošinātais aizdevuma pieprasījums 120,000 euro apmērā, un viņu aizdevuma procentu likme ir 2%, mans aizdevums tika iemaksāts manā bankas kontā bez jebkādas izlaidība.
Es gribu izteikt dziļu pateicību un arī ieteikt tur esošajiem aizdevumu meklētājiem būt ļoti modriem, jo tur ir daudz krāpnieku, kuru vienīgais mērķis ir izkrāpt nevainīgus aizdevuma meklētājus, tāpēc jums, puišiem, jābūt uzmanīgiem un modriem .. tiem kam nepieciešams aizdevums Es iesaku Kathy Finance Inc, jūs varat sazināties ar uzņēmumu pa e-pastu: (kathyrichardfinance@hotmail.com)
Paldies, ka lasījāt manu liecību, es vēlu veiksmi.
Jūsu,
Elodijs Janiks.
|
| 45773 |
2020-03-23 18:41:17 |
|
Sveiki, visi, kas tur, es ceru, ka jums, puiši, viss ir kārtībā ??? Mani vārdi ir Elodie Yannick kundze, es nācu no Beļģijas Lježas, pirms dažām nedēļām man bija slikta finansiālā situācija, un man bija nepieciešams steidzams aizdevums, lai apmaksātu rēķinus un finansiāli atgrieztos pie manis pašreizējās finansiālās situācijas dēļ. atteicās man dot aizdevumu, tāpēc man neatlika citas iespējas kā meklēt nenodrošinātu aizdevumu tiešsaistē, izpētes laikā es biju krāpšanas upuris un pazaudēju gandrīz EUR 1,250, un es biju vairāk nepatikšanas, un gandrīz atteicās no cerībām saņemt aizdevumu, līdz atradu tiešsaistes ierakstu, un šī ziņa bija Melissa Nicholas kundzes dalīta liecība no Kanzasas štatiem, kas apliecina, kā viņa ieguva 350,000 USD no Kathy Finance Inc., izlasot ziņu, es nolēmu sazināties ar Kathy Finance Inc pa e-pastu: (kathyrichardfinance@hotmail.com) kontaktpersona, kas kopīgota pa pastu, 48 stundu laikā pēc mana pieprasījuma tika apstiprināts mans nenodrošinātais aizdevuma pieprasījums 120,000 euro apmērā, un viņu aizdevuma procentu likme ir 2%, mans aizdevums tika iemaksāts manā bankas kontā bez jebkādas izlaidība.
Es gribu izteikt dziļu pateicību un arī ieteikt tur esošajiem aizdevumu meklētājiem būt ļoti modriem, jo tur ir daudz krāpnieku, kuru vienīgais mērķis ir izkrāpt nevainīgus aizdevuma meklētājus, tāpēc jums, puišiem, jābūt uzmanīgiem un modriem .. tiem kam nepieciešams aizdevums Es iesaku Kathy Finance Inc, jūs varat sazināties ar uzņēmumu pa e-pastu: (kathyrichardfinance@hotmail.com)
Paldies, ka lasījāt manu liecību, es vēlu veiksmi.
Jūsu,
Elodijs Janiks.
|
| 45773 |
2020-03-22 00:45:33 |
|
Sveiki, visi, kas tur, es ceru, ka jums, puiši, viss ir kārtībā ??? Mani vārdi ir Elodie Yannick kundze, es nācu no Beļģijas Lježas, pirms dažām nedēļām man bija slikta finansiālā situācija, un man bija nepieciešams steidzams aizdevums, lai apmaksātu rēķinus un finansiāli atgrieztos pie manis pašreizējās finansiālās situācijas dēļ. atteicās man dot aizdevumu, tāpēc man neatlika citas iespējas kā meklēt nenodrošinātu aizdevumu tiešsaistē, izpētes laikā es biju krāpšanas upuris un pazaudēju gandrīz EUR 1,250, un es biju vairāk nepatikšanas, un gandrīz atteicās no cerībām saņemt aizdevumu, līdz atradu tiešsaistes ierakstu, un šī ziņa bija Melissa Nicholas kundzes dalīta liecība no Kanzasas štatiem, kas apliecina, kā viņa ieguva 350,000 USD no Kathy Finance Inc., izlasot ziņu, es nolēmu sazināties ar Kathy Finance Inc pa e-pastu: (kathyrichardfinance@hotmail.com) kontaktpersona, kas kopīgota pa pastu, 48 stundu laikā pēc mana pieprasījuma tika apstiprināts mans nenodrošinātais aizdevuma pieprasījums 120,000 euro apmērā, un viņu aizdevuma procentu likme ir 2%, mans aizdevums tika iemaksāts manā bankas kontā bez jebkādas izlaidība.
Es gribu izteikt dziļu pateicību un arī ieteikt tur esošajiem aizdevumu meklētājiem būt ļoti modriem, jo tur ir daudz krāpnieku, kuru vienīgais mērķis ir izkrāpt nevainīgus aizdevuma meklētājus, tāpēc jums, puišiem, jābūt uzmanīgiem un modriem .. tiem kam nepieciešams aizdevums Es iesaku Kathy Finance Inc, jūs varat sazināties ar uzņēmumu pa e-pastu: (kathyrichardfinance@hotmail.com)
Paldies, ka lasījāt manu liecību, es vēlu veiksmi.
Jūsu,
Elodijs Janiks.
|
| ELODIE YANNICK |
2020-03-21 02:22:54 |
|
Sveiki, visi, kas tur, es ceru, ka jums, puiši, viss ir kārtībā ??? Mani vārdi ir Elodie Yannick kundze, es nācu no Beļģijas Lježas, pirms dažām nedēļām man bija slikta finansiālā situācija, un man bija nepieciešams steidzams aizdevums, lai apmaksātu rēķinus un finansiāli atgrieztos pie manis pašreizējās finansiālās situācijas dēļ. atteicās man dot aizdevumu, tāpēc man neatlika citas iespējas kā meklēt nenodrošinātu aizdevumu tiešsaistē, izpētes laikā es biju krāpšanas upuris un pazaudēju gandrīz EUR 1250, un es biju vairāk nepatikšanas, un gandrīz atteicās no cerībām saņemt aizdevumu, līdz atradu tiešsaistes ierakstu, un šī ziņa bija Melissa Nicholas kundzes dalīta liecība no Kanzasas štatiem, kas apliecina, kā viņa ieguva 350 000 USD no Kathy Finance Inc., izlasot ziņu, es nolēmu sazināties ar Kathy Finance Inc pa e-pastu: (kathyrichardfinance@hotmail.com) kontaktpersona, kas kopīgota pa pastu, 48 stundu laikā pēc mana pieprasījuma tika apstiprināts mans nenodrošinātais aizdevuma pieprasījums 120 000 euro apmērā, un viņu aizdevuma procentu likme ir 2%, mans aizdevums tika iemaksāts manā bankas kontā bez jebkādas izlaidība.
Es gribu izteikt dziļu pateicību un arī ieteikt tur esošajiem aizdevumu meklētājiem būt ļoti modriem, jo tur ir daudz krāpnieku, kuru vienīgais mērķis ir izkrāpt nevainīgus aizdevuma meklētājus, tāpēc jums, puišiem, jābūt uzmanīgiem un modriem .. tiem kam nepieciešams aizdevums Es iesaku Kathy Finance Inc, jūs varat sazināties ar uzņēmumu pa e-pastu: (kathyrichardfinance@hotmail.com)
Paldies, ka lasījāt manu liecību, es vēlu veiksmi.
Jūsu,
Elodijs Janiks.
|
| TINA BROOKS |
2020-03-18 09:24:03 |
|
Laba diena,
Esmu privāts aizdevējs. Es piešķiru garantijas biznesa aizdevumus, personiskos
Kredīti, Kredīti mājām, Auto Kredīti E.T.C. Es dodu ilgtermiņa aizdevumu
no USD 2 000,00 līdz USD 1 000 000,00 no maksimāli viena līdz piecdesmit gadiem Ar procentu likmi 3% ieinteresētajam pretendentam jānosūta e-pasts :(
tinabrooksloanhome@gmail.com) vai whatsapp (+12293838364), lai iegūtu vairāk informācijas
Vārds
valsts
Nepieciešamā aizdevuma summa
Aizdevuma termiņš
Aizdevuma mērķis
Telefona numurs
Mēneša ienākumi
Statuss
|
| TINA BROOKS |
2020-03-18 09:22:52 |
|
Laba diena,
Esmu privāts aizdevējs. Es piešķiru garantijas biznesa aizdevumus, personiskos
Kredīti, Kredīti mājām, Auto Kredīti E.T.C. Es dodu ilgtermiņa aizdevumu
no USD 2 000,00 līdz USD 1 000 000,00 no maksimāli viena līdz piecdesmit gadiem Ar procentu likmi 3% ieinteresētajam pretendentam jānosūta e-pasts :(
tinabrooksloanhome@gmail.com) vai whatsapp (+12293838364), lai iegūtu vairāk informācijas
Vārds
valsts
Nepieciešamā aizdevuma summa
Aizdevuma termiņš
Aizdevuma mērķis
Telefona numurs
Mēneša ienākumi
Statuss
|
| ADRIAN BAYFORD |
2020-03-17 13:35:11 |
|
Laba diena
Vai jums ir nepieciešams aizdevums visiem mērķiem? Vai jums ir finansiālas problēmas? Bridge Finance tiek garantēta, nodrošinot klientiem finanšu pakalpojumus ar izdevīgu procentu likmi. Mūsu aizdevumi ir vienkārši un ātri. Sazinieties ar mums jau šodien, lai saņemtu nepieciešamo aizdevumu. Mēs varam jūsu budžetam pielīdzināt jebkuru aizdevumu ar procentu likmi 2%. Ja jūs interesē, lūdzu, sazinieties tagad ar (adrianbay0008@gmail.com)
|
| STEVE HOFFMAN |
2020-03-16 10:42:08 |
|
Labdien, dāmas un kungi!
Laipni lūdzam NoviCap finanšu pakalpojumu sniedzējā.
Vai jums steidzami nepieciešams finanšu izrāviens? Vai jums ir nepieciešams aizdevums dažādu iemeslu dēļ? NoviCap piedāvā elastīgas aizdevuma iespējas, kas pielāgotas jūsu vajadzībām.
NoviCap piedāvā dažādas aizdevuma iespējas ikvienam, kam nepieciešama finansiāla palīdzība, ar zemām procentu likmēm - 3% neatkarīgi no tā, vai tas ir biznesa aizdevums, personīgais aizdevums vai aizdevums medicīnas rēķiniem, algas dienas avanss, aprīkojuma finansēšana, hipotēkas aizdevums utt. Pakalpojums ir ātrs, drošs, uzticams. Lai iegūtu papildinformāciju par NoviCap aizdevuma piedāvājumu, sūtiet pastu, izmantojot || novicapserviceprovider@gmail.com || vai rakstiet mums vietnē WhatsApp pa tālruni: +31642117819.
PAR NOVICAP
NoviCap, kas dibināta 2015. gadā, ir viens no lielākajiem aizdevumu tirgiem pasaulē. Daudzi cilvēki, īpaši uzņēmumu īpašnieki, izmanto NoviCap bezmaksas tiešsaistes pakalpojumu, lai atrastu finansējumu, pārlūkojot vairākus aizdevumu produktus no mūsu plašā tīkla kreditēšanas programmām. NoviCap nodrošina finansējumu ātrā, elastīgā un caurspīdīgā veidā, vienlaikus piedāvājot profesionāliem ieguldītājiem iespēju ieguldīt īstermiņa aktīvos, kuru ienesīgums pārsniedz vidējo.
Mēs esam ļoti ātri, uzticami un uzticami, un jūs varat aizņemties no 1000 līdz 50 miljoniem euro. NoviCap ir īstais uzņēmums, ar kuru sazināties, kad jums ir nepieciešams steidzams aizdevums.
Ne vairāk tērējiet savu laiku, cenšoties saņemt aizdevumu no citām finanšu institūcijām vai stresaino banku apmeklējumu laikā. Mūsu pakalpojums ir pieejams visu diennakti - jūs varat saņemt aizdevumu un veikt darījumus jebkurā vietā un vietā, kur jums tas nepieciešams.
Mēs sniedzam 24 stundu pasaules klases aizdevuma pakalpojumus. Jautājumiem / jautājumiem? - Nosūtīt e-pastu uz || novicapserviceprovider@gmail.com || Rakstiet mums vietnē WhatsApp pa tālruni: +31642117819
|
| VILJAMSAS SāRAS KUND |
2020-03-14 09:26:19 |
|
Vai jums ir nepieciešama jebkāda veida finansiāla palīdzība? Privātie aizdevumi? Biznesa aizdevumi? Hipotēkas?
Lauksaimniecības un projektu finansēšana? Mēs izsniedzam aizdevumus ar likmi 3%! Kontaktpersona Persona: Viljamsas Sāras kundze
Sazinieties ar e-pastu: mrssarah990@gmail.com
WhatsApp: +31686130732
|
| VILJAMSAS SāRAS KUND |
2020-03-14 09:07:35 |
|
Vai jums ir nepieciešama jebkāda veida finansiāla palīdzība? Privātie aizdevumi? Biznesa aizdevumi? Hipotēkas?
Lauksaimniecības un projektu finansēšana? Mēs izsniedzam aizdevumus ar likmi 3%! Kontaktpersona Persona: Viljamsas Sāras kundze
Sazinieties ar e-pastu: mrssarah990@gmail.com
WhatsApp: +31686130732
|
| DZINTARA GUNDEGA IRU |
2020-03-13 19:20:06 |
|
Hi everyone. My name is Dzintara Gundega Irusya Lazda i am from Latvia i saw people testified about this company called Patricia Kingsman loan company and it is a good thing i was also a victim of scam 3 times until i found this company called Patricia Kingsman loan company God bear me witness this company is real and legit i am a single mother of 3 kids and i work in 2 places to earn more money for me and my kids this company helped me after in explained to them the company told me not to worry that i was going to receive my loan safely i was afraid cause i was cheated before i thought the same thing was also going to happen to me but i said to my self God knows best. The company told me it was 8 hours to receive loan and i thought about it 8 hours to quick i said okay the loan amount i was looking for was 350.000.00 Euro and after i did all the company asked me to do and i sent my required information i received my loan in 8 hours time as stated. When i received my loan i said to my self God is the one who made me found this company and i have already introduced this company to 1 of my friend who also needs help so anyone here or anywhere you see this post if you need a real loan this is the only company that can help without any doubt of fail i am happy everyday because of this company and God i pray God make Mrs Patricia Kingsman last in this world so she can continue to help people in need. I contacted this company via mail which is patriciakingsman.loans2016@gmail.com. Thanks to anyone who reads my message and post.
|
| DANIELS CHRYSANTHOS |
2020-03-13 19:19:43 |
|
Sveiki visiem
Mans vārds ir Daniels Chrysanthos, es esmu no Latvijas, un esmu meklējis aizdevumu tiešsaistē, un viss, kas man ir, ir scammers, bet es atklāju šo aizdevumu sabiedrību Patricia Kingsman aizdevumu sabiedrību un esmu redzējis, ka cilvēki tiešsaistē liecina par labiem darbiem, tāpēc es nolēmu izmēģināt ja es atkal būšu laimīgs, tāpēc es pieteicos aizdevumam 350 000,00 eiro un aizdevuma aizdevējs Patricia Kingsman apliecināja man, ka 8 stundu laikā mans kredīts būs manā bankas kontā, tāpēc šodien, kad strādāju, es redzēju, ka mana banka man rakstīja ziņojumu ka manā kontā ir daži 350 000,00 eiro naudas līdzekļi, un es pateicos Patricia Kingsman, jo viņa ir reāla, tāpēc, ja jums ir nepieciešams tiešsaistes aizdevums, lūdzu, netiktu scammed kā man piemēro šo uzņēmumu, jo viņa ir vienīgā reālā kompānija, kas sniedz aizdevumu tiešsaistē. Viņu pasta adrese ir patriciakingsman.loans2016@gmail.com
|
| NASTKA PIPENE ZELSAN |
2020-03-13 19:18:11 |
|
Laba diena visiem šajā vietnē
Mans vārds ir Nastka Pipene Zelsana, es esmu no Latvijas un dodos prom no Liepājas pilsētas. Es vēlos izmantot šo iespēju, lai pirms dažām nedēļām internetā rakstītu par Patrīcija Kingsmanas kundzi, man bija nepieciešams aizdevums, un mani viltoja apmēram 12 000,00 eiro no viltus aizdevējiem. tāpēc kādu dienu es nolēmu atkal meklēt aizdevumu, jo aizdevums bija ļoti svarīgs manam biznesam, tad es atradu Patricia Kingsman kundzi un redzēju, ka tik daudz cilvēku liecināja par viņas uzņēmumu, un es nebiju pārliecināta, ka viņas aizdevums ir likumīgs, bet es nolēmu dot es to izmēģināju, un es pieteicos uz aizdevuma summu 325 000,00 eiro. Viņa man teica, ka viss, kas man jādara, ieskaitot maksu, kas man sākumā bija jāieskaita, es domāju, ka tā ir krāpniecība, bet es to izmēģināju, jo redzēju, ka cilvēki par viņu arī liecināja labos darbus, ka viņa ir ļoti laipna un izpalīdzīga, tāpēc, noguldot manam aizdevumam nepieciešamo naudu, viņa man pārliecināja, ka aizdevumu saņemšu mazāk nekā pēc 8 stundām vai vēlākais pēc 8 stundām savā bankas kontā, es teicu, ka labi, un es gaidīju tikai vakar es saņēmu ziņojumu no savas bankas t cepure Manā bankas kontā ir ieskaitīta summa 325 000,00 eiro, tāpēc es sazinājos ar viņu un pastāstīju viņai par to, un viņa priecājās, ka esmu saņēmusi savu aizdevumu. Un es apsolu sev, ka ikviens, kurš man palīdzēja, es viņai visā visā dalīšos ar viņas vārdu, par viņas lielo palīdzību. Tātad ikviens Dienvidāfrikā vai visā pasaulē, ja jums ir nepieciešams likumīgs aizdevums, sazinieties ar Patricia Kingsman kundzi, jo viņa ir legit, un es tagad zinu, pat ja ir viltoti cilvēki, kuri pieprasa aizdevumu aizdevējam, Patricia Kingsman kundze ir Dieva sūtīta. Ikviens, kam nepieciešams ātrais aizdevums, sazinās ar viņu, izmantojot Whatsapp vai pa pastu, bet es ar viņu sazinājos, izmantojot Whatsapp, jo tas notiek ātrāk. Whatsapp numurs ir +1 (575) -655-0066, un uzņēmuma e-pasta adrese ir patriciakingsman.loans2016@gmail.com. Paldies un sveicieni visiem, kas lasīja manu ziņu.
|
| PATRICIA KINGSMAN |
2020-03-13 19:17:32 |
|
Mans vārds ir Patricia Kingsman kundze, mēs esam 2020. gada jaunie likumīgie aizdevuma aizdevēji, un mēs gribam palīdzēt jebkurai iestādei, kurai nepieciešama finansiāla palīdzība, sākot ar $ 500,000.00 un $ 5,000,000.00, un mēs arī piešķiram aizdevumus eiro virs tā, lai, ja jums ir nepieciešama palīdzība, lūdzu, sūtiet mums ir e-pasts uz: patriciakingsman.loans2016@gmail.com, lai jūsu aizdevuma darījums varētu notikt tagad, kad nākamajos 8 stundās jūs saņemsiet savu aizdevumu, tas ir ātrs pārskaitījums un ir drošs bez kavēšanās. Tātad e-pasts: patriciakingsman.loans2016@gmail.com, ja interesē
E-pasts: patriciakingsman.loans2016@gmail.com
|
| MD / IZPILDDIREKTORS |
2020-02-28 22:28:19 |
|
Sveiki,
aizdevuma piedāvājums šeit, vai jūs interesē? pieteikties tagad.
Vai jūsu banka ir noraidījusi jūs? Vai jums ir slikta kredītkarte? Vai jums nav samaksāti rēķini? Vai jums ir parāds? Vai jums ir nepieciešams izveidot biznesu? Vai jums ir nepieciešams aizdevums?
Mums ir 3% procentu likmes aizdevums jums, un aizdevuma diapazons no 10 000,00 euro līdz 50 000 000,00 eiro.
Nepieciešama informācija:
1. Pilns vārds: .........
2. Kontaktadrese: ......
3. Valsts / pilsēta: ...........
4. Valsts: .........
5. Nepieciešamā summa: ..............
6. Aizdevuma termiņš: ..........
7. Tālruņa numurs: ..........
8. Mēneša saņemšana: ...........
Pa e-pastu: softeasyloanlimited998@gmail.com
1. stāvs, 6 Lapps Quay, Korka,
Īrija. (T / A Millex Ltd. Nr. 314738)
Tālr .: +353 21 242 7054
Ar cieņu,
Džeimsa pilsētas kungs
MD / izpilddirektors
|
| D / IZPILDDIREKTORS |
2020-02-28 22:20:41 |
|
Sveiki,
aizdevuma piedāvājums šeit, vai jūs interesē? pieteikties tagad.
Vai jūsu banka ir noraidījusi jūs? Vai jums ir slikta kredītkarte? Vai jums nav samaksāti rēķini? Vai jums ir parāds? Vai jums ir nepieciešams izveidot biznesu? Vai jums ir nepieciešams aizdevums?
Mums ir 3% procentu likmes aizdevums jums, un aizdevuma diapazons no 10 000,00 euro līdz 50 000 000,00 eiro.
Nepieciešama informācija:
1. Pilns vārds: .........
2. Kontaktadrese: ......
3. Valsts / pilsēta: ...........
4. Valsts: .........
5. Nepieciešamā summa: ..............
6. Aizdevuma termiņš: ..........
7. Tālruņa numurs: ..........
8. Mēneša saņemšana: ...........
Pa e-pastu: softeasyloanlimited998@gmail.com
1. stāvs, 6 Lapps Quay, Korka,
Īrija. (T / A Millex Ltd. Nr. 314738)
Tālr .: +353 21 242 7054
Ar cieņu,
Džeimsa pilsētas kungs
MD / izpilddirektors
|
| VILJAMSAS SāRAS KUN |
2020-02-28 22:19:49 |
|
Vai jums ir nepieciešama jebkāda veida finansiāla palīdzība? Privātie aizdevumi? Biznesa aizdevumi? Hipotēkas?
Lauksaimniecības un projektu finansēšana? Mēs izsniedzam aizdevumus ar likmi 3%! Kontaktpersona Persona: Viljamsas Sāras kundze
Sazinieties ar e-pastu: mrssarah990@gmail.com
WhatsApp: +31686130732
|
| CLAUDIA KLEIN |
2020-02-27 18:23:03 |
|
Sveicināti un sveicināti Spotcap globālo aizdevumu pakalpojumos. Mans vārds ir Klaudija Kleina, es esmu aizdevējs un arī aizdevumu konsultants.
Vai jums ir nepieciešams finanšu atbalsts? vai jums ir nepieciešams aizdevums dažādiem mērķiem? ja jūsu atbilde ir apstiprinoša, es ieteiktu jums sazināties ar manu firmu, izmantojot | spotcapglobalservices@gmail.com | vai nosūtiet mums ziņojumu vietnē WhatsApp: +4915758108767 | un jūsu kontā ir aizdevums 24 stundu laikā, jo mēs piedāvājam izcilus aizdevuma pakalpojumus visā pasaulē.
Mēs piedāvājam visa veida aizdevumu pakalpojumus (individuālais aizdevums, biznesa aizdevums un daudzi citi), mēs piedāvājam gan ilgtermiņa, gan īstermiņa aizdevumus, kā arī jūs varat aizņemties līdz 15 miljoniem eiro. Mans uzņēmums palīdzēs sasniegt dažādus mērķus ar plašu aizdevuma produktu klāstu.
Mēs zinām, ka likumīga aizdevuma saņemšana vienmēr ir bijusi milzīga problēma Personām, kurām ir finansiālas problēmas un kurām ir nepieciešams risinājums, daudziem cilvēkiem ir tik grūti iegūt kapitāla aizdevumu no savām vietējām bankām vai citām finanšu institūcijām augsto interešu dēļ. likme, nepietiekams nodrošinājums, parāda un ienākumu attiecība, zems kredītreitings vai kādi citi iemesli
Vairs nav gaidīšanas laika vai stresaino bankas apmeklējumu. Mūsu pakalpojums ir pieejams visu diennakti - jūs varat saņemt aizdevumu un veikt darījumus jebkurā vietā un vietā, kur jums tas nepieciešams
Mēs sniedzam 24 stundu pasaules klases aizdevuma pakalpojumus. Jautājumiem / jautājumiem? - Nosūtīt e-pastu uz | spotcapglobalservices@gmail.com | vai nosūtiet mums ziņojumu vietnē WhatsApp: +4915758108767 | & Saņemiet atbildi vienā mirklī.
Jūsu ģimenei, draugiem un kolēģiem nav jāzina, ka jums ir maz naudas, vienkārši rakstiet mums un jūs saņemsit aizdevumu.
Jūsu finansiālā brīvība ir jūsu rokās!
|
| NAVICAP |
2020-02-20 16:28:46 |
|
Labdien, dāmas un kungi!
Laipni lūdzam NoviCap finanšu pakalpojumu sniedzējā
(novicapserviceprovider@gmail.com)
Nepieciešams ātrs finansējums jūsu biznesam? NoviCap piedāvā elastīgas kredītlīnijas, faktūrrēķinu un termiņa aizdevuma iespējas, kas pielāgotas jūsu vajadzībām.
Tiešsaistes kreditēšana NoviCap piedāvā aizdevumus auto remontam, mājas uzlabošanai un praktiski visam citam ar zemām likmēm tiem, kuriem steidzami nepieciešama finansiāla palīdzība.
PAR NOVICAP
NoviCap, kas dibināta 2015. gadā, ir viens no lielākajiem aizdevumu tirgiem pasaulē. Daudzi cilvēki, īpaši uzņēmumu īpašnieki, izmanto NoviCap bezmaksas tiešsaistes pakalpojumu, lai atrastu finansējumu, pārlūkojot vairākus aizdevumu produktus no mūsu plašā tīkla kreditēšanas programmām. NoviCap nodrošina finansējumu ātrā, elastīgā un caurspīdīgā veidā, vienlaikus piedāvājot profesionāliem ieguldītājiem iespēju ieguldīt īstermiņa aktīvos, kuru ienesīgums pārsniedz vidējo.
KREDĪTU VEIDI
NoviCap piedāvā dažādas aizdevuma iespējas, tostarp:
• Biznesa kredītlīnija
• SBA aizdevums
• Īstermiņa aizdevums
• Tirgotāju naudas avanss
• Biznesa termiņa aizdevums
• Personīgais aizdevums
• Iekārtu finansēšana
• Komerciālā hipotēka
• Debitoru finansēšana
• Sākuma kredīts
• Biznesa iegādes aizdevums
Ja jums nepieciešami finanšu risinājumi, lai uzlabotu apgrozāmo kapitālu, NoviCap ir tā vieta, kur doties.
FAKTORĒŠANA
√Jūs varat aizņemties no 2000 līdz 50 miljoniem eiro
√Izmaksā 48 stundās
√Ierobežojiet savu atkarību no bankas
√Nav slēptu maksu vai nosacījumu
Ja jums ir nepieciešams steidzams aizdevums, jums nav par daudz jāuztraucas, vienkārši nosūtiet mums pastu, izmantojot;
E-pasts: novicapserviceprovider@gmail.com
|
| LABAS ZIŅAS |
2020-02-19 11:25:49 |
|
LABAS ZIŅAS
* Vai jums ir nepieciešams steidzams aizdevums? Mēs piedāvājam visu veidu aizdevumus
* Vai jums patīk saņemt savu aizdevumu 48 stundu laikā? ja JĀ sazinieties ar mums tagad.
* Aizdevuma ikmēneša atmaksa sākas (4) mēnešus pēc jūsu aizdevuma saņemšanas
* Mēs izsniedzam aizdevumu ar procentu likmi 3%
* Aizdevuma termiņa atmaksa ir no (1-30 gadi)
Lai iegūtu papildinformāciju par aizdevuma pieteikuma formu, lūdzu, sazinieties ar mums tagad
E-pasts: pedroazevedo532@gmail.com
Ar cieņu
Pedro Azevedo
|
| KREDīTA |
2020-02-16 16:21:33 |
|
Cienījamie kredīta meklētāji.
Vai jums ir kādas finansiālas grūtības? Vai vēlaties sākt savu biznesu? Šī aizdevumu kompānija ir izveidota cilvēktiesību organizācijas visā pasaulē, kuras vienīgais mērķis ir palīdzēt nabadzīgajiem un cilvēkiem ar finansiālām dzīves grūtībām. Ja vēlaties pieteikties aizdevumam, sazinieties ar mums, izmantojot sīkāku informāciju pa e-pastu: elenanino0007@gmail.com
Vārds:
Nepieciešamā aizdevuma summa:
Kredīta ilgums:
Mobilā telefona numurs:
Paldies un Dievs svētī
KONFIDENCIJA
Jeļena
|
| VAI JUMS IR NEPIEC |
2020-02-13 16:58:27 |
|
Vai jūs esat biznesa vīrietis vai sieviete? Vai jums ir nepieciešami līdzekļi sava biznesa uzsākšanai? Vai jums ir nepieciešams aizdevums, lai nokārtotu savu parādu vai samaksātu rēķinus vai uzsāktu jauku biznesu? Vai jums ir nepieciešami līdzekļi sava projekta finansēšanai? Mēs piedāvājam garantēta aizdevuma pakalpojumus jebkura apjoma un jebkurai pasaules daļai (privātpersonām, uzņēmumiem, nekustamo īpašumu darījumiem un korporatīvajām struktūrām) ar mūsu lielisko procentu likmi 2%. Lai saņemtu pieteikumu un iegūtu vairāk informācijas, nosūtiet atbildes uz šo e-pasta adresi: Kplendes@outlook.com Paldies un gaidīsim tūlītēju atbildi.
|
| WENDY THOMAS |
2020-02-10 17:28:12 |
|
Sveiki, visi, kas tur, es ceru, ka jums, puiši, viss ir kārtībā ??? Mani vārdi ir Vendija Tomasa kundze, es nācu no Aidaho, pirms dažām nedēļām mani iesūca sliktā finansiālā situācija, un man bija nepieciešams steidzams aizdevums, lai samaksātu rēķinus un finansiāli atgrieztos pie kājām, jo mana pašreizējā finansiālā stāvokļa dēļ mana banka atteicās lai man piešķirtu aizdevumu, tāpēc man neatlika citas iespējas kā meklēt nenodrošinātu aizdevumu tiešsaistē. Pētījuma laikā es biju krāpšanas upuris un pazaudēju gandrīz USD 2350, un es biju vairāk nepatikšanas, un es gandrīz devu cerības saņemt aizdevumu līdz brīdim, kad atradu tiešsaistes ierakstu, bija ieraksts par kopīgu Christina kundzes no Pensilvānijas štata liecībām, kas apliecina, kā viņš, pēc ziņas izlasīšanas, no Tamara Finance Inc. ieguva 180 000 USD, es nolēmu sazināties ar Tamara Finance Inc., izmantojot e-pasts: (tamarajimmyfinance@hotmail.com) kontaktpersona, kas kopīgota ziņojumā, mans nenodrošinātais aizdevuma pieprasījums USD 120 000 apmērā tika apstiprināts 48 stundu laikā pēc mana pieprasījuma un viņu aizdevuma procentu likme ir 2%, mans aizdevums tika samaksāts uz manu bankas kontu bez izlaiduma.
Es gribu izteikt dziļu pateicību un arī ieteikt tur esošajiem aizdevumu meklētājiem būt ļoti modriem, jo tur ir daudz krāpnieku, kuru vienīgais mērķis ir izkrāpt nevainīgus aizdevuma meklētājus, tāpēc jums, puišiem, jābūt uzmanīgiem un modriem .. tiem kam nepieciešams aizdevums Es iesaku Tamara Finance Inc, jūs varat sazināties ar uzņēmumu pa e-pastu: (tamarajimmyfinance@hotmail.com)
Paldies, ka lasījāt manu liecību, es vēlu veiksmi.
Jūsu,
Vendijs Tomass.
|
| CLAUDIA KLEIN |
2020-02-06 19:25:07 |
|
Sveicināti un sveicināti Spotcap globālo aizdevumu pakalpojumos. Mans vārds ir Klaudija Kleina, es esmu aizdevējs un arī aizdevumu konsultants.
Vai jums 2020. gadā jums ir ļoti nepieciešams finansiāls pastiprinājums? vai jums ir nepieciešams aizdevums dažādiem mērķiem? ja jūsu atbilde ir apstiprinoša, es ieteiktu jums sazināties ar manu firmu, izmantojot | spotcapglobalservices@gmail.com | vai nosūtiet mums ziņojumu vietnē WhatsApp: +4915758108767 | un jūsu kontā ir aizdevums 24 stundu laikā, jo mēs piedāvājam izcilus aizdevuma pakalpojumus visā pasaulē.
Mēs piedāvājam visa veida aizdevumu pakalpojumus (individuālais aizdevums, biznesa aizdevums un daudzi citi), mēs piedāvājam gan ilgtermiņa, gan īstermiņa aizdevumus, kā arī jūs varat aizņemties līdz 15 miljoniem eiro. Mans uzņēmums palīdzēs sasniegt dažādus mērķus ar plašu aizdevuma produktu klāstu.
Mēs zinām, ka likumīga aizdevuma saņemšana vienmēr ir bijusi milzīga problēma Personām, kurām ir finansiālas problēmas un kurām ir nepieciešams risinājums, daudziem cilvēkiem ir tik grūti iegūt kapitāla aizdevumu no savām vietējām bankām vai citām finanšu institūcijām augsto interešu dēļ. likme, nepietiekams nodrošinājums, parāda un ienākumu attiecība, zems kredītreitings vai kādi citi iemesli
Vairs nav gaidīšanas laika vai stresaino bankas apmeklējumu. Mūsu pakalpojums ir pieejams visu diennakti - jūs varat saņemt aizdevumu un veikt darījumus jebkurā vietā un vietā, kur jums tas nepieciešams
Mēs sniedzam 24 stundu pasaules klases aizdevuma pakalpojumus. Jautājumiem / jautājumiem? - Nosūtīt e-pastu uz | spotcapglobalservices@gmail.com | vai nosūtiet mums ziņojumu vietnē WhatsApp: +4915758108767 | & Saņemiet atbildi vienā mirklī.
Jūsu ģimenei, draugiem un kolēģiem nav jāzina, ka jums ir maz naudas, vienkārši rakstiet mums un jūs saņemsit aizdevumu.
Jūsu finansiālā brīvība ir jūsu rokās!
|
| MARIA BAV |
2020-02-05 16:38:44 |
|
GATAVA MANA Liecība, LABAS DIENAS MANI LATVIEŠU CILVĒKI
TESTIMONIJA, KĀ SAŅEMU AIZDEVUMU NOPIRKT MĀJU NO ĪSTAS UN ĪSTAS AIZDEVUMU SABIEDRĪBAS, KAS SAZINĀTA Ranner aizdevumu firmā. ES ESMU ĻOTI LAIMĪGA ŠODIEN UN DIEVA BLESS PILSĒTU BANKAS UZŅĒMUMS.
, (citybankloan123@gmail.com)
Mani sauc Katica. Esmu no LATVIJAS. Pēdējos 5 mēnešus meklēju īstu aizdevumu izsniedzēju, lai iegādātos māju
viss, ko es saņēmu, bija daudz izkrāpšanu, kas man lika viņiem uzticēties un beigās
dienā viņi visu paņēma manu naudu, neko pretī nedodot
mana cerība tika zaudēta, es apjuku un sarūgtināju, es nekad negribēju kaut ko darīt ar aizdevumu kompānijām internetā, tāpēc devos aizņemties naudu no
draugs, es viņai izstāstīju visu notikušo un viņa teica, ka viņa man var palīdzēt
viņa zina aizdevumu kompāniju, kas var man palīdzēt ar jebkuru aizdevuma summu
man vajadzēja ar ļoti zemu 2% procentu likmi, ka viņa tikko ieguva
aizdevumu no viņiem, viņa mani vadīja, kā pieteikties aizdevumam, es to arī izdarīju
tāpat kā viņa man teica, es pieteicos kopā ar viņiem pa e-pastu: (citybankloan123@gmail.com), es nekad neticēju, bet es mēģināju un
vislielākais pārsteigums, ka es saņēmu aizdevumu 24 stundu laikā, es nespēju noticēt,
Es atkal esmu laimīga un bagāta, un pateicos Dievam, ka šāds aizdevums
tādi uzņēmumi joprojām pastāv pēc šīm izkrāpšanām visur,
lūdzu, iesaku visiem tur esošajiem, kuriem nepieciešams aizdevums
(citybankloan123@gmail.com) viņi nekad jūs nepievils, un
Jūsu dzīve mainīsies, kā to izdarīja mana. Ātri šodien sazinieties (citybankloan123@gmail.com) un saņemiet no viņiem aizdevumu. Dievs, svētījiet pilsētas bankas aizdevumu firmu par viņu īsto aizdevuma piedāvājumu.
Pārliecinieties, ka sazinieties ar pilsētas bankas aizdevumu firmu, lai saņemtu savu aizdevumu, jo es veiksmīgi saņēmu savu aizdevumu no šī uzņēmuma bez stresa.
|
| MARIA BAV |
2020-02-05 16:19:55 |
|
GATAVA MANA Liecība, LABAS DIENAS MANI LATVIEŠU CILVĒKI
TESTIMONIJA, KĀ SAŅEMU AIZDEVUMU NOPIRKT MĀJU NO ĪSTAS UN ĪSTAS AIZDEVUMU SABIEDRĪBAS, KAS SAZINĀTA Ranner aizdevumu firmā. ES ESMU ĻOTI LAIMĪGA ŠODIEN UN DIEVA BLESS PILSĒTU BANKAS UZŅĒMUMS.
, (citybankloan123@gmail.com)
Mani sauc Katica. Esmu no LATVIJAS. Pēdējos 5 mēnešus meklēju īstu aizdevumu izsniedzēju, lai iegādātos māju
viss, ko es saņēmu, bija daudz izkrāpšanu, kas man lika viņiem uzticēties un beigās
dienā viņi visu paņēma manu naudu, neko pretī nedodot
mana cerība tika zaudēta, es apjuku un sarūgtināju, es nekad negribēju kaut ko darīt ar aizdevumu kompānijām internetā, tāpēc devos aizņemties naudu no
draugs, es viņai izstāstīju visu notikušo un viņa teica, ka viņa man var palīdzēt
viņa zina aizdevumu kompāniju, kas var man palīdzēt ar jebkuru aizdevuma summu
man vajadzēja ar ļoti zemu 2% procentu likmi, ka viņa tikko ieguva
aizdevumu no viņiem, viņa mani vadīja, kā pieteikties aizdevumam, es to arī izdarīju
tāpat kā viņa man teica, es pieteicos kopā ar viņiem pa e-pastu: (citybankloan123@gmail.com), es nekad neticēju, bet es mēģināju un
vislielākais pārsteigums, ka es saņēmu aizdevumu 24 stundu laikā, es nespēju noticēt,
Es atkal esmu laimīga un bagāta, un pateicos Dievam, ka šāds aizdevums
tādi uzņēmumi joprojām pastāv pēc šīm izkrāpšanām visur,
lūdzu, iesaku visiem tur esošajiem, kuriem nepieciešams aizdevums
(citybankloan123@gmail.com) viņi nekad jūs nepievils, un
Jūsu dzīve mainīsies, kā to izdarīja mana. Ātri šodien sazinieties (citybankloan123@gmail.com) un saņemiet no viņiem aizdevumu. Dievs, svētījiet pilsētas bankas aizdevumu firmu par viņu īsto aizdevuma piedāvājumu.
Pārliecinieties, ka sazinieties ar pilsētas bankas aizdevumu firmu, lai saņemtu savu aizdevumu, jo es veiksmīgi saņēmu savu aizdevumu no šī uzņēmuma bez stresa.
|
| SCOTT MCGRATH |
2020-02-04 14:18:32 |
|
Es esmu privāta aizdevēja un investors. Nepieciešams likumīgs, godīgs, cienījams un ātrs aizdevums? Es varu jums palīdzēt ar 100% garantiju aizdevumiem, es piedāvāju 3% aizdevumus uzņēmumiem un privātpersonām, kā arī finansējam visa veida projektus. Lai iegūtu papildinformāciju, sazinieties ar mums pa e-pastu: royalbankofscottland170@gmail.com
Nosūtiet mums e-pastu: royalbankofscottland170@gmail.com
Ar laba vēlējumiem
scott mcgrath
|
| ELIZABETH |
2020-01-29 02:14:52 |
|
LENDING-TREE grupa INC
Vai esat izvēlējies, kur saņemt kredītus?
Aizdevums, lai viegli nomaksātu savu parādu?
Aizdevums tāda biznesa uzsākšanai, kuru vēlaties veikt?
Aizdevums izglītības vajadzībām?
Aizdevums dzīvokļa iegādei?
Aizdevums šīs sapņu automašīnas iegādei?
Vairs nemeklējiet vairāk, AIZDEVUMA KOKS INC piedāvā aizdevumus
Nav slēptu maksājumu no 1 000 līdz 20 000 000 EUR / USD / POUNDS
Ar ļoti zemu līdzdalības līmeni - 3%
Mēs esam izveidojuši kreditēšanas un piegādes tīklu
finansiāla palīdzība klientiem visā pasaulē.
Mēs cenšamies saglabāt savu izcilības līmeni
Piedāvājot mūsu pakalpojumus jebkurā diennakts laikā.
Mēs piešķiram aizdevumu tiem, kam nepieciešama finansiāla palīdzība no 1 līdz
20 gadi
Mūsu pakalpojumi ietver arī
. reāls finansējums
. nekustamā īpašuma investors,
. celtniecības aizdevumi,
. uzņēmējdarbības uzsākšanas aizdevumi,
. mājokļa aizdevumi
. Patēriņa aizdevumi,
. FHA aizdevumi,
. personīgie aizdevumi,
. auto aizdevumi un
utt. Ja jums ir nepieciešams aizdevums vai finansiāla palīdzība, sazinieties ar mums
e-pasts: lendingtreegroupinc@gmail.com
e-pasts: lending-tree@outlook.com
WhatsApp: +1 213 419 2419
Ar siltu apsvēršanu
|
| MR. RICHARD COSMOS |
2020-01-26 10:37:28 |
|
Vai jūs meklējat steidzamu aizdevumu? Vai jums ir liegts aizdevums no jūsu bankas vai jebkuras finanšu firmas? Vai jums nepieciešama finansiāla palīdzība Vai jums ir nepieciešams aizdevums, lai nomaksātu rēķinus vai nopirktu māju, vai arī lai konsolidētu savu parādu un būtu bez parādiem? Vai vēlaties izveidot savu biznesu un jums nepieciešama finanšu aizdevuma palīdzība? Sazinieties ar mums pa e-pastu: (richardcosmos5@gmail.com)
Piedāvājiet steidzamus aizdevumus.
|
| CLAUDIA KLEIN |
2020-01-25 03:23:14 |
|
Sveicināti un sveicināti Spotcap globālo aizdevumu pakalpojumos. Mans vārds ir Klaudija Kleina, es esmu aizdevējs un arī aizdevumu konsultants.
Vai jums ir nepieciešams finanšu atbalsts? vai jums ir nepieciešams aizdevums dažādiem mērķiem? ja jūsu atbilde ir apstiprinoša, es ieteiktu jums sazināties ar manu firmu, izmantojot | spotcapglobalservices@gmail.com | vai nosūtiet mums ziņojumu vietnē WhatsApp: +4915758108767 | un jūsu kontā ir aizdevums 24 stundu laikā, jo mēs piedāvājam izcilus aizdevuma pakalpojumus visā pasaulē.
Mēs piedāvājam visa veida aizdevumu pakalpojumus (individuālais aizdevums, biznesa aizdevums un daudzi citi), mēs piedāvājam gan ilgtermiņa, gan īstermiņa aizdevumus, kā arī jūs varat aizņemties līdz 15 miljoniem eiro. Mans uzņēmums palīdzēs sasniegt dažādus mērķus ar plašu aizdevuma produktu klāstu.
Mēs zinām, ka likumīga aizdevuma saņemšana vienmēr ir bijusi milzīga problēma Personām, kurām ir finansiālas problēmas un kurām ir nepieciešams risinājums, daudziem cilvēkiem ir tik grūti iegūt kapitāla aizdevumu no savām vietējām bankām vai citām finanšu institūcijām augsto interešu dēļ. likme, nepietiekams nodrošinājums, parāda un ienākumu attiecība, zems kredītreitings vai kādi citi iemesli
Vairs nav gaidīšanas laika vai stresaino bankas apmeklējumu. Mūsu pakalpojums ir pieejams visu diennakti - jūs varat saņemt aizdevumu un veikt darījumus jebkurā vietā un vietā, kur jums tas nepieciešams
Mēs sniedzam 24 stundu pasaules klases aizdevuma pakalpojumus. Jautājumiem / jautājumiem? - Nosūtīt e-pastu uz | spotcapglobalservices@gmail.com | vai nosūtiet mums ziņojumu vietnē WhatsApp: +4915758108767 | & Saņemiet atbildi vienā mirklī.
Jūsu ģimenei, draugiem un kolēģiem nav jāzina, ka jums ir maz naudas, vienkārši rakstiet mums un jūs saņemsit aizdevumu.
Jūsu finansiālā brīvība ir jūsu rokās!
|
| MR PENDELIS |
2020-01-22 23:25:34 |
|
Liecība par to, kā es beidzu savas finansiālās rūpes
Sveiki visi, mēs izsniedzam aizdevumus privātpersonām, uzņēmumiem un sadarbības iestādēm. Uzņēmējdarbības aizdevumi, kas finansē lauksaimniecību un projektus. Es esmu Klensijas Deksteres kundze. Es dzīvoju Floridā un šodien esmu laimīga sieviete. , Dievsbīstams vīrietis. (TAS PATIESI) sazinieties pa e-pastu: pwloancompany484@gmail.com
Ar laba vēlējumiem
|
| SUSAN BENSON |
2020-01-22 09:42:58 |
|
Sveiki, dāmas un kungi! Vai jums steidzami nepieciešams personīgais aizdevums vai komerciālie aizdevumi vai aizdevums, lai sāktu projektu vai iegādātos māju vai automašīnu, vai arī jums ir nepieciešams aizdevums kādam citam mērķim? Ja jā, es ieteiktu jums sazināties ar Sunshine Financial Group, izmantojot {Email: sunshinefinancialgroupinc@gmail.com} vai {WhatsApp: +447903159998}.
Sunshine Financial Group ir visaptveroša finanšu pakalpojumu firma, kas ir apņēmusies palīdzēt jums uzlabot jūsu ilgtermiņa finansiālos panākumus. Mūsu pielāgotās programmas ir izstrādātas, lai palīdzētu augt, aizsargāt un saglabāt jūsu bagātību, nodrošinot personalizētus pakalpojumus un zināšanas.
Iemesls, kāpēc jums vajadzētu sazināties ar Sunshine Financial Group;
- Jūs varat pieteikties aizdevumam jebkurā laikā un vietā, sev ērtā laikā
- Jūs varat aizņemties no 1000 eiro līdz 20 miljoniem eiro
- Saņemiet aizdevumu 24 stundu laikā
- Nav slēptu maksu.
- gada procentu likme 3%
- Jums ir iespēja izvēlēties atmaksas datumu katru nedēļu, mēnesi vai gadu uz laiku no 1 līdz 30 gadiem.
-Jūsu aizdevuma darījums pie mums ir 100% drošs.
Ja jums ir bijis tik grūti iegūt kapitāla aizdevumu no jūsu vietējām bankām vai citiem finanšu institūtiem, neuztraucieties, jo šis uzņēmums ir palīdzējis daudziem cilvēkiem un organizācijām, kas ir saskārušās ar finansiālām grūtībām visā pasaulē. Kad piesakāties Sunshine Financial Group, jūs piesakāties pie uzticama uzņēmuma, kas rūpējas par jūsu finansēšanas vajadzībām. Par visu procesu jūs parūpēsies.
Ja jums ir nepieciešams steidzams aizdevums, lūdzu, rakstiet uz e-pastu vai Tālāk norādīto numuru, lai iegūtu vairāk informācijas par aizdevumu.
E-pasta kontaktpersona: (sunshinefinancialgroupinc@gmail.com)
WhatsApp kontaktinformācija: +447903159998
Piemērots aizdevums visiem
|
| JHHBH |
2020-01-20 12:45:18 |
|
Loan To Consolidate Your Debt At 1.0%? Or A Personal Loans * Business Loans etc. Interested Parties Should Contact Us For More Information Through Via E-mail: SuiteCapitals@gmail.com ( SuiteCapitals@post.com ) We Offers Financial Consulting To Client, Companies Seeking Debt / Loan Financing And Seeking For Working Capital To Start A New Business Or To Expand Existing Business. Interested Parties Should Contact Us For More Information Through Via E-mail: SuiteCapitals@gmail.com ( SuiteCapitals@post.com )
|
| HAPPY DAY |
2020-01-14 13:47:04 |
|
Sveiki, visi, šeit nāk pieejamais aizdevuma piedāvājums, kas mainīs jūsu dzīvi uz visiem laikiem, un testaments tam, kā es saņēmu aizdevumu, lai mainītu savas nāvējošās ģimenes dzīvi. Mani sauc Clancy Dexter. Es dzīvoju ASV Floridā un vai šodien esmu laimīga sieviete? Es nodomāju sev, ka jebkurš aizdevuma aizdevējs varētu mainīt Broke un manas ģimenes dzīvi, es atsaukšos uz tiem, kuri meklē aizdevumu. Viņi deva man un manai ģimenei laimi. Man bija vajadzīgs USD 250 000,00 aizdevums, lai atkal sāktu dzīvi kā atraitne ar trim bērniem. Es devos uz šo uzņēmumu, kurš aizdeva godīgu un dievišķīgu tiešsaistes aizdevumu, kas man palīdzēja iegūt aizdevumu USD 250 000,00. . Dolāri, tie patiesībā ir Dieva baiļu cilvēki, kas strādā ar cienījamu aizdevumu firmu. Ja jums ir nepieciešams aizdevums un esat 100% pārliecināts par atmaksu, lūdzu, sazinieties ar viņiem un dariet viņiem zināmu, ka Klensijas kundze jūs nosūtīja jums. Sazinieties ar e-pastu:
happyday99loanfirm@gmail.com
|
| MR. RICHARD COSMOS |
2020-01-12 13:50:59 |
|
Vai jūs meklējat steidzamu aizdevumu? Vai jūsu bankā vai citā finanšu uzņēmumā tika noraidīts aizdevums? Vai jums nepieciešama finansiāla palīdzība Vai jums ir nepieciešams aizdevums, lai apmaksātu rēķinus, nopirktu māju vai konsolidētu parādus un bez parādiem? Vai vēlaties atrast savu biznesu un nepieciešama finanšu aizdevuma palīdzība? Sazinieties ar mums pa: (richardcosmos5@gmail.com)
Piedāvājiet aizdevumu.
|
| ILLUMINATI ORD |
2020-01-11 16:54:24 |
|
Sveicieni no ILLUMINATI LIELĀ RĪKOJUMA vienotajai valstij un visai pasaulei. Šī ir atvērta iespēja pievienoties Ilinuminatu brālībai, kur jūs varat atgūt zaudētos sapņus, kā arī kur jūs varat redzēt bagātības un laimes gaismu. bez jebkādas asins upurēšanas. Mēs arī maksājam 650 000 USD summu, lai uzņemtu visus jaunos biedrus, kad viņi pievienojas brālībai, kā arī mājai pēc savas izvēles un atrašanās vietas ar ieguldījumiem kopā ar šo iespēju dzīvē, lai viņi būtu slaveni.
PRIEKŠROCĪBAS, KAS PIEŠĶIRTAS JAUNIEM LOCEKĻIEM, KAS PIEVIENOTIES ILLUMINATI.
1. Naudas atlīdzība USD 650 000 USD vērtībā.
2. Jauns Sleek Dream CAR, kura vērtība ir USD 150 000 USD
3. Sapņu māja, kas nopirkta jūsu izvēlētā valstī.
Tikšanās mēnesis ar 5 labākajiem pasaulē.
Līderi un 5 svarīgākās slavenības pasaulē. Ja jūs interesē, lūdzu, sazinieties ar iepriekšējo e-pasta adresi: greatilluminate99@gmail.com
PIEZĪME; šī Illuminati brālība, kurai jūs varat pievienoties no jebkuras vietas pasaulē: Indija, Turcija, Āfrika, Amerikas Savienotās Valstis, Malaizija,
Dubaija, Kuveita, Lielbritānija, Austrija, Vācija, Eiropa. Āzija, Austrālija utt.,
Sveicieni TEMPLE ILLUMINATI AMERIKAS SAVIENOTĀS VALSTIS
|
| HAPPY DAY |
2020-01-10 22:48:07 |
|
Sveiki, visi, šeit nāk pieejamais aizdevuma piedāvājums, kas mainīs jūsu dzīvi uz visiem laikiem, un testaments tam, kā es saņēmu aizdevumu, lai mainītu savas nāvējošās ģimenes dzīvi. Mani sauc Clancy Dexter. Es dzīvoju ASV Floridā un vai šodien esmu laimīga sieviete? Es nodomāju sev, ka jebkurš aizdevuma aizdevējs varētu mainīt Broke un manas ģimenes dzīvi, es atsaukšos uz tiem, kuri meklē aizdevumu. Viņi deva man un manai ģimenei laimi. Man bija vajadzīgs USD 250 000,00 aizdevums, lai atkal sāktu dzīvi kā atraitne ar trim bērniem. Es devos uz šo uzņēmumu, kurš aizdeva godīgu un dievišķīgu tiešsaistes aizdevumu, kas man palīdzēja iegūt aizdevumu USD 250 000,00. . Dolāri, tie patiesībā ir Dieva baiļu cilvēki, kas strādā ar cienījamu aizdevumu firmu. Ja jums ir nepieciešams aizdevums un esat 100% pārliecināts par atmaksu, lūdzu, sazinieties ar viņiem un dariet viņiem zināmu, ka Klensijas kundze jūs nosūtīja jums. Sazinieties ar e-pastu:
happyday99loanfirm@gmail.com
|
| EVELīNA |
2020-01-08 21:22:30 |
|
Sveiki, visi mani sauc Evelina. Es esmu šeit, lai liecinātu par to, kā mani no šīs vietnes krāpj dažādi aizdevumu aizdevēji. Man bija nepieciešams aizdevums, un es pieteicos no dažādiem aizdevumu aizdevējiem no šīs pašas vietnes. Viņi lūdza mani samaksāt zināmu summu naudu dažādos veidos, bet es nekad nesaņemu savu aizdevumu. Tā es pazaudēju 5000 eiro. Es tagad biju parādos, jo aizņēmos naudu no drauga. Vienu dienu mans draugs iepazīstināja mani ar Lauru Smitu. viņa man pastāstīja, kā viņa vairākos gadījumos ir palīdzējusi ar aizdevumu bez kavēšanās.Esmu nobijusies un nekad neticu viņai.Viņa mudina mani uzticēties viņai, šādi es viņu iepazīstināju ar savu e-pastu {mrslaurasmithloanfirm@gmail.com} .Viņa man teica, ka viņa man piedāvās aizdevumu, kas man ir jāievēro tikai viņiem.Es darīju, kā viņa man teica, un bez kavēšanās es saņēmu savu aizdevumu, kā viņa iepriekš solīja.Šeit es jums saku, ka lielākā daļa aizdevuma aizdevēju šajā vietnē ir krāpnieki. Ja jums patiešām ir nepieciešams īsts aizdevums, lūdzu, satieciet Lauru Smitu, izmantojot viņas e-pastu (mrslaurasmithloanfirm@gmail.com), viņa ir reģistrēta uzticama aizdevuma aizdevēja.
Evelīna
|
| CLAUDIA KLEIN |
2020-01-05 23:07:33 |
|
Sveicināti un sveicināti Spotcap globālo aizdevumu pakalpojumos. Mans vārds ir Klaudija Kleina, es esmu aizdevējs un arī aizdevumu konsultants.
Vai jums ir nepieciešams finanšu atbalsts? vai jums ir nepieciešams aizdevums dažādiem mērķiem? ja jūsu atbilde ir apstiprinoša, es ieteiktu jums sazināties ar manu firmu, izmantojot | spotcapglobalservices@gmail.com | vai nosūtiet mums ziņojumu vietnē WhatsApp: +4915758108767 | un jūsu kontā ir aizdevums 24 stundu laikā, jo mēs piedāvājam izcilus aizdevuma pakalpojumus visā pasaulē.
Mēs piedāvājam visa veida aizdevumu pakalpojumus (individuālais aizdevums, biznesa aizdevums un daudzi citi), mēs piedāvājam gan ilgtermiņa, gan īstermiņa aizdevumus, kā arī jūs varat aizņemties līdz 15 miljoniem eiro. Mans uzņēmums palīdzēs sasniegt dažādus mērķus, izmantojot plašu aizdevuma produktu klāstu.
Mēs zinām, ka likumīga aizdevuma saņemšana vienmēr ir bijusi milzīga problēma Personām, kurām ir finansiālas problēmas un kurām nepieciešams risinājums, daudziem cilvēkiem ir tik grūti iegūt kapitāla aizdevumu no savām vietējām bankām vai citām finanšu institūcijām, ņemot vērā augsto interesi. likme, nepietiekams nodrošinājums, parāda un ienākumu attiecība, zems kredītreitings vai kādi citi iemesli
Vairs nav gaidīšanas laika vai stresaino bankas apmeklējumu. Mūsu pakalpojums ir pieejams visu diennakti - jūs varat saņemt aizdevumu un veikt darījumus jebkurā vietā un vietā, kur jums tas nepieciešams
Mēs sniedzam 24 stundu pasaules klases aizdevuma pakalpojumus. Jautājumiem / jautājumiem? - Nosūtīt e-pastu uz | spotcapglobalservices@gmail.com | vai nosūtiet mums ziņojumu vietnē WhatsApp: +4915758108767 | & Saņemiet atbildi vienā mirklī.
Jūsu ģimenei, draugiem un kolēģiem nav jāzina, ka jums ir maz naudas, vienkārši rakstiet mums un jūs saņemsit aizdevumu.
Jūsu finansiālā brīvība ir jūsu rokās!
|
| AIZDEVUMA PIEDāVāJUM |
2020-01-02 12:23:59 |
|
Vai jums ir nepieciešams aizdevums, lai sāktu personīgo biznesu vai samaksātu parādus, un, ja jūsu atbilde ir Jā, sazinieties ar: konts keystonebankplc04@gmail.com
Aizdevuma piedāvājums Piesakies tūlīt
|
| CHRISTY WALTON |
2020-01-01 19:51:22 |
|
Meklējat parāda konsolidācijas aizdevumu, nenodrošinātus aizdevumus, biznesa aizdevumus, hipotēku aizdevumus, automašīnu aizdevumus, studentu kredītus, personiskos aizdevumus, riska kapitālu utt.! Es esmu privāts aizdevējs, es sniedzu aizdevumus uzņēmumiem un privātpersonām ar zemām un saprātīgām procentu likmēm 2%. E-pasts uz adresi:( christywalton355@gmail.com)
|
| WAITER MORISON |
2019-12-31 17:09:46 |
|
Sveiki, katrs, mans vārds ir Waiter Morison kundze. Es dzīvoju Apvienotajā Karalistē Londonas Liverpūlē un šodien esmu laimīga sieviete? un es sev teicu, ka jebkurš aizdevējs, kurš var izglābt manu ģimeni no mūsu sliktās situācijas, es nodošu jebkurai personai, kura meklē aizņēmumu, aizdevējam, paldies, dodoties jasmin noor kundzei, kura deva man laimi man un manai ģimenei, es biju man ir nepieciešams 300 000,00 euro aizdevums, lai sāktu savu dzīvi visā, tā kā esmu vientuļā māte ar 2kids, es satiku šo godīgo un DIEVA baidāmo sieviešu aizdevuma aizdevēju, kas man palīdz ar aizdevumu 300 000,00 EUR, viņa ir DIEVA baidīga sieviete, Ja jums ir nepieciešams aizdevums un jūs atmaksāsit aizdevumu, lūdzu, sazinieties ar viņu pa e-pastu. (medallonfinancia@gmail.com) medallonfinancia@hotmail.com Viesmīļa Morisona kundze
|
| JEFFREY MORGAN |
2019-12-31 17:04:36 |
|
Sveiki, katrs, ko es vēlos dalīties ar savu liecību par to, kā es piederu lielajai iluminatoru brālībai (iluminatihood123@outlook.com vai Whatsapp lielmeistaram pa šo numuru: (+79247676402) labi, mans draugs, kurš vienmēr dod man naudu, lai viņš bija ļoti bagāts, kādu dienu viņš teica, ka negrasās man dot zivis, tāpēc viņš man iemācīs makšķerēt, tāpēc es biju ļoti laimīgs, es nekad nebiju jauns, viņš bija Illuminati loceklis, visu manu dzīvi pavadīšu kopā! Mani uzaicināja uz iluminatu pasauli, un dažās dienās man piešķīra līgumu miljonu dolāru vērtībā, manā biznesā man šobrīd veicas ļoti labi, es tagad esmu tas, kurš izdod naudu pirms tā tika uzklausīts, ja vēlaties pieder e-pasts mans TĒvs uz viņa EMAIL: iluminatihood123@outlook.com vai whatsapp Džerijs Bensons uz šo numuru: +79247676402
|
| DIVINE MOON |
2019-12-27 12:44:22 |
|
Attention:
Are you looking for a REAL FINANCIAL LOAN COMPANY to give you loan between 5,000 Euro and 50,000,000 Euro (for a business or company loan, personal loan, home loans, car loan, debt consolidation loans, venture capital, healthcare loan, etc.)
Or have you been denied a loan from a bank or financial institution because of one reason or the other?
Apply now and get real financial loan processed and approved within 3 days.
DIVINE MOON CO-OPERATIVE LOAN COMPANY, we are an "Internationally Accredited Loan Lender" that give REAL FINANCIAL LOANS to individuals and companies in a low interest rate of 2% with your valid identity card or your country international passport for verification.
Our loan Repayment starts 1 (One) year after you have received your loan, and repayment duration ranges from between 3 to 35 years duration.
FOR IMMEDIATE RESPONSE AND PROCESSING OF YOUR LOAN REQUEST WITHIN 2 WORKING DAYS,
Contact us directly through this email: divinemooncooperativeloan@gmail.com
Contact us with the following information:
Full Name:____________________________
Amount Needed as Loan:________________
Loan Duration:_________________________
Purpose for Loan:______________________
Date of Birth:___________________________
Gender:_______________________________
Marital status:__________________________
Contact Address:_______________________
City/Zip code:__________________________
Country:_______________________________
Occupation:____________________________
Mobile Phone:__________________________
Send your request for immediate response to: divinemooncooperativeloan@gmail.com
Thank you.
DIVINE MOON
Director.
DIVINE MOON CO-OPERATIVE LOAN COMPANY
Email:divinemooncooperativeloan@gmail.com
|
| CLAUDIA KLEIN |
2019-12-21 10:03:08 |
|
Sveicināti un sveicināti Spotcap globālo aizdevumu pakalpojumos. Mans vārds ir Klaudija Kleina, es esmu aizdevējs un arī aizdevumu konsultants.
Vai jums ir nepieciešams finanšu atbalsts? vai jums ir nepieciešams aizdevums dažādiem mērķiem? ja jūsu atbilde ir apstiprinoša, es ieteiktu jums sazināties ar manu firmu, izmantojot | spotcapglobalservices@gmail.com | vai nosūtiet mums ziņojumu vietnē WhatsApp: +4915758108767 | un jūsu kontā ir aizdevums 24 stundu laikā, jo mēs piedāvājam izcilus aizdevuma pakalpojumus visā pasaulē.
Mēs piedāvājam visa veida aizdevumu pakalpojumus, mēs piedāvājam gan ilgtermiņa, gan īstermiņa aizdevumus, kā arī jūs varat aizņemties līdz 15 miljoniem eiro. Mans uzņēmums palīdzēs sasniegt dažādus mērķus, izmantojot plašu aizdevuma produktu klāstu.
Mēs zinām, ka likumīga aizdevuma saņemšana vienmēr ir bijusi milzīga problēma Personām, kurām ir finansiālas problēmas un kurām nepieciešams risinājums, daudziem cilvēkiem ir tik grūti iegūt kapitāla aizdevumu no savām vietējām bankām vai citām finanšu institūcijām, ņemot vērā augsto interesi. likme, nepietiekams nodrošinājums, parāda un ienākumu attiecība, zems kredītreitings vai kādi citi iemesli
Vairs nav gaidīšanas laika vai stresaino bankas apmeklējumu. Mūsu pakalpojums ir pieejams visu diennakti - jūs varat saņemt aizdevumu un veikt darījumus jebkurā vietā un vietā, kur jums tas nepieciešams
Mēs sniedzam 24 stundu pasaules klases aizdevuma pakalpojumus. Jautājumiem / jautājumiem? - Nosūtīt e-pastu uz | spotcapglobalservices@gmail.com | vai nosūtiet mums ziņojumu vietnē WhatsApp: +4915758108767 | & Saņemiet atbildi vienā mirklī.
Jūsu ģimenei, draugiem un kolēģiem nav jāzina, ka jums ir maz naudas, vienkārši rakstiet mums un jūs saņemsit aizdevumu.
Jūsu finansiālā brīvība ir jūsu rokās!
|
| CLAUDIA KLEIN |
2019-12-13 11:45:49 |
|
Sveicināti un sveicināti Spotcap globālo aizdevumu pakalpojumos. Mans vārds ir Klaudija Kleina, es esmu aizdevējs un arī aizdevumu konsultants.
Vai jums ir nepieciešams finanšu atbalsts? vai jums ir nepieciešams aizdevums dažādiem mērķiem? ja jūsu atbilde ir apstiprinoša, es ieteiktu jums sazināties ar manu firmu, izmantojot | spotcapglobalservices@gmail.com | vai nosūtiet mums ziņojumu vietnē WhatsApp: +4915758108767 | un jūsu kontā ir aizdevums 24 stundu laikā, jo mēs piedāvājam izcilus aizdevuma pakalpojumus visā pasaulē.
Mēs piedāvājam visa veida aizdevumu pakalpojumus, mēs piedāvājam gan ilgtermiņa, gan īstermiņa aizdevumus, kā arī jūs varat aizņemties līdz 15 miljoniem eiro. Mans uzņēmums palīdzēs sasniegt dažādus mērķus, izmantojot plašu aizdevuma produktu klāstu.
|
| HELEN BENJAMIN |
2019-12-13 00:30:54 |
|
NEMAKSĀTU KREDĪTU SNIEDZĒJI
Atrisiniet savu finansiālo problēmu 24 stundu laikā.
Vai esat algu saņēmējs vai uzņēmuma īpašnieks? Saņemiet no 1000 eiro - 200 000, 000 eiro aizdevumu 24 stundu laikā
Vienkāršs naudas risinājums.
Lai iegūtu vairāk informācijas, sazinieties ar mums pa e-pastu: immaculateloanprovidersltd@gmail.com
Izpilddirektors: Benjamīna kundze
vai apmeklējiet mūsu filiāli: 29. līmenis, Tiffany tornis, Jumeirah ezeru torņi Dubaijā. AAE
Sazinieties ar mums pa e-pastu: immaculateloanprovidersltd@gmail.com
Paldies
|
| SUSAN BENSON |
2019-12-10 01:07:22 |
|
Sveicināti, dāmas un kungi! Vai jums steidzami nepieciešams personīgais aizdevums vai komerckredīti vai aizdevums, lai sāktu projektu vai iegādātos māju vai automašīnu, vai arī jums ir nepieciešams aizdevums kādam mērķim? Ja jā, es ieteiktu jums sazināties ar Sunshine Financial Group, izmantojot {Email: sunshinefinancialgroupinc@gmail.com} vai {WhatsApp: +447903159998}.
Sunshine Financial Group ir visaptveroša finanšu pakalpojumu firma, kas ir apņēmusies palīdzēt jums uzlabot jūsu ilgtermiņa finansiālos panākumus. Mūsu pielāgotās programmas ir izstrādātas, lai palīdzētu augt, aizsargāt un saglabāt jūsu bagātību, nodrošinot personalizētus pakalpojumus un zināšanas.
Iemesls, kāpēc jums vajadzētu sazināties ar Sunshine Financial Group;
- Uzklājiet jebkurā laikā un vietā, sev ērtā vietā
- saņemt skaidru naudu mazāk nekā 24 līdz 48 stundu laikā
- Jūs varat aizņemties līdz 20 miljoniem eiro
- Nav slēptu maksu.
- Subsidētā procentu likme 3%
- Jums ir iespēja izvēlēties atmaksas datumu katru nedēļu, mēnesi vai gadu uz laiku no 1 līdz 30 gadiem.
- Daudzu gadu darba pieredze
- Bezmaksas konsultācijas un 100% uzmanība katram klientam.
- Un daudz vairāk gūst labumu
Ja jums ir bijis tik grūti iegūt kapitāla aizdevumu no jūsu vietējām bankām vai citiem finanšu institūtiem, neuztraucieties, jo šis uzņēmums ir palīdzējis daudziem cilvēkiem un organizācijām, kuras ir saskārušās ar finansiālām grūtībām visā pasaulē. Kad piesakāties Sunshine Financial Group, jūs piesakāties pie uzticama uzņēmuma, kas rūpējas par jūsu finansēšanas vajadzībām. Par visu procesu jūs parūpēsies.
Ja jums nepieciešams steidzams aizdevums 24 stundu laikā, lūdzu, rakstiet uz zemāk esošo e-pastu, lai iegūtu vairāk informācijas
E-pasta kontaktpersona: (sunshinefinancialgroupinc@gmail.com)
WhatsApp kontaktinformācija: +447903159998
|
| ANNA AGNESE |
2019-12-02 22:52:40 |
|
Liecība par to, kā tika pārveidota mana dzīve (mary.judy555@gmail.com)
Mani sauc Anna Agnese, es dzīvoju Rīgā un šodien esmu laimīga sieviete? Es sev teicu, ka jebkurš aizdevuma aizdevējs, kas varētu mainīt manu un manas ģimenes dzīvi, es viņiem nosūtīšu jebkuru personu, kura meklē aizdevumu. Ja jums ir nepieciešams aizdevums un esat pilnīgi pārliecināts, ka atmaksāsit aizdevumu, lūdzu, sazinieties ar viņiem un pastāstiet viņiem, ka Anna Agnese jūs viņiem nosūtīja. pa e-pastu Marijas Džūdijas kundzei pa: (mary.judy555@gmail.com) ... Mana Whatsapp tālruņa numurs: +1 (929) 267-7281
|
| ANNA AGNESE |
2019-12-02 22:52:39 |
|
Liecība par to, kā tika pārveidota mana dzīve (mary.judy555@gmail.com)
Mani sauc Anna Agnese, es dzīvoju Rīgā un šodien esmu laimīga sieviete? Es sev teicu, ka jebkurš aizdevuma aizdevējs, kas varētu mainīt manu un manas ģimenes dzīvi, es viņiem nosūtīšu jebkuru personu, kura meklē aizdevumu. Ja jums ir nepieciešams aizdevums un esat pilnīgi pārliecināts, ka atmaksāsit aizdevumu, lūdzu, sazinieties ar viņiem un pastāstiet viņiem, ka Anna Agnese jūs viņiem nosūtīja. pa e-pastu Marijas Džūdijas kundzei pa: (mary.judy555@gmail.com) ... Mana Whatsapp tālruņa numurs: +1 (929) 267-7281
|
| WENDY THOMAS |
2019-12-02 15:06:30 |
|
Sveiki, visi, kas tur, es ceru, ka jums, puiši, viss ir kārtībā ??? Mani vārdi ir Vendija Tomasa kundze, es nācu no Aidaho, pirms dažām nedēļām mani iesūca sliktā finansiālā situācija, un man bija nepieciešams steidzams aizdevums, lai samaksātu rēķinus un finansiāli atgrieztos pie kājām, jo mana pašreizējā finansiālā stāvokļa dēļ mana banka atteicās lai man piešķirtu aizdevumu, tāpēc man neatlika citas iespējas kā meklēt nenodrošinātu aizdevumu tiešsaistē. Pētījuma laikā es biju krāpšanas upuris un pazaudēju gandrīz USD 2350, un es biju vairāk nepatikšanas, un es gandrīz devu cerības saņemt aizdevumu līdz brīdim, kad atradu tiešsaistes ierakstu, bija postījums, ko sniedza Christina kundze no Pensilvānijas štatiem, kas apliecina to, kā viņš, pēc ziņas izlasīšanas, no Tamara Finance Inc. ieguva 180 000 USD, es nolēmu sazināties ar Tamara Finance Inc., izmantojot e-pasts: (tamarajimmyfinance@hotmail.com) kontaktpersona, kas tika kopīgota ziņojumā, mans nenodrošinātais aizdevuma pieprasījums USD 120 000 apmērā tika apstiprināts 48 stundu laikā pēc mana pieprasījuma un viņu aizdevuma procentu likme ir 2%, mans aizdevums tika samaksāts uz manu bankas kontu bez izlaiduma.
Es gribu izteikt dziļu pateicību un arī ieteikt tur esošajiem aizdevumu meklētājiem būt ļoti modriem, jo tur ir daudz krāpnieku, kuru vienīgais mērķis ir izkrāpt nevainīgus aizdevuma meklētājus, tāpēc jums, puišiem, jābūt uzmanīgiem un modriem .. tiem kam nepieciešams aizdevums Es iesaku Tamara Finance Inc, jūs varat sazināties ar uzņēmumu pa e-pastu: (tamarajimmyfinance@hotmail.com)
Paldies, ka lasījāt manu liecību, es vēlu veiksmi.
Jūsu,
Vendijs Tomass.
|
| CLAUDIA KLEIN |
2019-12-02 09:19:01 |
|
Sveicināti un sveicināti Spotcap globālo aizdevumu pakalpojumos. Mans vārds ir Klaudija Kleina, es esmu aizdevējs un arī aizdevumu konsultants.
Vai jums ir nepieciešams finanšu atbalsts? vai jums ir nepieciešams aizdevums dažādiem mērķiem? ja jūsu atbilde ir apstiprinoša, es ieteiktu jums sazināties ar manu firmu, izmantojot | spotcapglobalservices@gmail.com | vai nosūtiet mums ziņojumu vietnē WhatsApp: +4915758108767 | un jūsu kontā ir aizdevums 24 stundu laikā, jo mēs piedāvājam izcilus aizdevuma pakalpojumus visā pasaulē.
Mēs piedāvājam visa veida aizdevumu pakalpojumus, mēs piedāvājam gan ilgtermiņa, gan īstermiņa aizdevumus, kā arī jūs varat aizņemties līdz 15 miljoniem eiro. Mans uzņēmums palīdzēs sasniegt dažādus mērķus, izmantojot plašu aizdevuma produktu klāstu.
Mēs zinām, ka likumīga aizdevuma saņemšana vienmēr ir bijusi milzīga problēma Personām, kurām ir finansiālas problēmas un kurām nepieciešams risinājums, daudziem cilvēkiem ir tik grūti iegūt kapitāla aizdevumu no savām vietējām bankām vai citām finanšu institūcijām, ņemot vērā augsto interesi. likme, nepietiekams nodrošinājums, parāda un ienākumu attiecība, zems kredītreitings vai kādi citi iemesli
Vairs nav gaidīšanas laika vai stresaino bankas apmeklējumu. Mūsu pakalpojums ir pieejams visu diennakti - jūs varat saņemt aizdevumu un veikt darījumus jebkurā vietā un vietā, kur jums tas nepieciešams
Mēs sniedzam 24 stundu pasaules klases aizdevuma pakalpojumus. Jautājumiem / jautājumiem? - Nosūtīt e-pastu uz | spotcapglobalservices@gmail.com | vai nosūtiet mums ziņojumu vietnē WhatsApp: +4915758108767 | & Saņemiet atbildi vienā mirklī.
Jūsu ģimenei, draugiem un kolēģiem nav jāzina, ka jums ir maz naudas, vienkārši rakstiet mums un jūs saņemsit aizdevumu.
Jūsu finansiālā brīvība ir jūsu rokās!
|
| SUSAN BENSON |
2019-12-01 23:35:12 |
|
Sveiki, dāmas un kungi! Vai jums steidzami nepieciešams personīgais aizdevums vai komerciālie aizdevumi vai aizdevums, lai sāktu projektu vai iegādātos māju vai automašīnu, vai arī jums ir nepieciešams aizdevums jebkuram mērķim? Ja jā, es ieteiktu jums sazināties ar Sunshine Financial Group, izmantojot {Email: sunshinefinancialgroupinc@gmail.com} vai {WhatsApp: +447903159998}.
Sunshine Financial Group ir visaptveroša finanšu pakalpojumu firma, kas ir apņēmusies palīdzēt jums uzlabot jūsu ilgtermiņa finansiālos panākumus. Mūsu pielāgotās programmas ir izstrādātas, lai palīdzētu augt, aizsargāt un saglabāt jūsu bagātību, nodrošinot personalizētus pakalpojumus un zināšanas.
Iemesls, kāpēc jums vajadzētu sazināties ar Sunshine Financial Group;
- Lietot jebkurā laikā un vietā.
- saņemt aizdevumu mazāk nekā 24 stundu laikā
- Jūs varat aizņemties līdz 20 miljoniem eiro
- Nav slēptu maksu.
- Subsidētā procentu likme 3%
- Jums ir iespēja izvēlēties atmaksas datumu katru nedēļu, mēnesi vai gadu uz laiku no 1 līdz 30 gadiem.
Un daudz vairāk gūst labumu
Ja jums ir bijis tik grūti iegūt kapitāla aizdevumu no vietējām bankām vai citiem finanšu institūtiem, vairs neuztraucieties, jo šis uzņēmums ir palīdzējis daudziem cilvēkiem un organizācijām, kuras ir saskārušās ar finansiālām grūtībām visā pasaulē. Kad piesakāties Sunshine Financial Group, jūs piesakāties pie uzticama uzņēmuma, kas rūpējas par jūsu finansēšanas vajadzībām. Par visu procesu jūs parūpēsies.
Ja jums nepieciešams steidzams aizdevums 24 stundu laikā, lūdzu, rakstiet uz zemāk esošo e-pastu, lai iegūtu vairāk informācijas
E-pasta kontaktpersona: (sunshinefinancialgroupinc@gmail.com)
WhatsApp kontaktinformācija: +447903159998
|
| WENDY THOMAS |
2019-11-30 16:54:42 |
|
Sveiki, visi, kas tur, es ceru, ka jums, puiši, viss ir kārtībā ??? Mani vārdi ir Vendija Tomasa kundze, es nācu no Aidaho, pirms dažām nedēļām mani iesūca sliktā finansiālā situācija, un man bija nepieciešams steidzams aizdevums, lai samaksātu rēķinus un finansiāli atgrieztos pie kājām, jo mana pašreizējā finansiālā stāvokļa dēļ mana banka atteicās lai man piešķirtu aizdevumu, tāpēc man neatlika citas iespējas kā meklēt nenodrošinātu aizdevumu tiešsaistē. Pētījuma laikā es biju krāpšanas upuris un pazaudēju gandrīz USD 2350, un es biju vairāk nepatikšanas, un es gandrīz devu cerības saņemt aizdevumu līdz brīdim, kad atradu tiešsaistes ierakstu, bija postījums, ko sniedza Christina kundze no Pensilvānijas štatiem, kas apliecina to, kā viņš, pēc ziņas izlasīšanas, no Tamara Finance Inc. ieguva 180 000 USD, es nolēmu sazināties ar Tamara Finance Inc., izmantojot e-pasts: (tamarajimmyfinance@hotmail.com) kontaktpersona, kas tika kopīgota ziņojumā, mans nenodrošinātais aizdevuma pieprasījums USD 120 000 apmērā tika apstiprināts 48 stundu laikā pēc mana pieprasījuma un viņu aizdevuma procentu likme ir 2%, mans aizdevums tika samaksāts uz manu bankas kontu bez izlaiduma.
Es gribu izteikt dziļu pateicību un arī ieteikt tur esošajiem aizdevumu meklētājiem būt ļoti modriem, jo tur ir daudz krāpnieku, kuru vienīgais mērķis ir izkrāpt nevainīgus aizdevuma meklētājus, tāpēc jums, puišiem, jābūt uzmanīgiem un modriem .. tiem kam nepieciešams aizdevums Es iesaku Tamara Finance Inc, jūs varat sazināties ar uzņēmumu pa e-pastu: (tamarajimmyfinance@hotmail.com)
Paldies, ka lasījāt manu liecību, es vēlu veiksmi.
Jūsu,
Vendijs Tomass.
|
| WENDY THOMAS |
2019-11-30 16:53:20 |
|
Sveiki, visi, kas tur, es ceru, ka jums, puiši, viss ir kārtībā ??? Mani vārdi ir Vendija Tomasa kundze, es nācu no Aidaho, pirms dažām nedēļām mani iesūca sliktā finansiālā situācija, un man bija nepieciešams steidzams aizdevums, lai samaksātu rēķinus un finansiāli atgrieztos pie kājām, jo mana pašreizējā finansiālā stāvokļa dēļ mana banka atteicās lai man piešķirtu aizdevumu, tāpēc man neatlika citas iespējas kā meklēt nenodrošinātu aizdevumu tiešsaistē. Pētījuma laikā es biju krāpšanas upuris un pazaudēju gandrīz USD 2350, un es biju vairāk nepatikšanas, un es gandrīz devu cerības saņemt aizdevumu līdz brīdim, kad atradu tiešsaistes ierakstu, bija postījums, ko sniedza Christina kundze no Pensilvānijas štatiem, kas apliecina to, kā viņš, pēc ziņas izlasīšanas, no Tamara Finance Inc. ieguva 180 000 USD, es nolēmu sazināties ar Tamara Finance Inc., izmantojot e-pasts: (tamarajimmyfinance@hotmail.com) kontaktpersona, kas tika kopīgota ziņojumā, mans nenodrošinātais aizdevuma pieprasījums USD 120 000 apmērā tika apstiprināts 48 stundu laikā pēc mana pieprasījuma un viņu aizdevuma procentu likme ir 2%, mans aizdevums tika samaksāts uz manu bankas kontu bez izlaiduma.
Es gribu izteikt dziļu pateicību un arī ieteikt tur esošajiem aizdevumu meklētājiem būt ļoti modriem, jo tur ir daudz krāpnieku, kuru vienīgais mērķis ir izkrāpt nevainīgus aizdevuma meklētājus, tāpēc jums, puišiem, jābūt uzmanīgiem un modriem .. tiem kam nepieciešams aizdevums Es iesaku Tamara Finance Inc, jūs varat sazināties ar uzņēmumu pa e-pastu: (tamarajimmyfinance@hotmail.com)
Paldies, ka lasījāt manu liecību, es vēlu veiksmi.
Jūsu,
Vendijs Tomass.
|
| CLAUDIA KLEIN |
2019-11-26 23:14:12 |
|
Sveicināti un sveicināti Spotcap globālo aizdevumu pakalpojumos. Mans vārds ir Klaudija Kleina, es esmu aizdevējs un arī aizdevumu konsultants.
Vai jums ir nepieciešams finanšu atbalsts? vai jums ir nepieciešams aizdevums dažādiem mērķiem? ja jūsu atbilde ir apstiprinoša, es ieteiktu jums sazināties ar manu firmu, izmantojot | spotcapglobalservices@gmail.com | vai nosūtiet mums ziņojumu vietnē WhatsApp: +4915758108767 | un jūsu kontā ir aizdevums 24 stundu laikā, jo mēs piedāvājam izcilus aizdevuma pakalpojumus visā pasaulē.
Mēs piedāvājam visa veida aizdevumu pakalpojumus, mēs piedāvājam gan ilgtermiņa, gan īstermiņa aizdevumus, kā arī jūs varat aizņemties līdz 15 miljoniem eiro. Mans uzņēmums palīdzēs sasniegt dažādus mērķus, izmantojot plašu aizdevuma produktu klāstu.
Mēs zinām, ka likumīga aizdevuma saņemšana vienmēr ir bijusi milzīga problēma Personām, kurām ir finansiālas problēmas un kurām nepieciešams risinājums, daudziem cilvēkiem ir tik grūti iegūt kapitāla aizdevumu no savām vietējām bankām vai citām finanšu institūcijām, ņemot vērā augsto interesi. likme, nepietiekams nodrošinājums, parāda un ienākumu attiecība, zems kredītreitings vai kādi citi iemesli
Vairs nav gaidīšanas laika vai stresaino bankas apmeklējumu. Mūsu pakalpojums ir pieejams visu diennakti - jūs varat saņemt aizdevumu un veikt darījumus jebkurā vietā un vietā, kur jums tas nepieciešams
Mēs sniedzam 24 stundu pasaules klases aizdevuma pakalpojumus. Jautājumiem / jautājumiem? - Nosūtīt e-pastu uz | spotcapglobalservices@gmail.com | vai nosūtiet mums ziņojumu vietnē WhatsApp: +4915758108767 | & Saņemiet atbildi vienā mirklī.
Jūsu ģimenei, draugiem un kolēģiem nav jāzina, ka jums ir maz naudas, vienkārši rakstiet mums un jūs saņemsit aizdevumu.
Jūsu finansiālā brīvība ir jūsu rokās!
|
| JONNA |
2019-11-26 10:25:58 |
|
Sveiki, vai jūs meklējat ļoti īstu aizdevumu? Par pieņemamu procentu likmi? Apstrādāts 24 stundu laikā. Vai jūsu bankas un citas finanšu iestādes jūs pastāvīgi ir noraidījušas? Jonna finance piedāvā aizdevumu no 1 000,00 Min. līdz 50 000 000,00 maks. Ar 2% procentu likmi. Sazinieties ar mums šodien pa e-pastu: jonnafinance@outlook.com
|
| MARCUS & MILLICHAP |
2019-11-23 22:59:10 |
|
Sveiks mans draugs.
Vai jums pastāvīgi trūkst naudas, jo jūsu banka vai citas finanšu iestādes jums ir atteikušas aizdevumu nepietiekama nodrošinājuma, parāda un ienākumu attiecības, zema kredītreitinga, augstas procentu likmes vai citu iemeslu dēļ
Apnicis jūsu pašreizējais finansiālais stāvoklis? Vai jums ir nepieciešams palielināt finanses? Noguris maksāt vairāk, nekā vajadzētu, par aizdevumu ar augstām procentu likmēm? Jūs esat pelnījis labāku risinājumu.
Pinnacle finanšu grupa šeit darbojas ar kredītlīniju, kas var palīdzēt sasniegt vispārējos finanšu mērķus
Izmantojot Pinnacle Financial Group, jūs varat saņemt aizdevumu līdz 3 procentu procentu likmei.
Jūs varat aizņemties līdz 10 miljoniem.
Jūs varat saņemt izvēlētu aizdevumu vienā mirklī
Atmaksai varat izvēlēties no 1 līdz 30 gadiem.
Jūs saņemat aizdevumu jebkurā vietā un laikā, ērti mājās.
Mēs sniedzam visa veida aizdevumu pakalpojumus, mēs esam ātri, uzticami, uzticami un arī viegli apstiprināmi mazāk nekā 24 stundu laikā.
Piesakieties aizdevumam jau šodien un sazinieties ar mums pa šo e-pasta adresi, lai uzzinātu vairāk par mūsu aizdevuma piedāvājumu:
E-pasts: (pinnaclefinancegroupinc@gmail.com)
Ar cieņu
Marcus & Millichap
Pinnacle Financial Group izpilddirektors.
|
| MR RODRIGUEZ |
2019-11-23 19:56:08 |
|
Pārbaudīts aizdevuma avanss
Vai jums ir nepieciešams nopietns aizdevums, lai atbalstītu savu biznesu, vai kādu iemeslu dēļ? Mēs esam apstiprinātu, reālu un visā pasaulē izsniegtu kredītu bankas. Mēs piedāvājam aizdevumus komercuzņēmumiem, organizācijām un privātpersonām par mērenu aizdevuma maksu 3%. Tas ļoti labi var būt īstermiņa vai tālsatiksmes avanss, neatkarīgi no tā, vai jums ir slikts kredīts. Mēs apstrādāsim jūsu aizdevumu, kad būsim saņēmuši jūsu lūgumu. Mēs esam autonoma monetārā iestāde. Gadu gaitā mēs esam ieguvuši izcilu slavu, piešķirot dažu veidu aizdevumus milzīgam skaitam mūsu klientu. Mēs piedāvājam pārbaudītu kredītu
Jebkuras summas administrēšana rezidentiem un nepilsoņiem, mēs visiem vietējiem un nerezidentiem piedāvājam vienkāršus individuālus aizdevumus, uzņēmējdarbības / biznesa aizdevumus, transportlīdzekļu aizdevumus, līzinga / aprīkojuma finansēšanu, parādu konsolidācijas aizdevumus, hipotēku kredītus, Ziemassvētku aizdevumus utt. ar veiksmīgu vai neveiksmīgu kredītvēsturi.
Nosūtiet mums e-pastu uz RodriguezAlejandroLoanFirm@gmail.com
Nosūtiet mums e-pastu šodien un jūs būsit priecīgi, ka to izdarījāt
Laipni lūdzam !!!
Ar cieņu
Rodrigess Alejandro
E-pasts: RodriguezAlejandroLoanFirm@gmail.com
|
| VAI JUMS IR NEPIEC |
2019-11-19 03:52:09 |
|
Vai jums ir nepieciešams aizdevums? Ziemassvētku aizdevums? Mēs izsniedzam visa veida aizdevumus, piemēram, parāda aizdevumu, biznesa aizdevumu, medicīnas aizdevumu, mājokļa aizdevumu, studentu aizdevumu. Sazinieties ar mums šodien, izmantojot e-pastu, lai saņemtu finansiālu palīdzību: (Kplendes@outlook.com) Whatssapp +12052177288 Ar laba vēlējumiem
|
| LOAN |
2019-11-19 00:46:50 |
|
Labdien, dārgais kungs / kundze!
Vai jums ir nepieciešami visi aizdevumi, biznesa aizdevumi, personīgi aizdevumi, kredīti, automašīnu aizdevumi, studentu aizdevumi
e.tc.
Ja jūs interesē visi aizdevumi, šodien rakstiet mums uz e-pastu tffinance01@gmail.com, lai varētu saņemt aizdevumu
INFORMĀCIJA PAR KREDĪTU PIETEIKUMU:
Vārdi:
Otrais vārds:
Uzvārds:
E-pasti:
Mājas tālrunis:
Biroja tālrunis:
Mobilais:
Dzīvesvietas adrese:
Pilsēta:
Valsts / province:
Valsts:
Faksa numurs:
Vecums:
Sekss:
Ģimenes stāvoklis:
Nodarbošanās:
Mēneša ienākumi:
Radinieka vārds:
Radinieka tuvākā adrese:
Nepieciešamā aizdevuma summa: ........
Kredīta ilgums (maksimums 25 gadi):
Aizdevuma mērķis: ..........
sacer ar e-pastu: (tffinance01@gmail.com)
whatsApp: (+ 14093591901)
|
| PAUL MORITZ |
2019-11-18 20:03:44 |
|
Laba diena, kungs / kundze!
Mēs piedāvājam aizdevumus privātām un komerciālām struktūrām ar ļoti zemu gada procentu likmi - 3%, ar atmaksu no viena gada līdz 25 gadiem. Mēs izsniedzam aizdevumus diapazonā no 5000 līdz 500 000 000. Tas ir paredzēts, lai izskaustu pieaugošo sliktā kredīta vēsturi, kā arī lai nodrošinātu stabilu peļņu gan mūsu uzņēmumam, gan klientiem.
Vai jūs naktīs zaudējat miegu, uztraucoties par to, kā iegūt aizdevumu? Kontaktpersona: Pāvila aizdevuma aģentūra tagad pa e-pastu: paulhelpfund@yahoo.com vai WhatsApp: +91 733 787 3110
Mēs piedāvājam aizdevumu ar zemu procentu likmi 3%, un mēs piedāvājam.
* Personīgie aizdevumi
* Parādu konsolidācijas aizdevumi
* Riska kapitāls
* Biznesa aizdevumi
* Aizdevumi izglītībai
* Mājokļa aizdevumi
* Aizdevumi jebkura iemesla dēļ
Lai iegūtu vairāk steidzamas informācijas, nekavējoties sazinieties ar mums. paulhelpfund@yahoo.com vai WhatsApp: +91 733 787 3110
Sveicieni
Paul Moritz kungs
|
| PAUL GREEN |
2019-11-16 20:14:08 |
|
Vai jums ir nepieciešams steidzams aizdevums, lai atrisinātu savu finansiālo problēmu? Mēs izsniedzam biznesa kredītus, personiskos kredītus, mājas aizdevumus, algas aizdevumus, laulību aizdevumus, studentu kredītus, automašīnu aizdevumus, banku aizdevumus un kredītus, lai apmaksātu rēķinus. Mēs apstiprinām arī aizdevumus melnajā sarakstā iekļautajiem klientiem. Ja jūs interesē, lūdzu, sazinieties ar mums: WhatsApp +919066210641
WhatsApp +919066210641
E-pasts: paulloanfundshelp1@gmail.com
|
| STELLA THOMAS |
2019-11-16 02:06:59 |
|
Mans vārds ir Stella Thomas, es vēlos liecināt par šo labo aizdevumu uzņēmumu, kas man piešķīra aizdevumu pēc tam, kad viņu bija izkrāpjuši 2 dažādi viltus aizdevēji. Pirms mēneša es pārlūkoju internetu, kad redzēju liecības par cilvēkiem, kuri ir arī upuri, bet galu galā tika saistīti ar likumīgu un uzticamu aizdevumu uzņēmumu ar nosaukumu SUSAN WEALTH LOAN COMPANY LTD (susanwealthloancompany@gmail.com), tāpēc sazinājos ar aizdevuma uzņēmumu un pieņēmu viņas politikas, un šī īstā kompānija man piešķīra aizdevumu. Es tikko izpildīju savu solījumu turpināt liecināt internetā par šo uzņēmumu. Par steidzamiem un uzticamiem aizdevumiem ar tikai 3% procentu likmi iesaku sazināties ar viņu pa e-pastu: susanwealthloancompany@gmail.com
|
| STELLA THOMAS |
2019-11-16 02:05:49 |
|
Mans vārds ir Stella Thomas, es vēlos liecināt par šo labo aizdevumu uzņēmumu, kas man piešķīra aizdevumu pēc tam, kad viņu bija izkrāpjuši 2 dažādi viltus aizdevēji. Pirms mēneša es pārlūkoju internetu, kad redzēju liecības par cilvēkiem, kuri ir arī upuri, bet galu galā tika saistīti ar likumīgu un uzticamu aizdevumu uzņēmumu ar nosaukumu SUSAN WEALTH LOAN COMPANY LTD (susanwealthloancompany@gmail.com), tāpēc sazinājos ar aizdevuma uzņēmumu un pieņēmu viņas politikas, un šī īstā kompānija man piešķīra aizdevumu. Es tikko izpildīju savu solījumu turpināt liecināt internetā par šo uzņēmumu. Par steidzamiem un uzticamiem aizdevumiem ar tikai 3% procentu likmi iesaku sazināties ar viņu pa e-pastu: susanwealthloancompany@gmail.com
|
| SUSAN BENSON |
2019-11-15 12:09:13 |
|
Sveiki, dāmas un kungi, vai jums steidzami nepieciešams biznesa aizdevums, personīgais aizdevums vai hipotēkas aizdevums? Ja jā, es ieteiktu jums sazināties ar Sunshine Financial Group, izmantojot šo e-pasta adresi (sunshinefinancialgroupinc@gmail.com), lai saņemtu savu aizdevumu.
Sunshine Financial Group ir visaptveroša finanšu pakalpojumu firma, kas ir apņēmusies palīdzēt jums uzlabot jūsu ilgtermiņa finansiālos panākumus. Mūsu pielāgotās programmas ir izstrādātas, lai palīdzētu augt, aizsargāt un saglabāt jūsu bagātību, nodrošinot personalizētus pakalpojumus un zināšanas.
Ja jums ir bijis tik grūti iegūt kapitāla aizdevumu no jūsu vietējām bankām vai citiem finanšu institūtiem, vairs neuztraucieties, jo mēs esam palīdzējuši daudziem cilvēkiem un organizācijām, kas ir saskārušies ar finansiālām grūtībām visā pasaulē. Kad jūs piesakāties kopā ar mums, jūs piesakāties pie uzticama uzņēmuma, kas rūpējas par jūsu finansēšanas vajadzībām. Par visu procesu jūs parūpēsies.
GALVENĀS PRIEKŠROCĪBAS;
- Lietot jebkurā laikā un vietā.
- saņemt skaidru naudu mazāk nekā 24 stundās
- Aizņemieties no 2000 līdz 20 miljoniem euro
- Nav slēptu maksu.
- Subsidētā procentu likme 3%
- Jums ir iespēja izvēlēties atmaksas datumu katru nedēļu, mēnesi vai gadu uz laiku no 1 līdz 30 gadiem.
- Mēs piedāvājam gan nodrošinātus, gan nenodrošinātus aizdevumus
Ja jums nepieciešams steidzams aizdevums 24 stundu laikā, lūdzu, rakstiet uz zemāk esošo e-pastu, lai iegūtu vairāk informācijas
E-pasta kontaktpersona: (sunshinefinancialgroupinc@gmail.com)
WhatsApp kontaktinformācija: +447903159998
Mēs ceram dzirdēt no jums
|
| FREANCA WOLLER |
2019-11-13 15:49:57 |
|
Sveiki,
Vai vēlaties sākt jaunu biznesu vai stiprināt esošo biznesu?
Izmantojiet šo iespēju, lai atvieglotu finansiālo stresu, izmantojot TRUST aizdevumus.
Mēs piedāvājam aizdevumus lauksaimniekiem, uzņēmumiem un personiskai lietošanai.
Mūsu aizdevumu piedāvājums ir lēts un garantēts bez slēptām izmaksām.
Visa atbilde un atbilde jānosūta uz uzņēmuma e-pastu: [mrrolandscott@gmail.com] VAI [Whatsapp +17068533834]
|
| HAPPY DAY |
2019-11-06 08:15:08 |
|
Sveiki, visi, šeit nāk pieejamais aizdevuma piedāvājums, kas mainīs jūsu dzīvi uz visiem laikiem, un testaments tam, kā es saņēmu aizdevumu, lai mainītu savas nāvējošās ģimenes dzīvi. Mani sauc Mrs. Clancy Dexter. Es dzīvoju ASV Floridā un vai šodien esmu laimīga sieviete? Es nodomāju sev, ka jebkurš aizdevuma aizdevējs varētu mainīt Broke un manas ģimenes dzīvi, es atsaukšos uz tiem, kuri meklē aizdevumu. Viņi deva man un manai ģimenei laimi. Man bija vajadzīgs USD 250 000,00 aizdevums, lai atkal sāktu dzīvi kā atraitne ar trim bērniem. Es devos uz šo uzņēmumu, kurš aizdeva godīgu un dievišķīgu tiešsaistes aizdevumu, kas man palīdzēja iegūt aizdevumu USD 250 000,00. . Dolāri, tie patiesībā ir Dieva baiļu cilvēki, kas strādā ar cienījamu aizdevumu firmu. Ja jums ir nepieciešams aizdevums un esat 100% pārliecināts par atmaksu, lūdzu, sazinieties ar viņiem un dariet viņiem zināmu, ka Ms. Clency jūs viņiem atsaucās. Sazinieties ar e-pastu:
happyday99loanfirm@gmail.com
|
| CLAUDIA KLEIN |
2019-11-05 21:39:37 |
|
Vai jums ir nepieciešams aizdevums, lai konsolidētu savu parādu par pieņemamu procentu likmi? Vai arī personīgi aizdevumi * biznesa aizdevumi utt. Ieinteresētajām personām ir jāsazinās ar mums, lai iegūtu vairāk informācijas, izmantojot e-pastu: | spotcapglobalservices@gmail.com | vai nosūtiet man ziņojumu WhatsApp: +4915758108767 |
Kad runa ir par aizņēmumiem tiešsaistē, mēs esam ļoti uzticami un uzticami. Sazinieties ar mums jau šodien, jums ir obligāti jāsadarbojas ar pareizo uzņēmumu. Mēs palīdzēsim jums iegūt vislabāko aizdevuma likmi neatkarīgi no jūsu kredīta !!! Ja jūs meklējat jebkāda veida aizdevumu, jūs esat nonācis īstajā vietā. Sazinieties ar mums šodien, lai iegūtu vairāk informācijas pa e-pastu: | spotcapglobalservices@gmail.com | vai nosūtiet mums ziņojumu vietnē WhatsApp: +4915758108767 |
Mēs piedāvājam finanšu konsultācijas klientiem, uzņēmumiem, kas meklē parādu / aizdevumu finansējumu un meklē apgrozāmo kapitālu, lai sāktu jaunu biznesu vai paplašinātu esošo biznesu. Ieinteresētajām personām ir jāsazinās ar mums, lai iegūtu vairāk informācijas, izmantojot e-pastu: | spotcapglobalservices@gmail.com | vai nosūtiet mums ziņojumu vietnē WhatsApp: +4915758108767 |
Mēs piedāvājam visa veida Aizdevumu
|
| SUSAN BENSON |
2019-10-30 21:49:40 |
|
Sveiki, dāmas un kungi, vai jums steidzami nepieciešams biznesa aizdevums, personīgais aizdevums vai hipotēkas aizdevums? Ja jā, es ieteiktu jums sazināties ar Sunshine Financial Group, izmantojot šo e-pasta adresi (sunshinefinancialgroupinc@gmail.com), lai saņemtu savu aizdevumu.
Sunshine Financial Group ir visaptveroša finanšu pakalpojumu firma, kas ir apņēmusies palīdzēt jums uzlabot jūsu ilgtermiņa finansiālos panākumus. Mūsu pielāgotās programmas ir izstrādātas, lai palīdzētu augt, aizsargāt un saglabāt jūsu bagātību, nodrošinot personalizētus pakalpojumus un zināšanas.
Ja jums ir bijis tik grūti iegūt kapitāla aizdevumu no jūsu vietējām bankām vai citiem finanšu institūtiem, vairs neuztraucieties, jo mēs esam palīdzējuši daudziem cilvēkiem un organizācijām, kas ir saskārušies ar finansiālām grūtībām visā pasaulē. Kad jūs piesakāties kopā ar mums, jūs piesakāties pie uzticama uzņēmuma, kas rūpējas par jūsu finansēšanas vajadzībām. Par visu procesu jūs parūpēsies.
GALVENĀS PRIEKŠROCĪBAS;
- Lietot jebkurā laikā un vietā.
- saņemt skaidru naudu mazāk nekā 24 stundās
- Aizņemieties no 2000 līdz 20 miljoniem euro
- Nav slēptu maksu.
- zema procentu likme 3%
- Jums ir iespēja izvēlēties atmaksas datumu katru nedēļu, mēnesi vai gadu uz laiku no 1 līdz 30 gadiem.
- Mēs piedāvājam gan nodrošinātus, gan nenodrošinātus aizdevumus
Ja jums nepieciešams steidzams aizdevums 24 stundu laikā, lūdzu, rakstiet uz zemāk esošo e-pastu, lai iegūtu vairāk informācijas
E-pasta kontaktpersona: (sunshinefinancialgroupinc@gmail.com)
WhatsApp kontaktinformācija: +447903159998
Mēs ceram dzirdēt no jums
|
| CLAUDIA KLEIN |
2019-10-26 23:31:53 |
|
Sveicināti un sveicināti Spotcap globālo aizdevumu pakalpojumos. Mans vārds ir Klaudija Kleina, es esmu privāts aizdevējs un pārstāvu šo lielisko uzņēmumu no Vācijas.
Vai jums ir nepieciešama finanšu palīdzība, vai jums ir nepieciešams aizdevums biznesa uzsākšanai vai aizdevums dažādiem mērķiem? ja jūsu atbilde ir apstiprinoša, es ieteiktu jums sazināties ar manu firmu, izmantojot | spotcapglobalservices@gmail.com | un jūsu kontā ir aizdevums 24 stundu laikā, jo mēs piedāvājam izcilus aizdevuma pakalpojumus visā pasaulē.
Mēs piedāvājam visa veida aizdevumu pakalpojumus, mēs piedāvājam gan ilgtermiņa, gan īstermiņa aizdevumus, un jūs varat aizņemties līdz 15 miljoniem eiro. Mans uzņēmums palīdzēs sasniegt dažādus mērķus, izmantojot plašu aizdevuma produktu klāstu.
Mēs zinām, ka likumīga aizdevuma saņemšana vienmēr ir bijusi milzīga problēma Personām, kurām ir finansiālas problēmas un kurām ir nepieciešams risinājums, daudziem cilvēkiem ir tik grūti iegūt kapitāla aizdevumu no savām vietējām bankām vai citām finanšu institūcijām augsto interešu dēļ. likme, nepietiekams nodrošinājums, parāda un ienākumu attiecība, zems kredītreitings vai kādi citi iemesli
Vairs nav gaidīšanas laika vai stresaino bankas apmeklējumu. Mūsu pakalpojums ir pieejams visu diennakti - jūs varat saņemt aizdevumu un veikt darījumus jebkurā vietā un vietā, kur jums tas nepieciešams
Mēs sniedzam 24 stundu pasaules klases aizdevuma pakalpojumus. Jautājumiem / jautājumiem? - Nosūtīt e-pastu uz | spotcapglobalservices@gmail.com | vai nosūtiet man ziņu vietnē WhatsApp: 4915758108767 | & Saņemiet atbildi vienā mirklī.
Jūsu ģimenei, draugiem un kolēģiem nav jāzina, ka jums ir maz naudas, vienkārši rakstiet mums, un jūs saņemsit aizdevumu.
Jūsu finansiālā brīvība ir jūsu rokās!
|
| GARRETT WILSON |
2019-10-10 01:24:39 |
|
Vai jūs esat biznesa vīrietis vai sieviete? Vai jums ir kādas finanšu problēmas un jums ir nepieciešama nauda sava biznesa uzsākšanai? vai jums ir nepieciešams aizdevums sava parāda nokārtošanai vai rēķinu apmaksai vai ienesīga biznesa uzsākšanai? vai jums ir zems kredītreitings un vai jums ir grūti iegūt kapitālu / aizdevumu no vietējām bankām vai citiem finanšu institūtiem? vai jums ir nepieciešams aizdevums vai nauda personisku iemeslu dēļ? Finanšu centrs Garrett Wilson piešķir aizdevumu ar likmi 2% bez kredīta pārbaudes sazinieties ar mums pa e-pastu: (garrettwilsonfinancialcentre@aol.com)
Whatsapp: +447440212404
Garets Vilsons
Finansu menedžeris
|
| GARRETT WILSON |
2019-10-10 01:23:13 |
|
Vai jūs esat biznesa vīrietis vai sieviete? Vai jums ir kādas finanšu problēmas un jums ir nepieciešama nauda sava biznesa uzsākšanai? vai jums ir nepieciešams aizdevums sava parāda nokārtošanai vai rēķinu apmaksai vai ienesīga biznesa uzsākšanai? vai jums ir zems kredītreitings un vai jums ir grūti iegūt kapitālu / aizdevumu no vietējām bankām vai citiem finanšu institūtiem? vai jums ir nepieciešams aizdevums vai nauda personisku iemeslu dēļ? Finanšu centrs Garrett Wilson piešķir aizdevumu ar likmi 2% bez kredīta pārbaudes sazinieties ar mums pa e-pastu: (garrettwilsonfinancialcentre@aol.com)
Whatsapp: +447440212404
Garets Vilsons
Finansu menedžeris
|
| DIANA PATRICK |
2019-10-06 16:04:54 |
|
Sveiki, visi, kas tur, es ceru, ka jums, puiši, viss ir kārtībā ??? Mani vārdi ir Diāna Patrika kundze, es nācu no Ohaio, pirms dažiem mēnešiem mani iesūca sliktā finansiālā situācija, un man bija nepieciešams steidzams aizdevums, lai samaksātu rēķinus un finansiāli atgrieztos pie manis pašreizējās finansiālās situācijas dēļ mana banka atteicās lai man piešķirtu aizdevumu, tāpēc man neatlika citas iespējas kā meklēt nenodrošinātu aizdevumu tiešsaistē. Pētījuma laikā es biju krāpšanas upuris un pazaudēju gandrīz USD 1500, un es biju vairāk nepatikšanas, un es gandrīz devu cerības saņemt aizdevumu līdz brīdim, kad atradu tiešsaistes ziņu, bija postījums, ko sniedza Ērika kungs no Ņūdžersijas štatiem un kas apliecina, kā viņš pēc Damjen Finance Inc. nolasīšanas no $ 50,000 no Damian Finance Inc. nolēma sazināties ar Damian Finance Inc. pa e-pastu: (damianryanfinance@hotmail.com), kas ir kopīgota ziņojumā, mans nenodrošinātais aizdevuma pieprasījums USD 600 000 apmērā tika apstiprināts 48 stundu laikā pēc mana pieprasījuma un mans aizdevums tika samaksāts uz manu bankas kontu bez izlaiduma.
Es gribu izteikt dziļu pateicību un arī ieteikt tur esošajiem aizdevumu meklētājiem būt ļoti modriem, jo tur ir daudz krāpnieku, kuru vienīgais mērķis ir izkrāpt nevainīgus aizdevuma meklētājus, tāpēc jums, puišiem, jābūt uzmanīgiem un modriem .. tiem kam nepieciešams aizdevums Es iesaku Damian Finance Inc, jūs varat sazināties ar uzņēmumu pa e-pastu: (damianryanfinance@hotmail.com)
Paldies, ka lasījāt manu liecību, es vēlu veiksmi.
Jūsu,
Diāna Patrika.
|
| MARY MASON |
2019-10-06 13:40:13 |
|
Sky Wealth aizdevumu firma, mēs izsniedzam aizdevumus ar procentu likmi 0f 3%.
Labdien, sir / ma, esmu.
Mēs esam privāts uzņēmums un mēs piedāvājam aizdevumus ar zemām procentu likmēm, nosakot aizdevuma summu, kas ir no 100 miljoniem aizdevuma uzkrājumu no 1 000 eiro aizdevuma uzņēmējdarbības attīstībai: konkurētspējas uzlabošana uzņēmējdarbības attīstībā.
(Whatsapp numurs: +79652625435)
Mēs piedāvājam dažādus aizdevumus
* Personīgie aizdevumi (nodrošināti un nenodrošināti)
* Biznesa aizdevumi (nodrošināti un nenodrošināti)
* Konsolidācijas aizdevums
Nav iepriekšēju maksu
Mēs pateicamies, ka veltījāt laiku, lai izlasītu šo sludinājumu. Lai iegūtu papildinformāciju un jautājumus, šodien sūtiet mums e-pastu
skywealthloanfirm@gmail.com
skywealthloanfirm@gmail.com
skywealthloanfirm@gmail.com
Marija Masona kundze.
|
| MR. GEORGE ANDERSON |
2019-10-06 00:29:48 |
|
Vai jums ir nepieciešams jebkāda veida steidzams aizdevums? Aizdevumi parādu likvidēšanai vai naudas aizdošanai. Lai uzlabotu savu biznesu, jūs esat noraidījis citas bankas un finanšu iestādes? Vai jums ir nepieciešams aizdevums vai hipotēka? Šī ir vieta, kur meklēt, mēs esam šeit, lai atrisinātu visas jūsu finansiālās problēmas. Mēs aizņemamies naudu sabiedrībai. Nepieciešama finansiāla palīdzība sliktam kreditoram, kam nepieciešama nauda. Lai samaksātu par komerciālu ieguldījumu ar saprātīgu likmi 2%, ļaujiet man izmantot šo metodi, lai jūs informētu, ka mēs sniedzam uzticamu un noderīgu palīdzību un mēs būsim gatavi jums aizdot. Sazinieties ar mums šodien pa e-pastu: (georgeanderson.loanfirm255@gmail.com)
Piedāvājuma aizdevums.
|
| MR. GEORGE ANDERSON |
2019-10-06 00:29:09 |
|
Vai jums ir nepieciešams jebkāda veida steidzams aizdevums? Aizdevumi parādu likvidēšanai vai naudas aizdošanai. Lai uzlabotu savu biznesu, jūs esat noraidījis citas bankas un finanšu iestādes? Vai jums ir nepieciešams aizdevums vai hipotēka? Šī ir vieta, kur meklēt, mēs esam šeit, lai atrisinātu visas jūsu finansiālās problēmas. Mēs aizņemamies naudu sabiedrībai. Nepieciešama finansiāla palīdzība sliktam kreditoram, kam nepieciešama nauda. Lai samaksātu par komerciālu ieguldījumu ar saprātīgu likmi 2%, ļaujiet man izmantot šo metodi, lai jūs informētu, ka mēs sniedzam uzticamu un noderīgu palīdzību un mēs būsim gatavi jums aizdot. Sazinieties ar mums šodien pa e-pastu: (georgeanderson.loanfirm255@gmail.com)
Piedāvājuma aizdevums.
|
| ENDRE |
2019-10-05 21:59:29 |
|
Mēs piedāvājam kredītus 2% apjomā, mēs piedāvājam parādu konsolidācijas aizdevumus, biznesa aizdevumus, personiskos aizdevumus, automašīnu aizdevumus, viesnīcu aizdevumus, studentu kredītus, personiskos kredītus mājas refinansēšanas aizdevumiem, uzziniet vairāk E-pasts: (dakany.endre@gmail.com)
Steidzams aizdevuma piedāvājums.
|
| DIANA PATRICK |
2019-10-04 20:31:59 |
|
Sveiki, visi, kas tur, es ceru, ka jums, puiši, viss ir kārtībā ??? Mani vārdi ir Diāna Patrika kundze, es nācu no Ohaio, pirms dažiem mēnešiem mani iesūca sliktā finansiālā situācija, un man bija nepieciešams steidzams aizdevums, lai samaksātu rēķinus un finansiāli atgrieztos pie manis pašreizējās finansiālās situācijas dēļ mana banka atteicās lai man piešķirtu aizdevumu, tāpēc man neatlika citas iespējas kā meklēt nenodrošinātu aizdevumu tiešsaistē. Pētījuma laikā es biju krāpšanas upuris un pazaudēju gandrīz USD 1500, un es biju vairāk nepatikšanas, un es gandrīz devu cerības saņemt aizdevumu līdz brīdim, kad atradu tiešsaistes ziņu, bija postījums, ko sniedza Ērika kungs no Ņūdžersijas štatiem un kas apliecina, kā viņš pēc Damjen Finance Inc. nolasīšanas no $ 50,000 no Damian Finance Inc. nolēma sazināties ar Damian Finance Inc. pa e-pastu: (damianryanfinance@hotmail.com), kas ir kopīgota ziņojumā, mans nenodrošinātais aizdevuma pieprasījums USD 600 000 apmērā tika apstiprināts 48 stundu laikā pēc mana pieprasījuma un mans aizdevums tika samaksāts uz manu bankas kontu bez izlaiduma.
Es gribu izteikt dziļu pateicību un arī ieteikt tur esošajiem aizdevumu meklētājiem būt ļoti modriem, jo tur ir daudz krāpnieku, kuru vienīgais mērķis ir izkrāpt nevainīgus aizdevuma meklētājus, tāpēc jums, puišiem, jābūt uzmanīgiem un modriem .. tiem kam nepieciešams aizdevums Es iesaku Damian Finance Inc, jūs varat sazināties ar uzņēmumu pa e-pastu: (damianryanfinance@hotmail.com)
Paldies, ka lasījāt manu liecību, es vēlu veiksmi.
Jūsu,
Diāna Patrika.
|
| MORISS VILJAMSS |
2019-10-03 22:54:33 |
|
AIZDEVUMA PIEDĀVĀJUMS ... Atbildēt uz šo e-pastu: morrisloanfunds282@gmail.com
Vai jūs esat finansiāli slikts? Izmantojiet šo dzīves laika finanšu aizdevuma piedāvājumu un paceliet savu biznesu, izglītību, mājas un celtniecību. USD 10 000,00 līdz USD 50 000 000,00 ar maksimālo 60 gadu likmi 3,0%. Sazinieties ar mums, izmantojot zemāk esošo informāciju, lai mēs varētu turpināt. Sazinieties ar mums jau šodien: https
1. Pilnie vārdi: ______
2. Kontaktadrese: __________
3.Valsts __________
4. Nepieciešamā aizdevuma summa: _________
5. Aizdevuma termiņš: _________
6. Tiešais tālruņa numurs: ________
7. Aizdevuma mērķis: ________
8.vecums .__________________
9.Seks .__________________
10.Okupācija .___________
11.Mēneša ienākumi ._________
Sveicieni,
Moriss Viljamss
KONTAKTI SAZINIETIES AR ŠO EMAIL: morrisloanfunds282@gmail.com
|
| DEREKS DOUGLASS |
2019-10-03 01:39:29 |
|
Sveiki
Esmu privāts aizdevējs. Vai jums ir nepieciešams likumīgs, godīgs, nopietns un ātrs aizdevums? Es varu jums palīdzēt ar 100% garantiju aizdevumiem, es piedāvāju biznesa un personīgos aizdevumus ar 3% procentu likmi.
Lai iegūtu vairāk informācijas, sazinieties ar mums:
E-pasts: easyloanfirm2020@gmail.com
WhatsApp: +18582644849
Sveicieni
Dereks Douglass
easyloanfirm2020@gmail.com
3% aizdevuma piedāvājums
|
| DEREKS DOUGLASS |
2019-10-03 01:23:15 |
|
Sveiki
Esmu privāts aizdevējs. Vai jums ir nepieciešams likumīgs, godīgs, nopietns un ātrs aizdevums? Es varu jums palīdzēt ar 100% garantiju aizdevumiem, es piedāvāju biznesa un personīgos aizdevumus ar 3% procentu likmi.
Lai iegūtu vairāk informācijas, sazinieties ar mums:
E-pasts: easyloanfirm2020@gmail.com
WhatsApp: +18582644849
Sveicieni
Dereks Douglass
easyloanfirm2020@gmail.com
3% aizdevuma piedāvājums
|
| HAPPY DAY |
2019-10-02 22:38:15 |
|
Sveiki, visi, šeit nāk pieejamu aizdevumu piedāvājums, kas mainīs jūsu dzīvi uz visiem laikiem. TESTIMONIJA, KĀ SAŅEMU AIZDEVUMU, LAI PĀRMAIŅU MANAS ĢIMENES PIRMO DZĪVI. Mans vārds ir Clency Dexter kundze. Es dzīvoju ASV Floridā un šodien esmu laimīga sieviete? Es sev teicu, ka jebkurš aizdevuma kreditors, kas varētu mainīt manu un manas ģimenes broker dzīvi, es nosūtīšu viņiem jebkuru personu, kura meklē aizdevumu. Viņi deva laimi man un manai ģimenei, man bija vajadzīgs aizdevums USD 250 000,00 vērtībā, lai es visu dzīvi varētu sākt kā atraitne ar 3 bērniem. Es domāju šo godīgo un DIEVA baidāmo aizdevumu kreditēšanas uzņēmumu tiešsaistē, kas man palīdzēja ar USD 250 000,00 aizdevumu. Dolāri, viņi patiešām ir no Dieva baidāmi cilvēki, kas strādā ar cienījamu aizdevumu kompāniju. Ja jums ir nepieciešams aizdevums un esat pilnīgi pārliecināts, ka atmaksāsit aizdevumu, lūdzu, sazinieties ar viņiem un, lūdzu, pastāstiet viņiem, ka Klensijas kundze jūs jums nosūtīja. sazinieties pa e-pastu:
happyday99loanfirm@gmail.com
|
| LEE |
2019-10-02 13:10:05 |
|
xmas loan
This is to inform the public that Ms. mercy, personal loan lenders financial opportunity for those who need financial assistance. We provide loan interest rate by 2% for individuals, businesses and corporations in accordance with the terms that are clear and easy to understand. contact us today via email: This is to inform the public that Ms. mercy, personal loan lenders financial opportunity for those who need financial assistance. We provide loan interest rate by 2% for individuals, businesses and corporations in accordance with the terms that are clear and easy to understand. contact us today via email: johnleemill12345@gmail.com
|
| VALERIA MARCO |
2019-09-17 10:41:13 |
|
Mani sauc Valeria Marco. Pirms 6 mēnešiem mans bizness sabruka, man nebija cerību atkal atgūt savu biznesu. Es mēģināju aizņemties naudu no bankas, bet man kredītkartē nebija pietiekami daudz naudas un nebija nekāda īpašuma kā nodrošinājumu, lai saņemtu aizdevumu, tad ļoti tuvs mans draugs Camila Diego iepazīstināja mani ar īstu aizdevuma aizdevēju caur internetu ar nosaukumu GINA MORGAN LOAN COMPANY LTD. Šī sievietes aizdevumu kompānija man spēja dot aizdevumu 160 000 euro apmērā bez jebkāda īpašuma kā nodrošinājuma vai kredītkartes, bet viņa to man piešķīra, uzticoties. Tāpēc draugi es sev teicu, kāpēc esiet savtīgi, tāpēc es nolēmu dalīties ar šo informāciju visiem. Ja jums ir nepieciešams aizdevums no uzticama aizdevuma aizdevēja, sazinieties ar Džinu Morganu, izmantojot viņas e-pastu: ginamorganloancompany@gmail.com
|
| VALERIA MARCO |
2019-09-17 10:39:58 |
|
Mani sauc Valeria Marco. Pirms 6 mēnešiem mans bizness sabruka, man nebija cerību atkal atgūt savu biznesu. Es mēģināju aizņemties naudu no bankas, bet man kredītkartē nebija pietiekami daudz naudas un nebija nekāda īpašuma kā nodrošinājumu, lai saņemtu aizdevumu, tad ļoti tuvs mans draugs Camila Diego iepazīstināja mani ar īstu aizdevuma aizdevēju caur internetu ar nosaukumu GINA MORGAN LOAN COMPANY LTD. Šī sievietes aizdevumu kompānija man spēja dot aizdevumu 160 000 euro apmērā bez jebkāda īpašuma kā nodrošinājuma vai kredītkartes, bet viņa to man piešķīra, uzticoties. Tāpēc draugi es sev teicu, kāpēc esiet savtīgi, tāpēc es nolēmu dalīties ar šo informāciju visiem. Ja jums ir nepieciešams aizdevums no uzticama aizdevuma aizdevēja, sazinieties ar Džinu Morganu, izmantojot viņas e-pastu: ginamorganloancompany@gmail.com
|
| MELISSA NICHOLAS |
2019-09-16 20:27:15 |
|
Sveiki, visi, kas tur, es ceru, ka jums, puiši, viss ir kārtībā ??? Mani vārdi ir Melissa Nicholas kundze, es nāku no Kanzasas, pirms dažiem mēnešiem es biju iesūcināta sliktā finansiālā situācijā, un man bija nepieciešams steidzams aizdevums, lai samaksātu rēķinus un finansiāli atgrieztos pie kājām, jo mana pašreizējā finansiālā stāvokļa dēļ mana banka atteicās lai piešķirtu man aizdevumu, tāpēc man neatlika citas iespējas kā meklēt nenodrošinātu aizdevumu tiešsaistē. Pētījuma laikā es biju krāpšanas upuris un pazaudēju gandrīz USD 750, un es biju vairāk nepatikšanas, un es gandrīz devu cerības saņemt aizdevumu līdz brīdim, kad atradu tiešsaistes ziņu, bija amats no Kārlstonas štata Franka kunga kopīgi sniegtām liecībām, kas liecina par to, kā viņš no Kathy Finance Inc. ieguva 50 000 ASV dolāru no Kathy Finance Inc. Izlasot ziņojumu, es nolēmu sazināties ar Kathy Finance Inc. e-pasts: (kathyrichardfinance@hotmail.com) kontaktpersona, kas tika kopīgota ziņojumā, mans nenodrošinātais aizdevuma pieprasījums 350 000 USD apmērā tika apstiprināts 72 stundu laikā pēc mana pieprasījuma un mans aizdevums tika samaksāts uz manu bankas kontu bez izlaiduma.
Es gribu izteikt dziļu pateicību un arī ieteikt tur esošajiem aizdevumu meklētājiem būt ļoti modriem, jo tur ir daudz krāpnieku, kuru vienīgais mērķis ir izkrāpt nevainīgus aizdevuma meklētājus, tāpēc jums, puišiem, jābūt uzmanīgiem un modriem .. tiem kam nepieciešams aizdevums Es iesaku Kathy Finance Inc, jūs varat sazināties ar uzņēmumu pa e-pastu: (kathyrichardfinance@hotmail.com)
Paldies, ka lasījāt manu liecību, es vēlu veiksmi.
Jūsu,
Melisa Nikolaja.
|
| MELISSA NICHOLAS |
2019-09-16 18:43:32 |
|
Sveiki, visi, kas tur, es ceru, ka jums, puiši, viss ir kārtībā ??? Mani vārdi ir Melissa Nicholas kundze, es nāku no Kanzasas, pirms dažiem mēnešiem es biju iesūcināta sliktā finansiālā situācijā, un man bija nepieciešams steidzams aizdevums, lai samaksātu rēķinus un finansiāli atgrieztos pie kājām, jo mana pašreizējā finansiālā stāvokļa dēļ mana banka atteicās lai piešķirtu man aizdevumu, tāpēc man neatlika citas iespējas kā meklēt nenodrošinātu aizdevumu tiešsaistē. Pētījuma laikā es biju krāpšanas upuris un pazaudēju gandrīz USD 750, un es biju vairāk nepatikšanas, un es gandrīz devu cerības saņemt aizdevumu līdz brīdim, kad atradu tiešsaistes ziņu, bija amats no Kārlstonas štata Franka kunga kopīgi sniegtām liecībām, kas liecina par to, kā viņš no Kathy Finance Inc. ieguva 50 000 ASV dolāru no Kathy Finance Inc. Izlasot ziņojumu, es nolēmu sazināties ar Kathy Finance Inc. e-pasts: (kathyrichardfinance@hotmail.com) kontaktpersona, kas tika kopīgota ziņojumā, mans nenodrošinātais aizdevuma pieprasījums 350 000 USD apmērā tika apstiprināts 72 stundu laikā pēc mana pieprasījuma un mans aizdevums tika samaksāts uz manu bankas kontu bez izlaiduma.
Es gribu izteikt dziļu pateicību un arī ieteikt tur esošajiem aizdevumu meklētājiem būt ļoti modriem, jo tur ir daudz krāpnieku, kuru vienīgais mērķis ir izkrāpt nevainīgus aizdevuma meklētājus, tāpēc jums, puišiem, jābūt uzmanīgiem un modriem .. tiem kam nepieciešams aizdevums Es iesaku Kathy Finance Inc, jūs varat sazināties ar uzņēmumu pa e-pastu: (kathyrichardfinance@hotmail.com)
Paldies, ka lasījāt manu liecību, es vēlu veiksmi.
Jūsu,
Melisa Nikolaja.
|
| MELISSA NICHOLAS |
2019-09-16 17:19:48 |
|
Sveiki, visi, kas tur, es ceru, ka jums, puiši, viss ir kārtībā ??? Mani vārdi ir Melissa Nicholas kundze, es nāku no Kanzasas, pirms dažiem mēnešiem es biju iesūcināta sliktā finansiālā situācijā, un man bija nepieciešams steidzams aizdevums, lai samaksātu rēķinus un finansiāli atgrieztos pie kājām, jo mana pašreizējā finansiālā stāvokļa dēļ mana banka atteicās lai piešķirtu man aizdevumu, tāpēc man neatlika citas iespējas kā meklēt nenodrošinātu aizdevumu tiešsaistē. Pētījuma laikā es biju krāpšanas upuris un pazaudēju gandrīz USD 750, un es biju vairāk nepatikšanas, un es gandrīz devu cerības saņemt aizdevumu līdz brīdim, kad atradu tiešsaistes ziņu, bija amats no Kārlstonas štata Franka kunga kopīgi sniegtām liecībām, kas liecina par to, kā viņš no Kathy Finance Inc. ieguva 50 000 ASV dolāru no Kathy Finance Inc. Izlasot ziņojumu, es nolēmu sazināties ar Kathy Finance Inc. e-pasts: (kathyrichardfinance@hotmail.com) kontaktpersona, kas tika kopīgota ziņojumā, mans nenodrošinātais aizdevuma pieprasījums 350 000 USD apmērā tika apstiprināts 72 stundu laikā pēc mana pieprasījuma un mans aizdevums tika samaksāts uz manu bankas kontu bez izlaiduma.
Es gribu izteikt dziļu pateicību un arī ieteikt tur esošajiem aizdevumu meklētājiem būt ļoti modriem, jo tur ir daudz krāpnieku, kuru vienīgais mērķis ir izkrāpt nevainīgus aizdevuma meklētājus, tāpēc jums, puišiem, jābūt uzmanīgiem un modriem .. tiem kam nepieciešams aizdevums Es iesaku Kathy Finance Inc, jūs varat sazināties ar uzņēmumu pa e-pastu: (kathyrichardfinance@hotmail.com)
Paldies, ka lasījāt manu liecību, es vēlu veiksmi.
Jūsu,
Melisa Nikolaja.
|
| MELISSA NICHOLAS |
2019-09-16 13:30:24 |
|
Sveiki, visi, kas tur, es ceru, ka jums, puiši, viss ir kārtībā ??? Mani vārdi ir Melissa Nicholas kundze, es nāku no Kanzasas, pirms dažiem mēnešiem es biju iesūcināta sliktā finansiālā situācijā, un man bija nepieciešams steidzams aizdevums, lai samaksātu rēķinus un finansiāli atgrieztos pie kājām, jo mana pašreizējā finansiālā stāvokļa dēļ mana banka atteicās lai piešķirtu man aizdevumu, tāpēc man neatlika citas iespējas kā meklēt nenodrošinātu aizdevumu tiešsaistē. Pētījuma laikā es biju krāpšanas upuris un pazaudēju gandrīz USD 750, un es biju vairāk nepatikšanas, un es gandrīz devu cerības saņemt aizdevumu līdz brīdim, kad atradu tiešsaistes ziņu, bija amats no Kārlstonas štata Franka kunga kopīgi sniegtām liecībām, kas liecina par to, kā viņš no Kathy Finance Inc. ieguva 50 000 ASV dolāru no Kathy Finance Inc. Izlasot ziņojumu, es nolēmu sazināties ar Kathy Finance Inc. e-pasts: (kathyrichardfinance@hotmail.com) kontaktpersona, kas tika kopīgota ziņojumā, mans nenodrošinātais aizdevuma pieprasījums 350 000 USD apmērā tika apstiprināts 72 stundu laikā pēc mana pieprasījuma un mans aizdevums tika samaksāts uz manu bankas kontu bez izlaiduma.
Es gribu izteikt dziļu pateicību un arī ieteikt tur esošajiem aizdevumu meklētājiem būt ļoti modriem, jo tur ir daudz krāpnieku, kuru vienīgais mērķis ir izkrāpt nevainīgus aizdevuma meklētājus, tāpēc jums, puišiem, jābūt uzmanīgiem un modriem .. tiem kam nepieciešams aizdevums Es iesaku Kathy Finance Inc, jūs varat sazināties ar uzņēmumu pa e-pastu: (kathyrichardfinance@hotmail.com)
Paldies, ka lasījāt manu liecību, es vēlu veiksmi.
Jūsu,
Melisa Nikolaja.
|
| MARCUS & MILLICHAP |
2019-09-16 11:39:50 |
|
Labdien, dāmas un kungi! Vai jums ir nepieciešams steidzams aizdevums? Vai jums ir nepieciešams aizdevums, lai sāktu savu biznesu vai projektu vai iegādātos māju vai automašīnu? Vai jums ir nepieciešams aizdevums, lai dzēstu parādus vai samaksātu rēķinus? Ja atbilde ir apstiprinoša, sazinieties ar mums tagad, izmantojot e-pastu (pinnaclefinancegroupinc@gmail.com), lai saņemtu ātro aizdevumu
Mēs esam globāla kreditēšanas organizācija, kas nodarbojas ar ātru, nodrošinātu un nenodrošinātu naudas aizdevumu sniegšanu privātpersonām un uzņēmumiem ar subsidētu procentu likmi 2%. Mēs esam palīdzējuši daudziem cilvēkiem un organizācijām, kas ir saskārušies ar finansiālām grūtībām visā pasaulē. Kad jūs piesakāties kopā ar mums, jūs piesakāties pie uzticama uzņēmuma, kas rūpējas par jūsu finansēšanas vajadzībām. Mēs par jums rūpēsimies visa procesa laikā.
MŪSU KREDĪTU PAKALPOJUMI IETVER;
* PERSONAS AIZDEVUMS
* UZŅĒMĒJDARBĪBAS AIZDEVUMS
* Hipotēkas aizdevums
Lai atmaksātu aizdevumu (drošs un nenodrošināts), mēs piedāvājam aizdevumus no minimālā diapazona no USD 1000 līdz maksimāli USD 10 miljoniem un aizdevuma ilgumu no 1 līdz 30 gadiem.
Mūsu mērķis ir sniegt izcilus profesionālus finanšu pakalpojumus.
Neuzņemieties savas finansiālās problēmas pie sevis, lai jūs nekļūtu parādu pārvaldnieks vai finansiāls stress, tāpēc jums ātri jāsazinās ar mums, lai rastu risinājumu savām finanšu problēmām. Mums būs liels prieks, kad būsit finansiāli stabils.
Lai iegūtu papildinformāciju par mūsu aizdevuma piedāvājumu, sazinieties ar mums, izmantojot šo e-pastu: (pinnaclefinancegroupinc@gmail.com)
Ar cieņu,
Marcus & Millichap
|
| MR MARK |
2019-09-09 11:15:32 |
|
Sveiki, vai jūs steidzami meklējat aizdevumu, lai atrisinātu savas finansiālās problēmas? E-pasts markwilliamstrustfirm@gmail.com
|
| GARRETT WILSON |
2019-09-06 21:01:38 |
|
Vai jūs esat biznesa vīrietis vai sieviete? Vai jums ir kādas finanšu problēmas un jums ir nepieciešama nauda sava biznesa uzsākšanai? vai jums ir nepieciešams aizdevums sava parāda nokārtošanai vai rēķinu apmaksai vai ienesīga biznesa uzsākšanai? vai jums ir zems kredītreitings un vai jums ir grūti iegūt kapitālu / aizdevumu no vietējām bankām vai citiem finanšu institūtiem? vai jums ir nepieciešams aizdevums vai nauda personisku iemeslu dēļ? Garrett Wilson piedāvā aizdevumu ar zemu procentu likmi 2% un bez kredīta pārbaudes mēs piedāvājam individuālus aizdevumus, parādu konsolidācijas aizdevumus, riska kapitālu, biznesa aizdevumus, izglītības aizdevumus, mājas aizdevumus vai aizdevumus jebkura iemesla dēļ, mēs piedāvājam jebkādu aizdevuma summu jums tas būtu nepieciešams sava iemesla dēļ. sazinieties ar mums pa e-pastu: garrettwilsonfinancialcentre@aol.com
INFORMĀCIJA AIZŅĒMĒJAM
1) Pilnie vārdi:
2) Valsts:
3) adrese:
4) Valsts:
5) dzimums:
6) Ģimenes stāvoklis:
7) Nodarbošanās:
8) Tālruņa numurs:
9) Mēneša ienākumi:
10) Nepieciešamā aizdevuma summa:
11) Aizdevuma ilgums:
12) Aizdevuma mērķis:
sazinieties ar mums pa e-pastu (garrettwilsonfinancialcentre@aol.com)
Es ceru dzirdēt no jums, lai turpinātu
|
| GARRETT WILSON |
2019-09-06 21:00:22 |
|
Vai jūs esat biznesa vīrietis vai sieviete? Vai jums ir kādas finanšu problēmas un jums ir nepieciešama nauda sava biznesa uzsākšanai? vai jums ir nepieciešams aizdevums sava parāda nokārtošanai vai rēķinu apmaksai vai ienesīga biznesa uzsākšanai? vai jums ir zems kredītreitings un vai jums ir grūti iegūt kapitālu / aizdevumu no vietējām bankām vai citiem finanšu institūtiem? vai jums ir nepieciešams aizdevums vai nauda personisku iemeslu dēļ? Garrett Wilson piedāvā aizdevumu ar zemu procentu likmi 2% un bez kredīta pārbaudes mēs piedāvājam individuālus aizdevumus, parādu konsolidācijas aizdevumus, riska kapitālu, biznesa aizdevumus, izglītības aizdevumus, mājas aizdevumus vai aizdevumus jebkura iemesla dēļ, mēs piedāvājam jebkādu aizdevuma summu jums tas būtu nepieciešams sava iemesla dēļ. sazinieties ar mums pa e-pastu: garrettwilsonfinancialcentre@aol.com
INFORMĀCIJA AIZŅĒMĒJAM
1) Pilnie vārdi:
2) Valsts:
3) adrese:
4) Valsts:
5) dzimums:
6) Ģimenes stāvoklis:
7) Nodarbošanās:
8) Tālruņa numurs:
9) Mēneša ienākumi:
10) Nepieciešamā aizdevuma summa:
11) Aizdevuma ilgums:
12) Aizdevuma mērķis:
sazinieties ar mums pa e-pastu (garrettwilsonfinancialcentre@aol.com)
Es ceru dzirdēt no jums, lai turpinātu
|
| JAME SMICHAEL |
2019-09-03 01:48:49 |
|
Vai jums ir nepieciešams steidzams aizdevums, lai samaksātu parādus? Ja jā, sūtīt mums e-pastu jamesmichaelloanservices@yahoo.com, lai iegūtu sīkāku informāciju
|
| JOYCE |
2019-08-25 19:30:03 |
|
Es vēlos izmantot šo līdzekli, lai izteiktu pateicību Sun trust aizdevuma pakalpojumiem par viņa solījuma izpildi, piešķirot man aizdevumu, es biju iestrēdzis finansiālā situācijā un man vajadzēja refinansēt un samaksāt rēķinus, kā arī uzsākt uzņēmējdarbību. Es mēģināju meklēt aizdevumus no dažādām aizdevumu firmām gan privātām, gan korporatīvām organizācijām, bet nekad tas neizdevās, un vairums banku noraidīja manu kredīta pieprasījumu. "Sazinieties ar viņiem tiešsaistē, izmantojot zemas procentu likmes 3% un labākus atmaksas plānus / grafiku. Jūs varat sazināties ar viņiem pa e-pastu uz {medallonfinancia@gmail.com} vai (medallonfinancia@hotmail.com).
|
| HAPPY DAY |
2019-08-20 20:54:09 |
|
Sveiki, visi, šeit nāk pieejamu aizdevumu piedāvājums, kas mainīs jūsu dzīvi uz visiem laikiem. TESTIMONIJA, KĀ SAŅEMU AIZDEVUMU, LAI PĀRMAIŅU MANAS ĢIMENES PIRMO DZĪVI. Mans vārds ir Klensija Dekstera kundze. Es dzīvoju ASV Floridā un vai šodien esmu laimīga sieviete? Es sev teicu, ka jebkurš aizdevuma kreditors, kas varētu mainīt manu un manas ģimenes broker dzīvi, es norādīšu viņiem jebkuru personu, kura meklē aizdevumu. Viņi deva laimi man un manai ģimenei, man bija vajadzīgs aizdevums USD 250 000,00 apmērā, lai visu dzīvi varētu sākt kā atraitne ar 3 bērniem. Es domāju šo godīgo un DIEVA baidāmo aizdevumu kreditēšanas uzņēmumu tiešsaistē, kas man palīdzēja ar USD 250 000,00 aizdevumu. Dolāri, viņi patiešām ir no Dieva baidāmi cilvēki, kas strādā ar cienījamu aizdevumu kompāniju. Ja jums ir nepieciešams aizdevums un jūs esat pārliecināts, ka atmaksāsit aizdevumu, lūdzu, sazinieties ar viņiem un, lūdzu, pastāstiet viņiem, ka kundze, Klensija jūs viņiem nosūtīja. sazinieties pa e-pastu:
happyday99loanfirm@gmail.com
|
| MR MARK |
2019-08-16 18:51:49 |
|
Vai jūs esat biznesmenis vai sieviete? Vai jums ir nepieciešami resursi sava biznesa uzsākšanai? Vai jums ir nepieciešams aizdevums, lai nomaksātu savu parādu vai samaksātu rēķinus vai veiktu jauku biznesu? Vai jums ir nepieciešami līdzekļi sava finansēšanai
projekts? Mēs piedāvājam garantētus aizdevumu pakalpojumus jebkurā apjomā un jebkurā pasaules malā (privātpersonām, uzņēmumiem, uzņēmumiem un juridiskām personām) ar mūsu lielisko 2% procentu likmi. Lai reģistrētos un iegūtu vairāk informācijas, lūdzu, atbildiet uz šo e-pasta adresi:
markanthonyeasyloanfirm@gmail.com Paldies
|
| RUTH |
2019-08-13 00:54:03 |
|
Pēc vārda is esmu Vera Lopesa, is dzīvoju Kalifornijā, Amerikas Savienotajās Valstīs, kura laika posmā not pagājušā gadha februāra līdz šī gada janvārim go kļuvusi couple krāpniecības upuri tik daudziem viltotiem aizdevējiem tiešsaistē, beth is pateicos savam veidotājam, ka viņš beidzot ir smaidījis is, novirzot mani foot šī jaunā aizdevēja, kurš man 2019. gadā uzsmaidīja man sejā, a viņš mani nav izkrāpis a arī mani nemaldinājis vai melojot, bet tomēr šis aizdevējs, kura vārds ir Valeria Ali kundze, man piešķīra 2% aizdevumu, kas summa to go to USD 560 000 Amerikas Savienoto Valstu dolāri pēc tam, kad esmu piekritusi viņu uzņēmuma noteikumiem a nosacījumiem, a vienna nozīmīga lieta, kas man patīk par šo aizdevumu kompāniju, ir arī tā, ka tā ir ātra a uzticama, tāpēc mani aizgādņi a māsas jūs varat sazināties ar uzņēmumu tieši caur uzņēmuma e-pastu: valleriaali67@gmail.com
|
| JURGEN |
2019-08-12 20:04:37 |
|
Sveiki, vai jums ir ļoti nepieciešams aizdevums? vai jums ir nepieciešams ārkārtas aizdevums? Mēs palīdzēsim jums saņemt ātru naudas aizdevumu, lai atrisinātu savas finansiālās problēmas ar ļoti zemu procentu likmi - 3%. Šī finansēšanas programma ļauj klientam izbaudīt zemu procentu atmaksu.
Mēs piedāvājam visa veida aizdevumus neatkarīgi no tā, vai tie ir medicīnas rēķini, skolas maksa, algas dienas avanss, biznesa aizdevums, personīgais aizdevums vai negaidītas naudas problēmas e.t.c. Mūsu pakalpojums ir ātrs, drošs, uzticams.
Vairs nav gaidīšanas laika vai stresaino bankas apmeklējumu. Mūsu pakalpojums ir pieejams visu diennakti - jūs varat saņemt aizdevumu un veikt darījumus jebkurā vietā un vietā, kur jums tas nepieciešams
Mēs sniedzam 24 stundu pasaules klases atbalstu. Jautājumiem / jautājumiem? - Nosūtiet e-pastu uz adresi (financialmarketservice@gmail.com) un saņemiet atbildi dažu minūšu laikā.
|
| SUSAN BENSON |
2019-08-11 09:48:52 |
|
Sveiki, vai jums steidzami nepieciešams biznesa aizdevums, personīgais aizdevums vai hipotēkas aizdevums? Ja jā, es ieteiktu jums sazināties ar mums vietnē Sunshine Financial Group, izmantojot šo e-pasta adresi (sunshinefinancialgroupinc@gmail.com), lai saņemtu savu aizdevumu 24 līdz 48 stundu laikā. Mēs piedāvājam garantētu palīdzību aizdevuma iegūšanā.
{WhatsApp: 00447903159998}
Sazinieties ar mani jau šodien, un jūs priecāsities, ka izdarījāt, un pats svarīgākais - NAV Slēptas maksas
|
| ŠARONA SIM |
2019-08-04 02:50:13 |
|
Mani sauc Šarona Sim kundze. Es dzīvoju Singapūrā un vai šodien esmu laimīgs cilvēks? un es sev teicu, ka jebkuru kreditoru, kurš glābs manu ģimeni no mūsu sliktās situācijas, es nosūtīšu ikvienam, kurš meklē sev aizdevumu, viņa man un manai ģimenei deva laimi, man bija nepieciešams aizdevums USD apmērā 250 000 Lai sāktu savu dzīvi no jauna, tā kā esmu vientuļais tēvs ar 3 bērniem, es satiku šo godīgo un DIEVA vīriešu kreditētāju, kurš man palīdzēja ar aizdevumu 250 000,00 USD apmērā, viņš baidās no DIEVA, ja jums ir nepieciešams aizdevums, un jūs to darīsit Lai atgrieztu kredītu, lūdzu, sazinieties ar viņu un pasakiet, ka tieši Šarona ir tā, kas jūs virzīs pie viņa. Sazinieties, izmantojot WhatsApp e-pastu: +2349054758903 (jasminnoorloancompany01@gmail.com) Paldies
|
| KAYODE Виктория |
2019-08-04 01:21:35 |
|
Sveiki, visi. Pirms trim mēnešiem man tiešām bija nepieciešams aizdevums, lai samaksātu lielāko daļu rēķinu, kas sevišķi ietvēra manas bērnu skolas nodevas. Es biju tik satriekts un pat plānoju sevi nogalināt, jo tēvs, kurš nevar iemācīt savus bērnus, nepavisam nav tēvs ... tad mans Draugs man pastāstīja par jasmin noor, kas ir mana finansiālā stāvokļa brīnums. Es pieprasīju aizdevumu 500 000 eiro apmērā ar procentu likmi 3% un pēc visa nepieciešamā procesa veikšanas es saņēmu savu aizdevumu bez stresa. Tā ir taisnība, ka viņa ir brīnums, es varu mirušajā sievā zvērēt, ka viņa ir ļoti īsta, sazinieties ar viņu, ja jums tiešām ir nepieciešams aizdevums, sazinieties ar: e-pastu; (jasminnoorloancompany01@gmail.com)
|
| SUSAN BENSON |
2019-07-25 20:43:46 |
|
Sveiki, Vai jums ir steidzami vajadzīgs uzņēmējdarbības aizdevums, personīgais aizdevums vai hipotekārais kredīts? Ja jā, es jums ieteikšu sazināties ar mums Sunshine Financial Group, izmantojot šo e-pasta adresi (sunshinefinancialgroupinc@gmail.com), lai saņemtu savu aizdevumu 24 līdz 48 stundu laikā. Mēs piedāvājam garantētu palīdzību aizdevuma saņemšanā.
Mūsu organizācija sniedz palīdzību aizdevuma saņemšanai personām, kurām steidzami nepieciešama finansiāla palīdzība, un mēs to darām jau vairāk nekā 5 gadus.
Mēs piedāvājam aizdevumus visā pasaulē.
Lai iegūtu vairāk informācijas, sazinieties ar mums
E-pasts: (sunshinefinancialgroupinc@gmail.com)
Tālrunis (WhatsApp): (+447903159998)
Paldies
Susan Benson
|
| MELISSA NICHOLAS |
2019-07-16 15:48:26 |
|
Sveiki visi, tur, es ceru, ka jūs visi esat labi? Mani vārdi ir Melissa Nicholas kundze, es nāku no Kanzasas, pirms dažiem mēnešiem es biju iesūcis sliktā finansiālā situācijā, un man vajadzēja steidzamu aizdevumu, lai samaksātu rēķinus un finansiāli atgrieztos pie kājām, jo mana pašreizējā finansiālā situācija manā bankā noraidīja lai dotu man aizdevumu, tāpēc man nebija citas iespējas, kā meklēt internetā nenodrošinātu aizdevumu, manas pētniecības procesā es biju krāpšanas upuris, un es zaudēju gandrīz $ 750, un man bija vairāk nepatikšanas, un man bija vairāk problēmu līdz ceram iegūt aizdevumu līdz brīdim, kad es atradīšu tiešsaistes ziņu par šo posteni bija kopīga liecība no Frankas kunga no Čārlstonas valstīm, kas liecina par to, kā viņš ieguva $ 50,000 no Kathy Finance Inc. pēc ziņojuma izlasīšanas Es nolēmu sazināties ar Kathy Finance Inc. e-pasts: (kathyrichardfinance@hotmail.com) kontaktpersona, kas kopīgota ziņojumā, mans nenodrošinātais aizdevuma pieprasījums - 350 000 ASV dolāru - tika apstiprināts 72 stundu laikā pēc mana pieprasījuma un mans kredīts tika izmaksāts manā bankas kontā bez izlaiduma.
Es vēlos izteikt savu dziļu pateicību un arī konsultēt aizdevuma meklētājus, lai tur būtu ļoti modri, jo tur ir daudzi scammers, kuru vienīgais mērķis ir apkrāpt nevainīgos aizdevuma meklētājus, tāpēc jums ir jābūt uzmanīgiem un modriem. kuriem ir nepieciešams kredīts Es iesaku Kathy Finance Inc, jūs varat sazināties ar uzņēmumu pa e-pastu: (kathyrichardfinance@hotmail.com)
Paldies, ka lasījāt manu liecību, novēlu jums veiksmi.
Jūsu,
Melissa Nicholas.
|
| MELISSA NICHOLAS |
2019-07-16 01:59:14 |
|
Sveiki visi, tur, es ceru, ka jūs visi esat labi? Mani vārdi ir Melissa Nicholas kundze, es nāku no Kanzasas, pirms dažiem mēnešiem es biju iesūcis sliktā finansiālā situācijā, un man vajadzēja steidzamu aizdevumu, lai samaksātu rēķinus un finansiāli atgrieztos pie kājām, jo mana pašreizējā finansiālā situācija manā bankā noraidīja lai dotu man aizdevumu, tāpēc man nebija citas iespējas, kā meklēt internetā nenodrošinātu aizdevumu, manas pētniecības procesā es biju krāpšanas upuris, un es zaudēju gandrīz $ 750, un man bija vairāk nepatikšanas, un man bija vairāk problēmu līdz ceram iegūt aizdevumu līdz brīdim, kad es atradīšu tiešsaistes ziņu par šo posteni bija kopīga liecība no Frankas kunga no Čārlstonas valstīm, kas liecina par to, kā viņš ieguva $ 50,000 no Kathy Finance Inc. pēc ziņojuma izlasīšanas Es nolēmu sazināties ar Kathy Finance Inc. e-pasts: (kathyrichardfinance@hotmail.com) kontaktpersona, kas kopīgota ziņojumā, mans nenodrošinātais aizdevuma pieprasījums - 350 000 ASV dolāru - tika apstiprināts 72 stundu laikā pēc mana pieprasījuma un mans kredīts tika izmaksāts manā bankas kontā bez izlaiduma.
Es vēlos izteikt savu dziļu pateicību un arī konsultēt aizdevuma meklētājus, lai tur būtu ļoti modri, jo tur ir daudzi scammers, kuru vienīgais mērķis ir apkrāpt nevainīgos aizdevuma meklētājus, tāpēc jums ir jābūt uzmanīgiem un modriem. kuriem ir nepieciešams kredīts Es iesaku Kathy Finance Inc, jūs varat sazināties ar uzņēmumu pa e-pastu: (kathyrichardfinance@hotmail.com)
Paldies, ka lasījāt manu liecību, novēlu jums veiksmi.
Jūsu,
Melissa Nicholas.
|
| MELISSA NICHOLAS |
2019-07-16 01:57:04 |
|
Sveiki visi, tur, es ceru, ka jūs visi esat labi? Mani vārdi ir Melissa Nicholas kundze, es nāku no Kanzasas, pirms dažiem mēnešiem es biju iesūcis sliktā finansiālā situācijā, un man vajadzēja steidzamu aizdevumu, lai samaksātu rēķinus un finansiāli atgrieztos pie kājām, jo mana pašreizējā finansiālā situācija manā bankā noraidīja lai dotu man aizdevumu, tāpēc man nebija citas iespējas, kā meklēt internetā nenodrošinātu aizdevumu, manas pētniecības procesā es biju krāpšanas upuris, un es zaudēju gandrīz $ 750, un man bija vairāk nepatikšanas, un man bija vairāk problēmu līdz ceram iegūt aizdevumu līdz brīdim, kad es atradīšu tiešsaistes ziņu par šo posteni bija kopīga liecība no Frankas kunga no Čārlstonas valstīm, kas liecina par to, kā viņš ieguva $ 50,000 no Kathy Finance Inc. pēc ziņojuma izlasīšanas Es nolēmu sazināties ar Kathy Finance Inc. e-pasts: (kathyrichardfinance@hotmail.com) kontaktpersona, kas kopīgota ziņojumā, mans nenodrošinātais aizdevuma pieprasījums - 350 000 ASV dolāru - tika apstiprināts 72 stundu laikā pēc mana pieprasījuma un mans kredīts tika izmaksāts manā bankas kontā bez izlaiduma.
Es vēlos izteikt savu dziļu pateicību un arī konsultēt aizdevuma meklētājus, lai tur būtu ļoti modri, jo tur ir daudzi scammers, kuru vienīgais mērķis ir apkrāpt nevainīgos aizdevuma meklētājus, tāpēc jums ir jābūt uzmanīgiem un modriem. kuriem ir nepieciešams kredīts Es iesaku Kathy Finance Inc, jūs varat sazināties ar uzņēmumu pa e-pastu: (kathyrichardfinance@hotmail.com)
Paldies, ka lasījāt manu liecību, novēlu jums veiksmi.
Jūsu,
Melissa Nicholas.
|
| MELISSA NICHOLAS |
2019-07-14 04:01:27 |
|
Sveiki visi, tur, es ceru, ka jūs visi esat labi? Mani vārdi ir Melissa Nicholas kundze, es nāku no Kanzasas, pirms dažiem mēnešiem es biju iesūcis sliktā finansiālā situācijā, un man vajadzēja steidzamu aizdevumu, lai samaksātu rēķinus un finansiāli atgrieztos pie kājām, jo mana pašreizējā finansiālā situācija manā bankā noraidīja lai dotu man aizdevumu, tāpēc man nebija citas iespējas, kā meklēt internetā nenodrošinātu aizdevumu, manas pētniecības procesā es biju krāpšanas upuris, un es zaudēju gandrīz $ 750, un man bija vairāk nepatikšanas, un man bija vairāk problēmu līdz ceram iegūt aizdevumu līdz brīdim, kad es atradīšu tiešsaistes ziņu par šo posteni bija kopīga liecība no Frankas kunga no Čārlstonas valstīm, kas liecina par to, kā viņš ieguva $ 50,000 no Kathy Finance Inc. pēc ziņojuma izlasīšanas Es nolēmu sazināties ar Kathy Finance Inc. e-pasts: (kathyrichardfinance@hotmail.com) kontaktpersona, kas kopīgota ziņojumā, mans nenodrošinātais aizdevuma pieprasījums - 350 000 ASV dolāru - tika apstiprināts 72 stundu laikā pēc mana pieprasījuma un mans kredīts tika izmaksāts manā bankas kontā bez izlaiduma.
Es vēlos izteikt savu dziļu pateicību un arī konsultēt aizdevuma meklētājus, lai tur būtu ļoti modri, jo tur ir daudzi scammers, kuru vienīgais mērķis ir apkrāpt nevainīgos aizdevuma meklētājus, tāpēc jums ir jābūt uzmanīgiem un modriem. kuriem ir nepieciešams kredīts Es iesaku Kathy Finance Inc, jūs varat sazināties ar uzņēmumu pa e-pastu: (kathyrichardfinance@hotmail.com)
Paldies, ka lasījāt manu liecību, novēlu jums veiksmi.
Jūsu,
Melissa Nicholas.
|
| BURGENLAND |
2019-07-13 14:01:53 |
|
Hello everyone, there, I hope you are all right? My words are Ms. Melissa Nicholas, I come from Kansas, a few months ago I was in a bad financial situation and I needed an urgent loan to pay my bills and return financially because my current financial situation in my bank refused to give me loan, so I had no other way to search for unsecured loans on the internet, I was a victim of fraud in my research process, and I lost almost $ 750 and I had more trouble and I had more problems until I hope to get a loan until I find The online news about this item was a joint testimony from Mr Frank of Charleston countries, which shows how he got $ 50,000 from Kathy Finance Inc. After Reading the Report I decided to contact Kathy Finance Inc. e-mail: (kathyrichardfinance@hotmail.com), my unsecured loan request - $ 350,000 - was approved within 72 hours of my request and my credit was disbursed to my bank account without release.
I would like to express my deep gratitude and also the need for a great deal of scammers, so you should be careful and vigilant. who need credit I recommend Kathy Finance Inc
, I wish you good luck.
Your, Melissa Nicholas.
|
| MR. GEORGE ANDERSON |
2019-07-11 15:25:38 |
|
Vai jums ir nepieciešams jebkāds steidzams aizdevums? Kredīti parādu dzēšanai vai nepieciešamība aizdot naudu. Lai uzlabotu savu biznesu, jūs esat noraidījušas visas bankas un citas finanšu iestādes? Vai jums ir nepieciešams aizdevums vai hipotēka? Šī ir vieta, kur meklēt, mēs esam šeit, lai atrisinātu visas jūsu finansiālās problēmas. Mēs aizņemam naudu sabiedrībai. Nepieciešams finansiāls atbalsts ar sliktu kreditoru, kuram nepieciešama nauda. Lai samaksātu par uzņēmējdarbības investīcijām par saprātīgu 2% likmi, ļaujiet man izmantot šo informācijas nesēju, lai informētu, ka mēs piedāvājam uzticamu un noderīgu palīdzību un būsim gatavi jums aizdot. Sazinieties ar mums šodien pa e-pastu: (georgeanderson.loanfirm255@gmail.com)
Aizdevuma piedāvājums
|
| JOSE SAN |
2019-07-10 15:25:42 |
|
Labā diena,
Vai jums ir jebkāda veida finanšu aizdevumu problēma? vai jums ir nepieciešams ātrs aizdevums, lai dzēstu debetu un atgrieztos biznesā Pēc procentu likmes 3%? Ja jā, sazinieties ar mums, izmantojot mūsu e-pasta adresi: exxonmobil191@outlook.com
Lūdzu, sniedziet mums sekojošu informāciju:
1) Pilnie vārdi: ............
2) Dzimums: .................
3) Vecums: ........................
4) Valsts: .................
5) Tālruņa numurs: ........
6) Nodarbošanās: ..............
7) Ikmēneša ienākumi: ......
8) Nepieciešamā aizdevuma summa: .....
9) Aizdevuma ilgums: ...............
10) Aizdevuma mērķis: ...........
Paldies
|
| KREDīTA |
2019-07-01 14:28:17 |
|
Cienījamie kredīta meklētāji
Jums ir kādas finansiālas grūtības? Vai vēlaties sākt savu biznesu? Šī aizdevumu sabiedrība tika izveidota ar cilvēktiesību organizācijām visā pasaulē, kuras vienīgais mērķis ir palīdzēt nabadzīgajiem un cilvēkiem ar finanšu grūtībām dzīvē. Ja vēlaties pieteikties aizdevumam, atgriezieties pie mums ar informāciju zemāk: e-pasts: elenanino0007@gmail.com
Nosaukums:
Nepieciešamā kredīta summa:
Kredīta ilgums:
Mobilā telefona numurs:
Paldies un Dievs svētī
NODROŠINĀŠANA
Elena
|
| 2300 |
2019-06-24 12:25:51 |
|
Vai jums ir nepieciešams aizdevums, lai finansētu savu projektu? Vai jums ir nepieciešams steidzams aizdevums, lai atmaksātu parādus? Vai jums ir nepieciešams aizdevums, lai paplašinātu vai izveidotu savu biznesu? Vai jums ir nepieciešams personisks aizdevums? Ja jūs interesē, lūdzu, sazinieties ar mums
e-pasts: avantcworld@gmail.com,
whatsapp: +13219993670
Aleksandrs
Pieteikties steidzamiem aizdevumiem,
|
| 2300 |
2019-06-24 12:25:51 |
|
Vai jums ir nepieciešams aizdevums, lai finansētu savu projektu? Vai jums ir nepieciešams steidzams aizdevums, lai atmaksātu parādus? Vai jums ir nepieciešams aizdevums, lai paplašinātu vai izveidotu savu biznesu? Vai jums ir nepieciešams personisks aizdevums? Ja jūs interesē, lūdzu, sazinieties ar mums
e-pasts: avantcworld@gmail.com,
whatsapp: +13219993670
Aleksandrs
Pieteikties steidzamiem aizdevumiem,
|
| SKAIDRA VESETA SPIDO |
2019-06-18 22:01:56 |
|
Pateicamies Patricia Kingsman, ka viņš palīdzēja man ar savu aizdevumu pēc tam, kad viltus cilvēkus, kas gliemežus par aizdevuma aizdevējiem, 6 reizes nomāca.
Mans vārds ir Skaidra Veseta Spidola, es esmu no Latvijas un dzīvoju Rīgas pilsētā. Pirms mēneša es meklēju tiešsaistes aizdevumu, un es redzēju dažādus aizdevuma aizdevējus internetā un ar dažām viltotām liecībām, un es no viņiem pieprasīju, un viss, kas man bija, bija scammers, ko es pielietoju vairāk nekā 6 uzņēmumos, un es tiku cheated visu ceļu. Tāpēc es pametu cerību, kamēr es nolēmu pārbaudīt vēlreiz, ja es atradīšu palīdzību, jo es meklēju, un es apmetos uz leju, lai meklētu leģitīvu aizdevumu uzņēmumu, kuru es atklāju šī uzņēmuma vārdā Patricia Kingsman aizdevumu kompānija, es redzēju daudz liecību, ka cilvēki komentē viņai, bet tāpēc, ka man bija cheated atsevišķi, es domāju, ka tas bija scam, bet es darīju to, kas man tika lūgts darīt, un es gaidīju savu aizdevumu un Patricia Kingsman kundze man teica mazāk nekā 8 stundas, kad jūs droši vien būsiet kopā ar savu aizdevumu tāpēc, ka es domāju, ka tas bija arī scam, ka tā diena bija nakts laiks Latvijā, un es gulēju no ligzdas rīta, kad es pamodos, ka saņēmu brīdinājumu no manas bankas, ka manā kontā ir nauda un nekavējoties es aicināju savu banku apstiprināt un bankas vadītājs man teica, ka es nekavējoties atnācu uz banku, un es nekavējoties aizgāju, kad banka tika atvērta, jo bankas vadītājs pārbaudīja manu kontu, mēs redzējām summu 135 000,00 eiro, kas ir ASV dolāri, un es paskaidroju savam vadītājam, ka es pieteicos aizdevums tiešsaistē un mana banka pārvalda r bija satriekts, ja internetā joprojām bija reāls un likumīgs aizdevuma uzņēmums, un es esmu tik laimīgs, pateicoties Patricia Kingsman, es nolēmu rakstīt internetā, jo es redzēju, ka citi cilvēki to dara, un liecinu par šo uzņēmumu, tāpēc es publicēju šo ziņojumu tiešsaistē ikvienam, kuram ir nepieciešams aizdevums, pat ja esat bijis pirms tam, kad esat bijis cheated, piesakies no šī uzņēmuma un būt drošs, ka šis uzņēmums jums neļaus. Mani uzskati ikvienam, kas lasa manu ziņu, un jūs varat sazināties ar šo uzņēmumu pa pastu patriciakingsman.loans2016@gmail.com, viņi arī izmanto Whatsapp, kuru skaits ir +1 (575) 655-0066. Vēlreiz mans uzskats par ikvienu, kas lasa manu vēstījumu, un es lūdzu jūs esat laimīgi, jo es šodien esmu kopā ar šo uzņēmumu, jo man ir vairāk cilvēku, lai šis uzņēmums palīdzētu.
|
| KOJONKA MOE |
2019-06-18 22:01:32 |
|
Es uzskatu, ka visi mani sauc par Kojonka Moe un esmu no Latvijas, un esmu dzirdējis par cilvēkiem, kas liecina par šo uzņēmumu Patricia Kingsman, un šī ir mana pirmā reize, kad piesakos internetam, jo baidījos pieteikties uz tiešsaistes aizdevumu, jo es redzu internetā, bet pēc tam, kad es izlasīju tik daudz liecību par šo uzņēmumu, es nolēmu to izmēģināt un pieteikties uz aizdevumu no šī uzņēmuma, ko sauc par Patricia Kingsman aizdevumu sabiedrību, kurai man vajadzēja naudu, un man vajadzēja aizdevumu 5000,00 eiro. Tāpēc es pieteicos un man teica, ko darīt, es baidos, bet es uzņēmumam deva iespēju palīdzēt man un viņi apliecināja man, ka mazāk nekā 8 stundu laikā es saņemšu savu aizdevumu savā kontā. Es nekad neticēju, bet es gaidīju mazāk nekā 8 stundu laikā, kad es saņēmu zvanu no bankas, ka manā kontā bija 5 000,00 eiro summa, un tūlīt mana banka mani aicināja sazināties ar uzņēmumu un informēt, ka esmu saņēmis savu aizdevumu un šodien es esmu laimīgs. Tātad, ja jūs atnācāt manā vēstulē un izlasījāt to un jums ir nepieciešams likumīgs aizdevums no šī uzņēmuma un esiet pārliecināts, ka jūs būsiet apmierināti ar šo uzņēmumu, es uzskatu, ka šis uzņēmums ir Dievs, un es lūdzu, lai viņi paliktu un palīdzētu cilvēkiem . Sazinieties ar šo uzņēmumu pa e-pasta adresi patriciakingsman.loans2016@gmail.com
|
| ALEKSANDRS |
2019-06-18 22:01:17 |
|
Laba diena visiem
Mans vārds ir Daniels Artjoms Aleksandrs, es esmu no Latvijas, es vēlos izmantot šo mazo laiku, lai man būtu rituāls internetam, ja jums ir nepieciešams reāls un leģitīms aizdevums Patricia Kingsman ir pareizais uzņēmums, ko pieteikt no manis, ko es cheated 2 uzņēmumi par aizdevumu no Patricia Kingsman bija trešais uzņēmums, kuru es saņēmu no mana aizdevuma no Patricia Kingsman aizdevuma uzņēmuma mazāk nekā 8 stundu laikā, kā uzņēmums man teica, lai ikviens, kuram nepieciešams tiešsaistes aizdevums, nesaņemot scammed pieteikumu no Patricia Kingsman ans be esiet pārliecināti, ka jūs būsiet apmierināti ar šo uzņēmumu. Jūs varat sazināties ar šo uzņēmumu tikai pa pastu vai pa pastu, kur pasta adrese ir patriciakingsman.loans2016@gmail.com Whatsapp +1 (575) 655-0066. Uzskata, ka ikviens, kas lasa šo ziņu visā pasaulē.
|
| PETERIS ROBURTS |
2019-06-18 22:00:59 |
|
My name is Peteris Roburts Stefans Valera I am from Riga Latvia. I want to use my little time to write to the internet to people in need of a real loan that if you need a loan without getting cheated Patricia Kingsman is the right company to apply from i am a teacher of Mathematics and English and i was cheated 2 time by a fake company who clam to be lenders but i no longer worry because Patricia Kingsman has already helped me so if you need an urgent loan to do anything this company is going to put a smile to your face i have also introduced most of my friends to this company and only 2 of my friends told me they have received there loans already one of my friend received a loan of 38,000.00 Euro and the other of my friend received the sum of 75,000.00 Euro so anyone in need of an online loan apply from this company and you will be happy no doubt about that because this company is really helpful and God will continue to use them to help people in need of a loan. If you need an online loan apply from this company and contact them via this means email address patriciakingsman.loans2016@gmail.com and also you can contact them via Whatsapp +1 (575) 655-0066. Regards to anyone who reads my messages.
|
| LAIMDOTA MERIJA OLES |
2019-06-18 22:00:40 |
|
Mans vārds ir Laimdota Merija Olesja, un es esmu no Rīgas Latvijā. Es tikko saņēmu savu aizdevumu no Patricia Kingsman aizdevumu sabiedrības tieši tagad, un es esmu dzirdējis par šo uzņēmumu, un es domāju, ka tas bija viltots uzņēmums, bet tagad es esmu tik laimīgs, ka šis uzņēmums man palīdzēja un 100% šis uzņēmums ir reāls, lai ikviens, kam ir nepieciešams aizdevums, ir pareizais uzņēmums, ko pieteikties no šodienas, es pieteicos aizdevumu par savu biznesu 250 000,00 eiro apmērā, un šis uzņēmums man palīdzēja bez kavēšanās esmu tik laimīgs, ka es apliecinu šo uzņēmumu, jo es redzēju, ka citi cilvēki to dara, un es esmu priecīgs būt starp cilvēkiem, kuri piekrīt liecībai par to, kā šis uzņēmums man palīdzēja, ja jums ir nepieciešams reāls aizdevums, kas jūsu palīgs ir šeit. viņu kontaktinformācija ir patriciakingsman.loans2016@gmail.com
|
| VERONICA ROSE HOLLY |
2019-06-18 22:00:16 |
|
Patricia Dievs jūs svētīs jūs un jūsu uzņēmumu
Mans vārds ir Veronica Rose Holly. Es esmu no Rīgas Latvija Man nekas nav ko teikt ikvienam, kam ir nepieciešams īsts aizdevums bez jums, jo jums būtu jātiek galā ar Patricia Kingsman, tāpēc es pieprasīju aizdevumu no šī uzņēmuma pēc tam, kad es izlasīju tik daudz labu un brīnišķīgu komentāru par šo uzņēmumu. Es pieprasīju aizdevumu, lai samaksātu savus parādus, un viss, kas man bija vajadzīgs, bija 50 000 eiro, jo es arī izmantos daļu no šīs naudas, lai samaksātu savu bērnu skolas maksu. Kā es rakstu šo par internetu tagad es tikko saņēmu savu aizdevumu no šī uzņēmuma šodien, un es esmu tik laimīgs, es nekad neticēju, ka es kādreiz būtu laimīgs atkal izraisīt es esmu cauri daudz un es pateicos Dievam par Patricia Kingsman Dievs svētī viņu un viņa uzņēmums smaidu uz manu seju. Tātad ikviens visā pasaulē no Spānijas un citām valstīm, kurām ir nepieciešams aizdevums, jūsu palīgs ir šeit, un uzņēmums ir Patricia Kingsman, un ikviens, kas piesakās no Patricia Kingsman aizdevumu kompānijas, neradīs nekādu problēmu, jo jūs saņemsiet savu aizdevumu tieši tajā laikā, kad viņa stāsta jums. viņu uzņēmuma pasta adrese ir Patriciakingsman.loans2016@gmail.com
Vēlreiz Dievs jūs svētī Patriciju Kingsmanu un jūs varat dzīvot ilgi, lai turpinātu palīdzēt cilvēkiem.
|
| KAZIMIERAS JAZEPS IV |
2019-06-18 21:59:56 |
|
Mans vārds ir Kazimieras Jazeps Ivo un es esmu no Latvijas un dzīvoju mazā Liepājas pilsētā. Ir meklējis aizdevumu tiešsaistē, jo nevar saņemt aizdevumu no manas bankas un ir atradis tikai cilvēkus, kas mani skrēja no manas naudas. Pagājušajā nedēļā man bija scammed ar aizdevumu sabiedrība un Dievs zina, ka es biju gatavs, lai izbeigtu savu dzīvi, bet es teicu, lai mans pats ļaujiet man mēģināt redzēt, ja es redzēšu godīgs uzņēmums, kas bija gatavs jums palīdzēt. Tāpēc es apmetos uz vietas un meklēju uzņēmumu, un es izlasīju tik daudz labu komentāru par šo uzņēmumu Patricia Kingsman un es teicu, ka es vēlos pieteikties un redzēt, vai es būšu laimīgs, jo citi cilvēki baidījos, bet es devu sev iespēju un es pieteicos 80 000,00 eiro aizdevumam es izskaidroju, ka man ir bijis scammed, un viņi man teica, ka neuztraucos, ka viņi palīdzēs jums, ka viņi ir palīdzējuši tik daudziem cilvēkiem no manas valsts. Tāpēc es deva šim uzņēmumam iespēju un viņi apliecināja man, ka 8 stundu laikā es biju gatavojas būt ar savu aizdevumu, ko es neticēju, bet es gaidīju savu aizdevumu. Tieši 8 stundu laikā es saņēmu brīdinājumu no manas puses, ka mans konts ir kreditēts ar 80 000,00 eiro. Paldies Patrīcijai Kinsgmanam, šis uzņēmums ir Dievs. Un es devu solījumu savam pašam, ka es apliecinu šo uzņēmumu par to, kā viņi man palīdzēja šim uzņēmumam nezināt, ko es daru tagad, kad es saku cilvēkiem internetā, kā viņi man palīdzēja, lai ikviens, ja jums nepieciešams reāls aizdevums Patricia Kingsman ir šeit, lai palīdzētu jums nav apmānīt viltus cilvēkus, kas gliemjē būt par aizdevēju. Es gandrīz aizmirsu jūs varat sazināties tikai ar šo uzņēmumu pa pastu vai whatsapp un viņu kontaktinformācija ir patriciakingsman.loans2016@gmail.com whatsapp ir +1 (575) 655-0066. Šis uzņēmums ir reāls un taisnīgs, lai ikviens, kas lasa šo ziņu un jūs interesē, sazinieties ar šo uzņēmumu, jo tie ir vienīgie, kas var palīdzēt atrisināt jūsu problēmas.
|
| BRAYDEN WYATT BRYCE |
2019-06-18 21:59:32 |
|
Es esmu Brayden Wyatt Bryce pēc nosaukuma, es esmu policists un es dzīvoju Rīgā Latvija. Pirms dažām dienām es meklēju aizdevumu tiešsaistē, un es atklāju tikai cilvēkus, kas mani skūpstīja par manu naudu. Man tiešām ir vajadzīgs šis aizdevums projektam ASV, un man ir bijusi slepkavība vienu dienu, kad es biju atbrīvots no pienākuma, es nolēmu atkal izskatīties šoreiz par patiesu uzņēmumu, kas dod aizdevumus, un es atklāju šo uzņēmumu ar nosaukumu Patricia Kingsman aizdevumu sabiedrība un daudz cilvēki ir liecināt par šo uzņēmumu sākumā es neticēju, bet es nolēmu piemērot aizdevumu es meklēju bija summa 120,000.00 eiro es piemēroja no šī uzņēmuma, un viņi man teica visu, kas ir jādara, es uzticos viņiem un es darīja to, ko viņi man teica, un viņi man apliecināja, ka 8 stundu laikā es droši vien būšu ar savu aizdevumu, es nekad neticēju viņiem, bet es gaidīju savu aizdevumu tieši 8 stundu laikā, kad es saņēmu zvanu no uzņēmuma, ja es Esmu saņēmis savu aizdevumu, un es teicu Nē. Viņi man teica, lai dotos uz manu banku un pārbaudītu savu kontu, ka mana banka man nevar nosūtīt brīdinājumu, ko es paklausīju, un es devos uz savu banku un pārbaudīju savu kontu manās acīs, kad redzēju savu aizdevumu 120 000,00 eiro manā kontā pirms manas konta naudas bija 100 .00 eiro un es tagad atradu 120,100.00 eiro impulsu manai naudai, un mans aizdevums bija 120 100,00 eiro. Es esmu tik laimīgs un es pateicos šim uzņēmumam, jo viņi ir lieliski. Es gribu izmantot savu mazo laiku, lai rakstītu cilvēkiem Latvijā, ka, ja jums ir nepieciešams reāls aizdevums, Patricia Kingsman ir pareizais uzņēmums, ko pieteikties no šī uzņēmuma nezina, ka tā dara, lai ikviens, ja jums ir nepieciešams aizdevums, varat sazināties tikai ar šo uzņēmumu pa pastu vai whatsapp, bet es neizmantoju whatsapp, lai viņu pasta adrese būtu patriciakingsman.loans2016@gmail.com
|
| LEONHARDS |
2019-06-18 21:59:07 |
|
My name is Radoslav Vilhelms Maksims Leonhards. I am from Riga Latvia i want to write to the internet that if you need a real loan Patricia Kingsman is the real loan company that gives loan i applied for a loan from this company last week Friday and i just received my loan from them today so everyone if you need a real loan without been scammed this is the right company to apply from thus company is truly great and they are real so many people that have been scammed if you need a loan without being scammed this is the real company that gives loans i applied for a loan from this company Patricia Kingsman and i received my loan today so anyone around the world if you need a true loan locate this company and be rest assured that this company is going to put a smile to your face. the company can be contacted via mail or whatsapp their mail address is patriciakingsman.loans2016@gmail.com and there whatsapp number is+1 (575) 655-0066. Thanks to anyone that will read this message this company does not know am doing this am only doing it for people in need of a real loan to be safe.
|
| VANESSA JODI |
2019-06-18 21:58:52 |
|
Laba diena visiem
Mans vārds ir Vanessa Jodi, no Jelgavas Latvija. Es vēlos izmantot šo laiku, lai rakstītu internetam, ka ikvienam, ja jums ir vajadzīgs īsts aizdevums Patricia Kingsman, ir pareizais uzņēmums, kas pieteiksies no dažām dienām, kad man vajadzēja naudu, un es meklēju aizdevumu tiešsaistē, es redzēju uzņēmumu un es pieteicos ka uzņēmums mani sagrāva 2 reizes no manas naudas es biju tik skumji, ka man vajadzēja naudu, tāpēc es nolēmu meklēt citu uzņēmumu, un es pieteicos no cita uzņēmuma, ka tas pats uzņēmums man teica, ka es iemaksāju naudu, un es darīju un nekad nesaņēmu savu aizdevumu tāpat kā tas, kas notiek ar mani, man vajadzēja naudu, lai steidzami nopirktu mājas cēloni, ja man nav mājokļa drīz mans īpašnieks braucīs i un manu ģimeni prom no savas mājas, tāpēc man vajadzēja iegūt savu māju. Kad es vēlreiz meklēju, es redzēju šo uzņēmumu Patriciju Kingsmanu, kad es redzēju daudz cilvēku, kas liecināja par šo uzņēmumu, ka uzņēmums ir patiešām liels, tāpēc sākumā es baidos, ka lietoju, jo man bija cheated 2 reizes, tāpēc es teicu savam pašam sevi un redzēt, vai šis uzņēmums bija reāls, tāpēc es to izmantoju. Kad es pielietoju, viņi man teica, ka man bija vajadzīgs, lai es vēl baidos, bet es viņus uzticēju, un viņi apliecināja man, ka 8 stundu laikā es būšu ar savu aizdevumu, ko es gribēju par savu aizdevumu, un man acīs es saņēmu brīdinājumu no manas bankas, ka manā bankas kontā bija 200 000,00 eiro summa, un pirms tam es biju ļoti priecīgs, kad uzņēmums mani sauca un jautāja, vai es esmu saņēmis savu aizdevumu, un es viņiem pateicu un o pateicos viņiem un rakstot šis ziņojums internetā tagad šis uzņēmums ir arī palīdzējis saviem diviem brāļiem, lai ikviens, ja jums ir vajadzīgs īsts aizdevums, Patricia Kingsman ir pareizais uzņēmums, ko pieteikties. Gadījumā, ja jums ir nepieciešama nauda, varat sazināties ar viņiem tikai pa pastu vai whatsapp, un viņu pasta adrese ir patriciakingsman.loans2016@gmail.com. Es pateicos visiem, kas lasīja manu vēstījumu un ir droši un piesakās no šī uzņēmuma, jo jūs būsiet apmierināti ar viņiem.
|
| GABRIELA MARSELA LAR |
2019-06-18 21:58:28 |
|
Sveiki visiem
Es esmu Gabriela Marsela Larisa un esmu no Rīgas Latvija. Es meklēju tiešsaistes aizdevumu, un es biju ļoti nobijies, ka es nekad neesmu pieteicies uz aizdevumu, un es ļoti labi meklēju un meklēju reālu uzņēmumu, kur es atradu uzņēmumu Patricia Kingsman, un es redzēju, ko cilvēki teica par šo uzņēmumu bija taisnība, es nolēmu pieteikties uz aizdevumu no uzņēmuma un man vajadzēja aizdevumu 150 000,00 eiro, lai uzsāktu uzņēmējdarbību, kad es pieteicos viņa man teica visu, kas man bija jādara, un viņa man apliecināja, ka 8 stundu laikā es eju būt ar manu aizdevumu es teicu, labi, un es gaidīju tieši 8 stundu laikā, kad es saņemu savu aizdevumu no šī uzņēmuma, jo es rakstu šo tagad es nekad neesmu bijis scammed pirms un šis uzņēmums ir liels, es dzirdēju cilvēkus, kuri runā par izkrāpšanu, bet es nekad nav bijuši scammed pirms un es pateicos Dievam par to. Tātad ikvienam, ja jums ir nepieciešams reāls aizdevums, tas ir pareizais uzņēmums, kas pieteiksies no viņiem, un tas jums palīdzēs un laiks, kad jūs saņemsiet savu aizdevumu, kas ir precīzs laiks, kad saņemsiet savu aizdevumu. Man tikai jāpievieno šis ziņojums ikvienam, lai jūs nepieprasītu aizdevumu no nepareiza uzņēmuma, ja jums ir nepieciešams reāls aizdevums, sazinoties ar šo uzņēmumu, un jūs būsiet laimīgi. Viņu pasta adrese ir patriciakingsman.loans2016@gmail.com.
|
| ANASTASIJA SOFIJA |
2019-06-18 21:58:13 |
|
Laba diena Mans vārds ir Anastasija Sofija Marta, es esmu no Latvijas, šis uzņēmums Patricia Kingsman cilvēki runā par to, ka es nekad neesmu vēlējies saņemt aizdevumu, bet es tikko teicu, ka man vajadzētu izmēģināt šo uzņēmumu un redzēt, vai cilvēki saka, ka ir taisnība, un es pieteicos aizdevumu no viņiem vakar un es tikko saņēmu savu aizdevumu šodien no Patricia Kingsman aizdevuma sabiedrības ikviens, ja jūs lasīt šo ziņu un jums ir nepieciešams aizdevums, ko piemēro no šī uzņēmuma, jo viņi gatavojas palīdzēt jums šis uzņēmums ir vienīgais uzņēmums, kas piedāvā reālu aizdevumu tiešsaistē. Aizdevums, ko es no viņiem pieprasīju, bija 75 000,00 eiro, bet 8 stundu laikā es saņēmu savu aizdevumu, lai mani draugi netiktu scammed, ja jums ir nepieciešams reāls aizdevums. Ja jūs interesē, ka aizdevumi ir viņu pasta adrese ir patriciakingsman.loans2016@gmail.com, un to skaits ir +1 (575) 655-0066.
|
| GWENDOLYN TAMMIE SHA |
2019-06-18 21:56:12 |
|
Mans vārds ir Gwendolyn Tammie Shari Es esmu vientuļā māte ar vienu bērnu no Latvijas un dzīvoju Rīgas pilsētā. Es vēlos izmantot šo laiku, lai pastāstītu visiem internetā, ka ir tikai viens uzņēmums, kas piedāvā reālu aizdevumu, un šis uzņēmums ir Patricia Kingsman. Es meklēju aizdevumu tiešsaistē pēdējo 3 nedēļu laikā, un viss, kas man ir, ir aizdevēju scamming mani par manu naudu, ka man bija Dievs zina, man bija tik slikts, un es gribēju, lai nogalinātu savu, bet es redzēju tik daudz cilvēku liecināt par šis uzņēmums, kas pirmoreiz sniedz aizdevumus, es neticēju, ka es redzēju citas aizdevēja liecības, un viņi visi kļuva par izkrāpšanu. Es teicu, ļaujiet man pieteikties no šī uzņēmuma un redzēt, vai tā ir taisnība, un uzreiz es pielietoju, viņi man teica visu, kas man bija jādara, un es piekritu un viņi apliecināja man, ka 8 stundu laikā es būšu ar savu aizdevumu, jo viņi teica, ka viņi izmanto ātrā pārsūtīšanas pakalpojumu. Sākumā es neticēju, bet es gaidīju savu aizdevumu pirms 8 stundām, kad es saņēmu brīdinājumu no manas bankas, un turiet to par manu aizdevumu, kad es biju ļoti satriekts, kad es to redzēju, un es lūdzu Dievu, lai vadītu mani uz pareizo uzņēmumu kas man palīdzēja šodien, jo es rakstu to internetā, tagad es tikko saņēmu savu aizdevumu no šī uzņēmuma, un es šo laiku izmantoju, lai liecinātu citiem cilvēkiem, ja jums ir nepieciešams aizdevums, ko nevajag apmānīt. piemēro no. Viņu pasta adrese ir patriciakingsman.loans2016@gmail.com, un jums tie, kuriem nav e-pasta adreses, uzņēmums whatsapp numurs ir +1 (575) 655-0066.
Šis uzņēmums ir taisnība un lieliski, ja jums tagad ir vajadzīgs aizdevums, un jāgaida jūsu aizdevums, jo jūs būsiet apmierināti ar šo uzņēmumu.
Paldies visiem un es palieku Gwendolyn Tammie Shari.
|
| ALISE EMILIJA ELZA |
2019-06-18 21:55:49 |
|
Mans vārds ir Alise Emilija Elza, es esmu no Latvijas, un es vēlos izmantot šo laiku, lai rakstītu internetā, ka es tikko saņēmu savu aizdevumu fondu 5 miljonu eiro apmērā no šī uzņēmuma, ko sauc par Patricia Kingsman aizdevumu sabiedrību, vispirms es neticēju, ko cilvēki saka internetā, bet es nolēmu mēģināt un es pieteicos aizdevumu pirms 2 dienām, un es tikko saņēmu zvanu no manas bankas, ka manā kontā ir 5 miljoni eiro, un tūlīt es saņēmu brīdinājumu no manas bankas Patricia Kingsman aizdevuma Uzņēmums aicināja mani un jautāja man, vai esmu saņēmis savu aizdevumu, un es viņiem teicu, jā, tāpēc viņi teica, ka man ir jāiegādājas vairāk cilvēku, ja kāds to pieprasa, ja jums tiešām ir nepieciešams kredīts ir patiešām lieliski, un es uzskatu, ka tagad ir reāls aizdevumu uzņēmums, kas sniedz aizdevumus, un šis uzņēmums ir Patricia Kingsman aizdevumu sabiedrība, tādēļ, ja kāds no jums ir nepieciešams steidzams aizdevums un ir svarīgi, ka tas ir pareizais uzņēmums, no kura pieteikties. Viņu pasta adrese ir patriciakingsman.loans2016@gmail.com.
beidzot es esmu patiesi laimīgs un tagad varu sākt savu biznesu. Paldies vēlreiz Patricia, ka jūs esat liels, un Dievs svētī jūs un jūsu uzņēmumu.
|
| RûTA SAMANTA SOPHIE |
2019-06-18 21:55:33 |
|
Mans vārds ir Rûta Samanta Sophie un esmu no Rīgas Latvija. Es vēlos izmantot šo laiku, lai pastāstītu visiem internetā par to, kā es saņēmu savu aizdevumu pēc tam, kad man bija scammed 3 reizes, es pieteicos aizdevumam no Patricia Kingsman aizdevumu kompānijas vakar es redzēju, ka cilvēki liecina par saviem labajiem darbiem un par to, kā viņa palīdzēja cilvēkiem, lai es nolēma pieteikties, un viņa man teica, ko man vajadzēja darīt, bija bail, bet es to darīju šorīt tagad es tikko saņēmu brīdinājumu no manas bankas, kur tur ir nauda manā kontā, un es pārbaudīju summu un tas bija mans kredīts, ko esmu tik laimīgs . Tāpēc es gribu izmantot šo laiku un pateikt ikvienam internetā, ka šis uzņēmums ir reāls, ja jums ir nepieciešams aizdevums. Šis uzņēmums ir pareizais uzņēmums, ko pieteikties, nesaņemot scammed kā mani, jo no šī uzņēmuma ir scammers un tu būsi laimīgs. viņu pasta adrese ir patriciakingsman.loans2016@gmail.com
|
| ESTERE |
2019-06-18 21:55:11 |
|
Labdien, mans vārds ir Sigita Dārta Vlada Estere, un es esmu no Latvijas, un es vēlos izmantot šo iespēju, lai tagad man ir jāpieraksta šis ziņojums internetam, ja kāds no jums meklē aizdevumu, tas ir pareizais uzņēmums, ar kuru sazināties es esmu biznesa sieviete un es pieteicos aizdevumu 2018 likumdošanas uzņēmumā, un uzņēmuma nosaukums ir Patricia Kingsman aizdevuma uzņēmums, kas palīdz cilvēkiem kopš 2018. gada, un mēs esam 2019. gadā, un es tikko saņēmu savu aizdevumu no viņiem, ja kāds no jums ir nepieciešams kredīts, lai saņemtu un pieteiktos no viņiem, jo tie ir reāli, es tikai lūdzu, lai cilvēki, kuriem nepieciešama palīdzība ar aizdevumu, nesaņemu scammed, tāpēc es izmantoju šo iespēju rakstīt šo ziņojumu internetā, ja jums ir nepieciešams aizdevums legit aizdevums tiek piemērots no šī uzņēmuma, lai jūs nokļūtu scammed, kad piesakāties no nepareiza uzņēmuma. viņu pasta adrese ir patriciakingsman.loans2016@gmail.com.
Ir jauka diena visiem, un es lūdzu jūs visi priecāties, jo es esmu šodien
|
| LIESMA GENOVEFA ILVA |
2019-06-18 21:54:40 |
|
Mans vārds ir Liesma Genovefa Ilva, es esmu no Latvijas un dzīvoju Daugavpils pilsētā. Es tikko saņēmu savu aizdevumu no 2019. gada jaunā likumīgā aizdevuma uzņēmuma, un uzņēmuma nosaukums, kas man palīdzēja ar savu aizdevumu šodien, ir Patricia Kingsman aizdevumu kompānija, kas ir visskaistākā kredīta kompānija, kuru es jebkad esmu saskārusies ar i. tos vakar un vienīgā lieta, ko es darīju, bija jāmaksā pārskaitījuma maksa, ko viņi teica, ka man būtu jāmaksā, un tūlīt es veicu maksājumu nākamo 8 stundu laikā, kad es biju ar savu aizdevumu. Atvainojiet, es nevaru pateikt, cik daudz viņi palīdzēja man, bet tas ir liela naudas summa, lai ikviens, ja jums ir nepieciešams reāls aizdevums, ir pareizais aizdevuma uzņēmums, kas sazinās ar savu pasta adresi patriciakingsman.loans2016@gmail.com
|
| DANIELS CHRYSANTHOS |
2019-06-18 21:54:10 |
|
Sveiki visiem
Mans vārds ir Daniels Chrysanthos, es esmu no Latvijas, un esmu meklējis aizdevumu tiešsaistē, un viss, kas man ir, ir scammers, bet es atklāju šo aizdevumu sabiedrību Patricia Kingsman aizdevumu sabiedrību un esmu redzējis, ka cilvēki tiešsaistē liecina par labiem darbiem, tāpēc es nolēmu izmēģināt ja es atkal būšu laimīgs, tāpēc es pieteicos aizdevumam 350 000,00 eiro un aizdevuma aizdevējs Patricia Kingsman apliecināja man, ka 8 stundu laikā mans kredīts būs manā bankas kontā, tāpēc šodien, kad strādāju, es redzēju, ka mana banka man rakstīja ziņojumu ka manā kontā ir daži 350 000,00 eiro naudas līdzekļi, un es pateicos Patricia Kingsman, jo viņa ir reāla, tāpēc, ja jums ir nepieciešams tiešsaistes aizdevums, lūdzu, netiktu scammed kā man piemēro šo uzņēmumu, jo viņa ir vienīgā reālā kompānija, kas sniedz aizdevumu tiešsaistē. Viņu pasta adrese ir patriciakingsman.loans2016@gmail.com
|
| MAKKITOTOSIMEW |
2019-06-18 21:53:53 |
|
Mans vārds ir MAKKITOTOSIMEW GUNA SANA, es esmu no Latvijas un dzīvoju Rīgas pilsētā. Esmu dzirdējis par šo uzņēmumu, ka viņi sniedz aizdevumus, un es devos pieteikties aizdevumam no viņiem, es dzirdēju, ka cilvēki saka par scam, bet es nekad neesmu bijis scammed, pirms šis uzņēmums man palīdzēja ar savu aizdevumu, lai ikviens, kam nepieciešams aizdevums, būtu jāpiemēro no viņiem ir aizdevumi ir ātri un droši viņu pasta adrese patriciakingsman.loans2016@gmail.com
|
| GUSTAVS |
2019-06-18 21:53:36 |
|
Sveiki visi, mans vārds ir Jacobs Alex Gustavs, un es esmu no Latvijas, es esmu bijis internetā, un es esmu dzirdējis, ka cilvēki ir bijuši scammed pirms un es steidzami vajag kredītu, tāpēc es baidījos pieteikties aizdevumam tiešsaistē, ko es redzēju 3 cilvēki liecina par Patricia Kingsman kundzes aizdevumu sabiedrību, ka viņi tur nokļuva no viņas, un es nekad neesmu pieteicies uz aizdevumu, un es biju tik bail, ka es saņemšu scammed, bet es ticēju, ko cilvēki saka un piemēro no šī aizdevuma uzņēmuma, un viss bija labi un viņi man teica, lai nosūtītu nodošanas maksu, kas tiks izmantota, lai pārskaitītu manu aizdevumu, kad viņi man teica, ka man bija tik bail, ka tas bija scammed, tāpēc es apsēdos un es domāju par to un es atgriezos pie viņiem un pastāstīju viņiem nekad neesmu to izdarījuši iepriekš, bet Patricia Kingsman kundze teica, ka viņiem jāuzticas, ka viņi man palīdzēs, tāpēc es darīju, un es devos nosūtīt maksu, ko viņi teica, ka man šodien ir jānosūta mana aizdevuma pārskaitījums. mana mugura, ka manā kontā ir nauda t. Šodien es esmu ļoti priecīgs, ka es nekad neesmu bijis scammed pirms un es saņēmu savu aizdevumu vienreiz tāpēc tagad es esmu laimīgs un man un mana ģimene būs laimīgs pārāk, lai ikviens, kam nepieciešams aizdevums, būtu jāpiemēro no šī uzņēmuma bez scammed, jo viņa ir scammed, jo viņa ir reāls un liels, un es lūdzu Dievu, lai turpinātu viņu izmantot, lai palīdzētu cilvēkiem tur. viņas pasta adrese ir patriciakingsman.loans2016@gmail.com.
Vēlreiz es palieku Jacobs Alexs Gustavs
|
| JEVGEņIJS LEONīDS |
2019-06-18 21:52:48 |
|
Sveiki visiem
Mans vārds ir Jevgeņijs Leonīds Dāvis, un es esmu no Latvijas, es vēlos jums pastāstīt visiem aizdevuma meklētājiem, ka ir tikai viens reāls aizdevumu uzņēmums, kas piedāvā aizdevumus, un viņi palīdzēja man ar aizdevumu, uzņēmuma nosaukums ir Makro kredīta kompānija un aizdevuma aizdevējs kas man palīdzēja ar savu aizdevumu viņas vārds ir Patricia Kingsman kundze, tādēļ, ja jums ir nepieciešams aizdevums bez scammed, dodieties uz šo uzņēmumu un saņemiet savu aizdevumu, jo aizdevumi ir droši un ātri viņu pasts ir patriciakingsman.loans2016@gmail.com labākie aizdevuma meklētāji ir īstais uzņēmums, kas piedāvā aizdevumus.
E-pasts: Patriciakingsman.loans2016@gmail.com
Mani prieks jums visiem
|
| PATRICIA KINGSMAN KU |
2019-06-18 21:52:23 |
|
Mēs esam finanšu konsultanti, kas rīkojas ar starptautiskām finansēm jebkuram bankas instrumentu apjomam. Kas par atrast labu reputāciju parādu konsolidācijas uzņēmumu, kas var palīdzēt jums samazināt ikmēneša maksājumus, lai jums būtu pieejamas atmaksāšanas iespējas, kā arī telpa, kur elpot, kad runa ir par mēneša beigām, un rēķiniem ir jāmaksā? Patricia Kingsman aizdevumu sabiedrība (patriciakingsman.loans2016@gmail.com) ir atbilde. Samaziniet savus maksājumus, lai atvieglotu jūsu ikmēneša izdevumu slodzi. Jūtieties brīvi iesaistīties mūsu nomātajās telpās, jo mēs esam nodrošinājuši vairāk nekā 2 miljardus eiro biznesa aizdevumiem vairāk nekā 25 000,00 eiro uzņēmumu īpašniekiem tāpat kā jūs. Mēs izmantojam savu izraudzīto riska tehnoloģiju, lai nodrošinātu Jums pareizu biznesa aizdevumu, lai jūs varētu attīstīt savu biznesu. Mūsu pakalpojumi ir ātri un uzticami, aizdevumi tiek apstiprināti 8 stundu laikā pēc veiksmīgas pieteikšanās.
* Personīgie aizdevumi
* Parāda konsolidācija
* Studenta aizņēmums,
* Kravas kredīti
* Auto aizdevumi
* Nekustamā īpašuma aizdevumi
* Aizdevumu refinansēšana
* Parāda konsolidācija
* Izglītības aizdevumi
* Lauku kredīti
* Korporatīvie kredīti
* Biznesa uzsākšanas kredīti
Mēs piedāvājam aizdevumus no minimālā diapazona 5 000,00 eiro līdz maksimāli 500 miljoniem eiro, Patricia Kingsman aizdevumu kompānijas pakalpojumiem. Aizdevuma atmaksāšanai tiks nodrošināts aizdevums ar pieejamu procentu likmi 2% apmērā un aizdevuma ilgumu no 1 līdz 20 gadiem. un nenodrošināti). Mūsu mērķis ir nodrošināt lieliskus profesionālos finanšu pakalpojumus. Starpnieki / konsultanti / brokeri ir laipni aicināti piesaistīt savus klientus un ir 100% aizsargāti. Pilnībā pārliecināti, mēs strādāsim kopā, lai gūtu labumu no visām iesaistītajām pusēm. Neuzturiet savas finansiālās problēmas sev, lai jūs nebūtu par parādu kapitālu vai finansiālu stresu, tāpēc jums ir jāsazinās ar mums ātri, lai atrisinātu jūsu finansiālās problēmas. Mums būs liels prieks, ja esat finansiāli stabils.
Nosūtiet mums e-pastu, izmantojot: patriciakingsman.loans2016@gmail.com.
Ar cieņu,
Patricia Kingsman kundze.
Mēs esam sertificēti un piedāvā ātrus un uzticamus pakalpojumus….
|
| PATRICIA KINGSMAN KU |
2019-06-18 21:51:51 |
|
Sveiki visiem,
Laipni lūdzam nākotnē! Ar Patricia Kingsman aizdevumu kompāniju finansējums ir vienkāršs.
Vai esat meklējis finansēšanas iespējas saviem jaunajiem biznesa plāniem, Vai jūs meklējat aizdevumu, lai paplašinātu savu esošo biznesu? griezties pie? Vai jūsu bankas ir atteikušās? Patricia Kingsman aizdevumu sabiedrība. saka JĀ, kad jūsu bankas saka NĒ. Sazinieties ar mums, jo mēs piedāvājam finanšu pakalpojumus par zemu un pieejamu 2% procentu likmi ilgtermiņa un īstermiņa kredītiem (nodrošināti un nenodrošināti). Ieinteresētajiem pretendentiem ir jāsazinās ar mums, lai saņemtu papildu kredīta iegūšanas procedūras.
Pakalpojumi ietver:
* Auto aizdevums
* Mājas kredīts
* Kravas kredīts
* Hipotēku kredīts
* Parāda konsolidācija
* Biznesa kredīts
* Personal Loan
* Studentu kredīts.
Ar Patricia Kingsman aizdevumu sabiedrību. Jūs varat atvadīties no visām jūsu finanšu krīzēm un grūtībām, jo mēs esam sertificēti, uzticami, uzticami, efektīvi, ātri un dinamiski.
E-pasts: patriciakingsman.loans2016@gmail.com
Sveicieni,
Patricia Kingsman kundze
|
| PATRICIA KINGSMAN KU |
2019-06-18 21:51:31 |
|
Uzmanību
Mēs esam finanšu konsultanti, kas rīkojas ar starptautiskām finansēm jebkura apjoma banku instrumentiem. Mums ir piekļuve / kontakti, lai palielinātu no 10 tūkstošiem eiro līdz 500 miljoniem eiro, ar mūsu kompāniju (Patricia Kingsman aizdevumu sabiedrību) un citiem TOP PRIME AA BANKS, piemēram, Bank of America, HSBC, Lloyds, Wells Fargo, Labākās bankas SBA aizdevumiem utt.
Jūtieties brīvi iesaistīt mūsu nomātās iespējas tirdzniecības programmās, projektu finansēšanā, kredītlīniju uzlabošanā, korporatīvajos aizdevumos (uzņēmējdarbības uzsākšanas aizdevumi vai uzņēmējdarbības paplašināšanas aizdevumi) un daudz ko citu.
Mēs esam nodrošinājuši vairāk nekā 1 miljardu eiro biznesa aizdevumus vairāk nekā 17 000,00 eiro uzņēmumu īpašniekiem tieši tāpat kā jūs. Mēs izmantojam savu izraudzīto riska tehnoloģiju, lai nodrošinātu Jums pareizu biznesa aizdevumu, lai jūs varētu attīstīt savu biznesu. Mūsu pakalpojumi ir ātri un uzticami, aizdevumi tiek apstiprināti 24 stundu laikā pēc veiksmīgas pieteikšanās. Mēs piedāvājam aizdevumus no minimālā diapazona 10 000,00 eiro līdz ne vairāk kā 500 miljoniem eiro.
Vai jūs atrodaties mazliet nepatikšanas ar neapmaksātiem rēķiniem un nezināt, kādā veidā iet vai kur vērsties? Kas par atrast labu reputāciju parādu konsolidācijas uzņēmumu, kas var palīdzēt jums samazināt ikmēneša maksājumus, lai jums būtu pieejamas atmaksāšanas iespējas, kā arī telpa, kur elpot, kad runa ir par mēneša beigām, un rēķiniem ir jāmaksā? Patricia Kingsman aizdevumu sabiedrība ir atbilde. Samaziniet savus maksājumus, lai atvieglotu jūsu ikmēneša izdevumu slodzi. sazinieties ar mums pa e-pastu (patriciakingsman.loans2016@gmail.com)
Starpnieki / konsultanti / brokeri ir laipni aicināti piesaistīt savus klientus un ir 100% aizsargāti. Pilnībā pārliecināti, mēs strādāsim kopā, lai gūtu labumu no visām iesaistītajām pusēm. Neuzturiet savas finansiālās problēmas sev, lai jūs nebūtu par parādu kapitālu vai finansiālu stresu, tāpēc jums ir jāsazinās ar mums ātri, lai atrisinātu jūsu finansiālās problēmas. Tas būs liels prieks mums, ja esat finansiāli stabils.
Nosūtiet mums e-pastu, izmantojot: patriciakingsman.loans2016@gmail.com
Sveicieni
Patricia Kingsman kundze
E-pasts: patriciakingsman.loans2016@gmail.com
Moto: Mēs piedāvājam ātrākos un uzticamākos finanšu pakalpojumus
|
| PATRICIA KINGSMAN KU |
2019-06-18 21:51:08 |
|
Sveicieni ..
Lūdzu, sazinieties ar mums, lai saņemtu drošu un nenodrošinātu aizdevumu ar procentu likmi 2%
………………………………….
Vai ekonomikas grūtības, kas ietekmē jūs šogad ,? Ja jūsu atbilde ir „jā”, tad jums ir nepieciešams aizdevums. Es esmu Patricia Kingsman, aizdevēja uzņēmuma īpašnieks. Mēs piedāvājam drošus un drošus aizdevumus ar procentu likmi 2%.
* Vai esat finansiāli izspiests?
* Vai jūs meklējat līdzekļus kredītu un parādu atmaksai?
* Vai jūs meklējat finansējumu, lai izveidotu savu biznesu?
* Vai jums ir nepieciešami privāti vai biznesa aizdevumi dažādiem mērķiem?
* Vai jūs meklējat aizdevumus lielu projektu īstenošanai?
Ja jums ir kādas no iepriekš minētajām problēmām, mēs varam jums palīdzēt, bet es vēlos, lai jūs saprastu, ka mēs piešķiram aizdevumus ar procentu likmi 2% apmērā.
* Aizņemties līdz pat 95 000 000 eiro.
* Izvēlieties no 1 līdz 20 gadiem, lai atmaksātu.
* Izvēlieties mēneša un gada atmaksas plānu.
* Elastīgi aizdevuma noteikumi.
Lūdzu, ja esat ieinteresēts, sazinieties ar mums, izmantojot šo e-pasta adresi: patriciakingsman.loans2016@gmail.com
Mēs apsolām 100% garantiju, ka jūs saņemsiet savu aizdevumu šī aizdevuma darījuma beigās. Nav drošības pārbaudes, nav kredīta pārbaudes
Sveicieni
Patricia Kingsman
Patricia Kingsman aizdevumu sabiedrība
|
| PATRICIA KINGSMAN KU |
2019-06-18 21:50:49 |
|
PIEDĀVĀJAM VISU DZĪVNIEKU VEIDI - PIETEIKTIES NEPIECIEŠAMĀM Kredītiem.
Vai esat uzņēmējs vai sieviete? Vai jums ir kāds finansiāls haoss, vai jums ir nepieciešami līdzekļi, lai uzsāktu savu biznesu? Vai jums ir nepieciešams aizdevums, lai sāktu jauku mazo un vidējo uzņēmumu? Vai jums ir zems kredīta rādītājs, un jums ir grūti iegūt kapitāla aizdevumu no vietējām bankām un citām finanšu institūcijām? Ieinteresētajiem pretendentiem vajadzētu sazināties ar mums pa e-pastu: Patriciakingsman.loans2016@gmail.com
Mūsu aizdevumi ir labi apdrošināti, lai nodrošinātu maksimālu drošību, mūsu prioritāte ir mūsu galvenais mērķis ir palīdzēt jums iegūt nepieciešamos pakalpojumus, mūsu programma ir ātrākais veids, kā ātri iegūt nepieciešamo. Samaziniet maksājumus, lai atvieglotu ikmēneša slodzi izmaksas. Iegūstiet elastīgumu, ar kuru jūs varat izmantot jebkādus nolūkus no brīvdienām, uz izglītību, uz unikāliem pirkumiem. Ieinteresētajiem pretendentiem jāsazinās ar mums pa e-pastu: patriciakingsman.loans2016@gmail.com
Mēs piedāvājam plašu finanšu pakalpojumu klāstu, kas ietver: Biznesa plānošanu, Tirdzniecību un attīstību Finanses, Īpašumi un Hipotēkas, Parāda konsolidācija Kredīti, Biznesa aizdevumi, Privātie aizdevumi, Mājas refinansēšana Aizdevumi ar zemu procentu likmi 2,00% apmērā par vienu atcelšanu privātpersonām, uzņēmumiem un korporatīvās struktūras. Iegūstiet vislabāko savu ģimeni un arī savu sapņu māju, kā arī ar mūsu vispārējo aizdevumu shēmu. Ieinteresētajiem pretendentiem jāsazinās ar mums pa e-pastu: Patriciakingsman.loans2016@gmail.com
PIEDĀVĀJAM VISU DZĪVNIEKU VEIDI - PIETEIKTIES NEPIECIEŠAMĀM Kredītiem.
Lūdzu, sazinieties ar mums, lai iegūtu vairāk informācijas: patriciakingsman.loans2016@gmail.com
Lūdzu, rakstiet mums atpakaļ informāciju par aizdevumu;
- Pilns nosaukums:
- Nepieciešamā kredīta summa:
- Kredīta ilgums:
- Aizdevuma mērķis:
- Pilsēta valsts:
- Tālrunis:
- Kā tu uzzināji par mums:
Ja esat ieinteresēts saņemt aizdevumu, lūdzu, rakstiet mums aizdevuma prasību. Lūdzu, sazinieties ar mums, lai iegūtu vairāk informācijas: patriciakingsman.loans2016@gmail.com
Ar cieņu,
Patricia Kingsman
Mēs ceram dzirdēt no jums ASAP
Ieinteresētajiem pretendentiem jāsazinās ar mums pa e-pastu: patriciakingsman.loans2016@gmail.com
|
| PATRICIA KINGSMAN KU |
2019-06-18 21:49:51 |
|
Laipni lūdzam PATRICIA KINGSMAN patriciakingsman.loans2016@gmail.com Mūsu mērķis ir nodrošināt lielisku profesionālo servisu.
Vai esat uzņēmējs vai sieviete? Vai jums ir finansiāls haoss, vai jums ir vajadzīgi līdzekļi, lai uzsāktu savu biznesu? Vai jums ir nepieciešams aizdevums, lai sāktu jauku mazo un vidējo uzņēmumu? Vai jums ir zems kredīta rādītājs, un jums ir grūti iegūt kapitāla aizdevumu no vietējām bankām un citām finanšu institūcijām?
Mūsu aizdevumi ir labi apdrošināti, lai nodrošinātu maksimālu drošību, mūsu prioritāte ir mūsu galvenais mērķis ir palīdzēt jums iegūt nepieciešamos pakalpojumus, mūsu programma ir ātrākais veids, kā ātri iegūt nepieciešamo. Samaziniet savus maksājumus, lai atvieglotu jūsu ikmēneša izdevumu slodzi. Iegūstiet elastību, ar kuru jūs varat izmantot jebkādiem mērķiem - no brīvdienām, uz izglītību, līdz unikāliem pirkumiem
Mēs piedāvājam plašu finanšu pakalpojumu klāstu, kas ietver: personiskos aizdevumus, parādu konsolidācijas aizdevumus, biznesa aizdevumus, izglītības aizdevumus, hipotēku nodrošināto aizdevumu, nenodrošināto aizdevumu, hipotekāros kredītus, atalgojuma atmaksas aizdevumus, studentu kredītus, komerckredītus, auto aizdevumus, investīciju aizdevumus, Attīstības aizdevumi, iegādes aizdevumi, būvniecības kredīti, ar zemu procentu likmi 2% apmērā par katru atcelšanu privātpersonām, uzņēmumiem un korporatīvajām struktūrām. Iegūstiet vislabāko savu ģimeni un arī savu sapņu māju, kā arī ar mūsu vispārējo aizdevumu shēmu.
PIEDĀVĀJAM VISU DZĪVNIEKU VEIDI - PIETEIKTIES NEPIECIEŠAMĀM Kredītiem.
Lūdzu, sazinieties ar mums, lai iegūtu vairāk informācijas: patriciakingsman.loans2016@gmail.com
Lūdzu, rakstiet mums atpakaļ informāciju par aizdevumu;
INFORMĀCIJA PAR UZŅĒMUMU
1) Pilnie vārdi:
2) Valsts:
3) adrese:
4) Valsts:
5) Dzimums:
6) Ģimenes stāvoklis:
7) Nodarbošanās:
8) Tālruņa numurs:
9) Ikmēneša ienākumi:
10) Pēc Kin:
11) Nepieciešamā aizdevuma summa:
12) Aizdevuma ilgums:
13) Aizdevuma mērķis:
14) Konkrēts datums, kad nepieciešams aizdevums:
Ja esat ieinteresēts saņemt aizdevumu, lūdzu, rakstiet mums aizdevuma prasību.
Lūdzu, sazinieties ar mums, lai iegūtu vairāk informācijas: patriciakingsman.loans2016@gmail.com
Ar cieņu,
Patricia Kingsman kundze
patriciakingsman.loans2016@gmail.com
Mēs ceram dzirdēt no jums ASAP
Ieinteresētajiem pretendentiem jāsazinās ar mums pa e-pastu: patriciakingsman.loans2016@gmail.com
|
| MR MARK |
2019-06-12 15:02:55 |
|
Vai esat uznemejs vai sieviete? Vai jums ir nepieciešami lidzekli, lai saktu savu biznesu? Vai jums ir nepieciešams aizdevums, lai nokartotu paradu vai atmaksatu vai uzsaktu labu biznesu? Vai jums ir nepieciešams finansejums jusu projektam? Mes piedavajam garantetus aizdevumu pakalpojumus jebkura apjoma un visa pasaule (privatpersonas, uznemumi, nekustama ipašuma makleri un korporativas strukturas) ar musu 2% procentu likmi. Lai iegutu vairak informacijas un informaciju, ludzu, sutiet e-pastu uz: markanthonyeasyloanfirm@gmail.com
paldies
|
| MR MARK |
2019-05-25 08:36:53 |
|
Vai esat uzņēmējs vai sieviete? Vai jums ir nepieciešami līdzekļi, lai uzsāktu savu biznesu? Vai jums ir nepieciešams aizdevums, lai nokārtotu savu parādu vai atmaksātu rēķinus vai sāktu jauku biznesu? Vai jums ir nepieciešami līdzekļi, lai finansētu savu projektu? Mēs piedāvājam garantēta aizdevuma pakalpojumus jebkurai summai un jebkurai pasaules daļai (privātpersonām, uzņēmumiem, nekustamo īpašumu aģentiem un korporatīvajām iestādēm) ar mūsu lielisko procentu likmi 2% apmērā. Lietojumprogrammai un vairāk informācijas nosūtiet atbildes uz šādu e-pasta adresi: markanthonyeasyloanfirm@gmail.com
|
| PATRICIA MARTINS |
2019-05-05 15:48:06 |
|
Mans vārds ir Patricia Martins viens no vecākiem, pirms mans vīrs nomira, atstājot mūs ar tik lielu parādu, es biju tik sajaukts un neapmierināts par to, kā maksāt milzīgo parādu. Kādu dienu es gāju cauri internetam, es sastapos ar liecību (Pedro Gonçalo) par to, kā GINA MORGAN viņam palīdzēja ar aizdevumu. Tāpēc es pieprasīju aizdevumu 85 000 eiro apmērā ar 5 gadu termiņu no uzņēmuma caur viņas pastu (ginamorganloancompany@gmail.com). Kad es pieteicos uz aizdevumu, es deva Dievam zvērestu, ka, ja es saņemšu aizdevumu, es ļaujiet pasaulei zināt, ko viņš man darīja, manā lielākajā pārsteigumā, mazāk nekā 48 stundās mans aizdevums tika piešķirts ar procentu likmi 2%. Tagad esmu nokārtojis sava vīra parādu un sāku jaunu dzīvi un uzņēmējdarbību. Es tikko izpildīju savu solījumu. Tātad, ja jūs vēlaties saņemt jebkāda veida aizdevumu tik zemu kā 2%, lūdzu, sazinieties ar GINA MORGAN LOAN COMPANY LTD uz viņas e-pasta adresi ginamorganloancompany@gmail.com vai WhatsApp numurs @ +19592022005
|
| MR MARK |
2019-03-23 04:11:31 |
|
KĀ SAŅEMT ATBALSTA PALĪDZĪBU @ 2% PROCENTU LIKMJU
Es neesmu pārliecināts par leģitīmā aizdevuma aizdevēja saņemšanu tiešsaistē Bet, kad es vairs nespēju saskarties ar savu parādu, mans dēls bija ķirurģijā, kur bija liela nauda, un man vajadzēja arī naudu, lai refinansētu un iegūtu labu mājokli, tad man ir lai meklētu palīdzību no draugiem un kad vairs nebūtu cerības, es nolemšu doties tiešsaistē, lai meklētu aizdevumu, un es atradu MARK WILLIAMS FUNDS (markwilliamstrustfirm@gmail.com) ar 2% procentu likmi un nekavējoties piemēroju savu informāciju, kā norādīts. Septiņu dienu laikā pēc mana pieteikuma viņš piesaistīja manu aizdevuma summu bez slēptām maksām, un es varētu rūpēties par savu dēlu medicīnas rēķiniem, atjaunot savu īres rēķinu un atmaksāt savu parādu. Es konsultēšu katru aizdevuma meklētāju, lai sazinātos ar MARK WILLIAMS FUNDS ar (markwilliamstrustfirm@gmail.com).
|
| PATRICIA MARTINS |
2019-02-18 11:07:49 |
|
Mans vārds ir Patricia Martins, viens no vecākiem, pirms mans vīrs nomira, atstājot mūs ar tik lielu parādu, es biju tik sajaukts un neapmierināts par to, kā maksāt milzīgo parādu. Kādu dienu es gāju cauri internetam, es nonācu liecībā (Pedro Gonçalo) par to, kā GINA MORGAN viņam palīdzēja ar aizdevumu. Tāpēc es pieprasīju aizdevumu 85 000 eiro apmērā ar 5 gadu termiņu no uzņēmuma, izmantojot viņas pastu (ginamorganloancompany@gmail.com). Kad es pieteicos uz aizdevumu, es devu zvērestu Dievam, ka, ja es saņemšu aizdevumu ļaujiet pasaulei zināt, ko viņš man darīja, manā lielākajā pārsteigumā, mazāk nekā 48 stundās mans aizdevums tika piešķirts ar procentu likmi 2%. Tagad esmu nokārtojis sava vīra parādu un sāku jaunu dzīvi un uzņēmējdarbību. Es tikko izpildīju savu solījumu. Tātad, ja vēlaties saņemt jebkāda veida aizdevumu tik zemu kā 2%, lūdzu, sazinieties ar GINA MORGAN LOAN COMPANY LTD uz viņas e-pasta adresi ginamorganloancompany@gmail.com
|
| ISKANDALESTARI.KREDI |
2019-02-03 22:32:49 |
|
Mēs piedāvājam plašu finanšu pakalpojumu klāstu, kas ietver: biznesa plānošanu, komercdarbību un attīstību, īpašumus un hipotēkas, parādu konsolidācijas aizdevumus, biznesa aizdevumus, privātos aizdevumus, mājas refinansēšanas aizdevumus ar zemu procentu likmi privātpersonām, uzņēmumiem un korporācijām. Iegūstiet labāko savai ģimenei un arī savu sapņu māju ar mūsu vispārējo aizdevumu shēmu. Ieinteresētajiem pretendentiem jāsazinās ar mums, izmantojot BBM INVITE: {D8980E0B}
WhatsApp Only: {33753893351}
E-pasts: (iskandalestari.kreditpersatuan@gmail.com)
|
| JAMES |
2019-02-02 07:51:28 |
|
Patlaban esmu precējies ar diviem bērniem, un es līdz 2017. gada augustam biju finansiālā situācijā un man vajadzēja refinansēt un samaksāt rēķinus par manu dēla medikamentiem. Es mēģināju meklēt aizdevumus no dažādiem aizdevumu uzņēmumiem gan privātiem, gan korporatīviem, bet nekad ar panākumiem, un lielākā daļa banku noraidīja manu kredītu. Bet, tā kā Dievs to būtu ieguvis, es iepazīstināja sievieti ar privātu aizdevumu aizdevēju ar draugu ar nosaukumu Džeimss, un es saņēmu aizdevuma summu 160 000 ASV dolāru apmērā, un šodien esmu uzņēmuma īpašnieks, un mani bērni dara labi ... tāpēc es vēlaties padomu jebkuram, kam nepieciešams aizdevums, lai ātri sazinātos ar viņu pa e-pastu: (jasminnoorloancompany01@gmail.com) viņš nezina, ka es to daru, es lūdzu, lai Dievs viņu svētīs par labajām lietām, ko viņš ir darījis manā dzīvē.
|
| LUIS ROLAND |
2019-01-29 02:05:29 |
|
Mans vārds ir Luis Roland, man ir jauka sieva un 3 bērni. pirms nedēļas man bija izmisīga vajadzība pēc naudas, tāpēc es domāju par aizdevuma saņemšanu, tad es satraucos tik daudzos scammers, kas no manis savāca € 2500 un atsakās man sūtīt e-pastu. Es kļuvu ļoti neapmierināts un galu galā piedzēries, viena uzticīga diena, kad es devos uz kādu dzērienu, kur satiku veco draugu, es viņam pateicu visu, kas ar mani noticis, viņš iepazīstināja mani ar GINA MORGAN LOAN COMPANY LTD un deva man savu e-pastu adrese (ginamorganloancompany@gmail.com), viņš man pastāstīja, kā uzņēmums palīdzēja viņam un viņa ģimenei. Es uzreiz sazinājos ar viņu, es saņēmu mājās, man tika paziņoti noteikumi un noteikumi, pēc aizdevuma apstrādes mazāk nekā 24 stundu laikā es saņēmu 80 000 eiro lielu aizdevumu. Tātad, ja jūs interesē aizdevums, varat arī sazināties ar viņu šajā e-pasta adresē: ginamorganloancompany@gmail.com
|
| LUIS ROLAND |
2019-01-29 02:03:57 |
|
Mans vārds ir Luis Roland, man ir jauka sieva un 3 bērni. pirms nedēļas man bija izmisīga vajadzība pēc naudas, tāpēc es domāju par aizdevuma saņemšanu, tad es satraucos tik daudzos scammers, kas no manis savāca € 2500 un atsakās man sūtīt e-pastu. Es kļuvu ļoti neapmierināts un galu galā piedzēries, viena uzticīga diena, kad es devos uz kādu dzērienu, kur satiku veco draugu, es viņam pateicu visu, kas ar mani noticis, viņš iepazīstināja mani ar GINA MORGAN LOAN COMPANY LTD un deva man savu e-pastu adrese (ginamorganloancompany@gmail.com), viņš man pastāstīja, kā uzņēmums palīdzēja viņam un viņa ģimenei. Es uzreiz sazinājos ar viņu, es saņēmu mājās, man tika paziņoti noteikumi un noteikumi, pēc aizdevuma apstrādes mazāk nekā 24 stundu laikā es saņēmu 80 000 eiro lielu aizdevumu. Tātad, ja jūs interesē aizdevums, varat arī sazināties ar viņu šajā e-pasta adresē: ginamorganloancompany@gmail.com
|
| 9888 |
2019-01-27 22:19:35 |
|
Mūsu aizdevumi ir labi apdrošināti, lai nodrošinātu maksimālu drošību, mūsu prioritāte ir mūsu galvenais mērķis ir palīdzēt jums iegūt nepieciešamos pakalpojumus. Mūsu programma ir ātrākais veids, kā ātri iegūt nepieciešamo. Samaziniet savus maksājumus, lai atvieglotu jūsu ikmēneša izdevumu slodzi. Iegūstiet elastību, ar kuru jūs varat izmantot jebkādus nolūkus no brīvdienām, uz izglītību, uz unikāliem pirkumiem. Ieinteresētajiem pretendentiem jāsazinās ar mums pa e-pastu: BBM INVITE: {D8980E0B} WhatsApp Only: {+ 33753893351}
E-pasts: (iskandalestari.kreditpersatuan@gmail.com)
Mēs piedāvājam plašu finanšu pakalpojumu klāstu, kas ietver: biznesa plānošanu, komercdarbību un attīstību, nekustamo īpašumu un hipotēku, parādu konsolidācijas aizdevumus, biznesa aizdevumus, privātos aizdevumus, mājokļu refinansēšanas aizdevumus ar zemu procentu likmi 1,00% apmērā par vienu atcelšanu privātpersonām, uzņēmumiem un korporatīvās struktūras. Iegūstiet labāko savai ģimenei un arī savu sapņu māju ar mūsu vispārējo aizdevumu shēmu. Ieinteresētajiem pretendentiem jāsazinās ar mums, izmantojot BBM INVITE: {D8980E0B}
WhatsApp Only: {+ 33753893351}
E-pasts: (iskandalestari.kreditpersatuan@gmail.com)
|
| 9888 |
2019-01-27 22:19:00 |
|
Mūsu aizdevumi ir labi apdrošināti, lai nodrošinātu maksimālu drošību, mūsu prioritāte ir mūsu galvenais mērķis ir palīdzēt jums iegūt nepieciešamos pakalpojumus. Mūsu programma ir ātrākais veids, kā ātri iegūt nepieciešamo. Samaziniet savus maksājumus, lai atvieglotu jūsu ikmēneša izdevumu slodzi. Iegūstiet elastību, ar kuru jūs varat izmantot jebkādus nolūkus no brīvdienām, uz izglītību, uz unikāliem pirkumiem. Ieinteresētajiem pretendentiem jāsazinās ar mums pa e-pastu: BBM INVITE: {D8980E0B} WhatsApp Only: {+ 33753893351}
E-pasts: (iskandalestari.kreditpersatuan@gmail.com)
Mēs piedāvājam plašu finanšu pakalpojumu klāstu, kas ietver: biznesa plānošanu, komercdarbību un attīstību, nekustamo īpašumu un hipotēku, parādu konsolidācijas aizdevumus, biznesa aizdevumus, privātos aizdevumus, mājokļu refinansēšanas aizdevumus ar zemu procentu likmi 1,00% apmērā par vienu atcelšanu privātpersonām, uzņēmumiem un korporatīvās struktūras. Iegūstiet labāko savai ģimenei un arī savu sapņu māju ar mūsu vispārējo aizdevumu shēmu. Ieinteresētajiem pretendentiem jāsazinās ar mums, izmantojot BBM INVITE: {D8980E0B}
WhatsApp Only: {+ 33753893351}
E-pasts: (iskandalestari.kreditpersatuan@gmail.com)
|
| LISA SCOTT |
2019-01-27 14:24:19 |
|
Laba diena Ikvienam,
Mans vārds ir Lisa Scott, es vēlos izmantot šo nesēju, lai dalītos ar šo liecību par to, kā es saņēmu savu aizdevumu no Legit Loan Company. Pirms dažiem mēnešiem man bija izmisīga vajadzība pēc aizdevuma, es sazinājos ar tik daudzām kompānijām, bet man tika apkrāpts kopsumma 3000 eiro, es kļuvu neapmierināts un izmisis. Līdz vienai uzticīgai dienai es nolēmu sazināties ar savu draugu, kurš nesen ieguva aizdevumu tiešsaistē, es viņai pastāstīju par savu finansiālo situāciju, viņa pastāstīja par šo likumīgo aizdevumu sabiedrību, ko sauc par SUSAN WEALTH LOAN COMPANY (susanwealthloancompany@gmail.com). Es sazinājos ar uzņēmumu un saņēmu Uzņēmuma noteikumus un nosacījumus, kurus es pieņēmu, un manā pārsteigumā 48 stundu laikā mana kredīta summa 40 000 eiro apmērā tika apstiprināta un pārskaitīta uz manu kontu. Es uzskatu, ka arī citi cilvēki sniedz liecību par šo pašu uzņēmumu. Vai jums ir nepieciešams aizdevums steidzami? sazinieties ar uzņēmumu pa e-pastu: susanwealthloancompany@gmail.com
|
| Kā ES SAņēMU SAVU AI |
2019-01-25 11:09:42 |
|
Mans vārds ir Valeria Marco pirms 6 mēnešiem, kad mans uzņēmums sabruka, man nebija cerības, ka atkal kļūšu par savu biznesu. Es mēģināju aizņemties naudu no bankas, bet man nav bijis pietiekami daudz naudas savā kredītkartē un nav nodrošinājuma, lai saņemtu aizdevumu, tad ļoti tuvs mans Camila Diego draugs iepazīstināja mani ar īstu aizdevēju, izmantojot internetu. GINA MORGAN LOAN COMPANY LTD. Šī sievietes aizdevumu sabiedrība varēja man izsniegt aizdevumu EUR 160 000 apmērā bez jebkāda īpašuma kā nodrošinājuma vai kredītkartes, bet viņa man to uzticēja. Tāpēc mani draugi es teicu sev, kāpēc es esmu savtīgs, tāpēc es nolēmu šo informāciju kopīgot ar visiem. Ja jums ir nepieciešams aizdevums no uzticama kredīta aizdevēja, sazinieties ar Gina Morgan, izmantojot savu e-pastu: ginamorganloancompany@gmail.com
|
| THOMASFRANKFIRMS@GMA |
2019-01-10 15:04:16 |
|
Uzmanību!
Tā ir tiešsaistes reklāma no reģistrētas valdības apstiprināta un licencēta aizdevēja, kas izsniedz dažāda veida aizdevumus, piemēram, hipotekāro kredītu, uzņēmējdarbības aizdevumu, auto aizdevumus tikai nopietnām un ieinteresētajām pusēm pret ļoti zemu pieejamu procentu likmi 3%. Pieteikties jūsu aizdevumam tagad. Ja jūs interesē, sazinieties ar e-pastu: Thomasfrankfirms@gmail.com
Paldies,
Toms
|
| MR. GEORGE ANDERSON |
2019-01-04 06:38:21 |
|
Vai jums ir nepieciešams jebkāds steidzams aizdevums? Kredīti parādu dzēšanai vai nepieciešamība aizdot naudu. Lai uzlabotu savu biznesu, jūs esat noraidījušas visas bankas un citas finanšu iestādes? Vai jums ir nepieciešams aizdevums vai hipotēka? Šī ir vieta, kur meklēt, mēs esam šeit, lai atrisinātu visas jūsu finansiālās problēmas. Mēs aizņemam naudu sabiedrībai. Nepieciešams finansiāls atbalsts ar sliktu kreditoru, kuram nepieciešama nauda. Lai samaksātu par uzņēmējdarbības ieguldījumiem par saprātīgu 2% likmi, ļaujiet man izmantot šo informācijas nesēju, lai informētu, ka mēs piedāvājam uzticamu un noderīgu palīdzību un būsim gatavi jums aizdot. Sazinieties ar mums šodien pa e-pastu: (georgeanderson.loanfirm255@gmail.com)
Aizdevuma piedāvājums.
|
| MR. DéKáNY ENDRE |
2019-01-04 06:37:38 |
|
Vai jums ir nepieciešams steidzams aizdevums? Mēs sniedzam biznesa aizdevumus, personiskos aizdevumus, studentu kredītus, auto aizdevumus uc, ja jūs interesē, sazinieties ar mums: (dakany.endre@gmail.com)
Aizdevuma piedāvājums
|
| SUSAN BENSON |
2018-12-30 14:44:21 |
|
Cienījamie klienti, Vai jums ir steidzami nepieciešams aizdevums? Ja jā, lūdzu, sazinieties ar Sunshine Financial Group Inc.
Mēs esam sertificēts, autoritatīvs, likumīgs un akreditēts kreditēšanas uzņēmums. Mēs sniedzam finansiālu palīdzību visiem, kam steidzami nepieciešams aizdevums. Mēs piedāvājam visu veidu aizdevumus, personiskos aizdevumus vai komerckredītus, kā arī mēs varam sniegt Jums aizdevumu projekta uzsākšanai vai mājas vai automašīnas iegādei.
Ja jums ir bijis tik grūti iegūt akciju aizdevumu no vietējām bankām un citiem finanšu institūtiem, neuztraucieties, jo Sunshine Financial Group Inc ir ieguvis jūsu atpakaļ, kad runa ir par aizdevumu saņemšanu visā pasaulē.
Galvenie ieguvumi no ASV;
- Piesakies jebkurā laikā un vietā.
- Saņemt skaidru naudu mazāk nekā 24 stundas
- Mēs piedāvājam aizdevumu no 1000 līdz 30 miljoniem eiro
- Nav slēptās maksas.
- Zema procentu likme - 3%
- Jūs saņemat iespēju izvēlēties atmaksāšanas datumu - reizi nedēļā, mēnesī vai gadā - 1–30 gadus.
- Jūs saņemsiet iespēju izvēlēties drošus vai nenodrošinātus aizdevumus
Starpnieki / konsultanti / brokeri ir laipni aicināti piesaistīt savus klientus un ir 100% aizsargāti. Pilnībā pārliecināti, mēs strādāsim kopā, lai gūtu labumu no visām iesaistītajām pusēm.
Ja jums ir nepieciešams steidzams aizdevums 24 stundu laikā, lūdzu, rakstiet mums, lai iegūtu plašāku informāciju, izmantojot e-pasta adresi zemāk.
E-pasts: (sunshine_fginc@outlook.com)
E-pasts: (sunshinefinancialgroupinc@gmail.com)
WhatsApp: +447903159998
Silti sveicieni
Susan Benson (vecākais aizdevumu pārvaldnieks)
|
| SUSAN BENSON |
2018-12-30 14:34:21 |
|
Cienījamie klienti, Vai jums ir steidzami nepieciešams aizdevums? Ja jā, lūdzu, sazinieties ar Sunshine Financial Group Inc.
Mēs esam sertificēts, autoritatīvs, likumīgs un akreditēts kreditēšanas uzņēmums. Mēs sniedzam finansiālu palīdzību visiem, kam steidzami nepieciešams aizdevums. Mēs piedāvājam visu veidu aizdevumus, personiskos aizdevumus vai komerckredītus, kā arī mēs varam sniegt Jums aizdevumu projekta uzsākšanai vai mājas vai automašīnas iegādei.
Ja jums ir bijis tik grūti iegūt akciju aizdevumu no vietējām bankām un citiem finanšu institūtiem, neuztraucieties, jo Sunshine Financial Group Inc ir ieguvis jūsu atpakaļ, kad runa ir par aizdevumu saņemšanu visā pasaulē.
Galvenie ieguvumi no ASV;
- Piesakies jebkurā laikā un vietā.
- Saņemt skaidru naudu mazāk nekā 24 stundas
- Mēs piedāvājam aizdevumu no 1000 līdz 30 miljoniem eiro
- Nav slēptās maksas.
- Zema procentu likme - 3%
- Jūs saņemat iespēju izvēlēties atmaksāšanas datumu - reizi nedēļā, mēnesī vai gadā - 1–30 gadus.
- Jūs saņemsiet iespēju izvēlēties drošus vai nenodrošinātus aizdevumus
Starpnieki / konsultanti / brokeri ir laipni aicināti piesaistīt savus klientus un ir 100% aizsargāti. Pilnībā pārliecināti, mēs strādāsim kopā, lai gūtu labumu no visām iesaistītajām pusēm.
Ja jums ir nepieciešams steidzams aizdevums 24 stundu laikā, lūdzu, rakstiet mums, lai iegūtu plašāku informāciju, izmantojot e-pasta adresi zemāk.
E-pasts: (sunshine_fginc@outlook.com)
E-pasts: (sunshinefinancialgroupinc@gmail.com)
WhatsApp: +447903159998
Silti sveicieni
Susan Benson (vecākais aizdevumu pārvaldnieks)
|
| VICTORIA |
2018-12-25 16:42:26 |
|
Ziemassvētku aizdevums .....
Labdien! Vai jums ir nepieciešams steidzams aizdevums, kas ir lielāks par 50 000 eiro? ..
lūdzu, sazinieties ar mums un paņemiet savu aizdevumu šodien @
(johnsonfutureloanlender@gmail.com)
Whatsapp ....... +1(931)3351752 ...
|
| MATILDA BRīNA |
2018-12-10 10:57:20 |
|
Sveicināti un laipni lūdzam Standard Life finanšu kompānijā
Vai jums ir nepieciešams īstermiņa, ilgtermiņa vai īstermiņa aizdevums? Vai šajā gadā ir ietekmējusi tautsaimniecības grūtības? Vai jums ir liegta aizdevuma saņemšana no bankas vai kāda finanšu uzņēmuma?
Mūsu procedūras ir vispiemērotākās un drošākās, jo mēs izmantojam 100% bezriska procesu
Mēs ceram izveidot ilgtermiņa biznesa attiecības ar jums pat pēc šī pirmā pētījuma
Lūdzu, ja jūs interesē, pārbaudiet ar mums, izmantojot tālāk norādītās e-pasta adreses.
E-pasts: (standardlifefinancialservices@gmail.com)
E-pasts: (standard_lifefinancialservices@outlook.com)
Jums ir 100% garantija, ka jūs saņemsiet aizdevumu šīs aizdevuma darījuma beigās.
Silti sveicieni
Matilda Brīna
|
| PEACE LENDERS |
2018-12-06 06:43:09 |
|
Vai jūs meklējat, kā iegūt jebkāda veida aizdevumu ar zemu procentu likmi? Šeit ir iespēja saņemt aizdevumu, lai tas atbilstu jums un padarītu jūsu sapni. Es atzinīgi vērtēju jūs Miera aizdevējiem. Privāts uzņēmums, kas piedāvā aizdevumu ar 2% likmi. Mēs sniedzam biznesa aizdevumu, mājokļa aizdevumu, studentu aizdevumu, sliktu kredītu aizdevumu, personīgo aizdevumu, celtniecības aizdevumu, aizdevuma dienas naudas aizdevumu, studentu aizdevumu un tā tālāk. Mūsu pakalpojumi ir ļoti lēti un padarīs jūs smaidu. Ja jūs interesē saņemt aizdevumu no mums, lūdzu, sazinieties ar mums pa e-pastu (peacelenders@gmail.com).
Whatsapp skaits: +1 (631) 960-9708
|
| WAITER MORISON |
2018-12-04 14:14:19 |
|
Sveiki, Ikviens, mans vārds ir kundze Waiter Morison, es dzīvoju Apvienotajā Karalistē London Liverpool, un es šodien esmu laimīga sieviete? un es teicu savam, ka jebkuram aizdevējam, kurš var glābt manu ģimeni no mūsu sliktās situācijas, es nodošu aizdevējam jebkuru personu, kas meklē aizdevumu, visas paldies viņai jašmīnam jaunam, kas deva man laimi man un manai ģimenei, es biju kam vajag aizdevumu 300 000,00 eiro, lai sāktu savu dzīvi visā, jo esmu viena māte ar 2kids Es satiku šo godīgo un Dievu, baidoties no sievietes aizdevuma aizdevuma, kas man palīdz ar aizdevumu 300 000,00 eiro, viņa ir dievi, kas baidās sieviete, ja jums ir nepieciešams aizdevums, un jūs atmaksāsit aizdevumu, lūdzu, sazinieties ar viņu pa e-pastu ... (jasminnoorloancompany01@gmail.com) Mrs Waiter Morison
|
| SUSAN BENSON |
2018-11-23 20:46:40 |
|
Sveiki un laipni lūdzam Sunshine Financial Group Inc
Mēs esam sertificēti, autoritatīvi, likumīgi un akreditēti kreditēšanas uzņēmumi. Mēs sniedzam finansiālu palīdzību visiem, kam steidzami nepieciešams aizdevums. Mēs piedāvājam visu veidu aizdevumus, individuālos aizdevumus vai komerciālus aizdevumus, un mēs varam arī sniegt jums aizdevumu, lai sāktu projektu vai nopirktu māju vai automašīnu.
Vai jums ir grūti iegūt vietējo banku un citu finanšu institūciju kapitāla aizdevumu? neuztraucieties ne vairāk Tā kā Sunshine Financial Group Inc ir ieguvusi savu muguru, kad runa ir par aizdevumu saņemšanu visā pasaulē.
GALVENIE PABALSTI:
- Piesakies jebkurā laikā un vietā.
- Saņem naudu mazāk kā 24 stundas
- Aizņemties līdz 50 miljoniem eiro
- Nav slēptu maksu.
- zema 3% procentu likme
- Jūs gūstat iespēju atlasīt atmaksas datumu vai nu reizi nedēļā, mēnesī vai gadā, sākot no 1-30 gadiem.
- ļoti droša
Starpnieki / konsultanti / brokeri ir laipni aicināti piesaistīt savus klientus un ir 100% aizsargāti. Pilnībā uzticoties, mēs strādāsim kopā, lai gūtu labumu no visām iesaistītajām pusēm.
Ja jums nepieciešama steidzama aizdevuma piešķiršana 24 stundu laikā, lūdzu rakstiet mums, lai iegūtu plašāku informāciju, izmantojot e-pasta adresi zemāk.
E-pasts: (sunshine_fginc@outlook.com)
E-pasts: (sunshinefinancialgroupinc@gmail.com)
WhatsApp: +447903159998
Paldies
|
| ROBERT PEARCE |
2018-11-20 00:16:17 |
|
Vai jums ir nepieciešams aizdevums, lai konsolidētu savu parādu 1,0% apmērā? Vai individuālie aizdevumi * Biznesa aizdevumi utt. Mēs piedāvājam finanšu konsultācijas klientam, uzņēmumiem, kuri meklē aizņēmumu / kredīta finansējumu un meklē darba kapitālu, lai uzsāktu jaunu uzņēmējdarbību vai paplašinātu esošo biznesu. Starpnieki / konsultanti / brokeri ir laipni gaidīti, lai pievienotu savus klientus un 100% aizsargātu. Ieinteresētās puses sazināsies ar mums, lai saņemtu plašāku informāciju pa e-pastu: atbfinancial2@gmail.com (atbfinancial2@gmail.com)
|
| LOAN |
2018-11-20 00:13:28 |
|
Vai jums ir nepieciešams aizdevums, lai konsolidētu savu parādu 1,0% apmērā? Vai individuālie aizdevumi * Biznesa aizdevumi utt. Mēs piedāvājam finanšu konsultācijas klientam, uzņēmumiem, kuri meklē aizņēmumu / kredīta finansējumu un meklē darba kapitālu, lai uzsāktu jaunu uzņēmējdarbību vai paplašinātu esošo biznesu. Starpnieki / konsultanti / brokeri ir laipni gaidīti, lai pievienotu savus klientus un 100% aizsargātu. Ieinteresētās puses sazināsies ar mums, lai saņemtu plašāku informāciju pa e-pastu: atbfinancial2@gmail.com (atbfinancial2@gmail.com)
|
| ERIKA BRADDOKA |
2018-11-12 16:42:38 |
|
HELLO, MŪSU NOSAUKUMS IR ERIKA BRADDOKA, Es esmu šeit, lai ieteiktu jums juridisku aizdevumu CENU, KAS IEGŪST IZMAKSAS USD 80,000. VAI VIŅA IR MR GEORGE KENNETH NO GEORGE KENNETH IZLASES INVESTĪCIJĀM, LŪDZU SAISTĪBĀ AR VĀRTIEM UZŅĒMUMU PIETEIKŠANU (georgekennethloaninvestment@gmail.com)
|
| COLLINS |
2018-11-04 00:48:34 |
|
Šī informācija, kuru es eju pa visu pasauli, palīdzēs ikvienam / organizācijai, kurai vajadzīgs jebkāda veida aizdevums, jo es tikko saņēmu biznesa aizdevumu no šī lieliskā privātā aizdevuma aizdevēja, ko sauca Jasmin Noor kundze, šī brīnišķīgā sieviete Jasmin Noor kundzei man palīdzēja ar aizdevumu, kad citi uzņēmumi, gan privāti, gan korporācija, pieteica manu lūgumu, līdz atzina Jasmin Noor kundzi, kas varēja man palīdzēt ar uzņēmējdarbības aizdevumu. Tāpēc es padomu ikvienam / organizācijai, kurai nepieciešams aizdevums, piemēram: Būvniecības aizdevumi, Attīstības aizdevumi, Hipotekārais kredīts, Nekustamā īpašuma aizdevumi un daudz kas cits ar 3% procentu likmi. Es jūtos iespaidu ar viņas pakalpojumiem, tāpēc es ietu šo svarīgo informāciju visā pasaulē, tāpēc ikvienam, kam nepieciešama jebkāda veida aizdevums, vajadzētu sazināties ar Mrs.Jasmin Noor, izmantojot tur kontaktpersonas e-pastu (19dc1964@gmail.com) Paldies visiem un esmu Betty Hord pēc vārda ..
|
| CHARLES DIN |
2018-10-26 00:31:18 |
|
Sveiki
Vai jums ir nepieciešams jebkura veida aizdevums? Mēs piedāvājam visu veidu aizdevumus ar zemu procentu likmi 2%
Tāpēc, lūdzu, ja jums šodien ir nepieciešams aizdevums, lūdzu, rakstiet mums uz adresi charles_din@hotmail.com, lai iegūtu plašāku informāciju.
Pilnais vārds:...
Valsts: ....
Obligātā summa: ...
Ilgums: ....
Tālrunis: ....
Lūdzu, atbildiet uz adresi charles_din@hotmail.com, lai iegūtu plašāku informāciju.
Charles Din kungs
|
| CHARLES DIN |
2018-10-26 00:30:53 |
|
Sveiki
Vai jums ir nepieciešams jebkura veida aizdevums? Mēs piedāvājam visu veidu aizdevumus ar zemu procentu likmi 2%
Tāpēc, lūdzu, ja jums šodien ir nepieciešams aizdevums, lūdzu, rakstiet mums uz adresi charles_din@hotmail.com, lai iegūtu plašāku informāciju.
Pilnais vārds:...
Valsts: ....
Obligātā summa: ...
Ilgums: ....
Tālrunis: ....
Lūdzu, atbildiet uz adresi charles_din@hotmail.com, lai iegūtu plašāku informāciju.
Charles Din kungs
|
| PAUL GREEN |
2018-10-21 15:00:37 |
|
Vai jums ir nepieciešams steidzams aizdevums, lai atrisinātu finansiālo problēmu? Mēs izsniedzam biznesa kredītus, individuālos aizdevumus, mājokļu kredītus, dienas naudas aizdevumus, laulību kredītus, studentu aizdevumus, automašīnu aizdevumus, bankas aizdevumus un aizdevumus, lai nomaksātu parādzīmes. Mēs arī apstiprinām aizdevumus melnajā sarakstā iekļautajiem klientiem. Ja vēlaties, lūdzu, sazinieties ar mums: ( paulloanfundshelp1@gmail.com )
Whatspa numurs: +919066210641
Ar laba vēlējumiem
Mr Paul Green
|
| PAUL GREEN |
2018-10-21 14:59:17 |
|
Ātrie aizdevumi piedāvā. Sazinies ar mums: paulloanfundshelp1@gmail.com
Whatspa numurs: +91 906-6210-641
|
| GREG OWEN |
2018-10-05 17:00:17 |
|
Likumīga aizdevuma iegūšana vienmēr ir bijusi milzīga problēma Klientiem, kuriem ir finansiālas problēmas un kuriem ir nepieciešams risinājums. Kredīta un nodrošinājuma jautājums ir tas, ka klienti vienmēr ir noraizējušies, meklējot aizdevumu no likumīga aizdevēja. Bet mēs esam padarījuši šo atšķirību kreditēšanas nozarē. Mēs varam noorganizēt aizdevumu no 5000 eiro. līdz 500 000 000 eiro, kā minimums 3% apmērā. Lūdzu, nekavējoties atbildiet uz šo e-pasta ziņojumu: Gregowenloanfirm1@gmail.com
Mūsu pakalpojumi ietver sekojošo:
1) Parādu konsolidācija
2) otra hipotēka
3) biznesa aizdevumi
4) personas aizdevumi
5) Starptautiskie aizdevumi
6) Aizdevums jebkuram veidam
7) Ģimenes aizdevums E.T.C
Nav sociālā nodrošinājuma un nav kredīta pārbaudes, 100% garantija. Viss, kas jums jādara, ir precīzi informēt mūs par to, ko jūs vēlaties, un mēs, protams, padarīsim jūsu sapni. GREG OWEN LOAN FIRM1 saka YES, kad jūsu bankas saka NO. Visbeidzot, mēs finansējam neliela apjoma aizdevumu sabiedrību, starpniekus, mazās finanšu iestādes, jo mums ir neierobežots kapitāls. Lai saņemtu sīkāku informāciju par aizdevuma saņemšanu, sazinieties ar mums, lūdzu, nekavējoties atbildiet.
Uzņēmuma kontaktinformācija
E-pasta adrese: Gregowenloanfirm1@gmail.com
|
| GREG OWEN |
2018-10-05 16:52:52 |
|
Likumīga aizdevuma iegūšana vienmēr ir bijusi milzīga problēma Klientiem, kuriem ir finansiālas problēmas un kuriem ir nepieciešams risinājums. Kredīta un nodrošinājuma jautājums ir tas, ka klienti vienmēr ir noraizējušies, meklējot aizdevumu no likumīga aizdevēja. Bet mēs esam padarījuši šo atšķirību kreditēšanas nozarē. Mēs varam noorganizēt aizdevumu no 5000 eiro. līdz 500 000 000 eiro, kā minimums 3% apmērā. Lūdzu, nekavējoties atbildiet uz šo e-pasta ziņojumu: Gregowenloanfirm1@gmail.com
Mūsu pakalpojumi ietver sekojošo:
1) Parādu konsolidācija
2) otra hipotēka
3) biznesa aizdevumi
4) personas aizdevumi
5) Starptautiskie aizdevumi
6) Aizdevums jebkuram veidam
7) Ģimenes aizdevums E.T.C
Nav sociālā nodrošinājuma un nav kredīta pārbaudes, 100% garantija. Viss, kas jums jādara, ir precīzi informēt mūs par to, ko jūs vēlaties, un mēs, protams, padarīsim jūsu sapni. GREG OWEN LOAN FIRM1 saka YES, kad jūsu bankas saka NO. Visbeidzot, mēs finansējam neliela apjoma aizdevumu sabiedrību, starpniekus, mazās finanšu iestādes, jo mums ir neierobežots kapitāls. Lai saņemtu sīkāku informāciju par aizdevuma saņemšanu, sazinieties ar mums, lūdzu, nekavējoties atbildiet.
Uzņēmuma kontaktinformācija
E-pasta adrese: Gregowenloanfirm1@gmail.com
|
| GREG OWEN |
2018-10-05 16:52:50 |
|
Likumīga aizdevuma iegūšana vienmēr ir bijusi milzīga problēma Klientiem, kuriem ir finansiālas problēmas un kuriem ir nepieciešams risinājums. Kredīta un nodrošinājuma jautājums ir tas, ka klienti vienmēr ir noraizējušies, meklējot aizdevumu no likumīga aizdevēja. Bet mēs esam padarījuši šo atšķirību kreditēšanas nozarē. Mēs varam noorganizēt aizdevumu no 5000 eiro. līdz 500 000 000 eiro, kā minimums 3% apmērā. Lūdzu, nekavējoties atbildiet uz šo e-pasta ziņojumu: Gregowenloanfirm1@gmail.com
Mūsu pakalpojumi ietver sekojošo:
1) Parādu konsolidācija
2) otra hipotēka
3) biznesa aizdevumi
4) personas aizdevumi
5) Starptautiskie aizdevumi
6) Aizdevums jebkuram veidam
7) Ģimenes aizdevums E.T.C
Nav sociālā nodrošinājuma un nav kredīta pārbaudes, 100% garantija. Viss, kas jums jādara, ir precīzi informēt mūs par to, ko jūs vēlaties, un mēs, protams, padarīsim jūsu sapni. GREG OWEN LOAN FIRM1 saka YES, kad jūsu bankas saka NO. Visbeidzot, mēs finansējam neliela apjoma aizdevumu sabiedrību, starpniekus, mazās finanšu iestādes, jo mums ir neierobežots kapitāls. Lai saņemtu sīkāku informāciju par aizdevuma saņemšanu, sazinieties ar mums, lūdzu, nekavējoties atbildiet.
Uzņēmuma kontaktinformācija
E-pasta adrese: Gregowenloanfirm1@gmail.com
|
| CHRISTY WALTON |
2018-09-29 10:25:08 |
|
Sveiki,
Meklējat parāda konsolidācijas aizdevumu, nenodrošināti aizdevumi, biznesa aizdevumi, hipotekārie aizdevumi, automašīnu aizdevumi, studentu aizdevumi, personiskie aizdevumi, riska kapitāls utt! Es esmu privāts aizdevējs, sniedzu aizdevumus uzņēmumiem un privātpersonām ar zemām procentu likmēm un saprātīgām 2% procentu likmēm. E-pasts: christywalton355@gmail.com
|
| MR JOHN |
2018-09-29 03:19:37 |
|
Kā es varu saņemt aizdevumu @ 2% PROCENTU LIKME
Es nebiju pārliecināts, ka esmu iegādājies likumīgu aizdevuma aizdevēju tiešsaistē. Bet, kad es vairs nevarēju sev nonākt pie manas parādsaistības, mans dēls bija uz slimnīcu gultu operācijas vajadzībām, kurā bija iesaistīti milzīgi līdzekļi, un man arī vajadzēja nedaudz naudas, lai refinansētu un iegūtu labu māju, tad man ir lai meklētu palīdzību no draugiem un kad vairs nebija cerības, ka es nolemju aiziet tiešsaistē, lai meklētu aizdevumu, un es atradu JOHN WILLIAMS FUNDS (johnwilliamstrustfirm@gmail.com) ar 2% procentu likmi un nekavējoties piemērou manu informāciju, kā norādīts. Septiņu dienu laikā no mana pieteikuma viņš vadīja manu aizdevuma summu bez slēptiem maksājumiem, un es varētu rūpēties par manu dēla medicīnisko rēķinu, Atjaunot savu īres rēķinu un atmaksāt manu parādu. Es ieteikšu katram aizdevuma meklētājam sazināties ar JOHN WILLIAMS FUNDS ar johnwilliamstrustfirm@gmail.com. Viegla un droša transakcija
|
| BETTY HORD |
2018-09-22 15:12:46 |
|
Šī informācija, kuru es eju pa visu pasauli, palīdzēs ikvienam / organizācijai, kurai vajadzīgs jebkāda veida aizdevums, jo es tikko saņēmu biznesa aizdevumu no šī lieliskā privātā aizdevuma aizdevēja, ko sauca Jasmin Noor kundze, šī brīnišķīgā sieviete Jasmin Noor kundzei man palīdzēja ar aizdevumu, kad citi uzņēmumi, gan privāti, gan korporācija, pieteica manu lūgumu, līdz atzina Jasmin Noor kundzi, kas varēja man palīdzēt ar uzņēmējdarbības aizdevumu. Tāpēc es padomu ikvienam / organizācijai, kurai nepieciešams aizdevums, piemēram: Būvniecības aizdevumi, Attīstības aizdevumi, Hipotekārais kredīts, Nekustamā īpašuma aizdevumi un daudz kas cits ar 3% procentu likmi. Es jūtos iespaidu ar viņas pakalpojumiem, tāpēc es ietu šo svarīgo informāciju visā pasaulē, tāpēc ikvienam, kam nepieciešama jebkāda veida aizdevums, vajadzētu sazināties ar Mrs.Jasmin Noor, izmantojot tur kontaktpersonas e-pastu (jasminnoorloancompany01@gmail.com)
Paldies visiem un esmu Betty Hord pēc vārda ..
|
| MRS LOLA DANIEL |
2018-09-20 04:07:33 |
|
Miers
Vai jums ir nepieciešams steidzams aizdevums, lai apmierinātu savas finansiālās vajadzības? Mēs piedāvājam aizdevumus no 2000 līdz 50 000 000,00, mēs esam uzticami, spēcīgi, ātri un dinamiski, nepārbauda kredītus un šajā periodā piedāvājam 100% garantiju ārējiem aizdevumiem.
Mēs arī aizdeva visu valūtu ar 2% procentu no visiem aizdevumiem .... Ja jūs interesē, atgriezieties pie mums ar šo e-pastu.
Lūdzu, atgriezieties pie mums, ja vēlaties
eaglehomemortgage001@gmail.com
Whatsapp: +1 (512) 817-4886
Jūsu uzticīgi
Lola Daniel kundze
eaglehomemortgage001@gmail.com
|
| DAYRO FERNANDEZ |
2018-09-05 17:23:57 |
|
AVOID SCAM, GET A LEGIT LOAN TODAY
Hello,
are you in need of financial assistance?
do you need an urgent loan of all kind.
ranging From €1,000 to €50,000,000.00,
* Interest rate of 2%
* Choice of 1-25 years to pay off.
* Choose between monthly and annual plan of payment.
* The flexibility of the loan.
For assistance, Do not hesitate to contact Mr Dayro Fernandez for an urgent loan or any economic cooperation
Please contact us by e-mail: ( dayroloanfirm@gmail.com )
whatsapp on: +1(951)3816581
|
| MAH |
2018-08-24 18:34:38 |
|
Are You A Business Man Or Woman? Are You In Any Financial Mess Or Do You Need Funds To Start Up Your Own Business? Do You Need A Loan To Start A Nice Small Scale And Medium Business? Do You Have A Low Credit Score And You Are Finding It Hard To Obtain Capital Loan From Local Banks And Other Financial Institutes?. - Intermediaries / Consultants / Brokers Are Welcome To Bring Their Clients And Are 100% Protected. Interested Parties Should Contact Us For More Information Through Via E-mail: CYSCredits@Post.com ( CYSCredits@Asia.com )
|
| LUIS ROLAND |
2018-08-19 20:18:51 |
|
Mans vārds ir Luis Roland, man ir jauka sieva un 3 bērni. Pirms nedēļas man bija izmisis vajadzība pēc naudas, tāpēc es domāju par aizņēmuma iegūšanu, un tad es pievērsos tik daudziem krāpniekiem, no kuriem esmu savācis 2500 eiro un atsakās man e-pastu. Es kļuvu ļoti neapmierināts un, visbeidzot, piedzēries, viena uzticīga diena, kad es devos uz klubu par dažiem dzērieniem, kur es satiku veco draugu, es viņam pastāstīju viss, kas ar mani notika, viņš iepazīstināja mani ar GINA MORGAN LOAN COMPANY LTD un deva viņai e-pastu adrese (ginamorganloancompany@gmail.com), viņš man teica, kā uzņēmums palīdzēja viņam un viņa ģimenei. Es sazinājos ar viņu uzreiz, kad es devos uz māju, man bija teikts, ka noteikumi un noteikumi pēc aizņēmuma apstrādes mazāk kā 24 stundu laikā es saņēmu aizdevumu 80 000 euro apmērā. Tātad, ja jūs interesē aizdevums, varat sazināties ar viņu arī šajā e-pasta ziņojumā: ginamorganloancompany@gmail.com
|
| NAT WEST |
2018-08-16 01:54:33 |
|
Sveiki,
Vai jums ir nepieciešams steidzams aizdevums? Vai jūs esat parāds? Vai jums ir slikta kredīta? vai jūs esat noraidījis bankas, vai jums ir nepieciešams aizdevums, lai uzsāktu savu biznesu? Mēs izsniedzam aizdevumus cilvēkiem, neskatoties uz viņu sliktajiem / sliktajiem kredītreitingiem. Mēs izsniedzam gan biznesa, gan individuālos aizdevumus ar ilgtermiņa un īstermiņa izvēli, ar zemu procentu likmi 2% apmērā par katru personu un uzņēmumu .. Mūsu aizdevumu programmētājs ir ātrs un uzticams, piemērojams šodien un saņem tūlītēju atbildi. Mūsu Aizdevumi ir labi apdrošināti, 100% garantēti, un klientiem tiek nodrošināta maksimāla drošība. Lai saņemtu papildu informāciju, sazinieties ar mums, izmantojot mūsu e-pasta adresi: (natwestloancompany432@gmail.com)
E-pasts: (natwestloancompany432@gmail.com)
NAT WEST MD / CEO
|
| MR ANDY |
2018-08-04 18:48:27 |
|
Vai jums ir nepieciešams jebkāda veida aizdevums?
Vai jums ir kādi finanšu traucējumi vai jums ir nepieciešami līdzekļi, lai uzsāktu savu biznesu0210
Šeit ir iespēja saņemt jūsu mazos un lielos aizdevumus, lai uzlabotu un uzsāktu jūsu business anykind.we sniedzot aizdevumus sabiedrībai ar ļoti samazinātu procentu likmi. Mēs esam dinamiska, uzticama, efektīva un uzticama cienīgs. Sazinieties ar mums tagad, lai saņemtu īstermiņa un ilgtermiņa aizdevumus. Lai iegūtu plašāku informāciju un pieteikumu, sazinieties ar mums tagad.
Mēs piedāvājam individuālos aizdevumus, parādsaistību konsolidācijas aizdevumus, riska kapitālu, biznesa aizdevumus, izglītības aizdevumus, mājokļu kredītus vai "aizdevumus jebkura iemesla dēļ!". Tomēr mūsu metode piedāvā iespēju norādīt nepieciešamo aizdevuma summu un arī to ilgumu, kādu jūs varat atļauties
EMAIL: trustfirm2010@gmail.com
Mēs piešķiram jūsu kredītus, ņemot vērā jūsu atbilstību un atbildi.
Sveicieni,
Andijs kungs
trustfirm2010@gmail.com
|
| VALERIA MARCO |
2018-08-04 12:43:37 |
|
Mans vārds ir Valeria Marco, pirms 6 mēnešiem mans bizness sabruka, man nebija cerības, ka atkal atkal atgriezīsim savu biznesu. Es mēģināju aizņemties naudu no bankas, taču manā kredītkartē nebija pietiekami daudz naudas, un nav īpašumu kā nodrošinājumu aizdevuma saņemšanai, tad ļoti tuvs mans draugs Camila Diego iepazīstināja mani ar īstu aizdevuma aizdevēju internetā GINA MORGAN LOAN COMPANY LTD. Šī sievietes aizdevuma sabiedrība varēja piešķirt man aizdevumu 160 000 eiro apmērā bez īpašuma kā nodrošinājuma vai kredītkartes, bet viņa to uzticēja man uzticēties. Tāpēc mani draugi sacīja sev, kāpēc esot savtīgi, tāpēc es nolēmu dalīties ar šo informāciju ar visiem. Ja jums ir nepieciešams aizdevums no uzticama aizdevuma aizdevuma, sazinieties ar Gina Morgan, izmantojot viņas e-pastu: ginamorganloancompany@gmail.com
|
| NAT WEST LOAN |
2018-07-31 21:04:38 |
|
Sveiki,
Vai jūs meklējat finansiālu brīvību? Vai jūs esat parāds, vai jums ir nepieciešams aizdevums, lai sāktu jaunu uzņēmējdarbību? Vai arī jūs sabrukāt finansiāli, vai ir nepieciešams aizdevums, lai iegādātos automašīnu vai māju? Vai esat noraidījis savu banku jebkurā laikā? Vai vēlaties uzlabot savu finansiālo stāvokli? Vai jums ir nepieciešams aizdevums, ko maksā rēķini? Neatkarīgi no tā, mēs atzinīgi vērtējam jūs par iespēju saņemt visu veidu aizdevumus par ļoti pieņemamām cenām. 2% procentu likmes citiem. Lai iegūtu vairāk informācijas, sazinieties ar mums pa e-pastu: (natwestloancompany432@gmail.com).
Vai jums ir nepieciešams komerciāls aizdevums?
Vai jums ir nepieciešams individuāls aizdevums?
Vai jūs vēlaties iegādāties automašīnu?
Vai vēlaties refinansēt?
Vai jums ir nepieciešams hipotekārais kredīts?
Vai jums ir nepieciešams milzīgs kapitāls, lai sāktu savu biznesa priekšlikumu vai paplašināšanu? Vai jūs zaudējat cerību un ticat, ka nav izejas, un jūsu finanšu slogs joprojām pastāv?
Sazinieties ar mums pa e-pastu: (natwestloancompany432@gmail.com)
Ar cieņu
|
| MR. MAH |
2018-07-31 20:29:10 |
|
Loan To Consolidate Your Debt At 1.0%? Or A Personal Loans * Business Loans etc. Interested Parties Should Contact Us For More Information Through Via E-mail: SuiteCapitals@gmail.com ( SuiteCapitals@post.com )
We Offers Financial Consulting To Client, Companies Seeking Debt / Loan Financing And Seeking For Working Capital To Start A New Business Or To Expand Existing Business. Interested Parties Should Contact Us For More Information Through Via E-mail: SuiteCapitals@gmail.com ( SuiteCapitals@post.com )
|
| MR. RICHARD COSMOS |
2018-07-29 14:49:12 |
|
Vai jums ir nepieciešams steidzams aizdevums? Sazinieties ar mums pa e-pastu, lai iegūtu informāciju par mūsu aizdevumu pakalpojumu. e-pasts: richardcosmos5@gmail.com
|
| MR. RICHARD COSMOS |
2018-07-29 14:47:47 |
|
Laba diena,
Es esmu reģistrēts privāts kreditors. Mēs izsniedzam aizdevumus, kas palīdz cilvēkiem un uzņēmumiem, kuriem visā pasaulē ir nepieciešams atjaunot savu finansiālo stāvokli visā pasaulē ar ļoti zemām gada procentu likmēm 2% gadā, 30 gadu atmaksāšanas periodam visā pasaulē. Mēs izsniegsim aizdevumus no 5000 līdz 100 000 000 eiro. Aizdevumi ir labi nodrošināti, un mūsu prioritāte ir nodrošināt maksimālu drošību. Personai, kas jūs interesē, sazinieties ar mani pa e-pastu (richardcosmos5@gmail.com)
Aizdevuma piedāvājums.
|
| NAT WEST LOAN |
2018-07-28 22:10:01 |
|
Sveiki
Tas ir informēt plašu sabiedrību, ka NATWESTLOANCOMPANY piedāvā finansiālu palīdzību klientam, uzņēmumiem un personām, kas meklē finanšu aktīvu / aizdevumu finansējumu, un tiem, kas meklē apgrozāmo kapitālu, lai uzsāktu jaunu uzņēmējdarbību vai paplašinātu pastāvošo biznesu, mēs izsniedzam aizdevumus ar procentu likmi no 2% gadā un diapazonā no 1000,00 USD / Eiro / Mārciņām līdz USD 500,00,000 / USD / Mārciņiem kā aizdevuma piedāvājumu. Ieinteresētās puses sazināsies ar mums, lai iegūtu plašāku informāciju pa e-pastu: (natwestloancompany432@gmail.com)
E-pasts: (natwestloancompany432@gmail.com)
WHATSAPP numurs: +2347060613783
|
| NAT WEST LOAN |
2018-07-28 22:04:16 |
|
Sveiki
Tas ir informēt plašu sabiedrību, ka NATWESTLOANCOMPANY piedāvā finansiālu palīdzību klientam, uzņēmumiem un personām, kas meklē finanšu aktīvu / aizdevumu finansējumu, un tiem, kas meklē apgrozāmo kapitālu, lai uzsāktu jaunu uzņēmējdarbību vai paplašinātu pastāvošo biznesu, mēs izsniedzam aizdevumus ar procentu likmi no 2% gadā un diapazonā no 1000,00 USD / Eiro / Mārciņām līdz USD 500,00,000 / USD / Mārciņiem kā aizdevuma piedāvājumu. Ieinteresētās puses sazināsies ar mums, lai iegūtu plašāku informāciju pa e-pastu: (natwestloancompany432@gmail.com)
E-pasts: (natwestloancompany432@gmail.com)
WHATSAPP numurs: +2347060613783
|
| LARRY ELLISON |
2018-07-27 13:14:18 |
|
Vai jums ir nepieciešams kredīts
Vai esat biznesa vīrietis vai sieviete? Vai jums ir nepieciešami līdzekļi, lai uzsāktu savu uzņēmējdarbību? Vai jums ir nepieciešams aizdevums, lai nokārtotu parādu vai samaksātu par saviem rēķiniem vai sāktu jauks bizness? Vai jums ir nepieciešami līdzekļi sava projekta finansēšanai? E-pasts: ( larryellisonfinance@gmail.com ) Mēs piedāvājam garantētas aizdevumu pakalpojumus jebkurai summai un jebkurai pasaules daļai (privātpersonām, uzņēmumiem, nekustamo īpašumu un korporatīvām struktūrām) ar mūsu lielisko 2% procentu likmi. Lai pieteiktos un iegūtu vairāk informācijas, sūtiet atbildes uz šādu e-pasta adresi: larryellisonfinance@gmail.com
|
| APEX LENDING HOUSE |
2018-07-26 10:43:26 |
|
Sveicināti un laipni aicināti Apex aizdevumu namā, vai jūs esat biznesa vīrietis vai sieviete? Vai jums ir nepieciešama nauda, lai sāktu savu biznesu? Vai jums ir nepieciešams aizdevums, lai nokārtotu parādu vai samaksātu par saviem rēķiniem vai sāktu jauks bizness? Vai jums ir nepieciešama nauda par savu projektu? Mēs piedāvājam drošus un drošus aizdevumus jebkurā apjomā un visā pasaulē (privātpersonām, uzņēmumiem, nekustamajiem īpašumiem un juridiskajām personām) mūsu likme ir 3% lielisks.
Lūdzu, ja jūs interesē, lūdzu, sazinieties ar mums, izmantojot šo e-pasta adresi: (apexlendinghouse@gmail.com)
Mēs piedāvājam dažādus aizdevumus
* Personas aizdevumi (nodrošināti un nenodrošināti)
* Biznesa aizdevumi (nodrošināti un nenodrošināti)
* Depozīta konsolidācija
Jums ir 100% garantija, ka jūs saņemsiet aizdevumu šīs aizdevuma darījuma beigās.
Lai iegūtu vairāk informācijas, sazinieties ar mums, izmantojot šo e-pastu zemāk, lai sāktu savu aizdevuma darījumu.
E-pasts: apexlendinghouse@gmail.com
Paldies
|
| APEX LENDING HOUSE |
2018-07-26 10:43:26 |
|
Sveicināti un laipni aicināti Apex aizdevumu namā, vai jūs esat biznesa vīrietis vai sieviete? Vai jums ir nepieciešama nauda, lai sāktu savu biznesu? Vai jums ir nepieciešams aizdevums, lai nokārtotu parādu vai samaksātu par saviem rēķiniem vai sāktu jauks bizness? Vai jums ir nepieciešama nauda par savu projektu? Mēs piedāvājam drošus un drošus aizdevumus jebkurā apjomā un visā pasaulē (privātpersonām, uzņēmumiem, nekustamajiem īpašumiem un juridiskajām personām) mūsu likme ir 3% lielisks.
Lūdzu, ja jūs interesē, lūdzu, sazinieties ar mums, izmantojot šo e-pasta adresi: (apexlendinghouse@gmail.com)
Mēs piedāvājam dažādus aizdevumus
* Personas aizdevumi (nodrošināti un nenodrošināti)
* Biznesa aizdevumi (nodrošināti un nenodrošināti)
* Depozīta konsolidācija
Jums ir 100% garantija, ka jūs saņemsiet aizdevumu šīs aizdevuma darījuma beigās.
Lai iegūtu vairāk informācijas, sazinieties ar mums, izmantojot šo e-pastu zemāk, lai sāktu savu aizdevuma darījumu.
E-pasts: apexlendinghouse@gmail.com
Paldies
|
| APEX LENDING HOUSE |
2018-07-26 10:43:26 |
|
Sveicināti un laipni aicināti Apex aizdevumu namā, vai jūs esat biznesa vīrietis vai sieviete? Vai jums ir nepieciešama nauda, lai sāktu savu biznesu? Vai jums ir nepieciešams aizdevums, lai nokārtotu parādu vai samaksātu par saviem rēķiniem vai sāktu jauks bizness? Vai jums ir nepieciešama nauda par savu projektu? Mēs piedāvājam drošus un drošus aizdevumus jebkurā apjomā un visā pasaulē (privātpersonām, uzņēmumiem, nekustamajiem īpašumiem un juridiskajām personām) mūsu likme ir 3% lielisks.
Lūdzu, ja jūs interesē, lūdzu, sazinieties ar mums, izmantojot šo e-pasta adresi: (apexlendinghouse@gmail.com)
Mēs piedāvājam dažādus aizdevumus
* Personas aizdevumi (nodrošināti un nenodrošināti)
* Biznesa aizdevumi (nodrošināti un nenodrošināti)
* Depozīta konsolidācija
Jums ir 100% garantija, ka jūs saņemsiet aizdevumu šīs aizdevuma darījuma beigās.
Lai iegūtu vairāk informācijas, sazinieties ar mums, izmantojot šo e-pastu zemāk, lai sāktu savu aizdevuma darījumu.
E-pasts: apexlendinghouse@gmail.com
Paldies
|
| APEX LENDING HOUSE |
2018-07-26 10:43:26 |
|
Sveicināti un laipni aicināti Apex aizdevumu namā, vai jūs esat biznesa vīrietis vai sieviete? Vai jums ir nepieciešama nauda, lai sāktu savu biznesu? Vai jums ir nepieciešams aizdevums, lai nokārtotu parādu vai samaksātu par saviem rēķiniem vai sāktu jauks bizness? Vai jums ir nepieciešama nauda par savu projektu? Mēs piedāvājam drošus un drošus aizdevumus jebkurā apjomā un visā pasaulē (privātpersonām, uzņēmumiem, nekustamajiem īpašumiem un juridiskajām personām) mūsu likme ir 3% lielisks.
Lūdzu, ja jūs interesē, lūdzu, sazinieties ar mums, izmantojot šo e-pasta adresi: (apexlendinghouse@gmail.com)
Mēs piedāvājam dažādus aizdevumus
* Personas aizdevumi (nodrošināti un nenodrošināti)
* Biznesa aizdevumi (nodrošināti un nenodrošināti)
* Depozīta konsolidācija
Jums ir 100% garantija, ka jūs saņemsiet aizdevumu šīs aizdevuma darījuma beigās.
Lai iegūtu vairāk informācijas, sazinieties ar mums, izmantojot šo e-pastu zemāk, lai sāktu savu aizdevuma darījumu.
E-pasts: apexlendinghouse@gmail.com
Paldies
|
| APEX LENDING HOUSE |
2018-07-26 10:43:25 |
|
Sveicināti un laipni aicināti Apex aizdevumu namā, vai jūs esat biznesa vīrietis vai sieviete? Vai jums ir nepieciešama nauda, lai sāktu savu biznesu? Vai jums ir nepieciešams aizdevums, lai nokārtotu parādu vai samaksātu par saviem rēķiniem vai sāktu jauks bizness? Vai jums ir nepieciešama nauda par savu projektu? Mēs piedāvājam drošus un drošus aizdevumus jebkurā apjomā un visā pasaulē (privātpersonām, uzņēmumiem, nekustamajiem īpašumiem un juridiskajām personām) mūsu likme ir 3% lielisks.
Lūdzu, ja jūs interesē, lūdzu, sazinieties ar mums, izmantojot šo e-pasta adresi: (apexlendinghouse@gmail.com)
Mēs piedāvājam dažādus aizdevumus
* Personas aizdevumi (nodrošināti un nenodrošināti)
* Biznesa aizdevumi (nodrošināti un nenodrošināti)
* Depozīta konsolidācija
Jums ir 100% garantija, ka jūs saņemsiet aizdevumu šīs aizdevuma darījuma beigās.
Lai iegūtu vairāk informācijas, sazinieties ar mums, izmantojot šo e-pastu zemāk, lai sāktu savu aizdevuma darījumu.
E-pasts: apexlendinghouse@gmail.com
Paldies
|
| APEX LENDING HOUSE |
2018-07-26 10:43:25 |
|
Sveicināti un laipni aicināti Apex aizdevumu namā, vai jūs esat biznesa vīrietis vai sieviete? Vai jums ir nepieciešama nauda, lai sāktu savu biznesu? Vai jums ir nepieciešams aizdevums, lai nokārtotu parādu vai samaksātu par saviem rēķiniem vai sāktu jauks bizness? Vai jums ir nepieciešama nauda par savu projektu? Mēs piedāvājam drošus un drošus aizdevumus jebkurā apjomā un visā pasaulē (privātpersonām, uzņēmumiem, nekustamajiem īpašumiem un juridiskajām personām) mūsu likme ir 3% lielisks.
Lūdzu, ja jūs interesē, lūdzu, sazinieties ar mums, izmantojot šo e-pasta adresi: (apexlendinghouse@gmail.com)
Mēs piedāvājam dažādus aizdevumus
* Personas aizdevumi (nodrošināti un nenodrošināti)
* Biznesa aizdevumi (nodrošināti un nenodrošināti)
* Depozīta konsolidācija
Jums ir 100% garantija, ka jūs saņemsiet aizdevumu šīs aizdevuma darījuma beigās.
Lai iegūtu vairāk informācijas, sazinieties ar mums, izmantojot šo e-pastu zemāk, lai sāktu savu aizdevuma darījumu.
E-pasts: apexlendinghouse@gmail.com
Paldies
|
| APEX LENDING HOUSE |
2018-07-26 10:43:25 |
|
Sveicināti un laipni aicināti Apex aizdevumu namā, vai jūs esat biznesa vīrietis vai sieviete? Vai jums ir nepieciešama nauda, lai sāktu savu biznesu? Vai jums ir nepieciešams aizdevums, lai nokārtotu parādu vai samaksātu par saviem rēķiniem vai sāktu jauks bizness? Vai jums ir nepieciešama nauda par savu projektu? Mēs piedāvājam drošus un drošus aizdevumus jebkurā apjomā un visā pasaulē (privātpersonām, uzņēmumiem, nekustamajiem īpašumiem un juridiskajām personām) mūsu likme ir 3% lielisks.
Lūdzu, ja jūs interesē, lūdzu, sazinieties ar mums, izmantojot šo e-pasta adresi: (apexlendinghouse@gmail.com)
Mēs piedāvājam dažādus aizdevumus
* Personas aizdevumi (nodrošināti un nenodrošināti)
* Biznesa aizdevumi (nodrošināti un nenodrošināti)
* Depozīta konsolidācija
Jums ir 100% garantija, ka jūs saņemsiet aizdevumu šīs aizdevuma darījuma beigās.
Lai iegūtu vairāk informācijas, sazinieties ar mums, izmantojot šo e-pastu zemāk, lai sāktu savu aizdevuma darījumu.
E-pasts: apexlendinghouse@gmail.com
Paldies
|
| APEX LENDING HOUSE |
2018-07-26 10:43:24 |
|
Sveicināti un laipni aicināti Apex aizdevumu namā, vai jūs esat biznesa vīrietis vai sieviete? Vai jums ir nepieciešama nauda, lai sāktu savu biznesu? Vai jums ir nepieciešams aizdevums, lai nokārtotu parādu vai samaksātu par saviem rēķiniem vai sāktu jauks bizness? Vai jums ir nepieciešama nauda par savu projektu? Mēs piedāvājam drošus un drošus aizdevumus jebkurā apjomā un visā pasaulē (privātpersonām, uzņēmumiem, nekustamajiem īpašumiem un juridiskajām personām) mūsu likme ir 3% lielisks.
Lūdzu, ja jūs interesē, lūdzu, sazinieties ar mums, izmantojot šo e-pasta adresi: (apexlendinghouse@gmail.com)
Mēs piedāvājam dažādus aizdevumus
* Personas aizdevumi (nodrošināti un nenodrošināti)
* Biznesa aizdevumi (nodrošināti un nenodrošināti)
* Depozīta konsolidācija
Jums ir 100% garantija, ka jūs saņemsiet aizdevumu šīs aizdevuma darījuma beigās.
Lai iegūtu vairāk informācijas, sazinieties ar mums, izmantojot šo e-pastu zemāk, lai sāktu savu aizdevuma darījumu.
E-pasts: apexlendinghouse@gmail.com
Paldies
|
| APEX LENDING HOUSE |
2018-07-26 10:43:24 |
|
Sveicināti un laipni aicināti Apex aizdevumu namā, vai jūs esat biznesa vīrietis vai sieviete? Vai jums ir nepieciešama nauda, lai sāktu savu biznesu? Vai jums ir nepieciešams aizdevums, lai nokārtotu parādu vai samaksātu par saviem rēķiniem vai sāktu jauks bizness? Vai jums ir nepieciešama nauda par savu projektu? Mēs piedāvājam drošus un drošus aizdevumus jebkurā apjomā un visā pasaulē (privātpersonām, uzņēmumiem, nekustamajiem īpašumiem un juridiskajām personām) mūsu likme ir 3% lielisks.
Lūdzu, ja jūs interesē, lūdzu, sazinieties ar mums, izmantojot šo e-pasta adresi: (apexlendinghouse@gmail.com)
Mēs piedāvājam dažādus aizdevumus
* Personas aizdevumi (nodrošināti un nenodrošināti)
* Biznesa aizdevumi (nodrošināti un nenodrošināti)
* Depozīta konsolidācija
Jums ir 100% garantija, ka jūs saņemsiet aizdevumu šīs aizdevuma darījuma beigās.
Lai iegūtu vairāk informācijas, sazinieties ar mums, izmantojot šo e-pastu zemāk, lai sāktu savu aizdevuma darījumu.
E-pasts: apexlendinghouse@gmail.com
Paldies
|
| APEX LENDING HOUSE |
2018-07-26 10:43:24 |
|
Sveicināti un laipni aicināti Apex aizdevumu namā, vai jūs esat biznesa vīrietis vai sieviete? Vai jums ir nepieciešama nauda, lai sāktu savu biznesu? Vai jums ir nepieciešams aizdevums, lai nokārtotu parādu vai samaksātu par saviem rēķiniem vai sāktu jauks bizness? Vai jums ir nepieciešama nauda par savu projektu? Mēs piedāvājam drošus un drošus aizdevumus jebkurā apjomā un visā pasaulē (privātpersonām, uzņēmumiem, nekustamajiem īpašumiem un juridiskajām personām) mūsu likme ir 3% lielisks.
Lūdzu, ja jūs interesē, lūdzu, sazinieties ar mums, izmantojot šo e-pasta adresi: (apexlendinghouse@gmail.com)
Mēs piedāvājam dažādus aizdevumus
* Personas aizdevumi (nodrošināti un nenodrošināti)
* Biznesa aizdevumi (nodrošināti un nenodrošināti)
* Depozīta konsolidācija
Jums ir 100% garantija, ka jūs saņemsiet aizdevumu šīs aizdevuma darījuma beigās.
Lai iegūtu vairāk informācijas, sazinieties ar mums, izmantojot šo e-pastu zemāk, lai sāktu savu aizdevuma darījumu.
E-pasts: apexlendinghouse@gmail.com
Paldies
|
| APEX LENDING HOUSE |
2018-07-26 10:43:24 |
|
Sveicināti un laipni aicināti Apex aizdevumu namā, vai jūs esat biznesa vīrietis vai sieviete? Vai jums ir nepieciešama nauda, lai sāktu savu biznesu? Vai jums ir nepieciešams aizdevums, lai nokārtotu parādu vai samaksātu par saviem rēķiniem vai sāktu jauks bizness? Vai jums ir nepieciešama nauda par savu projektu? Mēs piedāvājam drošus un drošus aizdevumus jebkurā apjomā un visā pasaulē (privātpersonām, uzņēmumiem, nekustamajiem īpašumiem un juridiskajām personām) mūsu likme ir 3% lielisks.
Lūdzu, ja jūs interesē, lūdzu, sazinieties ar mums, izmantojot šo e-pasta adresi: (apexlendinghouse@gmail.com)
Mēs piedāvājam dažādus aizdevumus
* Personas aizdevumi (nodrošināti un nenodrošināti)
* Biznesa aizdevumi (nodrošināti un nenodrošināti)
* Depozīta konsolidācija
Jums ir 100% garantija, ka jūs saņemsiet aizdevumu šīs aizdevuma darījuma beigās.
Lai iegūtu vairāk informācijas, sazinieties ar mums, izmantojot šo e-pastu zemāk, lai sāktu savu aizdevuma darījumu.
E-pasts: apexlendinghouse@gmail.com
Paldies
|
| APEX LENDING HOUSE |
2018-07-26 10:43:23 |
|
Sveicināti un laipni aicināti Apex aizdevumu namā, vai jūs esat biznesa vīrietis vai sieviete? Vai jums ir nepieciešama nauda, lai sāktu savu biznesu? Vai jums ir nepieciešams aizdevums, lai nokārtotu parādu vai samaksātu par saviem rēķiniem vai sāktu jauks bizness? Vai jums ir nepieciešama nauda par savu projektu? Mēs piedāvājam drošus un drošus aizdevumus jebkurā apjomā un visā pasaulē (privātpersonām, uzņēmumiem, nekustamajiem īpašumiem un juridiskajām personām) mūsu likme ir 3% lielisks.
Lūdzu, ja jūs interesē, lūdzu, sazinieties ar mums, izmantojot šo e-pasta adresi: (apexlendinghouse@gmail.com)
Mēs piedāvājam dažādus aizdevumus
* Personas aizdevumi (nodrošināti un nenodrošināti)
* Biznesa aizdevumi (nodrošināti un nenodrošināti)
* Depozīta konsolidācija
Jums ir 100% garantija, ka jūs saņemsiet aizdevumu šīs aizdevuma darījuma beigās.
Lai iegūtu vairāk informācijas, sazinieties ar mums, izmantojot šo e-pastu zemāk, lai sāktu savu aizdevuma darījumu.
E-pasts: apexlendinghouse@gmail.com
Paldies
|
| APEX LENDING HOUSE |
2018-07-26 10:43:23 |
|
Sveicināti un laipni aicināti Apex aizdevumu namā, vai jūs esat biznesa vīrietis vai sieviete? Vai jums ir nepieciešama nauda, lai sāktu savu biznesu? Vai jums ir nepieciešams aizdevums, lai nokārtotu parādu vai samaksātu par saviem rēķiniem vai sāktu jauks bizness? Vai jums ir nepieciešama nauda par savu projektu? Mēs piedāvājam drošus un drošus aizdevumus jebkurā apjomā un visā pasaulē (privātpersonām, uzņēmumiem, nekustamajiem īpašumiem un juridiskajām personām) mūsu likme ir 3% lielisks.
Lūdzu, ja jūs interesē, lūdzu, sazinieties ar mums, izmantojot šo e-pasta adresi: (apexlendinghouse@gmail.com)
Mēs piedāvājam dažādus aizdevumus
* Personas aizdevumi (nodrošināti un nenodrošināti)
* Biznesa aizdevumi (nodrošināti un nenodrošināti)
* Depozīta konsolidācija
Jums ir 100% garantija, ka jūs saņemsiet aizdevumu šīs aizdevuma darījuma beigās.
Lai iegūtu vairāk informācijas, sazinieties ar mums, izmantojot šo e-pastu zemāk, lai sāktu savu aizdevuma darījumu.
E-pasts: apexlendinghouse@gmail.com
Paldies
|
| APEX LENDING HOUSE |
2018-07-26 10:43:23 |
|
Sveicināti un laipni aicināti Apex aizdevumu namā, vai jūs esat biznesa vīrietis vai sieviete? Vai jums ir nepieciešama nauda, lai sāktu savu biznesu? Vai jums ir nepieciešams aizdevums, lai nokārtotu parādu vai samaksātu par saviem rēķiniem vai sāktu jauks bizness? Vai jums ir nepieciešama nauda par savu projektu? Mēs piedāvājam drošus un drošus aizdevumus jebkurā apjomā un visā pasaulē (privātpersonām, uzņēmumiem, nekustamajiem īpašumiem un juridiskajām personām) mūsu likme ir 3% lielisks.
Lūdzu, ja jūs interesē, lūdzu, sazinieties ar mums, izmantojot šo e-pasta adresi: (apexlendinghouse@gmail.com)
Mēs piedāvājam dažādus aizdevumus
* Personas aizdevumi (nodrošināti un nenodrošināti)
* Biznesa aizdevumi (nodrošināti un nenodrošināti)
* Depozīta konsolidācija
Jums ir 100% garantija, ka jūs saņemsiet aizdevumu šīs aizdevuma darījuma beigās.
Lai iegūtu vairāk informācijas, sazinieties ar mums, izmantojot šo e-pastu zemāk, lai sāktu savu aizdevuma darījumu.
E-pasts: apexlendinghouse@gmail.com
Paldies
|
| APEX LENDING HOUSE |
2018-07-26 10:43:22 |
|
Sveicināti un laipni aicināti Apex aizdevumu namā, vai jūs esat biznesa vīrietis vai sieviete? Vai jums ir nepieciešama nauda, lai sāktu savu biznesu? Vai jums ir nepieciešams aizdevums, lai nokārtotu parādu vai samaksātu par saviem rēķiniem vai sāktu jauks bizness? Vai jums ir nepieciešama nauda par savu projektu? Mēs piedāvājam drošus un drošus aizdevumus jebkurā apjomā un visā pasaulē (privātpersonām, uzņēmumiem, nekustamajiem īpašumiem un juridiskajām personām) mūsu likme ir 3% lielisks.
Lūdzu, ja jūs interesē, lūdzu, sazinieties ar mums, izmantojot šo e-pasta adresi: (apexlendinghouse@gmail.com)
Mēs piedāvājam dažādus aizdevumus
* Personas aizdevumi (nodrošināti un nenodrošināti)
* Biznesa aizdevumi (nodrošināti un nenodrošināti)
* Depozīta konsolidācija
Jums ir 100% garantija, ka jūs saņemsiet aizdevumu šīs aizdevuma darījuma beigās.
Lai iegūtu vairāk informācijas, sazinieties ar mums, izmantojot šo e-pastu zemāk, lai sāktu savu aizdevuma darījumu.
E-pasts: apexlendinghouse@gmail.com
Paldies
|
| APEX LENDING HOUSE |
2018-07-26 10:43:22 |
|
Sveicināti un laipni aicināti Apex aizdevumu namā, vai jūs esat biznesa vīrietis vai sieviete? Vai jums ir nepieciešama nauda, lai sāktu savu biznesu? Vai jums ir nepieciešams aizdevums, lai nokārtotu parādu vai samaksātu par saviem rēķiniem vai sāktu jauks bizness? Vai jums ir nepieciešama nauda par savu projektu? Mēs piedāvājam drošus un drošus aizdevumus jebkurā apjomā un visā pasaulē (privātpersonām, uzņēmumiem, nekustamajiem īpašumiem un juridiskajām personām) mūsu likme ir 3% lielisks.
Lūdzu, ja jūs interesē, lūdzu, sazinieties ar mums, izmantojot šo e-pasta adresi: (apexlendinghouse@gmail.com)
Mēs piedāvājam dažādus aizdevumus
* Personas aizdevumi (nodrošināti un nenodrošināti)
* Biznesa aizdevumi (nodrošināti un nenodrošināti)
* Depozīta konsolidācija
Jums ir 100% garantija, ka jūs saņemsiet aizdevumu šīs aizdevuma darījuma beigās.
Lai iegūtu vairāk informācijas, sazinieties ar mums, izmantojot šo e-pastu zemāk, lai sāktu savu aizdevuma darījumu.
E-pasts: apexlendinghouse@gmail.com
Paldies
|
| APEX LENDING HOUSE |
2018-07-26 10:43:22 |
|
Sveicināti un laipni aicināti Apex aizdevumu namā, vai jūs esat biznesa vīrietis vai sieviete? Vai jums ir nepieciešama nauda, lai sāktu savu biznesu? Vai jums ir nepieciešams aizdevums, lai nokārtotu parādu vai samaksātu par saviem rēķiniem vai sāktu jauks bizness? Vai jums ir nepieciešama nauda par savu projektu? Mēs piedāvājam drošus un drošus aizdevumus jebkurā apjomā un visā pasaulē (privātpersonām, uzņēmumiem, nekustamajiem īpašumiem un juridiskajām personām) mūsu likme ir 3% lielisks.
Lūdzu, ja jūs interesē, lūdzu, sazinieties ar mums, izmantojot šo e-pasta adresi: (apexlendinghouse@gmail.com)
Mēs piedāvājam dažādus aizdevumus
* Personas aizdevumi (nodrošināti un nenodrošināti)
* Biznesa aizdevumi (nodrošināti un nenodrošināti)
* Depozīta konsolidācija
Jums ir 100% garantija, ka jūs saņemsiet aizdevumu šīs aizdevuma darījuma beigās.
Lai iegūtu vairāk informācijas, sazinieties ar mums, izmantojot šo e-pastu zemāk, lai sāktu savu aizdevuma darījumu.
E-pasts: apexlendinghouse@gmail.com
Paldies
|
| APEX LENDING HOUSE |
2018-07-26 10:43:21 |
|
Sveicināti un laipni aicināti Apex aizdevumu namā, vai jūs esat biznesa vīrietis vai sieviete? Vai jums ir nepieciešama nauda, lai sāktu savu biznesu? Vai jums ir nepieciešams aizdevums, lai nokārtotu parādu vai samaksātu par saviem rēķiniem vai sāktu jauks bizness? Vai jums ir nepieciešama nauda par savu projektu? Mēs piedāvājam drošus un drošus aizdevumus jebkurā apjomā un visā pasaulē (privātpersonām, uzņēmumiem, nekustamajiem īpašumiem un juridiskajām personām) mūsu likme ir 3% lielisks.
Lūdzu, ja jūs interesē, lūdzu, sazinieties ar mums, izmantojot šo e-pasta adresi: (apexlendinghouse@gmail.com)
Mēs piedāvājam dažādus aizdevumus
* Personas aizdevumi (nodrošināti un nenodrošināti)
* Biznesa aizdevumi (nodrošināti un nenodrošināti)
* Depozīta konsolidācija
Jums ir 100% garantija, ka jūs saņemsiet aizdevumu šīs aizdevuma darījuma beigās.
Lai iegūtu vairāk informācijas, sazinieties ar mums, izmantojot šo e-pastu zemāk, lai sāktu savu aizdevuma darījumu.
E-pasts: apexlendinghouse@gmail.com
Paldies
|
| APEX LENDING HOUSE |
2018-07-26 10:43:21 |
|
Sveicināti un laipni aicināti Apex aizdevumu namā, vai jūs esat biznesa vīrietis vai sieviete? Vai jums ir nepieciešama nauda, lai sāktu savu biznesu? Vai jums ir nepieciešams aizdevums, lai nokārtotu parādu vai samaksātu par saviem rēķiniem vai sāktu jauks bizness? Vai jums ir nepieciešama nauda par savu projektu? Mēs piedāvājam drošus un drošus aizdevumus jebkurā apjomā un visā pasaulē (privātpersonām, uzņēmumiem, nekustamajiem īpašumiem un juridiskajām personām) mūsu likme ir 3% lielisks.
Lūdzu, ja jūs interesē, lūdzu, sazinieties ar mums, izmantojot šo e-pasta adresi: (apexlendinghouse@gmail.com)
Mēs piedāvājam dažādus aizdevumus
* Personas aizdevumi (nodrošināti un nenodrošināti)
* Biznesa aizdevumi (nodrošināti un nenodrošināti)
* Depozīta konsolidācija
Jums ir 100% garantija, ka jūs saņemsiet aizdevumu šīs aizdevuma darījuma beigās.
Lai iegūtu vairāk informācijas, sazinieties ar mums, izmantojot šo e-pastu zemāk, lai sāktu savu aizdevuma darījumu.
E-pasts: apexlendinghouse@gmail.com
Paldies
|
| APEX LENDING HOUSE |
2018-07-26 10:43:21 |
|
Sveicināti un laipni aicināti Apex aizdevumu namā, vai jūs esat biznesa vīrietis vai sieviete? Vai jums ir nepieciešama nauda, lai sāktu savu biznesu? Vai jums ir nepieciešams aizdevums, lai nokārtotu parādu vai samaksātu par saviem rēķiniem vai sāktu jauks bizness? Vai jums ir nepieciešama nauda par savu projektu? Mēs piedāvājam drošus un drošus aizdevumus jebkurā apjomā un visā pasaulē (privātpersonām, uzņēmumiem, nekustamajiem īpašumiem un juridiskajām personām) mūsu likme ir 3% lielisks.
Lūdzu, ja jūs interesē, lūdzu, sazinieties ar mums, izmantojot šo e-pasta adresi: (apexlendinghouse@gmail.com)
Mēs piedāvājam dažādus aizdevumus
* Personas aizdevumi (nodrošināti un nenodrošināti)
* Biznesa aizdevumi (nodrošināti un nenodrošināti)
* Depozīta konsolidācija
Jums ir 100% garantija, ka jūs saņemsiet aizdevumu šīs aizdevuma darījuma beigās.
Lai iegūtu vairāk informācijas, sazinieties ar mums, izmantojot šo e-pastu zemāk, lai sāktu savu aizdevuma darījumu.
E-pasts: apexlendinghouse@gmail.com
Paldies
|
| APEX LENDING HOUSE |
2018-07-26 10:43:20 |
|
Sveicināti un laipni aicināti Apex aizdevumu namā, vai jūs esat biznesa vīrietis vai sieviete? Vai jums ir nepieciešama nauda, lai sāktu savu biznesu? Vai jums ir nepieciešams aizdevums, lai nokārtotu parādu vai samaksātu par saviem rēķiniem vai sāktu jauks bizness? Vai jums ir nepieciešama nauda par savu projektu? Mēs piedāvājam drošus un drošus aizdevumus jebkurā apjomā un visā pasaulē (privātpersonām, uzņēmumiem, nekustamajiem īpašumiem un juridiskajām personām) mūsu likme ir 3% lielisks.
Lūdzu, ja jūs interesē, lūdzu, sazinieties ar mums, izmantojot šo e-pasta adresi: (apexlendinghouse@gmail.com)
Mēs piedāvājam dažādus aizdevumus
* Personas aizdevumi (nodrošināti un nenodrošināti)
* Biznesa aizdevumi (nodrošināti un nenodrošināti)
* Depozīta konsolidācija
Jums ir 100% garantija, ka jūs saņemsiet aizdevumu šīs aizdevuma darījuma beigās.
Lai iegūtu vairāk informācijas, sazinieties ar mums, izmantojot šo e-pastu zemāk, lai sāktu savu aizdevuma darījumu.
E-pasts: apexlendinghouse@gmail.com
Paldies
|
| FRED |
2018-07-24 02:24:15 |
|
Vai jums ir nepieciešams aizdevums?
Vai jums ir finanšu krīze vai jums ir nepieciešama nauda, lai sāktu savu biznesu? Vai jums ir nepieciešams aizdevums, lai nomaksātu parādu vai maksātu prēmiju vai uzsāktu uzņēmējdarbību? Vai jums ir zems kredītreitings un viņiem rodas grūtības saņemt vietējo banku un citu finanšu iestāžu aizdevumus? Šī ir iespēja jums saņemt aizdevumu no mūsu organizācijas. Mēs izsniedzam aizdevumus privātpersonām šādiem mērķiem un daudz ko citu. Individuālie aizdevumi, uzņēmējdarbības paplašināšana, uzņēmējdarbības uzsākšana, parādu konsolidācija un cietā nauda. Mēs piedāvājam 3% procentu likmes aizdevumus. Sazinieties ar mums pa e-pastu: fredmorefinance@gmail.com
Whatsap: +919654763221
|
| LABAS ZIŅAS; |
2018-07-20 16:34:28 |
|
LABAS ZIŅAS;
Vai meklējat finansiālu palīdzību? Vai jums ir nepieciešams steidzams aizdevums, lai samaksātu rēķinus vai parādus? Lai arī kāds būtu kredīts, jums šodien vajadzētu sazināties ar mums pa e-pastu: pedroazevedo532@gmail.com vai arī WhatsApp: +393510182903
|
| LABAS ZIŅAS; |
2018-07-20 16:33:55 |
|
LABAS ZIŅAS;
Vai meklējat finansiālu palīdzību? Vai jums ir nepieciešams steidzams aizdevums, lai samaksātu rēķinus vai parādus? Lai arī kāds būtu kredīts, jums šodien vajadzētu sazināties ar mums pa e-pastu: pedroazevedo532@gmail.com vai arī WhatsApp: +393510182903
|
| ROMAN CATHOLIC |
2018-07-13 16:28:50 |
|
Sveiki
Tas ir informēt sabiedrību par to, ka Romas katoļu kristiešu organizācija ir atklājusi finansiālu iespēju palīdzēt palīdzības cilvēkiem, piemēram, finansiālajai palīdzībai. Tātad, ja jums ir finansiālas grūtības vai jums ir kāda finansiāla problēma, un jums ir nepieciešami līdzekļi, lai sāktu savu biznesu, vai arī jums ir jāmaksā rēķini ar jūsu izvēlēto ilgtermiņa un īstermiņa ilgumu, ar zemu procentu likmi 2% par katru atlīdzību privātpersonām un uzņēmumiem. Lūdzu sazinieties ar mums šodien pa e-pastu Adrese: (romancatholic19@gmail.com) Bībele saka (Lk. 11:10) Par visiem, kas lūdz saņemt; kas meklē meklēt; un tam, kas klauvē, durvis tiks atvērtas. Tāpēc neaizmirstiet šo iespēju, jo Jēzus ir tas pats vakar, šodien un uz visiem laikiem. Lūdzu, tas ir nopietni domājošiem, un Dievs baidās no cilvēkiem. Saņemiet mūsu patieso sveicienu no Romas katoļu kristiešu organizācijas. Sazinieties ar mums šodien ar šo e-pastu: (romancatholic19@gmail.com)
|
| ALEX |
2018-07-12 23:35:18 |
|
Vai jums ir nepieciešams steidzams aizdevums? Mūsu uzņēmums sniedz aizdevumus bez avansa maksas par nelielu likmi 2%. Tāpēc tagad izmantojiet un saņemiet savu steidzamo aizdevumu, lai nomaksātu savus parādus, rēķinus un paplašinātu savu biznesu, sazinieties ar mums, izmantojot: :::
e-pasts: LIVINGFAITHSERVICE@OUTLOOK.COM
whatsapp: (+151)86286514
Paldies
Alex Josh
|
| JEAN CARLOS |
2018-07-11 13:18:38 |
|
Vai jums ir nepieciešams aizdevums, lai uzsāktu uzņēmējdarbību vai samaksātu rēķinus un korporatīvo finanšu nekustamo īpašumu un jebkāda veida uzņēmējdarbības finansējumu. Piedāvājam arī aizdevumus privātpersonām, uzņēmumiem un korporatīvajām institūcijām ar 3% procentu likmi. Mēs izsniedzam aizdevumu nopietniem domājošiem cilvēkiem, kuri ir ieinteresēti aizdevuma saņemšanā, ja jūs interesē, sazinieties ar šo e-pasta adresi: creditplusfinance11@gmail.com vai WhatsApp +16234044993
|
| JOHN |
2018-07-10 13:30:08 |
|
Sveiki visiem,
Vai jums nepieciešama finansiāla palīdzība?
Mēs izsniedzam aizdevumus vismaz EUR / USD 1,000.00 līdz maksimālajai summai
Euro / USD 500 000 000,00 ar ērtu ilgumu no 1 līdz 30 gadiem
ar ļoti samazinātu 2% procentu likmi.
Vai jums ir nepieciešams biznesa aizdevums?
Vai jums ir nepieciešams individuāls aizdevums?
Vai jūs vēlaties iegādāties automašīnu?
Vai jums ir nepieciešams hipotekārais kredīts?
Vai jums ir nepieciešams aizdevums, lai atmaksātu parādu?
Vai jums ir nepieciešams milzīgs kapitāls, lai sāktu savu biznesa priekšlikumu vai
paplašināšanās? Jūs esat zaudējuši cerību, un jūs domājat, ka nav izejas un
Jūsu finansiālais slogs joprojām pastāv?
Lūdzu, nevilcinieties sazināties ar mums, lai veiktu uzņēmējdarbību.
Sazinieties ar mums pa e-pastu: (JOHNROYSTER321@MAIL.COM)
Izpilddirektors (izpilddirektors)
E-pasts: (JOHNROYSTER321@GMAIL.COM)
Whatsapp numurs +2347060613783
|
| MR. MAH |
2018-07-10 00:39:03 |
|
We Offers Financial Consulting To Client, Companies Seeking Debt / Loan Financing And Seeking For Working Capital To Start A New Business Or To Expand Existing Business. Interested Parties Should Contact Us For More Information Through Via E-mail: SuiteCapitals@gmail.com ( SuiteCapitals@post.com )
|
| JOSE DENNISON |
2018-07-06 02:21:40 |
|
Dear Sir / Madam
Vai jūs meklējat biznesa aizdevumu, personīgo aizdevumu, mājas aizdevumu, auto
aizdevums, studentu aizdevums, parāda konsolidācijas aizdevums, nenodrošināts aizdevums, riska darījums
kapitāls u.tml. VAI Vai jūs atteicās no bankas aizdevuma vai kādas finansiālas
iestāde par vienu vai vairākiem iemesliem. Jūs esat īstajā vietā
Jūsu aizdevuma risinājumi!
Es esmu privāts aizdevējs, es piešķiru aizdevumus uzņēmumiem un privātpersonām pie
zems un lēts procents
likme 2%.
Interesē? Sazinieties ar mums, lai saņemtu aizdevuma un papildu maksājumu apstrādi
nodošana 48 stundu laikā;
PIETEIKUMA ZIŅAS
Nosaukums
Dzimšanas datums :
Dzimums:
Ģimenes stāvoklis:
Adrese:
Pilsēta:
Valsts / province:
Pasta indekss:
Valsts:
Tālrunis:
E-pasts:
Valsts aizdevuma mērķis:
Aizdevuma summa:
Aizdevuma ilgums:
Neto ikmēneša ienākumi.
Sūtiet mums e-pastu @: josedennisonloans007@googlemail.com un, lai iegūtu sīkāku informāciju par mums, apmeklējiet mūsu tīmekļa adreses www.dennisonloanscompany.com.
Paldies un Dievs svētī
Sveicieni,
Jose kungs
|
| LARRY ELLISON |
2018-07-05 08:15:43 |
|
Vai jums ir nepieciešams kredīts
Vai esat biznesa vīrietis vai sieviete? Vai jums ir nepieciešami līdzekļi, lai uzsāktu savu uzņēmējdarbību? Vai jums ir nepieciešams aizdevums, lai nokārtotu parādu vai samaksātu par saviem rēķiniem vai sāktu jauks bizness? Vai jums ir nepieciešami līdzekļi sava projekta finansēšanai? E-pasts: ( Larryellisonfinance@gmail.com ) Mēs piedāvājam garantētas aizdevumu pakalpojumus jebkurai summai un jebkurai pasaules daļai (privātpersonām, uzņēmumiem, nekustamo īpašumu un korporatīvām struktūrām) ar mūsu lielisko 2% procentu likmi. Lai pieteiktos un iegūtu vairāk informācijas, sūtiet atbildes uz šādu e-pasta adresi: Larryellisonfinance@gmail.com
|
| MRS LOLA DANIEL |
2018-07-04 17:00:33 |
|
Sveiki
Vai jums ir nepieciešams steidzams aizdevums, lai apmierinātu savas finansiālās vajadzības? Mēs piedāvājam aizdevumus no 2000 līdz 50 000 000,00, mēs esam uzticami, spēcīgi, ātri un dinamiski, nepārbauda kredītus un šajā periodā piedāvājam 100% garantiju ārējiem aizdevumiem.
Mēs arī aizdeva visu valūtu ar 3% procentu likmi visiem aizdevumiem .... Ja jūs interesē, atgriezieties pie mums ar šo e-pastu.
Lūdzu, atgriezieties pie mums, ja vēlaties, ar eaglehomemortgage001@gmail.com
Ar cieņu,
Lola Daniel kundze
eaglehomemortgage001@gmail.com
|
| ROLLAND OSBORN |
2018-07-03 18:06:50 |
|
Labdien, vai tev ļoti nepieciešams aizdevums? vai jums ir nepieciešams ārkārtas kredīts? Dinamiskās kreditēšanas klubs palīdzēs jums ātri saņemt naudas aizdevumu, lai atrisinātu finansiālās problēmas
Par pieprasījumiem / sūdzībām / jautājumiem? Mēs sniedzam 24 stundu pasaules klases atbalstu - sūtiet e-pastu uz (dynamic_lendingclub5050@hotmail.com) vai (dynamiclendingclub5050@gmail.com) un saņemiet atbildi pēc dažām minūtēm.
Jūsu ģimenei, draugiem un kolēģiem nav jāzina, ka jums ir zems naudas apmērs, tikai vienkārši rakstiet mums, un jūs saņemsiet savu aizdevumu.
Jūsu finansiālā brīvība ir jūsu rokās!
|
| LINDA MOORE |
2018-07-03 05:54:57 |
|
Vai jums ir nepieciešams steidzams aizdevums, lai finansētu savu biznesu vai kādā citā nolūkā? mēs esam sertificēti, likumīgi un starptautiski licencēti aizdevuma aizdevēji Mēs piedāvājam aizdevumus biznesa uzņēmumiem, uzņēmumiem un privātpersonām par pieņemamu cenu 2% procentiem, tas varētu būt īstermiņa vai ilgtermiņa aizdevumu vai pat tad, ja jums ir slikta kredītu, mēs apstrādāsim jūsu aizdevums, tiklīdz mēs saņemsim jūsu pieteikumu. mēs esam neatkarīga finanšu iestāde. Mēs esam izveidojuši lielisku reputāciju gadu gaitā, sniedzot dažāda veida aizdevumus tūkstošiem mūsu klientu. Mēs piedāvājam garantētas aizdevuma pakalpojumus jebkurai summai pilsoņiem un nepilsoņiem, kurus mēs piedāvājam viegli individuāliem aizdevumiem, komerciālu / biznesa aizdevumu, automašīnu aizdevumu, līzinga / aprīkojuma finansējumu, parāda konsolidācijas aizdevumu, mājokļa aizdevumu u.tml. Visiem pilsoņiem un nepilsoņiem ar vai nu laba vai slikta kredītvēsture. Ja jums ir nepieciešams steidzams aizdevums, sazinieties ar mums tagad uz mūsu uzņēmuma e-pasta adresi (lindamooreloans@gmail.com), lai nosūtītu mums vēstuli pa e-pastu. E-pasts man šodien, un jums būs prieks, ka jūs to darījāt. WHATSAPP: +19292227999 VAI EMAIL: lindamooreloans@gmail.com
|
| MR SCOTT |
2018-07-03 05:26:21 |
|
Sveiki,
Tas ir, lai informētu jūs par mūsu aizdevuma piedāvājumu, mēs piedāvājam privātos, komerciālos un individuālos aizdevumus ar ļoti zemām procentu likmēm līdz pat 3% 1-20 gadu atmaksas termiņa laikā, ja vēlaties, lūdzu, rakstiet mums: accessloanfirm2030@gmail. com
Galvenā priekšrocība, iegūstot kredītus no piekļuves aizdevuma sabiedrības, ir tas, ka nodrošinājums nav nepieciešams.
Nosūtiet mums e-pastu: accessloanfirm2030@gmail.com
Atbildēt pa e-pastu, ja vēlaties saņemt aizdevumu no mums, lūdzu, pa e-pastu.
Nosūtiet mums e-pastu: accessloanfirm2030@gmail.com
|
| MR SCOTT |
2018-07-03 05:26:21 |
|
Sveiki,
Tas ir, lai informētu jūs par mūsu aizdevuma piedāvājumu, mēs piedāvājam privātos, komerciālos un individuālos aizdevumus ar ļoti zemām procentu likmēm līdz pat 3% 1-20 gadu atmaksas termiņa laikā, ja vēlaties, lūdzu, rakstiet mums: accessloanfirm2030@gmail. com
Galvenā priekšrocība, iegūstot kredītus no piekļuves aizdevuma sabiedrības, ir tas, ka nodrošinājums nav nepieciešams.
Nosūtiet mums e-pastu: accessloanfirm2030@gmail.com
Atbildēt pa e-pastu, ja vēlaties saņemt aizdevumu no mums, lūdzu, pa e-pastu.
Nosūtiet mums e-pastu: accessloanfirm2030@gmail.com
|
| MR SCOTT |
2018-07-03 05:26:20 |
|
Sveiki,
Tas ir, lai informētu jūs par mūsu aizdevuma piedāvājumu, mēs piedāvājam privātos, komerciālos un individuālos aizdevumus ar ļoti zemām procentu likmēm līdz pat 3% 1-20 gadu atmaksas termiņa laikā, ja vēlaties, lūdzu, rakstiet mums: accessloanfirm2030@gmail. com
Galvenā priekšrocība, iegūstot kredītus no piekļuves aizdevuma sabiedrības, ir tas, ka nodrošinājums nav nepieciešams.
Nosūtiet mums e-pastu: accessloanfirm2030@gmail.com
Atbildēt pa e-pastu, ja vēlaties saņemt aizdevumu no mums, lūdzu, pa e-pastu.
Nosūtiet mums e-pastu: accessloanfirm2030@gmail.com
|
| AYOUCHANOUAR9@GMA |
2018-06-30 05:54:31 |
|
Privātie finanšu eksperti, kas spēj veikt jebkāda veida aizdevumu
apjoms un apstākļos, kas atvieglo dzīvi. Tas ir šeit
jomas, kurās es varu jums palīdzēt:
* Finansējums
* Mājokļu kredīts
* Ieguldījumu aizdevums
* Auto aizdevums
* Parādu konsolidācija
* Kredītlīnija
* Hipotekārais kredīts
* Kredīta dzēšana
* Individuālais kredīts utt.
Mana lielākā problēma ir tā, ka jūs ievērojat atmaksu
ikmēneša maksājumi pēc jūsu depozīta saņemšanas. Jūs esat iestrēdzis,
aizliegtas bankas, un jums nav labu bankām vai jums labāk
ir projekts un nepieciešamība finansēt Sazināties ar mani pa pastu: ayouchanouar9@gmail.com
|
| VAI ESAT AIZMIRSIS N |
2018-06-28 02:03:01 |
|
* JUMS IR NEPIECIEŠAMS ATLĪDZINĀJUMS IESNIEGT PIETEIKUMU TŪLĪT *
KAPITĀLA KAPITĀLA FORMA
* Vai esat aizmirsis nakti gulēt, kā saņemt aizdevumu?
* Vai jūs meklējat personīgo aizdevumu?
* Vai meklējat aizdevumu, lai sāktu savu biznesu?
* Vai jūs meklējat aizdevumus lieliem projektiem?
* Vai meklējat ieguldījumu aizdevumu?
SŪTĪT UZ EMAILU ŠO DIENU Mvargaspuyo1@gmail.com
|
| MR CARLOS ELLISON |
2018-06-26 06:18:16 |
|
Sveiki,
Meklējat parāda konsolidācijas aizdevumu, nenodrošināti aizdevumi, biznesa aizdevumi, hipotekārie aizdevumi, automašīnu aizdevumi, studentu aizdevumi, personiskie aizdevumi, riska kapitāls utt! Es esmu privāts aizdevējs, sniedzu aizdevumus uzņēmumiem un privātpersonām ar zemām procentu likmēm un saprātīgām 2% procentu likmēm. E-pasts uz: carlosellisonfinance@gmail.com
|
| ANE |
2018-06-23 08:19:44 |
|
Auto aizdevumi
Hipotekārie aizdevumi
Biznesa aizdevumi
Personas aizdevumi
Nekustamā īpašuma aizdevums.
Lai iegūtu vairāk informācijas, lūdzu, sazinieties ar
WhatsApp numurs: +18454007792
Tīmekļa vietne: //worldbestloans.wix.com/worldbestloans
E-pasts: worldbestloans@gmail.com
|
| LETICIA |
2018-06-18 05:51:33 |
|
Sveicināti
Jūs arī steidzami meklējat aizdevumu
- Atdzīvināt savas darbības
- Atjaunot sava dzīvokļa, mājas, ēkas utt. Interjeru
- Projekta realizēšanai
- Vai arī citu iemeslu dēļ
Bet diemžēl banka lūdz jums tādus nosacījumus, ka jūs nevarat izpildīt, vairs neuztraucieties. Mēs arī ļoti labi apzināmies daudzo krāpšanās risku un manipulācijas risku, kas skar tīklu, un mēs apsolām, ka mūsu sabiedrība to nepatīk, jo citur mēs esam izdarījuši, ja esat godīgs, pateicoties apdrošināšanai, lai piešķirtu jums savu aizdevumu, jo intereses, kas radīs šo aizdevumu, palīdzēs mums rūpēties par bāreņiem un bezpajumtniekiem daudzās valstīs.
Godātais kungs, mēs esam apņēmušies sniegt jums smaidu
Nevilcinieties sūtīt mums savu aizdevuma pieteikumu
E-pasts: lo022851@gmail.com
Numurs: 0756 854 641
Ar cieņu ...
|
| JEAN CARLOS |
2018-06-14 04:22:35 |
|
Vai jums ir nepieciešams aizdevums, lai uzsāktu uzņēmējdarbību vai samaksātu rēķinus un korporatīvo finanšu līdzekļus nekustamajam īpašumam un jebkura veida uzņēmējdarbības finansēšanai ( Creditplusfinance11@gmail.com vai WhatsApp +16234044993 ). Mēs piedāvājam arī aizdevumus privātpersonām, uzņēmumiem un korporatīvajām institūcijām. ar 3% procentu likmi. Mēs izsniedzam aizdevumu nopietniem domājošiem cilvēkiem, kuri ir ieinteresēti saņemt aizdevumu, ja interesē, sazinieties ar šo e-pastu: Creditplusfinance11@gmail.com vai WhatsApp +16234044993
|
| WORLD BEST LOAN OFFE |
2018-06-11 03:07:27 |
|
Sveiki...
Cienījamais pretendents, es esmu Mr.Favour Melody World labākais aizdevuma piedāvājuma uzņēmums LTD. Mēs esam starptautisks aizdevuma uzņēmums. Tā ir finansiāla iespēja jūsu durvju solī. Mēs sniedzam biznesa un privātos aizdevumus u.tml., Ja vien tas attiecas uz finansiālu palīdzību. Pieteikties šodien un jūs saņemsiet aizdevumu no mums.
Piesakieties tagad par ļoti zemu 2% aizdevuma procentu likmi!
* Mēs piedāvājam aizdevumu EURO un DOLLAR
* Aizņemties no 5000 USD līdz 50 000 000 USD
* Izvēlieties no 1 līdz 35 gadiem, lai atmaksātu.
* Elastīgi aizdevuma noteikumi un nosacījumi.
* Šī laimes pasaule ar mums atgriezīs jūsu prieku, iesniedzot pieteikumu aizdevumam ar mums šodien ...
Visi šie plāni un vairāk, sazinieties ar mums tagad pa e-pastu, lai uzzinātu vairāk info .. (favourworldbest990@outlook.com) VAI SŪTIS UZ TĀLRUŅIEM +1518 621 2700
Nosūtiet mums e-pastu tagad: favourworldbest990@outlook.com
Piešķirt savai pasaulei nozīmi.
Sveicieni.
Pasaules labāko aizdevumu kompānijas piedāvājums ..
|
| PATRICIA |
2018-06-08 17:56:50 |
|
labvakar
ReadyMoney salīdziniet un saglabājiet
Vai meklējat aizdevumu vai ieguldījumu?
Jūs varat lūgt līdz pat 900 000 €
Pieteikšanās aizdevumam šodien ir vieglāk, pateicoties internetam.
Labākās bankas un finanšu uzņēmumi darbojas tiešsaistē, nodrošinot labākas cenas un ātrāku un drošāku piegādi
PrêtMoney palīdz jums atrast risinājumu, kas vislabāk atbilst jūsu vajadzībām.
- Pieprasījums pēc bezmaksas informācijas
- Finansējiet savus projektus
- zemas likmes, tikai tiešsaistē
LŪDZU!
Pasts: faure_patricia@outlook.fr
Zvans un whatsapp: +32 460 21 44 40
Atrodiet visizdevīgāko aizdevumu
|
| 1009 |
2018-06-08 14:55:21 |
|
Pierādījums par nopietnu aizdevuma iegūšanu, paldies jums, Anthony Alex kundze, par jūsu 45 000 eiro naudas aizdevumu, ko jūs mani darījāt. Es runāšu par jūsu pakalpojumiem tiem apkārtējiem, kuriem nepieciešams aizdevums vai finansējums. Es esmu apmierināts ar aizdevumu, kuru esat piešķīris. Nevilcinieties, ja jums ir nepieciešams aizdevums un īstais likumīgs aizdevuma kreditors, lūdzu, sazinieties ar viņu tagad un saņemiet savu aizdevumu pa ::
e-pastu: LIVINGFAITHSERVICE@OUTLOOK.COM
vai whatsapp: (+151)86286514
Paldies .
Alex Anthony
|
| PATRICIA |
2018-06-07 22:46:48 |
|
labvakar
ReadyMoney salīdziniet un saglabājiet
Vai meklējat aizdevumu vai ieguldījumu?
Jūs varat lūgt līdz pat 900 000 €
Pieteikšanās aizdevumam šodien ir vieglāk, pateicoties internetam.
Labākās bankas un finanšu uzņēmumi darbojas tiešsaistē, nodrošinot labākas cenas un ātrāku un drošāku piegādi
PrêtMoney palīdz jums atrast risinājumu, kas vislabāk atbilst jūsu vajadzībām.
- Pieprasījums pēc bezmaksas informācijas
- Finansējiet savus projektus
- zemas likmes, tikai tiešsaistē
LŪDZU!
Pasts: faure_patricia@outlook.fr
Zvans un whatsapp: +32 460 21 44 40
Atrodiet visizdevīgāko aizdevumu
|
| WRIGHTHARRYFINANCIAL |
2018-06-06 13:41:39 |
|
Sveiki, vai jums ir nepieciešama neatliekama aizdevums, lai uzsāktu uzņēmējdarbību vai samaksātu savus rēķinus? Ja jūs interesēties, atgriezieties mūs šodien un saņemiet savu kredītu 24 stundu laikā. Uzņēmuma e-pasts: wrightharryfinancialservices@gmail.com vai zvaniet +1 (410-934-6320 vai nosūtiet whatsapp tērzēšanu +1 (410-934-6320
Paldies.
|
| AYALA |
2018-06-03 05:39:07 |
|
Cienijamie klienti, finansejums ir projekts, kura merkis ir palidzet godigiem cilvekiem ar veselo sapratu. Tiklidz informacija tiks sniegta, mes nekavejoties sazinasimies ar musu finanšu banku.
Klientam, kas var pieprasit kreditu, jaatbilst noteiktiem nosacijumiem, proti:
* Klientam, kurš var sanemt kreditu, jabut vismaz 18 gadu vecumam.
* Klientam ir jabut derigai personas apliecibai.
* Jums ir jabut stabilam ikmeneša vai gada ienakumam, lai varetu maksat šos paradus.
* Klientam ir jabut bankas kontam, lai sanemtu kreditu 48 stundas pec pieprasijuma apstiprinašanas.
Šeit ir dažadi aizdevumu veidi:
- individualie krediti
- Gatavs pateret
- Nekustama ipašuma aizdevumi
- studentu aizdevumi un projekti
- Kreditu konsolidacija
- komercialie aizdevumi
Atkariba no jusu maksajuma ilguma mes piedavajam:
- istermina aizdevumi (lidz 2 gadiem),
- videja termina aizdevumi (lidz 7 gadiem),
- ilgtermina aizdevumi (lidz 30 gadiem),
- Loti ilgtermina aizdevumi (vairak neka 30 gadi)
Jus varat nosutit mums zinojumu ar
E_MAIL: ayalalopez100@gmail.com
|
| MR. RICHARD COSMOS |
2018-06-01 16:30:47 |
|
Laba diena,
Es esmu reģistrēts privāts kreditors. Mēs izsniedzam aizdevumus, kas palīdz cilvēkiem un uzņēmumiem, kuriem visā pasaulē ir nepieciešams atjaunot savu finansiālo stāvokli visā pasaulē ar ļoti zemām gada procentu likmēm 2% gadā, 30 gadu atmaksāšanas periodam visā pasaulē. Mēs izsniegsim aizdevumus no 5000 līdz 100 000 000 eiro. Aizdevumi ir labi nodrošināti, un mūsu prioritāte ir nodrošināt maksimālu drošību. Personai, kas jūs interesē, sazinieties ar mani pa e-pastu (richardcosmos5@gmail.com)
Aizdevuma piedāvājums.
|
| MR ANDY COLE |
2018-05-31 21:51:03 |
|
Laba diena
Ja esat biznesa vīrietis vai sieviete? Ja jums ir kāds finansiāls stress vai jums ir nepieciešami līdzekļi, lai sāktu savu biznesu? Vai jums ir nepieciešams aizdevums
atmaksāt parādus vai samaksāt rēķinus? Vai jums ir zems kredīta rādītājs, un jums ir grūti iegūt aizdevumu no vietējām bankām un citām finanšu iestādēm? Vai jums ir nepieciešams aizdevums vai finansējums, piemēram:
a) personīgais aizdevums
b) izglītība,
c) parāda konsolidācija,
d) paplašināšana,
e) utt
Mēs piedāvājam aizdevumus privātpersonām, uzņēmumiem un sadarbojamies ar iestādēm ar 3% procentu likmi gadā. Minimālā summa, ko jūs varat aizņemties, ir USD 2,000.00, maksimāli USD 50 miljoni. Lūdzu, ja vēlaties, sazinieties ar mums, norādot e-pasta informāciju zemāk.
Sazinieties ar mums tagad: trustfirm2010@gmail.com
VĀRDS: Andy Cole kungs
Ātri un viegli pieejams aizdevums
trustfirm2010@gmail.com
|
| GREG OWEN |
2018-05-27 15:39:53 |
|
Likumīga aizdevuma iegūšana vienmēr ir bijusi milzīga problēma Klientiem, kuriem ir finansiālas problēmas un kuriem ir nepieciešams risinājums. Kredīta un nodrošinājuma jautājums ir tas, ka klienti vienmēr ir noraizējušies, meklējot aizdevumu no likumīga aizdevēja. Bet mēs esam padarījuši šo atšķirību kreditēšanas nozarē. Mēs varam noorganizēt aizdevumu no 5000 eiro. līdz 500 000 000 eiro, kā minimums 3% apmērā. Lūdzu, nekavējoties atbildiet uz šo e-pasta ziņojumu: Gregowenloanfirm1@gmail.com
Mūsu pakalpojumi ietver sekojošo:
1) Parādu konsolidācija
2) otra hipotēka
3) biznesa aizdevumi
4) personas aizdevumi
5) Starptautiskie aizdevumi
6) Aizdevums jebkuram veidam
7) Ģimenes aizdevums E.T.C
Nav sociālā nodrošinājuma un nav kredīta pārbaudes, 100% garantija. Viss, kas jums jādara, ir precīzi informēt mūs par to, ko jūs vēlaties, un mēs, protams, padarīsim jūsu sapni. GREG OWEN LOAN FIRM1 saka YES, kad jūsu bankas saka NO. Visbeidzot, mēs finansējam neliela apjoma aizdevumu sabiedrību, starpniekus, mazās finanšu iestādes, jo mums ir neierobežots kapitāls. Lai saņemtu sīkāku informāciju par aizdevuma saņemšanu, sazinieties ar mums, lūdzu, nekavējoties atbildiet.
Uzņēmuma kontaktinformācija
E-pasta adrese: Gregowenloanfirm1@gmail.com
|
| MRS LOLA DANIEL |
2018-05-27 00:54:37 |
|
Sveiki
Vai jums ir nepieciešams steidzams aizdevums, lai apmierinātu savas finansiālās vajadzības? Mēs piedāvājam aizdevumus no 2000 līdz 50 000 000,00, mēs esam uzticami, spēcīgi, ātri un dinamiski, nepārbauda kredītus un šajā periodā piedāvājam 100% garantiju ārējiem aizdevumiem.
Mēs arī aizdeva visu valūtu ar 3% procentu likmi visiem aizdevumiem .... Ja jūs interesē, atgriezieties pie mums ar šo e-pastu.
Lūdzu, atgriezieties pie mums, ja vēlaties, ar eaglehomemortgage001@gmail.com
Ar cieņu,
Lola Daniel kundze
eaglehomemortgage001@gmail.com
|
| WD |
2018-05-25 13:55:55 |
|
Vai jums ir nepieciešams aizdevums. Mēs esam likumīgi un garantējam aizdevuma aizdevēju. Mēs esam uzņēmums ar finansiālu palīdzību. Mēs izsniedzam aizdevumu līdzekļus personām, kurām vajadzīga finansiāla palīdzība, kuriem ir slikta kredīts vai kuriem vajadzīga nauda, lai nomaksātu rēķinus, lai ieguldītu uzņēmējdarbībā. Es vēlos izmantot šo datu nesēju, lai informētu jūs, ka mēs sniedzam drošu labuma guvēju palīdzību, jo mēs priecāsimies piedāvāt jums aizdevumu. Lūdzu, sazinieties ar mums tieši pa: woodgatecredit@outlook.com
|
| MR JERRY |
2018-05-25 05:45:36 |
|
Kā es varu saņemt aizdevumu @ 2% PROCENTU LIKME
Es nebiju pārliecināts, ka esmu iegādājies likumīgu aizdevuma aizdevēju tiešsaistē. Bet, kad es vairs nevarēju sev nonākt pie manas parādsaistības, mans dēls bija uz slimnīcu gultu operācijas vajadzībām, kurā bija iesaistīti milzīgi līdzekļi, un man arī vajadzēja nedaudz naudas, lai refinansētu un iegūtu labu māju, tad man ir lai meklētu palīdzību no draugiem un kad vairs nebija cerības, ka es nolemju aiziet tiešsaistē, lai meklētu aizdevumu, un es atradu JOHN WILLIAMS FUNDS (johnwilliamstrustfirm@gmail.com) ar 2% procentu likmi un nekavējoties piemērou manu informāciju, kā norādīts. Septiņu dienu laikā no mana pieteikuma viņš vadīja manu aizdevuma summu bez slēptiem maksājumiem, un es varētu rūpēties par manu dēla medicīnisko rēķinu, Atjaunot savu īres rēķinu un atmaksāt manu parādu. Es ieteikšu katram aizdevuma meklētājam sazināties ar JOHN WILLIAMS FUNDS ar johnwilliamstrustfirm@gmail.com. Viegla un droša transakcija
|
| LUCY IMAN |
2018-05-21 14:24:58 |
|
Hüpata finantskriisist välja..võta hea, turvaline ja taskukohane krediit / laen siin Tennesses, Ameerika Ühendriikides. Pakume 48-kuulist intressimäära, mille kestus on 4% .00.Me anname oma klientidele seda, mida meie arvates väärivad; mõisted on selle pakkumise jaoks käepärased ... jõuad meid, et saaksime teie juurde tulla;
kategooriliselt meie teenused;
* Isiklikud / laenud * ........
* Laenud / laenud * .....
krediidiandmetega seotud huvides; creditfunding@outlook.com
|
| LANLAZAR MARCUS |
2018-05-21 03:43:14 |
|
Sveiki,
Vai jums ir nepieciešams steidzams aizdevums, lai atrisinātu savas finansiālās vajadzības? Mēs piedāvājam aizdevumus no 2000 līdz 100 000 000,00, mēs esam uzticami, spēcīgi, ātri un dinamiski, bez kredīta pārbaudēm un piedāvājam 100% garantijas ārvalstu aizdevumus šī pārskaitījuma laikā.
Mēs arī izsniedzām aizdevumu visām valūtām ar 3% procentu likmi visiem aizdevumiem un bez priekšapmaksas .... Ja jūs interesē, atgriezieties pie mums pa e-pastu.
Lūdzu, atgriezieties pie mums, ja vēlaties, izmantojot: zekoceanfinance@gmail.com
Sveicieni,
Lanlazar Marcus kungs
zekoceanfinance@gmail.com
|
| HOBELMAN |
2018-05-19 02:00:56 |
|
Vai jums ir nepieciešams steidzams aizdevums, lai uzsāktu uzņēmējdarbību vai atmaksātu parādu?
mēs piedāvājam visu veidu aizdevumus par pieņemamu cenu 2%
Sazinieties ar mums pa e-pastu: hobelmanfinance@gmail.com Whatsapp: +17816567138
Tīmekļa vietne: https://hobelmanfinance346789211.wordpress.com/
|
| JEAN CARLOS |
2018-05-15 03:16:20 |
|
Vai jums ir nepieciešams aizdevums, lai uzsāktu uzņēmējdarbību vai samaksātu rēķinus un korporatīvo finanšu līdzekļus nekustamajam īpašumam un jebkura veida uzņēmējdarbības finansēšanai ( Creditplusfinance11@gmail.com vai WhatsApp +16234044993 ). Mēs piedāvājam arī aizdevumus privātpersonām, uzņēmumiem un korporatīvajām institūcijām. ar 3% procentu likmi. Mēs izsniedzam aizdevumu nopietniem domājošiem cilvēkiem, kuri ir ieinteresēti saņemt aizdevumu, ja interesē, sazinieties ar šo e-pastu: Creditplusfinance11@gmail.com vai WhatsApp +16234044993
|
| LOAN OFFER |
2018-05-10 00:12:33 |
|
Vai esat biznesa vīrietis vai sieviete? Vai jums ir kāda finansiāla krīze? Vai jums ir nepieciešams aizdevums, lai sāktu jauku maza mēroga un vidēja biznesa? Vai jums ir zems kredītreitings, un jums ir grūti iegūt kapitāla aizdevumu no vietējām bankām un citiem finanšu institūtiem ?. Ieinteresētajiem kandidātiem vajadzētu sazināties ar mums pa e-pastu: trustfunds804@outlook.com
|
| HERNANDEZ |
2018-05-09 23:13:24 |
|
Sveiki,
Vai jums ir finansiālas grūtības? Vai jums ir nepieciešams aizdevums, lai nomaksātu rēķinus un
parādi? Vai vēlaties uzsākt jaunu uzņēmējdarbību vai uzlabot savu biznesu?
Sazinieties ar mums šodien par finanšu risinājumu e-pastu:
hernandezarcos0@gmail.com Kvalifikācija: 1) Aizņēmējam ir jābūt
vismaz 18 gadi, 2) Pat ar sliktu kredītu, lai saņemtu aizdevumu aizņēmējiem
garantija 3) Paaugstināšana, ja tiek nodrošināts zems kredīts.
Kredīta pieteikums
Vārds:
Valsts:
Adrese:
Tālrunis:
Vecums:
Statuss:
Nodarbošanās:
Mēneša ienākumi:
Aizdevuma summa:
Aizdevuma ilgums:
Fonda mērķis:
Mr Hernandez Arcos
|
| HOBELMAN |
2018-05-08 00:58:12 |
|
Vai jums ir nepieciešams steidzams aizdevums, lai uzsāktu uzņēmējdarbību vai atmaksātu parādu?
mēs piedāvājam visu veidu aizdevumus par pieņemamu cenu 2%
Sazinieties ar mums pa e-pastu: hobelmanfinance@gmail.com Whatsapp: +17816567138
Tīmekļa vietne: https://hobelmanfinance346789211.wordpress.com/
|
| ABDUL-LATIF JAMEEL |
2018-05-02 12:37:14 |
|
Vai meklējat finansējuma iespējas savam biznesam, jauno māju pirkšanai, būvniecībai, nekustamā īpašuma aizdevumam, refinansēšanai, parādu konsolidācijai, personiskajam vai biznesa mērķim? Laipni lūdzam nākotnē! Finansējums mums ir atvieglojies. Sazinieties ar mums, jo mēs piedāvājam mūsu finanšu pakalpojumus ar zemu un lētu 3% procentu likmi ilgam un īsam aizdevuma periodam. Ieinteresētajam pretendentam vajadzētu sazināties ar mums, lai saņemtu papildu kredīta procedūras (abdullatifjameel120@gmail.com)
|
| DONALD |
2018-05-02 05:19:17 |
|
Hello Loan! Mēs esam kristiešu organizācija, kas izveidota, lai palīdzētu cilvēkiem, kuriem nepieciešama palīdzība, piemēram, finansiāla palīdzība. Tātad, ja jums ir finansiālas grūtības
vai jums ir kāda finansiāla problēma, un jums ir nepieciešami līdzekļi, lai sāktu savu biznesu, vai arī jums ir jāmaksā rēķini vai jums ir grūti. lūdzu, sazinieties ar mums
šodien pa e-pastu: johnloanfirm2@gmail.com par Bībeli saka (Lk. 11:10). Attiecībā uz visiem, kas lūdz saņemt; kas meklē meklēt; un tas, kurš klauvē, durvis
tiks atvērts. Tāpēc neaizmirstiet šo iespēju, jo Jēzus ir tas pats vakar, šodien un uz visiem laikiem. Lūdzu, tas ir nopietni domājošs, un Dievs baidās no cilvēkiem
Saņemiet mūsu sirsnīgos sveicienus no kristiešu organizācijas Paldies e-pasts: johnloanfirm2@gmail.com
|
| HOBELMAN |
2018-05-01 14:53:06 |
|
Jums ir nepieciešams steidzams aizdevums no cienījama privāta aizdevēja piešķirs jums bez stresa naudu? Ja jā, tad jums ir pareizais virziens. Iegūstiet naudu 5 stundu laikā. Es esmu Hobelman, biznesmenis un pat privāts aizdevējs. Es vēlētos izveidot savu darbību filiāli jūsu valstī, ja jūs varat sazināties ar mani ar lielu uzņēmēju tur. Es izsniedzu 2% procentu likmes aizdevumu. rakstiet man ar šo e-pastu hobelmanfinance@gmail.com
WhatsApp: +17816567138
https://hobelmanfinance346789211.wordpress.com/
Sazinieties ar mums pa e-pastu: hobelmanfinance@gmail.com
|
| MR.FAVOUR LOAN OFFER |
2018-04-29 22:15:07 |
|
Sveiki...
Cienījamais pretendents, es esmu Mr.Favour Melody World labākais aizdevuma piedāvājuma uzņēmums .. Mēs esam starptautisks aizdevuma uzņēmums. Tā ir finansiāla iespēja jūsu durvju solī. Mēs piedāvājam biznesa un personīgos aizdevumus utt, ciktāl tas attiecas uz finansiālu palīdzību. Pieteikties šodien un jūs saņemsiet aizdevumu.
Piesakieties tagad par ļoti zemu 2% aizdevuma procentu likmi!
* Aizņemties no 5000 USD līdz 50 000 000 USD
* Izvēlieties no 1 līdz 35 gadiem, lai atmaksātu.
* Elastīgi aizdevuma noteikumi un nosacījumi.
* Šī laimes pasaule ar mums atgriezīs jūsu prieku, iesniedzot pieteikumu aizdevumam ar mums šodien ...
Visi šie plāni un vairāk, sazinieties ar mums tagad pa e-pastu, lai saņemtu vairāk info .. favourworldbest990@outlook.com VAI SMS US NOW +1979 217 5094
Nosūtiet mums e-pastu tagad: favourworldbest990@outlook.com
Piešķirt savai pasaulei nozīmi.
Sveicieni.
Pasaules labāko aizdevumu kompānijas piedāvājums ..
|
| VANIA |
2018-04-28 14:40:23 |
|
Iespēja finansiālajai palīdzībai starp indivīdiem.
labvakar
Mēs varam jums piešķirt aizdevumu tādā apmērā, kāds jums nav nepieciešams, un apstākļiem, kas padarīs jūsu dzīvi vieglāku.
Mēs piedāvājam īstermiņa un ilgtermiņa aizdevumus ar ļoti pieņemamu atmaksas termiņu, mani kredītlīgumi ir no 5000 eiro līdz 5,966,585 eiro.
Arī mēs vēlamies pateikt, ka mēs arī iejaukties projektu finansēšanā (uzticami). Jūs esat iestrēdzis, aizliegts un jums
nav nepieciešams finansējums, sliktais kredīts vai nauda, lai nomaksātu rēķinus, naudas līdzekļi ieguldījumiem uzņēmumos.
Tāpēc nevilcinieties sazināties ar mums, neviens nopietns cilvēks, lūdzu, atturēties.
Pasts: lucasvania93@gmail.com
Avārijas izsaukums: +33 756 86 2838
Ārkārtas ziņojums: +33 756 86 2838
Emergency whatsapp ziņojums: +33 756 86 2838
Saņemam sveicienus
|
| LIVING FAITH |
2018-04-28 12:15:19 |
|
Vai jums ir nepieciešams steidzams aizdevums? Mūsu uzņēmums sniedz aizdevumus bez avansa maksas par nelielu likmi 2%. Tāpēc tagad izmantojiet savu steidzamo aizdevumu, lai nomaksātu savus parādus, rēķinus un paplašinātu savu biznesu, sazinieties ar mums pa e-pastu:LIVINGFAITHSERVICE@OUTLOOK.COM vai whatsapp: (+151)86286514
|
| JEAN CARLOS |
2018-04-25 03:15:33 |
|
Vai jums ir nepieciešams aizdevums, lai uzsāktu uzņēmējdarbību vai samaksātu rēķinus un korporatīvo finanšu līdzekļus nekustamajam īpašumam un jebkura veida uzņēmējdarbības finansēšanai ( Creditplusfinance11@gmail.com vai WhatsApp +16234044993 ). Mēs piedāvājam arī aizdevumus privātpersonām, uzņēmumiem un korporatīvajām institūcijām. ar 3% procentu likmi. Mēs izsniedzam aizdevumu nopietniem domājošiem cilvēkiem, kuri ir ieinteresēti saņemt aizdevumu, ja interesē, sazinieties ar šo e-pastu: Creditplusfinance11@gmail.com vai WhatsApp +16234044993
|
| JEAN CARLOS |
2018-04-25 03:15:00 |
|
Vai jums ir nepieciešams aizdevums, lai uzsāktu uzņēmējdarbību vai samaksātu rēķinus un korporatīvo finanšu līdzekļus nekustamajam īpašumam un jebkura veida uzņēmējdarbības finansēšanai ( Creditplusfinance11@gmail.com vai WhatsApp +16234044993 ). Mēs piedāvājam arī aizdevumus privātpersonām, uzņēmumiem un korporatīvajām institūcijām. ar 3% procentu likmi. Mēs izsniedzam aizdevumu nopietniem domājošiem cilvēkiem, kuri ir ieinteresēti saņemt aizdevumu, ja interesē, sazinieties ar šo e-pastu: Creditplusfinance11@gmail.com vai WhatsApp +16234044993
|
| EGLITE |
2018-04-20 04:01:49 |
|
Labi jaunumi! Labi jaunumi !!! LABAS ZIŅAS!!!
Mans vārds ir Daina Eglite, no Jelgavas Latvija, es esmu dievbijīgs kristietis, kuru es gribu izmantot
šis līdzeklis brīdina visus, kas vēlas saņemt aizdevumu, rūpēties par krāpniekiem, jo tie ir visur. Pirms dažiem mēnešiem es biju finansiāli samazināts, un, pateicoties manām vajadzībām, izmisumam un nabadzībai, mani internetā ir saņēmis kāda tā dēvēta aizdevuma sabiedrība. Es pazaudēju daudz naudas, kamēr mans draugs mani neuzrādīja ļoti uzticamam aizdevējam, ko sauca Mirabel Daniels kundze, kurš 28 stundu laikā bez jebkāda spiediena aizdeva man neaizsargāto 31 000 eiro aizdevumu, vispirms tas bija kā man sapnis līdz Es redzēju brīdinājumu par manu apstiprināto aizdevuma naudas summu, kas tika pārskaitīta manā bankas kontā 2 stundas pēc pieteikuma iesniegšanas. Es aicinu savus kolēģus latviešus, kuriem ir nepieciešams aizdevums, lai, lūdzu, sazinātos ar Mirabel kundzi, izmantojot:
mirabeldanielloanfirm@gmail.com
Esi uzmanīgs! Jūs varat arī sazināties ar mani, lai iegūtu plašāku informāciju, izmantojot: dainaeglitee@gmail.com
|
| EGLITE |
2018-04-20 04:01:30 |
|
Labi jaunumi! Labi jaunumi !!! LABAS ZIŅAS!!!
Mans vārds ir Daina Eglite, no Jelgavas Latvija, es esmu dievbijīgs kristietis, kuru es gribu izmantot
šis līdzeklis brīdina visus, kas vēlas saņemt aizdevumu, rūpēties par krāpniekiem, jo tie ir visur. Pirms dažiem mēnešiem es biju finansiāli samazināts, un, pateicoties manām vajadzībām, izmisumam un nabadzībai, mani internetā ir saņēmis kāda tā dēvēta aizdevuma sabiedrība. Es pazaudēju daudz naudas, kamēr mans draugs mani neuzrādīja ļoti uzticamam aizdevējam, ko sauca Mirabel Daniels kundze, kurš 28 stundu laikā bez jebkāda spiediena aizdeva man neaizsargāto 31 000 eiro aizdevumu, vispirms tas bija kā man sapnis līdz Es redzēju brīdinājumu par manu apstiprināto aizdevuma naudas summu, kas tika pārskaitīta manā bankas kontā 2 stundas pēc pieteikuma iesniegšanas. Es aicinu savus kolēģus latviešus, kuriem ir nepieciešams aizdevums, lai, lūdzu, sazinātos ar Mirabel kundzi, izmantojot:
mirabeldanielloanfirm@gmail.com
Esi uzmanīgs! Jūs varat arī sazināties ar mani, lai iegūtu plašāku informāciju, izmantojot: dainaeglitee@gmail.com
|
| JOSE DENNISON |
2018-04-14 14:28:49 |
|
Dear Sir / Madam
Vai jūs meklējat biznesa aizdevumu, personīgo aizdevumu, mājas aizdevumu, auto
aizdevums, studentu aizdevums, parāda konsolidācijas aizdevums, nenodrošināts aizdevums, riska darījums
kapitāls u.tml. VAI Vai jūs atteicās no bankas aizdevuma vai kādas finansiālas
iestāde par vienu vai vairākiem iemesliem. Jūs esat īstajā vietā
Jūsu aizdevuma risinājumi!
Es esmu privāts aizdevējs, es piešķiru aizdevumus uzņēmumiem un privātpersonām pie
zems un lēts procents
likme 2%.
Interesē? Sazinieties ar mums, lai saņemtu aizdevuma un papildu maksājumu apstrādi
nodošana 48 stundu laikā;
PIETEIKUMA ZIŅAS
Nosaukums
Dzimšanas datums :
Dzimums:
Ģimenes stāvoklis:
Adrese:
Pilsēta:
Valsts / province:
Pasta indekss:
Valsts:
Tālrunis:
E-pasts:
Valsts aizdevuma mērķis:
Aizdevuma summa:
Aizdevuma ilgums:
Neto ikmēneša ienākumi.
Nosūtīt mums e-pastu @: josedennisonloans007@googlemail.com un, lai iegūtu sīkāku informāciju par mums, apmeklējiet mūsu tīmekļa adreses www.dennisonloanscompany.com.
Paldies un Dievs svētī
Sveicieni,
Jose kungs
|
| WORLD BEST LOAN OFFE |
2018-04-09 23:01:10 |
|
Sveiki...
Mēs esam starptautiska aizdevuma firma. Mēs sniedzam biznesa un personīgos aizdevumus utt, ja vien tas attiecas uz finansiālu palīdzību.
Pieteikties tagad par ļoti zemu 4% aizdevuma procentu likmi!
* Aizņemties no 5k līdz 500m.
* Izvēlieties no 1 līdz 30 gadiem, lai atmaksātu.
* Elastīgi aizdevuma noteikumi un nosacījumi.
Visi šie plāni un vairāk, sazinieties ar mums tagad pa e-pastu, lai iegūtu vairāk informācijas. favourworldbest990@outlook.com VAI SMS UZ TIEŠĀ +1562 453 0961
E-pasts Sazināties ar tagad: favourworldbest990@outlook.com
Sveicieni.
Pasaules labākais aizdevums ..
|
| SUSAN BENSON |
2018-04-07 03:28:57 |
|
Laipni lūdzam Sunshine Financial Group Worldwide, mūsu mērķis ir nodrošināt izcilu profesionālu servisu.
Vai esat uzņēmējs vai sieviete? Vai jums ir kāda finansiāla nestabilitāte vai jums ir nepieciešami līdzekļi, lai sāktu savu biznesu? Vai jums ir nepieciešams aizdevums, lai sāktu mazu uzņēmumu? Vai jums ir zems kredītreitings un vai jums ir grūti iegūt pašu kapitāla aizdevumu no vietējām bankām un citiem finanšu institūtiem?
Mūsu aizdevumi ir labi apdrošināti, lai nodrošinātu maksimālu drošību, ir mūsu prioritāte. Mūsu galvenais mērķis ir palīdzēt jums iegūt pakalpojumus, kurus esat pelnījis. Mūsu programma ir ātrākais veids, kā uzreiz saņemt to, kas jums nepieciešams. Samaziniet savus maksājumus, lai atvieglotu spiedienu uz ikmēneša izdevumiem. Iegūstiet elastīgumu, kuru varat izmantot jebkuram mērķim - brīvdienās, izglītībai, ekskluzīviem pirkumiem
Mēs piedāvājam plašu finanšu pakalpojumu klāstu, kas ietver: individuālos aizdevumus, parāda konsolidācijas aizdevumus, komerciālus aizdevumus, izglītības aizdevumus, nodrošināto hipotēku kredītus, nenodrošinātus aizdevumus, hipotekāros kredītus, aizdevuma dienas naudas aizdevumus, studentu aizdevumus, studentu aizdevumus, attīstību, aizdevuma saņemšanu, celtniecību aizdevumi ar zemu procentu likmi 2% gadā privātpersonām, juridiskām un juridiskām personām. Izmantojiet mūsu vispārējo aizdevumu shēmu, lai saņemtu labāko jūsu ģimenes locekļiem un savas mājas sapņo.
Mēs piedāvājam VISUS AIZŅĒMUMU VEIDI - PIETEIKTIES PAR PIEEJAMIE AIZDEVUMIEM.
Sazinieties ar mums, lai iegūtu vairāk informācijas: (sunshinefinancialgroupinc@gmail.com)
|
| JESSY |
2018-04-03 09:22:56 |
|
Pieradijums par nopietnu aizdevuma iegušanu, paldies jums, Anthony Alex kundze, par jusu 45 000 eiro naudas aizdevumu, ko jus mani darijat. Es runašu par jusu pakalpojumiem tiem apkartejiem, kuriem nepieciešams aizdevums vai finansejums. Es esmu apmierinats ar aizdevumu, kuru esat pieškiris. Nevilcinieties, ja jums ir nepieciešams aizdevums un istais likumigs aizdevuma kreditors, ludzu, sazinieties ar vinu tagad un sanemiet savu aizdevumu pa e-pastu: LIVINGFAITHSERVICE@OUTLOOK.COM vai whatsapp: (+ 151)86286514
Paldies .
|
| CHRISTIAN CALVIN |
2018-03-30 17:59:28 |
|
Sveiki,
Mans vārds ir Christian Calvin
Pirmkārt, es izsaku drošības sajūtu, jo esmu tiešsaistē maldināts, pirms draugs, kas saņēmis aizdevumu, saista mani ar e-pastu: (oliviadaniel93@gmail.com)
Pēc tam, kad esmu iesniedzis manas personas apliecības un manas konta detaļas eksemplāru, mans aizdevums tika apstiprināts, tas bija neticami, es domāju, ka tas būtu tāds pats kā citiem, kuri ir ieņēmuši naudu un nekad nav dzirdējuši par viņiem atkal, es saņēmu savu aizdevumu pēc aptuveni stundas vēlāk mana banka mani sauca "JĀ", ka manā kontā bija depozīts.
Viņi ir reāli, viss, kas jums jādara, ir sekot norādījumiem un pieteikšanās procesam
Kompānija ir laba kompānija, viņi man palīdzēja, kad man bija vajadzīga nauda, tāpēc es liecinu par viņu labajiem darbiem .. lūdzu, kad jūs beidzot saņemsit savu aizdevumu, pārliecinieties, vai jūs arī informējat cilvēkus par šīs kompānijas labo darbu , tāpēc viņi netiks cietuši no nepatiesiem un nejūtīgiem cilvēkiem, kas sevi sauc par korporatīvajiem aizdevējiem, bet viņi tikai maldina un pastiprina cilvēku sāpes.
jūs varat sazināties ar mani pa e-pastu: (christiancalvin200@gmail.com), ja jums nepieciešama papildu informācija
|
| MR JOSE |
2018-03-27 17:37:58 |
|
Sveiki, vai jūs jūtaties bezcerīgi un jums ir nepieciešams aizdevums, cik ātri vien iespējams, lai steidzami uzsāktu uzņēmējdarbību? e-pastu mūs šodien un atrisināt savas problēmas......e-pasts : johnsonfutureloanlender@gmail.com
|
| MR JOSE |
2018-03-27 16:24:37 |
|
Sveiki, vai jūs jūtaties bezcerīgi un jums ir nepieciešams aizdevums, cik ātri vien iespējams, lai steidzami uzsāktu uzņēmējdarbību? e-pastu mūs šodien un atrisināt savas problēmas......e-pasts : johnsonfutureloanlender@gmail.com
|
| MR MARK |
2018-03-27 13:26:25 |
|
Sveiki, vai jūs jūtaties bezcerīgi un jums ir nepieciešams aizdevums, cik ātri vien iespējams, lai steidzami uzsāktu uzņēmējdarbību? e-pastu mūs šodien un atrisināt savas problēmas: markwilliamstrustfirm@gmail.com
|
| WIRTHAM SAQUAN |
2018-03-14 14:55:29 |
|
Pieteikties aizdevumam, lai ātri un ērti apmaksātu rēķinus un atjaunotu finansējumu jūsu projektam ar lētāko procentu likmi 3%, lai sazinātos ar mums šodien, izmantojot: worthamloanfim11@gmail.com. Aizdevumam nepieciešams aizdevuma piedāvājums, mūsu minimums ir 1,000.00 izvēle aizņemties jebkuru naudu, esmu sertificēta reģistrācija un aizdevēji Legit, šodien varat sazināties ar mums, ja jūs interesē. Lai saņemtu šo aizdevumu, sazinieties ar mani, lai iegūtu plašāku informāciju par aizdevuma procesu. jo aizdevuma nosacījumi un aizdevuma summa tiks pārskaitīta jums. Man ir nepieciešama jūsu steidzamā atbilde, ja jūs interesēties.
|
| ANGGA |
2018-03-14 00:52:01 |
|
Sveiki visiem
Es esmu privāts aizdevējs, es piedāvāju aizdevumu 2%, tas ir likumīgs uzņēmums ar godu un atšķirību, mēs esam gatavi jums palīdzēt jebkurā finanšu problēmā, ka jūs piedāvājat visu veidu aizdevumu, tādēļ, ja jūs interesē šis aizdevuma piedāvājums lūdzu, sazinieties ar mums pa e-pastu: (anggadiman1@gmail.com)
Norādiet arī sekojošas ziņas, lai mēs varētu nekavējoties turpināt aizdevumu.
Vārds:
Nepieciešamā summa:
Ilgums: a
valsts:
Aizdevuma mērķis:
Mēneša ienākumi:
Telefona numurs:
Sazinieties ar mums ar iepriekš minēto informāciju par mūsu e-pastu: anggadiman1@gmail.com
Ar cieņu visiem jums.
|
| CATHERINE COLE |
2018-03-08 21:35:05 |
|
Laba diena,
Ja esat biznesa vīrietis vai sieviete? Ja jums ir kāds finansiāls stress vai jums ir nepieciešami līdzekļi, lai sāktu savu biznesu? Vai jums ir nepieciešams aizdevums
atmaksāt parādus vai samaksāt rēķinus? Vai jums ir zems kredīta rādītājs, un jums ir grūti iegūt aizdevumu no vietējām bankām un citām finanšu iestādēm? Vai jums ir nepieciešams aizdevums vai finansējums, piemēram:
a) personīgais aizdevums
b) izglītība,
c) parāda konsolidācija,
d) paplašināšana,
e) utt
Mēs piedāvājam aizdevumus privātpersonām, uzņēmumiem un sadarbojamies ar iestādēm ar 3% procentu likmi gadā. Minimālā summa, ko jūs varat aizņemties, ir USD 2 000,00, maksimāli USD 50 miljoni. Lūdzu, ja esat ieinteresēts, sazinieties ar mums ar tālāk norādīto e-pasta ziņojumu.
Sazinieties ar mums tagad: info.trustfirm2012@gmail.com
NAME: Catherine Cole
Ātri un viegli pieejams aizdevums
|
| MR MARK |
2018-03-04 19:30:54 |
|
Sveiks, kā tev šodien klājas ? Vai jūs šodien meklējat steidzamu aizdevumu, lai atrisinātu savas problēmas, un jūs uztraucat, jo nezināt, kā to panākt? Sūtiet mums vēstuli šodien un steidzami atrisiniet problēmas: markwilliamstrustfirm@gmail.com
|
| MRS LOLA DANIEL |
2018-03-01 16:52:44 |
|
Sveiki
Vai jums ir nepieciešams steidzams aizdevums, lai apmierinātu savas finansiālās vajadzības? Mēs piedāvājam aizdevumus no 2000 līdz 50 000 000,00, mēs esam uzticami, spēcīgi, ātri un dinamiski, nepārbauda kredītus un šajā periodā piedāvājam 100% garantiju ārējiem aizdevumiem.
Mēs arī aizdeva visu valūtu ar 3% procentu likmi visiem aizdevumiem .... Ja jūs interesē, atgriezieties pie mums ar šo e-pastu.
Lūdzu, atgriezieties pie mums, ja vēlaties, ar eaglehomemortgage001@gmail.com
Ar cieņu,
Lola Daniel kundze
EMAIL: eaglehomemortgage001@gmail.com
|
| QUICKE LOAN |
2018-02-27 17:56:49 |
|
Sveiki! Es esmu Steve, aizdevuma virsnieks, kas pārstāv aizdevumu atvieglojumus. Mēs piedāvājam aizdevumu sākot no $ 3000 līdz $ 50,000 ar minimālu procentu likmi un pieejamu atmaksu. Mūsu pakalpojums ir globāls, mūsu process ir vienkāršs un unikāls. Sazinieties ar mani šeit, lai saņemtu ātru reģistrāciju, vai rakstiet mums pa quickenloanfund@gmail.com
|
| KREDITA |
2018-02-24 19:57:31 |
|
24 stundu finansiālā palīdzība
Sveiki, kundze / kundze!
Vai jums ir nepieciešami aizdevumi starp privātpersonām, lai saskarētos ar finansiālajām grūtībām, lai beidzot izkļūtu no strupceļa, kas izraisa bankas, noraidot jūsu kredītprasījumu failus, mēs esam finanšu ekspertu grupa, kas spēj padarīt jūs kas ir gatavs nepieciešamajai summai un apstākļiem, kas padarīs jūsu dzīvi vieglāku.
Mēs izsniedzam kredītus sākot no 1 mēneša līdz 30 gadiem, un mēs aizdodam no 2000 eiro līdz 100,000,000 €.
Mūsu procentu likme ir 2% gadā, šeit ir norādītas jomas, kurās mēs varam jums palīdzēt:
* Finanšu
* Hipotekārais kredīts
* Ieguldījumu aizdevums
* Auto aizdevums
* Konsolidācijas parāds
* Kredīta dzēšana
* Individuālais kredīts
* Jums ir fails
* Aizliegta banku darbība, un jums nav labu bankām vai labāk, ja jums ir projekts, un jums ir nepieciešams **** sazināties ar mani, un es tev palīdzēs.
Kontaktpersona: leocadyhilary@gmail.com
|
| KREDITA |
2018-02-24 19:56:42 |
|
24 stundu finansiālā palīdzība
Sveiki, kundze / kundze!
Vai jums ir nepieciešami aizdevumi starp privātpersonām, lai saskarētos ar finansiālajām grūtībām, lai beidzot izkļūtu no strupceļa, kas izraisa bankas, noraidot jūsu kredītprasījumu failus, mēs esam finanšu ekspertu grupa, kas spēj padarīt jūs kas ir gatavs nepieciešamajai summai un apstākļiem, kas padarīs jūsu dzīvi vieglāku.
Mēs izsniedzam kredītus sākot no 1 mēneša līdz 30 gadiem, un mēs aizdodam no 2000 eiro līdz 100,000,000 €.
Mūsu procentu likme ir 2% gadā, šeit ir norādītas jomas, kurās mēs varam jums palīdzēt:
* Finanšu
* Hipotekārais kredīts
* Ieguldījumu aizdevums
* Auto aizdevums
* Konsolidācijas parāds
* Kredīta dzēšana
* Individuālais kredīts
* Jums ir fails
* Aizliegta banku darbība, un jums nav labu bankām vai labāk, ja jums ir projekts, un jums ir nepieciešams **** sazināties ar mani, un es tev palīdzēs.
Kontaktpersona: leocadyhilary@gmail.com
|
| KREDITA |
2018-02-24 19:55:55 |
|
24 stundu finansiālā palīdzība
Sveiki, kundze / kundze!
Vai jums ir nepieciešami aizdevumi starp privātpersonām, lai saskarētos ar finansiālajām grūtībām, lai beidzot izkļūtu no strupceļa, kas izraisa bankas, noraidot jūsu kredītprasījumu failus, mēs esam finanšu ekspertu grupa, kas spēj padarīt jūs kas ir gatavs nepieciešamajai summai un apstākļiem, kas padarīs jūsu dzīvi vieglāku.
Mēs izsniedzam kredītus sākot no 1 mēneša līdz 30 gadiem, un mēs aizdodam no 2000 eiro līdz 100,000,000 €.
Mūsu procentu likme ir 2% gadā, šeit ir norādītas jomas, kurās mēs varam jums palīdzēt:
* Finanšu
* Hipotekārais kredīts
* Ieguldījumu aizdevums
* Auto aizdevums
* Konsolidācijas parāds
* Kredīta dzēšana
* Individuālais kredīts
* Jums ir fails
* Aizliegta banku darbība, un jums nav labu bankām vai labāk, ja jums ir projekts, un jums ir nepieciešams **** sazināties ar mani, un es tev palīdzēs.
Kontaktpersona: leocadyhilary@gmail.com
|
| KREDITA |
2018-02-24 19:54:20 |
|
24 stundu finansiālā palīdzība
Sveiki, kundze / kundze!
Vai jums ir nepieciešami aizdevumi starp privātpersonām, lai saskarētos ar finansiālajām grūtībām, lai beidzot izkļūtu no strupceļa, kas izraisa bankas, noraidot jūsu kredītprasījumu failus, mēs esam finanšu ekspertu grupa, kas spēj padarīt jūs kas ir gatavs nepieciešamajai summai un apstākļiem, kas padarīs jūsu dzīvi vieglāku.
Mēs izsniedzam kredītus sākot no 1 mēneša līdz 30 gadiem, un mēs aizdodam no 2000 eiro līdz 100,000,000 €.
Mūsu procentu likme ir 2% gadā, šeit ir norādītas jomas, kurās mēs varam jums palīdzēt:
* Finanšu
* Hipotekārais kredīts
* Ieguldījumu aizdevums
* Auto aizdevums
* Konsolidācijas parāds
* Kredīta dzēšana
* Individuālais kredīts
* Jums ir fails
* Aizliegta banku darbība, un jums nav labu bankām vai labāk, ja jums ir projekts, un jums ir nepieciešams **** sazināties ar mani, un es tev palīdzēs.
Kontaktpersona: leocadyhilary@gmail.com
|
| KREDITA |
2018-02-24 19:53:29 |
|
24 stundu finansiālā palīdzība
Sveiki, kundze / kundze!
Vai jums ir nepieciešami aizdevumi starp privātpersonām, lai saskarētos ar finansiālajām grūtībām, lai beidzot izkļūtu no strupceļa, kas izraisa bankas, noraidot jūsu kredītprasījumu failus, mēs esam finanšu ekspertu grupa, kas spēj padarīt jūs kas ir gatavs nepieciešamajai summai un apstākļiem, kas padarīs jūsu dzīvi vieglāku.
Mēs izsniedzam kredītus sākot no 1 mēneša līdz 30 gadiem, un mēs aizdodam no 2000 eiro līdz 100,000,000 €.
Mūsu procentu likme ir 2% gadā, šeit ir norādītas jomas, kurās mēs varam jums palīdzēt:
* Finanšu
* Hipotekārais kredīts
* Ieguldījumu aizdevums
* Auto aizdevums
* Konsolidācijas parāds
* Kredīta dzēšana
* Individuālais kredīts
* Jums ir fails
* Aizliegta banku darbība, un jums nav labu bankām vai labāk, ja jums ir projekts, un jums ir nepieciešams **** sazināties ar mani, un es tev palīdzēs.
Kontaktpersona: leocadyhilary@gmail.com
|
| KREDITA |
2018-02-24 19:53:02 |
|
24 stundu finansiālā palīdzība
Sveiki, kundze / kundze!
Vai jums ir nepieciešami aizdevumi starp privātpersonām, lai saskarētos ar finansiālajām grūtībām, lai beidzot izkļūtu no strupceļa, kas izraisa bankas, noraidot jūsu kredītprasījumu failus, mēs esam finanšu ekspertu grupa, kas spēj padarīt jūs kas ir gatavs nepieciešamajai summai un apstākļiem, kas padarīs jūsu dzīvi vieglāku.
Mēs izsniedzam kredītus sākot no 1 mēneša līdz 30 gadiem, un mēs aizdodam no 2000 eiro līdz 100,000,000 €.
Mūsu procentu likme ir 2% gadā, šeit ir norādītas jomas, kurās mēs varam jums palīdzēt:
* Finanšu
* Hipotekārais kredīts
* Ieguldījumu aizdevums
* Auto aizdevums
* Konsolidācijas parāds
* Kredīta dzēšana
* Individuālais kredīts
* Jums ir fails
* Aizliegta banku darbība, un jums nav labu bankām vai labāk, ja jums ir projekts, un jums ir nepieciešams **** sazināties ar mani, un es tev palīdzēs.
Kontaktpersona: leocadyhilary@gmail.com
|
| KREDITA |
2018-02-24 19:52:40 |
|
24 stundu finansiālā palīdzība
Sveiki, kundze / kundze!
Vai jums ir nepieciešami aizdevumi starp privātpersonām, lai saskarētos ar finansiālajām grūtībām, lai beidzot izkļūtu no strupceļa, kas izraisa bankas, noraidot jūsu kredītprasījumu failus, mēs esam finanšu ekspertu grupa, kas spēj padarīt jūs kas ir gatavs nepieciešamajai summai un apstākļiem, kas padarīs jūsu dzīvi vieglāku.
Mēs izsniedzam kredītus sākot no 1 mēneša līdz 30 gadiem, un mēs aizdodam no 2000 eiro līdz 100,000,000 €.
Mūsu procentu likme ir 2% gadā, šeit ir norādītas jomas, kurās mēs varam jums palīdzēt:
* Finanšu
* Hipotekārais kredīts
* Ieguldījumu aizdevums
* Auto aizdevums
* Konsolidācijas parāds
* Kredīta dzēšana
* Individuālais kredīts
* Jums ir fails
* Aizliegta banku darbība, un jums nav labu bankām vai labāk, ja jums ir projekts, un jums ir nepieciešams **** sazināties ar mani, un es tev palīdzēs.
Kontaktpersona: leocadyhilary@gmail.com
|
| KREDITA |
2018-02-24 19:51:38 |
|
24 stundu finansiālā palīdzība
Sveiki, kundze / kundze!
Vai jums ir nepieciešami aizdevumi starp privātpersonām, lai saskarētos ar finansiālajām grūtībām, lai beidzot izkļūtu no strupceļa, kas izraisa bankas, noraidot jūsu kredītprasījumu failus, mēs esam finanšu ekspertu grupa, kas spēj padarīt jūs kas ir gatavs nepieciešamajai summai un apstākļiem, kas padarīs jūsu dzīvi vieglāku.
Mēs izsniedzam kredītus sākot no 1 mēneša līdz 30 gadiem, un mēs aizdodam no 5000 eiro līdz 100,000,000 €.
Mūsu procentu likme ir 2% gadā, šeit ir norādītas jomas, kurās mēs varam jums palīdzēt:
* Finanšu
* Hipotekārais kredīts
* Ieguldījumu aizdevums
* Auto aizdevums
* Konsolidācijas parāds
* Kredīta dzēšana
* Individuālais kredīts
* Jums ir fails
* Aizliegta banku darbība, un jums nav labu bankām vai labāk, ja jums ir projekts, un jums ir nepieciešams **** sazināties ar mani, un es tev palīdzēs.
Kontaktpersona: leocadyhilary@gmail.com
|
| KREDITA |
2018-02-24 19:51:10 |
|
24 stundu finansiālā palīdzība
Sveiki, kundze / kundze!
Vai jums ir nepieciešami aizdevumi starp privātpersonām, lai saskarētos ar finansiālajām grūtībām, lai beidzot izkļūtu no strupceļa, kas izraisa bankas, noraidot jūsu kredītprasījumu failus, mēs esam finanšu ekspertu grupa, kas spēj padarīt jūs kas ir gatavs nepieciešamajai summai un apstākļiem, kas padarīs jūsu dzīvi vieglāku.
Mēs izsniedzam kredītus sākot no 1 mēneša līdz 30 gadiem, un mēs aizdodam no 5000 eiro līdz 100,000,000 €.
Mūsu procentu likme ir 2% gadā, šeit ir norādītas jomas, kurās mēs varam jums palīdzēt:
* Finanšu
* Hipotekārais kredīts
* Ieguldījumu aizdevums
* Auto aizdevums
* Konsolidācijas parāds
* Kredīta dzēšana
* Individuālais kredīts
* Jums ir fails
* Aizliegta banku darbība, un jums nav labu bankām vai labāk, ja jums ir projekts, un jums ir nepieciešams **** sazināties ar mani, un es tev palīdzēs.
Kontaktpersona: leocadyhilary@gmail.com
|
| KREDITA |
2018-02-24 19:50:52 |
|
24 stundu finansiālā palīdzība
Sveiki, kundze / kundze!
Vai jums ir nepieciešami aizdevumi starp privātpersonām, lai saskarētos ar finansiālajām grūtībām, lai beidzot izkļūtu no strupceļa, kas izraisa bankas, noraidot jūsu kredītprasījumu failus, mēs esam finanšu ekspertu grupa, kas spēj padarīt jūs kas ir gatavs nepieciešamajai summai un apstākļiem, kas padarīs jūsu dzīvi vieglāku.
Mēs izsniedzam kredītus sākot no 1 mēneša līdz 30 gadiem, un mēs aizdodam no 5000 eiro līdz 100,000,000 €.
Mūsu procentu likme ir 2% gadā, šeit ir norādītas jomas, kurās mēs varam jums palīdzēt:
* Finanšu
* Hipotekārais kredīts
* Ieguldījumu aizdevums
* Auto aizdevums
* Konsolidācijas parāds
* Kredīta dzēšana
* Individuālais kredīts
* Jums ir fails
* Aizliegta banku darbība, un jums nav labu bankām vai labāk, ja jums ir projekts, un jums ir nepieciešams **** sazināties ar mani, un es tev palīdzēs.
Kontaktpersona: leocadyhilary@gmail.com
|
| KREDITA |
2018-02-24 19:50:22 |
|
24 stundu finansiālā palīdzība
Sveiki, kundze / kundze!
Vai jums ir nepieciešami aizdevumi starp privātpersonām, lai saskarētos ar finansiālajām grūtībām, lai beidzot izkļūtu no strupceļa, kas izraisa bankas, noraidot jūsu kredītprasījumu failus, mēs esam finanšu ekspertu grupa, kas spēj padarīt jūs kas ir gatavs nepieciešamajai summai un apstākļiem, kas padarīs jūsu dzīvi vieglāku.
Mēs izsniedzam kredītus sākot no 1 mēneša līdz 30 gadiem, un mēs aizdodam no 5000 eiro līdz 100,000,000 €.
Mūsu procentu likme ir 2% gadā, šeit ir norādītas jomas, kurās mēs varam jums palīdzēt:
* Finanšu
* Hipotekārais kredīts
* Ieguldījumu aizdevums
* Auto aizdevums
* Konsolidācijas parāds
* Kredīta dzēšana
* Individuālais kredīts
* Jums ir fails
* Aizliegta banku darbība, un jums nav labu bankām vai labāk, ja jums ir projekts, un jums ir nepieciešams **** sazināties ar mani, un es tev palīdzēs.
Kontaktpersona: leocadyhilary@gmail.com
|
| LEOCADY |
2018-02-24 19:49:38 |
|
24 stundu finansiālā palīdzība
Sveiki, kundze / kundze!
Vai jums ir nepieciešami aizdevumi starp privātpersonām, lai saskarētos ar finansiālajām grūtībām, lai beidzot izkļūtu no strupceļa, kas izraisa bankas, noraidot jūsu kredītprasījumu failus, mēs esam finanšu ekspertu grupa, kas spēj padarīt jūs kas ir gatavs nepieciešamajai summai un apstākļiem, kas padarīs jūsu dzīvi vieglāku.
Mēs izsniedzam kredītus sākot no 1 mēneša līdz 30 gadiem, un mēs aizdodam no 5000 eiro līdz 100,000,000 €.
Mūsu procentu likme ir 2% gadā, šeit ir norādītas jomas, kurās mēs varam jums palīdzēt:
* Finanšu
* Hipotekārais kredīts
* Ieguldījumu aizdevums
* Auto aizdevums
* Konsolidācijas parāds
* Kredīta dzēšana
* Individuālais kredīts
* Jums ir fails
* Aizliegta banku darbība, un jums nav labu bankām vai labāk, ja jums ir projekts, un jums ir nepieciešams **** sazināties ar mani, un es tev palīdzēs.
Kontaktpersona: leocadyhilary@gmail.com
|
| JOSE DENNISON |
2018-02-20 12:05:29 |
|
Dear Sir / Madam
Vai jūs meklējat biznesa aizdevumu, personīgo aizdevumu, mājas aizdevumu, auto
aizdevums, studentu aizdevums, parāda konsolidācijas aizdevums, nenodrošināts aizdevums, riska darījums
kapitāls u.tml. VAI Vai jūs atteicās no bankas aizdevuma vai kādas finansiālas
iestāde par vienu vai vairākiem iemesliem. Jūs esat īstajā vietā
Jūsu aizdevuma risinājumi!
Es esmu privāts aizdevējs, es piešķiru aizdevumus uzņēmumiem un privātpersonām pie
zems un lēts procents
likme 2%.
Interesē? Sazinieties ar mums, lai saņemtu aizdevuma un papildu maksājumu apstrādi
nodošana 48 stundu laikā;
PIETEIKUMA ZIŅAS
Nosaukums
Dzimšanas datums :
Dzimums:
Ģimenes stāvoklis:
Adrese:
Pilsēta:
Valsts / province:
Pasta indekss:
Valsts:
Tālrunis:
E-pasts:
Valsts aizdevuma mērķis:
Aizdevuma summa:
Aizdevuma ilgums:
Neto ikmēneša ienākumi.
Nosūtīt mums e-pastu @: josedennisonloans007@googlemail.com un, lai iegūtu sīkāku informāciju par mums, apmeklējiet mūsu tīmekļa adreses www.dennisonloanscompany.com.
Paldies un Dievs svētī
Sveicieni,
Jose kungs
|
| BILL |
2018-02-19 15:50:27 |
|
Likumīga aizdevuma iegūšana vienmēr ir bijusi milzīga problēma Klientiem, kuriem ir finansiālas problēmas un kuriem ir nepieciešams risinājums. Kredīta un nodrošinājuma jautājums ir
ko klienti vienmēr uztrauc, meklējot aizdevumu no likumīga aizdevēja. Bet .. mēs esam padarījuši šo atšķirību kreditēšanas nozarē. Mēs varam
noorganizējiet aizdevumu no USD 5000 līdz USD 500 000 000 USD līdz pat 3% apmērā. Lūdzam nekavējoties atbildēt uz šo e-pasta adresi:
billjohnson.loanfirm011@gmail.com
Mūsu pakalpojumi ietver sekojošo:
Parādu konsolidācija
Otrā hipotēka
Biznesa aizdevumi
Personas aizdevumi
Starptautiskie aizdevumi
Aizdevums jebkuram veidam
Ģimenes aizdevums
mēs finansējam neliela apjoma aizdevuma sabiedrību, starpniekus, mazās finanšu iestādes, jo mums ir neierobežots kapitāls. Sīkāku informāciju par aizņēmuma iegūšanu
sazinieties ar mums, lūdzu, uzreiz atbildiet uz šo e-pastu: billjohnson.loanfirm011@gmail.com
Mr Bill Johnson
|
| MAGRET JAMES |
2018-02-02 16:36:36 |
|
Sveiki,
Vai jums ir nepieciešams steidzams aizdevums? Vai jūs esat parāds? Vai jums ir slikta kredīta? vai jūs esat noraidījis bankas, vai jums ir nepieciešams aizdevums, lai uzsāktu savu biznesu? Mēs izsniedzam aizdevumus cilvēkiem, neskatoties uz viņu sliktajiem / sliktajiem kredītreitingiem. Mēs izsniedzam gan biznesa, gan individuālos aizdevumus ar ilgtermiņa un īstermiņa izvēli, ar zemu procentu likmi 2% apmērā par katru personu un uzņēmumu .. Mūsu aizdevumu programmētājs ir ātrs un uzticams, piemērojams šodien un saņem tūlītēju atbildi. Mūsu Aizdevumi ir labi apdrošināti, 100% garantēti, un klientiem tiek nodrošināta maksimāla drošība. Lai saņemtu papildu informāciju, sazinieties ar mums, izmantojot mūsu e-pasta adresi: (MAGRETJAMES321@GMAIL.COM)
E-pasts: (MAGRETJAMES321@GMAIL.COM)
Magret james MD / CEO
|
| LIVING FAITH |
2018-02-02 07:08:31 |
|
Vai jums ir nepieciešams steidzams aizdevums? Mūsu uzņēmums sniedz aizdevumus bez avansa maksas par nelielu likmi 2%. Tāpēc tagad izmantojiet savu steidzamo aizdevumu, lai nomaksātu savus parādus, rēķinus un paplašinātu savu biznesu, sazinieties ar mums pa e-pastu: LIVINGFAITHSERVICE@OUTLOOK.COM (whatsapp: (+151)86286514)
|
| MRS CHRISTY WALTON |
2018-02-01 05:30:52 |
|
Es izsniedz aizdevumus uzņēmumiem un privātpersonām ar saprātīgu 2% procentu likmi. E-pasts uz: (christywalton355@gmail.com), ja jūs interesē aizdevuma piedāvājums.
|
| 10 |
2018-01-30 09:26:10 |
|
Mans vārds ir Gina Acampora, un šodien es runāju kā vislaimīgākais cilvēks visā savvaļas pasaulē šodien, un es teicu savam, ka jebkuram aizdevējam, kurš glābj manu ģimeni no mūsu sliktās situācijas, es pastāstīšu vārdu visam savvaļas pasaulē, un es esmu tik priecājos teikt, ka mana ģimene ir atgriezusies par labu, jo man bija nepieciešams aizdevums 100 000 eiro, lai sāktu savu dzīvi visā, pateicoties manai profesijai, jo esmu viena māte, ar 4 bērniem un visa pasaule šķita, ka tas bija pakārts uz mani, kamēr es tikos ar Dievu sūtīja aizdevumu Kompānija, kas mainīja manu un manas ģimenes dzīvi, dievs, kas baidās, firma, Nora Mildred, viņa bija glābējs Dievs nosūtīts, lai glābtu manu ģimeni ar 100 000 eiro aizdevumu, sazinieties ar viņu noramildred.loan@hotmail.com
|
| PATRICIA |
2018-01-29 12:59:05 |
|
Sveicināti
Es esmu persona, kas piedāvā starptautiskus aizdevumus.
Ar kapitālu, kas tiks izmantots, lai piešķirtu aizdevumus no
Īsā un ilgtermiņā īpałi īpałām vajadzībām, ļoti pieņemamām procentu likmēm visiem nopietniem cilvēkiem
Es izsniedz aizdevumus finanšu, hipotēku, aizdevumu
Ieguldījumi, Auto aizdevums, Individuālais aizdevums. Es esmu
pieejami, lai apmierinātu savus klientus maksimāli 3 dienas
pēc pieteikuma veidlapas saņemšanas. Neviens
nopietni atturēties
Mana e-pasta adrese: patricia06@centrum.sk
Zvani: +336 44 67 80 99
Ziņa: +336 75 32 47 52
whatsapp: +336 75 32 47 52
Ar cieņu, kundze Faure Patricia
|
| AIZDEVUMA PIEDāVāJUM |
2018-01-29 08:07:56 |
|
Sveiki,
Vai tev ir nepieciešama kredita pieškiršana?
Vai jus esat ieinteresets sanemt jebkada veida aizdevumu?
Vai esat finansiali noraizejies? Vai jums ir nepieciešams aizdevums, lai nomaksatu paradu un rekinus ?, e-pastu
Mes velamies izsniegt aizdevumu, kuram kadreiz ir nepieciešams aizdevums ar zemu 2% procentu likmi, mes izsniedzam aizdevumu no vismaz 5000 USD lidz maksimalajam 100 miljonu dolaru, marcinu, eiro, ja tas ir ieinteresets, sazinieties ar mums. pa e-pastu: jsemkffloaninvestment@gmail.com
Ieinteresetajiem aizdevuma pieteikuma iesniedzejiem jaaizpilda un janosuta zemak aiznemeja aizdevuma informacija par parskaitijuma apstradi:
(INFORMACIJA PAR AIZSARDZIBU)
Pilnais vards:......................
AGE .............................
GIMENES STAVOKLIS..................
Kontaktpersonas adrese: ................
Valsts .........................
Talrunis: ..........................
Nodarbošanas: .....................
Meneša ienakumi:.........................
Religija: ..............................
Kinas nakamais: .......................
(INFORMACIJA PAR AIZDEVUMU)
Summa, kas vajadziga ka aizdevums: ..........
Aizdevuma ilgums: ..................
Nodrošinajums: .....................
Atmaksas veids: katru menesi vai katru gadu? ...............
Vai esat pieteikusi aizdevumu pirms tam? ...................
Paldies, jo mes gaida jusu atru atbildi.
Ar laba velejumiem,
Jeff Michael
|
| ADAMS JOHN LOAN |
2018-01-25 12:02:07 |
|
Mēs esam kristiešu organizācija, kas izveidota, lai palīdzētu cilvēkiem palīdzības vajadzībām, piemēram, finansiālajai palīdzībai. Tāpēc, ja jums ir finansiālas grūtības vai jums ir kāda finansiāla krīze, un jums ir nepieciešami līdzekļi, lai uzsāktu savu uzņēmējdarbību, vai jūs meklējat finansiālu jebkura veida palīdzība? Mēs esam privātā aizdevuma uzņēmums, kas nodrošina visu veidu aizdevumus / finansējumu visiem, kas vēlas saņemt finansiālu palīdzību. vai arī jums ir grūti iegūt kapitāla aizdevumu no vietējām bankām, jo Bībele saka: "Lūkas 11:10 Ikviens, kurš lūdz saņemt; kas meklē meklēt; un tam, kas klauvē, tiks atvērtas durvis ", tāpēc neļaujiet šai iespējai nokļūt, jo Jēzus ir tas pats vakar, šodien un uz visiem laikiem. Lūdzu, tie ir domāti nopietni, un Dievs, baidoties no cilvēkiem, būs šeit, lai palīdzētu tiem. kam vajadzīga palīdzība ..
E-pasts; adamsjohnloanfirm@hotmail.com
|
| PATRICIA |
2018-01-22 19:44:11 |
|
Kredīta piedāvājumi starp atsevišķiem nopietniem un ātri
labvakar
Tas ir ļoti svarīgs un nopietns ziņojums privātpersonām,
visi cilvēki, kuri ir nomākti vai nav, izmisuma vai nē, ir aizliegti
citi, kam steidzami vajadzīgs aizdevums, lai varētu relive
atjaunot viņa dzīvi, viņa nākotni, viņa nākotni.
Hey !!! Labi tagad nevilcinieties, jo jums būs viss, kas jums nepieciešams
atdzīvināt savas darbības, īstenot savus projektus neatkarīgi no tā, kas jūs esat; jūsu
Atgriešanās nosacījumi būs laipni gaidīti.
Plašāku informāciju ...
Pasts: faure_patricia@outlook.fr
Zvani: +336 44 67 80 99
Ziņa: +336 75 32 47 52
whatsapp: +336 75 32 47 52
Paldies par sapratni
|
| KRISTīNE |
2018-01-19 23:19:34 |
|
Sveiki, katrs šajā mājas lapā esošais ķermenis mans vārds ir Kristīne, un esmu no Latvijas, es vēlos liecināt par to, kā mani izglāba aizdevuma sabiedrība Laura Smita aizdevuma firma, un tagad esmu meklējusi aizdevumu 100 000 lvl jau vairāk nekā četrus mēnešus, lai samaksātu par manu īri un maksājot par manu bērnu medikamentu, es jūtos divu tiešsaistes aizdevēju rokās, kuri ēda manu naudu četru mēnešu laikā, nedodot man nekādu aizdevumu, tā vietā es biju viņus scam, un es nekad zināju, ko darīt, līdz kādu dienu es devos uz tikšanos mans draugs, kurš izskaidroja visu, kas ar mani notika, tagad viņa jutās par mani sliktu, un viņa atcerējās, ka viņai bija draugs, kas strādā aizņēmuma kompānijā, ar kuru viņš sazinājās ar viņiem, un, vispirms, man deva viņiem e-pastu, jo es teicu mana sevis dēļ nekad neizskatīšos aizdevumu, jo no tā, kas notika, viņa mani iedrošināja un iedeva cerību izmēģināt viņu, tāpēc es sazinājos ar viņiem uz viņu e-pasta adresi, nezaudējot laiku, kad viņi atbildēja uz mani un lūdza manus datus, neatstājot mani uz mani detalizētu informāciju par tām un iekšienē nākamajā 1 stundā es saņēmu brīdinājumu no manas bankas par aizdevumu, kuru es biju tik laimīgs, un es pateicos savam draugam un pateicos arī aizdevuma sabiedrībai, tāpēc es ātri samaksāju par savu nomas maksu un mana bērna medikamentu arī esmu šeit, lai palīdzētu tiem, kas meklē par visu veidu aizdevumu tur joprojām ir legit uzņēmums ārpus tur, gaidot, lai dotu jums šo aizdevumu jūs varat sazināties ar uzņēmumu tagad viņu e-pastu (mrslaurasmithloanfirm@gmail.com), un es vēlos, lai jūs visi arī pievienoties man paldies uzņēmumam par šo brīnišķīgo darbu un lūdz Dievu svētīt viņus vairāk.
Kristīne
|
| MERYL |
2018-01-16 10:51:10 |
|
Vai jūs meklējat biznesa aizdevumu, personīgo aizdevumu, mājas aizdevumu, automašīnu
aizdevums, studentu aizdevums, parāda konsolidācijas aizdevums, nenodrošināti aizdevumi, riska darījumi
kapitāls utt. Vai jūs atteicās no bankas aizdevuma vai finanšu
iestāde par vienu vai vairākiem iemesliem. Jūs esat piemērotā vietā
Jūsu aizdevuma risinājumi! Es esmu privāts aizdevējs, es izsniedz aizdevumus
uzņēmumiem un privātpersonām par zemu un pieejamu procentu likmi
2%. Interese. Lūdzu, sazinieties ar mums pa e-pastu
greatfuturefinancialservices@gmail.com
|
| LIVING FAITH |
2018-01-15 23:01:18 |
|
Pierādījums par nopietnu aizdevuma iegūšanu, paldies jums, Anthony Alex kundze, par jūsu 45 000 eiro naudas aizdevumu, ko jūs mani darījāt. Es runāšu par jūsu pakalpojumiem tiem apkārtējiem, kuriem nepieciešams aizdevums vai finansējums. Es esmu apmierināts ar aizdevumu, kuru esat piešķīris. Nevilcinieties, ja jums ir nepieciešams aizdevums un īstais likumīgs aizdevuma kreditors, lūdzu, sazinieties ar viņu tagad un saņemiet savu aizdevumu pa e-pastu: LIVINGFAITHSERVICE@OUTLOOK.COM
|
| LIVING FAITH |
2018-01-15 22:58:31 |
|
Pierādījums par nopietnu aizdevuma iegūšanu, paldies jums, Anthony Alex kundze, par jūsu 45 000 eiro naudas aizdevumu, ko jūs mani darījāt. Es runāšu par jūsu pakalpojumiem tiem apkārtējiem, kuriem nepieciešams aizdevums vai finansējums. Es esmu apmierināts ar aizdevumu, kuru esat piešķīris. Nevilcinieties, ja jums ir nepieciešams aizdevums un īstais likumīgs aizdevuma kreditors, lūdzu, sazinieties ar viņu tagad un saņemiet savu aizdevumu pa e-pastu: LIVINGFAITHSERVICE@OUTLOOK.COM
|
| RUDīTE STAņISLAVA OT |
2017-12-31 11:00:32 |
|
Sveiki, mans vārds ir Rudīte Staņislava Otīlija, Latvijas pilsone; Man ir 45 gadi ... Esmu precējies ar trīs bērniem, es gribu jūs informēt par Kunga labo darbu, mani skāra finansiālā situācija, un man bija jāmaksā mani rēķini, es centos meklēt aizdevumus no vairākiem privātie kredītiestādes un korporatīvie uzņēmumi, bet nekad neesmu veiksmīgi, un lielākā daļa banku ir samazinājušas manu kredītu. Bet visbeidzot, es vēlos pateikties Dievam Visvarenajam par to, ka viņš aizveda mani uz nekustamo aizdevēju un Marian Hoffman finanšu direktora Marian Hoffman kundzi Marian Hoffman pēc tam, kad tika viltota kreditoru summa par 10 000 eiro, es biju bezcerīgs un nezināju kam uzticēties, kad viņa atnāca, un uz manas sejas uzliek lielu smaidu. Manā lielākajā pārsteigumā man izsniedzot summu 450 000,00 eiro. Tātad dārgie, ja jums ir jāsazinās ar jebkuru uzņēmumu ar norādi uz aizdevuma ar zemu 2% un labāki atmaksas plāni un laika skala, sazinieties ar {marianhoffman.finance@gmail.com} un arī, ja esat bijis Scam upuris, vairs neuztraucieties, jo es saņēmu labas ziņas un vienīgo aizdevēju, kuram var uzticēties, vienkārši sazinieties ar viņu tagad, izmantojot (marianhoffman.finance@gmail.com), lai uzzinātu vairāk par aizdevuma saņemšanu. Viņa nezina, ka es to daru. Es lūdzu, lai Dievs tevi svētītu bagātīgi, liekot smaidu uz manas sejas un manas ģimenes.
|
| ESMU ALEKSANDRīNA LO |
2017-12-31 10:58:44 |
|
Sveiki visiem, es esmu Aleksandrīna Lolita, viena māte no Rīgas Latvija, es vēlos dalīties ar šo lielisko liecību par to, kā es saņēmu savu aizdevumu no aizdevuma uzņēmuma Marian Hoffman, kad mēs tika izraidīti no mājām, kad vairs nevarēju maksāt rēķinus , pēc tam, kad esmu nozagusi vairāki tiešsaistes uzņēmumi un liegusi aizdevumu manai bankai un citām kredītiestādēm, kuras es apmeklēju. Mani bērni rūpēja uzņēmēja, es biju viens uz ielas. Līdz vienai dienai es ignorēju veco kolēģi, kurš iepazīstināja mani ar aizdevumu kompāniju Marian Hoffman. Sākumā es teicu viņai, ka es neesmu gatavs riskēt aizņemties citu aizdevumu tiešsaistē, taču viņa mani apliecināja, ka es saņēmu savu aizdevumu viņiem. Otrajā domā, ko es pieņēmu, pateicoties savam mājas darbam, es paņēmu pārbaudi un pieprasīju aizdevumu, par laimi es saņēmu aizdevumu EUR 50 000,00 apmērā no (marianhoffman.finance@gmail.com). Es priecājos uzņemties risku un pieteikties aizdevumam. Mani bērni atgriezās pie manis, un tagad man pieder mana māja un bizness. Visas pateicības ir aizdevēja kompānijai Marian Hoffman par to, ka viņš sniedza manai dzīvei nozīmi, kad zaudēju visu cerību.
|
| EVELīNA LíVIA HELēNA |
2017-12-31 10:41:46 |
|
Mani sauc Evelīna Lívia Helēna, un es esmu no Latvijas. Es gribu izmantot šo laiku, lai ikvienam internetā pastāstītu par to, kā šodien esmu saņēmis aizdevumu no jauna likumīgas aizdevumu sabiedrības, sākot ar 2017. gadu, uzņēmuma nosaukums ir aizdevuma uzņēmums Marian Hoffman, un viņi ir likumīgi, ka es nekad neesmu redzējis uzņēmumu internetā pirms, un es tikko tos redzēju mājaslapā vakar, un es nolēmu pieteikties, un viņi man teica visu, kas man jādara, un pēc to izdarīšanas es šodien saņēmis savu aizdevumu savā bankas kontā. Es gribu izmantot šo laiku, lai visiem internetā pateiktu, ka, ja jums ir nepieciešams likumīgs aizdevums, tas ir īstais uzņēmums, kas pierakstās, un jūs nekavējoties pieteiksieties ar viņiem, esiet droši, ka jūs saņemsiet savu aizdevumu no tiem droši un būsiet laimīgi. . Ja jūs interesē aizdevums, Marian Hoffman ir uzņēmums, kam pieteikties uz reālu un likumīgu aizdevuma sabiedrību 2017, e-pasta adrese ir marianhoffman.finance@gmail.com.
|
| LUDMILA INA TRīNE |
2017-12-31 10:39:44 |
|
Sveiki, mans vārds ir Ludmila Ina Trīne, esmu no Latvijas. Es tikko saņēmu savu 50 000 eiro aizdevumu no šīs jaunās likumīgās aizdevuma sabiedrības 2017. gadā, un uzņēmuma nosaukums ir aizdevuma uzņēmums Marian Hoffman, kurš vakar bija iesniedzis pieteikumu aizdevuma saņemšanai un tikko saņēma brīdinājumu no savas bankas, ka manā fondā ir fonds 50 000 eiro kontu, un es esmu tik priecīgs par to, ja jums ir nepieciešams īsts aizdevums, šī ir kandidāta uzņemšanās, viņi ir reāli un ir pārliecināti, ka, ja šodien piesakāties aizdevumam, un jūs ar viņiem būsiet ātri līdz rītdienai, gaidīsim jūsu kredīta līdzekļiem savā kontā ar nodrošinājumu. Tātad, ja jums ir nepieciešams aizdevums no tiem, jūs varat sazināties ar tiem pa pastu pa pastu marianhoffman.finance@gmail.com.
Pateicos ikvienam, kas vēl vienu reizi esmu izlasījis manu vēstījumu, paliek Ludmila Ina Trīne.
|
| KUNDZE MARIAN HOFFMA |
2017-12-31 10:38:56 |
|
Laipni lūdzam Marian Hoffman. Finansējuma aizdevums company@gmail.com Mūsu mērķi ir nodrošināt izcilu profesionālu servisu.
Vai tu esi biznesmenis vai sieviete? Vai jums ir kāda finansiāla nestabilitāte vai jums ir nepieciešami līdzekļi, lai sāktu savu biznesu? Vai jums ir nepieciešams aizdevums, lai sāktu nelielu, patīkamu un vidēju uzņēmējdarbību? Vai jums ir zems kredītreitings un vai jums ir grūti iegūt pašu kapitāla aizdevumu no vietējām bankām un citiem finanšu institūtiem?
Mūsu aizdevumi ir labi apdrošināti, lai nodrošinātu maksimālu drošību, ir mūsu prioritāte. Mūsu galvenais mērķis ir palīdzēt jums iegūt pakalpojumus, kurus esat pelnījis. Mūsu programma ir ātrākais veids, kā ātri iegūt vajadzīgo informāciju. Samaziniet savus maksājumus, lai atvieglotu spiedienu uz ikmēneša izdevumiem. Iegūstiet elastību, ar kuru jūs varat izmantot jebkādiem mērķiem - atvaļinājumā, izglītībā, ekskluzīviem pirkumiem
Mēs piedāvājam plašu finanšu pakalpojumu klāstu, kas ietver: individuālos aizdevumus, parāda konsolidācijas aizdevumus, uzņēmējdarbības aizdevumus, izglītības aizdevumus, nodrošināto hipotekāro kredītu, nenodrošināto aizdevumu, hipotēku kredītus, dienasnauda bez aizdevumiem, studentu aizdevumi, attīstības aizdevumi, iegādes aizdevumi, celtniecības aizdevumi , privātpersonām, uzņēmumiem un juridiskām personām zemā procentu likme ir 2% par atcelšanu. Iegūstiet labumu savai ģimenei un savu sapņu māju, kā arī mūsu vispārējo aizdevumu shēmu.
Mēs piedāvājam visus aizdevumu veidus - PIETEIKTIES PIEEJAMIE AIZDEVUMIEM.
Lūdzu, sazinieties ar mums, lai iegūtu vairāk informācijas: Marian Hoffman.finance@gmail.com
Lūdzu, rakstiet mums atpakaļ ar informāciju par aizdevumu;
INFORMĀCIJA PAR PAKALPOJUMIEM
1) Pilnos vārdus:
2) Valsts:
3) adrese:
4) Nosacījums:
5) Dzimums:
6) Ģimenes stāvoklis:
7) Nodarbošanās:
8) Tālruņa numurs:
9) Ienākumi mēnesī:
10) tuvi radinieki:
11) Aizdevuma summa:
12) Aizdevuma ilgums:
13) Aizdevuma mērķis:
14) Īpašs datums, kad jums ir nepieciešams aizdevums:
Ja esat ieinteresēts saņemt aizdevumu, lūdzu, rakstiet mums ar kredīta prasību.
Lūdzu, sazinieties ar mums, lai iegūtu vairāk informācijas: Marian Hoffman.finance@gmail.com
Ar laba vēlējumiem,
Kundze Marian Hoffman
Marian Hoffman.finance@gmail.com
Mēs ar nepacietību gaidām no jums dzirdēt pēc iespējas ātrāk.
Ieinteresētajiem kandidātiem vajadzētu sazināties ar mums pa e-pastu: Marian Hoffman.finance@gmail.com
|
| LABAS ZIŅAS; |
2017-12-09 22:59:43 |
|
LABAS ZIŅAS;
Vai meklējat finansiālu atbalstu? Nepieciešams steidzams aizdevums, kas jāmaksā
Jūsu rēķini vai parādi? Šī ir iespēja, kuru meklējat. Mēs piedāvājam visu
Aizdevumu veidi, piemēram, uzņēmuma aizdevumi, automašīnu aizdevumi, riska darījumi
Kapitāls, mājokļu kredīti, studentu aizdevumi vai jūsu izvēlēts aizdevums 2%
Procentu likme. Ieinteresētajām personām vajadzētu sazināties ar mums ar šo e-pastu
Adrese: pedroazevedo532@gmail.com un WhatsApp: +27605308893
|
| ALEX |
2017-12-09 10:08:48 |
|
Sveiki, vai jums ir nepieciešams steidzams aizdevums? Es varu apkalpot jūsu finansiālās vajadzības ar mazāku atmaksas problēmu, tāpēc mēs finansējam tikai 2%. Neatkarīgi no jūsu apstākļiem, pašnodarbinātajiem, pensionāriem, ir slikts kredītreitings, mēs varētu palīdzēt. Sazinieties ar mums šodien: alexloanservice@yahoo.com
|
| MICHAREL RICHARD |
2017-12-03 02:46:41 |
|
Es esmu Michaelis Richard, MICHAELRICHARD FINANCE COMPANY izpilddirektors. Mēs esam licencēta, cienījama finanšu pakalpojumu kompānija, kas sniedz finansiālu palīdzību mūsu daudzajiem klientiem visā pasaulē ar procentu likmi 2% ar minimālo aizdevuma summu (2 000,00 USD) un maksimālo aizdevuma summu ( 50 000 000,00 USD) laikā no 1-30 gadiem. Mēs piedāvājam cilvēkiem, sadarbojamies ar organizācijām un uzņēmumiem, kuriem nepieciešams nodrošinājums, un nav nodrošināta maksimāla garantija aizdevumiem, kuri ir labi apdrošināti. Lai iegūtu vairāk informācijas, sazinieties ar michaelrichard073@gmail.com un saņemiet tūlītēju atbildi michaelrichard073@gmail.com.
|
| MICHAREL RICHARD |
2017-12-03 00:35:40 |
|
Es esmu Michaelis Richard, MICHAELRICHARD FINANCE COMPANY izpilddirektors. Mēs esam licencēta, apmierinoša finanšu pakalpojumu kompānija, kas sniedz finansiālu palīdzību mūsu daudzajiem klientiem visā pasaulē ar procentu likmi 2% ar minimālo kredīta summu (2 000,00 USD) un maksimālo kredīta summu (50 000 000,00 USD) laikā no 1- 30 gadi. Mēs piedāvājam cilvēkiem, sadarbojas ar organizācijām un uzņēmumiem, kuriem nepieciešama nodrošināšana, un nav nodrošināta maksimāla garantija kredītiem, kuri ir labi apdrošināti. Lai iegūtu vairāk informācijas, sazinieties ar michaelrichard073@gmail.com un saņemiet tūlītēju atbildi michaelrichard073@gmail.com.
|
| JANICE |
2017-11-26 14:06:10 |
|
Sveiki!
Esmu kundze Janice Albert no rietumu Amerikas Savienoto Valstu
ASV, man ir lauza
kamēr es atklāju šī uzņēmuma e-pastu
kas palīdz man iegūt aizdevumu biznesam, un
Tagad es vēlos izmantot šo īsā vidē līdz
apsveicu iepriekš minēto uzņēmumu par ātru un
drošu naudu, ko viņi izsniedz man bez jebkāda veida
nodrošinājums, i aizdevums 15 000 USD no uzņēmuma
lai saglabātu savu biznesu un daudz vairāk, es to redzēju
pastu internetā, ikviens vienmēr dod
liecina par to, ko viņi darīja, tāpēc es ātri
sazinājās ar viņiem, un viņi visi darīja visu par mani
bez stresa un mana nauda tika nosūtīta uz
manu kontu 24 stundas vēlāk, man bija pārsteigums un justies
Priecājos, tagad man ir standarta bizness
kontroles aģents, kas man palīdz, tagad es padomu
tiem, kuriem nepieciešams steidzams aizdevums, lai sazinātos ar viņiem
e-pasts: johnloanfirm2@gmail.com viņi palīdzēs
tu nekavējoties un atceries pateikt viņiem es
vadīja tevi. un jūs varat sazināties ar mani: janicealbert30@gmail.com
un Dievs svētī viņu par viņu
|
| MR. GEORGE ANDERSON |
2017-11-20 06:46:42 |
|
Vai jums ir nepieciešams steidzams aizdevums, lai uzsāktu labu uzņēmējdarbību vai atmaksātu parādu? Ieinteresētajam pretendentam ir jāsazinās ar mums tagad (georgeanderson.loanfirm255@gmail.com), lai iegūtu plašāku informāciju
Aizdevuma piedāvājums.
|
| MR. DéKáNY ENDRE |
2017-11-20 06:26:32 |
|
Vai jums ir nepieciešams steidzams aizdevums (fondi)? Ja jā, sazinieties ar mums, lai iegūtu vairāk informācijas, izmantojot mūsu e-pastu: (dakany.endre@gmail.com)
Aizdevuma piedāvājums.
|
| LOAN OFFER |
2017-11-08 11:46:59 |
|
Pieteikties uz aizdevumu, lai ātri un ērti apmaksātu rēķinus un atjaunotu finansējumu jūsu projektam ar lētāko procentu likmi 3%, lai sazinātos ar mums šodien, izmantojot: trustfunds804@outlook.com. Aizdevumam nepieciešams aizdevuma piedāvājums, mūsu minimums ir 1,000.00 izvēle aizņemties jebkuru naudu, esmu sertificēta reģistrācija un aizdevēji Legit, šodien varat sazināties ar mums, ja jūs interesē. Lai saņemtu šo aizdevumu, sazinieties ar mani, lai iegūtu plašāku informāciju par aizdevuma procesu. jo aizdevuma nosacījumi un aizdevuma summa tiks pārskaitīta jums. Man ir nepieciešama jūsu steidzamā atbilde, ja jūs interesēties.
|
| KIMBERLY |
2017-11-03 15:53:26 |
|
sveiks (aizdevums)
Mēs esam kristiešu organizācija, kas izveidota, lai palīdzētu cilvēkiem palīdzības vajadzībām, piemēram, finansiālajai palīdzībai. Tāpēc, ja jums ir finansiālas grūtības vai jums ir kāda finansiāla sajaukšanās, un jums ir nepieciešami līdzekļi, lai uzsāktu savu uzņēmējdarbību, vai jums ir nepieciešams aizdevums apmaksājiet savu parādu vai samaksājiet par saviem rēķiniem, sāciet labu biznesu vai arī jums ir grūti iegūt kapitāla aizdevumu no vietējām bankām, sazinieties ar mums šodien pa e-pastu
mrsladykimberlyloanlender.usa@gmail.com par Bībeli saka: "Lūkas 11:10. Visi, kas lūdz, saņem; kas meklē meklēt; un tam, kurš klauvē, durvis tiks atvērtas. "Tāpēc neļaujiet šai iespējai nokļūt, jo Jēzus ir tas pats vakar, šodien un uz visiem laikiem. Lūdzam, lai tie būtu nopietni domājoši, un Dievs baidās pret cilvēkiem.
Tavs vārds:
sEX;
aGE;
Valsts
Kredīta summa:
Aizdevuma ilgums:
AIZDEVUMA MĒRĶIS;
JŪSU MĒNEŠAIS IENĀKUMS;
Derīgs mobilā telefona numurs:
Paldies par jūsu izpratni par jūsu kontaktu, kā mēs gaida
Sveicieni
Vadība
E-pasts: mrsladykimberlyloanlender.usa@gmail.com
|
| KIMBERLY |
2017-11-03 15:52:24 |
|
VAI JŪS NEPIECIEŠAMS NODROŠINĀT NAUDAS, LAI IZMAKSU BILANCES VAI CITĀM VAJADZĪBĀM KONTAKTI VIA: mrsladykimberlyloanlender.usa@gmail.com SĪKĀKA INFORMĀCIJA
|
| RAYMOND MILLION |
2017-10-28 03:26:48 |
|
RAYMOND MILJONS | Labdien, vai meklējat likumīgu un uzticamu finansu / aizdevēju? Vai jums ir nepieciešams aizdevums? Vai jums nepieciešama neatliekama finansiāla palīdzība? Vai jums ir nepieciešams steidzams aizdevums, lai atmaksātu savus parādus, vai arī jums ir nepieciešams kapitāla aizdevums, lai uzlabotu savu biznesu? Mēs piedāvājam visiem aizdevumiem ar 2% procentu likmi personām, uzņēmumiem un uzņēmumiem, izmantojot skaidrus un saprotamus noteikumus un nosacījumus. Mēs izsniedzam jebkāda apjoma aizdevumus jebkuram galamērķim, tāpēc sazinieties ar mums šodien, lai saņemtu tūlītēju aizdevumu šodien. Nosūtiet mums e-pastu uz: (raymondmillionloanfirm@gmail.com)
|
| IRENE FERNANDEZ |
2017-10-27 05:36:50 |
|
Labdien!
Tas ir informēt plašu sabiedrību, ka Irēnas Fernandezes kundze, cienījama privātā aizdevuma aizdevējs, ir atklājusi finansiālu iespēju visiem, kam vajadzīga jebkāda finansiāla palīdzība. Vai jums ir nepieciešams steidzams aizdevums, lai dzēstu savus parādus, vai jums ir nepieciešams kapitāla aizdevums, lai uzlabotu savu biznesu? Vai jūs esat noraidījis bankas un citas finanšu aģentūras? Neskatoties tālāk, jo mēs esam šeit par visām jūsu finansiālajām problēmām. Mēs skaidri un saprotami izsakām aizdevumus ar procentu likmi 2% cilvēkiem, uzņēmumiem un sabiedrībām, noteikumiem un nosacījumiem. Nepieciešama kredīta pārbaude, 100% garantēta.
Sūtiet mums vēstuli uz: (irenegironfernandez@gmail.com)
|
| MR. DéKáNY ENDRE |
2017-10-14 07:39:04 |
|
Vai jums ir nepieciešams personīgais un biznesa vai investīciju finansējums bez stresa un ātras apstiprināšanas? Ja jā, sazinieties ar mums šodien, jo mēs pašlaik piedāvājam aizdevumus ar izcilu procentu likmi 3% apmērā. Mūsu finanses ir drošas un drošas. Mūsu klientiem laime ir mūsu spēks. aizdevumi no EUR 2 000 - EUR 500 000 000 USD eiro un mārciņas, tagad ir pieejami biznesa, personiskie, mājokļu, ceļojumu un studentu aizdevumi utt. Lai iegūtu vairāk informācijas, visas atbildes jānosūta pa e-pastu: (dakany.endre@gmail.com)
Steidzams aizdevuma piedāvājums.
|
| MR. DéKáNY ENDRE |
2017-10-14 07:37:44 |
|
Vai meklējat biznesa aizdevumu? Individuālie kredīti, studentu aizdevumi, parāda konsolidācijas aizdevumi, nenodrošinātie aizdevumi, riska kapitāls utt. Ja tā, lūdzu, rakstiet mums šodien: (dakany.endre@gmail.com) un šodien saņemiet aizdevumu.
Steidzams aizdevuma piedāvājums.
|
| MAN IR NEPIECIEšAMS |
2017-10-11 02:46:44 |
|
Sveiki,
Tas ir informēt plašu sabiedrību, ka Vivian Benson kundze, cienījama privātā aizdevuma aizdevējs, ir atklājusi finansiālu iespēju visiem, kam vajadzīga finansiāla palīdzība. Vai jums ir nepieciešams steidzams aizdevums, lai dzēstu savus parādus, vai jums ir nepieciešams kapitāla aizdevums, lai uzlabotu savu biznesu? Vai jūs esat noraidījis bankas un citas finanšu aģentūras? Neskatoties tālāk, jo mēs esam šeit par visām jūsu finansiālajām problēmām. Mēs skaidri un saprotami izsakām aizdevumus ar procentu likmi 2% cilvēkiem, uzņēmumiem un sabiedrībām, noteikumiem un nosacījumiem. Nepieciešama kredīta pārbaude, 100% garantēta.
Sūtiet mums vēstuli: (vivianbensonloanfirm@gmail.com)
|
| SSARAH WILLIAMS |
2017-10-07 16:26:18 |
|
Sky World kredīta firma, mēs izsniedzam aizdevumus ar procentu likmi 0f 3%. Skyworldloanfirm@gmail.com
Laba diena sir / ma am.
Mēs esam privāts uzņēmums, un mēs piedāvājam aizdevumus ar zemām procentu likmēm, nosakot aizdevuma summu, sākot no 100 miljoniem aizdevuma nosacījumu 1000 USD dolāra aizdevuma saņemšanai biznesa attīstībai: konkurētspējas palielināšana mārketingā / uzņēmējdarbībā.
Mēs piedāvājam dažādus aizdevumus
* Personas aizdevumi (nodrošināti un nenodrošināti)
* Biznesa aizdevumi (nodrošināti un nenodrošināti)
* Konsolidācijas aizdevums
Nav avansa maksas.
Pateicamies, ka izmantojāt laiku, lai izlasītu šo reklāmu.
Lai iegūtu plašāku informāciju un informāciju, šodien sūtiet mums e-pastu
Skyworldloanfirm@gmail.com
Skyworldloanfirms@yahoo.com
Sarah Williams.
|
| SIR JOEL WILLIAMS |
2017-10-06 16:58:44 |
|
Vai jums ir nepieciešams steidzams finanšu aizdevums?
* Ļoti ātra un tūlītēja pārskaitīšana uz jūsu bankas kontu
* Atmaksa sākas astoņus mēnešus pēc naudas saņemšanas
bankas konts
* Zema procentu likme 2%
* Ilgtermiņa atmaksa (1-30 gadi) Garums
* Elastīgi aizdevuma noteikumi un ikmēneša maksājums
* Cik ilgs laiks ir nepieciešams, lai finansētu? Pēc aizdevuma pieteikuma iesniegšanas
Jūs varat sagaidīt sākotnējo atbildi mazāk nekā 24 stundas
finansējums 72-96 stundas pēc nepieciešamās informācijas saņemšanas
no tevis.
Sazinieties ar šo likumīgo un licencēto uzņēmumu, kas ir pilnvarots
sniegt finansiālu palīdzību visiem
Plašāku informāciju un kredīta pieteikuma veidlapu
e-pasts: cashfirmarena@gmail.com
Ar laba vēlējumiem
Sir Joel Williams
NAUDAS FIRMA AIZDEVUMU KOMPĀNIJA
Izpilddirektors
Tālr .: +601111850392
E-pasts: cashfirmarena@gmail.com
Webisite: cashfirmarena.wordpress.com
|
| 99 |
2017-10-03 11:19:19 |
|
IMMACULATE AIZDEVUMU PAKALPOJUMI LIMITED
Atrisiniet savu finansiālo problēmu 24 stundu laikā.
Vai esat algots darbinieks vai uzņēmuma īpašnieks?
Iegūstiet no 1000 eiro - 200 000 000 eiro aizdevuma 24 stundu laikā
bez nodrošinājuma.
Vienkāršais naudas risinājums.
Lai iegūtu vairāk informācijas, sazinieties ar mums: Immaculateloanprovidersltd@gmail.com
Vadītājs: Benjamin kundze
vai apmeklējiet mūsu filiāli: Level 29, Tiffany Tower, Jumeirah Lakes Towers Dubai. AAE
Paldies
|
| 99 |
2017-10-03 11:19:19 |
|
IMMACULATE AIZDEVUMU PAKALPOJUMI LIMITED
Atrisiniet savu finansiālo problēmu 24 stundu laikā.
Vai esat algots darbinieks vai uzņēmuma īpašnieks?
Iegūstiet no 1000 eiro - 200 000 000 eiro aizdevuma 24 stundu laikā
bez nodrošinājuma.
Vienkāršais naudas risinājums.
Lai iegūtu vairāk informācijas, sazinieties ar mums: Immaculateloanprovidersltd@gmail.com
Vadītājs: Benjamin kundze
vai apmeklējiet mūsu filiāli: Level 29, Tiffany Tower, Jumeirah Lakes Towers Dubai. AAE
Paldies
|
| DEREK DUGLASA |
2017-10-03 01:47:10 |
|
Uzmanību
Vai jūs nopietni meklējat kredītu, lai izveidotu uzņēmumu vai samaksātu par savām rēķiniem? Vai esat esat noraidījis Banka vai citi Aizdevēji? Neuztraucieties par to, ka mēs esam šeit, lai sniegtu jums meklējumus, bez kavēšanās vai problēmām, lūdzu, sazinieties ar mums pa e-pastu zemāk, lai iegūtu vairāk informācijas šodien;
E-pasts: easyloanfirm2020@gmail.com
Sveicieni
Derek Duglasa
easyloanfirm2020@gmail.com
3% kredīta piedāvājums
|
| LOAN |
2017-10-01 02:35:51 |
|
Vai jums ir nepieciešams steidzams aizdevums? Vai esat meklējat Legit aizdevuma aizdevēju? Vai biznesa aizdevums? Vai jūs kādreiz atteicās no sava bankas vai finanšu iestādes aizdevuma? Mēs piedāvājam privātos, komerciālos un individuālos aizdevumus no $ 5000 līdz $ 10,000,000, ar ļoti zemām ikgadējām procentu likmēm, kas ir 3% gadā, līdz 10 gadu atmaksai. Sazinieties ar A-One Loan Limited, uzreiz, lai saņemtu ātru aizdevumu. Mēs jums tiešsaistē 24 stundas. E-pasts: raymond.smithfirm55@yahoo.com
Pilnais vārds:
Kontaktpersonas adrese:
Valsts:
Aizdevumam nepieciešamā summa:
Aizdevuma ilgums:
Aizdevuma mērķis:
Nodarbošanās:
Dzimums:
Vecums:
Tālrunis:
Ar cieņu
Raymond Smith kungs
Direktors / MD
|
| JOSE DENNISON |
2017-09-30 17:44:36 |
|
Dear Sir / Madam
ĀRĒJĀ KĀ IZMAKSAS IESPĒJAS 2 DIENĀ. Jose Micro finanšu fonds Plc Komerciālais un Personiskais, mājokļa kredīts ar 2% procentu likmi. Ieguldītājiem jāsazinās ar aizdevuma amatpersonu pa e-pastu, norādot zemāk esošo informāciju:
PIRMĀ NOSAUKUMS: ..... LATVIS PIEŠĶIRTS: ...... VALSTS: ....... TĀLRUŅA NUMURS: ..... AĢENTŪRA: ...... VECUMS: ...... ....... SEX: ...... MARITĀLAIS STATUSS: ...... KREDĪTU SUMMA IR VAJADZĪGA: ...... MĒNEŠAIS IENĀKUMS ...... AIZŅĒMUMA ILGUMS: ..... .Pasūtītāja vārds: Aizdevuma investīciju piedāvājums E-pasts: josedennisonloans007@googlemail.com un, lai iegūtu sīkāku informāciju par mums, apmeklējiet mūsu tīmekļa adreses www.dennisonloanscompany.com
Paldies un Dievs svētī
Sveicieni,
Jose kungs
|
| ALBAKER |
2017-09-30 01:38:29 |
|
Labdien manas personas Rīga Latvija
IESPĒJAMĪBA PAR KĀ IZNĪCAS IEGĀDĀT MĀJU, KAS NAV REĀLĀ UN VISPĀRĪGĀS ATLĪDZĪBAS UZŅĒMUMA, KAS SAISTĪTS AR ALBAKER aizdevumu firmu. Es esmu ļoti priecīgs šodienas un Dievs svētī JOSE LUIS AIZDEVUMU KOMPĀNIJA.
,
Mans vārds ir Abdullah Es esmu no Rijādas pilsētas, un pēdējos 5 mēnešos esmu meklējis īstu aizdevuma uzņēmumu, lai nopirktu māju
viss, kas man bija, bija ķekars, kas ļāva man uzticēties viņiem un beigās
no dienas, viņi paņēma manu naudu, nedodot kaut ko par labu, visi
mana cerība bija pazudusi, mani sajaukt un satraukt, es nekad negribēju kaut ko darīt ar aizdevumu uzņēmumiem internetā, tāpēc es devos aizņemties naudu no
draugs, es teicu viņai visu, kas noticis, un viņa teica, ka viņa var man palīdzēt
viņa zina aizdevuma sabiedrību, kas var man palīdzēt ar jebkādu aizdevuma summu
man vajadzēja ar ļoti zemu 2% procentu likmi, ka viņa tikko ieguva a
aizdevums no viņiem, viņa mani lika, kā pieteikties aizdevumam, es izdarīju
tāpat kā viņa pastāstīja man, es pieteiku ar viņiem pa e-pastu: (albakerloanfirm@gmail.com) es nekad neticēju, bet es centos un uz manu
Lielākais pārsteigums, ka es saņēmu aizdevumu 24 stundu laikā, es nevarēju ticēt,
Es esmu laimīgs un bagāts vēlreiz, un es pateicos Dievam par šādu aizdevumu
Šādi uzņēmumi joprojām pastāv pēc šīm izkrāpšanas vietām,
lūdzu, es padomu visiem, kas tur, kam ir nepieciešams aizdevums iet uz
(albakerloanfirm@gmail.com) viņi nekad neveiks jums, un
Jūsu dzīve mainīsies, kad mani ir izdarījuši. Ātri sazināties (albakerloanfirm@gmail.com) šodien un saņemt no viņiem aizdevumu, Dievs svētī Albārka aizdevuma sabiedrību par viņu patieso aizdevuma piedāvājumu.
Pārliecinieties, vai jūs sazināties ar Albaker aizdevuma sabiedrību par savu aizdevumu, jo es saņēmu savu aizdevumu veiksmīgi no šī uzņēmuma bez stresa.
|
| FINANSIāLA PALīDZīBA |
2017-09-26 11:29:24 |
|
Sveiki visiem!
Vai jums ir nepieciešams Steidzams aizdevums? Mēs izsniedzam aizdevumu ieinteresētajām personām, kuras labticīgi meklē aizdevumu. Vai jums nopietni ir nepieciešams steidzams aizdevums? tad jums ir īstajā vietā. Mēs izsniedzam biznesa aizdevumu, personīgo aizdevumu, minimālā summa EUR 2,000.00 apmērā līdz maksimālajai summai EUR 40 000 000,00, sazinieties ar mums, lai saņemtu savu aizdevuma pieprasījumu ar 2% zemu procentu likmi, lai apmierinātu jūsu pieprasījumu un noteiktu finansiālo problēmu. mūs šodien pa e-pastu: jsemkffloaninvestment@gmail.com
Aizpildiet šo informāciju zemāk
Pilnais vārds:
Valsts:
Telefona numurs:
Nepieciešamais kredīta apjoms:
Aizdevuma ilgums:
Mēneša ienākumi:
Mājas adrese:
Paldies, jo mēs gaida jūsu atbildi
aizdevumu sabiedrība.
Aizdevuma / finanšu pakalpojumu sniedzēji.
|
| SIR JOEL WILLIAMS |
2017-09-25 17:52:58 |
|
Vai jums ir nepieciešams steidzams finanšu aizdevums?
* Ļoti ātra un tūlītēja pārskaitīšana uz jūsu bankas kontu
* Atmaksa sākas astoņus mēnešus pēc naudas saņemšanas
bankas konts
* Zema procentu likme 2%
* Ilgtermiņa atmaksa (1-30 gadi) Garums
* Elastīgi aizdevuma noteikumi un ikmēneša maksājums
* Cik ilgs laiks ir nepieciešams, lai finansētu? Pēc aizdevuma pieteikuma iesniegšanas
Jūs varat sagaidīt sākotnējo atbildi mazāk nekā 24 stundas
finansējums 72-96 stundas pēc nepieciešamās informācijas saņemšanas
no tevis.
Sazinieties ar šo likumīgo un licencēto uzņēmumu, kas ir pilnvarots
sniegt finansiālu palīdzību visiem
Plašāku informāciju un kredīta pieteikuma veidlapu
e-pasts: cashfirmarena@gmail.com
Ar laba vēlējumiem
Sir Joel Williams
NAUDAS FIRMA AIZDEVUMU KOMPĀNIJA
Izpilddirektors
Tālr .: +601111850392
E-pasts: cashfirmarena@gmail.com
Webisite: cashfirmarena.wordpress.com
|
| STUDENTU AIZDEVUMU |
2017-09-23 00:48:35 |
|
Sveiki visiem,
Es esmu privāta aizdevuma aizdevējs no Krievijas Federācijas, uzticams aizdevējs Es aizdodu uzņēmumiem un privātpersonām visās pasaules daļās ar zemu un pieņemamu cenu 2%. Ja jums tika atteikts aizdevums ar bankas finanšu iestāde par vienu vai vairākiem iemesliem, vai arī jūs esat finansiāli spiests meklēt biznesa aizdevumu, personīgo aizdevumu, hipotekāro kredītu, automašīnu aizdevumu, studentu aizdevumu, parāda konsolidācijas aizdevumu, nenodrošinātu aizdevumu un riska kapitālu?
Jūs esat īstajā vietā jūsu aizdevuma risinājumiem. Ja jūs interesē aizdevuma piedāvājums, lūdzu, sazinieties ar mums Krievijas Federācijā pa e-pastu: (
guaranteloanfinancescompany@gmail.com) Kas App skaits +1 (845) 731 5341
Ar laba vēlējumiem.
|
| PARāDA KONSOLIDāCIJA |
2017-09-23 00:47:16 |
|
Sveiki visiem,
Es esmu privāta aizdevuma aizdevējs no Krievijas Federācijas, uzticams aizdevējs Es aizdodu uzņēmumiem un privātpersonām visās pasaules daļās ar zemu un pieņemamu cenu 2%. Ja jums tika atteikts aizdevums ar bankas finanšu iestāde par vienu vai vairākiem iemesliem, vai arī jūs esat finansiāli spiests meklēt biznesa aizdevumu, personīgo aizdevumu, hipotekāro kredītu, automašīnu aizdevumu, studentu aizdevumu, parāda konsolidācijas aizdevumu, nenodrošinātu aizdevumu un riska kapitālu?
Jūs esat īstajā vietā jūsu aizdevuma risinājumiem. Ja jūs interesē aizdevuma piedāvājums, lūdzu, sazinieties ar mums Krievijas Federācijā pa e-pastu: (
guaranteloanfinancescompany@gmail.com) Kas App skaits +1 (845) 731 5341
Ar laba vēlējumiem.
|
| ANDY COLE |
2017-09-20 09:25:56 |
|
Laba diena
Ja esat biznesa vīrietis vai sieviete? Ja jums ir kāds finansiāls stress vai jums ir nepieciešami līdzekļi, lai sāktu savu biznesu? Vai jums ir nepieciešams aizdevums
atmaksāt parādus vai samaksāt rēķinus? Vai jums ir zems kredīta rādītājs, un jums ir grūti iegūt aizdevumu no vietējām bankām un citām finanšu iestādēm? Vai jums ir nepieciešams aizdevums vai finansējums, piemēram:
a) personīgais aizdevums
b) izglītība,
c) parāda konsolidācija,
d) paplašināšana,
e) utt
Mēs piedāvājam aizdevumus privātpersonām, uzņēmumiem un sadarbojamies ar iestādēm ar 3% procentu likmi gadā. Minimālā summa, ko jūs varat aizņemties, ir USD 2,000.00, maksimāli USD 50 miljoni. Lūdzu, ja vēlaties, sazinieties ar mums, norādot e-pasta informāciju zemāk.
Sazinieties ar mums tagad: trustfirm2010@gmail.com
VĀRDS: Andy Cole kungs
Ātri un viegli pieejams aizdevums
|
| FRANCIS |
2017-09-10 13:30:25 |
|
Vai jums ir nepieciešams steidzams aizdevums, lai atrisinātu jūsu finansiālās vajadzības, mēs piedāvājam aizdevumu no $ 5000 līdz $ 10,000,000.00 Max, mēs esam uzticami, efektīvi, ātri un dinamiski, bez kredīta pārbaudēm, 100% garantējam Mēs piedāvājam aizņēmējus aizdevumus saskaņā ar visiem noteikumiem šeit. mēs arī izsniedzam kredītus eiro, sterliņu mārciņās un dolāros.
Procentu likme, kas piemērojama visiem 2% aizdevumiem, ja esat ieinteresēts, atgriezieties pie mums Via (francisefirm@gmail.com)
ar šādu informāciju:
Tavs pilnais vārds:
Valsts:
pilsēta:
adrese:
Nepieciešamais kredīta apjoms:
ilgums:
Vecums:
sekss:
Nodarbošanās:
Telefona numurs:
|
| IRENE FERNANDEZ |
2017-09-04 11:16:39 |
|
Sveiki,
Tas ir informēt plašu sabiedrību, ka Irēnas Fernandezes kundze, cienījama privātā aizdevuma aizdevējs, ir radījusi finansiālu iespēju visiem, kam vajadzīga finansiāla palīdzība. Vai jums ir nepieciešams steidzams aizdevums, lai dzēstu savus parādus, vai jums ir nepieciešams kapitāla aizdevums, lai uzlabotu savu biznesu? Vai jūs esat noraidījis bankas un citas finanšu aģentūras? Neskatoties tālāk, jo mēs esam šeit par visām jūsu finansiālajām problēmām. Mēs skaidri un saprotami izsniedzam aizdevumus ar procentu likmi 2% cilvēkiem, uzņēmumiem un sabiedrībām, noteikumiem un nosacījumiem. Nepieciešama kredīta pārbaude, 100% garantēta.
Sūtiet mums vēstuli: (irenegironfernandez@gmail.com)
|
| JONNA |
2017-09-01 10:28:52 |
|
Vai jums ir nepieciešams steidzams aizdevums, lai atrisinātu jūsu finansiālās vajadzības, mēs piedāvājam aizdevumu no 5000 līdz 100000000 Max, mēs esam uzticami, efektīvi, ātri un dinamiski, ar 100% garantētu Mēs arī izsniedz aizdevumu (eiro, mārciņas un dolāri). Procentu likme, kas attiecas uz visiem Aizdevumiem, ir (2%,), ja jūs interesē, šodien sazinieties ar mums: jonnafinance@outlook.com
|
| HTTP://WWW.NRJA.LV/I |
2017-08-31 20:49:52 |
|
Jūs esat biznesa vīrietis vai sieviete? Jums vajag līdzekļu, lai uzsāktu savu biznesu? Vai jums ir nepieciešams nokārtot savu parādu nomaksātu rēķinus vai sākt jauku uzņēmējdarbības aizdevumu? Jums vajag līdzekļu, lai finansētu savu projektu? Mums piedāvā garantēto aizdevumu pakalpojumus par jebkuru summu, un uz jebkuru pasaules daļu (privātpersonām, uzņēmumiem, nekustamo īpašumu un korporatīvās institūcijas) mūsu lielisku procentu likmi 3 %. Plašāku informāciju un pieteikumu nosūtīt atbildes uz šādu e-pasta address:george_switzer@yahoo.com
Paldies un ceram uz jūsu tūlītēju atbildi. Sveicieni
|
| MR RICHARD COSMOS |
2017-08-27 02:12:46 |
|
Vai jums ir nepieciešams aizdevums? Personas aizdevumi? Biznesa aizdevumi? Hipotekārie aizdevumi? Lauksaimniecības un projektu finansējums? Mēs izsniedzam visu veidu aizdevumus ar 2% procentu likmi! Kontaktpersonas e-pasts; (richardcosmos5@gmail.com)
Aizdevuma piedāvājums.
|
| PATRICIA |
2017-08-24 05:39:44 |
|
Sveicināti
Es esmu francūzis, kas piedāvā aizdevumu pakalpojumus starp indivīdiem,
Mēs arī ļoti labi apzināmies daudzos krāpšanas un manipulācijas riskus, kas raugās uz neto, un mēs apsolu, ka mūsu sabiedrība nepiekrīt tai, jo turklāt mēs apņemamies, ja jūs esat godīgi, pateicoties apdrošināšanai, lai piešķirtu jums savu Gatavs, jo radīsies interese par šo aizdevumu, mēs savukārt palīdzēsim bāreņiem un bezpajumtniekiem daudzās valstīs.
Godātais kungs, mēs esam apņēmušies jums smaidīt
Nevilcinieties sūtīt mums savu aizdevuma pieprasījumu
Pasts: faure_patricia@outlook.fr
Zvani: +336 44 67 80 99
Ziņojums: +336 75 32 47 52
Whatsapp: +336 75 32 47 52
Paldies par jūsu uzmanību.
|
| UROZ |
2017-08-05 20:29:09 |
|
Hello Sir / Madam
E-pasta agategarreau@gmail.com
Ja es atklāju smaids pateicoties Mrs. UROZ Muriel Danielle Guislaine es saņēmu aizdevumu no € 100,000, un divi no maniem kolēģiem ir saņēmuši arī aizdevumus šīs sievietes, bez jebkādām grūtībām ar likmi 2% gadā. Es ieteiktu jums nav izvēlēties nepareizu persona, ja jūs patiešām vēlaties pieteikties naudas aizdevumu jūsu projektu un jebkuru citu. Es publicēt šo ziņojumu, jo kundze UROZ Muriel Danielle Guislaine jutos labi, ar šo aizdevumu.
Tā bija ar draugu satiku šī sieviete godīgs un dāsna, kas ļāva man, lai iegūtu šo aizdevumu. Tāpēc es ieteiktu jums sazināties un tas atbilst jums visiem pakalpojumiem, jums to pieprasa. Šeit ir viņa e-pasts: agategarreau@gmail.com
|
| SARAH WILLIAMS |
2017-08-04 04:04:03 |
|
Sky World kredīta firma, mēs izsniedzam aizdevumus ar procentu likmi 0f 3%. Skyworldloanfirm@gmail.com
Laba diena sir / ma am.
Mēs esam privāts uzņēmums, un mēs piedāvājam aizdevumus ar zemām procentu likmēm, nosakot aizdevuma summu, sākot no 100 miljoniem aizdevuma nosacījumu 1000 ASV dolāru aizdevuma saņemšanai uzņēmējdarbības attīstībai: konkurētspējas palielināšanās uzņēmējdarbībā.
Mēs piedāvājam dažādus aizdevumus
* Personas aizdevumi (nodrošināti un nenodrošināti)
* Biznesa aizdevumi (nodrošināti un nenodrošināti)
* Konsolidācijas aizdevums
Nav avansa maksas.
Pateicamies, ka izmantojāt laiku, lai izlasītu šo reklāmu.
Lai iegūtu plašāku informāciju un informāciju, šodien sūtiet mums e-pastu
Skyworldloanfirm@gmail.com
Skyworldloanfirms@yahoo.com
Sarah Williams.
|
| PRUDENCE |
2017-07-27 13:41:56 |
|
Vai jums ir nepieciešams ātrs biznesa aizdevums?
E-pasts: prudenceloanfirm@gmail.com
Vai esat uzņēmējs vai sieviete?
Vai jums ir nepieciešams ātrs biznesa aizdevums?
Vai jūsu bankas ir noraidījušas?
Vai jums ir nepieciešams aizdevums, lai sāktu uzņēmējdarbību?
Vai jums ir nepieciešams aizdevums, lai paplašinātu savu biznesu?
Vai vēlaties atvērt vairāk biznesa vietu?
Mēs varam palīdzēt jums saņemt aizdevumu 48 stundu laikā.
Summa: no 5000 ASV dolāriem līdz 500 miljoniem USD
Gada procentu likme ir 3%.
E-pasts: (prudenceloanfirm@gmail.com)
|
| SERGEY YAKUBOVA |
2017-07-25 10:37:48 |
|
PIEEJAMIE LĪGUMA PIEDĀVĀJUMI BEZ IEPRIEKŠĒJĀS MAKSAS
Sveiki,
Kādas ir jūsu finansiālās vajadzības?
Mēs izsniedzam aizdevumus no vismaz $ 2000,00 līdz maksimālajam $ 100,000,000.00 ar ērtu ilgumu, kas svārstās no 1 līdz 30 gadiem ar ļoti samazinātu procentu likmi 3%. Sazinieties ar mums pa e-pastu: constantloanfirm1@gmail.com
Vai jums ir nepieciešams biznesa aizdevums?
Vai jums ir nepieciešams individuāls aizdevums?
Vai jūs vēlaties iegādāties automašīnu?
Vai vēlaties refinansēt?
Vai jums ir nepieciešams hipotēku kredīts?
Vai jums ir nepieciešams milzīgs kapitāls, lai sāktu savu biznesa priekšlikumu vai paplašināšanu? Vai esat zaudējuši cerību, un jūs domājat, ka nav izejas, un jūsu finanšu slogs joprojām pastāv?
Lūdzu, nevilcinieties sazināties ar mums, lai varētu veikt uzņēmējdarbību
Sazinieties ar mums pa e-pastu: constantloanfirm1@gmail.com
Constantloanfirm@yahoo.com
|
| SIR JOEL WILLIAMS |
2017-07-21 06:28:00 |
|
Vai jums ir nepieciešams steidzams finanšu aizdevums?
* Ļoti ātra un tūlītēja pārskaitīšana uz jūsu bankas kontu
* Atmaksa sākas astoņus mēnešus pēc naudas saņemšanas
bankas konts
* Zema procentu likme 2%
* Ilgtermiņa atmaksa (1-30 gadi) Garums
* Elastīgi aizdevuma noteikumi un ikmēneša maksājums
*. Cik ilgs laiks ir nepieciešams, lai finansētu? Pēc aizdevuma pieteikuma iesniegšanas
Jūs varat sagaidīt sākotnējo atbildi mazāk nekā 24 stundas
Finansē 72-96 stundas pēc nepieciešamās informācijas saņemšanas
no tevis.
Sazinieties ar šo likumīgo un licencēto uzņēmumu, kas ir pilnvarots
Sniegt finansiālu palīdzību visiem
Plašāku informāciju un kredīta pieteikuma veidlapu
E-pasts: cashfirmarena@gmail.com
Ar laba vēlējumiem
Sir Joel Williams
NAUDAS FIRMU AIZDEVUMU UZŅĒMUMS
Izpilddirektors
Tālr .: +601111850392
E-pasts: cashfirmarena@gmail.com
Webisite: cashfirmarena.wordpress.com
|
| BENARDHILTON |
2017-07-18 20:50:10 |
|
Ja jums ir nepieciešams aizdevums, lai samaksātu jums rēķinu vai jums ir nepieciešama nauda, lai sāktu savu
Dariet ar mums, jo mēs izsniedzam aizdevumus līdz pat 2% apmērā pa e-pastu, sazinieties ar mums
Benardhilton276@gmail.com
lai iegūtu vairāk informācijas
|
| WUW |
2017-07-13 20:46:43 |
|
Vai jums ir nepieciešams steidzams finanšu aizdevums?
* Ļoti ātra un tūlītēja pārskaitīšana uz jūsu bankas kontu
* Atmaksa sākas astoņus mēnešus pēc naudas saņemšanas
bankas konts
* Zema procentu likme 2%
* Ilgtermiņa atmaksa (1-30 gadi) Garums
* Elastīgi aizdevuma noteikumi un ikmēneša maksājums
*. Cik ilgs laiks ir nepieciešams, lai finansētu? Pēc aizdevuma pieteikuma iesniegšanas
Jūs varat sagaidīt sākotnējo atbildi mazāk nekā 24 stundas
Finansējums 72-96 stundas pēc nepieciešamās informācijas saņemšanas
no tevis.
Sazinieties ar šo likumīgo un licencēto uzņēmumu, kas ir pilnvarots
Sniegt finansiālu palīdzību visiem
Plašāku informāciju un kredīta pieteikuma veidlapu
E-pasts: cashfirmarena@gmail.com
Ar laba vēlējumiem
Sir Joel Williams
NAUDAS FIRMU AIZDEVUMU UZŅĒMUMS
Izpilddirektors
Tālr .: +601111850392
E-pasts: cashfirmarena@gmail.com
Webisite: cashfirmarena.wordpress.com
|
| CATHERINE JONES |
2017-07-11 16:05:49 |
|
Jums ir nepieciešams aizdevums? Vai esat vīrietis vai sieviete, vai jums ir nepieciešams aizdevums, lai palielinātu savu biznesu vai investīciju kapitālu. Mēs esam šeit, lai piedāvātu aizdevumu 2% apmērā par katru procentu, sazinieties ar mums pa e-pastu: (CATHERINEJONEZLOANFIRM@GMAIL.COM).
|
| PERGOCF@GMAIL.COM |
2017-07-11 13:47:55 |
|
Affordable Loan Offer ( PergoCF@cheerful.com )
Do You Need A Business Loan,Or A Personal Loan,At 1.0% If Yes? Name,Amount,Country,Loan Durations,Phone Mobile, Interested Applicants Should Contact Us Via Email: PergoCF@cheerful.com ,( PergoCF@qualityservice.com ), PergoCF@gmail.com
Affordable Loan Offer ( PergoCF@cheerful.com )
============================
Kindly write us back with the loan information;
*** Complete Name:
*** Loan amount needed:
*** Loan Duration:
*** Purpose of loan:
*** City / Country:
*** Telephone:
*** Name of the Site:
============================
Interested Applicants Should Contact Us Via Email: PergoCF@cheerful.com ,( PergoCF@qualityservice.com ), PergoCF@gmail.com
Yours Sincerely,
Mrs. Ceren Kelly
Interested Applicants Should Contact Us Via Email: PergoCF@cheerful.com ,( PergoCF@qualityservice.com ), PergoCF@gmail.com
We look forward to hear from you ASAP.
|
| AFFORDABLE LOAN |
2017-07-07 00:35:50 |
|
Affordable Loan Offer ( PergoCF@cheerful.com )
Do You Need A Business Loan,Or A Personal Loan,At 1.0% If Yes? Name,Amount,Country,Loan Durations,Phone Mobile, Interested Applicants Should Contact Us Via Email: PergoCF@cheerful.com ,( PergoCF@qualityservice.com ), PergoCF@gmail.com
Affordable Loan Offer ( PergoCF@cheerful.com )
Kindly write us back with the loan information;
*** Complete Name:
*** Loan amount needed:
*** Loan Duration:
*** Purpose of loan:
*** City / Country:
*** Telephone:
*** Name of the Site:
Interested Applicants Should Contact Us Via Email: PergoCF@cheerful.com ,( PergoCF@qualityservice.com ), PergoCF@gmail.com
Yours Sincerely,
Mrs. Ceren Kelly
Interested Applicants Should Contact Us Via Email: PergoCF@cheerful.com ,( PergoCF@qualityservice.com ), PergoCF@gmail.com
We look forward to hear from you ASAP.
|
| DR ALEXANDRE CARLOS. |
2017-07-06 21:41:26 |
|
Mēs piedāvājam privātos, komerciālos un individuālos aizdevumus ar ļoti zemām ikgadējām procentu likmēm, sākot no viena gada līdz pat 2%, līdz 50 gadu atmaksāšanas periodam visā pasaulē. Mēs piedāvājam aizdevumus no 5000 ASV dolāru līdz 100 miljoniem ASV dolāru. Mūsu aizdevumi ir labi apdrošināti, lai nodrošinātu maksimālu drošību, ir mūsu prioritāte. Vai jūs zaudējat miegu naktīs, uztraucot, kā iegūt likumīgu aizdevuma aizdevēju? Vai jūs īkšķējat nagus? Tā vietā, lai jūs uzbruktu, sazinieties ar Dr. Alexandre CarlosHome Aizdevumu (Loan Services) tagad, speciālistiem, kuri palīdz apturēt sliktu kredītvēstures kredītu, lai rastu risinājumu, kurā mūsu uzvara ir mūsu misija. E-pasts: info.alexandrecarlos@gmail.com Pretendentam jāaizpilda pieteikuma veidlapa pēc aizdevuma saņemšanas
KLIENTU PIETEIKUMA VEIDLAPA
PREFIX {MR, MRS., MS., DR., Utt}
Jūsu vārds un uzvārds:
Tavs e-pasts :
Jūsu tālruņa numurs:
Jūsu adrese:
Tava pilsēta :
Valsts / province:
Valsts:
Dzimums:
Dzimšanas datums:
Vai ir konts? :
Jūs esat pieteikusi iepriekš? :
Nepieciešamais kredīta apjoms:
Aizdevuma ilgums:
Aizdevuma mērķis:
Sūtiet man skenētu jūsu ID:
Kreditora vārds: Dr. Alexandre Carlos.
Aizdevējs E-pasts: info.alexandrecarlos@gmail.com
Sveicieni
Dr Alexandre Carlos.
|
| DR ALEXANDRE CARLOS. |
2017-07-06 21:29:35 |
|
Mēs piedāvājam privātos, komerciālos un individuālos aizdevumus ar ļoti zemām ikgadējām procentu likmēm, sākot no viena gada līdz pat 2%, līdz 50 gadu atmaksāšanas periodam visā pasaulē. Mēs piedāvājam aizdevumus no 5000 ASV dolāru līdz 100 miljoniem ASV dolāru. Mūsu aizdevumi ir labi apdrošināti, lai nodrošinātu maksimālu drošību, ir mūsu prioritāte. Vai jūs zaudējat miegu naktīs, uztraucot, kā iegūt likumīgu aizdevuma aizdevēju? Vai jūs īkšķējat nagus? Tā vietā, lai jūs uzbruktu, sazinieties ar Dr. Alexandre CarlosHome Aizdevumu (Loan Services) tagad, speciālistiem, kuri palīdz apturēt sliktu kredītvēstures kredītu, lai rastu risinājumu, kurā mūsu uzvara ir mūsu misija. E-pasts: info.alexandrecarlos@gmail.com Pretendentam jāaizpilda pieteikuma veidlapa pēc aizdevuma saņemšanas
KLIENTU PIETEIKUMA VEIDLAPA
PREFIX {MR, MRS., MS., DR., Utt}
Jūsu vārds un uzvārds:
Tavs e-pasts :
Jūsu tālruņa numurs:
Jūsu adrese:
Tava pilsēta :
Valsts / province:
Valsts:
Dzimums:
Dzimšanas datums:
Vai ir konts? :
Jūs esat pieteikusi iepriekš? :
Nepieciešamais kredīta apjoms:
Aizdevuma ilgums:
Aizdevuma mērķis:
Sūtiet man skenētu jūsu ID:
Kreditora vārds: Dr. Alexandre Carlos.
Aizdevējs E-pasts: info.alexandrecarlos@gmail.com
Sveicieni
Dr Alexandre Carlos.
|
| LOAN OFFER |
2017-07-04 00:03:31 |
|
Sveiki, vai meklējat ļoti īstu aizdevumu? Ar ērtu procentu likmi? Pārstrādā 24 stundu laikā. Vai jūsu bankas un citas finanšu iestādes esat pastāvīgi noraidījis? Trasta fondi piedāvā aizdevumus no 1,000.00 līdz 50,000,000,00 ar 2% procentu likmi. Sazinieties ar mums šodien pa e-pastu: trustfunds804@outlook.com
|
| SERGEY YAKUBOVA |
2017-07-03 23:08:18 |
|
PIEEJAMIE LĪGUMA PIEDĀVĀJUMI BEZ IEPRIEKŠĒJĀS MAKSAS
Sveiki,
Kādas ir jūsu finansiālās vajadzības?
Mēs izsniedzam aizdevumus no vismaz $ 2000 līdz maksimāli $ 100,000,000.00 ar ērtu ilgumu, kas svārstās no 1 līdz 30 gadiem ar ļoti samazinātu procentu likmi 3%.
Vai jums ir nepieciešams biznesa aizdevums?
Vai jums ir nepieciešams individuāls aizdevums?
Vai jūs vēlaties iegādāties automašīnu?
Vai vēlaties refinansēt?
Vai jums ir nepieciešams hipotekārais kredīts?
Vai jums ir nepieciešams milzīgs kapitāls, lai sāktu savu biznesa priekšlikumu vai paplašināšanu? Vai esat zaudējuši cerību, un jūs domājat, ka nav izejas, un jūsu finanšu slogs joprojām pastāv?
Lūdzu, nevilcinieties sazināties ar mums, lai varētu veikt biznesa sadarbību
Sazinieties ar mums pa e-pastu: constantloanfirm1@gmail.com
|
| ANNA |
2017-07-03 19:58:26 |
|
Sveicināti
Tas ir ļoti svarīgs un nopietns vēstījums, kas spēj apmierināt indivīdu,
visi nomākts cilvēki vai nav, izmisuma vai nav, banku un aizliegtās
citi, kas ir nepieciešams aizdevumu steidzami, lai atdzīvinātu
atjaunot savu dzīvi, savu nākotni, viņa nākotni.
Hey !!! arī tagad, iet uz priekšu, jo jums ir viss jums ir nepieciešams, lai
atdzīvinātu savu darbību, jūsu projekti neatkarīgi no tā, ko jūs esat; jūsu
atmaksas termiņš ir apsveicami.
Lai iegūtu vairāk informācijas ...
E-pasts: annabella1921@outlook.fr
Sazinieties ar mums, lai saņemtu sīkāku informāciju par jūsu pieprasījumu
|
| ANNA |
2017-07-03 19:57:48 |
|
Sveicināti
Tas ir ļoti svarīgs un nopietns vēstījums, kas spēj apmierināt indivīdu,
visi nomākts cilvēki vai nav, izmisuma vai nav, banku un aizliegtās
citi, kas ir nepieciešams aizdevumu steidzami, lai atdzīvinātu
atjaunot savu dzīvi, savu nākotni, viņa nākotni.
Hey !!! arī tagad, iet uz priekšu, jo jums ir viss jums ir nepieciešams, lai
atdzīvinātu savu darbību, jūsu projekti neatkarīgi no tā, ko jūs esat; jūsu
atmaksas termiņš ir apsveicami.
Lai iegūtu vairāk informācijas ...
E-pasts: annabella1921@outlook.fr
Sazinieties ar mums, lai saņemtu sīkāku informāciju par jūsu pieprasījumu
|
| ANNA JACOBS |
2017-07-03 08:18:54 |
|
Laba diena,
Mans vārds ir Anna Jacobs, esmu no Latvijas. Es gribu liecināt par labu aizdevuma aizdevēju, kurš man parādīja gaismu pēc tam, kad to bija izkrāpuši divi dažādi starptautiskie aizdevēji internetā, viņi visi apsola man piešķirt aizdevumu pēc tam, kad esmu samaksājis daudz naudas, kas neko nedarīja un nesniedza pozitīvu rezultātu. Es pazaudēju savu grūti nopelnīt naudu, un tā kopumā bija (€4500) eiro. Kādu dienu es pārlīkoja internetā, kas izskatījās sajauktā un neapmierinātā, tad man nāca klajā liecība no vīrieša, kurš arī bija scammed un galu galā saista ar legit un uzticamu aizdevumu sabiedrību ar nosaukumu Gina Morgan Loan Company (ginamorganloancompany@gmail.com), kur Viņš beidzot saņēma savu aizdevumu, tāpēc es nolēmu sazināties ar to pašu aizdevuma uzņēmumu un pēc tam viņiem stāstīja savu stāstu par to, kā mani scamd divi dažādi aizdevēji, kas neko nedarīja, bet, protams, man vairāk sāpju. Es paskaidroju uzņēmumam pa e-pastu. Viņi man teica, ka man vairs nerunāt, jo es saņemšu savu aizdevumu savā uzņēmumā, un es arī esmu izdarījusi pareizo izvēli, sazinoties ar viņiem. Es aizpildīju aizdevuma pieteikuma veidlapu un turpināju visu, kas tika pieprasīts no manis, un man tika dota aizņēmuma summa (€120 000 EUR) in euro par šo lielisko uzņēmumu. Šeit es šodien priecājos ar savu ģimeni, jo Gina Morgan aizdevuma sabiedrība ir devusi man aizdevumu, tāpēc es pats sevi apliecināju, ka es turpināšu liecināt internetā par to, kā es saņēmu savu aizdevumu. Es uzskatu, ka citi cilvēki arī liecina par šo pašu godīgo aizdevēju. Vai jums steidzami ir nepieciešams aizdevums? Laipni un ātri sazinieties ar uzņēmumu pa e-pastu: ginamorganloancompany@gmail.com
|
| BīSKAPS ELIJS |
2017-06-30 01:42:02 |
|
Vai tev vajadzīgs aizdevums? Sveiki, mans vārds ir bīskaps Elija. Es esmu privāts aizdevējs, kas piešķir aizdevumu privātpersonām un korporatīvajām personām. Vai tik daudz banku esat noraidījis? Vai jums ir nepieciešams finansējums, lai izveidotu savu biznesu? Vai jums ir nepieciešams finansējums jūsu biznesa paplašināšanai? Vai jums ir nepieciešams individuāls kredīts? Mans aizdevums svārstās. No personas uz uzņēmējdarbības aizdevumu. Mana procentu likme ir ļoti pieņemama, un mūsu aizdevumu process ir ļoti ātrs. Es esmu ļoti gatavs padarīt visas jūsu finanšu problēmas par pagātnes lietu. Ja jūs patiešām esat gatavi atrisināt finansiālās problēmas, tad neatliekot meklēšanu un pieteikties aizdevumam šodien.
E-pasts: bishopelijahloanfirm002@hotmail.com
Whatsapp numurs: +19513957929
Es ceru uz darījumu ar jums.
Bīskaps Elijs
Izpilddirektors.
|
| AFFORDABLE LOAN |
2017-06-29 22:41:59 |
|
Affordable Loan Offer ( PergoCF@cheerful.com )
Do You Need A Business Loan,Or A Personal Loan,At 1.0% If Yes? Name,Amount,Country,Loan Durations,Phone Mobile, Interested Applicants Should Contact Us Via Email: PergoCF@cheerful.com ,( PergoCF@qualityservice.com ), PergoCF@gmail.com
Affordable Loan Offer ( PergoCF@cheerful.com )
Kindly write us back with the loan information;
- Complete Name:
- Loan amount needed:
- Loan Duration:
- Purpose of loan:
- City / Country:
- Telephone:
- Name of the Site:
Interested Applicants Should Contact Us Via Email: PergoCF@cheerful.com ,( PergoCF@qualityservice.com ), PergoCF@gmail.com
Yours Sincerely,
Mrs. Ceren Kelly
Interested Applicants Should Contact Us Via Email: PergoCF@cheerful.com ,( PergoCF@qualityservice.com ), PergoCF@gmail.com
We look forward to hear from you ASAP.
|
| MR WILLIAM SMITH |
2017-06-26 21:36:53 |
|
Vai jums kaut kāda iemesla dēļ ir nepieciešams aizdevums? Sazinieties ar mums tagad
Affordable aizdevuma piedāvājums ar 2% procentu likmi ar minimālo 1000 $ un maksimālo
No $ 50,000,000.00, un, ja jūs interesē, lūdzu, nevilcinieties
Sazinieties ar mums:
Orlandoloanfirm@gmail.com
Vai
Orlandoloanfirm@outlook.com
Aizpildiet un nosūtiet mums šādu informāciju, lai mēs varētu turpināt kreditēt biznesu.
Tavs vārds:
Adrese:
Valsts:
Dzimums:
Vecāki:
Kredīta summa:
Ilgums:
Mēneša ienākumi:
Telefona numurs:
Aizdevuma mērķis:
Orlandoloanfirm@gmail.com
Vai
Orlandoloanfirm@outlook.com
Paldies, labākie vēlējumi, un mēs gaidām jūsu steidzamo atbildi.
Mr William Smith
|
| THOMAS |
2017-06-23 19:33:03 |
|
Labdien, vai meklējat ļoti īstu aizdevumu? Pie pieņemamām procentu likmēm? Pārstrādā 24 stundu laikā. Vai jūs pastāvīgi esat noraidījis jūsu bankas un citas finanšu iestādes? Jonda finanses piedāvā aizdevumu sākot no 1,000.00 Min. Līdz 50 000 000 maks. Ar 2% procentu likmi. Sazinieties ar mums šodien pa e-pastu: thomasloanservice1@gmail.com
|
| JASMIN |
2017-06-21 10:50:05 |
|
Labdien, vai jūs meklējat uzņēmējdarbības aizdevumu, personīgos aizdevumus, hipotēku kredītus, auto aizdevumus, studentu aizdevumus, parāda konsolidācijas aizdevumus, nenodrošinātos aizdevumus, riska kapitālu utt ... Vai jūs esat noraidījis aizdevumu no bankas vai finanšu iestādes par vienu Vai vairāk iemeslu? Šeit jūs saņemsit risinājumu šai problēmai, ja vien jūs uzskatīsit par atbilstošu aizdevumam un uzticību cienīgi. Mēs piedāvājam aizdevumus no vismaz 5000 USD līdz maksimālajai summai 10 000 000,00 USD, mēs piedāvājam aizdevumus uzņēmumiem un privātpersonām ar zemu un pieņemamu cenu 2%. Tātad, ja jūs interesē ātrs un vienkāršs aizdevums. Sazinieties ar mums šodien: EMAIL jasminnoorloancompany@gmail.com
|
| 27993 |
2017-06-21 08:40:35 |
|
Vai jums ir nepieciešams steidzams finanšu aizdevums?
* Ļoti ātra un tūlītēja pārskaitīšana uz jūsu bankas kontu
* Atmaksa sākas astoņus mēnešus pēc naudas saņemšanas
bankas konts
* Zema procentu likme 2%
* Ilgtermiņa atmaksa (1-30 gadi) Garums
* Elastīgi aizdevuma noteikumi un ikmēneša maksājums
* Cik ilgs laiks ir nepieciešams, lai finansētu? Pēc aizdevuma pieteikuma iesniegšanas
Jūs varat sagaidīt sākotnējo atbildi mazāk nekā 24 stundas
Finansējums 72-96 stundas pēc nepieciešamās informācijas saņemšanas
no tevis.
Sazinieties ar šo likumīgo un licencēto uzņēmumu, kas ir pilnvarots
Sniegt finansiālu palīdzību visiem
Plašāku informāciju un kredīta pieteikuma veidlapu
E-pasts: cashfirmarena@gmail.com
Ar laba vēlējumiem
Sir Joel Williams
NAUDAS FIRMA AIZDEVUMU KOMPĀNIJA
Izpilddirektors
Tālr .: +601111850392
E-pasts: cashfirmarena@gmail.com
Webisite: cashfirmarena.wordpress.com
|
| PERGOCF@CHEERFUL.COM |
2017-06-21 01:38:46 |
|
Affordable Loan Offer ( PergoCF@cheerful.com )
Do You Need A Business Loan? ( PergoCF@gmail.com )
Interested applicants should Contact us via email: ( PergoCF@qualityservice.com )
Do You Need A Business Loan,Or A Personal Loan,At 1.0% If Yes? Name,Amount,Country,Loan Durations,Phone Mobile, Interested Applicants Should Contact Us Via Email: PergoCF@cheerful.com ,( PergoCF@qualityservice.com ), PergoCF@gmail.com
Kindly write us back with the loan information;
- Complete Name:
- Loan amount needed...$, €, £:
- Loan Duration:
- Purpose of loan:
- City / Country:
- Telephone:
- Name of the Site:
Interested Applicants Should Contact Us Via Email: PergoCF@cheerful.com ,( PergoCF@qualityservice.com ), PergoCF@gmail.com
Yours Sincerely,
Mrs. Ceren Kelly
Interested Applicants Should Contact Us Via Email: PergoCF@cheerful.com ,( PergoCF@qualityservice.com ), PergoCF@gmail.com
We look forward to hear from you ASAP.
Are you a business man or woman? Are you in any financial mess or Do you need funds to start up your own business? Do you need a loan to start a nice Small Scale and medium business? Do you have a low credit score and you are finding it hard to obtain capital loan from local banks and other financial institutes?. Interested applicants should Contact us via email: PergoCF@cheerful.com ,( PergoCF@qualityservice.com ), PergoCF@gmail.com
Our loans are well insured for maximum security is our priority, Our leading goal is to help you get the services you deserve, Our program is the quickest way to get what you need in a snap. Reduce your payments to ease the strain on your monthly expenses. Gain flexibility with which you can use for any purpose from vacations, to education, to unique purchases. Interested applicants should Contact us via email: PergoCF@gmail.com ,( PergoCF@qualityservice.com ), PergoCF@cheerful.com
We offer a wide range of financial services which includes: Business Planning, Commercial and Development Finance, Properties and Mortgages, Debt Consolidation Loans, Business Loans, Private loans, Home Refinancing Loans with low interest rate at 1.00% per annul for individuals, companies and corporate bodies. Get the best for your family and own your dream home as well with our General Loan scheme. Please, contact us for more information: PergoCF@qualityservice.com ,( PergoCF@gmail.com ), PergoCF@cheerful.com
WE OFFER ALL KIND OF LOANS - APPLY FOR AFFORDABLE LOANS.
Please, contact us for more information: PergoCF@qualityservice.com ,( PergoCF@gmail.com ), PergoCF@cheerful.com
Kindly write us back with the loan information;
- Complete Name:
- Loan amount needed:
- Loan Duration:
- Purpose of loan:
- City / Country:
- Telephone:
- How Did You Hear About Us:
If you are interested to get a loan then kindly write us with the loan requirement. Please, contact us for more information: PergoCF@qualityservice.com ,( PergoCF@gmail.com ), PergoCF@cheerful.com
Yours Sincerely,
Mrs. Ceren Kelly
PergoCF@gmail.com
PergoCF@qualityservice.com
PergoCF@cheerful.com
We look forward to hear from you ASAP
Interested applicants should Contact us via email: PergoCF@cheerful.com
Affordable Loan Offer ( PergoCF@cheerful.com )
Do You Need A Business Loan? ( PergoCF@gmail.com )
Interested applicants should Contact us via email: ( PergoCF@qualityservice.com )
Do You Need A Business Loan,Or A Personal Loan,At 1.0% If Yes? Name,Amount,Country,Loan Durations,Phone Mobile, Interested Applicants Should Contact Us Via Email: PergoCF@cheerful.com ,( PergoCF@qualityservice.com ), PergoCF@gmail.com
Kindly write us back with the loan information;
- Complete Name:
- Loan amount needed...$, €, £:
- Loan Duration:
- Purpose of loan:
- City / Country:
- Telephone:
- Name of the Site:
Interested Applicants Should Contact Us Via Email: PergoCF@cheerful.com ,( PergoCF@qualityservice.com ), PergoCF@gmail.com
Yours Sincerely,
Mrs. Ceren Kelly
Interested Applicants Should Contact Us Via Email: PergoCF@cheerful.com ,( PergoCF@qualityservice.com ), PergoCF@gmail.com
We look forward to hear from you ASAP.
WE OFFER ALL KIND OF LOANS - APPLY FOR AFFORDABLE LOANS.
We are Financial Institution, who is committed to Treat Customers Fairly, We are Specializes on Affordable Loans, Business Loan, Personal Loan, Every customer has the Guarantee of obtaining a Loan from Us. Interested Applicants Should Contact Us Via Email: PergoCF@cheerful.com ,( PergoCF@qualityservice.com ), PergoCF@gmail.com
We look forward to hear from you ASAP.
Our mission is to help customers get out of difficult emergency financial solution. Interested Applicants Should Contact Us Via Email: PergoCF@cheerful.com ,( PergoCF@qualityservice.com ), PergoCF@gmail.com
We look forward to hear from you ASAP.
|
| CATHERINE JONES |
2017-06-20 17:50:05 |
|
Labdien, tas ir informēt sabiedrību, ka CATHERINE JONES kundze, laba reputācija privātā aizdevuma aizdevumu, ir radījusi ekonomisku iespēju visiem tiem, kuriem vajadzīga jebkāda finansiāla palīdzība. Jums ir nepieciešams steidzams aizdevums, lai dzēstu savus parādus, vai jums ir nepieciešams mājokļa aizdevums, lai uzlabotu savu biznesu? Vai jūs esat noraidījis bankas un citas finanšu iestādes? Neskatoties tālāk, jo mēs esam šeit par visām jūsu finansiālajām problēmām. Skaidri un saprotami, ar noteikumiem un nosacījumiem mēs nodrošinājām 2% aizdevumu procentu likmi no privātpersonām, uzņēmumiem un sabiedrībām.
Nepieciešama kredīta pārbaude, 100% garantēta. Nosūtiet mums e-pastu: (CATHERINEJONEZLOANFIRM@GMAIL.COM)
|
| HARRY CARLOS LOANS |
2017-06-16 01:32:45 |
|
Sveiki, es esmu Dr Harijs Carlos, privāts aizdevumu aizdevējs es dodu no aizdevuma thosethat ir nepieciešama aizdevuma, un tiem bija vēlaties sākt jaunu business.I dot individuālie aizņēmumi, aizdevumi uzņēmējdarbībai, studentu aizdevumi, aizdevumi un Company visu kredītu veidiem, kas interesē un likmes 2% saskarē šodien: harryloanfirm56@gmail.com
LEGIMATE aizdevumu aizdevējs
|
| MRS EVELYN |
2017-06-08 03:39:55 |
|
Laba diena,
Vai jums ir nepieciešams steidzami aizdevumu, lai atrisinātu savas finansiālās vajadzības, sniedz aizdevumu
sākot no $ 3,000.00 līdz $ 1000,000.00 Max, mēs esam uzticami, efektīvi,
ātra un dinamiska, ar 100% garantēta aizdevuma arī tas dod (eiro, mārciņas
un dolāru.) procentu likme, kas piemērojama visiem kredītiem ir (3%), ja jūs
ir ieinteresēti saņemt atpakaļ pie mums.
līdz (standardcharteredloantransfer@gmail.com): Pakalpojumi ietver:
* Mājas uzlabošana
* Aizdevumi Izgudrotājs
* Parāda Consolidation Loan
* Business Aizdevumi
* Personas aizdevumiem.
sazinieties ar mums šodien, un mēs esam priecīgi veikt darījumus ar mums
e-pasts: standardcharteredloantransfer@gmail.com.
|
| MRS EVELYN |
2017-06-08 03:38:53 |
|
Laba diena,
Vai jums ir nepieciešams steidzami aizdevumu, lai atrisinātu savas finansiālās vajadzības, sniedz aizdevumu
sākot no $ 3,000.00 līdz $ 1000,000.00 Max, mēs esam uzticami, efektīvi,
ātra un dinamiska, ar 100% garantēta aizdevuma arī tas dod (eiro, mārciņas
un dolāru.) procentu likme, kas piemērojama visiem kredītiem ir (3%), ja jūs
ir ieinteresēti saņemt atpakaļ pie mums.
līdz (standardcharteredloantransfer@gmail.com): Pakalpojumi ietver:
* Mājas uzlabošana
* Aizdevumi Izgudrotājs
* Parāda Consolidation Loan
* Business Aizdevumi
* Personas aizdevumiem.
sazinieties ar mums šodien, un mēs esam priecīgi veikt darījumus ar mums
e-pasts: standardcharteredloantransfer@gmail.com
|
| JOHN WHITE |
2017-06-06 19:40:48 |
|
Finance Limited Aizdevuma maziem un lieliem aizdevumu summa ir 2%.
Sveiki pieteikties aizdevumam, lai finansētu savu uzņēmējdarbību, mēs piedāvājam visu veidu aizdevumu, privātie aizdevumi,
komerciālo un personas aizdevumu ar ļoti zemām procentu likmēm, kā zema kā 2% viena gada līdz 30 gadiem atmaksas periodā jebkurā vietā pasaulē. Mēs piedāvājam aizdevumus, sākot no 1000 uz jebkuru summu, jūs pieprasījums, sazinieties ar mums šodien, financelimited011 @ gmail..com
financelimited011@gmail.com.
John White
|
| SPAMERIS |
2017-06-03 03:10:50 |
|
Piepilda BORROWER`S INFORMĀCIJA PAR PERSONAS AIZDEVUMS ŠODIEN
Zemu procentu likmi 3%, Mēs dodam out individuālie aizņēmumi, uzņēmējdarbības paplašināšanai Kredīti, Business Start-up Kredīti, Izglītība Kredīti, parādu konsolidācijai aizdevumi, riska kapitāls, Hard Money Aizdevumi, pat tiem, kas ar Bad Credit, ETC, Mēs piedāvājam aizdevumu sākot no minimālā summa trīs tūkstoši dolāru ($ 3,000.00USD), un ar maksimālo rang vienu miljonu dolāru ($ 1,000,000.00USD) .. Tātad, es vēlos jums norādīt, cik daudz jūs plānojat saņemt kā kredīts un jūsu Piemērots ilgumu par Aizdevuma lai mēs varētu nosūtīt jums aizdevumu nosacījumiem Re-maksājumu grafiks šajā sakarā ... lai iegūtu vairāk informācijas, pls sazinieties: Unlimitedloaninvestment@hotmail.com
Piepilda BORROWER`S INFORMĀCIJA
Tavs vārds:______________________
SEX: ____________________
Jūsu adrese:____________________
Tava valsts:____________________
Jūsu nodarbošanās:__________________
Aizdevuma summu, kas nepieciešama: ______________
Aizdevuma ilgums: ____________________
Mēneša ienākumi:__________________
Mobilā telefona numurs: ________________
Have a nice day un Dievs tevi svētī
|
| JOSEZ |
2017-06-02 05:16:15 |
|
ātrs un uzticams aizdevums piedāvāt ikvienam.
Sveiki Meklējat ārkārtas aizdevumu? nu: - Lai palielinātu savu uzņēmējdarbību? - Lai atjaunot interjeru Jūsu dzīvoklī; māja; ēka? - Vieta? - Auto pircēji? - Kredīts kāzām? - risināšana parādu? - Par projektu? Vai citu iemeslu dēļ, utt ... man jums ar aizdevumu no 5000 līdz 9.000.000 eiro ar ļoti vienkāršiem vārdiem likmi 2%. Es arī veikt ieguldījumus un kredītus starp īpaši visu veidu. Es piedāvāju īstermiņa, vidēja termiņa un ilgtermiņa aizdevumiem. Lai iegūtu vairāk informācijas, sazinieties ar mani uz manu e-pasta adresi: josezbaeutier@gmail.com
|
| BAEUTIER |
2017-06-02 05:15:20 |
|
ātrs un uzticams aizdevums piedāvāt ikvienam.
Sveiki Meklējat ārkārtas aizdevumu? nu: - Lai palielinātu savu uzņēmējdarbību? - Lai atjaunot interjeru Jūsu dzīvoklī; māja; ēka? - Vieta? - Auto pircēji? - Kredīts kāzām? - risināšana parādu? - Par projektu? Vai citu iemeslu dēļ, utt ... man jums ar aizdevumu no 5000 līdz 9.000.000 eiro ar ļoti vienkāršiem vārdiem likmi 2%. Es arī veikt ieguldījumus un kredītus starp īpaši visu veidu. Es piedāvāju īstermiņa, vidēja termiņa un ilgtermiņa aizdevumiem. Lai iegūtu vairāk informācijas, sazinieties ar mani uz manu e-pasta adresi: josezbaeutier@gmail.com
|
| CHRIST |
2017-06-02 05:14:09 |
|
ātrs aizdevums piedāvā no privātpersonām, maziem un vidējiem uzņēmumiem, kam nepieciešama
Sveicināti
Jums nepieciešams naudas aizdevumus starp indivīdiem, lai tiktu galā
ar finansiālām grūtībām, lai beidzot izkļūt no strupceļa
izraisa bankas, ko atgrūšanas pieteikuma datnes
Kredīti?
Es esmu atsevišķu finanšu eksperti, kas var padarīt jūs
aizdevuma summu, jums ir nepieciešams, un ar nosacījumiem, kas jūs
padara dzīvi vieglāku. Šeit ir jomas, kur es varētu
help:
Finanšu *
* Home Loan
* Investīciju kredīts
* Auto Loan
* Parāda Consolidation
* Line of Credit
* Otrais Hipotēku
* Iegāde kredīta
* Personal Loan
Jums ir iestrēdzis, aizliegts bankai un jums nav labu
bankas vai jūs labāk ir projekts, un nepieciešams finansējums,
slikta kredītu vai nepieciešama nauda, lai samaksātu rēķinus,
līdzekļus ieguldīt uz uzņēmējdarbību.
Tātad, ja jums ir nepieciešams naudas aizdevums, lūdzu mani
kontakts pa e-pastu: mariachrist2016@gmail.com
|
| JOSEZ |
2017-06-02 05:13:26 |
|
ātrs un uzticams aizdevums piedāvāt ikvienam.
Sveiki Meklējat ārkārtas aizdevumu? nu: - Lai palielinātu savu uzņēmējdarbību? - Lai atjaunot interjeru Jūsu dzīvoklī; māja; ēka? - Vieta? - Auto pircēji? - Kredīts kāzām? - risināšana parādu? - Par projektu? Vai citu iemeslu dēļ, utt ... man jums ar aizdevumu no 5000 līdz 9.000.000 eiro ar ļoti vienkāršiem vārdiem likmi 2%. Es arī veikt ieguldījumus un kredītus starp īpaši visu veidu. Es piedāvāju īstermiņa, vidēja termiņa un ilgtermiņa aizdevumiem. Lai iegūtu vairāk informācijas, sazinieties ar mani uz manu e-pasta adresi: josezbaeutier@gmail.com
|
| JOSEZ |
2017-06-02 05:12:49 |
|
ātrs un uzticams aizdevums piedāvāt ikvienam.
Sveiki Meklējat ārkārtas aizdevumu? nu: - Lai palielinātu savu uzņēmējdarbību? - Lai atjaunot interjeru Jūsu dzīvoklī; māja; ēka? - Vieta? - Auto pircēji? - Kredīts kāzām? - risināšana parādu? - Par projektu? Vai citu iemeslu dēļ, utt ... man jums ar aizdevumu no 5000 līdz 9.000.000 eiro ar ļoti vienkāršiem vārdiem likmi 2%. Es arī veikt ieguldījumus un kredītus starp īpaši visu veidu. Es piedāvāju īstermiņa, vidēja termiņa un ilgtermiņa aizdevumiem. Lai iegūtu vairāk informācijas, sazinieties ar mani uz manu e-pasta adresi: josezbaeutier@gmail.com
|
| MARIACHRIST |
2017-06-02 05:11:06 |
|
Saņēma liecības aizdevumu 05 stundu laikā
Es esmu šeit, lai dzīvo liecību suite ir pakalpojums, kas izgatavots manu Lady maria Kristu manā pētniecības aizdevumu starp īpaši laikā. Man nebija nekādu cerību, jo es vairs neticēja, bet mans pierādīts pretējais.
Es saņēmu savu aizdevumu no 200000 eiro ar 2% procentu bez protokolu ar palīdzību Ms maria Kristus, kurš man deva šo aizdevumu un divas no maniem draugiem arī. Ja Jums ir nepieciešama steidzama naudas aizdevums nosūtīt e-pastu uz adresi šādi: mariachrist2016@gmail.com
|
| MARIACHRIST |
2017-06-02 05:10:12 |
|
Saņēma liecības aizdevumu 05 stundu laikā
Es esmu šeit, lai dzīvo liecību suite ir pakalpojums, kas izgatavots manu Lady maria Kristu manā pētniecības aizdevumu starp īpaši laikā. Man nebija nekādu cerību, jo es vairs neticēja, bet mans pierādīts pretējais.
Es saņēmu savu aizdevumu no 200000 eiro ar 2% procentu bez protokolu ar palīdzību Ms maria Kristus, kurš man deva šo aizdevumu un divas no maniem draugiem arī. Ja Jums ir nepieciešama steidzama naudas aizdevums nosūtīt e-pastu uz adresi šādi: mariachrist2016@gmail.com
|
| CHRIST |
2017-06-02 05:08:58 |
|
Saņēma liecības aizdevumu 05 stundu laikā
Es esmu šeit, lai dzīvo liecību suite ir pakalpojums, kas izgatavots manu Lady maria Kristu manā pētniecības aizdevumu starp īpaši laikā. Man nebija nekādu cerību, jo es vairs neticēja, bet mans pierādīts pretējais.
Es saņēmu savu aizdevumu no 2000000 eiro ar 2% procentu bez protokolu ar palīdzību Ms maria Kristus, kurš man deva šo aizdevumu un divas no maniem draugiem arī. Ja Jums ir nepieciešama steidzama naudas aizdevums nosūtīt e-pastu uz adresi šādi: mariachrist2016@gmail.com
|
| MARIACHRIST2016@GMAI |
2017-06-02 05:08:11 |
|
Saņēma liecības aizdevumu 05 stundu laikā
Es esmu šeit, lai dzīvo liecību suite ir pakalpojums, kas izgatavots manu Lady maria Kristu manā pētniecības aizdevumu starp īpaši laikā. Man nebija nekādu cerību, jo es vairs neticēja, bet mans pierādīts pretējais.
Es saņēmu savu aizdevumu no 2000000 eiro ar 2% procentu bez protokolu ar palīdzību Ms maria Kristus, kurš man deva šo aizdevumu un divas no maniem draugiem arī. Ja Jums ir nepieciešama steidzama naudas aizdevums nosūtīt e-pastu uz adresi šādi: mariachrist2016@gmail.com
|
| MARIACHRIST2016@GMAI |
2017-06-02 05:07:05 |
|
ātrs aizdevums piedāvā no privātpersonām, maziem un vidējiem uzņēmumiem, kam nepieciešama
Sveicināti
Jums nepieciešams naudas aizdevumus starp indivīdiem, lai tiktu galā
ar finansiālām grūtībām, lai beidzot izkļūt no strupceļa
izraisa bankas, ko atgrūšanas pieteikuma datnes
Kredīti?
Es esmu atsevišķu finanšu eksperti, kas var padarīt jūs
aizdevuma summu, jums ir nepieciešams, un ar nosacījumiem, kas jūs
padara dzīvi vieglāku. Šeit ir jomas, kur es varētu
help:
Finanšu *
* Home Loan
* Investīciju kredīts
* Auto Loan
* Parāda Consolidation
* Line of Credit
* Otrais Hipotēku
* Iegāde kredīta
* Personal Loan
Jums ir iestrēdzis, aizliegts bankai un jums nav labu
bankas vai jūs labāk ir projekts, un nepieciešams finansējums,
slikta kredītu vai nepieciešama nauda, lai samaksātu rēķinus,
līdzekļus ieguldīt uz uzņēmējdarbību.
Tātad, ja jums ir nepieciešams naudas aizdevums, lūdzu mani
kontakts pa e-pastu: mariachrist2016@gmail.com
|
| BDSFN.COM@GMAIL.COM |
2017-05-20 00:27:01 |
|
We have provided over $1 Billion in business loans to over 15,000 business owners just like you. We use our own designated risk technology to provide you with the right business loan so you can grow your business. Our services are fast and reliable, loans are approved within 72 hours of successful application. We offer loans from a minimum range of $5000 to a maximum of $20 million.
- Complete Name:
- Loan amount needed:
- Loan Duration:
- Purpose of loan:
- City / Country:
- Telephone:
- How Did You Hear About Us:
Have You Applied Before?...
With Best Regards.
Mrs. Magaret Becklas
Emaill: anatiliatextileltd@gmail.com
Emaill: bdsfn.com@gmail.com
|
| JOHN WHITE |
2017-05-16 15:53:57 |
|
finansētu aizdevumu ierobežots maziem un lieliem aizdevumu summa ir 2%.
Sveiki pieteikties aizdevumam, lai finansētu savu uzņēmējdarbību, mēs piedāvājam visu veidu aizdevumu, privātie aizdevumi,
komerciālo un personas aizdevumu ar ļoti zemām procentu likmēm, kā zema kā 2% viena gada līdz 30 gadiem atmaksas periodā jebkurā vietā pasaulē. Mēs piedāvājam aizdevumus, sākot no 1000 uz jebkuru summu, jūs pieprasījums, sazinieties ar mums šodien, financelimited011 @ gmail..com
financelimited011@gmail.com
|
| SIR JOEL WILLIAMS |
2017-05-15 17:19:10 |
|
Vai jums ir nepieciešams steidzami finanšu kredīta aizdevumu?
* Ļoti ātrs un tūlītēja pārsūtīšana uz savu bankas kontu
* Atmaksāšana sākas astoņus mēnešus pēc tam, kad jūs saņemsiet naudu
bankas konts
* Zems procentu likmi 2%
* Ilgtermiņa atmaksa (1-30 gadi) Garums
* Elastīga kredīta noteikumi un ikmēneša maksājumu
*. Cik ilgs laiks nepieciešams, lai finansētu? Pēc iesniegšanas kredīta pieteikumu
Jūs varat gaidīt iepriekšēja atbildi mazāk nekā 24 stundas
finansējums 72-96 stundas pēc nepieciešamo informāciju saņem
no tevis.
Sazinieties ar likumīgu un licencēts uzņēmums, atļauts
sniegt finansiālu palīdzību visiem
Lai iegūtu vairāk informācijas un aizdevuma pieteikuma veidlapu
e-pasts: cashfirmarena@gmail.com
Ar laba vēlējumiem
Sir Joel Williams
CASH FIRM AIZDEVUMS COMPANY
CEO
Tel: +601111850392
E-pasts: cashfirmarena@gmail.com
Webisite: cashfirmarena.wordpress.com
|
| ELIZABETH MARY |
2017-05-10 13:23:32 |
|
Sveiki draugi,
Mans vārds ir Elizabeth Mary Vai esat dzirdējuši par jau ir ieprogrammēts, un aizklāti ATM karti? To lieto, lai atsaukt maksimāli 5000 $ dienā ne ilgāk kā 2 mēnešus, lai gan tas ir nelikumīgs, taču tik viegli un interesanti, un tas tiek dots, ko Linda tikai, lai palīdzētu nabadzīgajiem un trūkumcietējiem. Ak mans Dievs, es esmu tik priecīgs par to, jo es saņēmu raktuves pagājušajā nedēļā, un tagad man ir izmantoti, lai iegūtu $ 25,000 jau neviens netiktu nozvejotas, izmantojot karti. E-pasts viņai pa: lindakimberly14@gmail.com vai WhatsApp uz +2349064466485. Viņa var dot jums to, kur jūs esat uz zemes laikā 48hours.
|
| ANDREW LINCOLN |
2017-05-08 05:06:34 |
|
Vai jums ir nepieciešams ērts aizdevumu jūsu apmierinātību? Mēs piedāvājam pieejamu
aizdevumu 2% procentu likmi pieejami vietējo un starptautisko aizņēmēju.
Mums ir sertificēti, uzticami, droši, efektīvi, ātri un dinamiski
un co - darboties. mēs dodam no ilgtermiņa aizdevumu no diviem līdz piecdesmit gadiem
Maksimālā. sazinieties ar mums: andrewlincoln010@gmail.com
|
| GARCIA |
2017-05-07 11:19:47 |
|
Sveiki Vai jums ir nepieciešams steidzami aizdevumu, lai samaksāt jūsu rēķinus vai, lai sāktu savu biznesu, ja jā, sazinieties ar mums pa garciavictorloaninvestment@gmail.com
|
| JAMIE FREEMAN |
2017-04-24 10:12:12 |
|
Ātrs un uzticams finansējums pašlaik pieejami tikai 2%. Meklējat uzticamu līdzekļu, lai saņemtu finansējumu? Vai jūs plānojat sākt savu sapņu biznesu, bet nav kapitāla vēl? Vai tu meklē, lai iegūtu mājas, bet nezinu, kā iegūt tik ļoti nepieciešamos līdzekļus? Tas beidzot ir zelta iespēja pie jūsu namdurvīm saņemt papildus bez problēmām un stresu, kā jums tiek garantēta baudīt mūsu uzticamus finanšu pakalpojumus, kas ir pieejami visi tikai 2%, Lūdzu rakstiet mums, lai ātri atbildi uz Freemanloans@hotmail.com un saņemt šodien apstiprināts.
|
| JUAN ARRIAGADA ALFRE |
2017-04-12 03:47:23 |
|
Lūdzu, sazinieties ar šo e-pastu: bishopelijahloanfirm002@hotmail.com ja jums ir nepieciešams steidzami aizdevumu, vai jūs sazināties ar viņu, izmantojot WhatsApp: +2349035555247 viņš vārds ir bīskaps Elija viņš man palīdzēt ar aizdevumu summu 10,000 euro, kad esmu vajadzīga aizdevumu.
Mans vārds ir juan arriagada alfredoes dzīvoju Spānija
|
| JUAN ARRIAGADA ALFRE |
2017-04-12 03:45:54 |
|
Lūdzu, sazinieties ar šo e-pastu: bishopelijahloanfirm002@hotmail.com ja jums ir nepieciešams steidzami aizdevumu, vai jūs sazināties ar viņu, izmantojot WhatsApp: +2349035555247 viņš vārds ir bīskaps Elija viņš man palīdzēt ar aizdevumu summu 10,000 euro, kad esmu vajadzīga aizdevumu.
Mans vārds ir juan arriagada alfredoes dzīvoju Spānija
|
| KAYODE VICTORIA |
2017-04-05 11:05:18 |
|
Sveiki visiem, esmu rakstīt šo liecība, jo esmu ļoti pateicīgs par to, ko jasmin noor Loan Company darīja par mani un manu ģimeni, kad es domāju, ka nebija nekādu cerību, viņš atnāca, un dara mana ģimene justies dzīvs atkal aizdot mums aizdevumu ar ļoti zemu procentu likmi 3%. Nu man ir bijis meklējot aizdevumu, lai norēķinātos savu parādu par pēdējiem trim mēnešiem viss satiku scammed un paņēma manu naudu, kamēr es beidzot satiku Dievs sūtīja aizdevējs. Es nekad domāja, ka joprojām ir īstas aizdevumu aizdevēji internetā, bet uz manu vislielāko pārsteigumu es saņēmu savu aizdevumu bez izšķērdēt daudz laika, tādēļ, ja jums ir, kas tur meklē aizdevumu jebkuru summu, es ieteiktu jums uz e-pastu tos, izmantojot: (jasminnoorloancompany@gmail.com), un bez interneta veida izkrāpšanu. paldies ... no Kalifornijas, ASV.
|
| JONNA |
2017-04-05 05:59:24 |
|
Vai jūs meklējat steidzami aizdevumu? Man ir labas ziņas par jums! Mēs piedāvājam aizdevumus, sākot no 5000 līdz 30 miljoniem pie 2% procentu likmi par katru Year.We piedāvāt aizdevumus komercdarbības attīstībai, personas aizdevumiem, auto aizdevumu, utt Mēs esam sertificēti, uzticami, droši, efektīvi, ātri un dinamiski, Ja ir interese, sazinieties ar mums e-pasts: jonnafinance@outlook.com
|
| PERGOCF@GMAIL.COM |
2017-04-03 20:11:03 |
|
Do You Need A Business Loan,Or A Personal Loan,At 1.0% If Yes? Name,Amount,Country,Loan Durations,Phone Mobile:Please, Interested applicants should Contact us via email: PergoCF@gmail.com , ( PergoCF@qualityservice.com ) , bayport@safrica.com
Do You Need A Personal Loan Or Business Loans? If Yes Email: Your Name:Amount needed:Duration:Country:Mobile:Contact Us Via Email: PergoCF@qualityservice.com
===========================================================================
Are you a business man or woman? Are you in any financial mess or Do you need funds to start up your own business? Do you need a loan to start a nice Small Scale and medium business? Do you have a low credit score and you are finding it hard to obtain capital loan from local banks and other financial institutes?. Interested applicants should Contact us via email: PergoCF@gmail.com
Interested applicants should Contact us via email: bayport@safrica.com
Our loans are well insured for maximum security is our priority, Our leading goal is to help you get the services you deserve, Our program is the quickest way to get what you need in a snap. Reduce your payments to ease the strain on your monthly expenses. Gain flexibility with which you can use for any purpose from vacations, to education, to unique purchases. Interested applicants should Contact us via email: PergoCF@gmail.com
We offer a wide range of financial services which includes: Business Planning, Commercial and Development Finance, Properties and Mortgages, Debt Consolidation Loans, Business Loans, Private loans, Home Refinancing Loans with low interest rate at 1.00% per annul for individuals, companies and corporate bodies. Get the best for your family and own your dream home as well with our General Loan scheme. Please, contact us for more information: PergoCF@qualityservice.com
Interested applicants should Contact us via email: bayport@safrica.com
WE OFFER ALL KIND OF LOANS - APPLY FOR AFFORDABLE LOANS.
Please, contact us for more information: PergoCF@qualityservice.com
Interested applicants should Contact us via email: bayport@safrica.com
Kindly write us back with the loan information;
- Complete Name:
- Loan amount needed:
- Loan Duration:
- Purpose of loan:
- City / Country:
- Telephone:
- How Did You Hear About Us:
If you are interested to get a loan then kindly write us with the loan requirement. Please, contact us for more information: PergoCF@qualityservice.com
Yours Sincerely,
Mrs. Ceren Kelly
PergoCF@gmail.com
PergoCF@qualityservice.com
We look forward to hear from you ASAP
Interested applicants should Contact us via email: PergoCF@qualityservice.com
Interested applicants should Contact us via email: bayport@safrica.com
|
| MR.WILLIAM SMITH |
2017-03-29 01:39:09 |
|
Vai jums ir nepieciešams kredīts, lai kāda iemesla dēļ? sazinieties ar mums tagad ar
pieejamu aizdevumu piedāvājums par 2% procentu likmi, ar vismaz $ 1000 un maksimāli
no 50,000,000,00 $, un, ja jūs interesē, lūdzu, nevilcinieties
sazinieties ar mums:
orlandoloanfirm@gmail.com
aizpildīt un nosūtīt mums šādu informāciju, lai mēs varētu turpināt aizdevuma darījumu.
Tavs vārds:
Adrese:
valsts:
sex:
vecums:
Aizdevuma summa:
ilgums:
Mēneša ienākumi:
Telefona numurs:
Mērķis aizdevumu:
orlandoloanfirm@gmail.com
Paldies, laba vēlējumi, un mēs sagaidām, ka jūsu tūlītēju atbildi.
Mr.William Smith
|
| GEORGE BUSH AIZDEVUM |
2017-03-26 21:28:53 |
|
Mēs piedāvājam pareizo risinājumu Jūsu finanšu vajadzībām. Mēs lauza ar citiem aizdevējiem, jo mēs uzskatām, klientu apkalpošanu, un mums bija, lai sasniegtu vēlamo rezultātu. Kopumā mēs piedāvājam mājokļu kredīti, auto aizdevumus, viesnīcu aizdevumus, komerciālus aizdevumus, būvniecības aizdevumi, biznesa aizdevumus, biznesa aizdevumus un aizdevumu slinks, uc E-pasts: georgbush1990@gmail.com
George Bush
|
| HARRY CARLOS LOANS |
2017-03-09 22:35:46 |
|
Sveiki, es esmu Dr Harijs Carlos, privāts aizdevumu aizdevējs i dodam no aizdevuma tiem, kas ir nepieciešama aizdevuma, un tiem, kas vēlas sākt jaunu business.I dot personas aizdevumiem, Business Kredīti, Student Kredīti, Company Aizdevumi un visi aizdevumu veidiem, kas interesējas likmi 2% saskares šodien: harryloanfirm56@gmail.com
LEGIMATE aizdevumu aizdevējs
|
| RICHARD |
2017-02-26 23:33:23 |
|
Vai jums ir nepieciešams kredīts? Mēs piedāvājam visu veidu aizdevumu veidu no minimālo summu 3,000euro lai maksimāli 500,000,000euro ja Jums ir interese sazinieties ar mums pa e-pastu: (richardcosmos5@gmail.com)
Aizdevuma piedāvājums.
|
| ANDERSON |
2017-02-26 23:32:15 |
|
Mēs piedāvājam dažādus aizdevumus privātpersonām (personas aizdevumu) un sadarboties struktūrām ar procentu likmi 2% gadā annul.This ir palīdzēt jums izpildīt savas finansiālās saistības, jo īpaši ar gada notiek pasaules finanšu krīzi. Jūs varat aizņemties no 1000 - 50000000 (mārciņas, eiro vai dolāru) par turpmāko izmeklēšanu, lūdzu, sazinieties ar mums pa e-pastu (georgeanderson.loanfirm255@gmail.com) Sveicieni.
Aizdevuma piedāvājums.
|
| SIR JOEL WILLIAMS |
2017-02-21 22:03:51 |
|
Vai jums ir nepieciešams steidzami finanšu kredīta aizdevumu?
* Ļoti ātrs un tūlītēja pārsūtīšana uz savu bankas kontu
* Atmaksa sākas astoņus mēnešus pēc tam, kad jūs saņemsiet naudu
bankas konts
* Zemu procentu likmi 2%
* Ilgtermiņa atmaksa (1-30 gadi) Garums
* Elastīga kredīta noteikumi un ikmēneša maksājums
*. Cik ilgi tas veic, lai finansētu? Pēc iesniegšanas kredīta pieteikumu
Jūs varat sagaidīt provizorisko atbildi mazāk nekā 24 stundas
finansējums 72-96 stundu laikā pēc nepieciešamo informāciju saņem
no tevis.
Sazinieties ar likumīgu un licencēto uzņēmumu, pilnvarotais
sniegt finansiālu palīdzību visiem
Lai iegūtu vairāk informācijas un kredīta pieteikuma forma
e-pasts: cashfirmarena@gmail.com
Ar laba vēlējumiem
Sir Joel Williams
CASH FIRM aizdevumu uzņēmumam
CEO
Tel: +60182913326
E-pasts: cashfirmarena@gmail.com
Webisite: cashfirmarena.wordpress.com
|
| MR PRINCE |
2017-02-20 14:29:32 |
|
Vai jums ir nepieciešams steidzami aizdevumu, lai atrisinātu savas finansiālās vajadzības, mēs piedāvājam aizdevumu
sākot no $ 5,000.00 līdz $ 10,000,000.00 Max, mēs esam uzticami, efektīvi,
Ātrs un dinamisks, Nr kredīta pārbaude, un 100% garantēta Mēs piedāvājam aizjūras
aizdevumus visiem noteikumiem šeit. mēs arī sniedz out kredītu eiro, mārciņas un dolāri.
Procentu likme, kas piemērojama visiem aizdevumiem ir 2%, ja jūs interesē saņemtu atpakaļ pie mums
Via (princeloanfirms@yahoo.co.uk~~pobj) ar zemāk informāciju:
Tavs pilnais vārds:
Valsts:
pilsēta:
Adrese:
Summa Needed:
ilgums:
Age:
Sex:
Nodarbošanās:
telefona numurs:
|
| ĀTRS AIZDEVUMS PIEDā |
2017-02-11 07:02:08 |
|
Ātrs aizdevums piedāvājums, pieteikties tagad !!
Vai jūs meklējat foršs veids, lai veicinātu savu biznesu? Vai arī jūs mirst vajadzību aizdevumu, lai uzsāktu savu biznesu, samaksāt parādus, rēķinus vai jums ir nepieciešams kredīts, lai paaugstinātu savu self no finanšu ierobežojumiem? sazinieties ar mums tagad (lukasmatovickreditoffer@gmail.com) pobj ir īstā vieta un labākus pakalpojumus par jums !!!
|
| INTESA.SANPAOLO@FINA |
2017-01-30 16:04:53 |
|
o Jums ir nepieciešams kredīts, lai nodzēstu savus parādus / rēķinus vai uzsākt uzņēmējdarbību? Tad apsvērt jūsu finanšu problēmas vairāk. Mūsdienu ekonomiskajā situācijā, atrast uzticamus finansējuma avotus var būt nomākta un pilns ar vilšanos, bet ar mūsu sarežģītu aizdevuma atmaksas plānu, Smiles ikvienam mājās. Cincinnati Financial Corporation nodrošina finansējumu alternatīvo enerģijas projektiem komerciālo nekustamo īpašumu un personiskās finanses; Tādējādi, organizējot aizdevumu ar mums ir vienkārša un tieša, ērts un ātrs. Mēs varam sniegt jums instant "principā" lēmumu, un mēs atradīsim jums dažas no konkurētspējīgākajām personas aizdevumu likmēm pieejama. Mēs piedāvājam garantēto aizdevumu pakalpojumus par jebkuru summu un uz jebkuru pasaules daļu (privātpersonas, uzņēmumi, un iestādēm Realtors) mūsu lielo procentu likmi 3%. Mūsu komanda aizdevumu eksperti pirmo reizi dzirdēju mūsu klientu prasības, un pēc tam tām labākos kreditēšanas risinājumus. Mēs piedāvājam aizdevumus sākot no $ 100,000.00 Min. līdz $ 900,000,000.00 Max. 3% procentu likme aizdevumiem attīstīt savu uzņēmējdarbības paplašināšanai. Mums ir sertificēti, uzticami, droši, efektīvi, ātri un dinamiski. un sadarbojas finansists ar nekustamo īpašumu un jebkuras uzņēmējdarbības finansēšanas veidiem, mēs dodam no ilgtermiņa aizdevumu maksimāli 5yrs līdz 30 gadiem. Lūdzu, ja Jums ir interese par mūsu finanšu piedāvājumā, nevilcinieties sazināties ar mums: (intesa.sanpaolo@financier.com), lai iegūtu vairāk informācijas paldies un ceram uz jūsu atbildes
|
| JAMIE FREEMAN |
2017-01-19 06:23:23 |
|
Aizdevumi!! Aizdevumi !! Aizdevumi!! Vai ir kāds, kas šeit, kas joprojām cīnās, lai saņemtu kredītu? Vai jums nepieciešama aizdevuma jebkāda iemesla dēļ, un jūs nezināt, kur iegūt lētu un uzticamu aizdevumu, jūsu palīdzība ir beidzot šeit, kā mēs piedāvājam lētu aizdevumu ar zemu procentu likmi tikai 2%. Ieinteresētie aizņēmēji ir sazināties ar mums pa e-pastu (Freemanloans@hotmail.com) vai mūsu mājas lapā: Freemanfinance.webs.com un saņemt savu aizdevumu šodien.
Paldies.
Jamie Freeman
E-pasts: Freemanloanfinance@gmail.com, Freemanloans@hotmail.com
Tīmekļa vietne: www.freemanfinance.webs.com
tālrunis: +13234024181
|
| KREDīTA PIEDāVāJUMS |
2017-01-09 07:36:20 |
|
KREDĪTI ALL !! Vai tu šeit meklē patiesu avots aizdevumu? Vai esat bijis meklē aizdevumu, un vēl nezinu, kā iegūt vienu? Uztraukties ne vairāk, jo jūsu palīdzība ir beidzot šeit, mēs piedāvā aizdevumus visi tikai 2%. Sazinieties ar mums tagad Johndykeoffice@gmail.com un saņemt savu aizdevumu problēmas šodien atrisinātas. Mūsu pakalpojumi ir 100% ticami, jo tas ir likumīgs kompānija, kas jums var uzticēties, lai atrisinātu visas jūsu finanšu problēmas, nodarbinātajiem un darba meklētājiem ir apsveicami.
PaldiesJohn DykeFINANCE4ALLE-pasts: Johndykeoffice@gmail.com
|
| JEFF MICHAEL |
2016-12-19 09:43:58 |
|
Laba diena
X-mas Kredīta piedāvājums Piesakies tagad ..
Vai jums nepieciešama steidzama kredītu? Mēs dodam no aizdevuma ieinteresētajām personām, kas vēlas kredītu ar labu ticību. Vai jūs nopietni nepieciešama steidzama kredīta? tad jūs esat īstajā vietā. Mēs dodam out uzņēmējdarbības aizdevums, personas aizdevums, pie minimālo summu € 2,000.00 uz maksimālo summu € 40,000.000.00, sazinieties ar mums par savu aizdevumu pieprasījumu pēc 2% zemu procentu likmi, lai apmierinātu savu pieprasījumu un noteikti no finanšu problem.contact mums šodien pa e-pastu: jsemkffloaninvestment@gmail.com
Aizpildiet šo informāciju zem
Pilna nosaukumi:
Valsts:
Telefona numurs:
Kredīta summa nepieciešams:
Aizdevuma ilgums:
Mēneša ienākumi:
Mājas adrese:
Thanks kā mēs gaidām jūsu atbildi
Jeff Michael aizdevumu uzņēmumam.
Aizdevumu / Finanšu pakalpojumu sniedzēji.
|
| LOAN |
2016-12-11 17:20:25 |
|
Mēs dodam no aizdevuma ar procentu likmi 2%, un mēs piedāvājam aizdevumus no 5000 $ uz $ 50,000,000.00, Vai jūs meklējat, lai iegādātos māju auto vai uzņēmuma vai uzsākt Truck Company vai nopirkt kravas automašīnu vai personas aizdevumiem vai uzņēmējdarbības aizdevumu, e-pastu mums (bishopelijahloanfirm002@hotmail.com) Ar summu, kas nepieciešama un tālruņa numuru.
Rakstiet mums uz (BishopElijahloanfirm002@hotmail.com)
|
| * FINANCE * REAL EST |
2016-11-21 10:45:39 |
|
Private aizdevumu likmi 2%
Labrīt, es piedāvāt aizdevumus ikvienam, kas spēj atmaksāt ar procentiem
2% likmi ilgtermiņā. Par katru tēmu, rakstiet man, cilvēki
atturēties ļaunprātīga.
Es sniegt aizdevumus starp privāto jebkāda veida:
* Finance
* Real Estate Aizdevumi
* Aizdevumi investīcijām
* Auto Loan
* Parāda Consolidation
* Kredīts Margin
* Hipotēkas
* Atpirkšana kredīta
* Personal Aizdevumi
Es piedāvāt aizdevumus īstermiņa, vidēja termiņa un ilgtermiņa sadarbību ar manu
advokāts.
Vai jūs vēlaties man nosūtīt tieši uz jūsu e-pastu un man pateikt, ko
kas jums nepieciešams.
Man nav lūgt daudz dokumentu.
Mans e-pasts ir: nadaordonzelli@gmail.com
|
| PRIVATE AIZDEVUMU LI |
2016-11-21 10:45:08 |
|
Private aizdevumu likme 3%
Es esmu persona, kas ir finanšu kapitāla, lai piešķirtu kredītu, lai ikvienam, kam nepieciešama, ja Jums ir saskarē nepieciešamība lai kas jūs esat, ko jūsu problēma ir: Vai esat biznesa cilvēks vai sieviete? Jums ir nepieciešams šķērsot, lai saņemtu, lai sāktu savu biznesu? Vai jums ir nepieciešams kredīts, lai norēķinātos savu parādu vai apmaksāt rēķinus vai uzsākt jauku biznesu? Vai deboleriscontro kredītu un grūtības atrast saņem aizņēmumus no vietējām bankām un citām finanšu iestādēm? Nepieciešams aizdevumu vai finansējumu jebkādu iemeslu dēļ, piemēram, * vai failu BDF IFTF? * Finansējums? * Home Loan? * Kredīti `investīcijām? * Auto Loan? * Parāda Consolidation? * Margin Account? * Otrais Hipotēku? * Atpirkšana kredītu? * Elektroniskā personale.Posta Aizdevumi: nadaordonzelli@gmail.com
|
|
|
|