aktuali projekti teksti process darbinieki

06.01.2017

LEDUS (ICE) is NRJA's winning proposal for the architecture competition in Riga for the development of an 893 sq. m. urban land plot on 40a Kr. Barona Street.

The site is located in the territory of a cultural monument of State significance - Riga City historic centre which is part of the protection zone of a UNESCO World Heritage site. The site is on the corner of a block, enclosed by two busy streets.

The design process was suspended due to various economic circumstances and was resumed at the end of 2013. To respect the surrounding context, the color scheme of the facade was changed and the amount of glass panes in the facades was reduced. RED ICE emerges.

RED ICE was initially planned as an apartment building. As a result of multiple modifications it was redesigned as an apartment hotel with a reception and a restaurant on the ground floor and a kitchen and technical premises in the basement.

 

Client: SIA Barona Īpašums

Architecture: NRJA

Constructions:  sketch project— IG Kurbads, technical project —  Štāls un Šteinbergs   

Engineering:  sketch project — Plazma Studio,  technical prject — IAG projekti

General contractor:  LNK Industries 

Photography: Gatis Rozenfelds for NRJA

 

Plot area — 893 m²

Building area — 706 m²

Courtyard area — 185 m²

      Inner courtyard — 136 m²

      Light courtyard — 49 m²

Floors — 6 + loft

Total area —  4574,6 m²

Apartments —  40

Apartment area — 3228 m²

Commercial area —  497 m²

Parking spaces — 9

http://www.nrja.lv/uploads/projekti/LEDUS_01.jpg

http://www.nrja.lv/uploads/projekti/LEDUS_02.jpg

http://www.nrja.lv/uploads/projekti/LEDUS_03.jpg

http://www.nrja.lv/uploads/projekti/LEDUS_05.jpg

http://www.nrja.lv/uploads/projekti/LEDUS_06.jpg

http://www.nrja.lv/uploads/projekti/LEDUS_07.jpg

 http://www.nrja.lv/uploads/projekti/LEDUS_08.jpg

http://www.nrja.lv/uploads/projekti/LEDUS_09.jpg

http://www.nrja.lv/uploads/projekti/LEDUS_10.jpg

http://www.nrja.lv/uploads/projekti/LEDUS_11.jpg

http://www.nrja.lv/uploads/projekti/LEDUS_12.jpg

http://www.nrja.lv/uploads/projekti/LEDUS_13.jpg

http://www.nrja.lv/uploads/projekti/LEDUS_14.jpg

 http://www.nrja.lv/uploads/projekti/LEDUS_17_visualisation.jpg

Visualisation

http://www.nrja.lv/uploads/projekti/LEDUS_18_visualisation.jpg

Visualisation

http://www.nrja.lv/uploads/projekti/LEDUS_19_facade.jpg

Facade

http://www.nrja.lv/uploads/projekti/LEDUS_20_general_plan.jpg

General plan

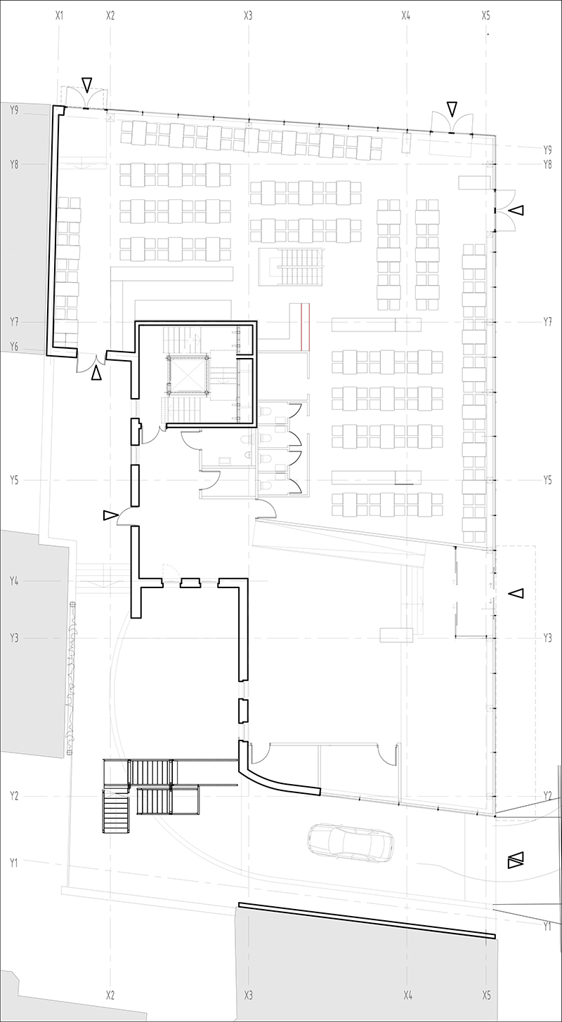
http://www.nrja.lv/uploads/projekti/LEDUS_21_1st_floor.jpg

First floor plan

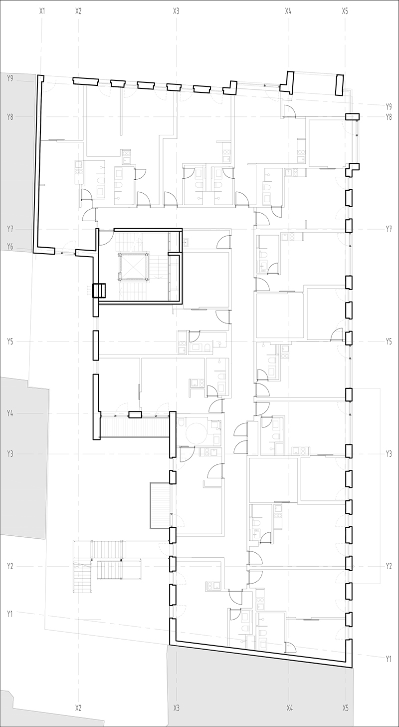
http://www.nrja.lv/uploads/projekti/LEDUS_22_2nd_floor.jpg

Second floor plan

http://www.nrja.lv/uploads/projekti/LEDUS_23_7th_plan.jpg

Top floor plan

http://www.nrja.lv/uploads/projekti/LEDUS_24_section.jpg

Section 

 atpakal




RED 2017-01-09 11:28:27
http://architecturelab.net/red-ice-nrja/
Spameris
Drošības kods: > > >