aktuali projekti teksti process darbinieki

21.04.2017

http://www.nrja.lv/uploads/projekti/PERSE_01.jpg

LINK

Proposal for a residential building with commercial spaces on the ground floor on Pērses Street 2, Riga, Latvia.

The building site is located at an important, yet complicated urban area between strikingly different buildings of various heights. The proposed volume is a logical continuation whose varying height responds to the context and forms a LINK between its neighbours.

SPECIFICATION:

 

Building site rea - 974.6 m²

Floor area - 3557.2 m²

Number of floors - 7 + basement

Parking spaces - 9

Apartments - 28

Commercial space are - 361.5m²

 

ARCHITECTURAL SOLUTION

 

The street front facade of 11 m coincides with the height of its neighbouring buildings. The height of the recessed front facade varies from 12.3 m to 21.3 m, forming a visual LINK between its neighbours. The recesses allow for the possibility of front facade terraces. The visual identity of the project remains minimalistic, as its context represents vastly different time periods. Schuecco glass blocks and travertine is used for the treatment of facades.

 

PLANNING

 

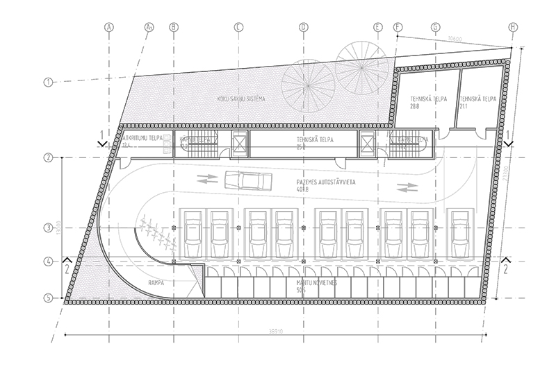
The underground floor features 9 parking spaces, bicycle racks, storage boxes and technical rooms. The ground floor is comprised from 2 commercial spaces with separate entrances. The rest of the building is occupied by 28 apartments which are accessed by 2 vertical communication cores. The courtyard features recreation areas, zones for sports and children’s activities.

http://www.nrja.lv/uploads/projekti/PERSE_01A.jpg

http://www.nrja.lv/uploads/projekti/PERSE_01B.jpg

http://www.nrja.lv/uploads/projekti/PERSE_01C.jpg

http://www.nrja.lv/uploads/projekti/PERSE_01D.jpg

http://www.nrja.lv/uploads/projekti/PERSE_01E.jpg

http://www.nrja.lv/uploads/projekti/PERSE_02.jpg

http://www.nrja.lv/uploads/projekti/PERSE_03.jpg

General plan

http://www.nrja.lv/uploads/projekti/PERSE_03A.jpg

Basement floor plan

http://www.nrja.lv/uploads/projekti/PERSE_04.jpg

Ground floor plan

http://www.nrja.lv/uploads/projekti/PERSE_05.jpg

First floor plan

http://www.nrja.lv/uploads/projekti/PERSE_06.jpg

5th floor plan

http://www.nrja.lv/uploads/projekti/PERSE_07.jpg

Roof floor plan

http://www.nrja.lv/uploads/projekti/PERSE_08.jpg

Front facade

http://www.nrja.lv/uploads/projekti/PERSE_09.jpg

Courtyard facade

http://www.nrja.lv/uploads/projekti/PERSE_10.jpg

Side facade

http://www.nrja.lv/uploads/projekti/PERSE_11.jpg Side facade

http://www.nrja.lv/uploads/projekti/PERSE_12.jpg

Cross section

http://www.nrja.lv/uploads/projekti/PERSE_13.jpg

Longitudinal section

http://www.nrja.lv/uploads/projekti/PERSE_14.jpg

http://www.nrja.lv/uploads/projekti/PERSE_15.jpg

http://www.nrja.lv/uploads/projekti/PERSE_16.jpg 

 atpakal




Spameris
Drošības kods: > > >