aktuali projekti teksti process darbinieki

07.02.2008

http://test.nrja.lv/uploads/projekti/maakonji%20lielaa%20smukaa.jpg


http://test.nrja.lv/uploads/projekti/MAAKONJU%20GARAA%20KOPSKATS.jpg

& & & & & & & & & & & & & & & & & & & & & & & & & & & & & & & & & &

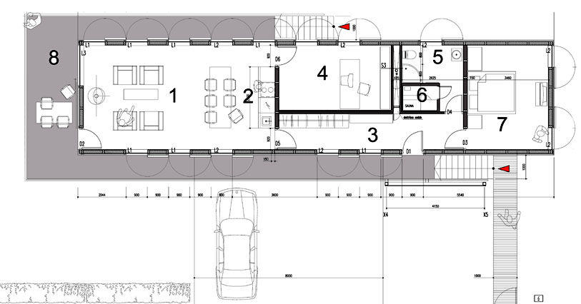
http://test.nrja.lv/uploads/projekti/plaans.jpg

Mākoņu brīvdienas

* * *** * *** ******** ******** **** ** ****** **** ****** ** ** ***** ***

10 Brīvdienu mājas

Liepājas rajona

Sakas pagastā

brīvdienas brīvdienas brīvdienas brīvdienas

ienas brīvdienas brīvdienas brīv

dienas brīvdienas brīvdienas

brīvdienas brīvdienas

dienas brīvdienas

brīvdienas !! 

 atpakal




FHM 2009-05-14 14:38:34
http://www.archdaily.com/18474/neal-creek-residence-paul-mckean-architecture/
Spameris
Drošības kods: > > >