aktuali projekti teksti process darbinieki

14.12.2017

Winning competition proposal for the Latvian Railway History Museum (LRHM): territory development, reconstruction of existing historical building and design of a new attachment

Territory:

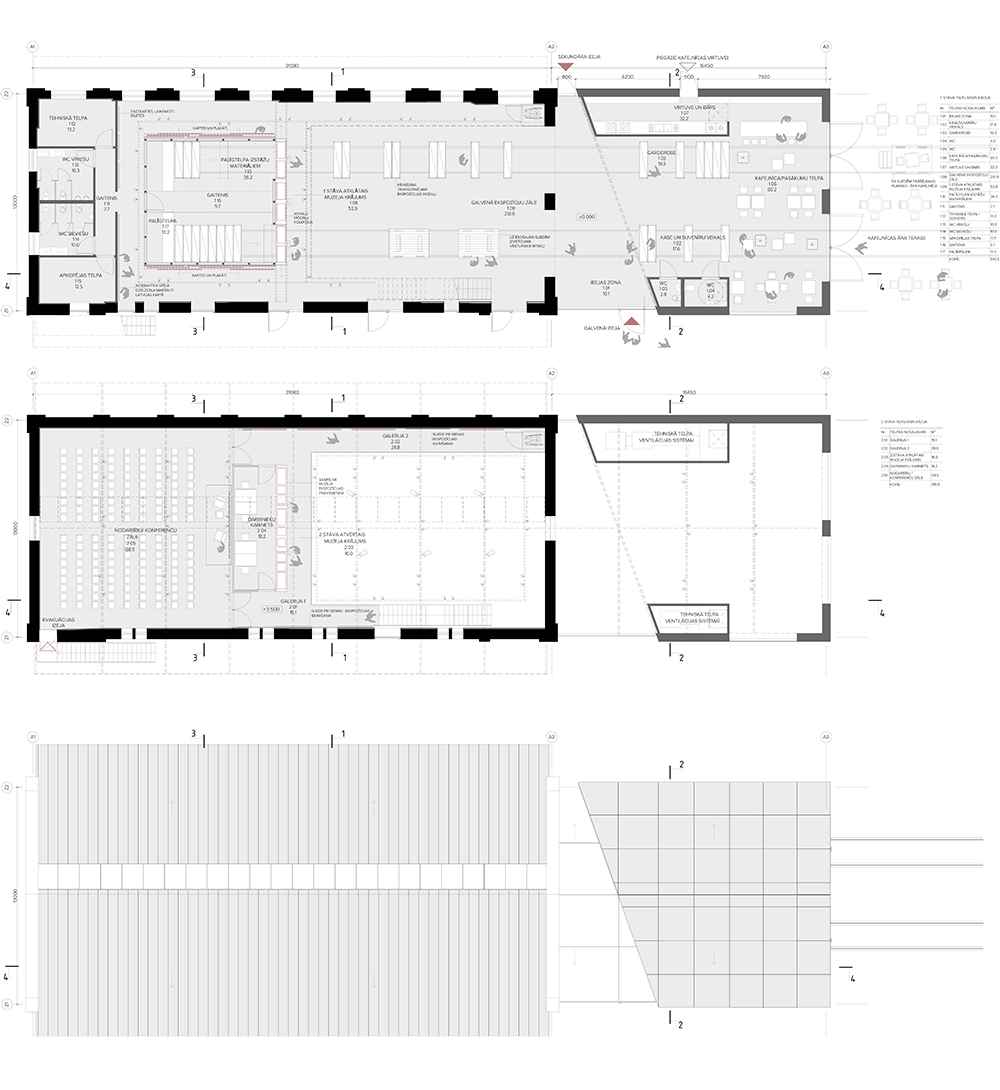
The museum territory is planned as an open environment for social interactions. The main axis of the territory is formed by a pedestrian promenade with a bicycle lane and a service road. The pedestrian promenade connects all the elements of the territory: museum, rolling stock exhibition, fron square, cafe terrace, picnic area, children’s railway, public WC and parking area. All the existing tracks are preserved and some new tracks are designed to connect to the new volume of LRHM.

Reconstruction of the existing warehouse:

All the authentic constructions and parts of the existing historical building are preserved and displayed in the interior: a red brick wall with arched gates, bearing roof contruction and historical windows. Most of the existing building is planned as a multi-functional exposition hall; a part of the building is divided into two levels with a conference hall located upstairs and connected with a gallery, stairs and an elevator. The floor level is returned to the original height, restoring and displaying the historical rail tracks. The tracks feature mobile metal construction exhibition stands. A linear rooflight ensures plenty of natural light for the historical warehouse.

New attachment volume:

The new volume is located at the end of the existing warehouse, preserving the main facade of the historical building. Between the historical and new parts of the buildings there is a glass volume that allows the display of the arched gate at the end of the historical warehouse. It serves as a clear entranceway and admits plenty of daylight into the building. The new attachment also features the historical rail tracks and mobile metal construction stands that serve as a wardrobe,a small souvenir shop and a cash desk. There are two glass doors at the end facade of the new volume that mimic the shape and size of the historical gates. They allow the entry of large rail stock and ensure a connection with the cafe terrace. The entrance area of the new attachment volume can also be used as a continuation of the exhibition hall, using the same mobile metal construction exhibition stands. 

http://nrja.lv/uploads/projekti/DZ_01.jpg

http://nrja.lv/uploads/projekti/DZ_02.jpg

http://nrja.lv/uploads/projekti/DZ_03.jpg

MASTERPLAN

http://nrja.lv/uploads/projekti/DZ_04.jpg

MOVEMENT SCHEME

http://nrja.lv/uploads/projekti/DZ_05.jpg

FIRST FLOOR, SECOND FLOOR, ROOF PLANS

http://nrja.lv/uploads/projekti/DZ_06.jpg

http://nrja.lv/uploads/projekti/DZ_07.jpg

http://nrja.lv/uploads/projekti/DZ_08.jpg

http://nrja.lv/uploads/projekti/DZ_09.jpg 

http://nrja.lv/uploads/projekti/DZ_19.jpg

http://nrja.lv/uploads/projekti/DZ_13.jpg

CROSSSECTIONS

http://nrja.lv/uploads/projekti/DZ_14.jpg

LONGITUDINAL SECTION AND FRONT FACADE

http://nrja.lv/uploads/projekti/DZ_15.jpg

END FACADES

http://nrja.lv/uploads/projekti/DZ_16.jpg

VOLUME SCHEME

http://nrja.lv/uploads/projekti/DZ_17.jpg

DETAILS

http://nrja.lv/uploads/projekti/DZ_18.jpg

  

1. vietu ieguvušais konkursa priekšlikums  Latvijas dzelzceļa vēstures muzeja izglītības un inovāciju centra (DIIC) izveidošanai un teritorijas attīstībai, rekonstruējot esošo vēsturisko ēku un izbūvējot tai jaunu piebūvi

 

Teritorijas labiekārtojums:

·        Muzeja teritorija plānota kā atvērta sociālās komunikācijas vide.

·        Kā galveno teritorijas asi izveidot gājēju promenādi, ar velo un piegādes transporta ceļu.

·     Jaunajam gājēju ceļam secīgi pieslēdzas visas teritorijas zonas: VIP un invalīdu stāvvieta, velonovietne, Dzelzceļa muzejs, Vilcienu ekspozīcija, DIIC ar priekšlaukumu, kafejnīcas āra terase, piknika zona, bērnu dzelzceļs, publiskā tualete, esošā noliktavas ēka, velonovietne, autonovietne.

·     DIIC vajadzībām pārbūvējamā vēsturiskā ēka tiek pagarināta ar jaunu piebūvi, tādā veidā padarot to labi redzamu gan no Uzvaras bulvāra, gan Akmeņu ielas puses.

·     Visi esošie muzeja ārējās ekspozīcijas sliežu ceļi tiek saglabāti, kā arī saglabājamas sliedes pie noliktavas. Projekta mets paredz atjaunot sliežu ceļus uz pārbūvējamo ēku.

 

Pārbūvējamās ēkas jaunā piebūve:

Jaunās piebūves pieslēgšana plānota ēkas galā.

·       Vēsturiskās ķieģeļu arhitektūras būves galvenā fasāde ir atjaunojama un eksponējama.

·       Starp vēsturisko apjomu un jauno piebūvi paredzot stiklotu starpbūvi, tiek radīta iespēja vizuāli novērtēt esošās ēkas gala fasādes arkveida vārtu ailas.

·       Stiklotā starpbūve kalpo kā viegli uztverams ieejas mezgls un dienasgaismas avots

·      Maksimāli respektējot un neaizsedzot vēsturisko apjomu, jaunais apjoms turpina esošās ēkas pamatformu un konstrukciju ritmu, tādā veidā nodrošinot pārmantojamību un viengabalainu sajūtu,

·       Arī jaunajā daļā paredzēts atjaunot vēsturiskās sliedes lai nodrošinātu iespēju ēkā eksponēt nelielus dzelzceļa vagonus, citus ritekļus un mobīlos metāla konstrukciju stendus uz riteņiem, kas piebūves daļā izmantojami kā mobīla ģērbtuve, neliela suvenīru veikala un kases stendi,

·      Jaunā apjoma gala fasādē izvietotas 2 atveramas stikla vitrīnas, kas pēc formas un dimensijām līdzinās vēsturiskajiem depo vārtiem. Funkcionāli veramās vitrīnas nodrošina iespēju pa atjaunojamajiem sliežu ceļiem ēkā iebraukt eksponējamos ritekļus, kā arī kafejnīcas saikni ar āra terasi,

·      Piebūve, turpinot vēsturiskā apjoma dimensijas, rada iespēju gaišo ieejas zonu izmantot kā ekspozīcijas zāles turpinājumu, izmantojot tos pašus mobilos, pārvietojamos stendus,

 

Esošās vēsturiskās ēkas pārbūve veicama:

·       Maksimāli saglabājot autentiskās esošās ēku daļas un konstrukcijas, eksponējot tās  interjerā (sarkanā ķieģeļa mūra siena ar arkveida vārtiem, jumta nesošās metāla konstrukcijas, vēsturiskie logi),

·        Lielāko esošās ēkas daļu paredzēts izmantot kā multifunkcionālu ekspozīciju zāli, visā ēkas augstumā,

·        Daļa vēsturiskās ēkas plānota divos līmeņos, otrajā līmenī izvietojot konferenču zāli.

·     Zemes līmeņa multifunkcionālā ekspozīciju zāle ar otrajā līmenī izvietoto konferenču zāli savienota ar metāla konstrukciju galeriju,kāpnēm un pacēlāju invalīdiem,

·    Ēkas betona grīda atjaunojama vēsturiskajā līmenī, atjaunojot un eksponējot vēsturiskās sliedes ēkas iekštelpā. Sliedes paredzētas iedziļinātas grīdas konstrukcijā, kas rada iespēju tās nosegt.

·     Izmantojot vēsturiskās sliedes un turpinot ritekļu tēmu, paredzēts izgatavot mobīlus metāla konstrukciju izstāžu stendus uz riteņiem, kas būtu piemēroti vēsturiskajām sliedēm.

·        Jumtā paredzēts izbūvēt virsgaismas logu joslu dienasgaismas nodrošināšanai telpās.

 atpakal




Spameris
Drošības kods: > > >