aktuali projekti teksti process darbinieki

12.06.2018

 

 

2nd Prize Winning Proposal for Riga Circus sketch design competition

(in collaboration with Ilze Mekša) 

 

 

 

 

 

 

 Riga circus building renovation and territory development

A multi-functional place for circus art, music and other events

The competition:

Riga Circus is a heritage building at the heart of the city, a unique construction dedicated to the circus arts in the Baltic states. The heritage aspects seem to be the best asset of Riga Circus but also its limitation in terms of artistic programming and the many activities such organisation should be able to host. A need for a new architectural construction, situated at the back of the historical building, has arisen. It should be a symbol os both past and future, of traditional circus and the contemporary one – a historical journey.

The proposal:

The culture and education spaces of the new Riga Circus have been opened to the citizens to capitalize on the very central location of the building. To achieve that a clear, linear structure has been proposed and linked with a pedestrian passage-way along the south side of the building site.

Multiple raised urban exploration paths have been proposed in the open pedestrian passage. An unforgettable view of the Circus buildings and the cityscape has been provided by raising the urban exploration paths above the roofline. They create a unique architectural experience, allowing for unexpected perspectives, thus leading the viewer into a circus-like atmosphere. The urban exploration path is a symbolic vascular system that gives back life to the quiet inner courtyard. The more people move along the „blood vessels”, the more dynamic the life in the block.

The architectural character of the complex is a symbiosis of the historical and the contemporary. It is driven by the belief that the building of the contemporary circus arts should also convey its message visually within the urban environment. By moving towards a more contemporary understanding of the circus arts we also must change the way we interact with architecture that represents it.

The historical facade is restored as of the 19th and 20th century. The new black box stage serves as a visual backdrop for the historical building and its placement in the middle of the building site minimizes its emphasis from street perspectives, yet opening up for the pedestrians passing through the open passage-way. 

 

 

 

 

Rīgas cirka vēsturiskās ēkas atjaunošana un teritorijas attīstības vīzija

                                                                  Rīgā, Merķeļa ielā 4,              

                                              Skaidrojošs apraksts

 

Apbūves koncepcija.

Apbūves koncepcija paredz maksimāli saglabāt nozīmīgās vēsturiskās konstrukcijas, jaunos apjomus integrējot kopējā apbūvē.

Lai Rīgas Laikmetīgais Cirks spētu pilnībā izmantot savu atrašanās vietu pilsētas centrā, plānots maksimāli atvērt pilsētniekiem piekļuvi Rīgas Cirka dažādajām kultūras un izglītības norišu vietām. Lai to paveiktu, paredzēts:

 

-          Izbūvēt skaidru lineāru būvju struktūru, kas ietvertu sevī visu plānoto programmu,

-          Savienot pagalmus gar zemes gabala D robežu, radot atklātu gājēju pasāžu starp Merķeļa ielu un Alfrēda Kalniņa ielu,

Rīgas Cirka teritoriju plānot kā atvērtu sociālās komunikācijas vidi,

-          Ieejas visās nozīmīgākajās Rīgas Cirka publiskajās telpās paredzēt no gājēju pasāžas,

-          Cirka gājēju pasāžas zonā izbūvējamas Pilsētpētnieku laipas (urban exploration path) - metāla kopņu konstrukcijā risinātas gājēju laipas, kas, paceļoties virs ēku jumtiem nodrošina neaizmirstamu piedzīvojumu, citu skatu uz Cirka būvēm un pilsēttelpu kopumā,

-          publiskajā Rīgas Cirka ārtelpā rada atšķirīgu, unikālu arhitektūras pieredzi un dod iespēju skatīties uz pilsētas telpu no neierasta augstuma, tādā veidā ievadot skatītājus Cirka mākslas noskaņās,

-          Pilsētpētnieku laipas – simboliska kvartāla asinsvadu sistēma, kas klusajam iekškvartālam atdod dzīvību. Jo vairāk cilvēku kustas pa „asinsvadiem”, jo dinamiskāka dzīve kvartālā

 

Teritorijas izbūve kārtās.

-          Rīgas Cirka apbūves lineārā struktūra nodrošina iespēju ērti veikt rekonstrukcijas un citus būvdarbus, dalot apjomu loģiskās būvniecības kārtās.

-          Nākotnē iespējams plānot Rīgas Cirka gājēju pasāžas savienošanu caur starpkvartālu ar vēsturisko gājēju pasāžu Berga Bazārs, kas papildus Rīgas Cirka piedāvājumam pilsētniekiem un tūristiem var piedāvāt citas atrakcijas

 

Gājēju un transporta kustība.

-          Gājēju kustība caur teritoriju, kā arī piekļuve visām funkcionālajām grupām plānota no jaunizveidojamās gājēju pasāžas,

-          Daļa gājēju no zemes līmeņa gājēju pasāžas tiek novirzīta pa Pilsētpētnieku laipām pāri ēku jumtiem,

-          Veloceliņš, kas savieno Merķeļa un A.Kalniņa ielas ir gājēju pasāžas sastāvdaļa.

-          Piegādes autotransporta piebraukšana plānota no A.Kalniņa ielas, paredzot piegādes transportam ar vārtiem noslēdzamu piegādes telpu, no kurienes piegādātās preces un iekārtas caur piegādes gaiteni tālāk tiek pārvietotas uz noliktavām vai darbnīcām.

-          Automašīnu novietnes, tajā skaitā invalīdu, plānotas uz ielas A.Kalniņa ielā. Labiekārtojot auto novietnes, paredzēts 2 aprīkot ar elektroauto uzlādes iekārtām.

-          Ugunsdzēsēju automašīnai plānots iebraukt teritorijā no A.Kalniņa ielas līdz vēsturiskajam Zirgu stallim.

 

Vēsturisko ēku saglabāšanas koncepcija.

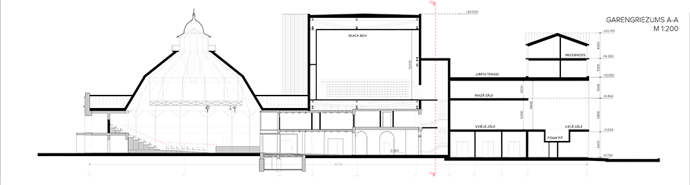
-          Merķeļa ielas fasādi ar sākotnējām kāpnēm čuguna kosntrukcijās paredzēts atjaunot 19.g.s. beigu / 20.g.s. sākuma izskatā. Pēckara periodā izbūvētie parapeti fasādes sānos padara to smagnēju, kā arī tiek aizsegts skats uz kupolveida jumta apjomu. 20. Gs. 50-to gadu periodā pārveidoto logu un durvju ailu dēļ fasāde zaudējusi savu harmonisko koptēlu. Tādēļ, ir būtiski atjaunot nelielo Merķeļa ielas fasādes sākotnējo apjomu lielo Rīgas centra īres namu vidū kā arī pēc iespējas eksponēt vēsturiskās ēkas lielāko vērtību - kupolveida jumta apjomu. Jaunais "Black box" zāles apjoms kalpo kā vizuāls fons vēsturiskajai ēkai un tā novietojums teritorijas vidusdaļā minimāli ietekmē ielu skatu punktos redzamo vēsturiskā centra apbūves ainavu.

-          Ēkas iekštelpu pārbūves risinājumi izstrādāti, stingri ievērojot arhitektoniski mākslinieciskajā izpētē minētās ēkas sākotnējās konstrukcijas un fiksētos būvgaldniecības izstrādājumus, paredzot to saglabāšanu sākotnējā izskatā un sākotnējā novietojumā vai, pārnesot un eksponējot tos citās vēsturiskās ēkas daļās. Pēckara periodā izbūvētie kupola iekštelpas dekoratīvās apdares elementi demontējami ar mērķi atklāt saglabājamā kupola tērauda sliežu un apaļstieņu atsaišu konstrukciju. Lai izpildītu laikmetīgajam cirkam nepieciešamās punkta slodžu prasības, jumta siltinājuma slānī paredzēta kupola formu dublējoša pastiprinoša konstrukcija.

 

Rīgas Cirka apbūves arhitektūra.

Arhitektoniskais veidols:

-          Vēsturiskā un mūsdienīgā savienojums.

-          Plānā skaidrā, lineāra apjoma savienojums ar dinamisko gājēju pasāžu un Pilsētpētnieku laipām.

-          Jaunbūvējamais apjoms plānots mūsdienīgās konstrukcijās, ar lielu pietāti pret vēsturisko mantojumu, neveidojot atdarinājumus,

-          Sekojot pārliecībai, ka Laikmetīgā cirka būvei arī vizuāli ir jānodod ziņa pilsēttelpā par īpašo funkciju, kam tā ir domāta.

-          Mainot Cirka domāšanu ir jāmainās arī izpratnei par arhitektūru, kas to reprezentē.

 

Merķeļa ielas fasādē gājēju pasāža sākas ar atjaunotiem vārtiem vēsturiskās fasādes D malas ailē.

 

Lielākais Rīgas Cirka apbūves apjoms Black box zāle izvietots gruntsgabala vidū, lai minimāli ietekmētu  ielu skatu punktos redzamo vēsturiskā centra apbūves ainavu.

Black box izliektā apjoma izvietojums tieši aiz Manēžas kupola, rada viendabīgu, gaišu fonu, uz kura izcelties Kupola siluetam. No iekšpuses izgaismojams būvstikla paneļu apšuvums bez logu atvērumiem, piešķir apjomam atturīgu monumentalitāti, kuru īpašu padara viegli ieliektā siena pret Manēžas kupolu, kas atkārto kupola izliekumu.

 

Rīgas Cirka apbūves fasāde pret Alfrēda Kalniņa ielu plānota kā atvērta perimetrālā apbūve, saglabājot un atjaunojot vēsturiski nozīmīgo Mazā Staļļa ēku,kas eksponējas fasādē, tajā pašā laikā iezīmējot atklātās gājēju pasāžas zonu.

 

Apjoma augstums pret Alfrēda Kalniņa ielu pamatots ar konteksta analīzi. Plānotajā fasādē skaidri nolasāmais funkcionālais sadalījums starp Cirka skolas lielo zāli un Rezidenču apjomu iezīmē dzegas līniju, kas atbilst attālumam starp ielas sarkanajām līnijām.

Blakusēku augstums Alfrēda Kalniņa ielas frontē ir attiecīgi 19.40 un 21.60m. Līdzīgs augstums ir vairāk kā 80% Alfrēda Kalniņa ielas apbūvei, līdz ar ko varam uzskatīt to par iedibināto dzegas augstuma atzīmi.

Pilsētbūvnieciski labvēlīgs papildus faktors šajā situācijā ir ēkas pretējā ielas pusē atbīdījums gruntsgabala dziļumā, palielinot attālumu starp ēkām.

Šajā situācijā pamatots ir risinājums jaunbūves augstumu pret A.Kalniņa ielu pieskaņot blakusesošās ēkas augstumam.

 

Virs pirmā stāva paceltā divstāvīgā Cirka skolas zāles apjoma fasādes apdarē izmantots būvstikla paneļu apšuvums bez logu atvērumiem,kas sasaucas ar Black box zāles apšuvumu. Būvstikla paneļu apšuvums uzskatāmi parāda konstruktīvo sistēmu kā arī rada iespēju no ielas vizuāli nojaust dinamisko kustību zāles iekšienē.

 

Rezidenču apjoms virs Cirka skolas monumentālā apjoma plānots vizuāli atšķirīgs, domājot par :

-          Jumta raksturu (ortogonālā virzienā plānotie jumtu slīpumi, kas iekļaujas kopējā jumtu ainavā, divstāvīgie rezidenču apjomi, kas sasaucas ar ielas frontē esošajām jumtu izbūvēm un sandrikiem virs vēsturiskajiem logiem A.Kalniņa ielas fasādēs),

-          Funkcionālo skaidrību ēkas tēlā,

-          Vizuālā tēla atbilstību Laikmetīgā cirka garam.

Virs cirka skolas, starp Rezidenču apjomu un vertikālo komunikāciju apjomu izvietota labiekārtota, apzaļumota jumta terase rezidenču iemītniekiem.

 

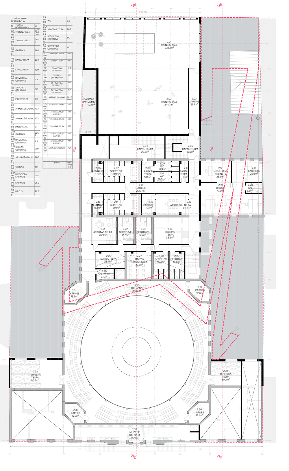
Funkcionāla shēma.

-          Galvenais komunikāciju kodols, kas nodrošina sasaisti ar visām galvenajām Rīgas Cirka apbūves funkcijām atrodas gruntsgabala vidū:

-          Ieejas vestibils, pieejams no abām pusēm, izvietots rekonstruētajā Zirgu stallī. Ieejas vestibils ar garderobēm, WC, kafejnīcu un palīgtelpām ir izmantojams gan pasākumiem, kas notiek Manēžā, gan pasākumiem, kas notiek Black box zālē.

Abām funkcionālajām zonām nodrošināti piegādes pieslēgumi no darbnīcām un noliktavām. Ar 2.stāvu savienojumu nodrošina tehniskais lifts.

Starp abām izrāžu zonām izvietotas mākslinieku ģērbtuves, grimmētavas un atpūtas telpas.

Manēžas izmantošanas scenāriji attēloti shēmās.

Projekta priekšlikums paredz likvidēt perimetrālo galeriju nodalošo sienu, vizuāli paplašinot manēžas telpu,

atklājot apskatei kupola konstruktīvo sistēmu, vizuāli savienojot Manēžas telpu ar sānu pagalmiem.

Black box izmantošanas scenāriji attēloti shēmās.

Cirka skolas un rezidenču komunikāciju mezgls apvienots, ievērtējot nepieciešamību taupīt darbinieku resursus. Ieejas mezgls pieejams no gājēju pasāžas.

Cirka skolas zāļu izvietojums nodrošina to izmantošanu gan atsevišķi, gan savienojot kopā vairākas, gan sadalot Lielo zāli vairākās daļās.

Cirka skolas lielajai zālei plānota atverama gala siena, kas zālei atļauj pievienot ārtelpas terasi ar skatītāju vietām Cirka skolas izrāžu vērošanai.

Terase savukārt savienota vienotā sistēmā ar Pilsētpētnieku laipām.

Ārtelpas terase ar skatītāju vietām izmantojama arī āra kino seansu vērošanai.

 

Piegādes un tehniskās telpas izvietotas pagrabā un 1.stāvā ēkas tumšākajā daļā ar piekļuvi no A.Kalniņa ielas un nodrošinot tehnisko apkalpi visām kompleksa funkcijām.

 

Konstruktīvais risinājums.

·         Vēsturiskie apjomi.

-          Saglabājamās vēsturiskās ķieģeļu mūra būves – saudzīgi pastiprināmas, izmantojot materiālus, kas nodrošina vēsturiskās substances maksimālu saglabāšanu,

-          Vēsturiskās Manēžas kupola konstrukcijas maksimāli eksponējamas interjerā. Kupola konstruktīvais pastiprinājums izbūvējams slēpts jaunveidojamajā siltinātā jumta konstrukcijā.

·         Jaunbūvējamie apjomi.

-          Black box apjoms. Telpisku metāla kopņu stabila 3dimensionāla sistēma, kas balstīta uz 12 kolonām. Kolonas izvietotas līdzās vēsturiskajām mūra sienām, pāļu izbūvi veicot ar urbšanas metodi, darbu gaitā nodrošinot vēsturisko konstrukciju tehniskā stāvokļa monitoringu.

Apjoma balstīšana uz jaunizbūvētām kolonām nodrošina maksimālu vēsturiskās substances saglabāšanas iespēju, nenoslogojot to ar papildus apjoma balstīšanu.

Telpisko metāla kopņu sistēma nodrošina:

-          Liellaiduma bezkolonu pārsegumu,

-          7t punktveida slodzes iespējamību visos pārseguma punktos,

-          Dubultās fasādes izveidošanas iespēju,

-          Jaunveidojamā apjoma izbūvi virs vēsturiskajām konstrukcijām.

-          Cirka skolas apjoms. Interjerā eksponēta koka kopņu sistēma, kas balstīta uz līmēta koka kolonām ēkas 1.stāvā. Atklātās koka konstrukcijas interjerā kopā ar koka paneļu pārbīdāmo sienu, kas atdala vienu zāli no otras, rada vizuāli mājīgu iekštelpas sajūtu.

Koka konstrukciju un apdares viengabalainību nodrošina apjoma pagalma D fasādes koka brusu vertikāls apšuvums virs stiklotās sienas plaknes, kas vienlaicīgi nodrošina  gan regulētu dienasgaismu, gan aizsardzību pret pārkaršanu.

-          Rezidenču apjoms virs Cirka skolas apjoma plānots koka karkasa konstrukcijā, turpinot zemāk esošo konstruktīvo sistēmu.

Koka konstrukciju ēku atgriešana pilsētvidē atbilst progresīvajām būvniecības tendencēm, kas sasaucas ar Rīgas Laikmetīgā cirka progresīvajiem attīstības uzstādījumiem.

-          Pilsētpētnieku laipas. Metāla kopņu konstrukciju laipas pāri teritorijai – 3dimensionāla kopņu konstrukcija, kas tiek balstīta gan uz esošajām konstrukcijām, gan speciāliem metāla stabiem. Pandusiem ik pēc 3m paredzēti horizontāli laukumiņi.

Plānotā skatītāju zona āra  terasē brīvdabas kinoteātra izrādēm un Cirka skolas uzvedumu vērošanai atvērtas zāles sienas gadījumā - Metāla kopņu konstrukcija ar sēžamiem pakāpieniem.

 

Telpu iekārtojums Laikmetīgā cirka vajadzībām.

·         Black box

Apjoma nesošā telpisko metāla kopņu konstruktīvā sistēma nodrošina:

-          Liellaiduma bezkolonu pārsegumu,

-          7t punktveida slodzes iespējamību visos pārseguma punktos,

-          Ērtas iekārto sistēmu stiprināšanas vietas konstruktīvajā režģī gan ekipējumam, gan gaismām,

Sabīdāmās skatītāju tribīnes dod iespēju transformēt telpu dažādu izrāžu formātu vajadzībām,

Apjoma dubultā fasāde rada iespēju māksliniekiem zālei piekļūt no dažādiem punktiem,

Atverot bīdāmās durvis uz aizskatuvi, nepieciešamības gadījumā iespējams pievienot improvizētu skatuves zonu,

Mākslinieku telpām plānots tiešais savienojums ar ģērbtuvēm stāvu zemāk.

Virs konstrukcijām paceltā grīda dod iespēju pārvietot komunikāciju pievadus pēc vajadzības,

Zonā starp skatītāju tribīnēm plānots ar pacelto grīdu pārsegts sekls baseins. Atspīdumi ūdens spogulī un mākslinieku kustība pa ūdeni izrāžu laikā varētu būt īpašs papildinājums zāles piedāvātajām funkcijām.

·         Cirka Manēža

Lai nodrošinātu iespēju māksliniekiem droši uzstāties Manēžas telpā, galvenajiem priekšnesumiem paredzēta brīvstāvoša, ar kupola konstrukcijām nesaistīta kopņu konstrukcija.

Atjaunotā vēsturiskā Manēža radīs iespēju gan gatavot uzvedumus tieši apaļai arēnai, gan pieņemt ārvalstu māksliniekus, kuriem pietrūkst iespējamo uzstāšanās vietu apaļās manēžās.

Manēžas sēdvietu nodrošināšanai paredzēts izmantot sabīdāmo tribīņu moduļus, kurus iespējams pilnībā izvākt no Manēžas, tos pārvietojot uz tiem speciāli paredzētajām tehniskajām telpām.

Likvidējot galeriju nodalošo sienu, rodas vēl lielāka Manēžas izmantošanas scenāriju daudzveidība.

Manēžas telpa ērti savienota ar piegādes zonu, gan ar ģērbtuvēm 2.stāvā.

·         Cirka Skola

Cirka skolas 3 zāles sagrupētas tā, lai būtu iespējams tās vajadzības gadījumā apvienot vai sadalīt.

Cirka skolas lielajai zālei paredzēta iespēja, atverot gala sienu, to savienot ar ārtelpu, kurā izvietoti sēžamie pakāpieni.

Interjerā eksponētās koka konstrukcijas un bīdāmo sienu koka apdare rada patīkamu iekštelpas atmosfēru, kuru pastiprina netiešas dienasgaismas klātbūtne telpās.

Zāles griestu kontrukcijā iekārti metāla kopņu konstrukciju režģi dažādu stiprinājumu vajadzībām.

Lielajā zālē plānots grīdas padziļinājums, izveidojot Foam Pit ,ar elestīga materiāla izstrādājumiem pildītu bedri, kas nodrošina drošu krišanu mācību procesa un treniņu laikā.

·         Rezidences

Cirka mākslas attīstības nodrošināšanai nepieciešamās rezidences izvietotas funkcionāli nodalītā divstāvu apjomā ar lielu labiekārtotu jumta terasi.

Gaišas un ērtas rezidenču telpas dod iespēju uzkrāt spēkus radošam darbam.

·         Administrācija

Cirka administrācijas telpas izvietotas gaišās telpās apjoma vidū, virs ieejas vestibila, ļaujot vienlīdz ātri sasniegt un kontrolēt procesus visās ēkas daļās.

 

Inženiertehniskie risinājumi - energoefektivitāte.

·         energoefektīvu būvju risinājumi

-          selektīvie stikli, ar aprēķinātu atstarošanas un siltuma caurlaidības koeficientu, Led gaismas, Black box apjoma dubultās fasādes sienas risināmas ar Solar Wall tehnoloģiju, rekuperācija, nelieli siltumzudumi, dubultās fasādes pret pārkaršanu vai ātru atdzišanu,

·         akustikas risinājumi :

-          funkcionāli apjomi ir skaidri nodalīti viens no otra, nodrošinot katras funkcijas darbību neatkarīgi, akustiski netraucējot citus,

-          kā akustiskās izolācijas materiāls telpu sienām un griestiem paredzētas Heraklith C fibrolīta plāksnes.

 

Vides pieejamības prasības

-          Vides pieejamība visos līmeņos tiek nodrošināta vai nu izmantojot vienlīmeņa savienojumus, vai liftus.

-          Paredzētas vietas invalīdu transportam.

-          Paredzēti gabarītiem atbilstoši sanmezgli.

-          Kāpņu un pandusu abās pusēs ierīkotas ar apkārtējo vidi kontrastējošas margas ar rokturiem divos augstumos (0,7 m un 0,9 m augstumā).

-          Pilsētpētnieku laipas pandusiem, kas ir garāki par 6 m, ne retāk kā pēc 3 m izvietoti horizontāli starplaukumi, paredzēts speciāls lifts nokļūšanai uz laipas.

 

Tehniski ekonomiskie rādītāji:

-          apbūves laukums – 2683.4 m²,

-          stāvu kopējās (bruto) platības 5709.0 m² (pa ēku ārējo perimetru, virszemes apjoms),

-          lietderīgās stāvu kopējās platības  - 6103.2 m²,

-          ēkas būvapjoma kubatūra - 21 360.0m³,

-          autostāvvietu skaits 7 gab.

-          velosipēdu stāvvietu skaits 60 gab 

 

 atpakal




Spameris
Drošības kods: > > >