aktuali projekti teksti process darbinieki

06.10.2025

 

Foto: Ansis Starks

  Foto: Ansis Starks

Foto: Ansis Starks 

Foto: Ansis Starks

Foto: Uldis Lukševics

 Foto: Ansis Starks

Foto: Ansis Starks

Foto: Ansis Starks 

Foto: Ansis Starks

Foto: Ansis Starks 

Foto: Ansis Starks 

Foto: Ansis Starks 

 Foto: Ansis Starks

Foto: Ansis Starks

 Foto: Ansis Starks

 Foto: Ansis Starks

 

 

Draw: Ivars Veinbergs

 Draw: Ivars Veinbergs

 Draw: Ivars Veinbergs

Draw: Ivars Veinbergs 

 Draw: Ivars Veinbergs

 Draw: Ivars Veinbergs

Foto: Uldis Lukševics

 Foto: Ildis Lukševics

 

 

 Winning proposal for the Riga Creative Quarter "Tobacco Factory" (2018): 

The Tobacco Factory quarter is to be developed as a creative quarter, bringing together the opportunities of interdisciplinary education, creative entrepreneurship, innovations and cultural activities. The Tobacco Factory is to be adapted for the study process of the Latvian Academy of Culture and for the operation of a creative industries incubator. The territory of the Tobacco Factory will include premises of the Latvian Academy of Culturea filming pavilion, Latvian Academy of Culture dormitories, the Riga Film Museum and the Latvian creative industries incubator. 

The plan, facades and public space organisation clearly separate: (1) the FILM/PHOTOGRAPHY building, joining the Riga Museum of Film and Photography, the National Film School with the filming pavilion and the Cinema, (2) the Latvian Academy of Culture building is connected to the Library building via ground finish in the yard, (3) the Latvian creative industries incubator is connected to the Workshop block and the LAC building, (4) Latvian Academy of Culture dormitories.

The conceptual axis of the creative quarter is the Library of the Academy of Culture, supplemented with a Bookshop/Cafe, a green roof terrace and an outdoors exercise machine terrace (“healthy spirit in a healthy body”). The library as a repository of knowledge is the best symbolic representation for the entrance into an education institution. The Bookshop/Cafe is closest to Miera street, inviting passers-by to glimpse the world of books.

The Cinema is intended as the anchor point for public events in the creative quarter, enabling additional student and public events related to watching films.Themed public events at the Cinema will promote the societal integration of the quarter and public education. A covered parking garage is to be constructed under the Cinema. The entrance stairs and ramp leading to the lobby can be used as an amphitheatre for small outdoors events, and as covered sitting stairs next to the cafe located under the inclined plane of the Cinema.

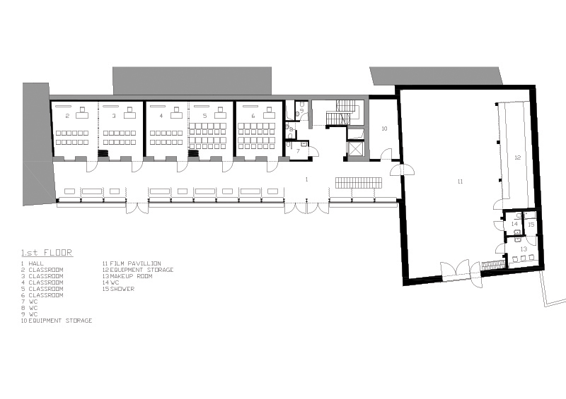
The Riga Museum of Film and Photography occupies a part of a building connected to the Cinema on the ground, first and second floors. 

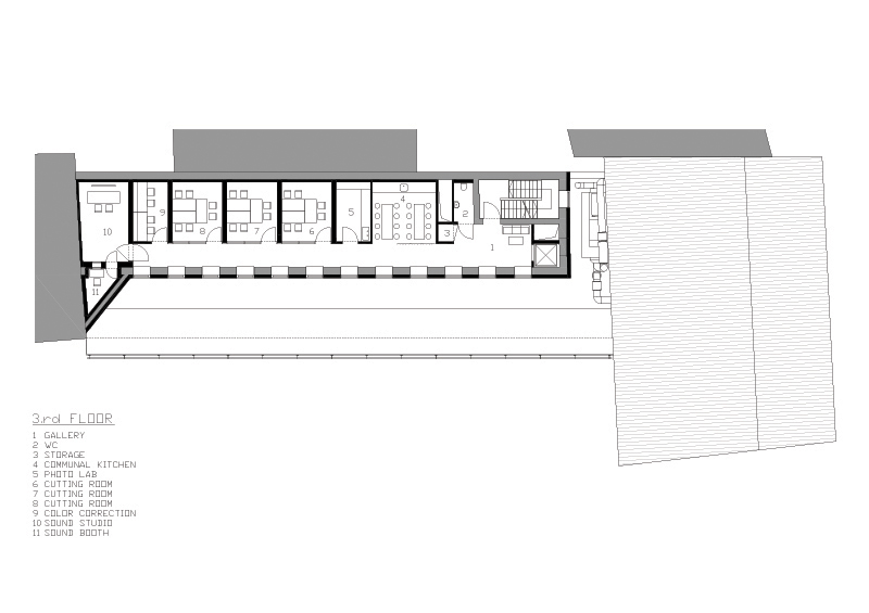
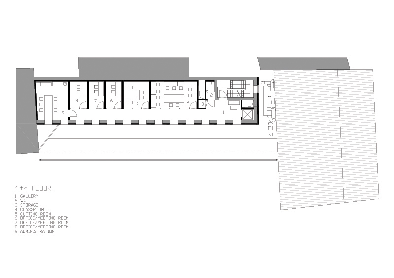
The National Film School occupies premises on the third and fourth floor with a separate entrance at yard level. The proposal intends to use the former Small hall as a filming pavilion by dismantling the unnecessary constructions. 

In the building of the Latvian Academy of Culture – to provide daylight for as many rooms as possible, several windows eliminated during reconstructions are to be restored. To ensure the functionality and accessibility of the Academy building, a new entrance area is created on yard level, including extensive glazing and an entrance atrium two levels tall with exposed reinforced concrete structural bearings. This enables us to show the public a small part of the hidden industrial heritage.

Latvian creative industries incubator: The proposal plans to externally insulate the 1985 sand-lime brick building with Eco wool, using mass-painted EPDM membrane for the facade finish, reinforced with stainless steel anchors fastened at certain points to the existing structural frame.  The result is an eye-catching, unusual facade in the spirit of the Creative industries incubator as well as a well-insulated building.

The proposal plans for a building complex that makes use of architectural means of expression to unambiguously communicate the presence of creative industries. Considering the funds invested in the insulation of building No. 1, the planned reconstruction budget and the expected users of the buildings, the project proposal aims to create the visual image and outdoor spaces of the buildings in a way that contradicts the traditional idea of the reconstruction of historical buildings. The building volumes suggested in the design proposal are intended to be easily perceptible. Each block of the creative quarter along with its related outdoor space is intended to have a monochrome finish. In this way, the colour palette of the quarter consists of 4 shades which, in visually marking the respective functions, symbolically communicate their nature.

The public space organisation concept of the territory continues the architectural solution onto the ground finish plane of the yard. The facade shade of individual buildings carries over onto the ground finish of the yard – in both the granulated rubber pavement and the epoxy paint of paths – accentuating the unified function of the territory and the building, and visually directing pedestrian flows. The ground finish of the TABFAB creative quarter also continues into the pedestrian zone of the street, visually inviting passers-by into the yard. The shade of the ground finish is also carried over into fixed wooden benches, combined with plant beds for evergreens. In addition to fixed benches, the proposal plans for identically coloured portable outdoor benches which, as they switch places over time, will tell a visual story about the mixing of various creative functions within the quarter. 

Green spaces constitute an important element of the public space organisation. The proposal plans for several plantation groups that work together to create a complex, multi-level green space: (1) the cherry orchard of the Academy combines with fixed benches and lighting elements to provide a visual continuation of the Library volume in the direction of the Academy, slightly separating the Museum square from the Academy square. The cherry trees on the red ground finish will stand out in every season, (2) the apple orchard with its camp-fire site between the Academy and the Incubator calls back to the current Academy yard in Maskavas district. The territory around the camp-fire with its portable outdoor benches is intended to host traditional open-air lectures and events; to be used by both the Academy and the Incubator. (3) Birch grove by the Incubator entrance. (4) Evergreens in the plant beds of the fixed benches. (5) Green Library roof terrace. (6) Green Incubator roof terrace. (7) Existing trees are to be preserved. (8) Green belts of bushes along the Residence. (9) Green belts of ivy integrated in the stair system of the Museum.

http://www.nrja.lv/uploads/projekti/TABFAB01.jpg

http://www.nrja.lv/uploads/projekti/TABFAB02.jpg

http://www.nrja.lv/uploads/projekti/TABFAB03.jpg

http://www.nrja.lv/uploads/projekti/TABFAB04.jpg

 

http://www.nrja.lv/uploads/projekti/TABFAB05.jpg

http://www.nrja.lv/uploads/projekti/TABFAB06.jpg

http://www.nrja.lv/uploads/projekti/TABFAB07.jpg

 

http://www.nrja.lv/uploads/projekti/TABFAB08.jpg

 

http://www.nrja.lv/uploads/projekti/TABFAB09.jpg

 

http://www.nrja.lv/uploads/projekti/TABFAB10.jpg

 

http://www.nrja.lv/uploads/projekti/TABFAB11.jpg

 

http://www.nrja.lv/uploads/projekti/TABFAB12.jpg

 

http://www.nrja.lv/uploads/projekti/TABFAB13.jpg

 

http://www.nrja.lv/uploads/projekti/TABFAB14.jpg

 

http://www.nrja.lv/uploads/projekti/TABFAB15.jpg

 

http://www.nrja.lv/uploads/projekti/TABFAB16.jpg

 

http://www.nrja.lv/uploads/projekti/TABFAB17.jpg

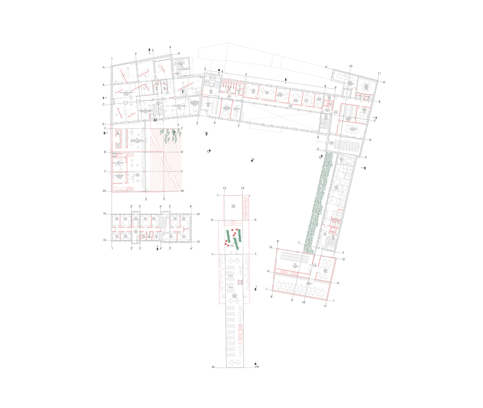
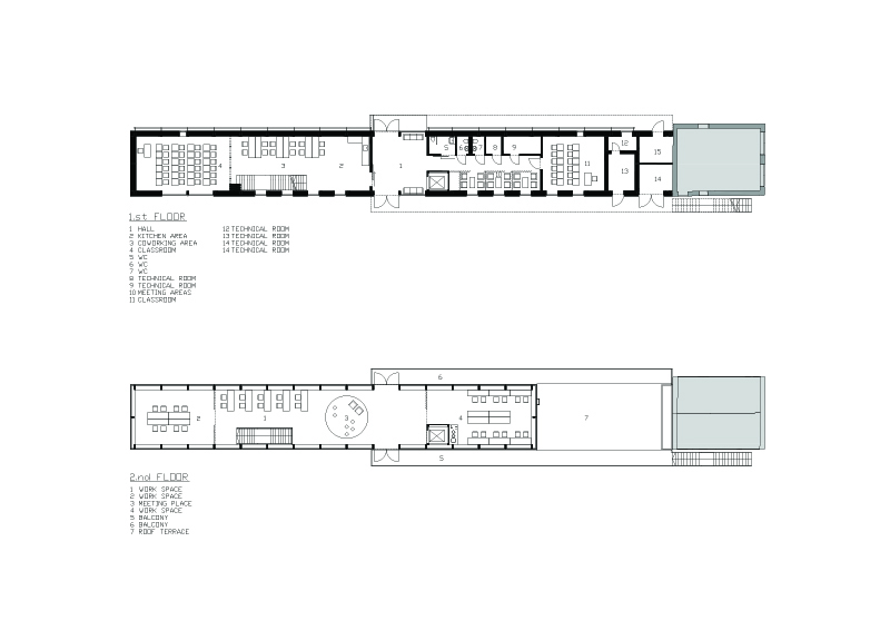
 First floor plan

 

http://www.nrja.lv/uploads/projekti/TABFAB18.jpg

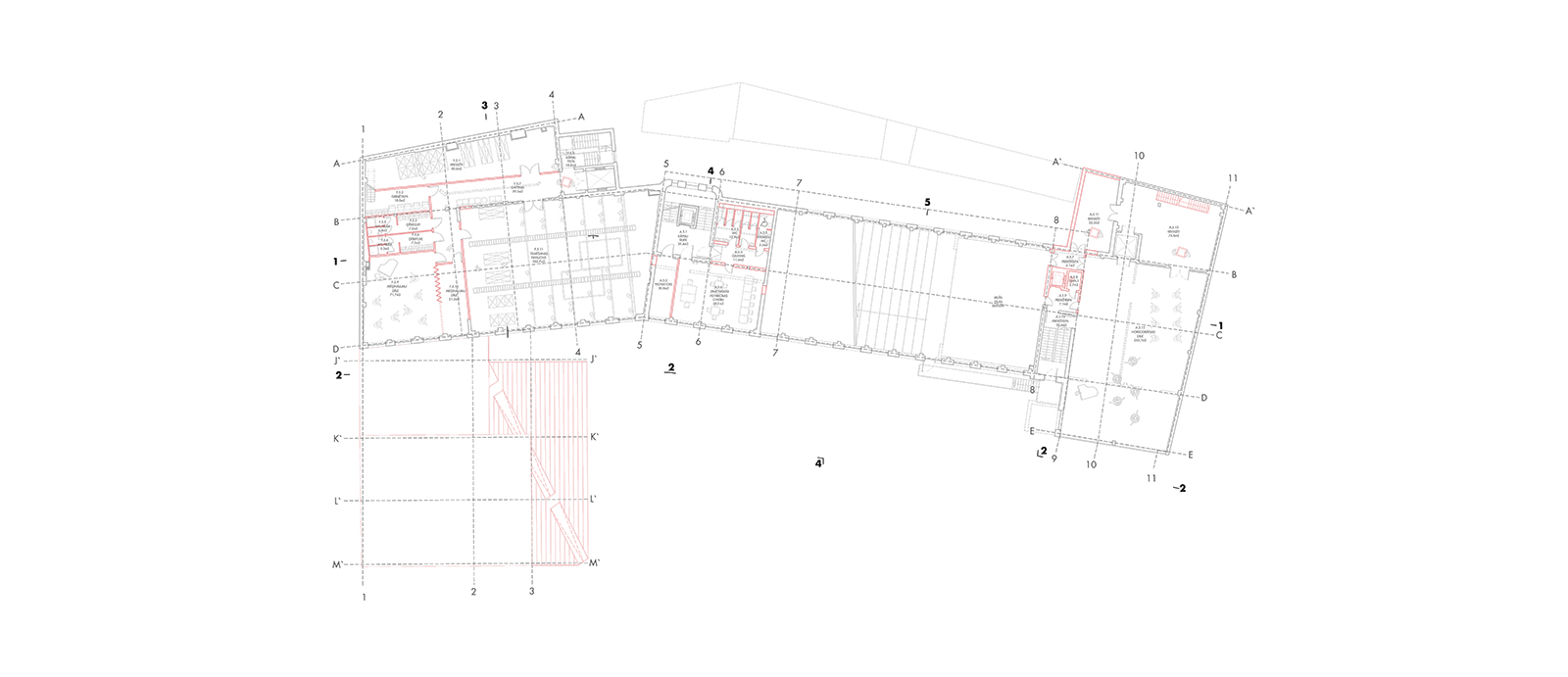
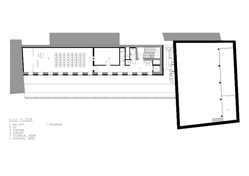
Second floor plan

 

http://www.nrja.lv/uploads/projekti/TABFAB19.jpg

 

Third floor plan

 

http://www.nrja.lv/uploads/projekti/TABFAB21.jpg

Fourth floor plan

 

http://www.nrja.lv/uploads/projekti/TABFAB22.jpg

 

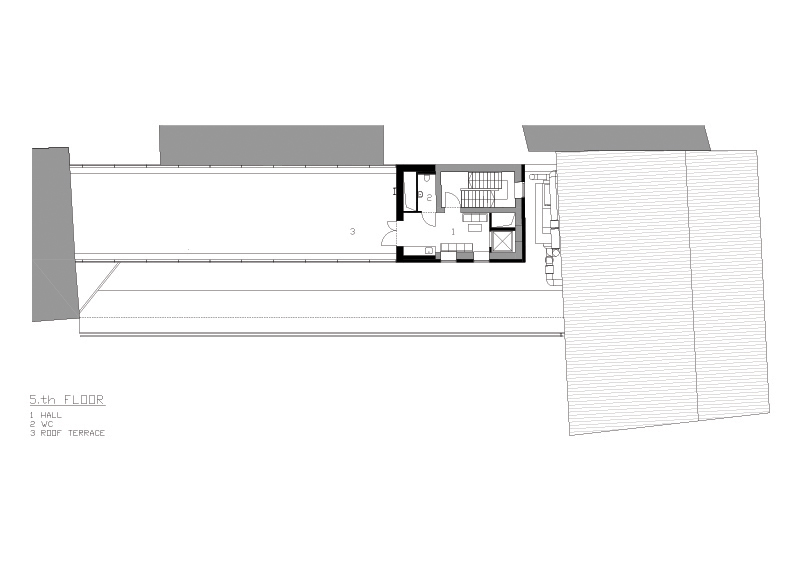
Fifth floor plan

 

http://www.nrja.lv/uploads/projekti/TABFAB23.jpg 

 

 atpakal




STUDENTS 2024-11-09 13:33:47
Pīpētājus nenorobežosiet slēgtā vietā
STUDENTS ED 2024-10-29 23:56:09
Labs darbs!
온라인카지노 2019-05-25 05:44:38
This is certainly the best article. Very well constructed about blog commenting. Blog commenting plays a good role in SEO infact approving the comments is biggest achievement. 온라인카지노
바카라사이트 2019-05-25 05:43:51
Great Tip! I have stopped doing blog commenting because I am cautious with all the updates google is implementing. Thank you so much for a great share and will do blog commenting again for my clients and add it again to my strategy. 바카라사이트
하이게이밍 2019-05-25 05:43:26
Thanks for posting such an informative article. Rerely on internet, one comes across informative ones such as this! I am a newbie who is trying my hand in SEO. I was reading various blogging tutorial sites, but coudn’t find what I want anywhere! kudos to the team behind this blog! 호텔카지노
바카라사이트 2019-05-25 05:42:53
This post is really insightful, it has helped me understand so many things. It’s very important for me to tell you these bolg commenting techniques. I worked on this technique and I got very good results. So, Thank You Sir… https://mnm777.com
Spameris
Drošības kods: > > >