aktuali projekti teksti process darbinieki

11.01.2019

http://www.nrja.lv/uploads/projekti/KKC_01.jpg

3RD PLACE IN THE COMPETITION FOR THE RECONSTRUCTION OF KULDĪGA CULTURAL CENTRE BUILDING AND COURTYARD

Although the building of Kuldīga Cultural centre (KCC) does not possess architectural or artistic value, its historical worth in the cultural life of Kuldīga is invaluable. The status of KCC is being restored in a contemporary manner while preserving the authentic elements of the building.

Architectural solutions

A new „black box” hall with a modern technical attic is proposed atop of the historical warehouse volume. The new hall is connected with the historical building with a glass gallery along the courtyard facade of the new hall. The existing hall is transformed into four separate rehearsal halls. The former technical attic is transformed into the new administrative block.

Coloured 3D brick walls are used as finish for the new volume. The roof of the new hall is covered with traditional S-type clay tiles, continuing the interplay of various sloped roofs in the immediate surroundings.

Urban planning solutions

The need for a new significant outdoor space coincides with an accent to the end of Raiņa Street – an important element of the urban fabric. A new square is proposed. The new Raiņa square is a logical end to Raiņa Street and a connection point of several important streets and directions in the historical centre of Kuldīga. It is a new public outdoor space in the urban fabric of the town. By assigning a concrete function, life is brought back into the town. KCC gains a front square with a covered terrace and an opportunity to bring the creative activities out in the townscape.

The courtyard features a partially covered area for outdoor workshops. The sitting stair is located beneath the volume of the new hall.

VIZUALIZĀCIJA. SKATS NO RAIŅA IELAS:

http://www.nrja.lv/uploads/projekti/KKC_02.jpg

VIZUALIZĀCIJA. IEKŠPAGALMS:

http://www.nrja.lv/uploads/projekti/KKC_03.jpg

VIZUALIZĀCIJA. IEKŠPAGALMS: 

http://www.nrja.lv/uploads/projekti/KKC_04.jpg

VIZUALIZĀCIJA. SKATS UZ LEONA PAEGLES IELU: 

http://www.nrja.lv/uploads/projekti/KKC_05.jpg

VIZUALIZĀCIJA. JAUNĀS ZĀLES INTERJERS: 

http://www.nrja.lv/uploads/projekti/KKC_06.jpg

APJOMU ANALĪZE: 

http://www.nrja.lv/uploads/projekti/KKC_07.jpg

 ĢENERĀLPLĀNS:

http://www.nrja.lv/uploads/projekti/KKC_08.jpg

 

http://www.nrja.lv/uploads/projekti/KKC_09.jpg

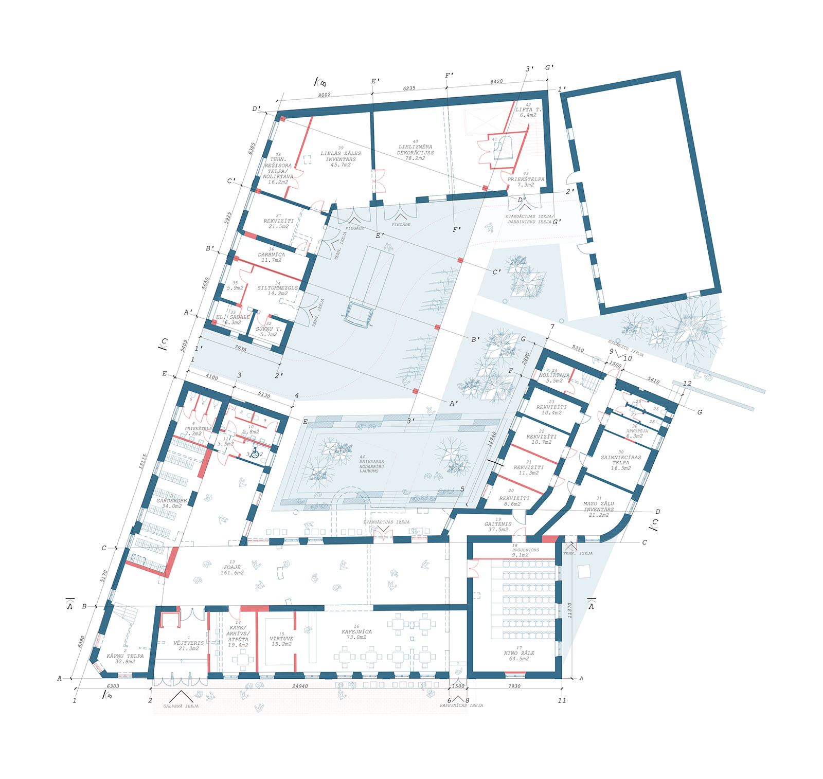
1. STĀVA PLĀNS: 

http://www.nrja.lv/uploads/projekti/KKC_10.jpg

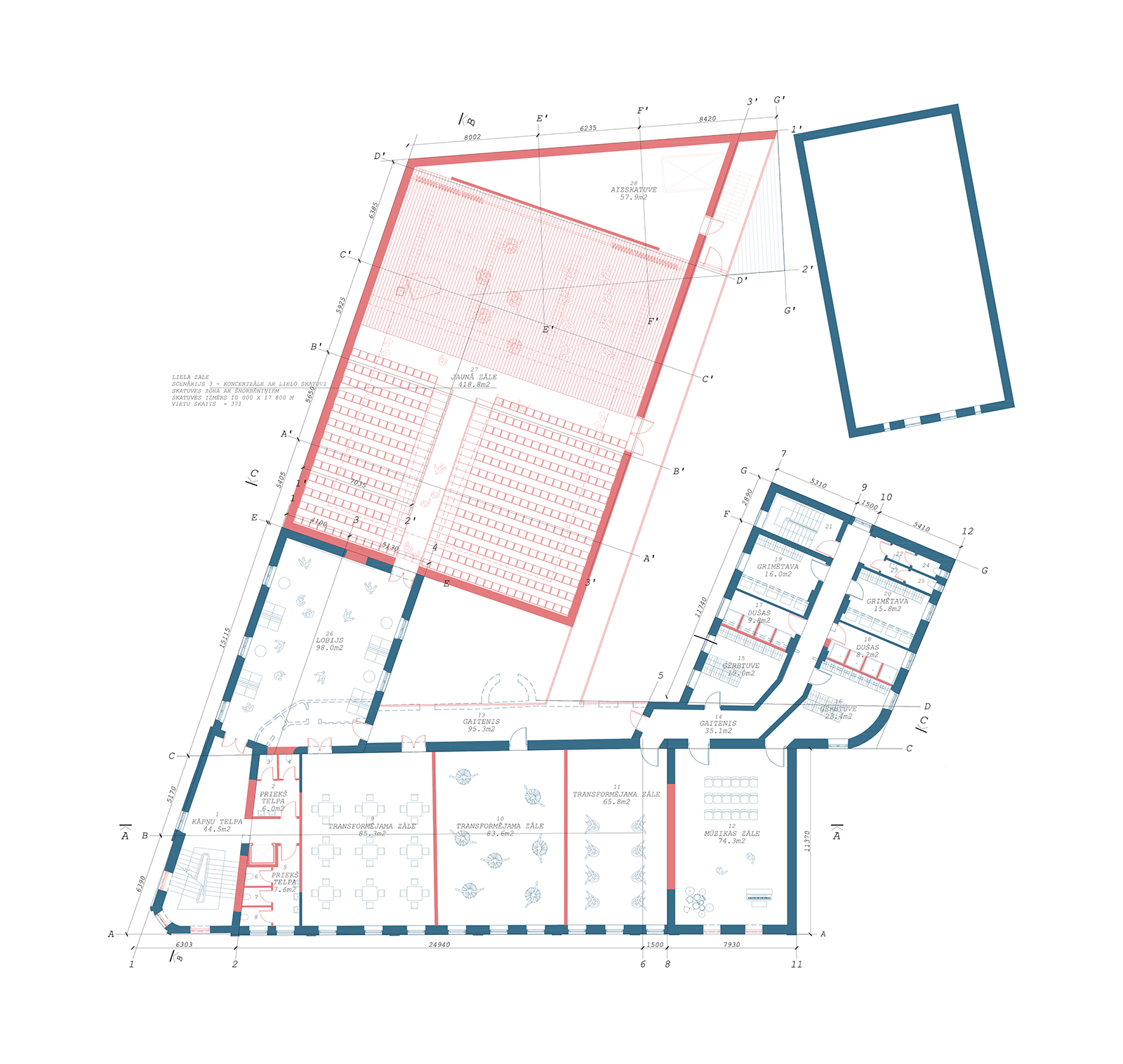
2. STĀVA PLĀNS: 

http://www.nrja.lv/uploads/projekti/KKC_11.jpg

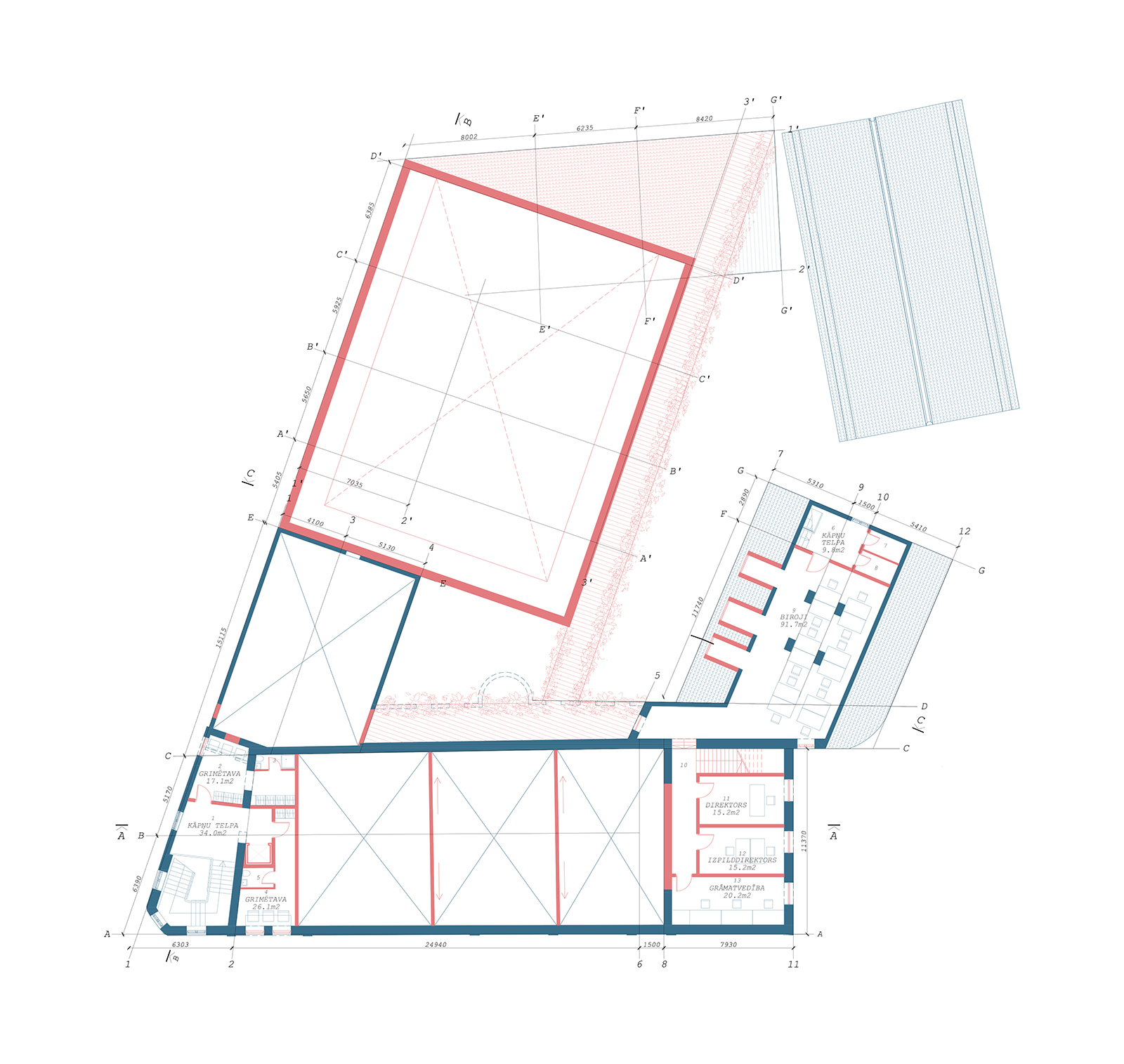
3. STĀVA PLĀNS: 

http://www.nrja.lv/uploads/projekti/KKC_12.jpg

4. STĀVA/JUMTA PLĀNS: 

http://www.nrja.lv/uploads/projekti/KKC_13.jpg

FASĀDES: 

http://www.nrja.lv/uploads/projekti/KKC_14.jpg

GRIEZUMI: 

http://www.nrja.lv/uploads/projekti/KKC_15.jpg

JUMTA UN SIENU SASTĀVS AKSONOMETRIJĀ: 

http://www.nrja.lv/uploads/projekti/KKC_16.jpg

GRIEZUMS. RAIŅA LAUKUMS: 

http://www.nrja.lv/uploads/projekti/KKC_17.jpg

TREŠĀ VIETA KONKURSĀ PAR KULDĪGAS KULTŪRAS CENTRA ĒKU UN PAGALMA PĀRBŪVI UN ATJAUNOŠANU

Lai gan Kuldīgas Kultūras centra (KKC) ēkai ne sākotnēji, ne vēlākos uzslāņojumos nav izteiktas arhitektoniski mākslinieciskas vērtības, tās vēsturiskā nozīme ir nepārvērtējama Kuldīgas kultūras dzīvē, tādēļ ēkas statuss kā Kuldīgas kultūras dzīves centrs tiek reabilitēts ar mūsdienīgiem paņēmieniem, pēc iespējas saglabājot esošos autentiskos ēkas elementus.

Arhitektoniskie risinājumi

Predzēts izbūvēt jaunu “black box” zāles apjomu ar mūsdienīgiem šņorbēniņiem, virs vēsturiskā noliktavu apjoma. Jaunās zāles sasaiste ar vēsturisko ēku paredzēta, izbūvējot stiklotu galeriju ar apzaļumotu jumtu gar Jaunās zāles pagalma fasādi. Esošā Lielā zāle tiek pārveidota četrās atsevišķās nodarbību/mēģinājumu zālēs. Bijušajos šņorbēniņos izbūvēts jaunais administrācijas bloks ar jaunām logu un jumtu izbūvēm.

Jaunā apjoma ārsienu apdare virs vēsturiskā ķieģeļu mūra plānota kā masā krāsots ķieģeļu 3D mūris. Jaunās zāles jumta apjoms plānots ar tradicionālo S veida māla kārniņu segumu, mūsdienīgā veidā turpinot dažādo jumta plakņu slīpumu saspēli, iekļaujot kopējo KKC apjomu pilsētas jumtu ainavā.

Pilsētbūvnieciskie risinājumi

Vajadzība pēc nozīmīgas publiskas ārtelpas/priekšlaukuma sakrīt ar pilsētbūvnieciski svarīgas Raiņa ielas noslēguma akcentēšanu, izveidojot Raiņa laukumu. Raiņa laukums ir loģisks Raiņa ielas noslēgums, dažādu esošu ielu un virzienu loģisks satekpunkts. Tā ir  jauna nozīmīga publiska ārtelpa Kuldīgas pilsētvidē. Piešķirot funkciju, tiek atdota dzīvība svarīgai pilsētas teritorijai. KKC ar Raiņa laukumu iegūst priekšlaukumu ar segtu āra terasi un KKC darbības iznešanu pilsētvidē.

Pagalma teritorijā izveidojama daļēji segta labiekārtota zona brīvdabas nodarbībām - sēžamās kāpnes daļēji izvietotas zem Jaunā apjoma pārseguma. Brīvdabas nodarbību zonā augi izvietoti tonēta polimērbetona podos, pārējā brīvajā teritorijā – dabīgajā augsnes pamatnē.

  

 atpakal




Spameris
Drošības kods: > > >