aktuali projekti teksti process darbinieki

09.10.2019

COMPETITION PROPOSAL FOR AN ADDITION TO THE LATVIAN NATIONAL THEATRE

A new Black box hall sits symmetrically on the main axis of the existing building. By covering it in a bronze mesh a local landmark is creted. Transparency, flexibility, overlapping of functions and transformation characterize the proposal. An outdoor amphitheatre, a scenography gallery and a system of ramps ensures an active engagement with the wider public.  

http://www.nrja.lv/uploads/projekti/lnt00.jpg

http://www.nrja.lv/uploads/projekti/lnt01.jpg

http://www.nrja.lv/uploads/projekti/lnt02.jpg

Canal facade 

http://www.nrja.lv/uploads/projekti/lnt03.jpg

Street facade 

http://www.nrja.lv/uploads/projekti/lnt04.jpg

Masterplan 

http://www.nrja.lv/uploads/projekti/lnt05.jpg

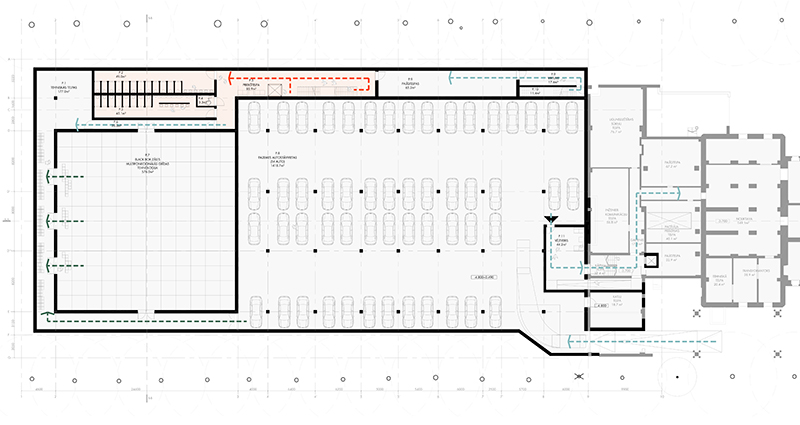
Basement floor plan 

http://www.nrja.lv/uploads/projekti/lnt06.jpg

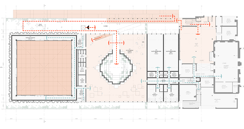
1st floor plan 

http://www.nrja.lv/uploads/projekti/lnt07.jpg

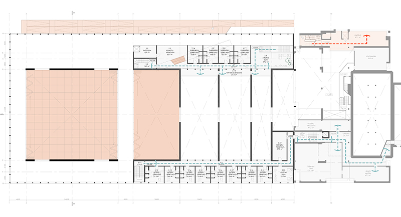
2nd floor plan 

http://www.nrja.lv/uploads/projekti/lnt08.jpg

3rd floor plan 

http://www.nrja.lv/uploads/projekti/lnt09.jpg

  4th floor planhttp://www.nrja.lv/uploads/projekti/lnt10.jpg

Axonometry 

http://www.nrja.lv/uploads/projekti/lnt11.jpg

Longitudinal section 

http://www.nrja.lv/uploads/projekti/lnt12.jpg

 Cross-section

http://www.nrja.lv/uploads/projekti/lnt13.jpg

Black box scheme 

http://www.nrja.lv/uploads/projekti/lnt14.jpg

Amphitheatre scheme 

http://www.nrja.lv/uploads/projekti/lnt15.jpg

 atpakal




Spameris
Drošības kods: > > >