aktuali projekti teksti process darbinieki

02.12.2019

http://www.nrja.lv/uploads/projekti/gemos_01.jpg

NRJA UZVAR METU KONKURSĀ PAR VEIKALU - STUDIJU "GEMOSS" RĪGĀ, BRĪVĪBAS IELĀ 111

Esošās 19.gs sakumā celtās ēkas tēls un mērogs pilsētvidē skatā no publiskās ārtelpas tiek atjaunots un saglabāts vēsturiskajos gabarītos, saglabājot pilsētbūvniecisko sajūtu par Rīgas koka apbūvi. Piebūves apjomu izvietojot aiz vēsturiskās ēkas centrālās ass pagalma virzienā, jaunais apjoms nedominē pār vēsturisko. Vizuāli nelielā iejaukšanās ar jauno apjomu pilsētvidē, plānojot to kvalitatīvās, videi draudzīgās konstrukcijās un apdares materiālos, raksturo ēkas īpašnieku kā atbildīgu sabiedrības locekli. Ar vīteņaugiem apaudzētas jaunā apjoma ārsienas vizuāli simbolizē Īpašnieka attieksmi pret dabas, dabīguma klātbūtni, videi draudzīgu biznesu. Ēkas fasādes vertikālā plaknē turpina apzaļumoto pagalmu un blakusteritorijas neapbūvējamā pagalma labiekārtojumu, ievērojami palielinot apzaļumojamo kvadratūru. Mūsdienu ilgtspējīgā būvniecība apvieno gadsimtu gaitā pārbaudītas zināšanas un modernus tehnoloģiskus risinājumus, panākot optimālu līdzsvaru starp tradīciju un inovatīvu risinājumu pielietojumu. Jaunā apjoma konstruktīvo shēmu veido videi un veselībai draudzīga līmēta koka un CLT (cross laminated timber) paneļu konstrukcija. Koka konstrukciju pielietošana pilsētas apbūvē ir aktuāls un ilgtspējīgai būvniecībai atbilstošs paņēmiens. Būvniecībā kubikmetrs koksnes cita materiāla vietā aiztaupa vidēji 0,8 tonnas CO2 izmešu. 

http://www.nrja.lv/uploads/projekti/gemos_02.jpg

http://www.nrja.lv/uploads/projekti/gemos_03.jpg

http://www.nrja.lv/uploads/projekti/gemos_04.jpg

http://www.nrja.lv/uploads/projekti/gemos_05.jpg

http://www.nrja.lv/uploads/projekti/gemos_06.jpg

 PAGRABA STĀVA PLĀNS

http://www.nrja.lv/uploads/projekti/gemos_15.jpg

1.STĀVA PLĀNS

http://www.nrja.lv/uploads/projekti/gemos_16.jpg

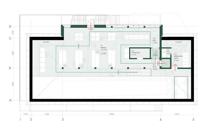
2.STĀVA PLĀNS

http://www.nrja.lv/uploads/projekti/gemos_17.jpg

3.STĀVA PLĀNS

http://www.nrja.lv/uploads/projekti/gemos_18.jpg

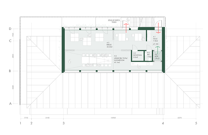
4.STĀVA PLĀNS

http://www.nrja.lv/uploads/projekti/gemos_19.jpg

JUMTA PLĀNS

http://www.nrja.lv/uploads/projekti/gemos_20.jpg 

http://www.nrja.lv/uploads/projekti/gemos_11.jpg

http://www.nrja.lv/uploads/projekti/gemos_12.jpg

http://www.nrja.lv/uploads/projekti/gemos_13.jpg

http://www.nrja.lv/uploads/projekti/gemos_21.jpg

 atpakal




Spameris
Drošības kods: > > >