aktuali projekti teksti process darbinieki

20.01.2021

http://www.nrja.lv/uploads/projekti/k2b_01.jpg

PĀRBŪVE KALNCIEMA IELĀ 2 B

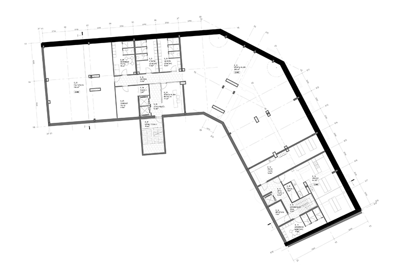
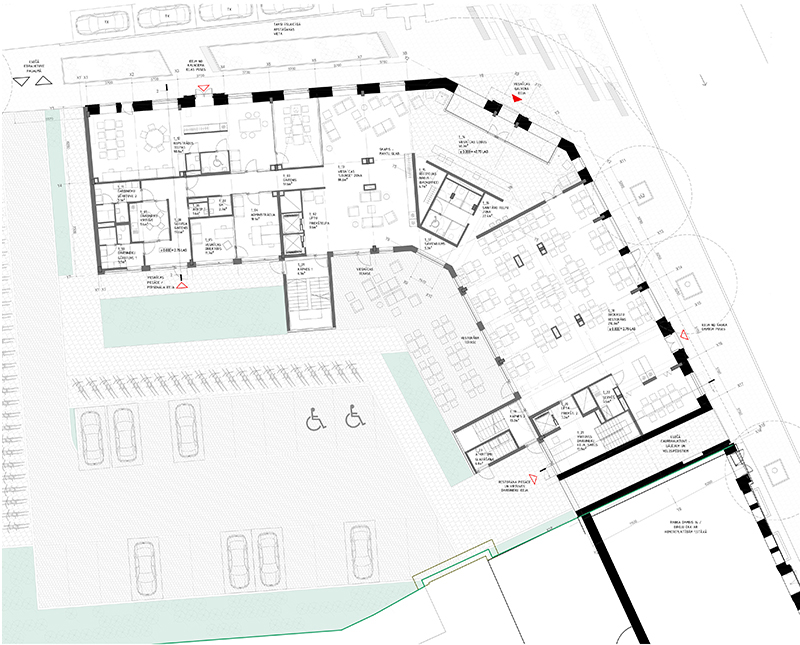
Būvniecības iecere paredz ugunsgrēkā cietušo 6 stāvu dzīvojamo ēku Kalnciema ielā 2b, kas celta 1914. gadā, pēc arhitekta E.V.E. Frīzendorfa projekta, pārbūvēt sākotnējā apjomā pret ielas frontēm, saglabājot un atjaunojot vēsturiskās ēkas Kalnciema ielā 2b fasādi pret Raņķa dambi, kas pēc notikušā ugunsgrēka ēkā tika iekonservēta atbilstoši Būvvaldes nosacījumiem. Tādējādi, braucot vai nākot virzienā no Vanšu tilta puses, ēkas aprises atgādinās to vēsturisko izskatu.

Rīgas pilsētas arhitekta kolēģijas un Būvvaldes padomes sēdēs ir atbalstīts arhitektu biroja "NRJA" veidotais piektais pārbūves variants, kas paredz atjaunot zudušo vēsturisko apjomu un fasāžu dalījumu, pašai fasādes plaknei piemērojot mūsdienīgu risinājumu - ķieģeļu "pikselāciju". Masā krāsoto ķieģeļu mūris atveidos vēsturiskos ciļņus un dekorus, lai fasāde, skatā no publiskās āra telpas, atbilstu tās vēsturiskajam izskatam. Tomēr tuvumā detalizācijas mērogs tiks apzināti mainīts, lai kvartāls atbilstu sabiedrības pieprasījumam pēc mūsdienīgas apbūves. Nākotnē ēka plānota kā viesnīca ar nelieliem numuriņiem, kurā nodrošināta vides pieejamība publiskajām telpām un koplietošanas telpām.

http://www.nrja.lv/uploads/projekti/k2b_02.jpg

http://www.nrja.lv/uploads/projekti/k2b_03.jpg

http://www.nrja.lv/uploads/projekti/k2b_04.jpg

http://www.nrja.lv/uploads/projekti/k2b_05b.jpg

http://www.nrja.lv/uploads/projekti/k2b_06b.jpg

 http://www.nrja.lv/uploads/projekti/k2b_07b.jpg

 atpakal




Spameris
Drošības kods: > > >