aktuali projekti teksti process darbinieki

10.11.2021

https://nrja.lv/uploads/projekti/rck-01.jpg

 

RĪGAS CELTNIECĪBAS KOLEDŽAS ATTĪSTĪBAS VĪZIJA 

RĪGAS CELTNIECĪBAS KOLEDŽAS NĀKOTNES ATTĪSTĪBAS VĪZIJA PAREDZ ATJAUNOT VĒSTURISKO RCK ĒKU, PAMATĀ LIKVIDĒJOT SEKUNDĀRAS IZBŪVES UN MAINOT TELPU FUNKCIONĀLO IZVIETOJUMU, KĀ ARĪ IZBŪVĒJOT JAUNUS, MŪSDIENĪGUS DARBNĪCU, MĀCĪBU UN VIESNĪCAS KORPUSUS. JAUNIE APJOMI PLĀNOTI KĀ ORGANISKI, LAIKMETĪGI VĒSTURISKĀ APJOMA TURPINĀJUMI. 

 Teritorijas izpēte:

 

  • Perspektīvā attīstība izpētes teritorijā plānota strauja un daudzsološa,
  • Esošā zemes gabala attīstības plānošana šajā kontekstā ir loģiska un savlaicīga,
  • RCK attīstības plānošana iespējama ievērtējot visas plānotās satiksmes organizācijas izmaiņas,
  • RCK teritorijas atvēršana pret parku atbilst mūsdienu pilsētbūvniecības principiem.

 

Ģenerālplāna risinājumi:

 

  • Tiek plānota atvērta perimetrālā apbūve nodrošinot atvērtību un sasaisti ar parku,
  • Zemesgabala šaurajā daļā pret Gogoļa ielu izvietota Jaunā zāle, kas ar savu nošķirtību no apbūves perimetra, pasvītro tās lietošanas iespējamību šķirti no RCK
  • Ar auditoriju apjoma pārsedzi uzsvērts ieejas panduss no parka zonas uz jauno galveno ieeju,
  • Piebraucamais ceļš automašīnām ( uz auto novietni (15 auto jaunās zāles pagrabā), piegādes un atkritumu auto) no Gaiziņa ielas, pārplānota esošā iebrauktuve,
  • Paredzēti piegādes vārti uz darbnīcu gaiteņa tehnisko liftu no Prāgas ielas. Piegādes automašīnai plānota īslaicīgas apstāšanās vieta,
  • Plānotais apjoms pret parku novietots ortogonāli pret vēsturisko ēku, radot iespēju izveidot labiekārtotu ārtelpu/priekšdārzu ar velo novietnēm un lietus ūdens uztveršanas kanālu, zemes gabala robežās.

 

Vēsturiskā ēka

 

  • Ņemot vērā veikto finansiālo ieguldījumu vēsturiskās ēkas siltināšanā, netiek plānota nozīmīga iejaukšanās vēsturiskās ēkas struktūrā un ārējā veidolā,
  • Jaunais apjoms plānots kā organisks, mūsdienīgs vēsturiskā apjoma turpinājums,
  • Skaidra, programmai atbilstoša funkcionalitāte, veidojot loģisku saikni ar vēsturiskajā ēkā izvietoto funkciju,
  • Piebūves apjomu pieslēgumi vēsturiskās ēkas spārnu brandmūriem plānoti, ievērtējot esošos gabarītus un formu valodu.

 


Piebūves apjoma formveides pamatprincipi:

 

  • Skaidra, programmai atbilstoša funkcionalitāte, veidojot loģisku saikni ar vēsturiskajā ēkā izvietoto funkciju,
  • Plānotie apjomi veido apbūves perimetru, vienlaicīgi nodrošinot atvērtību un sasaisti ar parku,
  • Ortogonāla struktūra, kas ar jaunajiem apjomiem turpina  vēsturiskās ēkas sānu spārnus, esošās ēkas gabarītos, RVC teritorijas noteiktajos apbūves rādītājos,
  • Eksponētas konstrukcijas, patiesi materiāli – celtniecības koledžas idejai atbilstošs ēkas tēls,
  • Ērts sadalījums būvniecības kārtās,
  • Plānots ēku komplekss, kas ar arhitektoniskās izteiksmes līdzekļiem nepārprotami runā par radošo industriju un būvindustriju klātbūtni tajā.

 

Jaunā apjoma arhitektoniskais risinājums.

 

Pārplānošanas rezultātā iegūstam  funkcionālu skaidrību, plānoto funkcionālo grupu izvietojumā. Plānā, fasādēs tiek skaidri nodalītas:


 

  • Darbnīcas izvietotas cokolstāvā, esošā pagalma teritorijā izbūvējot darbnīcas vienā līmenī ar telpām vēsturiskās ēkas cokolstāvā;
  • Publiskās telpas bibliotēka, ēdnīca, administrācija – izvietotas 1.stāva līmenī,
  •  Mācību telpas klašu telpas esošajā ēkā, klases un auditorijas jaunajā piebūvē
  • Studentu viesnīca izvietota apjomā pret Prāgas ielu,
  • Jaunā zāle ar velo/auto novietni un ģērbtuvēm pagrabstāvā, skatītāju tribīnēm un atsevišķu vingrošanas zāli, āra trenažieru laukumu uz jumta, izvietota Zemesgabala šaurajā daļā pret Gogoļa ielu,
  • Labiekārtots pagalms virs cokolstāvā izvietotajām darbnīcām, ar darbnīcu virsgaismām,
  • Ekstensīvie zaļie jumti virs viesnīcas un auditoriju apjomiem

 

https://nrja.lv/uploads/projekti/rck-02.jpg

https://nrja.lv/uploads/projekti/rck-03.jpg

https://nrja.lv/uploads/projekti/rck-04.jpg

https://nrja.lv/uploads/projekti/rck-05.jpg

Konstruktīvā shēma: 

https://nrja.lv/uploads/projekti/rck-06.jpg

Funkcionālā shēma: 

https://nrja.lv/uploads/projekti/rck-07.jpg

Garengriezums: 

https://nrja.lv/uploads/projekti/rck-08.jpg

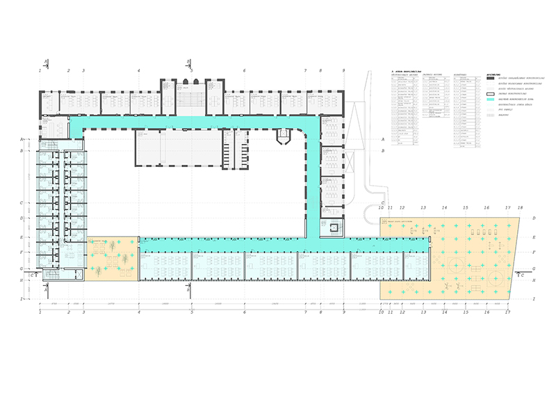
Ģenerālplāns: 

https://nrja.lv/uploads/projekti/rck-09.jpg

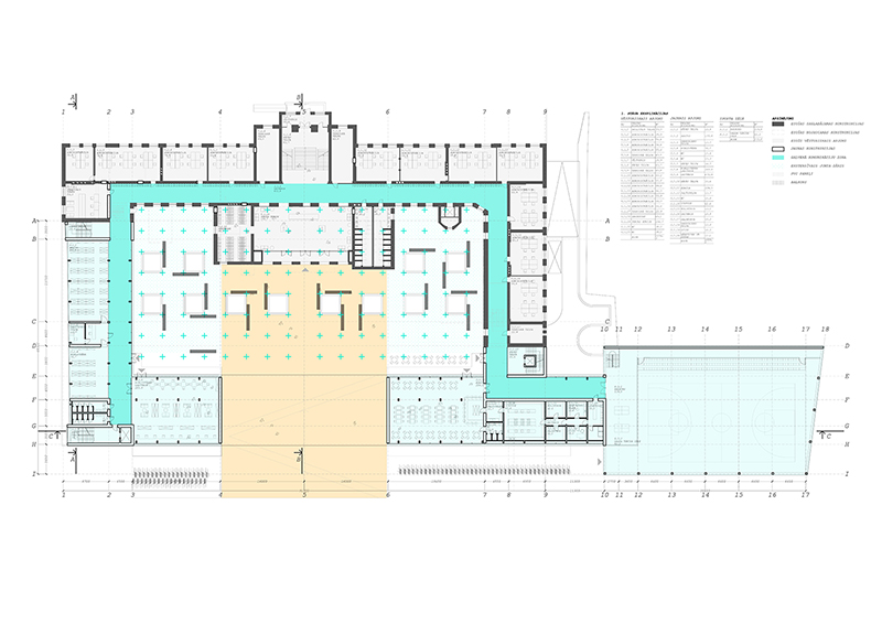
Pagraba stāva plāns: 

https://nrja.lv/uploads/projekti/rck-10.jpg

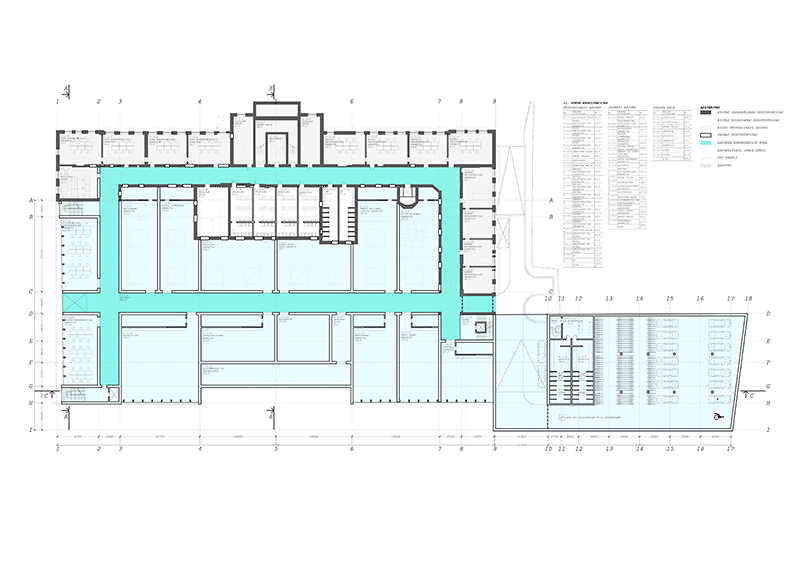
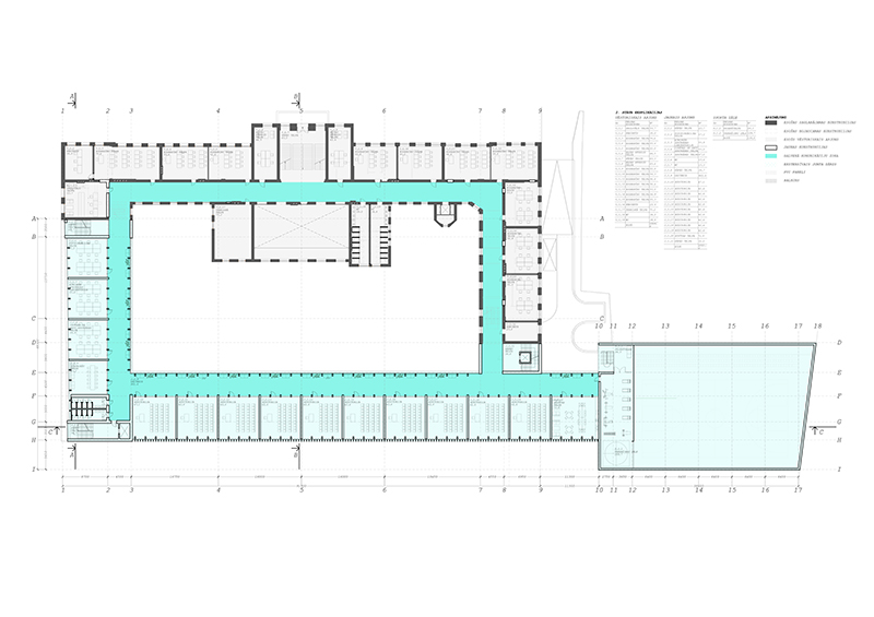
1. stāva plāns: 

https://nrja.lv/uploads/projekti/rck-11.jpg

2. stāva plāns: 

https://nrja.lv/uploads/projekti/rck-12.jpg

3. stāva plāns: 

https://nrja.lv/uploads/projekti/rck-13.jpg

4. stāva plāns: 

https://nrja.lv/uploads/projekti/rck-14.jpg

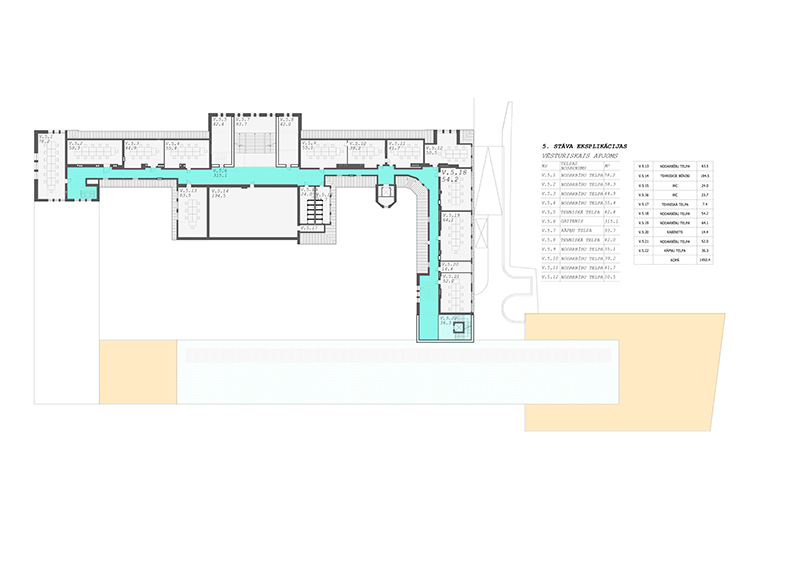
5. stāva plāns: 

https://nrja.lv/uploads/projekti/rck-15.jpg 

 atpakal




ALEX JAMES 2025-09-27 12:04:58
We have Standby Letter of Credit (SBLC) and Bank Guarantee (BG) now available for lease from top rated banks. We can also monetize the bank instrument to make the cash value transmitted direct to your account. We can convert MT760 to MT103 TT to your account You can use our bank instrument (SBLC/BG) for payment of purchase for all your commodities, services and projects via cash wire transfer or bank collateral following your confirmation of our banking instrument at your disposal via MT799/MT760 Bank to Bank Let me know your request or if you have anyone that is interested to lease our SBLC/BG Contact me for procedures. Best Regards, Contact Name: Alex James Email:signetukfinanceplc@gmail.com Whatsapp No:+44 798 400 6243
MANUEL FRANCO 2023-08-30 05:46:43
I just want to say Thank You to everyone who supported me through the years. My name is Manuel Franco, New Berlin, Wisconsin. My story of how I won the Powerball lottery of $768.4M is a bit of a tale. I have been playing Powerball tickets for 6 years now since I turned 18. I bought my first ticket on my 18 birthday. I was feeling very lucky that day because I had contacted Dr. Odunga Michael to help me with the winning Powerball numbers. I really had that great great feeling that I looked at the camera wanting to wink at it. I only did a tiny part of it and trusted him. He gave me the numbers after I played a couple other tickets along with it for $10. I checked my ticket after the winnings came online and saw the numbers were correct including the Power play. I screamed for about 10 minutes because it felt like a dream. I had won $768.4M. You can check my winning testimony with the lottery officials just with my name search. Thank you Dr Odunga. Well, his email is odungaspelltemple@gmail.com and you can also call or Whats-app him at +2348167159012 so you guys can contact him
SDER 2023-03-11 21:09:02
Loan Offer Apply Now @ Via Email: IFSCapitalloan@gmail.com ( IFSCapitalloan@gmail.com ) OFFER ALL KIND OF LOANS - APPLY FOR AFFORDABLE LOANS ( IFSCapital@post.com ) Do You Need A Loan To Consolidate Your Debt At 1%? RMPCapitals@gmail.com ( RMPCapitals@usa.com ) Or A Personal Loans * Business Loans etc. Interested Parties Should Contact Us For More Information Via Email: ( SuiteCapitals@gmail.com ) SuiteCapitals@post.com Please Fill the Application Form Below: - Complete Name: - Loan amount needed: - Loan Duration: - Purpose of loan: - City / Country: - Telephone: - Name Of The Site You/Link Hear About Us: Do You Need A Loan To Consolidate Your Debt At 1%? CYSCredits@Post.com ( CYSCredits@Asia.com ) Or A Personal Loans * Business Loans etc. Interested Parties Should Contact Us For More Information Via Email: ( ValidusCapital@execs.com ) ValidusCapital@techie.com ( CYSCredits@Asia.com ) OFFER ALL KIND OF LOANS - APPLY FOR AFFORDABLE LOANS ( CYSCredits@Post.com )
KJGYH 2023-02-25 00:23:01
Aizdevuma piedāvājums Piesakieties tūlīt, izmantojot e-pastu: IFSCapitalloan@gmail.com ( IFSCapitalloan@gmail.com ) PIEDĀVĀT VISU VEIDU AIZDEVUMU - PIESAKIES UZ IZDEVĪGIEM KREDĪTIEM ( IFSCapital@post.com ) Vai jums ir nepieciešams aizdevums, lai konsolidētu parādu ar 1%? RMPCapitals@gmail.com (RMPCapitals@usa.com) vai privātpersonu aizdevumi * biznesa aizdevumi utt. Ieinteresētajām pusēm jāsazinās ar mums, lai iegūtu papildinformāciju pa e-pastu: (SuiteCapitals@gmail.com) SuiteCapitals@post.com Lūdzu, aizpildiet zemāk esošo pieteikuma veidlapu: - Pilns nosaukums: - Nepieciešamā aizdevuma summa: - Aizdevuma termiņš: - Aizdevuma mērķis: - Pilsēta valsts: - Tālrunis: - Vietnes nosaukums, kuru jūs/saite dzirdat par mums: Vai jums ir nepieciešams aizdevums, lai konsolidētu parādu ar 1%? CYSCredits@Post.com (CYSCredits@Asia.com) vai privātpersonu aizdevumi * biznesa aizdevumi utt. Ieinteresētajām pusēm jāsazinās ar mums, lai iegūtu papildinformāciju pa e-pastu: ( ValidusCapital@execs.com ) ValidusCapital@techie.com ( CYSCredits@Asia.com ) PIEDĀVĀT VISU VEIDU AIZDEVUMU - PIESAKIES UZ IZDEVĪGIEM AIZDEVUMIEM ( CYSCredits@Post.com )
MAER KENT 2021-12-24 16:32:05
KĀ ES SAŅĒMU AIZDEVUMU MĒRIJA KENTA Tā ir dzīves maiņa! Man bija vajadzīgs aizdevums, lai atvērtu savu restorānu un bāru, kad viens no maniem biznesa partneriem iepazīstināja mani ar šo labo un uzticamo aizdevuma devēju STĪVU VILSONU, beidzot Dievs man uzsmaidīja, novirzot mani pie šī jaunā aizdevēja, kurš šogad uzsmaidīja manā sejā un viņš mani neapkrāpa un arī nemelojot, bet tomēr šis aizdevējs man piešķīra 2% aizdevumu, kura summa ir 750 000 ASV dolāru pēc tam, kad es piekritu viņu uzņēmuma noteikumiem un nosacījumiem, un viena nozīmīga lieta, kas man patīk šajā aizdevuma uzņēmumā, ir ka viņi ir ļoti ātri, Jūs varat sazināties ar aizdevuma devēju, izmantojot e-pasta adresi: stevewilsonloanfirm@gmail.com uzņēmuma vietne: https://stevewilsonfinancialloanfirm.weebly.com
MAER KENT 2021-12-24 16:30:33
HOW I GOT MY LOAN BY MARY KENT This is a change of life! i needed a loan to open my restaurant and bar, when one of my business partner introduce me to this good and trustful loan lender STEVE WILSON finally God smiled on me by directing me to this new lender who put a smile on my face this year and he did not scam me and also by not deceiving or lying to me but however this lender gave me 2% loan which amount is $750,000 united states dollars after my agreement to their company terms and conditions and one significant thing i love about this loan company is that they are very fast, You can contact the loan lender via EMAIL :stevewilsonloanfirm@gmail.com company website: https://stevewilsonfinancialloanfirm.weebly.com
Spameris
Drošības kods: > > >