aktuali projekti teksti process darbinieki

07.02.2008

http://test.nrja.lv/uploads/projekti/drupas%20saakums222.jpg

http://test.nrja.lv/uploads/projekti/House%20oh%20drupas%20thumb2.jpg

 

HOUSEOFRUINS_10.jpg

H O U S E O F R U I N S
D R U P U M Ā J A
{{ Liepājas rajona Sakas pagastā }}

# Latvijas arhitektūras Lielā Balva 2005

& & & & & & & & & & & & & & & & & & & & & & & & & & & & &

# Present of Future 1. vieta nominācijā "tehnoloģijas"

& & & & & & & & & & & & & & & & & & & & & & & & & & & & &

# nominācija Mies van der Rohe balvai..

HOUSEOFRUINS_facade.jpg

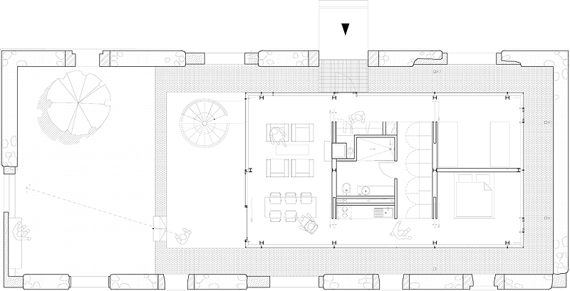
HOUSEOFRUINS_plans.jpg

HOUSEOFRUINS_sections.jpg

HOUSEOFRUINS_12.jpg

HOUSEOFRUINS_5.jpg

HOUSEOFRUINS_4.jpg

HOUSEOFRUINS_1.jpg

HOUSEOFRUINS_2.JPG

HOUSEOFRUINS_9.JPG

HOUSE OF RUINS

Location: Saka, Latvia

Architects: NRJA (Uldis Luksevics, Martins Osans)

Client: Una and Andris Vitolins

General Constructor: RBS Skals

Awards: Latvian Architecture Prize, Grand Prix (2006); Interior Digest Magazine, Best Technology Award (2006)

The House of Ruins is located in Latvia on the coast of the Baltic Sea. It is a new family house built inside the19th century ruins of a traditional Latvian barn. The architects here have used the idea of contrast where wind from the sea is opposed to the warmth of the family, and perfection of glass is set against rough surface of the old stone. The house provides both, modern life comfort and quietness of the nature. Organised in one level, it also contains a small courtyard and a spacious roof terrace for watching the sea and surrounding meadows.


 atpakal




Spameris
Drošības kods: > > >